Skip to main content

DincoPortfolio2022(2.0)

Page 1

PORTFOLIO.GAMALIELJOHNA. DINCO

GAMALIEL JOHN A. DINCO Langkaan I, Dasmarinas City, Cavite, Philippines4114 TEL: +63 917 188 9398 EMAIL:Instagram:gamaiiel9398@gmail.com@dincoarcstudio

CURRICULUM VITAE JuneEDUCATION2015-December 2021 De La Salle University - Dasmarinas BS Architecture June 2011 - March 2015 Rogationist College, Silang, Cavite Secondary School EXPERIENCES & ACHIEVEMENTS October 2021 DLSUD Architectural Thesis ExhibitSpeaker July 2020 Buildner Architectural CompetitionEntrant May 2019 Meiji University, Tokyo, JapanDelegate October 2018 HCG Architectural CompetitionEntrant April 2018 Soegijapranata Catholic University, Indonesia - Delegate 2016 - 2017 Architecture Department, Top Aca demic Performing Student September 2015 - May 2017 Municipality of Alfonso, CaviteJob Order COMPUTER SKILLS MS Office Word | Powerpoint | Excel Adobe CC Photoshop | InDesign | Lightroom | Premiere | AfterEffects Rendering Vray | Lumion | Procreate | Enscape | Kerkythea CAD / BIM AutoCAD | Revit | Sketchup

TABLE OF CONTENTS LA CASA DELLA VINO 8 MOLINO SKYWALK 18 ACOUSTIC DESIGN OF SAN JUAN NEPOMUCENO CHURCH 26 WORKING DRAWINGS 34 MANUAL ILLUSTRATIONS 36 DIGITAL ILLUSTRATIONS 40

ViaSITEArchitecturalTYPE:CompetitionLOCATION:dellaCannella,Copodacqua, Assisi, Italy ORGANIZER: Buildner Architectural WORKFLOW:Competitions AutoCAD + Sketchup + Lumion + VRay + Photoshop

LA CASA DELLA VINO | COMPETITION | 2020 8 LA CASAVINODELLA

PROJECT

Tili Vini Winery takes pride in its careful and integrated efforts to produce fantastic wines without the use of pesticides or herbicides. In addition to this, the wines produced in the wineries are done using organic and sustainable methods such as: investing in new technologies that reduces the amount of Carbon Dioxide produced. The winery introduced several processes that results in a negative carbon footprint, such as manual pruning and harvesting of crops by hand, using photovoltaic solar panels for electricity, and bottling using only recycled glass and natural made corks.

La Casa della Vino aims to apply the family’s philosophy in its design which is to have a strong focus on sustainability and conscious with the environment. The main purpose of these guest homes is to promote and encourage visitors to take part in their wine tasting experiences available at the vineyard with comfortable living space and accommodations. The site is located in a 100 square meter lot abundant with vegetation and tall trees in Assisi, Italy with an overview of the winery, the vineyard and the olive groves aligning with Assisi’s orange sunset and mountain range horizon.

Tili Vini Italy is a century old, family run business dated back when they first arrived in the region from Northern Europe in 1200 CE making them one of the prominent wine makers in Italy and in the world bottling 90,000 to 100,000 wines for wine lovers in Japan, USA, Denmark, Austria, Belgium, Holland, Germany, Switzerland, and Sweden.

“La Casa della Vino aims to apply the family’s philosophy in its design which is to have a strong focus on sustainability and conscious with the environment.”

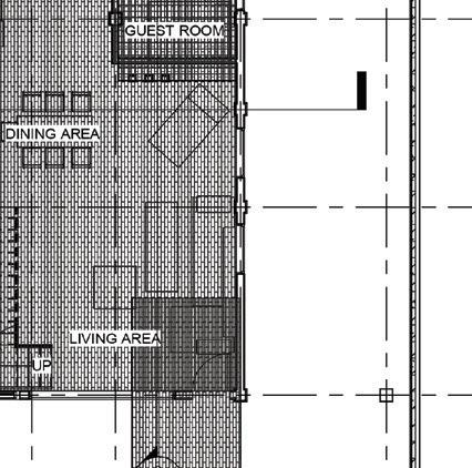
LA CASA DELLA VINO | COMPETITION | 2020 10       Guesthouse Floorplan

LA CASA DELLA VINO | COMPETITION | 202011Front Elevation | NTS Left Side Elevation | NTS ApexGreen Roof Line Ceiling Line Floor GroundLineLine       Roof Vegetation Bare TemperedConcreteCurtainGlassWeatherboardsSalvagedRiverStones ApexGreen CeilingRoofLineFloorLineGroundLine       Roof SalvagedTemperedBareVegetationConcreteCurtainGlassBareConcreteRiverStones

LA CASA DELLA VINO | COMPETITION | 2020 12       Longitudinal Section | NTS       Cross Section | NTS     vv     54321LEGEND:-ToiletandBath-Bedroom-Kitchen-DiningCounter-LivingArea/Wine Tasting Area 6 - Left Wing Corridor 7 - Corridor 8 - Right Wing Corridor 9 - Green Roof

LA CASA DELLA VINO | COMPETITION | 202013Left Wing Rendered Perspective Indoor Garden and Atrium Rendered Perspective

La

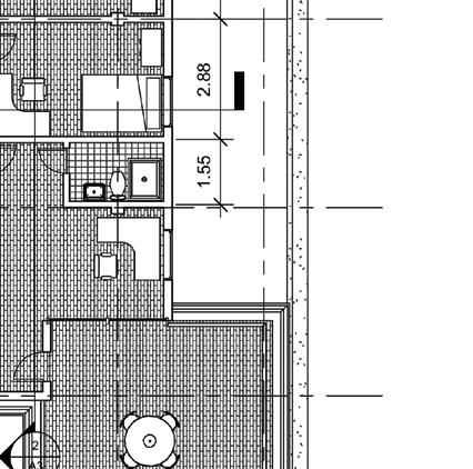
Casa della Vino is a 100 square meter guest house located in a hill over looking the Tili Vini Winery’s vineyard and olive plantation. The guest house consists of a living room and wine tasting area, a dining counter, a kitchenette, a bedroom with complete amenities of toilet and bath, a pantry, and a storage for harvested rainwater.

The concept of the guest house is to be “one with nature” which primarily focuses on the subtle difference with being outside and inside. A mini atrium is placed in the middle of the hallway to make contrast with the brutalist concept of the interior design plus, giving the guest house a room to breath and passive lighting.

The design of the guest house optimizes the beautiful view of the winery giving the users a 270 degree view of the Italian sunset with its floor-to-ceiling curtain windows.

LA CASA DELLA VINO | COMPETITION | 2020 16 Rendered Scale Model | NTS

LA CASA DELLA VINO | COMPETITION | 202017321LEGEND:-GreenRoof-Skylight-RainwaterStorage Room 4 - Toilet and Bath 5 - Walkway 6 - Kitchenette 7 - Dining counter 8 - Living Area 9 - Corridor Detailed Isometric View | NTS

Molino !V, one of the main commercial and residential districts of Bacoor City, Cavite. A gateway to the Capital of the Philippines, Manila. It is home for the working class in which their workplace spreads to its neighboring cities: Dasmarinas City, Imus City, Muntinlupa City, Pasay City, and to itself, Bacoor City. In here also lies the biggest malls in the district: Vista Mall Daanghari and SM Molino with transport terminals spread throughout the malls’ perimeters. Along with these malls that promotes walkability inside, walkability in its permeters are almost impossible for vehicles govern the roads and sidewalks are not prioritized resulting to overcrowdedness and pedestrian accidents. In addition to this, with the spread of urbanism, green areas are not prioritized. In fact, the nearest green area is 3km away from the malls.

MOLINO

PROJECT Project Molino IV, Bacoor City,

SKYWALK

Cavite

AutoCADWORKFLOW:+Sketchup Photoshop

SITE LOCATION: Brgy.

“Is this a revolution?”

The project “Molino Skywalk” is a green pedestrian overpass that links the 2 main malls, the drop-off points, and the transport terminals. It will basically serves as an “Oasis” to the barren, concrete jungle in which opposes the ongoing construction of the vehicular “skyway” by the LGU. The skywalk promotes the walkability, recreatioanl activities, breathable areas, convenience and continuous flow of pedestrians without worrying about their safety. Thus, starting a revolution to the built enviroment of the area.

+ Lumion + VRay +

TYPE: Personal

MOLINO SKYWALK | PERSONAL PROJECT | 2021 18

MOLINO SKYWALK | PERSONAL PROJECT | 202119Left Wing Perspective

MOLINO SKYWALK | PERSONAL PROJECT | 2021 20

WING PASSAGE

The “Wing Passage” or the “Flügel” is a passage that leads to the skywalk’s central piece and to the fountain (located on the left wing) and the commercial area (located on the right wing). This serves as the skywalk’s resting area for it contains parametric benches, drinking fountains, and shady trees suitable for lounging, walking, running, jogging, and other recreational activities.

THE FOUNTAIN

The “Fountain” is a common area which consists of 10 jet pumped fountains, which serves as an attraction for water and light shows. This area also serves as lounging with benches accompanied by medium-height palm trees for proper shading. This area interconnect Vista Mall Daanghari to the transport terminal and drop-off point located at the other side of Molino-Paliparan Road.

MOLINO SKYWALK | PERSONAL PROJECT | 202121

CENTRAL PASSAGE

COMMERCIAL AREA

The “Central Passage” or the “Kunst” is located at the very center of the skywalk. It houses a paramet ric tunnel made of heat-treated bamboo that gives its curved and overlapping character. This tunnel can be used for exhibits such as art, history, and others. At the perimeter of this tunnel are alterna tive routes that is adjacent to the lounging benches associated with small palm trees for shading and atmospheric comfort.

The Commercial Area also known as the “Kom merziel” is allocated to provide the need of the us ers such as food, water, and similar products. Aside from acquiring needs and eating, this area can also be used to lounge, chat, meet, and socially interact with others. This area interconnects SM Molino with the transport terminal on the other side of Molino-Paliparan Road.

MOLINO SKYWALK | PERSONAL PROJECT | 2021 22             Right Wing Section | NTS

MOLINO SKYWALK | PERSONAL PROJECT | 202123      Longitudinal Site Section | NTS Left Wing Section | NTS

MOLINO SKYWALK | PERSONAL PROJECT | 2021

MOLINO SKYWALK | PERSONAL PROJECT | 202125

Skywalk is an urban oasis found in the heart of the commercial district of Bacoor City. This ‘green overpass’ promotes walkability, PWD friendly pathway, and a breathable space in the middle of a concrete jungle. This project revolutionizes and/or opposes the local government’s erecting skyways in which they transform cities into a vehicle centered city. Problems with the pedestrians’ safety and their walkability are currently visible today. There were no sidewalks, no proper crossing and speeding vehicles thus being a threat to humans not on vehicles.

Molino

The skywalk contains a commercial area with al fresco for lounging and eating, curvy benches to promote interactions accompanied with shady trees for comfort, a centerpiecein which Bacoorenos can display their exhibits regarding history or art, a walkable jet-powered fountain for water and lights show, and a PWD escalator for our PWDs making road crossing more convenient, healthy, and safe.

SAN JUAN NEPOMUCENO ACOUSTICS | BACHELOR THESIS | 2021 26 ACOUSTIC STUDY OF SAN JUANCHURCHNEPOMUCENOPROJECT TYPE: Research Based - Bachelor Thesis SITE LOCATION: San Juan NepomucenoAlfonso,Church,CaviteAdviser: Ar. Rosauro H. Jamandri,WORKFLOW:RLA Autodesk Revit + Ecotect Analysis + EaseFocus 3+ Procreate for iPad Photoshop+ “...hearing for everyone”`

San Juan Nepomuceno Church, Alfonso’s most prominent religious infrastructure built by Jesuit friars on the early 1800’s. It is common among Alfonsenos as the center of the Roman Catholicism in the town of Alfonso. Being the center, the church literally stands at the heart of the Alfonso town proper adjacent to the municipal hall and other prominent family housAses. time goes by, the church made it through different calamities and other natural disasters and had undergone several renovations. But out of these renovations, acoustics are not given consideration. Acoustics in churches are as important as lighting to libraries and sunlight to plants. Without its acoustic intelligibility, sermons, choir songs, and other vocal used interactions will not be understandable or not heard. It is important to take acoustics into consideration so that the users, the parishioners, and the congregation may be part of the activities inside the church as a catholic community. Common problems in acoustics are found based on analysis and interviews. These problems are: 1.) Outside Noise that penetrates through the walls of the church. 2.) Too much reverberation that results to a muffled and “echo-y” sound. 3.) Imbalanced sound coming from the chruch chorale due to misplacement of the choir area. With this problems, users often do not understand what the Church may be trying to say and causes discomfort or misunderstanding so, acoustic interventions will play its role.

SAN JUAN NEPOMUCENO ACOUSTICS | BACHELOR THESIS | 202127Isometric View of Old Chorale location with visible Sound Waves Plan View of Old Chorale location with visible Sound Waves

SAN JUAN NEPOMUCENO ACOUSTICS | BACHELOR THESIS | 2021 28 Plan view of current speaker location (Right) and its sound waves Plan view of current speaker location (Left) and its sound waves

SAN JUAN NEPOMUCENO ACOUSTICS | BACHELOR THESIS | 202129Plan View of Proposed Acoustic Material Placement | NTS

The proposed ceiling of the San Juan Nepomuceno Church is inspired from Alvar Aalto’s Ceiling from the Viipuri Library. This ceiling uses the concept of optics and therefore applied to sound waves for sound and light are both energy waves traveling through space. The ceiling has a series of concave and convex shapes making it an organic ceiling. The proposed ceiling is made of engineered wood, mechanically scored to bend it. the proposed ceiling will be distributing sound throughout the whole church resulting in a balanced and less reverberated sound.

Aalto’s sketch of the Viipuri Library ceiling

SAN JUAN NEPOMUCENO ACOUSTICS | BACHELOR THESIS | 2021 30

The Proposed Ceiling

Longitudinal Section of SJN with its proposed ceiling

Mission: Possible Material

SAN JUAN NEPOMUCENO ACOUSTICS | BACHELOR THESIS | 202131

Altar Section | NTS Reverse Altar Section | NTS

The material intervention for the San Juan Nepomuceno Church will have a huge consideration regarding the church’s historical character and the material must not distort the historical adobe walls of the church. The solution will be the application of micro-perforated transparent acoustic sheets. This sheets are engi neered to reduce the initial reverberation time of 5.6 seconds to 3 seconds (2 seconds to 3.5 seconds is the ideal RT for churches) with taking consideration to the historical character of the church with the material’s transparent feature.

SAN JUAN NEPOMUCENO ACOUSTICS | BACHELOR THESIS | 2021 32 Longitudinal Section of Pre-Acoustically Treated Ceiling | NTS

SAN JUAN NEPOMUCENO ACOUSTICS | BACHELOR THESIS | 202133Longitudinal Section of Acouctically Treated Ceiling | NTS Perspective View of Acoustically Treated Ceiling | NTS

WORKING DRAWINGS | CURRICULAR | 2019 34 WORKING DRAWINGS AUTOCAD + REVIT

WORKING DRAWINGS | CURRICULAR | 201935

MANUAL ILLUSTRATIONS | 2022 36 MANUAL ILLUSTRATIONS

MANUAL ILLUSTRATIONS | 202237

MANUAL ILLUSTRATIONS | 2022 38

MANUAL ILLUSTRATIONS | 202239

DIGITAL ILLUSTRATIONS | 2022 40 DIGITAL ILLUSTRATIONS

BS ARCHITECTURE DE LA SALLE UNIVERSITYDASMARINAS

Turn static files into dynamic content formats.

Create a flipbook
DincoPortfolio2022(2.0) by Gamaliel John - Issuu