Aurora Boreal: Centro de Inclusão Social

Page 1

Aurora Boreal

Aurora

Boreal

centro de inclusão social

Aurora

Boreal

centro de inclusão social

Trabalho final de graduação apresentado ao curso de Arquitetura e Urbanismo do Centro Universitario Belas Artes de São Paulo

Orientador: David Ventura

Gabriel
São Paulo 2022/2

Agradecimentos

Em primeiro lugar, a Deus, por ter me mantido na trilha certa e superar os desafios no meio do caminho, tendo perseverança e força para chegar até o final.

Ao meu pai e minha mãe por sempre me apoiarem, não medindo esforços para a concretização do meu sonho e oferecendo a melhor educação possível. Familiares que me ajudaram a direcionar o trabalho pelo caminho certo e deram dicas importantes para a pesquisa do trabalho. A Gabriela por sempre dar forças e me acompanhar nessa trajetória, entendendo momentos de ausência e sempre oferecer amor e risadas que me ajudaram a levar o trabalho adiante. Ao meu professor e orientador David Vital Brasil Ventura, pela dedicação, amizade, paciência e comprometimento em ajudar nessa longa tarefa dando o seu melhor e compartilhando todo o seu vasto conhecimento. A todos os professores e amigos que contribuíram, de alguma forma, para a realização deste trabalho.

07 06

Resumo

Esse trabalho final de graduação apresentado tem como objetivo trazer uma solução à questão do aumento de pessoas em situação de rua, dando foco em famílias que enfrentam essa situação. Busco apresentar estudos e soluções para que se crie um centro de inclusão social que seja referência no assunto. Para tal resultado foram utilizados os conceitos de inclusão social, centro de acolhimento, amabilidade urbana e projeto participativo.

O exercício projetual apresenta um projeto de edificação localizado no bairro da República em São Paulo.

AbstractThis final graduation work presented aims to bring a solution to the issue of the increase in homeless people, focusing on families facing this situation.

I seek to present studies and solutions to create a social inclusion center that is a reference in the subject. For this result, the concepts of social inclusion, reception center, urban friendliness and participatory project were used.

The design exercise presents a building project located in the República neighborhood in São Paulo.

09 08
13. Introdução Sumário 69. Referências 17. Conceitos 23. Estudos de caso 31. Contextualização do local 47. Projeto de inclusão social 65. Considerações finais

Introdução

A escolha do tema e realização do trabalho de graduação vem de uma preocupação com o aumento do número de pessoas em situação de rua nos bairros centrais da cidade de São Paulo. Muito desse aumento foi causado pela pandemia, altas taxas de desemprego e endividamento de famílias.

Com isso, busquei trazer uma solução possível para ajudar principalmente essas famílias que estão na rua por falta de oportunidade profissional e por não conseguir conquistar uma residência digna.

O trabalho pretende desenvolver um projeto de edificação que visa abrigar, incluir e dar apoio com foco em pessoas

que estão recentemente nas ruas, dando ênfase a famílias com crianças, jovens e idosos.

Não tendo como foco em seu atendimento as pessoas em situação de rua que passam por dependência química ou estão em tratamento de vícios, por entender que diferenciariam os programas de necessidade e o modo de abordagem dos problemas.

Com isso, o projeto tem como objetivo criar um equipamento urbano bem localizado que agrega ao bairro, se torna um ponto de referência em seu meio.

15 14
Fotografia de APM - Associação Pau ista de Medicina

Conceitos

Inclusão social

Centro de acolhimento

A inclusão social é um ato que busca ajudar todos que foram excluídos da sociedade a se restabelecer de volta em seus núcleos de convívio, seja ele família, amigos ou trabalho, buscando dar apoio a todos que necessitam de suporte.

O objetivo do centro de acolhimento é ser um local que ofereça funções básicas do diaa-dia a todos que necessitem, dando abrigo, higiene básica e alimentação. Ele concentra serviços indicados para pessoas que necessitam de um rápido auxílio e residência provisória.

Os apoios vão desde as necessidades básicas até acompanhamento médico, acompanhamento psicológico, cursos profissionalizantes e incentivo à convivência.

É preciso que cada vez mais olhemos para os necessitados e tentamos ajudá-los, seja dando direcionamento a um centro específico ou dando oportunidades, afinal é direito de todos os cidadãos à moradia e condições dignas de se viver.

Esses locais podem ter variações entre si, de acordo com a demanda do entorno imediato, alguns têm horários de permanência menores e disponibilizando apenas o básico e outros já funcionam 24hrs por dia, dando todo o apoio e tratamento necessário.

"...adentra o paradigma da inclusão, discorrendo sobre a necessidade de se traçar uma nova organização da instituição escolar, com vista ao pleno acolhimento das diferenças. Salientando que nem todas as diferenças inferiorizam as pessoas, conclui o texto defendendo o direito de sermos diferentes e iguais: diferentes quando a igualdade nos descaracteriza e iguais quando a diferença nos inferioriza" (Ministério da Educação Secretaria de Educação Básica, Programa Ética e Cidadania: Construindo Valores na Escola e na Sociedade. Brasília, 2007, pág. 13)

O suporte dado por esses Centros têm como objetivo apoiar os mais necessitados para que tenham a possibilidade de se restabelecer na sociedade, buscando novas moradias ou empregos, promovendo a inclusão social e restabelecer dignidade para os usuários. “...em função dos resultados das pesquisas conclui-se que esse equipamento isoladamente não seria o suficiente sem a acolhida provisória. Para um resultado mais eficiente foram incorporados subsídios de tratamento psicológico e profissionalizantes, para então reinserção na sociedade. ” (OLIVEIRA, 2015, pág. 103)

19 18

Amabilidade Urbana

O objetivo da Amabilidade Urbana é por meio de intervenções em locais estratégicos construir uma melhor qualidade de vida urbana aos moradores da região que se localiza, trazendo novos laços entre os usuários e o bairro.

Existem três características principais dentro desse conceito, sendo eles o local físico que pode estar degradado ou subutilizado, intervenções no local existente e o estabelecimento de conexões feitas entre pessoas e o ambiente.

Um projeto que visa a amabilidade traz espaços que influenciam nas emoções do usuário, deixando-os felizes ou tristes, mudando seu humor e sentimentos, alterando suas emoções por meio de componentes que causem impacto.

A amabilidade urbana, portanto, é uma qualidade física e social ao mesmo tempo: poderia considerá-la como resultado da soma do contexto físico (espaço potencialmente atraente) com o contexto social (pessoas) que use unem através da presença da intervenção temporária (e com isso reforço a importância do contexto físico atraente, indispensável para a intervenção "sob medida"). (FONTES, 2012, p.30)

Projeto Participativo

O projeto participativo busca criar espaços inclusivos e democráticos, tendo programas de necessidade que realmente atendam e causem interesse por parte da população.

O arquiteto é parte fundamental desse processo, trazendo o seu conhecimento técnico obtido em sua formação, mas também abrindo para discussões sobre a real necessidade dos programas de distribuição do espaço. Nós profissionais temos o dever de aplicar seu conhecimento técnico, sendo ele plástico, estrutural, conforto ambiental, mas também deverá levar em consideração a comunidade que já faz parte do local. Dessa forma é possível trazer uma cooperação entre o profissional e os usuários, criando um censo de pertencimento ao projeto. O processo participativo tem sido apresentado como uma forma de enfrentar a dimensão social e política dos projetos de interesse coletivo, fazendo valer a opinião e o desejo dos usuários, com o fim de garantir maior cidadania e democracia na concepção dos espaços urbanos. (BARONE e DOBRY, 2004, pág. 01)

21 20

Estudos de caso

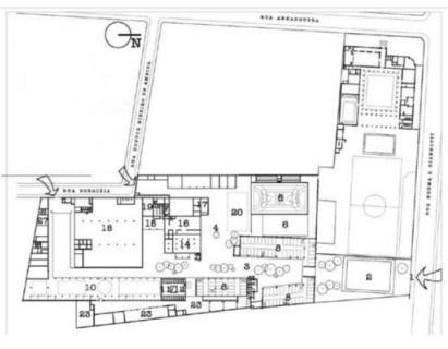
Oficina Boracea

Projeto: LoebCapote Arquitetura

Local: São Paulo, Brasil

Ano: 2003 Área do terreno: 17.000m²

O Oficina Boracea foi um projeto realizado pela Prefeitura Municipal de São Paulo, unindo o Programa Acolher com o Reconstruindo Vidas. Hoje se tornou uma referência no assunto de qualificação dos padrões de atenção à população em situação de rua, funcionando 24 horas por dia e unindo diversas Secretarias Municipais e ONGs que assumiram o compromisso do projeto, elas disponibilizam os serviços de higiene básica, alojamento e alimentação, tendo espaços de convívio e programas que buscam criar promover a inclusão social.

O projeto é uma reforma e readaptação de de um antigo galpão, foi usado sua estrutura existente para servir de base ao projeto, tendo como ponto chave a questão da espacialização do programa de uma forma horizontal e fluida, ela se destaca por entender a necessidade dos usuários e trazer um programa personalizado.

A Oficina conecta espaços internos com o exterior através de pátios abertos de convivência e corredores principais, apostando em espaços de convivência amplos como restaurante comunitário, horta comunitária, cinema, oficinas, garagens para carrinhos e canil. Assim separando os espaços internos e deixando-os voltados para áreas internas, principalmente para o pátio. Mesmo sendo escalas de edificação e locais diferentes, o meu projeto se conecta com o estudado por termos o mesmo público alvo e estar lidando a todo tempo com áreas envoltórias degradadas e intervindo em edificações que já são existentes.

Fotografia de LoebCapote. 2003 Imagem de LoebCapote. 2003

25 24

The Bridge Homeless Assistence Center

Projeto: Overland Partiners

Local: Dallas, Estados Unidos

Ano: 2010

Área do terreno: 13.760m²

Projeto realizado em Dallas, no Texas, com o objetivo de combater as altas taxas de pessoas em situação de rua e alta criminalidade na cidade, buscando abrigar e apoiar seus usuários para que pudessem em um futuro próximo ser inseridos na sociedade.

The bridge se destaca por oferecer um programa de necessidades bem completo, tendo espaço completo de saúde, com área para cuidados da saúde mental, saúde física, assistência social e etc.

Fotografia do Archdaily. 2010

Disponibiliza áreas para cursos profissionalizantes, atividades de socialização, espaços que estimulam o convívio e um espaço multiuso que é utilizado para co-working.

Sua implantação e programa se dividem em seis blocos de edificações, onde no centro se encontra um pátio com área de alimentação e espaços com vegetação.

Nota-se rapidamente a preocupação com a escala do pedestre e como todos os materiais usados na fachada também seguem o mesmo partido, os materiais usados na edificação buscam trazer a maior transparência das atividades que ali acontecem, busca conectar os usuários com todos que passam do lado de fora fazendo uso de painéis de coloridos para dar movimento e ritmo na fachada, como consequência dando cor e leveza aos ambientes internos.

Implantação do projeto. Archdaily. 2010

27 26

Instituto Moreira Salles

Projeto: Andrade Morettin

Arquitetos Associados

Local: São Paulo, Brasil

Ano: 2017 Área: 8.662m²

O projeto é hoje a sede do Instituto Moreira Salles em São Paulo, localizado na Avenida Paulista, é palco para diversas exposições e eventos culturais

A ideia era transparecer por meio da arquitetura o que o museu queria passar, conexão entre cidade e seus usuários, muitas vezes deixando em aberto seus limites entre lote particular e passeio público.

Os destaques do projeto são sua distribuição do programa por meio da

Fotografia de Nelson Kon. Archdaily. 2017

setorização de espaços, técnicas construtivas e sua conexão com os visitantes.

O Projeto faz uso da setorização de espaços para deixar bem claro suas intenções, tendo um volume que é destinado ao núcleo rígido e circulação vertical a sua esquerda, assim deixando grande vão livre em seu centro e lado direito para o uso das exposições e espaços multiusos. Explorando sua circulação vertical de forma plástica, exemplo disso é a escada metálica e a escada rolante.

O sistema construtivo trabalha com concreto armado em seu núcleo rígido e estrutura metálica no resto da edificação, variando entre lajes atarantadas e laje sobreposta em vigas, permitindo vãos e ambientes sem nenhuma interrupção por pilares. tendo seu acesso ao edifício é algo que se destaca de seu entorno, em permitir uma entrada que seja convidativa a escala do pedestre, não tendo divisão entre a calçada e o térreo, trabalhando com grandes vãos e possibilitando o acesso universal a edificação.

Corte do projeto. Archdaily. 2017

29 28

Contextualização do local

Linha do tempo

1930

Início da industrialização no Brasil, trazendo grandes obras como arranha-céus e o incentivo ao transporte individual

1942 Lei do Inquilinato, congelando por dois anos o valor dos aluguéis e tendo em contrapartida um aumento dos novos contratos

1970

1990 Primeira prisão por tráfico de crack no Brasil, ocorrido no Motel Bataklan, Guaianases, Santa ifigenia

1960 Primeira grande crise brasileira, aumentando muito pessoas nas ruas da cidade 1990 Surge alguns grupos especializados no assunto e realizam trabalhos de acolhimento e orientação

1961 Avanço do plano de avenidas Prestes Maia, facilitando o acesso dos automóveis ao centro

Incentivado pelo mercado imobiliário, acontece a migração de diversas empresas para a região sudoeste da cidade

1980 Fechamento do Terminal Rodoviário da Luz

2000 Primeiro censo dos moradores de rua da cidade de São Paulo

2001 Aumentando das pesquisas e estudos para o solucionar o problema

2009 Iniciasse A Política Nacional para a População em Situação de Rua

2020 Pandemia Covid-19 Desacelero da economia Brasileira

33 32
35 34 Local de intervenção: São Paulo Subprefeitura da Sé República Rua Aurora x Av. São João Secretária da Educação de São Paulo Praça da República Praça Julio Mesquita Lote de intervenção Metro Santa Cecília Vale do Anhangabau Imagem de Saté ite. Google Earth. 2022

Lote de intervenção

Localizado entre a Rua Aurora com a Avenida São João, o lote atualmente está dividido entre 7 outros lotes que tem entre seus usos o comércio e serviço local, sendo eles bares, padaria e mercearias, nos pavimentos superiores há residências de baixo padrão e atrás um grande área que se encontra um estacionamento para carros particulares.

Atualmente as edificações existentes não somam em nada para identidade e vida urbana do bairro, não havendo perdas para a história local a sua retirada. Somando esses lotes menores se totaliza 2480m² de terreno.

37 36
Imagem de Satélite Google Earth. 2022 Fotos do lote de intervenção. Autoria própria. 2022

Meio físico

O terreno está inserido em uma área que tem pouca variação altimétrica, no local propriamente se encontra a cota 746 e 747 metros acima do nível do mar.

Zoneamento

Mapa de topografia Topografic. Map. 2022

Lote de intervenção

745m < H < 765m 765m < H < 785m 785m < H < 805m

Mapa de zoneamento Geosampa. 2022

Parte do lote está inserida em uma Zeis 3 (cerca de 45%) e parte como ZC (cerca de 55%), estando dentro da área de atuação da Operação Urbana Centro e fazendo parte das propostas dos Planos Regionais das Subprefeituras da Santa Cecília.

Lote de intervenção ZC ZEIS-3m Vegetação ZEM

37 36

Mobilidade

Há uma diversidade de acessos e possibilidade de modais para a região, tendo duas estações de metrô nas proximidades (República e Santa Cecília) e diversas linhas de ônibus nas ruas coletoras

Assistência social

Lote de intervenção Linhas de ônibus Estações de metro

Mapa de mobilidade Geosampa. 2022

Mapa de equipamentos publicos Autoria própria e base do Geosampa. 2022

O quarteirão atrás da Praça Júlio Mesquita se encontra um conjunto de cruzamentos que são muito perigosos para o pedestre e veículos particulares, onde diariamente acontece tráfico de drogas ao ar livre, se encontra diversos cortiços e edifícios em desuso, causando um ambiente hostil para moradores do entorno.

Programas do Governo e Pontos de Assistência Social atualmente não suportam a demanda do bairro, assim obrigando os usuários dos equipamentos a percorrerem longas distâncias para encontrar programas básicos de apoio da prefeitura de São Paulo.

Lote de intervenção Ruas com alta vunerabilidade social Rotas de pessoas em situação de rua em busca de equipamentos publicos Pontos de assistência socia

38
39

História do local

Ao caminhar pelo entorno imediato do lote de intervenção é possivel notar a quantidade de edifcios baixos (entre 2 e 3 pavimentos) tendo seus uso como hoteis de hospedagem rapida, hoje são usados em sua maioria como moteis para prostituição, cortiços e locais para consumo de drogas.

Os edifícios não foram criados como uma forma de suprir a demanda dos usuários de droga, mas sim foram ocupados por eles por estarem sem uso que foram destinados. Maioria desses edifícios foram construídos entre os anos 60 e 70 por conta da demanda de hóspedes que tinham como destino a estação rodoviária da Luz, chegando de viagem necessitavam de um local para passar algumas noites, sem muito luxo, sendo um local barato, rápido e bem localizado no centro de São Paulo. Após o fechamento da Estação Rodoviária da Luz em 1980, muitos dos hotéis que estavam localizados no bairro da Luz, Santa Efigênia e Republica se viram sem hóspedes e decretaram a falência. Paralelamente a esses eventos chegavam junto com as malas o início do tráfico de drogas também no centro de São Paulo, circulando onde se tinha acesso fácil para os traficantes e usuários se viu nas redondezas da Luz uma ótima oportunidade para se instalar e melhor ainda quando houve o fechamento da Rodoviária,

41 40
Fotografia de Diario do Transporte. 2018

pois se tinha um bairro passando por uma crise na economia local e sendo muito abastecido ainda por diversas outras oportunidades de acesso do transporte público.

Com o local virando um ponto e encontra para venda de drogas não demorou muito para em 1990 termos no Brasil a primeira prisão por tráfico de crack no Motel Bataklan, localizada na Rua Guaianases Santa efigênia (localizada a duas ruas do lote de intervenção), nascendo assim o primeiro ponto de venda livre de drogas no Centro de São Paulo, sendo chamado por alguns de o primeiro endereço da Cracolândia. Após o evento ficou claro para o poder público o quanto a área tinha se degradado e desde então vem tendo diversas intervenções no centro para tentar solucionar esse problema com pensamentos diferentes e diversos tipos de abordagem entre dependente químico e assistência social Na Rua Aurora não foi diferente do que hoje se enfrenta nos entornos da Praça Princesa Isabel, O tráfico de drogas tomou a região e a história mostra o motivo porque hoje temos uma região na rua de trás da Praça da República que está tão degradada e que oferece tanto perigo para quem ali circula.

Estabe ecimento que servia como cozinha de crack. Tab UOL. 2022 Motel Bataklan. Tab UOL. 2022

43 42

Justificativa

O projeto surge a partir de uma preocupação com o aumento do número de pessoas em situação de rua na cidade de São Paulo. Entre o início do censo de pessoas em situação de rua na cidade de São Paulo até o momento vemos um aumento expressivo, principalmente nos últimos 2 censos com um aumento de 25% (entre 2019 e 2021).

De acordo com o último levantamento, a cidade de São Paulo tem cerca de 32.000 pessoas em situação de rua, sendo que a Subprefeitura da Sé é a com maior número (13.000 pessoas) e o Distrito da República com 2650 pessoas.

Atualmente a República fica atrás apenas do Distrito Santa Cecília em números de pessoas em situação de rua.

Censo da população em situação de rua Prefeitura de São Paulo. 2021

Em especial os ultimos dois censos mostram um aumento de pessoas que afirmam viver com algum familiar em situação de rua, cerca de 5000 pessoas em 2019 passando para cerca de 9.000 pessoas em 2021. nota-se também o aumento expressivo de crianças, jovens e idosos comparado aos anos anteriores.

Com isso, o trabalho pretende dar apoio para as famílias que estão a pouco tempo morando nas ruas e que buscam oportunidades para se restabelecer de volta à sociedade, mercado de trabalho e meio social.

Censo da população em situação de rua. Prefeitura de São Pau o. 2021

45 44

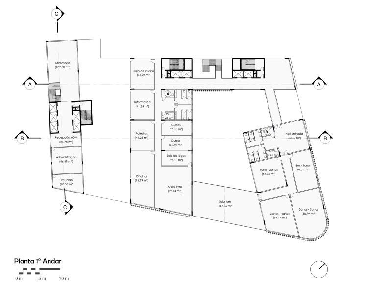
Projeto de inclusão social

Aurora Boreal

Realizando um projeto que parte do intuito de manter a memória e identidade do bairro da República, especialmente da rua Aurora e do Centro Velho da cidade de São Paulo, o projeto adotou o partido de ser inserido em um lote de esquina, que se encontra em uma localização privilegiada, sendo cercado por seus vizinho com garantidos que passam dos 50 metros de altura, foi realizado um projeto que busca fazer parte dessa paisagem urbana.

Parte do espaço que o projeto está sendo inserido está demarcado como ZEIS-3, onde já indica uma intenção projetual destinada ao Interesse Social e inserido entre o plano regional Santa Cecília e Santa Efigênia, ambos dando ênfase no acolhimento de pessoas em situação de rua e projetos de assistência social.

O desenvolvimento do projeto resultou na escolha de um terreno de 2.480m² localizado entre a Rua Aurora e Avenida São João, em frente a praça Júlio Mesquita. Uma área bastante degradada do Centro de São Paulo que necessita de uma atenção especial.Foi explorado da melhor maneira seu gabarito para que pudesse acolher o maior número de usuários possível e ainda privilegiando o conforto ambiental.

A edificação está dividida em 3 blocos com 43 metros de altura, além da necessidade de acolhimento também foi levado em consideração a vantagem de estar inserido na Operação Urbana Centro, assumindo a responsabilidade com a cidade, foi adotado essa altura para estar dentro da média de sua vizinhança, resolvendo problemas como empenas cegas e insolação.

49 48
Perspectiva Rua Aurora x Avenida São João
51 50
53 52
55 54
57 56

Programa de necessidades

59 58
61 60
63 62
Perspectiva Solarium 1° andar Perspectiva Deck de Madeira 12° andar

Considerações finais

Ao realizar esse estudo, pude nutrir mais a minha inquietação e ter acesso a diversas pesquisas em áreas do conhecimento diferentes. O problema das pessoas em situação de rua está diretamente ligada à urbanização e ao avanço do modo de gestão econômica que adotamos. Um nó na história que temos que lidar.

Esse projeto busca contribuir para a solução do aumento de pessoas em situação de rua na cidade de São Paulo, principalmente em regiões com maior vulnerabilidade social, tendo o objetivo de abrigar e incluir, trazendo diferentes abordagens para tratar o tema.

Somente a arquitetura não é capaz de solucionar essa dificuldade, mas ela pode dar apoio e servir como um ponto de acolhimento para quem passam por esse momento delicado de suas vidas. Espero que a pesquisa e projeto apresentado contribua de alguma forma para desatar esse nó, em especial para resolver problemas do bairro da República, bairro que tenho um profundo amor.

67 66
Fotografia da entrada do Metrô República em 1980. Publicada nas redes sociais do Metrô de São Paulo 2020.

Referências

BARONE Ana; DOBRY, Sylvia. "Arquitetura participativa" na visão de Giancarlo de Carlo. PosFAUUSP. São Paulo. N. 15, 18-31 p. Junho de 2004. Disponível em: <https://www.revistas.usp.br/posfau/article/view/43369#:~:text=O%20arquiteto%20italiano%20Giancarl o%20de,processo%20de%20elabora%C3%A7%C3%A3o%20de%20projetos.>. Acesso em 06 abri. 2022.

FONTES, Adriana. Amabilidade urbana: marcas das intervenções temporárias na cidade contemporânea. Revista de Estudios Urbanos y Ciencias Sociales. Almería. N. 1, 69-93 p. 2012. Disponível em: <http://repositorio.ual.es/handle/10835/1717> Acesso em 06 abri. 2022.

MINISTÉRIO DA EDUCAÇÃO. Inclusão social: Inclusão e exclusão social. Módulo 4, 51p. Brasília, 2007. Disponível em: <http://portal.mec.gov.br/docman/dezembro-2009-pdf/2181-4-inclusao-fasciculopdf/file> Acesso em 18 nov. 2022.

MINISTÉRIO DO DESENVOLVIMENTO SOCIAL E COMBATE À FOME. Orientações Técnicas: Centro de Referência Especializado para População em Situação de Rua – Centro Pop. São Paulo, jan. 2011. Disponível em: <https://www.mds.gov.br/webarquivos/publicacao/assistencia social/Cadernos/orientacoes centro po p.pdf> Acesso em: 13 jun. 2022.

HISTÓRIA: Praça da República integrada com os transportes é retrato do desenvolvimento da cidade de São Paulo, 13 nov. 2016. Disponível em: <https://diariodotransporte.com.br/2016/11/13/historia-praca-darepublica-integrada-com-os-transportes-e-retrato-do-desenvolvimento-da-cidade-de-sao-paulo/> Acesso em 18 nov. 2022.

HISTÓRIA: As empresas que "inauguraram" a "Rodoviária da Luz", no centro de São Paulo, 30 set. 2018. Disponível em: <https://diariodotransporte.com.br/2018/09/30/historia-as-empresas-que-inauguraram-arodoviaria-da-luz-no-centro-de-sao-paulo/> Acesso em 18 nov. 2022.

Morador de Rua: Projeto Oficina Boracea, 28 jun. 2012. Disponível em: < https://moradorderua.wordpress.com/2012/06/28/projeto-oficina-boracea/> Acesso em 13 jun. 2022.

OLIVEIRA, Íris. Centro de Acolhimento e Apoio ao Morador de Rua. 2015. 147 p Projeto de edificação (Trabalho Final de Graduação) – Universidade Anhembi Morumbi, Faculdade de Arquitetura e Urbanismo São Paulo, 2015.

Instituto Moreira Salles: Andrade Morettin Arquitetos, 08 nov. 2017. Disponível em: <https://www.archdaily.com.br/br/883093/instituto-moreira-salles-andrade-morettin-arquitetos? ad medium=gallery> Acesso em 13 jun. 2022.

MIAGUTI, Melissa. População de Rua: Arquitetura e Espaço Urbano. 2016. 132 p. Projeto de edificação (Trabalho Final de Graduação) – Universidade Presbiteriana Mackenzie, Faculdade de Arquitetura e Urbanismo, São Paulo, 2016.

PEREIRA, Felipe. Quem atirou a priemira pedra?, 2022. Disponível em: <https://tab.uol.com.br/edicao/crack/> Acesso em 18 nov. 2022.

Praça da República: Do Pasto Ao Moderno, A Praça Que Cresceu Com A Metrópole, 14 mai. 2014. Disponível em: <https://www.saopauloinfoco.com.br/praca-republica/> Acesso em 13 jun. 2022

71 70

PREFEITURA DE SÃO PAULO. Assistência Social. São Paulo, 23 mar. 2022. Disponível em: < https://www.prefeitura.sp.gov.br/cidade/secretarias/assistencia_social/observatorio_socioa ssistencial/pesquisas/index.php?p=18626> Acesso em: 27 mar. 2022.

PREFEITURA DE SÃO PAULO. Caderno de Propostas dos Planos Regionais das Subprefeituras: Perímetros de Ação Sé. São Paulo, Dez. 2016. Disponível em: <gestaourbana.prefeitura.sp.gov.br/wp-content/uploads/2018/02/PA-SE.pdf> Acesso em: 13 jun. 2022.

PREFEITURA DE SÃO PAULO. Parcelamento, Uso e Ocupação do Solo: Zoneamento ilustrado. São Paulo, Mar. 2016. Disponível em: < https://gestaourbana.prefeitura.sp.gov.br/wpcontent/uploads/2016/03/GEST%C3%83O2-smdu-zoneamento_ilustrado.pdf> Acesso em: 13 jun. 2022. PROFETA, Brenda. [in] Visibilidade de memórias: Centro de apoio ao morador de rua. 2020. 72 p. Projeto de edificação (Trabalho Final de Graduação) – Centro Universitário Belas Artes de São Paulo, Faculdade de Arquitetura e Urbanismo, São Paulo, 2020.

ROBERTA, Thais. A cidade e a noite: uma discussão sobre o esvaziamento do centro histórico. 2017. 158 p. Projeto de edificação (Trabalho Final de Graduação) – – Universidade Presbiteriana Mackenzie, Faculdade de Arquitetura e Urbanismo, São Paulo, 2017.

SANTOS, Mayara. Centro de Apoio à Pessoas em Situação de Rua. 2018. 77 p. Projeto de edificação (Trabalho Final de Graduação) – Universidade do Sul de Santa Catarina, Faculdade de Arquitetura e Urbanismo, Santa Catarina 2018.

SECRETARIA DA SEGURANÇA PÚBLICA. Instrução técnica N°. 11/2019: Saída de emergência. São Paulo, nov. 2011. Disponível em: < https://bombeiros.com.br/instrucoes-tecnicas/> Acesso em: 13 jun. 2022.

TEIXEIRA Marcella. Quando a mulher desenha o bairro: Projeto urbano participativo sob perspectiva da mulher em Sol Nascente. 2020. 91 p. Projeto Urbano (Trabalho Final de Graduação) – Universidade de Brasília Faculdade de Arquitetura e Urbanismo, Brasília, 2020.

The Bridge Homeless Assistance Center / Overland Partners, 01 mar 2011. Disponível em: <https://www.archdaily.com/115040/the-bridge-homeless-assistance-center-overland-partners> Acesso em 18 nov. 2022.

73 72
71 70

Turn static files into dynamic content formats.

Create a flipbook
Issuu converts static files into: digital portfolios, online yearbooks, online catalogs, digital photo albums and more. Sign up and create your flipbook.
Aurora Boreal: Centro de Inclusão Social by gabriel.germo - Issuu