
2 / 2022–2023
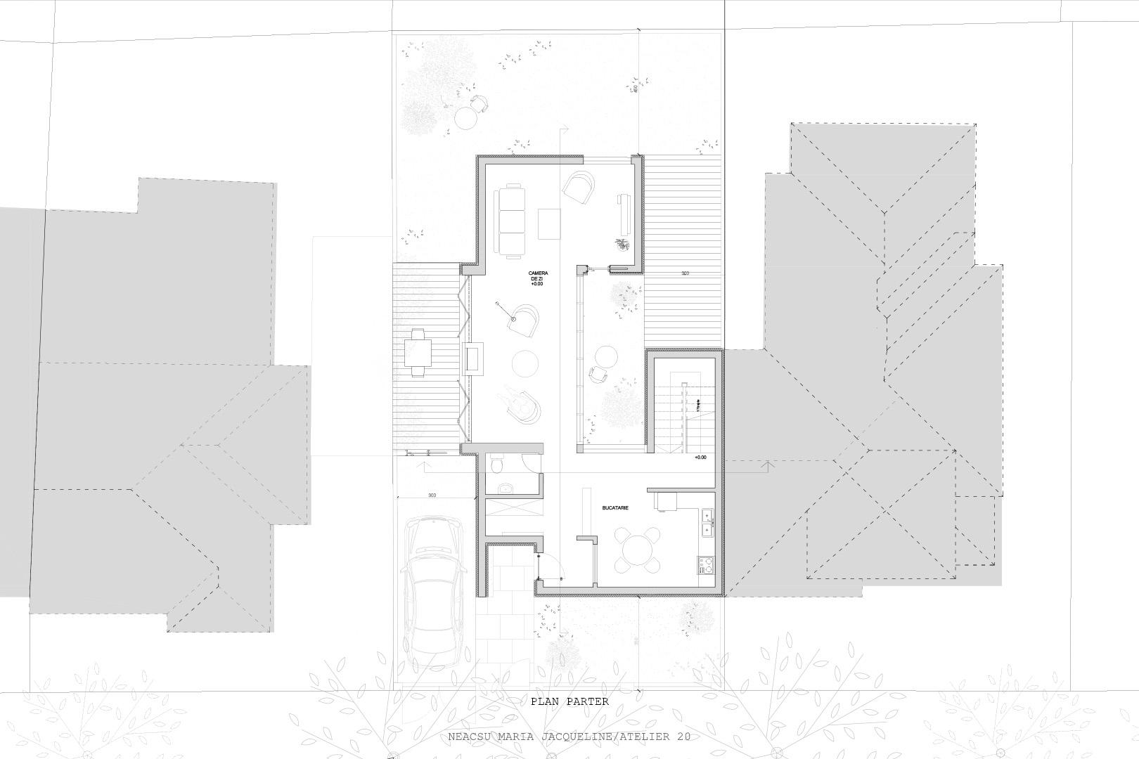
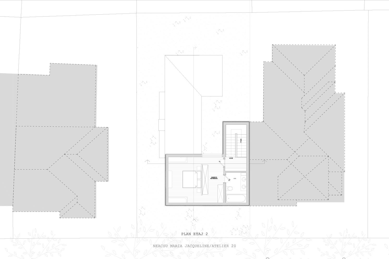
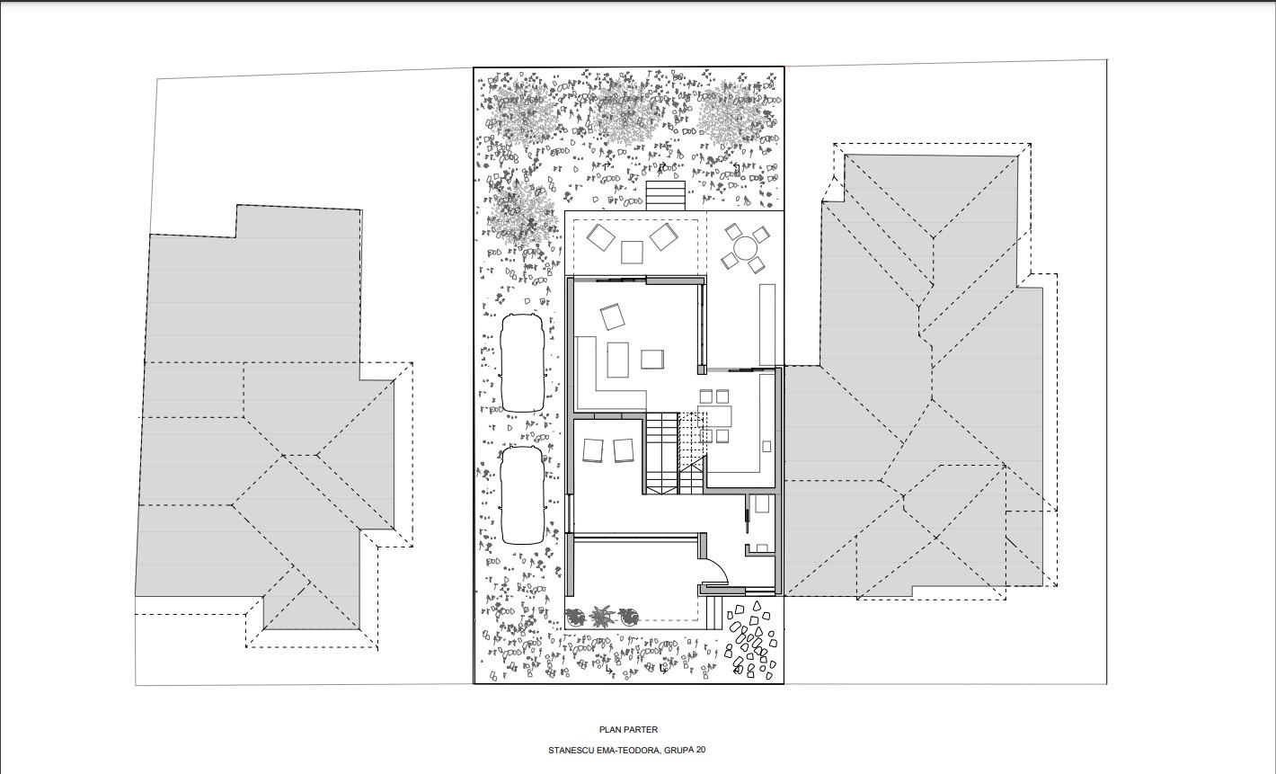
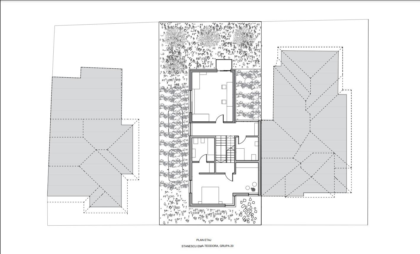
casa unei familii
house for a family
Conf.dr.arh. Iulian Gudină
Grupa 20 Anul 2 2022-2023
Departamentul Bazele Proiectării
Universitatea de Arhitectură și Urbanism
Ion Mincu București
Iulian Gudină Assoc.Prof.Ph.D.Arch.
Studio 20 2nd Year 2022-2023
Basics of Architectural Design
University of Architecture and Urbanism
Ion Mincu Bucharest

București
Nicolae Milescu
48 Bucharest
48
Nicolae Milescu
Conf.dr.arh. Iulian Gudină Asist.dr.arh. Cristina Stireciu Dr.arh. Ionuț Dinu TUTORS
Iulian Gudină Assoc.Prof.Ph.D.Arch. Cristina Stireciu Assist.Ph.D.Arch. Ionuț Dinu Ph.D.Arch.
































































































