









![]()












HOA(Y/N) Yes
HOADues $150.00
INTERIORAMENITIES Other FIREPLACE None
EXTERIORAMENITIES Deck, Patio FENCING None
NEIGHBORHOODAMENITIES Common Playground / Park, Community Pool, Exterior Maintenance
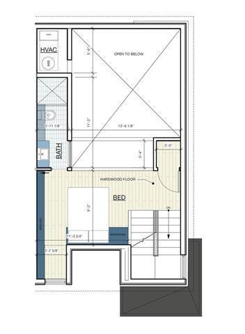
Introducing the luxury penthouse condominiums, Parkside Flats by MOD, coming Winter/Spring 2026. Ideally located at 11th & Fremont in the heart of Manhattan, Kansas, Parkside Flats overlooks City Park and theAggieville district.This premier multi-unit condo building offers unparalleled access to shopping, dining, entertainment, and campus life all within walking distance. Designed by David MillerArchitecture and finished with signature MOD millwork, each residence features high-end design, integrated cabinetry, and sound-suppressing construction. Enjoy expansive views, sprinklered units, and thoughtful touches throughout. These modern homes blend luxury and functionality with efficient layouts and cutting-edge style. Low monthly HOAdues and no special assessment taxes. Whether you’re seeking a primary residence, second home, or high-performing investment/Airbnb, Parkside Flats is a rare opportunity. On-site parking included. Limited availability Call 785-313-0550 to reserve.
PERSONALPROP. INCLUDED Other
Pers.Prop.Included Detail An appliance package will be offered and can be upgraded. Personal Prop. Excluded N/A
EXTERIOR BrickAccent, Hardboard Siding, Wood Frame
CONSTRUCTION TYPE Site Built
BASEMENT/FINISH Slab
BASEMENT LIGHT EXPOSURE None
ROOF Architecture Dimensioned, New
WATER TYPE/SEWER TYPE City Water, City Sewer
FUEL Electric
HEATING TYPE Electric
COOLING TYPE Ceiling Fan(s), Central
GARAGE TYPE None
Seller Legal Name MOD 4, LLC
Legal Lot 384, Ward 4 (The owner's attorney is working on the new legal description.)
Title Company Charlson and Wilson
LAType SellersAgent









7/30/2025