Frifeldt huskatalog 2025

Page 1


DRØMMEN OM ET TRÆHUS

Frifeldt ApS

Jens Chr. Nielsensvej 1

DK-7480 V ildbjerg

(+45) 9747 2460

mail@frifeldt.dk

CVR: 2813 6889

Scan QR koden for prisliste Jylland og Fyn

Scan QR koden for prisliste Sjælland, Lolland og Falster

2 • Frifeldt

HVEM ER FRIFELDT?

5 gode grunde til at bygge med Frifeldt side 06

Sommerhuse og helårshuse i træ ............................. side 09

Ofte stillede spørgsmål side 10

Bæredygtighed: Vi tænker grønt side 12

BYGGESTIL

De mange muligheder side 18 Nem oversigt side 21 Èn plantegning − Fem udtryk ................................... side 22

YDELSER OG MATERIALEVALG INKL. I PRISEN

Ydelser og materialevalg side 26

(QR kode) side 27

PLANTEGNINGER

Husbredde 6118mm side 30

7918mm

KONSTRUKTIONER

af sommerhus til helårs ........................ side 84

OVERBLIK OVER BYGGEPROCESSEN

Fra idé til det færdige drømmehus side 88

ALTERNATIVE LØSNINGER

Skab din egen stil side 92

til inspiration side 94

− Tag del i byggeriet side 98 01 02 03 04 05 06 07

HVEM ER FRIFELDT?

5 GODE GRUNDE

TIL

AT BYGGE MED FRIFELDT

Siden 1968 har vi specialiseret os i at opføre sommerhuse og helårshuse i træ. De mange års erfaring gør, at vi har opbygget en stor faglig ekspertise og en unik evne til at lytte og forstå vores kunders ønsker og behov. Vi har gjort det let for dig at designe dit personlige træhus.

Her får du 5 gode grunde til at Frifeldt skal bygge dit sommer- eller helårshus.

#1 Vi gør vores fortid til jeres fordel

Med mere end 50 år på bagen er vi en pålidelig og erfaren samarbejdspartner, når du skal bygge nyt træhus. Det betyder, at vi har et gennemgående kendskab til branchen, metoder og materialer. Vores store erfaring kommer dig til gode, når du skal bygge dit hus.

#2 Plantegninger kan ændres

Den sidste streg er ikke tegnet, og stort set alt kan lade sig gøre. I kataloget er der over 100 forskellige plantegninger. Ingen af Frifeldts plantegninger er fastlåste. De kan alle ændres, så de passer til dine ønsker og behov.

#3 Byggerådgivning med teknisk forståelse

Når dialogen om dit nye træhus går i gang, kommer du i kontakt med vores byggeteknisk-uddannet rådgiver fra starten. Det sikrer dig, en god begyndelse på byggeprocessen og på den måde, bliver dine drømme og behov tænkt ind i en ramme, der kan lade sig gøre, allerede fra første streg.

#4 Betal først ved aflevering

Du kan se frem til en god og tryg byggeproces, hvor du er sikret, at huset står færdigt, før du laver slutbetalingen. Hos Frifeldt betaler du kun 5% ved afsætning af huset på din grund. De resterende 95% betales først, når huset afleveres.

#5 Bygget med omhu og tanke for miljøet

Hvert hus er individuelt, men fælles for dem alle er, at kvaliteten skal være i top. Vi lægger stor vægt på finish, arkitektur, kvalitetsmaterialer og håndværksmæssig faglighed. Samtidig tænker vi på miljøet, da vi gerne vil give en grønnere klode videre til de næste generationer. Derfor er vi stolte af, at kunne tilbyde dig et hus, hvor langt størstedelen af træet kommer fra steder, der passer ekstra godt på kloden.

SOMMERHUSE OG HELÅRSHUSE

TIDEN

ER INDE TIL ET HUS I TRÆ

Træhuse kan bare noget helt specielt! De har en helt særlig charme og hygge over sig. En unik evne til at indfange sjæl og give en afslappende atmosfære. Træets naturlige æstetik giver en varm og indbydende stemning i huset og du får en bolig med et sundt indeklima, der samtidig udleder mindre CO2 i produktionsfasen end et traditionelt murstenshus.

SOMMERHUSE & HELÅRSHUSE I TRÆ

Hos Frifeldt har vi specialiseret os i at opføre sommerhuse i træ. Siden 1968 har vi været involveret i et hav af byggeprojekter rundt om i landet, der alle har været med til at styrke vores faglig ekspertise og unikke evne til at lytte og forstå vores kunders ønsker og behov.

Vores brede erfaring og konstante opmærksomhed på at følge med efterspørgslen har gjort, at vi med tiden har udvidet fra sommerhuse til også at tilbyde helårshuse i træ.

SKRÆDDERSY DIT ARKITEKTTEGNEDE TRÆHUS

Hos Frifeldt har vi forslag til mere end 100 plantegninger, der alle kan skræddersyes til dine ønsker. Dertil har vi 5 forskellige stilarter, du selv vælger imellem. Du får generelt rig mulighed for at sætte dit personlige præg på hele huset.

Du har mulighed for at tilpasse både husstørrelse, rumfordeling, tagkonstruktioner, materialevalg, køkken, opbevaringsplads, udefaciliteter og mange andre detaljer, så du får et træhus skabt lige præcis til dig.

FRIFELDT ER KENDT FOR HØJ KVALITET

Hos Frifeldt tager vi hånd om dig gennem hele processen – lige fra de første idéer, til du står med nøglen til dit færdigbyggede træhus.

I begyndelsen fortæller du om dine ønsker og økonomiske rammer til vores byggerådgivere, som sidder klar til at tegne og tilrette. De rådgiver og sparrer med dig, så du er sikker på, at dine drømme også holder i virkeligheden. Under selve byggeriet vil en byggeleder tage over på projektet og være din primære kontaktperson.

Så godt og professionelt lavet, tak! Jeg har sjældent oplevet noget lignende og huset var klar før tid som lovet. Det har godt nok imponeret en gammel garvet byggemand, som har set lidt af hvert de sidste 25 år.

Kæmpe ros til hele holdet!

Anita og Ulrik Lauenbach, Nykøbing Sjælland

På den måde opretholder vi en høj kvalitet i alle led og sikrer, at huset lever op til den gode byggekvalitet, som Frifeldt er kendt for. Nemlig smuk arkitektur, personlige huse, kvalitetsmaterialer, høj finish og håndværksmæssig faglig stolthed.

SKAB MAGI MED PERSONLIG INDRETNING

Når det kommer til indretning, er der et utal af muligheder for at skabe rum, der både er inspirerende og funktionelle.

Lad din personlige stil og præferencer skinne igennem i valget af farver, mønstre og materialer. Vær ikke bange for at eksperimentere og tage chancer. Brug huset som et sted, hvor du kan slippe din indre designer løs og skabe et hjem, der fremmer både fællesskab og afslapning.

Husk både behagelige opholdsområder, hvor familie og venner kan samles og nyde hinandens selskab – men også hyggelige kroge, hvor man kan trække sig tilbage og finde ro.

Hos Frifeldt har vi sat rammerne, men det er dig, der sætter sidste touch på dit nye hus.

Hos Frifeldt snakker vi hver dag med mennesker, der drømmer om et sommerhus eller helårshus.
Her er 5 spørgsmål, vi ofte får − og svarene på dem.

OFTE STILLEDE SPØRGSMÅL

HVORNÅR KAN MIT HUS STÅ FÆRDIGT?

Hos Frifeldt har vi meget stor fleksibilitet, og vi kan som udgangspunkt bygge, når det passer ind i din tidsplan. Du kan ringe til os, hvis du vil have en cirka-tidsplan for netop dit projekt.

ER ET TRÆHUS BILLIGERE END ET MURSTENSHUS?

Prisen på et hus afhænger af meget mere end materialevalg. Husets udformning, detaljeringsgrad og kompleksitet har også stor indvirkning på prisen. Det ærlige svar er, at du ikke bør forvente, at et træhus er billigere end et simpelt murstenshus. Til gengæld er et træhus langt mere klimavenligt og har flere byggefordele. Eksempelvis er en ydervæg af træ tyndere end en murstensvæg, hvilket medfører flere boligkvadratmeter.

HVORDAN KAN DET VÆRE, AT KVADRATMETERPRISEN

PÅ SOMMERHUSE OFTE ER DYRERE, END DEN ER I HELÅRSHUSE?

Det er ikke helt fair at sammenligne kvadratmeterprisen på et sommerhus med et helårshus. På trods af størrelsesforskellen har de fleste stadig samme køkkenkrav, samme antal badeværelser og opvarmningskilde i sommerhuset som i et helårshus. Det er de ting, der koster. Det samme argument gælder opstartsfaser med el, VVS, maler osv.

Vi ser også, at flere ønsker samme høje komfort i deres sommerhus, som de har derhjemme − eller måske endda højere.

HVOR MEGET INDFLYDELSE FÅR JEG PÅ HUSET?

Det korte svar er: Stor indflydelse. Vores byggerådgivere tegner huset ud fra dine personlige drømme og behov. Når tegningen er i mål afholdes et byggemøde, hvor alle materialer og overflader udvælges. Du vælger selv køkken, bad og garderobe, så vi er sikre på, at du har fuld kontrol over stilen i dit træhus.

HVORDAN FOREGÅR BETALING OG AFLEVERING?

Hos Frifeldt er der ingen betaling ved selve kontraktindgåelsen. Ved Frifeldt betaler du først 5% af byggeriet ved afsætning af huset. De resterende 95% betales, når huset afleveres. Med denne betalingsform, kan du se frem til en god og tryg byggeproces, hvor du er sikret, at huset står færdigt, før du laver slutbetalingen.

Ved afleveringsforretning gennemgåes huset, med Frifeldts byggeleder, for eventuelle fejl og mangler, som selvfølgelig udbedres. Du har derudover mulighed for et ét-års gennemgang, hvor eventuelle opståede reklamationer vil blive udbedret. Det er din garanti for, at alt er 100% i orden.

BÆREDYGTIGHED

VI TÆNKER GRØNT

Hos Frifeldt vil vi gerne give en grønnere klode videre til de næste generationer. Derfor er vi stolte af at kunne tilbyde dig et træhus, hvor langt størstedelen af træet kommer fra steder, der pas ser ekstra godt på kloden. 97% af alt det træ, vi bruger i vores byggerier, er certificeret træ. De resterende 3% repræsenterer specialvarer, der endnu ikke har modtaget et certificeringsnum mer hos vores trælasthandel. Arbejdet er sat i gang, og snart vil alt det træ, vi handler med og bruger, kunne klassificeres som 100% certificeret.

For at et træ kan blive certificeret skal det komme fra skovom råder, der udnyttes på en måde, der både er til gavn for naturen og for lokalsamfundet. Ved at købe certificerede træprodukter, er vi sikre på, at træet er vokset og forarbejdet under en række restriktive krav og har oprindelse i skovområder, der udnyttes bæredygtigt.

FÅ EN LIVSCYKLUSANALYSE PÅ DIT HELÅRS BYGGERI

Det er et krav for alt helårbyggeri, at der skal udarbejdes en LCA (livscyklusanalyse). Hos Frifeldt bakker vi op om kravet og ser det som en mulighed for at skubbe byggeri i en endnu mere bæredygtig retning – uanset om det er sommer- eller helårs huse.

Faktisk er vi allerede et skridt foran. Livscyklusmæssigt er det nemlig positivt at vælge et træhus, da træerne æder CO2, når de vokser op i naturen. Vi rådgiver også gerne i, hvordan du ellers kan reducere byggeriets CO2-belastning ved eksempelvis at vælge sedumtag eller opgradere til Thermowood beklædning.

Vores grønne bevidsthed er også grunden til, at vi isolerer grun digt og installerer varmepumper i alle vores huse. På den måde kan vi reducere strømforbruget, bruge naturlig energi og forbed re husets energimærke.

”Stor ros til jer alle hos Frifeldt for en helt igennem velorkestreret proces, hvor tingene er løst på en kundeorienteret måde, som giver én mod på at bygge langt flere huse end realkreditten tillader.

Godt gået og et kæmpe tak til hele teamet.

Thomas A. Therkelsen, Fanø

MÅLET ER 100% CERTIFICERET TRÆ

Hos Frifeldt er 97% af træprodukterne i vores huse certificeret. Snart vil alt det træ, vi handler med og bruger, kunne klassificeres som 100%.

Find mere inspiration i vores store billedgalleri på frifeldt.dk

BYGGESTIL

02

Find masser af inspiration i vores store billedgalleri på frifeldt.dk

BYGGESTIL

DE MANGE MULIGHEDER

Et hus ændrer arkitektonisk udtryk, alt efter hvilken tagform, der vælges. Ved Frifeldt kan du vælge mellem disse 5 stilarter.

MODERN CLASSIC

Saddeltag uden udhæng

Saddeltag uden udhæng er til dig, der drømmer om et flot, klassisk træhus med et moderne twist.

Denne byggestil giver et mere nutidigt og moderne udtryk på huset. Med tagpap på taget og gulv-til-loft vinduer, fremstår hele huset minimalistisk og stilrent.

En af de helt store fordele ved et hus med saddeltag er, at du får loft til kip, flot loftshøjde og store rum med mulighed for hems.

Om et saddeltag skal være med eller uden udhæng er mest af alt en smagssag. At undvære udhænget kan dog med fordel give mere lys inde i huset.

CLASSIC

Saddeltag med udhæng

Træhuse med saddeltag og udhæng ligner det, vi traditionelt forbinder med de klassiske nordiske sommerhuse, der ligger spredt i den skønne danske natur.

Husene bliver detaljerige med tagsten og tilvælger du sprodsede vinduer, skaber du samtidigt en hyggelig og mere romantisk stil. Skulle det ønskes, kan der sagtens tilføjes ovenlys vinduer, således der ikke gåes på kompromis med ekstra lysindfald.

Indvendigt i huset skaber saddeltaget loft til kip, hvilket giver en imponerende loftshøjde og god mulighed for hems.

Det er mest af alt en smagssag, om saddeltag skal være med eller uden udhæng. Fordelen ved udhænget er bl.a., at det kan være med til at beskytte beklædningen på facaden.

FUNCTION

Ensidig taghældning

Et træhus med ensidig taghældning fuldender drømmen om et moderne hus med maksimal udnyttelse af lysindfald.

Den moderne byggestil, med store vinduer i facaden, fremstår arkitektonisk moderne i landskabet.

Husets ensidige taghældning giver ekstra lysindfald i køkkenalrum og stue, så du får et stort, lyst og lækkert opholdsrum til hele familien. I den lavere ende af huset får du en loftshøjde, der er perfekt til værelser, der udstråler hygge og intimitet.

PURE

Fladt tag

Et træhus med fladt tag passer til dig, der sætter pris på et clean og stilrent udtryk.

Du skal vælge det flade tag, hvis du mener, at et træhus ikke skal blive alt for stort. Loftshøjden skaber en intim stemning og giver god mulighed for at indrette små kroge og hyggelige rum.

Byggestilen er et eksempel på, hvordan der opstår skønhed i det enkle og stramme look, der giver plads til omgivelserne. Derfor vælger mange at invitere naturen indenfor med store vinduespartier og træterrasser, der vokser i naturlig forlængelse af huset.

Fladt tag med tårn

Træhuset til dig, der tør vælge noget unikt og helt særligt. Hos Frifeldt skiller vi os ud med denne smukke tagkonstruktion med tårn.

Det flade tag med tårn er til jer, der har en skarp holdning til arkitektur, og som drømmer om et hus med maksimal udnyttelse af pladsen uden at gå på kompromis med detaljerne i indretningen.

Lyset i denne hustype spiller en særlig rolle, da solen kommer ind fra alle verdenshjørner i opholdsrummet.

NEM OVERSIGT BYGGESTIL

MODERN CLASSIC

Saddeltag uden udhæng

FUNCTION

Ensidig taghældning

CLASSIC

Saddeltag med udhæng

PURE

Fladt tag LIFE

Fladt tag med tårn

ÉN PLANTEGNING – FEM UDTRYK

HVAD ER DIN BYGGESTIL?

MODERN

CLASSIC

Saddeltag uden udhæng

På disse skitser, tages udgangspunkt i præcis den samme plantegning, men tagkonstruktionerne er forskellige. Du kan næsten vælge en hvilken som helst plantegning, men det er tagkonstruktionen og de valgte materialer, som i sidste ende bestemmer udtrykket på dit nye hus.

CLASSIC

Saddeltag med udhæng

Læs mere om de mange muligheder side 18-20

FUNCTION

Ensidig taghældning

PURE

Fladt tag

Fladt tag med tårn

YDELSER OG MATERIALEVALG

YDELSER & MATERIALEVALG INKLUDERET I PRISEN

Hos Frifeldt får du et træhus med flot arkitektur og høj håndværksmæssig faglighed. Huset er som standard fyldt med kvalitetsmaterialer og flotte detaljer. Ønsker du at ændre de materialer, som beskrevet i det følgende, kan det naturligvis lade sig gøre. Når du bygger hus med Frifeldt, er følgende inkluderet i et nøglefærdigt projekt iht. prisliste:

YDELSER

• Standard myndighedsbehandling ekskl. byggesagsgebyr

• Entrepriseforsikring inkl. storm og brand i byggeperioden

• Landinspektør, hjørne- og galgeafsætning af bygning, afsætningsplan og IBS attest

• Jordbundsundersøgelser med 2 boreprøver til 4 meter under terræn

• Etablering af byggestrøm, inkl. tilslutning i elskab

• Etablering af byggevand, ekskl. målerbrønd

• Slutrengøring inden aflevering

• Bortskaffelse af byggeaffald

• Fast tilknyttet byggeleder på dit projekt

Ekstra ydelser kun ved helårshuse (Helårspakke)

• Energimærkning

• Energibehovsberegning

• LCA beregning (livscyklusanalyse)

• Blowerdoortest/trykprøvning

• Byggeskadeforsikring

• Statisk dokumentationsrapport

UDVENDIG

• Tag:

Saddeltag uden udhæng: 2 lag tagpap med listedækning pr. ca. 1 meter, 22,5° taghældning

Saddeltag med udhæng: Betontagsten, 22,5° taghældning

∙ Ensidig taghældning: Tagpap, 5° taghældning

Fladt tag: Tagpap, kilefald på tag

Fladt tag med tårn: Tagpap, kilefald på tag

• Sternbrædder, vindskeder og stolper: Sortmalet og opsat med rustfri befæstigelse

• Underbeklædning og udhængsbrædder: Forgrundet hvide, forgrundet sorte eller ultrafin hvid Troldtekt

• Tagrender og nedløbsrør: Arkitektrende i stål plus fra Plastmo

• Facadebeklædning: Vandret klinkbeklædning. Fabriksmalet med 1xgrunder og 2xheldækkende sort maling. Opsat med rustfri befæstigelse

• Træ/alu døre- og vindueselementer med 2-lags glas (3-lags glas helårshuse)

• Støbt sokkel: Berappes overalt og pudses ved synlig sokkel

• Støbt terrændæk

INDVENDIG

• Lofter: Hvidmalede-, ludet/hvidpigmenterede profilbrædder eller ultrafin hvid Troldtekt

• Vægge: Hvidmalede fingerskarrede profilbrædder uden knaster, eller ludet/hvidpigmenteret profilbrædder

• Vægge i vådrum: Fibergips med filt og maling

• Indvendige døre: Massive, glatte, hvide døre i størrelsen 8M (9M helårshuse). Rustfri stål greb

• Dørkarme, gerigter og fodlister: Hvidmalet

• Gulve i køkken, stue og værelser: Laminat gulve med trælook

• Gulve i vådrum: Klinker

EL

• Lys- og kraftinstallationer iht. gældende regler

• Røgalarm

Ydelser kun ved sommerhuse

• Varmekilde: Panasonic luft/luft varmepumpe (med wifi) ved køkken

• Varmekilde: El-radiatorer (med wifi) i alle værelser, bad, gang og entré

• Varmekilde: El-gulvvarme (med wifi) under klinker i vådrum

• Elektrisk udluftning i vådrum

VVS

• Koldt- og varmtvandsinstallation iht. gældende regler

• HansGrohe termostatstyrede blandingsbatterier med brusersæt i bad

• HansGrohe ét-grebs armaturer ved vaske

• Gulvmonteret Gustavberg toilet

Ydelser kun ved sommerhuse

• Vandvarmer dimensioneret til husets størrelse

Ekstra ydelser kun ved helårshuse (Helårspakke)

• Metro Term Luft/vand varmepumpe eller fjernvarmeunit

• Vandbåren gulvvarme med trådløs styring

• Mekanisk ventilationsanlæg

Scan QR koden for prisliste Jylland og Fyn

Scan QR koden for prisliste Sjælland, Lolland og Falster

MURER

• Klinker på gulv i badeværelser (klinkepris: 399kr pr. m²)

• Fliser på vægge i vådzone/bruseniche (klinkepris: 399kr pr. m²)

• Klinker i entré hvis vist på plantegning (klinkepris: 399kr pr. m²)

MALER

• Filt og maling af vægge i vådrum

• Maling af synlig limtræ, keler og stolper

• Maling/overstrygning af fodlister og gerigter

INVENTAR

• 60.000kr inkl. moms + 500kr pr m² boligareal til HTH-inventar (vejledende prisliste). Beløbet er afsat til køkken- og bad inventar samt evt. garderobeskabe og spejl

HVIDEVARER

• Ovn med pyrolyse (Siemens eller AEG)

• Induktionskogeplader (Siemens eller AEG)

• Opvaskemaskine (Siemens eller AEG)

• Kølefryseskab (Siemens eller AEG)

• Emhætte integreret i overskab (Siemens eller AEG)

• Vaskemaskine og tørretumbler kan tilkøbes

DIVERSE

• Glas bruseafskærmning, hvis vist på plantegning

• Linjeafløb i bruseniche

• Sauna (hvis illustreret på plantegning) 6kW ovn, ubehandlet gran på væg og loft, røgfarvet saunadør og bænk i aspetræ

• Badekar (hvis illustreret på plantegning) kan opgraderes til spabad

* Udvendig kloak, vandmålerbrønd, stikledninger, faskiner og lignende kan tilkøbes til projektet

* Fremsendte tilbud til kunder kan naturligvis afvige fra standard ydelser iht. dialog med kunde

Se desuden konstruktionsopbygninger og snittegninger under afsnittet ”05 – Konstruktioner”.

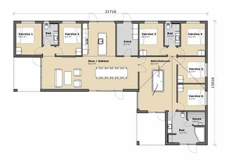
PLANTEGNINGER

Hos Frifeldt har vi mere end

100 forskellige forslag

til plantegninger

Alle plantegninger kan justeres, spejlvendes og roteres efter ønske. Viste møbler såsom senge, spiseborde, stole, sofaarrangementer, poolborde og lign. er ikke inkluderet.

61 ∙089∙15

Boligareal: 89 m² ∙ Overdækket: 15 m²

61 ∙104∙14

Boligareal: 104 m² ∙ Overdækket: 14 m²

61 ∙096∙15

Boligareal: 96 m² ∙ Overdækket: 15 m²

61 ∙115∙25

Boligareal: 115 m² ∙ Overdækket: 25 m²

61 ∙116∙17

Boligareal: 116 m² ∙ Overdækket: 17 m²

61 ∙126∙15

61 ∙129∙15

Boligareal: 126 m² ∙ Overdækket: 15 m²

Boligareal: 129 m² ∙ Overdækket: 15 m²

61 ∙135∙20

Boligareal: 135 m² ∙ Overdækket: 20 m²

61 ∙144∙25

Boligareal: 144 m² ∙ Overdækket: 25 m²

61 ∙148∙15

Boligareal: 148 m² ∙ Overdækket: 15 m²

61 ∙157∙17

Boligareal: 157 m² ∙ Overdækket: 17 m²

61 ∙159∙15

Boligareal: 159 m² ∙ Overdækket: 15 m²

61 ∙174∙25

Boligareal: 174 m² ∙ Overdækket: 25 m²

61 ∙184∙15

Boligareal: 184 m² ∙ Overdækket: 15 m²

Frifeldt

Alle plantegninger kan justeres, spejlvendes og roteres efter ønske. Viste møbler såsom senge, spiseborde, stole, sofaarrangementer, poolborde og lign. er ikke inkluderet.

73 ∙063∙18

Boligareal: 63 m² ∙ Overdækket: 18 m²

73 ∙089∙09

Boligareal: 89 m² ∙ Overdækket: 9 m²

73 ∙074∙06

Boligareal: 74 m² ∙ Overdækket: 6 m²

73 ∙091∙06

Boligareal: 91 m² ∙ Overdækket: 6 m²

73 ∙094∙13

Boligareal: 94 m² ∙ Overdækket: 13 m²

73 ∙098∙00

73 ∙098∙18

Boligareal: 98 m² ∙ Overdækket: 18 m²

Boligareal: 98 m² ∙ Overdækket: 0 m²

73 ∙098∙26

Boligareal: 98 m² ∙ Overdækket: 26 m²

73 ∙100∙11

Boligareal: 100 m² ∙ Overdækket: 11 m²

73 ∙102∙15

Boligareal: 102 m² ∙ Overdækket: 15 m²

73 ∙102∙13

Boligareal: 102 m² ∙ Overdækket: 13 m²

73 ∙103∙21

Boligareal: 103 m² ∙ Overdækket: 21 m²

73 ∙103∙22

Boligareal: 103 m² ∙ Overdækket: 22 m²

73 ∙107∙17

73 ∙111∙13

Boligareal: 111 m² ∙ Overdækket: 13 m²

Boligareal: 107 m² ∙ Overdækket: 17 m²

73 ∙111∙22

Boligareal: 111 m² ∙ Overdækket: 22 m²

73 ∙111∙30

Boligareal: 111 m² ∙ Overdækket: 30 m²

73 ∙115∙18

Boligareal: 115 m² ∙ Overdækket: 18 m²

73 ∙113∙31

Boligareal: 113 m² ∙ Overdækket: 31 m²

73 ∙115∙26

Boligareal: 115 m² ∙ Overdækket: 26 m²

73 ∙116∙43

Boligareal: 116 m² ∙ Overdækket: 43 m²

73 ∙120∙23

Boligareal: 120 m² ∙ Overdækket: 23 m²

73 ∙120∙18

Boligareal: 120 m² ∙ Overdækket: 18 m²

73 ∙120∙30

Boligareal: 120 m² ∙ Overdækket: 30 m²

73 ∙129∙13

Boligareal: 129 m² ∙ Overdækket: 13 m²

73 ∙139∙35

Boligareal: 139 m² ∙ Overdækket: 35 m²

73 ∙168∙44

Boligareal: 155 m² ∙ Overdækket: 22 m²

Boligareal: 168 m² ∙ Overdækket: 44 m²

Alle plantegninger kan justeres, spejlvendes og roteres efter ønske. Viste møbler såsom senge, spiseborde, stole, sofaarrangementer, poolborde og lign. er ikke inkluderet.

79 ∙089∙31

Boligareal: 89 m² ∙ Overdækket: 31 m²

79 ∙104∙16

Boligareal: 104 m² ∙ Overdækket: 16 m²

79 ∙094∙12

Boligareal: 94 m² ∙ Overdækket: 12 m²

79 ∙106∙09

Boligareal: 106 m² ∙ Overdækket: 9 m²

79 ∙108∙16

Boligareal: 108 m² ∙ Overdækket: 16 m²

79 ∙111∙14

79 ∙118∙34

Boligareal: 111 m² ∙ Overdækket: 14 m²

Boligareal: 118 m² ∙ Overdækket: 34 m²

79 ∙120∙14

Boligareal: 120 m² ∙ Overdækket: 14 m²

79 ∙125∙09

79 ∙125∙19

Boligareal: 125 m² ∙ Overdækket: 9 m²

Boligareal: 125 m² ∙ Overdækket: 19 m²

Boligareal: 139 m² ∙ Overdækket: 14 m²

79 ∙141∙20

Boligareal: 141 m² ∙ Overdækket: 20 m²

Boligareal: 148 m² ∙ Overdækket: 19 m²

Boligareal: 158 m² ∙ Overdækket: 19 m² 79 ∙148∙19

79 ∙158∙19

Boligareal: 158 m² ∙ Overdækket: 28 m²

79 ∙167∙19

Boligareal: 167 m² ∙ Overdækket: 19 m²

Boligareal: 168 m² ∙ Overdækket: 14 m²

Boligareal: 184 m² ∙ Overdækket: 21 m² 79 ∙168∙14

79 ∙184∙21

Boligareal: 197 m² ∙ Overdækket: 23 m²

79 ∙249∙28

Boligareal: 249 m² ∙ Overdækket: 28 m²

Alle plantegninger kan justeres, spejlvendes og roteres efter ønske. Viste møbler såsom senge, spiseborde, stole, sofaarrangementer, poolborde og lign. er ikke inkluderet.

85 ∙089∙15

Boligareal: 89 m² ∙ Overdækket: 15 m²

85 ∙107∙17

Boligareal: 107 m² ∙ Overdækket: 17 m²

85 ∙103∙20

Boligareal: 103 m² ∙ Overdækket: 20 m²

85 ∙110∙14

Boligareal: 110 m² ∙ Overdækket: 14 m²

85 ∙111∙13

Boligareal: 111 m² ∙ Overdækket: 13 m²

Areal med tårn: 51 m²

85 ∙152∙12

85 ∙144∙00

Boligareal: 144 m² ∙ Overdækket: 0 m²

Boligareal: 152 m² ∙ Overdækket: 12 m²

Boligareal: 226 m² ∙ Overdækket: 0 m² 85 ∙162∙12

∙226∙00

Boligareal: 162 m² ∙ Overdækket: 12 m²

Alle plantegninger kan justeres, spejlvendes og roteres efter ønske. Viste møbler såsom senge, spiseborde, stole, sofaarrangementer, poolborde og lign. er ikke inkluderet.

97 ∙071∙23

Boligareal: 71 m² ∙ Overdækket: 23 m²

97 ∙096∙39

Boligareal: 96 m² ∙ Overdækket: 39 m²

Areal med tårn: 44 m²

97 ∙080∙26

Boligareal: 80 m² ∙ Overdækket: 26 m²

97 ∙100∙24

Boligareal: 100 m² ∙ Overdækket: 24 m²

Areal med tårn: 30 m²

97 ∙101∙35

Boligareal: 101 m² ∙ Overdækket: 35 m²

Areal med tårn: 47 m²

97 ∙103∙14

Boligareal: 103 m² ∙ Overdækket: 14 m²

97 ∙102∙10

Boligareal: 102 m² ∙ Overdækket: 10 m²

97 ∙109∙21

Boligareal: 109 m² ∙ Overdækket: 21 m²

97 ∙111∙25

Boligareal: 111 m² ∙ Overdækket: 25 m²

Areal med tårn: 51 m²

97 ∙112∙17

Boligareal: 112 m² ∙ Overdækket: 17 m²

97 ∙112∙00

Boligareal: 112 m² ∙ Overdækket: 0 m²

97 ∙112∙28

Boligareal: 112 m² ∙ Overdækket: 28 m²

Areal med tårn: 36 m²

97 ∙118∙25

Boligareal: 118 m² ∙ Overdækket: 25 m²

97 ∙131∙33

97 ∙136∙22

Boligareal: 136 m² ∙ Overdækket: 22 m²

Areal med tårn: 32 m²

Boligareal: 131 m² ∙ Overdækket: 33 m²

Areal med tårn: 46 m²

97 ∙142∙35

Boligareal: 142 m² ∙ Overdækket: 35 m²

Areal med tårn: 53 m²

97 ∙150∙21

Boligareal: 150 m² ∙ Overdækket: 21 m²

97 ∙155∙33

Boligareal: 155 m² ∙ Overdækket: 33 m²

Areal med tårn: 50 m²

Boligareal: 162 m² ∙ Overdækket: 20 m²

97 ∙177∙34

Boligareal: 177 m² ∙ Overdækket: 34 m² Areal med tårn: 53 m²

Alle plantegninger kan justeres, spejlvendes og roteres efter ønske. Viste møbler såsom senge, spiseborde, stole, sofaarrangementer, poolborde og lign. er ikke inkluderet.

HUSBREDDE

ALTERNATIV HUSBREDDE

99 ∙093∙29

Boligareal: 93 m² ∙ Overdækket: 29 m²

Areal med tårn: 45 m²

99 ∙101∙35

Boligareal: 101 m² ∙ Overdækket: 35 m²

Areal med tårn: 45 m²

99 ∙094∙25

Boligareal: 94 m² ∙ Overdækket: 25 m²

Areal med tårn: 41 m²

99 ∙106∙23

Boligareal: 106 m² ∙ Overdækket: 23 m²

Areal med tårn: 45 m²

99 ∙117∙43

Boligareal: 117 m² ∙ Overdækket: 43 m²

Areal med tårn: 52 m²

99 ∙127∙29

99 ∙120∙40

Boligareal: 120 m² ∙ Overdækket: 40 m²

Areal med tårn: 52 m²

Boligareal: 127 m² ∙ Overdækket: 29 m²

Areal med tårn: 52 m²

99 ∙144∙38

Boligareal: 144 m² ∙ Overdækket: 38 m²

Areal med tårn: 52 m²

99 ∙153∙29

Boligareal: 153 m² ∙ Overdækket: 29 m²

Areal med tårn: 52 m²

Boligareal: 193 m² ∙ Overdækket: 17 m²

99 ∙245∙20

Boligareal: 245 m² ∙ Overdækket: 20 m²

KONSTRUKTIONER

05

MODERN CLASSIC SOMMERHUS KONSTRUKTION

TAGKONSTRUKTION: U-værdi 0,12 W/m²K

• 2 lag tagpap afsluttet med lister CC 1,1 meter

• 18 mm tagkrydsfinér

• 45 mm påforing for ventilation

• 45x295 mm spær planker

• 290 mm flexi A-batts lambda 34

• Dampspærre Würth DB20

• 22 mm forskalling

• Loft: (Valgmuligheder iht. prisliste)

∙ 19x125 mm hvidmalet profilbrædder – knastfri, fingerskaret 19x125 mm hvidpigmenteret profilbrædder 25x600x1200 mm ultrafin hvid Troldtekt

• Arkitekttagrende i Stål Plus fra Plastmo

• Underbeklædning: (Valgmuligheder iht. prisliste) 15x93 mm forgrundede hvide brædder 15x93 mm forgrundede sorte brædder 25x600x1200 mm ultrafin hvid Troldtekt

• Sternbrædder

• Bærende stolper: Udføres som beklædte vægge

VÆGKONSTRUKTION: U-værdi 0,19 W/m²K

• 22x140 mm sortmalet klinkbeklædning – gran

• 25x50 mm trykimprægneret ventilationsliste

• Ventilationsrist og musestop mellem ventilationslister

• 9 mm stabiliserende diffusionsåben vindspærreplade

• 45x145 mm stolpekonstruktion

• 145 mm flexi A-batts lambda 34

• Dampspærre Würth DB20

• 45 mm installationsvæg

• 45 mm flexi A-batts lambda 34

• Vægbeklædning: (Valgmuligheder iht. prisliste)

19x125 mm hvidmalet profilbrædder, knastfri, fingerskaret

∙ 19x125 mm hvidpigmenteret profilbrædder 11x125 mm hvid MDF panelboard

GULV OG TERRÆNDÆK: U-værdi 0,11 W/m²K

• 8 mm laminatgulv med trælook

• 2,6 mm lyddæmpende underlag med fugtspærre

• 110 mm betongulv med armeringsnet

• 230 mm polystyrenplade klasse 31

• 300 mm komprimeret afrettet sand

RANDFUNDAMENT

• Sokkelpuds ved synlig sokkel

• Radon sikring

• 25x120 mm trykimprægneret kantbræt

• 150 mm murpap

• M12 gevindstænger til forankring

• 1 stk. 100 mm lecablok

• 1 stk. 290 mm lecablok

• 50 mm kantisolering

• 350 mm randfundament

• Beton til frostfri dybde med fibre

VINDUER OG DØRE

• Træ/alu med 2-lags glas, U-værdi 1,3 W/m²K

• Hvide lysninger

• Hvide laminat bundplader

SKILLEVÆGGE

• 95 mm stolpekonstruktion

• 95 mm flexi A-batts lambda 37

• Vægbeklædning: (Valgmuligheder iht. prisliste)

19x125 mm hvidmalet profilbrædder, knastfri, fingerskaret

∙ 19x125 mm hvidpigmenteret profilbrædder

∙ 11x125 mm hvid MDF panelboard

• Indvendige døre – massiv, glathvid uden bundstykker

BADEVÆRELSER OG TOILETRUM

• 15 mm fibergips

• Fuldspartlet

• Filt og maling

Ønsker du at opgradere til et HELÅRSHUS se side 84-85

Hos Frifeldt er der fokus på energioptimering. Vores huse er energioptimeret med lave u-værdier på tag, væg og gulv. Det betyder for dig, at du sparer mange penge på strøm og varme.

4310Højde tagryg ved 7318 bredde 4560Højde tagryg ved 8518 bredde 4810Højde tagryg ved 9718 bredde 4430Højde tagryg ved 7918 bredde 4070Højde tagryg ved 6118 bredde

Princip "Smart-hems"

CLASSIC SOMMERHUS KONSTRUKTION

TAGKONSTRUKTION: U-værdi 0,12 W/m²K

• Betontagsten Dobbelt S sorte

• 38x73 mm taglægter

• 25x50 mm trykimprægneret ventilationsliste

• Diffusionsåbent undertag

• 45x295 mm spær planker

• 290 mm flexi A-batts lambda 34

• Dampspærre Würth DB20

• 22 mm forskalling

• Loft: (Valgmuligheder iht. prisliste)

∙ 19x125 mm hvidmalet profilbrædder – knastfri, fingerskaret

∙ 19x125 mm hvidpigmenteret profilbrædder

∙ 25x600x1200 mm ultrafin hvid Troldtekt

• Arkitekttagrende i Stål Plus fra Plastmo

• Underbeklædning: (Valgmuligheder iht. prisliste)

∙ 15x93 mm forgrundede hvide brædder

∙ 15x93 mm forgrundede sorte brædder

• Sternbrædder

• Bærende stolper: Udføres som limtræsstolpe

VÆGKONSTRUKTION: U-værdi 0,19 W/m²K

• 22x140 mm sortmalet klinkbeklædning – gran

• 25x50 mm trykimprægneret ventilationsliste

• Ventilationsrist og musestop mellem ventilationslister

• 9 mm stabiliserende diffusionsåben vindspærreplade

• 45x145 mm stolpekonstruktion

• 145 mm flexi A-batts lambda 34

• Dampspærre Würth DB20

• 45 mm installationsvæg

• 45 mm flexi A-batts lambda 34

• Vægbeklædning: (Valgmuligheder iht. prisliste)

∙ 19x125 mm hvidmalet profilbrædder, knastfri, fingerskaret

∙ 19x125 mm hvidpigmenteret profilbrædder

∙ 11x125 mm hvid MDF panelboard

GULV OG TERRÆNDÆK: U-værdi 0,11 W/m²K

• 8 mm laminatgulv med trælook

• 2,6 mm lyddæmpende underlag med fugtspærre

• 110 mm betongulv med armeringsnet

• 230 mm polystyrenplade klasse 31

• 300 mm komprimeret afrettet sand

RANDFUNDAMENT

• Sokkelpuds ved synlig sokkel

• Radon sikring

• 25x120 mm trykimprægneret kantbræt

• 150 mm murpap

• M12 gevindstænger til forankring

• 1 stk. 100 mm lecablok

• 1 stk. 290 mm lecablok

• 50 mm kantisolering

• 350 mm randfundament

• Beton til frostfri dybde med fibre

VINDUER OG DØRE

• Træ/alu med 2-lags glas, U-værdi 1,3 W/m²K

• Hvide lysninger

• Hvide laminat bundplader

SKILLEVÆGGE

• 95 mm stolpekonstruktion

• 95 mm flexi A-batts lambda 37

• Vægbeklædning: (Valgmuligheder iht. prisliste)

∙ 19x125 mm hvidmalet profilbrædder, knastfri, fingerskaret

∙ 19x125 mm hvidpigmenteret profilbrædder

∙ 11x125 mm hvid MDF panelboard

• Indvendige døre – massiv, glathvid uden bundstykker

BADEVÆRELSER OG TOILETRUM

• 15 mm fibergips

• Fuldspartlet

• Filt og maling

Ønsker du at opgradere til et HELÅRSHUS se side 84-85

Hos Frifeldt bruger vi ikke en almindelig tynd plastik som dampspærre, men en DB20 dampspærre, som er en 3 lags dampspærre med stofforstærkning.

4400Højde tagryg ved 7318 bredde 4650Højde tagryg ved 8518 bredde 4900Højde tagryg ved 9718 bredde 4520Højde tagryg ved 7918 bredde 4160Højde tagryg ved 6118

FUNCTION

SOMMERHUS KONSTRUKTION

TAGKONSTRUKTION: U-værdi 0,12 W/m²K

• 2 lag tagpap

• 18 mm tagkrydsfinér

• 45 mm påforing for ventilation

• 45x295 mm spær

• 290 mm flexi A-batts lambda 34

• Dampspærre Würth DB20

• 22 mm forskalling

• Loft: (Valgmuligheder iht. prisliste)

∙ 19x125 mm hvidmalet profilbrædder – knastfri, fingerskaret 19x125 mm hvidpigmenteret profilbrædder 25x600x1200 mm ultrafin hvid Troldtekt

• Arkitekttagrende i Stål Plus fra Plastmo

• Underbeklædning: (Valgmuligheder iht. prisliste) 15x93 mm forgrundede hvide brædder 15x93 mm forgrundede sorte brædder 25x600x1200 mm ultrafin hvid Troldtekt

• Sort alu inddækning, med ventilation, ved stern

• Bærende stolper: Udføres som beklædte vægge

VÆGKONSTRUKTION: U-værdi 0,19 W/m²K

• 22x140 mm sortmalet klinkbeklædning – gran

• 25x50 mm trykimprægneret ventilationsliste

• Ventilationsrist og musestop mellem ventilationslister

• 9 mm stabiliserende diffusionsåben vindspærreplade

• 45x145 mm stolpekonstruktion

• 145 mm flexi A-batts lambda 34

• Dampspærre Würth DB20

• 45 mm installationsvæg

• 45 mm flexi A-batts lambda 34

• Vægbeklædning: (Valgmuligheder iht. prisliste)

19x125 mm hvidmalet profilbrædder, knastfri, fingerskaret

∙ 19x125 mm hvidpigmenteret profilbrædder 11x125 mm hvid MDF panelboard

GULV OG TERRÆNDÆK: U-værdi 0,11 W/m²K

• 8 mm laminatgulv med trælook

• 2,6 mm lyddæmpende underlag med fugtspærre

• 110 mm betongulv med armeringsnet

• 230 mm polystyrenplade klasse 31

• 300 mm komprimeret afrettet sand

RANDFUNDAMENT

• Sokkelpuds ved synlig sokkel

• Radon sikring

• 25x120 mm trykimprægneret kantbræt

• 150 mm murpap

• M12 gevindstænger til forankring

• 1 stk. 100 mm lecablok

• 1 stk. 290 mm lecablok

• 50 mm kantisolering

• 350 mm randfundament

• Beton til frostfri dybde med fibre

VINDUER OG DØRE

• Træ/alu med 2-lags glas, U-værdi 1,3 W/m²K

• Hvide lysninger

• Hvide laminat bundplader

SKILLEVÆGGE

• 95 mm stolpekonstruktion

• 95 mm flexi A-batts lambda 37

• Vægbeklædning: (Valgmuligheder iht. prisliste) 19x125 mm hvidmalet profilbrædder, knastfri, fingerskaret

∙ 19x125 mm hvidpigmenteret profilbrædder

∙ 11x125 mm hvid MDF panelboard

• Indvendige døre – massiv, glathvid uden bundstykker

BADEVÆRELSER OG TOILETRUM

• 15 mm fibergips

• Fuldspartlet

• Filt og maling

Ønsker du at opgradere til et HELÅRSHUS se side 84-85

Hos Frifeldt har vi konstrueret vores huse sådan, at man kan udskifte bygningsdele, som tagrender, taget, vinduer, facader og lign. uden at det påvirker andre bygningsdele. På den måde er byggeriet fremtidssikret, når materialers levetid om mange år render ud.

Højde facade ved 9718 bredde

3623Højde facade ved 7918 bredde 3115lofthøjde ved 9718 bredde

lofthøjde 2890 3675Højde facade ved 8518 bredde 3570Højde facade ved 7318 bredde 3465Højde facade ved 6118 bredde

,

Højde helårshus

PURE & LIFE SOMMERHUS KONSTRUKTION

TAGKONSTRUKTION: U-værdi 0,12 W/m²K

• 2 lag tagpap

• 15 mm tagkrydsfinér

• Kile opbygning/ventileret tag, 1:40 fald

• 45x295 mm spær

• 290 mm flexi A-batts lambda 34

• Dampspærre Würth DB20

• 22 mm forskalling

• Loft: (Valgmuligheder iht. prisliste)

∙ 19x125 mm hvidmalet profilbrædder – knastfri, fingerskaret 19x125 mm hvidpigmenteret profilbrædder 25x600x1200 mm ultrafin hvid Troldtekt

• Tagnedløbsrør i Stål Plus fra Plastmo

• Underbeklædning: (Valgmuligheder iht. prisliste)

- 15x93 mm forgrundede hvide brædder

- 15x93 mm forgrundede sorte brædder

- 25x600x1200 mm ultrafin hvid Troldtekt

• Sort alu inddækning, med ventilation, ved stern

• Bærende stolper: Udføres som limtræsstolpe

VÆGKONSTRUKTION: U-værdi 0,19 W/m²K

• 22x140 mm sortmalet klinkbeklædning – gran

• 25x50 mm trykimprægneret ventilationsliste

• 9 mm stabiliserende diffusionsåben vindspærreplade

• Ventilationsrist og musestop mellem ventilationslister

• 45x145 mm stolpekonstruktion

• 145 mm flexi A-batts lambda 34

• Dampspærre Würth DB20

• 45 mm installationsvæg

• 45 mm flexi A-batts lambda 34

• Vægbeklædning: (Valgmuligheder iht. prisliste)

19x125 mm hvidmalet profilbrædder, knastfri, fingerskaret

∙ 19x125 mm hvidpigmenteret profilbrædder 11x125 mm hvid MDF panelboard

GULV OG TERRÆNDÆK: U-værdi 0,11 W/m²K

• 8 mm laminatgulv med trælook

• 2,6 mm lyddæmpende underlag med fugtspærre

• 110 mm betongulv med armeringsnet

• 230 mm polystyrenplade klasse 31

• 300 mm komprimeret afrettet sand

RANDFUNDAMENT

• Sokkelpuds ved synlig sokkel

• Radon sikring

• 25x120 mm trykimprægneret kantbræt

• 150 mm murpap

• M12 gevindstænger til forankring

• 1 stk. 100 mm lecablok

• 1 stk. 290 mm lecablok

• 50 mm kantisolering

• 350 mm randfundament

• Beton til frostfri dybde med fibre

VINDUER OG DØRE

• Træ/alu med 2-lags glas, U-værdi 1,3 W/m²K

• Hvide lysninger

• Hvide laminat bundplader

SKILLEVÆGGE

• 95 mm stolpekonstruktion

• 95 mm flexi A-batts lambda 37

• Vægbeklædning: (Valgmuligheder iht. prisliste)

19x125 mm hvidmalet profilbrædder, knastfri, fingerskaret

∙ 19x125 mm hvidpigmenteret profilbrædder

∙ 11x125 mm hvid MDF panelboard

• Indvendige døre – massiv, glathvid uden bundstykker

BADEVÆRELSER OG TOILETRUM

• 15 mm fibergips

• Fuldspartlet

• Filt og maling

Hos Frifeldt bruger vi en stærk fibercement vindspærreplade bagved udvendige beklædninger. Pladen er en diffusionsåben, uorganisk vindspærre, som forhindrer råd og svamp, men samtidig tillader konstruktionen at ånde. Den er så stærk, at den også må indregnes som stabiliserende i en ydervæg.

Ønsker du at opgradere til et HELÅRSHUS se side 84-85

OPGRADERING AF SOMMERHUS TIL HELÅRS KONSTRUKTION

• 50mm ekstra isolering i ydervægge, U-værdi: 0,16 W/m²K

• 100mm ekstra isolering i taget, U-værdi: 0,10 W/m²K

• 70mm ekstra isolering i terrændækket, U-værdi: 0,09 W/ m²K

• 3 lags træ/alu vinduer, U-værdi: 0,77 W/m²K

• Luft/vand varmepumpe eller fjernvarmeunit

• Vandbåret gulvvarme med trådløs styring

• Mekanisk ventilationsanlæg

• Statisk dokumentationsrapport

• Energimærkning

• Energibehovsberegning

• LCA beregning (livscyklusanalyse)

• Blowerdoortest/trykprøvning

• Byggeskadeforsikring

Hos Frifeldt opskæres husets skelet og spær på vores værksted. Så alt er tilpasset, opmærket og klar til at blive samlet på byggepladsen. At forarbejdet er i orden, giver mange fordele på byggepladsen. Vi mindsker fejl, opnår en høj finish og kommer hurtigt ud over stepperne, så vi får lukket huset for vind og vejr.

Snit, tagsten
Snit, ensidig

OVERBLIK OVER PROCESSEN

FRA IDÉ TIL DET

FÆRDIGE DRØMMEHUS

Hos Frifeldt guider vi dig gennem hele byggeprocessen til du står med nøglen til dit nybyggede træhus. Bliv klogere på hele processen her.

#1

Afklaring af ønsker og behov

Det hele starter med, at du har fået en god idé: Du vil have et træhus. Du kontakter os, og fortæller om dine byggedrømme. Vores byggerådgiver hjælper dig med at finde præcis dén type og model, der passer dit behov.

Myndighedsbehandling

Frifeldt påbegynder myndighedsbehandling inden 6 hverdage og sørger for indhentning af byggetilladelser og andre tilladelser varieret af behov. Alle kommuner agerer forskelligt og behandlingen varierer derfor fra kommune til kommune.

#2

Tegninger og tilbud

Næste skridt er, at vi prissætter dit drømmehus samt tegner et skitseforslag så det lever op til dine ønsker. Når husets udformning ligger fast, udarbejder vi en kontrakt, der formaliserer samarbejdet og sikrer dig, at du får det aftalte hus.

Projektering

Projekteringen er det sidste skridt, inden byggeriet kan gå i gang. Her detailprojekterer vi huset. Vi bestiller materialer hjem fra leverandørerne og håndværkere bliver booket til at udføre byggeriet.

Materialer og en tur i HTH

I forbindelse med at kontrakten underskrives afholdes et byggemøde, hvor alle materialer og overflader gennemgås. Bagefter skal du en tur forbi vores inventarleverandør HTH for at vælge køkken, bad og garderobe. På den måde sikrer vi, at du har fuld kontrol over, hvordan stilen i dit hus ender ud.

Træhuset bygges

Det er nu tegningerne forvandles til et vaskeægte sommerhus eller helårshus. Alle vores huse bygges på stedet. Materialerne bliver forarbejdet og pakket i vores egen produktion, så det er nemt for montørerne at gå til på pladsen.

#4
#5
#3
#6

Projektledelse

Når byggeriet går i gang, overtager vores byggeleder styringen. Byggelederen er på byggepladsen den dag, hvor byggeriet starter op og foretager de besøg, der er behov for i løbet af byggeriet. Under byggeriet vil byggelederen være din primære kontaktperson, hvis du har spørgsmål eller brug for info om byggeriet.

Aflevering af huset

Når byggeriet er afsluttet, foretager du sammen med byggelederen en afleveringsforretning, hvor huset gennemgås. Eventuelle fejl og mangler noteres og udbedres indenfor den aftalte tid. Du modtager ligeledes en drift- og vedligeholdelsesmappe for huset. Dit hus er klar til indflytning!

Fem års reklamationsret

Efter aflevering står du med nøglerne til dit drømmehus − men vores veje skilles ikke nødvendigvis her. Du har nemlig 5 års reklamationsret på dit nye træhus. Her er der mulighed for at udbedre eventuelle opståede reklamationer. Og så er det din garanti for, at alt bliver 100% i orden.

#7
#8
#9

ALTERNATIVE LØSNINGER

Find masser af inspiration i vores store billedgalleri på frifeldt.dk

Med et Frifeldt hus kan du få det lige som du drømmer om. Huset er som standard fyldt med kvalitetsmaterialer og flotte detaljer og alle disse kan du se et overblik over på side 26 og 27. Ønsker du at ændre standard materialerne til andet, kan det naturligvis lade sig gøre. Her er et lille udpluk af forslag til

alternative løsninger. Mulighederne er uendelige, men bare rolig. Vores kyndige byggerådgivere guider dig hele vejen igennem processen, så du til sidst står med lige præcis det træhus, som passer til dig.

”Vi har fået en skræddersyet planløsning og hele vejen igennem er der blevet taget højde for vores ønsker. Kommunikationen med alle hos Frifeldt, har været helt enestående og vi står nu med et hus der passer til os i en fremragende kvalitet, der dels skyldes de materialer som anvendes og de håndværkere som har været tilknyttet projektet. Kan varmt anbefales.

Jesper og Helle, Bornholm

9 LÆKRE DETALJER

DER ER VÆRD AT OVERVEJE

1 / terrasse

En træterrasse tilføjer naturlig skønhed og varme til udendørs rummet, og træets naturlige tekstur og farve – som kun bliver smukkere med tiden – skaber en behagelig atmosfære. Uund værlig til hyggelige grillaftener og stunder med familie og venner.

2 / udespa

Elsker du luksus og selvforkælelse, så er en udespa et oplagt valg til sene aftentimer, når du vil have alenetid eller til en festlig aften i selskab med vennerne. Uanset hvad du drømmer om, så får du en følelse af at være væk fra dagligdagen.

3 / udebruser

At stå under åben himmel og bruse sig, er skønt. Derfor vælger mange at sætte en udebruser op. Det er nemt og bekvemt, når du har brug for at blive kølet ned en varm sommerdag eller skal have skyllet sand og snavs af kroppen efter en tur i bølgen blå, saunaen eller spabadet.

3

4 / "smart-hems" 5 1 2

Vores ”smart”-hems er genial til udnyttelse af pladsen hen over de indbyggede værelsesskabe. Når vi bygger hems over skabe ne, så udnyttes pladsen i vores sadeltags huse til fulde, og vi får endnu flere sovepladser til børn eller gæster i huset. Og så ser løsningen elegant ud og skaber en hyggelig stemning.

Find mange flere lækre detaljer i vores store billedgalleri på frifeldt.dk

5 / sauna

Det er en gammel, men i den grad stadig populær klassiker at have sauna, primært i sit sommerhus. Det varme rum kalder på afstresning og wellness for hele familien samlet eller til en rolig aleneaften. Vælg mellem en traditionel eller infrarød sauna.

Sauna kan også være attraktivt, da den højner værdien på dit sommerhus, hvis det skal bruges til udlejning.

6 / brændeovn

For mange er sommerhus lig med, at der skal tændes op i brændeovnen. Udover at kunne varme huset, så har brændeovn en særlig evne til at samle familien og vennerne om sig. Uanset om det er en rå efterårsdag eller en kølig forårsaften, så lægger brændeovnen op til vaskeægte hygge.

7 / alkove

En klassisk detalje er en hyggekrog, der kan tage form som alkove eller hems og give hulestemning til huset. Her kan børnene lege på hemsen, mens bedstefar fordyber sig i en god bog i alkoven − eller måske tager sig en middagslur. Om natten kan begge forvandles til ekstra sovepladser til husets gæster.

8 / listelofter

Listelofter er både ekstremt smukke og giver samtidig en god akustik i rummet. Den nordiske æstetik inviterer naturen indenfor, mens de støj- og lydabsorberende paneler bidrager til et godt indeklima. Du kan selv vælge den træsort og farve, der passer til din stil og indretning.

9 / overdækket udeareal

Overdækket udeareal er guld værd og forlænger de sene sommeraftener. Du får en flydende overgang mellem inde og ude − som var din stue midt i naturen. Ønsker du et lukket overdække, kan du med fordel vælge gulv-til-loft-vinduer. Det giver et helt ekstra rum, blot udenfor.

SÅDAN FOREGÅR DET

Har du hænderne skruet godt på, fingersnilde og lysten til selv at udføre dele af dit kommende husprojekt, så kan det være, at du skal vælge et medbyggerprojekt.

MEDBYG

TAG DEL I BYGGERIET

Frifeldt opfører som minimum det færdige råhus. Det vil sige, at Frifeldt sørger for, at huset står færdigt udvendigt med færdig fundament, vægge med beklædning, vinduer og døre samt tag.

Til gengæld kan du vælge selv at stå for den Indvendige − eller dele af den indvendige − tømrerentreprise. Dette gælder bygningsdele som vægbeklædning, lofter, gulve, døre, lister, inventar og lign. Mængden af medbyg aftales med Frifeldt.

Ved indvendig medbyg, skal afgrænsningen laves således at Frifeldts tømrer ikke skal tilbage og færdiggøre bygningsdele efter medbyg. Ligeledes skal du også selv stå for malerentreprisen.

Du kan også vælge medbyg på el-, maler-, VVS- og murerentreprise. Arbejdet omfatter hele delentreprisen, hvor du selv står for levering af egne materialer. Dette kan også vælges uden at have medbyg på indvendig tømrerentreprise.

Ved forespørgsler på medbyg projekter, vil Frifeldt altid tage udgangspunkt i et nøglefærdigt projekt, hvor bygherreleverancer og montagearbejde vil blive modregnet.

Ved helårshuse kan der ikke tilbydes medbyg på el- og VVS entreprise.

Jens Chr. Nielsensvej 1 • DK-7480 V ildbjerg (+45) 9747 2460 • mail@frifeldt.dk • frifeldt.dk

Turn static files into dynamic content formats.

Create a flipbook
Issuu converts static files into: digital portfolios, online yearbooks, online catalogs, digital photo albums and more. Sign up and create your flipbook.
Frifeldt huskatalog 2025 by Frifeldt - Issuu