Bartlesville OK

Page 1

Freedom Interior Solutions, LLC 4000 Washington Street Kansas City, Missouri 64111 816-265-1110 Bartlesville, OK

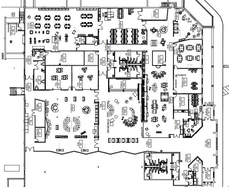
idea space kc

IDEA Space is Kansas City’s center for innovation, design, entrepreneurship and arts. The 32,000 square foot STEAM center will be used for science, technology, engineering, arts and math, housing a technology lab, engineering lab, as well as a skilled trades, woodworking and arts lab.

makerspace

makerspace

technology lab

flex & collaboration hub

Incubation hub

fabrication workshop

CHAPEL HILL ELEMENTARY

The 70,190-square-foot elementary school passed a bond in 2022 to expanded, adding new facilities in 2023. The addition included traditional classrooms, art, ELL and special education classrooms, front office areas, such as conference rooms, administration offices and a teacher workroom.

CLASSROOM

TASK CHAIR

STUDENT CHAIR, 16” SEAT HT (X8)

OTTOMAN, 18” SEAT HT (X8)

LOUNGE CHAIR (X2)

MOBILE PED WITH CUSHION

MOBILE BOOKCASE

KIDNEY TABLE

ART ROOM

TASK CHAIR (x2)

STUDENT CHAIR, 14” SEAT HT

STUDENT CHAIR, 16” SEAT HT

OTTOMAN, 18” SEAT HT

LOUNGE

EAGLES NEST

MOBILE PED WITH CUSHION BOOKCASES

LATERAL FILES

KIDNEY TABLES

RECTANGLE TABLE, 30”x72”

ROUND TABLE, 42”

STEWART ACTIVITY TABLE

ADMINISTRATION OFFICE

HT ADJ DESK W/ MOBILE PED

CREDENZA W/ OVERHEAD

MULTI-FILE STORAGE

ROUND TABLE

CONFERENCE ROOM

TASK CHAIR

SMALL MOBILE CREDENZA

CONFERENCE TABLE, 4’D X 12’W

DENNIS BARRY DBARRY@ fre3dom.net 816.683.4633

Turn static files into dynamic content formats.

Create a flipbook
Issuu converts static files into: digital portfolios, online yearbooks, online catalogs, digital photo albums and more. Sign up and create your flipbook.