FRÉDÉRIC CHA TELOIS


![]()




Ascension La Cascade Émergence

.04 .05



Étudiant en troisième année au baccalauréat en architecture à l’Université de Montréal. Ma passion pour la conception architecturale est guidée par ma créativité et entretenue par mon désir d’en apprendre d’avantage un domaine professionnel permettant d’enrichir nos communautés
J’aspire à créer une architecture adaptée, durable, ludique et conceptuelle. Je suis à la recherche d’opportunités d’expérience professionnelle pour appliquer mes compétences à des projets plus concrets et acquérir des connaissances qui m’assisteront dans mon parcours.


@Frédéric Chatelois fchatelois@gmail.com 514-917-3909 me contacter.



troisième année - automne 2024
14 semaines
ARC3020 - Projet de conception intégrée /archipoly
Équipe
Zhan Lang Cheung (archi) , Joël Archambault (génie mécanique), Ellen Baur (génie eaux), Émile Dorais (génie transport), Thomas Scarlett (génie structure), Zineb Khalladi (génie ACV)
Tuteur
Ange Sauvage
L’approche conceptuelle débute d’un point d’ancrage solide existant, le 999 Rue Louvain Est. Celui-ci sera adapté à la fonction de pôle alimentaire dans le câdre du projet d’Écoquartier d’Ahuntsic-Quartierville. Nous accentuons son contraste inné en l’encadrant d’extensions contemporaines légères pour ainsi le revaloriser et l’adapter pleinement à son environnement. Trois pôles d’intervention sont proposés et tissés entre eux par une constante organique dénomée la canopée, prenant la forme d’une structure de bois lamellé-collé. Notre approche a pour but d’injecter un fort sens de communauté dans l’Écoquartier pour proposer un pôle alimentaire assumé et réellement rassembleur tout en mettant l’accent sur l’utilisation de stratégies durables.
En ce sens, nous ne faisons pas qu’ajouter des bâtiments, nous restituons un nouveau souffle à l’existant, transformant une œuvre brutaliste souvent perçue comme inflexible en un espace vibrant et accessible.
production maraîchère
Écoquartier Zone urbaine/boisé
Cette stratégie permet une place publique qui se manifeste de manière généreuse au centre du site pour devenir un point de convergence important. Telle un véritable organisme végétal, la canopée intègre d’importantes stratégies de gestion de l’eau à travers ses colonnes, tout en offrant une protection solaire significative. Générant la structure du projet en entier, elle devient une composante vivante du projet, régulant et enrichissant l’espace urbain autour d’elle autant à l’intérieur qu’à l’extérieur.
activation par la canopée
schémas conceptuels
serre de production / gradin intégré
• plus grande envergure
• active la place publique
• décore circulation
serre éducative
• pilotis pour circulation et légerté
• programme communautaire
• décore circulation

extension civique
• ouverture urbaine
• contraste architectural

La canopée
• structure
• solaire
• gestion de l’eau
• rassembler
0m 50m N

0m 50m N
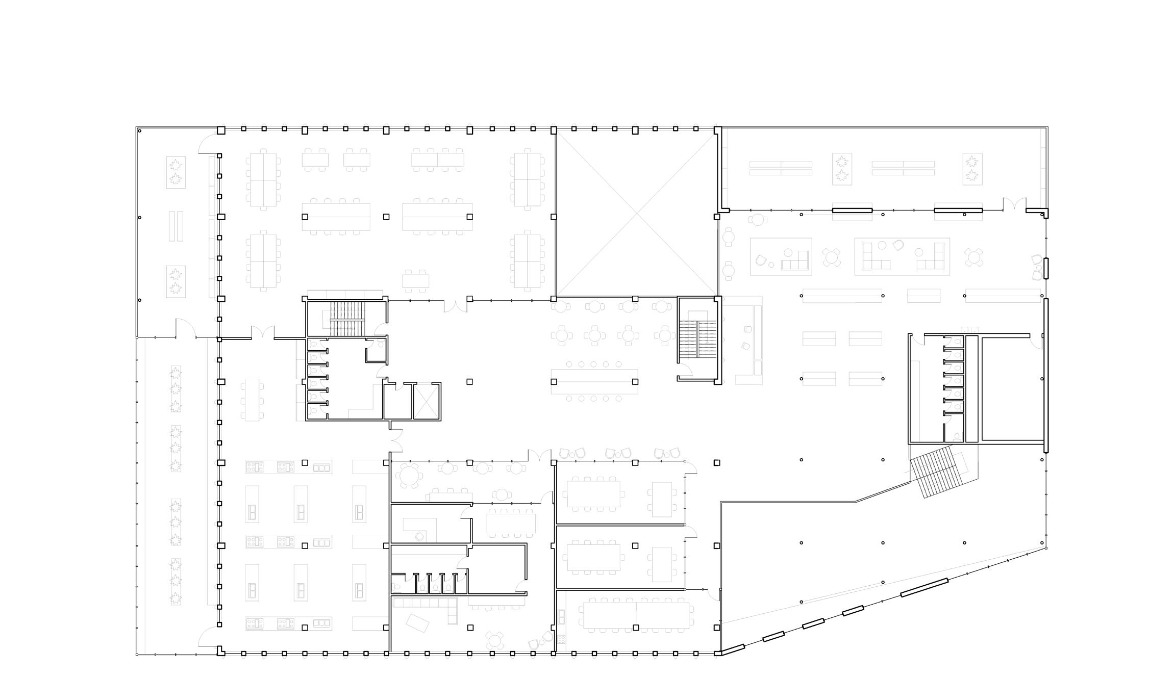
plan d’implantation

marché intérieur cuisine professionnelle
cuisines communautaires
café-bistro
atelier de fabrication partagée

banque alimentaire/ hall communautaire


longitudinale
le cafébistro



T1.
-Substrat de croissance 150 mm
-Géotextile
-Panneau de drainage 8 mm
-Membrane antiracine
-Membrane toit - Thermoplastic polyolefin (TPO)
-Isolant EPS-G (pente) 51 mm
-Isolant EPS-G 178 mm
-Pare-vapeur
-Panneau CLT 143 mm
-Poutres LC 700 mm
M1.
-Revêtement d’aluminium blanc
-Pare intempérie
-Barres en Z / Panneau rigide EPS - G 64 mm
-Panneau revêtement intermédiaire (OSB) 13 mm
-Montants métalliques 6’’@16’’ c/c
-Cellulose haute-densité (dense pack 56 kg/m3) 152 mm
-Pare-vapeur
-Lame d’air(fourrures)
-Enduit Gypse 19 mm
PF1.
-Revêtement d’aluminium blanc
-Fourrures métalliques et suspentes
-Pare intempérie
-2 couches Isolant EPS-G 50 mm
-Panneau intermédiaire de gypse 19 mm
- Structure d’acier 300 mm
-Tablier métallique et suspentes
-Lame d’air (fourrures) 1m


puits canadien
gain énergétique: 7350 kWh gain puissance annuel: 17 KW économie annuelle: 720 $
schéma intégrateur
toit vert réduction îlots de chaleur
équipements à faible débit réduction de 50% consommation / personne
plancher radiant
thermopompe réduction
Effet cheminée par l’ouverture double hauteur


thermopompe air-eau réduction 90% combustibles fossiles
capteurs solaires-thermiques
50% consommation eau chaude sanitaire
stratégie d’enveloppe compacte
inclusion sociale cours de cuisine atelier de fabrication banque alimentaire
cheminée permit l’ouverture de la hauteur

récupération d’eau pluviale irrigation des serres







maquette de projet


deuxième année - hiver 2024
14 semaines
ARC2012 - Atelier d’architecture 4
Équipe Tuteur
Sandrine Hébert
Sylvain Bilodeau
Ce projet de bibliothèque présente une oasis socioculturelle, artistique et végétale au sein d’un quartier en plein essor, mais encore en quête d’identité. Implantée aux abords d’un bâtiment patrimoinial, elle incarne un lieu d’interprétation et de transmission des connaissances, niché dans un écrin architectural contemporain et ancré dans le paysage naturel des bassins Peel.
L’eau est au cœur de la conception, tant symboliquement que fonctionnellement. Les lignes architecturales évoquent le mouvement fluide des cours d’eau, et sa récupération pour un usage sanitaire rappelle l’histoire industrielle du quartier. Les espaces extérieurs s’intègrent harmonieusement à l’environnement immédiat, offrant une boucle au sentier des arts prévu dans le quartier, reliant ainsi la bibliothèque aux quais du bassin, à la piste cyclable, au parc avoisinant et aux citoyens qui les fréquentent. En plus d’offrir des opportunités d’engagement et d’expression citoyenne, cette proposition dépasse la bibliothèque comme simple lieu de conservation du savoir pour devenir le cœur vivant d’une communauté dynamique, ouverte sur le monde, ses enjeux et résolument tournée vers l’avenir.

démarche volumétrique


collage conceptuel








0m 25m
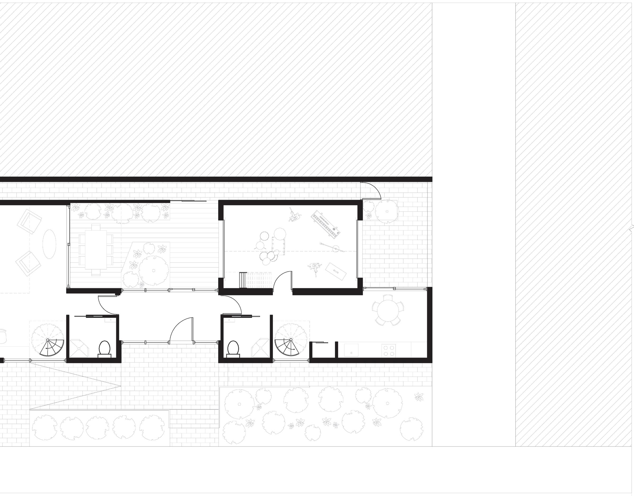
plan



plan de rez-de-chaussée

coupe détaillée - salle de travail

coupe - espaces de réunion/ consultation



consultation
L’intégration des poutres apparentes encastrées dans le plafond illuminent discrètement le chemin menant à la cour, mettant ainsi en valeur son caractère central et invitant à l’exploration de cet espace essentiel du projet.

stratégies de gestion de l’eau





La médiation culturelle fera également partie de chaque aspect de la bibliothèque, visant à démocratiser l’accès à la culture à travers des zones d’apprentissage, de participation et de diffusion artistique.


deuxième année - automne 2023
10 semaines
ARC2011- Atelier d’architecture 3
Patricia Voinea & Cecilia Delansay
Équipe Tutrice
Julie Charette
Ascension est un projet de multilogement à 40 habitations qui s’implante aux abords du Nouvel-Outremont. Il représente l’allégorie d’une montagne qui sort de terre, l’extraction sous-terraine laissant place à la dualité entre roche et végétal, entre rigidité et organicité. Cette dualité s’incarne par un rez-de-chaussée commercial avec des angles vifs et une résille en brique qui procure la solidité d’un socle tandis que la partie résidentielle, hissée sur un plateau, est formée de courbes et évoque la légèreté avec son revêtement de bois. Cette approche conceptuelle est intimement liée aux valeurs de nature et de bien-être qui sont au cœur du projet. Une fois la montagne surgie du sol, une pente imposante relie le rez-dechaussée au plateau, offrant aux visiteurs une expérience d’ascension au sein de cet espace public.
De forts liens avec le contexte sont établis pour créer une communauté rassemblée, notamment avec les parcs avoisinnants et le campus MIL de l’Udem.

schéma conceptuel



niveau résidentiel:
- organique
- parcs - mont-royal
- communauté outremontaise
plateau:
- sol - élément communicateur
niveau commercial:
- roc
- minéral
- angles
- vie en ville

strates volumétriques

plan de rez-de-chaussée élévation sud-est


0m 10m N
plan de l’étage
Pour l’entrée de lumière, le plateau est composé d’un caillebotis troué qui laisse pousser les arbres intégrés à la place publique. Il crée également un contact visuel entre le sous-plateau et le dessus, où la végétation pousse et la vue sur le Mont-Royal incite à s’arrêter et contempler. La partie résidentielle de cet immeuble collectif de cinq étages dispose de loggias aux courbes fluides qui laissent entrer la lumière de manière plus optimale dans les logements et rappellent l’irrégularité d’une topographie.

coupe: plateau
Par la mixité des typologies disposées dans l’espace, les loggias ainsi que les ouvertures engendrent des désalignements souhaités en façade. Des retraits dans la volumétrie créent des dénivelés pour des terrasses communes végétalisés aux extrémités de la circulation jouent également un rôle dans l’apport de lumière. plan

axonométrie: 2 chambres



deuxième année - automne 2023
ARC2313 - Architecture et construction 3
Travail d’équipe
Patricia Voinea 4 semaines
Professeur
Stephan Chevalier
Ce dispositif de circulation verticale s’inspirant du langage d’une cascade adapte l’écoulement, la fluidité en mouvement et la rencontre en un point dans une expérience architecturale agréable et naturelle. L’utilisation de l’escalier en ciseaux permet de communiquer ce concept de manière efficace et encourage une circulation variée par laquelle les interactions sociales sont encouragées. Un système de lattes ajourées partant du plafond de l’étage supérieur permet d’indiquer les directions contrastantes des deux parties de l’escalier qui découlent au rez-de-chaussée. Il permet aussi d’officialiser un seuil et une certaine intimité dans la circulation publique.
Ce projet incarne un symbole de rencontre, de communication et d’échange, où les passionnés de sport et de bien-être se croisent et s’entremêlent dans une danse de mouvements fluides.


deuxième année - automne 2023
ARC2011 - Atelier d’architecture 3
Travail individuel
Tutrice
Julie Charette 4 semaines
Émergence est un projet de duplex multigénérationnel qui s’implante sur l’avenue Beaumont, dans le quartier Mile-Ex à Montréal. Autrefois un quartier largement industriel et peu reconnu, Mile-Ex s’est aujourd’hui établi une identité unique. La réappropriation de l’industriel par des projets résidentiels d’artistes et d’architectes y est un thème dominant. Ce quartier voyant l’émergence d’une nouvelle identité architecturale est simultanément l’habitat des artistes émergents.
Cette idée est canalisée dans le projet pour offrir un nid de créativité alternative aux jeunes musiciens du quartier dans un contexte de cohabitation familiale harmonieuse. Il a été guidé par une intention de reprendre l’esprit industriel se trouvant dans les racoins et ruelles de Mile-ex et de le faire ressortir pour s’intégrer de manière originale.

plan d’implantation 0m 50m N
plan de rez-de-chaussée

élévation ouest

La forte connexion qui existe entre la musique « underground » et l’art urbain est l’inspiration principale du traitement de façade aux gestes artistiques et colorés. Ce projet est l’adaptation de sous-cultures musicales et artistiques à l’architecture d’un quartier en plein renouveau.



niveau 1
En se baladant dans les rues avoisinantes au site, on peut remarquer la présence de plusieurs anciens garages ayant été modifiés pour en faire des endroits jeunes et vivants tels que des bars ou des ateliers d’artistes. C’est en s’inspirant de ces endroits que l’atelier de musique prend l’apparence d’un garage, faisant hommage aux « garage bands ». Propice à des spectacles de quartier, le garage est un endroit délibérément secret qui suggère une sous-culture musicale en expansion.


