Valuation Pack - Park Crescent Homes

Page 1

Part

Part

Part

Grounded in the local landscape, Park Crescent Homes have been designed to directly reflect the surrounding curated green space and community expression of the development.

FOR YOU.
DKO ARCHITECTURE
FOR BURWOOD.
1 — The
Architecture
2 — The
Interiors
3 — The
4 — The
Location Part
Collaborators

Park Crescent Homes are a curated collection of residences, all situated on Copper Crescent, either facing or close to Burwood Brickworks’ green heart, the Village Green. These limited-release homes provide seamless connections between indoors and outdoors and are intrinsically linked to the surrounding environment and the vibrant, convenient and energetic amenities nearby.

Artist impression
07 06 INTRODUCTION
Part 1 — The Architecture GRACEFUL
CONTEMP
Artist impression THE ARCHITECTURE 09 08
AND
ORARY. A PRECINCT DEFINING COLLECTION:
Artist impression

DKO has designed every home to stand out individually and to harmonise together. The residences’ façades have a variety of forms, colours and textures to create a welcoming, distinctive and lively streetscape with character and depth.

The architecture of the homes draws on the rich heritage of the brickworks; the exterior’s masonry for each home incorporates different forms, colours and textures making each distinctive and adding to the neighbourhood’s personality. A refined modern façade of brick masonry, vertical timber-look panels, render, timber accents and glass underscores an understated yet confident design principle that also fits organically with these homes’ surrounds.

Artist impression 12

Treated individually and together, a variety of forms, colours and textures provide depth, distinction and heritage to each individual façade.

Park Crescent Homes combine function and design. All homes have garages to house at least one or two vehicles, and large backyards allow for expansive areas for play and entertaining, or to simply create a private garden oasis. Select homes enjoy sheltered balconies to extend internal living spaces and encourage alfresco dining, and all homes’ orientations ensure light, bright and breezy living.

Artist impression
14
Artist impression
Artist impression

AN ABUNDANT LIFE OF EASE,

CALM,

NATURE AND SPACE.

Part 2 — The Interiors Artist impression
THE INTERIORS 19 18

These homes are spacious and soothing with generous outdoor spaces and flexible open-plan living. Natural light is maximised at every opportunity so residents can enjoy bright, easy days and comfortable, cosy evenings.

Artist impression. Upgrades shown include marble splashback, LED lighting to bulkhead, 40mm Caesarstone benchtop. Curtains not included.
21 20 THE INTERIORS

A calming, modern and neutral colour palette leaves room for each resident to make these homes their own. The spaces’ open layout allows flow between the kitchen, living, dining and outdoor spaces — perfect for family living and for entertaining. It also makes these spaces bright and welcoming. The living area extends outside through sliding doors, bringing the outdoors in. Natural light and vistas of the street enhance even further this sense of lightness and space. Oak flooring and optional upgrades such as twin downlights, bespoke joinery and fireplaces provide opportunity to complement and individualise the space.

Artist impression. Curtains not included. 22
Artist impression. Upgrades shown
include marble splashback, LED lighting to bulkhead, 40mm Caesarstone benchtop. Curtains not included.

The kitchen – the heart of the home – comes in a light or dark colour scheme, an offering that highlights the intuitive and sophisticated design of these homes. Quality stainless steel appliances and optional textured natural stone add a sense of luxury and will satisfy the keen home cook.

The Caesarstone island benchtop – which can also be used as a breakfast bar – is a polished centrepiece with an elegant waterfall detail. The stone benchtops are paired with a Caesarstone-finish splashback, which can be upgraded to marble-finish. All homes are fitted with high quality Smeg appliances while many also offer a walk-in pantry.

Kitchen upgrades include linear pendant lights, premium Astra Walker tapware, additional LED strip lights, USB ports and extra electrical sockets, marble splashbacks, 40mm Caesarstone benchtops, and custom joinery packages within the butler’s pantries.

Artist impression. Upgrades shown include 40mm Caesarstone benchtop. 26
Artist impression. Light
scheme kitchen. Upgrades shown include lighting to desk shelves, kitchen pendant light, Astra Walker tapware, LED strip light to bulkhead, marble splashback and 40mm Caesarstone benchtop.
Artist impression. Dark scheme kitchen. Upgrades shown include lighting to desk shelves, kitchen pendant light, Astra Walker tapware, LED strip light to bulkhead, marble splashback and 40mm Caesarstone benchtop.
Artist impression. Curtains not included.
Artist impression.
Dark scheme bathroom. Upgrades shown include marble stone bencthop and Astra Walker basin mixer and spout.
Artist impression. Light scheme bathroom. Upgrades shown include all tapware, free-standing bath and marble benchtop.

Available in two understated palettes, light and dark, the interior aesthetic explores subtle tones inspired by nature, creating a layered and neutral interior that recedes and allows an owner’s personality to come to the fore. Flexible living arrangements allow moments of quiet contemplation while also catering to communal gatherings on a large scale. Voluminous apertures link living spaces to the outside bringing landscape views and nature into the home.

Inspired by the local landscape, raw finishes create a peaceful environment in the bathrooms, creating a space redolent of a relaxing inner sanctum. Fittings include chrome tapware, timber-veneer cabinetry, a beautifully detailed and roomy vanity with Caesarstone tops, and mirrors with a powder-coated shelf. And most residences offer the option to upgrade to a freestanding bath — for even more luxury.

The bedrooms benefit from the same intuitive layout and natural and neutral colour palette as the rest of the home, providing openness and luxury. A layering of these tones in the bedrooms, and the materials used for the flooring and fittings, combined with the natural light, produce an aesthetic that is minimalist and calming. The master suite also features a spacious walk-in robe that connects to the ensuite.

DKO ARCHITECTURE Artist impression. Upgrades shown are free standing bath and tap, and marble stone benchtop.
39 38 THE INTERIORS
Artist impression. Curtains not included.

A select few homes have flexible downstairs living plans that can be tailored to offer an additional bedroom or home office, equipped with a separate bathroom. The homes’ lower levels also have outdoor access that extends the space.

www.waterrating.gov.au/choose/compare#showers

www.smartwatermark.org/WELS/taps

Flexible living with an additional bedroom and bathroom downstairs – perfect for a growing family.

Extra space for kids to play, or an additional living area, with access to the outdoors.

A patio and backyard that connects with your living room encouraging an indoor outdoor lifestyle.

Storage space below the patio for bikes, gardening tools and other household items that need to be out of the way.

Smart design orientates all homes to allow for naturally lit living spaces. In winter this maximises sunlight entry and in summer, structural shading offers sun protection to keep interiors cool and breezy.

Where possible, local products have been used in construction and for interior materials, while low volatile paints and finishes have been used throughout.

Generous glazing and private outdoor aspects open the house to optimise natural ventilation and sunlight as part of a holistic and sustainable design.

A commitment to energy saving design means Park Crescent Homes are on average 36% cheaper to run than a standard property, saving up to $533 per year

Photovoltaic panels installed on every roof mean significant energy savings for every home, while solar hot water systems can provide between 50–90% of your hot water needs (with gas boosters for emergencies) — better for your hip pocket and the environment. 2

Energy efficient appliances and lighting are standard inclusions as a commitment to lower bills, reduced carbon emissions and a lighter environmental footprint.

Water-saving features reduce waste and lower costs significantly. Showerheads with a three-star WELS rating can save 70,000 litres and $210 each year on water bills. 3 Bathroom taps with a six-star WELS rating can save 20,000 litres and $60 each year on water bills.4

Based on conceptual analysis by Precinx modelling software by Kinesis as at May 2020. Actual results may vary and are subject to orientation, user profile and time of year. Savings are based on an average Victorian middle income utility bill as reported by the Australian Energy Regulator. As reported by the Australian Government — www.energyrating.gov.au/products/solar-water-heaters Using assumptions reported by the Australian Government — for full details see:
Using assumptions reported by the Australian Government — for full details see:
Artist impression. Upgrades shown in render include natural stone splashback. Curtains not included.
40

Park Crescent Homes offer a unique opportunity to have all the best aspects of a traditional home elevated by thoughtful design. The holistic architecture and intuitive flow of the homes mean that indoors and outdoors blend seamlessly through expansive windows that harness natural light and leafy views. And clever, convenient and comfortable touches can be found throughout the residences.

2.5 HECTARES OF GREEN SPACE

SURROUNDED BY WORLD LEADING AMENITY, AND AN UNPARALL ELED SENSE OF LOCAL LIFE.

Part 3 — The Location
The rooftop urban farm THE LOCATION 45
Artist impression
47 46 THE LOCATION
Park Crescent Homes have a premium address, nestled in a lush, expansive green landscape moments from Burwood Brickworks’ retail centre.

This retail centre is a social hub offering Melbourne’s renowned coffee culture, restaurants, specialty stores, a cinema, a florist and indoor plant store, a barber and hairdresser, a chemist, an Asian grocer, and a boutique butcher. Pick up fresh produce and a bottle of wine on your way home, or dine out at one of the many eateries that add flavour to a precinct brimming with modern amenity and the charm of a close community.

The ultimate retail environment

The Burwood Brickworks shopping centre is bathed in natural light, flushed with fresh air and invigorated with indoor plantings.

Naturally powered

All electricity consumed comes from renewable resources, with the surplus generation going back into the grid.

Twenty per cent of the retail space is dedicated to agriculture, with a 2,000sqm urban farm located on the shopping centre’s rooftop. This comprises a greenhouse, external planter boxes and landscaped growing areas, as well as a large restaurant and café that offer culinary delights and a true paddock-to-plate experience.

Repurposing for the better

The centre collects all organic waste and repurposes it for compost and other resources.

Water-wise

All grey and black water is captured, treated and recycled on site.

An abundance of amenity
acre
48 THE LOCATION
The rooftop urban farm
eatery Brickworks

Park Crescent Homes

These quality residences are created with comfort and sustainability in mind and leave a minimal environmental footprint, which saves significantly on power bills. All homes are located within easy walking distance of the Village Green.

Village Green

Making up hectare of the 2.5 hectares of open space throughout Burwood Brickworks, the Village Green offers residents and the wider community the opportunity to get outside and take in nature.

The Link

The Link acts as the precinct’s main thoroughfare, connecting the Urban Plaza to an abundance of green space via carefully articulated walking and cycling paths.

Urban Plaza

An outdoor extension of the retail centre offers paved paths winding past shaded alcoves, grassy mounds and intimate spaces that make the most of the outdoors.

Shops and entertainment

A vision for the world’s most sustainable shopping centre with over 40 retailers and a full-line Woolworths, all within walking distance of home. Amenities include a cinema, childcare centre, and an abundance of restaurants and cafés. The Burwood Brickworks shopping centre is targeting full Living Building Challenge � certification, which means it will generate more energy than it consumes, retain and recycle all of the water it uses, and dedicates 20% of its site footprint for food growing. It will also undertake many other sustainability-oriented initiatives.

A rooftop urban farm

acre farm & eatery Brickworks is home to a quail coop, composting and worm farms, as well as an impressive collection of vertical and hydroponic planting structures and garden beds, all alongside a beautiful restaurant and café offering a true paddock-to-plate service.

Burwood Brickworks is a world leading community

As a result of tailored community and environmental initiatives that will be delivered at Burwood Brickworks, the Green Building Council of Australia has independently awarded the precinct a 6 Star Green Star Communities rating. This verifies it as one of the best-designed and thoughtfully considered communities in the world.

Middleborough Road Eley Road This
plan is an artist impression and should be used as a guide only. While reasonable efforts have been made to ensure the accuracy of any distances and times stated, actual distances and times may vary and are to be used as guide only.
Designed with environmental integrity, where style meets sustainability.
Artist impression 51 50

Live in a world leading precinct, moments from parkland and an award-winning retail hub.

EXPERIENCE AND EXPERTISE COMBINE TO PRESENT WORLD CLASS LIVING.

Part 4 — The
Collaborators
impression Artist impression
Artist
55 54

Recent Awards

Creating proud communities since 1924.

There’s one measure above all that tells us we’ve succeeded. We never ask to see it, but we observe it often: it’s the smile of pride in what you’ve achieved. It’s seen in the nod of a neighbour, the togetherness of friends, or the laughter of children at play. Small moments that become the measure of how well you’ve planned and saved and worked to make it all happen.

About Frasers Property Australia.

We’ve been creating memorable places for Australians to feel proud of since 1924. Underpinning our strength is the support of parent company, Frasers Property Limited – one of the world’s leading real-estate brands, managing over S$38.7 billion in assets on five continents.

Global in scale, we remain local at heart. After almost a century of creating homes and places for tens of thousands of Australians, experience tells us that what matters the most is the simple joy of living in a place you’re proud to call home.

Care that lasts a lifetime.

At Frasers Property, we believe purchasing property should be more than just a transaction. That’s why we have Prosperity, our Customer Care and Rewards program. Prosperity means you’ll be supported throughout your whole property journey and given access to an enviable range of rewards and benefits, all designed to make a real difference in your life. If you purchase property from us, you are rewarded membership for life.

Longevity

Central Park, NSW: Winner, Environmental Excellence, UDIA Wingate National Awards for excellence 2020 (May 2020)

Ed. Square, NSW: Finalist, Environmental Excellence, UDIA Wingate National Awards for Excellence 2020 (May 2020)

Burwood Brickworks, VIC: Shortlist, Retail Design, 2020 Australian Interior Design Awards (March 2020)

DUO, Central Park, NSW: Finalist, Award for Best Mixed Use Development, Property Council RLB Innovation & Excellence Awards 2020 (December 2019)

Fairwater, NSW: Winner, Excellence in Innovation, AIRAH Awards 2019 (November 2019)

Personalised

River Homes, Hamilton Reach, QLD: Winner, Premium Small Scale Development, UDIA QLD Awards for Excellence 2019 (November 2019)

Central Park, NSW: Development of the Year – Urban Regeneration, Urban Developer Awards 2019 (October 2019)

Central Park, NSW: Winner, Excellence in Sustainability, Urban Developer Awards 2019 (October 2019)

Fairwater, NSW: Finalist, Development of the Year – Medium Density Residential, Urban Developer Awards (October 2019)

One Central Park, NSW: Winner, 50 Most Influential Tall Buildings of the Last 50 Years, Council on Tall Buildings and Urban Habitat (CTBUH) 50th Anniversary Awards (September 2019)

Central Park, NSW: Winner, President’s Award, UDIA NSW Crown Group Awards for Excellence 2019 (August 2019)

Community

Built

Mambourin, VIC: Winner, Corian Design Awards 2019 for Outstanding Design Edition 2 (July 2019)

Central Park, NSW: Winner, Excellence in Masterplanned Communities, UDIA NSW Crown Group Awards for Excellence 2019 (July 2019)

DUO, Central Park, NSW: Winner, Excellence in Mixed-Use Development, UDIA NSW Crown Group Awards for Excellence 2019 (July 2019)

The Residences at Yungaba House, QLD: Winner, Excellence in MediumDensity Development, 2017 UDIA Qld Mitchell Brandtman Awards for Excellence (November 2017)

Central Park Sydney by Tzannes and Cox Richardson and Foster and Partners, National: Winner, Sustainable Architecture: David Oppenheim Award, Australian Institute of Architects 2017 National Architecture Awards (November 2017)

Lumiere, Sydney, Global: Winner, 10 Year Award of Excellence, Council on Tall Buildings and Urban Habitat (CTBUH) Awards 2017 (May 2018)

Newport Hamilton Reach, National: Winner, Crown Group Award for Best Residential Development, 2018 Property Council of Australia Rider Levett Bucknall Innovation & Excellence Awards (May 2018)

The Residences at Yungaba House, National: Finalist, S4B Studio Award for Best Heritage Development, 2018 Property Council of Australia Rider Levett Bucknall Innovation & Excellence Awards (May 2018)

“Beaches” Coast Papamoa Beach, Tauranga, NZ: Winner, Best in Category, NATURAL HABITATS Urban Land Developments Property Award, 2018 Property Council New Zealand Rider Levett Bucknall Innovation & Excellence Awards (June 2018)

Absolute, Putney Hill, NSW: Finalist, Excellence in Marketing — Land Development, 2018 UDIA NSW Crown Group Awards for Excellence (August 2018)

Tailor’s Walk, NSW: Finalist, Excellence in Medium-Density Development: Above 100 Dwellings, 2018 UDIA NSW Crown Group Awards for Excellence (August 2018)

Putney Hill – Canopy Apartments, NSW: Finalist, Excellence in MediumDensity Development: Above 100 Dwellings, 2018 UDIA NSW Crown Group Awards for Excellence (August 2018)

Centrale, North Ryde, NSW: Finalist, Excellence in High-Density Development, 2018 UDIA NSW Crown Group Awards for Excellence (August 2018)

Tailor’s Walk, NSW: Finalist, Excellence in Urban Renewal / Adaptive Reuse, 2018 UDIA NSW Crown Group Awards for Excellence (August 2018)

Connor, Central Park, National: Winner, Development of the Year — HighDensity Residential, The Urban Developer Awards 2018 (September 2018)

Frasers Property Australia, Global: Finalist, Special Recognition: Better Places for People, 2018 World Green Building Council Asia Pacific Awards (September 2018)

Frasers Property Australia, Global Finalist, AGC Asia Pacific Pte Ltd Business Leadership in Sustainability, 2019 World Green Building Council Asia Pacific Awards (September 2018)

Kensington Street & Spice Alley, won by Greencliff and Frasers Property Australia, National: Winner, Winner for Urban Renewal Development, 2018 Urban Taskforce Australia Development Excellence Awards (July 2018)

Frasers Property Australia
More than 95 years of history in Australia. Prosperity
customer
care and rewards. Reliability
rely on.
Property services and utilities you can
on a foundation of connectivity, health and well-being.
Quality
home
of
Award-winning sustainable
design for a lifetime
living.
57 THE COLLABORATORS
River Homes, Hamilton Reach, Queensland

Since first opening its doors in 2000, DKO has grown from a small team delivering medium density residential architecture into a practice of over 170 design professionals working out of multiple offices in Australia, New Zealand and Asia. While the practice has expanded, so too has the breadth of projects it undertakes, from bespoke residences to distinctive residential communities, luxury hotels, unique hospitality and workplace interiors, urban design and large-scale masterplanning.

What remains consistent however is the pursuit of high quality architecture driven by the needs of the client, the site’s opportunities and the dynamic process of translating design intent into built outcome. At the core of DKO’s design philosophy, lies a commitment to an urban architecture that serves people, respects place and stands the test of time.

The passionate and accomplished interior design team at DKO focus on sharp, intelligent and articulated design. With understanding of how a space works, moves and moulds with the user, DKO’s intuitive approach encourages collaboration on each project, bringing individual strengths and varied experience to maintain a crisp, lively and reflective angle on their designs.

Road,
DKO Architecture 59 THE COLLABORATORS
Bedford Street, Collingwood, Victoria
Williams
South Yarra, Victoria

INCLUSIONS AND UPGRADES

Please note: light scheme will be provided as standard. Purchasers are required to select dark scheme as a nil-value upgrade. STANDARD INCLUSIONS Park Crescent Homes
Artist impression. Upgrades shown include 40mm Caesarstone benchtop.

Kitchen

Benchtop 20mm Caesarstone benchtops

Standard Inclusions

Flooring

Flooring Engineered oak timber flooring as indicated in Contract for Sale

Standard Inclusions

Splashback Caesarstone splashback between benchtop and overhead cupboard

100% wool blend carpet as indicated in Contract for Sale

Joinery Soft-close laminate cupboard doors and drawers with LED strip to underside of overhead cabinets

Oven Electric oven 900mm wide stainless steel (Smeg or similar)

Cooktop Gas cooktop 900mm wide stainless steel (Smeg or similar)

Rangehood Concealed rangehood 900mm wide (Smeg or similar)

Dishwasher Under bench 600mm wide freestanding dishwasher stainless steel (Smeg or similar)

Fridge Water point in fridge cavity

Pantry* Walk-in pantry with melamine shelving

Sink Undermount double bowl stainless steel sink

Taps Mixer tap with swivel spout chrome

*Walk-in pantry not available in the following homes: 601, 602, 603, 607, 608, 626, 627, 630 and 631.

Please note that while reasonable care is taken to ensure that the contents in this inclusions list are correct, this information is to be used as a guide only. Changes may be made during the development process and dimensions, specifications and fittings may vary for reasons outside of the sellers’ control. Purchasers must rely on their own enquiries and the Contract for Sale.

Glazed porcelain tiles to wet areas as indicated in Contract for Sale

Built-In Desk

Study Desk^ Timber-look laminate desktop and shelving

^Study desk only available in the following homes: 612, 613, 615, 616, 619, 620, 622 and 623.

Please note that while reasonable care is taken to ensure that the contents in this inclusions list are correct, this information is to be used as a guide only. Changes may be made during the development process and dimensions, specifications and fittings may vary for reasons outside of the sellers’ control. Purchasers must rely on their own enquiries and the Contract for Sale.

Bathroom

Vanity 20mm Caesarstone stone vanity tops (bathroom and ensuite) Timber look laminate drawer unit Undermount Vitreous china basin

Standard Inclusions

Bathroom

Rails Double towel rail Toilet Toilet roll holder

Standard Inclusions

Tapware Chrome tapware

Shower Overhead and hand-held shower with diverter

Bedroom

Bath Hob-mounted bath (bathroom and ensuite where applicable)

Tiling Full height porcelain wall tiling (bathroom and ensuite)

Cabinet Semi-recessed shaving cabinet with black aluminium frame to mirrored cabinet doors with LED Strip light to underside of shaving cabinet (ensuite)

Mirror Mirror with powdercoat shelf (bathroom and powder room)

Please note that while reasonable care is taken to ensure that the contents in this inclusions list are correct, this information is to be used as a guide only. Changes may be made during the development process and dimensions, specifications and fittings may vary for reasons outside of the sellers’ control. Purchasers must rely on their own enquiries and the Contract for Sale.

Wall faced toilet suite in Vitreous china

Walk-InWardrobe Built-in laminate shelving and drawer unit with single hanging rail (master bedroom)

Wardrobe Built-in melamine shelving and drawer unit with single hanging rail

Sliding wardrobe door system with mirror panels

Please note that while reasonable care is taken to ensure that the contents in this inclusions list are correct, this information is to be used as a guide only. Changes may be made during the development process and dimensions, specifications and fittings may vary for reasons outside of the sellers’ control. Purchasers must rely on their own enquiries and the Contract for Sale.

UPGRADES

Park Crescent Homes

Artist impression. Curtains not included.

Fixtures and Fittings

Tapware Package Astra Walker tapware and accessories in Ice Grey finish

Joinery

Natural Stone Package Natural stone splashback between benchtop and overhead cupboard

Dishwasher Fully integrated 600mm dishwasher (Smeg or similar)

Toilets Astra Walker concealed cistern toilets

Bath Free-standing bath (bathroom and ensuite where the ensuite has a bath)

Toilet Roca In-Wash® Inspira — Smart Toilet

20mm natural stone vanity top (bathroom and ensuite)

Kitchen Benchtops 40mm Caesarstone benchtop

Please note that while reasonable care is taken to ensure that the contents in this upgrades list are correct, this information is to be used as a guide only. Changes may be made during the development process and dimensions, specifications and fittings may vary for reasons outside of the sellers’ control. Purchasers must rely on their own enquiries and the Contract for Sale.

Butler’s Pantry Package* 20mm Caesarstone benchtop

Laminate cupboard and drawer with microwave cavity. Timber-look laminate shelves above benchtop with LED strip light to underside of bottom shelf

Caesarstone splashback

Undermount single bowl sink and chrome mixer tap

Billie Zip Taps (boiling and chilled water)

*Butler’s pantry package not available in the following homes: 601, 602, 603, 607, 608, 626, 627, 630 and 631.

Please note that while reasonable care is taken to ensure that the contents in this upgrades list are correct, this information is to be used as a guide only. Changes may be made during the development process and dimensions, specifications and fittings may vary for reasons outside of the sellers’ control. Purchasers must rely on their own enquiries and the Contract for Sale.

Upgrades Upgrades

Lighting and Electrical, Heating and Cooling

Laundry Package* 20mm Caesarstone benchtop

Laminate overhead cabinets

Electrical USB points and additional GPOs

Lighting Twin LED downlights to living and meals area

Feature pendant light over kitchen island bench

Heating and Cooling

Level-zoned refrigerated cooling to home and ceiling fans are provided to all bedrooms as standard

Fireplace only option^

Gas fireplace with natural stone-faced plinth to match kitchen splashback upgrade with timber-look shelving and single drawer. LED lighting to underside of shelving

Fireplace and Entertainment Unit option+

Entertainment unit and gas fireplace with natural stone-faced plinth to match kitchen splashback upgrade with timber-look shelving and drawers. LED lighting to underside of shelving

Built-In Desk Package† Timber-look laminate drawer unit. LED lighting to underside of shelving

Doors

Door Package Sliding flyscreen to living area glazed sliding door

Security screen to front entry door

Walk-InWardrobe Package

Timber-look laminate drawer unit

LED strip light above hanging rail

* Laundry package not available in the following homes: 614, 617, 618, 621, 624, 626, 627, 630 and 631.

^ Fireplace only option available in following homes: 601, 602, 603, 604, 607, 608, 614, 617, 618 and 621.

+ Fireplace and Entertainment Unit option not available in the following homes: 601, 602, 603, 604, 607, 608, 611, 614, 617, 618 and 624.

† Built-in desk package available only in the following homes: 612, 613, 615, 616, 619, 620, 622 and 623.

Please note that while reasonable care is taken to ensure that the contents in this upgrades list are correct, this information is to be used as a guide only. Changes may be made during the development process and dimensions, specifications and fittings may vary for reasons outside of the sellers’ control. Purchasers must rely on their own enquiries and the Contract for Sale.

Please note that while reasonable care is taken to ensure that the contents in this upgrades list are correct, this information is to be used as a guide only. Changes may be made during the development process and dimensions, specifications and fittings may vary for reasons outside of the sellers’ control. Purchasers must rely on their own enquiries and the Contract for Sale.

Joinery Upgrades Upgrades

GENERAL INCLUSIONS

Park Crescent Homes

Artist impression. Curtains not included.

General Inclusions

External and Landscaping

Cornices Square set cornices throughout

Windows Flyscreens to all openable windows

General Electrical

Solar PV System 3kw solar systems

Master Switch Master electrical switch to turn-off lighting and appliances in stand-by mode

TV TV point to primary living area and master bedroom. TV point to secondary living area where applicable

Telephone Telephone point to primary living area and master bedroom

Data Data point to primary living and master bedroom. Data point to secondary living area where applicable

Smoke Detectors Hard wired with battery back up

Driveway and Entry Path* Exposed aggregate where applicable

Rear Yard Paving Concrete pavers where applicable

Garden Beds Mulched and irrigated to front yard only where applicable

Lawn Areas Turf to rear yard only where applicable

Fencing Includes side and boundary fencing as nominated on Contract for Sale

External Outdoor gas point

General Inclusions

External Materials

Roofing Material Zincalume or Colorbond finish

Bricks Clay

External Cladding Panel cladding: composite board with expressed joints and painted finish where applicable

Horizontal and vertical cladding: composite weatherboards painted finish where applicable. Timber-look vertical boards where applicable

Render: lightweight cladding with rendered finish where applicable

External Balustrade Aluminium framed glazed balustrade where applicable. Vertical steel powdercoat finish where applicable

Garage Door Colorbond sectional overhead door

Please note that while reasonable care is taken to ensure that the contents in this inclusions list are correct, this information is to be used as a guide only. Changes may be made during the development process and dimensions, specifications and fittings may vary for reasons outside of the sellers’ control. Purchasers must rely on their own enquiries and the Contract for Sale.
Please note that while reasonable care is taken to ensure that the contents in this inclusions list are correct, this information is to be used as a guide only. Changes may be made during the development process and dimensions, specifications and fittings may vary for reasons outside of the sellers’ control. Purchasers must rely on their own enquiries and the Contract for Sale.

Heating and Cooling

Hot Water Service Gas boosted solar hot water service

Heating Ducted heating system

Cooling Add on zoned refrigerated cooling

Ceiling Fans Provided to all bedrooms and upstairs living areas

Ceiling Heights

Ceiling Heights Main living floor: 2700mm (nom.) to primary living floor area (lowered ceilings where indicated in Contract for Sale)

Bedrooms floor: 2550mm (nom.) to remainder

Please note that while reasonable care is taken to ensure that the contents in this inclusions list are correct, this information is to be used as a guide only. Changes may be made during the development process and dimensions, specifications and fittings may vary for reasons outside of the sellers’ control. Purchasers must rely on their own enquiries and the Contract for Sale.

© Savi Communications 2020.
General Inclusions
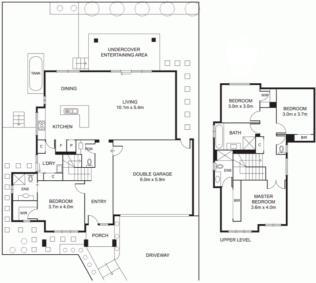
4 bedroom. 3 bathroom. 1 car HOME 601
Artist Impression

HOME 601

A premium location, all of Park Crescent Homes are located within close proximity to the Village Green.

Village Green

Making up 1 hectare of the 2.5 hectares of open space throughout Burwood Brickworks, the Village Green offers residents and the wider community the opportunity to get outside and take in nature.

The Link

The Link acts as the precinct’s main thoroughfare, connecting the Urban Plaza to an abundance of green space via carefully articulated walking and cycling paths.

Shops and entertainment, the rooftop urban farm and Urban Plaza are all within easy walking distance of Park Crescent Homes.

Urban Plaza

An outdoor extension of the retail centre offers paved paths winding past grassy mounds and intimate spaces that make the most of the outdoors.

Future-forward retail

Designed to be the world’s most sustainable shopping centre with over 40 retailers as well as a full line Woolworths, all within walking distance from home. Amenities include a cinema, childcare centre and an abundance of restaurants and cafés.

A rooftop urban farm

acre farm and eatery Brickworks is home to a quail coop, composting and worm farms, as well as an impressive collection of vertical and hydroponic planting structures and garden beds, all alongside a beautiful café and restaurant offering paddock-toplate dining.

601 This plan is an artist’s impression. It is not to scale and should be used as a guide only. Please refer to the contract for sale for specifications and the inclusions list for details on landscaping, fencing, gates, driveways, turf etc. Purchasers must rely on their own enquiries and the contract for sale.
Home type 5 2 5 3+ Home type 2 2 4 2+ Home type 1 1 4 2+ Home type 4 2 4 3+ Home type 3 1 4 3+ 611 621 612 622 623 624 626 630 631 627 632 625 628 629 613 614 615 616 617 618 619 620 602 603 604 605 606 607 608 609 610 BurwoodBrickworks.com.au
First Floor Ground Floor 0 1 2 4 DISCLAIMER: The dimensions and depictions of the layout of the house in this floor plan are approximations only, not to scale and may vary to the house when built. All room measurements are measured from internal walls to internal walls and may vary. Purchasers must rely on their own enquiries and the contract for sale. Bedroom 4 Bathroom 3 Powder room 1 Car 1 Lot area 301m2 Area Summary Ground floor 66.1m2 First floor 157.7m2 Total Indoor Area 223.8m2 Porch 1.7m2 Balcony 11m2 Timber deck 14m2 Garage 27.7m2 Total Indoor and outdoor Area 278.2m2 HOME 601
3 4 5 6 AC STORAGE AREA GARAGE 2 ND LIVING BATH BED 4 ST PORCH HWS OBSCURE 1 2 3 4 5 7 8 10 11 12 13 14 15 16 OBSCURE OBSCURE OBSCURE BALCONY BED 3 BED 2 BED 1 WIR LIVING KIT BATH PDR L DRY MEALS ENS DECK ST ST AREA 1 2 GROUND FLOOR FIRST FLOOR
3 4 5 6 AC STORAGE AREA GARAGE 2 ND LIVING BATH BED 4 ST PORCH HWS OBSCURE 1 2 3 4 5 6 8 10 11 12 13 14 16 OBSCURE OBSCURE OBSCURE BALCONY BED 3 BED 2 BED 1 WIR LIVING KIT BATH PDR L DRY MEALS ENS DECK ST ST AREA 1 2 GROUND FLOOR FIRST FLOOR
LOT 601
LOT 601
4 bedroom. 3 bathroom. 2 car HOME 602
Artist Impression

This plan is an artist’s impression. It is not to scale and should be used as a guide only. Please refer to the contract for sale for specifications and the inclusions list for details on landscaping, fencing, gates, driveways, turf etc. Purchasers must rely on their own enquiries and the contract for sale.

HOME 602

Village Green

Making up 1 hectare of the 2.5 hectares of open space throughout Burwood Brickworks, the Village Green offers residents and the wider community the opportunity to get outside and take in nature.

The Link

The Link acts as the precinct’s main thoroughfare, connecting the Urban Plaza to an abundance of green space via carefully articulated walking and cycling paths.

Shops and entertainment, the rooftop urban farm and Urban Plaza are all within easy walking distance of Park Crescent Homes.

Urban Plaza

An outdoor extension of the retail centre offers paved paths winding past grassy mounds and intimate spaces that make the most of the outdoors.

Future-forward retail

Designed to be the world’s most sustainable shopping centre with over 40 retailers as well as a full line Woolworths, all within walking distance from home. Amenities include a cinema, childcare centre and an abundance of restaurants and cafés.

A rooftop urban farm

acre farm and eatery Brickworks is home to a quail coop, composting and worm farms, as well as an impressive collection of vertical and hydroponic planting structures and garden beds, all alongside a beautiful café and restaurant offering paddock-toplate dining.

A premium location, all of Park Crescent Homes are located within close proximity to the Village Green.
Home type 5 2 5 3+ Home type 2 2 4 2+ Home type 1 1 4 2+ Home type 4 2 4 3+ Home type 3 1 4 3+ 611 621 612 622 623 624 626 630 631 627 632 625 628 629 613 614 615 616 617 618 619 620 603 604 605 606 607 608 609 610 BurwoodBrickworks.com.au 601
602
First Floor Ground Floor 0 1 2 4 DISCLAIMER: The dimensions and depictions of the layout of the house in this floor plan are approximations only, not to scale and may vary to the house when built. All room measurements are measured from internal walls to internal walls and may vary. Purchasers must rely on their own enquiries and the contract for sale. Bedroom 4 Bathroom 3 Powder room 1 Car 2 Lot area 297m2 Area Summary Ground floor 50.5m2 First floor 150.8m2 Total Indoor Area 201.3m2 Porch 2.8m2 Balcony 13.5m2 Timber deck 16.2m2 Garage 39.9m2 Total Indoor and outdoor Area 273.7m2 HOME 602
3 4 5 6 AC STORAGE AREA BED 4 ENS ST GARAGE ENTRY PORCH HWS OBSCURE OBSCURE OBSCURE OBSCURE LIVING BED 3 WIR BED 2 BED 1 ENS L DRY PDR BATH KIT MEALS BALCONY DECK ST AREA 1 2 GROUND FLOOR FIRST FLOOR
3 4 5 6 AC STORAGE AREA BED 4 ENS ST GARAGE ENTRY PORCH HWS OBSCURE OBSCURE OBSCURE OBSCURE LIVING BED 3 WIR BED 2 BED 1 ENS L DRY PDR BATH KIT MEALS BALCONY DECK ST AREA 1 2 GROUND FLOOR FIRST FLOOR
LOT 602
LOT 602
4 bedroom. 3 bathroom. 2 car HOME 603
Artist Impression

This plan is an artist’s impression. It is not to scale and should be used as a guide only. Please refer to the contract for sale for specifications and the inclusions list for details on landscaping, fencing, gates, driveways, turf etc. Purchasers must rely on their own enquiries and the contract for sale.

HOME 603

Village Green

Making up 1 hectare of the 2.5 hectares of open space throughout Burwood Brickworks, the Village Green offers residents and the wider community the opportunity to get outside and take in nature.

The Link

The Link acts as the precinct’s main thoroughfare, connecting the Urban Plaza to an abundance of green space via carefully articulated walking and cycling paths.

Shops and entertainment, the rooftop urban farm and Urban Plaza are all within easy walking distance of Park Crescent Homes.

Urban Plaza

An outdoor extension of the retail centre offers paved paths winding past grassy mounds and intimate spaces that make the most of the outdoors.

Future-forward retail

Designed to be the world’s most sustainable shopping centre with over 40 retailers as well as a full line Woolworths, all within walking distance from home. Amenities include a cinema, childcare centre and an abundance of restaurants and cafés.

A rooftop urban farm

acre farm and eatery Brickworks is home to a quail coop, composting and worm farms, as well as an impressive collection of vertical and hydroponic planting structures and garden beds, all alongside a beautiful café and restaurant offering paddock-toplate dining.

A premium location, all of Park Crescent Homes are located within close proximity to the Village Green.
Home type 5 2 5 3+ Home type 2 2 4 2+ Home type 1 1 4 2+ Home type 4 2 4 3+ Home type 3 1 4 3+ 611 621 612 622 623 624 626 630 631 627 632 625 628 629 613 614 615 616 617 618 619 620 604 605 606 607 608 609 610 BurwoodBrickworks.com.au 603 601
602
First Floor Ground Floor 0 1 2 4 DISCLAIMER: The dimensions and depictions of the layout of the house in this floor plan are approximations only, not to scale and may vary to the house when built. All room measurements are measured from internal walls to internal walls and may vary. Purchasers must rely on their own enquiries and the contract for sale. Bedroom 4 Bathroom 3 Powder room 1 Car 2 Lot area 295m2 Area Summary Ground floor 50.5m2 First floor 151.2m2 Total Indoor Area 201.7m2 Porch 2.8m2 Balcony 13.2m2 Timber deck 16.2m2 Garage 39.9m2 Total Indoor and outdoor Area 273.8m2 HOME 603
3 4 5 6 STORAGE AREA BED 4 ENS ST GARAGE ENTRY AC PORCH HWS OBSCURE OBSCURE OBSCURE OBSCURE LIVING BED 3 WIR BED 2 BED 1 ENS L DRY PDR BATH KIT MEALS BALCONY DECK ST AREA 1 2 GROUND FLOOR FIRST FLOOR
3 4 5 6 STORAGE AREA BED 4 ENS ST GARAGE ENTRY AC PORCH HWS OBSCURE OBSCURE OBSCURE OBSCURE LIVING BED 3 WIR BED 2 BED 1 ENS L DRY PDR BATH KIT MEALS BALCONY DECK ST AREA 1 2 GROUND FLOOR FIRST FLOOR
LOT 603
LOT 603
4 bedroom. 3 bathroom. 2 car HOME 604
Artist Impression

This plan is an artist’s impression. It is not to scale and should be used as a guide only. Please refer to the contract for sale for specifications and the inclusions list for details on landscaping, fencing, gates, driveways, turf etc. Purchasers must rely on their own enquiries and the contract for sale.

HOME 604

Village Green

Making up 1 hectare of the 2.5 hectares of open space throughout Burwood Brickworks, the Village Green offers residents and the wider community the opportunity to get outside and take in nature.

The Link

The Link acts as the precinct’s main thoroughfare, connecting the Urban Plaza to an abundance of green space via carefully articulated walking and cycling paths.

Shops and entertainment, the rooftop urban farm and Urban Plaza are all within easy walking distance of Park Crescent Homes.

Urban Plaza

An outdoor extension of the retail centre offers paved paths winding past grassy mounds and intimate spaces that make the most of the outdoors.

Future-forward retail

Designed to be the world’s most sustainable shopping centre with over 40 retailers as well as a full line Woolworths, all within walking distance from home. Amenities include a cinema, childcare centre and an abundance of restaurants and cafés.

A rooftop urban farm

acre farm and eatery Brickworks is home to a quail coop, composting and worm farms, as well as an impressive collection of vertical and hydroponic planting structures and garden beds, all alongside a beautiful café and restaurant offering paddock-toplate dining.

A premium location, all of Park Crescent Homes are located within close proximity to the Village Green.
Home type 5 2 5 3+ Home type 2 2 4 2+ Home type 1 1 4 2+ Home type 4 2 4 3+ Home type 3 1 4 3+ 611 621 612 622 623 624 626 630 631 627 632 625 628 629 613 614 615 616 617 618 619 620 605 606 607 608 609 610 BurwoodBrickworks.com.au 604 603 601
602
First Floor Ground Floor 0 1 2 4 DISCLAIMER: The dimensions and depictions of the layout of the house in this floor plan are approximations only, not to scale and may vary to the house when built. All room measurements are measured from internal walls to internal walls and may vary. Purchasers must rely on their own enquiries and the contract for sale. Bedroom 4 Bathroom 3 Powder room 1 Car 2 Lot area 295m2 Area Summary Ground floor 50.5m2 First floor 151.2m2 Total Indoor Area 201.7m2 Porch 2.8m2 Balcony 13.2m2 Timber deck 16.2m2 Garage 39.9m2 Total Indoor and outdoor Area 273.8m2 HOME 604
AC STORAGE AREA BED 4 ENS ST GARAGE ENTRY PORCH HWS OBSCURE OBSCURE OBSCURE OBSCURE LIVING BED 3 WIR BED 2 BED 1 ENS L 'DRY PDR BATH KIT MEALS BALCONY DECK ST 3 4 5 6 AREA 1 2 GROUND FLOOR FIRST FLOOR
AC STORAGE AREA BED 4 ENS ST GARAGE ENTRY PORCH HWS OBSCURE OBSCURE OBSCURE OBSCURE LIVING BED 3 WIR BED 2 BED 1 ENS L 'DRY PDR BATH KIT MEALS BALCONY DECK ST 3 4 5 6 AREA 1 2 GROUND FLOOR FIRST FLOOR
LOT 604
LOT 604
4 bedroom. 3 bathroom. 2 car HOME 605
Artist Impression

This plan is an artist’s impression. It is not to scale and should be used as a guide only. Please refer to the contract for sale for specifications and the inclusions list for details on landscaping, fencing, gates, driveways, turf etc. Purchasers must rely on their own enquiries and the contract for sale.

HOME 605

Village Green

Making up 1 hectare of the 2.5 hectares of open space throughout Burwood Brickworks, the Village Green offers residents and the wider community the opportunity to get outside and take in nature.

The Link

The Link acts as the precinct’s main thoroughfare, connecting the Urban Plaza to an abundance of green space via carefully articulated walking and cycling paths.

Shops and entertainment, the rooftop urban farm and Urban Plaza are all within easy walking distance of Park Crescent Homes.

Urban Plaza

An outdoor extension of the retail centre offers paved paths winding past grassy mounds and intimate spaces that make the most of the outdoors.

Future-forward retail

Designed to be the world’s most sustainable shopping centre with over 40 retailers as well as a full line Woolworths, all within walking distance from home. Amenities include a cinema, childcare centre and an abundance of restaurants and cafés.

A rooftop urban farm

acre farm and eatery Brickworks is home to a quail coop, composting and worm farms, as well as an impressive collection of vertical and hydroponic planting structures and garden beds, all alongside a beautiful café and restaurant offering paddock-toplate dining.

A premium location, all of Park Crescent Homes are located within close proximity to the Village Green.
Home type 5 2 5 3+ Home type 2 2 4 2+ Home type 1 1 4 2+ Home type 4 2 4 3+ Home type 3 1 4 3+ 611 621 612 622 623 624 626 630 631 627 632 625 628 629 613 614 615 616 617 618 619 620 606 607 608 609 610 BurwoodBrickworks.com.au 605 604 603 601
602
First Floor Ground Floor 0 1 2 4 DISCLAIMER: The dimensions and depictions of the layout of the house in this floor plan are approximations only, not to scale and may vary to the house when built. All room measurements are measured from internal walls to internal walls and may vary. Purchasers must rely on their own enquiries and the contract for sale. Bedroom 4 Bathroom 3 Powder room 1 Car 2 Lot area 295m2 Area Summary Ground floor 42.5m2 First floor 160.7m2 Total Indoor Area 203.2m2 Porch 3.4m2 Balcony 9.2m2 Timber deck 13m2 Garage 38.7m2 Total Indoor and outdoor Area 267.5m2 HOME 605
3 4 5 6 AC STORAGE AREA BED 4 ENS ST GARAGE ENTRY PORCH HWS 10 11 12 13 14 15 16 OBSCURE OBSCURE OBSCURE ENS WIR BED 1 BED 2 BED 3 LIVING MEALS KIT WIP PDR L DRY BALC BATH DECK OBSCURE ST AREA 1 2 GROUND FLOOR FIRST FLOOR
3 4 5 6 AC STORAGE AREA BED 4 ENS ST GARAGE ENTRY PORCH HWS 10 11 12 13 14 15 16 OBSCURE OBSCURE OBSCURE ENS WIR BED 1 BED 2 BED 3 LIVING MEALS KIT WIP PDR L DRY BALC BATH DECK OBSCURE ST AREA 1 2 GROUND FLOOR FIRST FLOOR
LOT 605
LOT 605
4 bedroom. 3 bathroom. 2 car HOME 606
Artist Impression

This plan is an artist’s impression. It is not to scale and should be used as a guide only. Please refer to the contract for sale for specifications and the inclusions list for details on landscaping, fencing, gates, driveways, turf etc. Purchasers must rely on their own enquiries and the contract for sale.

HOME 606

Village Green

Making up 1 hectare of the 2.5 hectares of open space throughout Burwood Brickworks, the Village Green offers residents and the wider community the opportunity to get outside and take in nature.

The Link

The Link acts as the precinct’s main thoroughfare, connecting the Urban Plaza to an abundance of green space via carefully articulated walking and cycling paths.

Shops and entertainment, the rooftop urban farm and Urban Plaza are all within easy walking distance of Park Crescent Homes.

Urban Plaza

An outdoor extension of the retail centre offers paved paths winding past grassy mounds and intimate spaces that make the most of the outdoors.

Future-forward retail

Designed to be the world’s most sustainable shopping centre with over 40 retailers as well as a full line Woolworths, all within walking distance from home. Amenities include a cinema, childcare centre and an abundance of restaurants and cafés.

A rooftop urban farm

acre farm and eatery Brickworks is home to a quail coop, composting and worm farms, as well as an impressive collection of vertical and hydroponic planting structures and garden beds, all alongside a beautiful café and restaurant offering paddock-toplate dining.

A premium location, all of Park Crescent Homes are located within close proximity to the Village Green.
Home type 5 2 5 3+ Home type 2 2 4 2+ Home type 1 1 4 2+ Home type 4 2 4 3+ Home type 3 1 4 3+ 611 621 612 622 623 624 626 630 631 627 632 625 628 629 613 614 615 616 617 618 619 620 607 608 609 610 BurwoodBrickworks.com.au 606 605 604 603 601
602
First Floor Ground Floor 0 1 2 4 DISCLAIMER: The dimensions and depictions of the layout of the house in this floor plan are approximations only, not to scale and may vary to the house when built. All room measurements are measured from internal walls to internal walls and may vary. Purchasers must rely on their own enquiries and the contract for sale. Bedroom 4 Bathroom 3 Powder room 1 Car 2 Lot area 295m2 Area Summary Ground floor 42.5m2 First floor 160.7m2 Total Indoor Area 203.2m2 Porch 3.4m2 Balcony 9.2m2 Timber deck 13m2 Garage 38.7m2 Total Indoor and outdoor Area 267.5m2 HOME 606
3 4 5 6 AC STORAGE AREA BED 4 ENS ST GARAGE ENTRY PORCH HWS 10 11 12 13 14 15 16 ENS WIR BED 1 BED 2 BED 3 LIVING MEALS KIT WIP PDR L 'DRY BALC BATH OBSCURE OBSCURE OBSCURE DECK OBSCURE ST AREA 1 2 GROUND FLOOR FIRST FLOOR
3 4 5 6 AC STORAGE AREA BED 4 ENS ST GARAGE ENTRY PORCH HWS 1 2 3 4 5 6 7 8 9 10 11 12 13 14 15 16 ENS WIR BED 1 BED 2 BED 3 LIVING MEALS KIT WIP PDR L DRY BALC BATH OBSCURE OBSCURE OBSCURE DECK OBSCURE ST AREA 1 2 GROUND FLOOR FIRST FLOOR
LOT 606
LOT 606
4 bedroom. 3 bathroom. 1 car HOME 607
Artist Impression — based on home 601

This plan is an artist’s impression. It is not to scale and should be used as a guide only. Please refer to the contract for sale for specifications and the inclusions list for details on landscaping, fencing, gates, driveways, turf etc. Purchasers must rely on their own enquiries and the contract for sale.

HOME 607

Village Green

Making up 1 hectare of the 2.5 hectares of open space throughout Burwood Brickworks, the Village Green offers residents and the wider community the opportunity to get outside and take in nature.

The Link

The Link acts as the precinct’s main thoroughfare, connecting the Urban Plaza to an abundance of green space via carefully articulated walking and cycling paths.

Shops and entertainment, the rooftop urban farm and Urban Plaza are all within easy walking distance of Park Crescent Homes.

Urban Plaza

An outdoor extension of the retail centre offers paved paths winding past grassy mounds and intimate spaces that make the most of the outdoors.

Future-forward retail

Designed to be the world’s most sustainable shopping centre with over 40 retailers as well as a full line Woolworths, all within walking distance from home. Amenities include a cinema, childcare centre and an abundance of restaurants and cafés.

A rooftop urban farm

acre farm and eatery Brickworks is home to a quail coop, composting and worm farms, as well as an impressive collection of vertical and hydroponic planting structures and garden beds, all alongside a beautiful café and restaurant offering paddock-toplate dining.

A premium location, all of Park Crescent Homes are located within close proximity to the Village Green.
Home type 5 2 5 3+ Home type 2 2 4 2+ Home type 1 1 4 2+ Home type 4 2 4 3+ Home type 3 1 4 3+ 611 621 612 622 623 624 626 630 631 627 632 625 628 629 613 614 615 616 617 618 619 620 608 609 610 BurwoodBrickworks.com.au 607 606 605 604 603 601
602

LOT 607

LOT 607

First Floor Ground Floor 0 1 2 4 DISCLAIMER: The dimensions and depictions of the layout of the house in this floor plan are approximations only, not to scale and may vary to the house when built. All room measurements are measured from internal walls to internal walls and may vary. Purchasers must rely on their own enquiries and the contract for sale. Bedroom 4 Bathroom 3 Powder room 1 Car 1 Lot area 295m2 Area Summary Ground floor 66.1m2 First floor 157.9m2 Total Indoor Area 224m2 Porch 1.7m2 Balcony 11.2m2 Timber deck 13.8m2 Garage 27.7m2 Total Indoor and outdoor Area 278.4m2 HOME 607
AC STORAGE AREA GARAGE 2 ND LIVING BATH BED 4 ST PORCH HWS OBSCURE 1 2 4 5 6 7 8 10 11 12 13 15 16 OBSCURE OBSCURE OBSCURE OBSCURE BALCONY BED 3 BED 2 BED 1 WIR LIVING KIT BATH PDR L DRY MEALS ENS DECK ST ST 3 4 5 6 AREA 1 2 GROUND FLOOR FIRST FLOOR
AC STORAGE AREA GARAGE 2 ND LIVING BATH BED 4 ST PORCH HWS OBSCURE 1 2 4 5 6 7 8 10 11 12 13 15 16 OBSCURE OBSCURE OBSCURE OBSCURE BALCONY BED 3 BED 2 BED 1 WIR LIVING KIT BATH PDR L DRY MEALS ENS DECK ST ST 3 4 5 6 AREA 1 2 GROUND FLOOR FIRST FLOOR
4 bedroom. 3 bathroom. 1 car HOME 608
Artist Impression — mirrored from Home 601

This plan is an artist’s impression. It is not to scale and should be used as a guide only. Please refer to the contract for sale for specifications and the inclusions list for details on landscaping, fencing, gates, driveways, turf etc. Purchasers must rely on their own enquiries and the contract for sale.

HOME 608

Village Green

Making up 1 hectare of the 2.5 hectares of open space throughout Burwood Brickworks, the Village Green offers residents and the wider community the opportunity to get outside and take in nature.

The Link

The Link acts as the precinct’s main thoroughfare, connecting the Urban Plaza to an abundance of green space via carefully articulated walking and cycling paths.

Shops and entertainment, the rooftop urban farm and Urban Plaza are all within easy walking distance of Park Crescent Homes.

Urban Plaza

An outdoor extension of the retail centre offers paved paths winding past grassy mounds and intimate spaces that make the most of the outdoors.

Future-forward retail

Designed to be the world’s most sustainable shopping centre with over 40 retailers as well as a full line Woolworths, all within walking distance from home. Amenities include a cinema, childcare centre and an abundance of restaurants and cafés.

A rooftop urban farm

acre farm and eatery Brickworks is home to a quail coop, composting and worm farms, as well as an impressive collection of vertical and hydroponic planting structures and garden beds, all alongside a beautiful café and restaurant offering paddock-toplate dining.

A premium location, all of Park Crescent Homes are located within close proximity to the Village Green.
Home type 5 2 5 3+ Home type 2 2 4 2+ Home type 1 1 4 2+ Home type 4 2 4 3+ Home type 3 1 4 3+ 611 621 612 622 623 624 626 630 631 627 632 625 628 629 613 614 615 616 617 618 619 620 609 610 BurwoodBrickworks.com.au 608 607 606 605 604 603 601
602

LOT 608

LOT 608

First Floor Ground Floor 0 1 2 4 DISCLAIMER: The dimensions and depictions of the layout of the house in this floor plan are approximations only, not to scale and may vary to the house when built. All room measurements are measured from internal walls to internal walls and may vary. Purchasers must rely on their own enquiries and the contract for sale. Bedroom 4 Bathroom 3 Powder room 1 Car 1 Lot area 295m2 Area Summary Ground floor 66.1m2 First floor 157.9m2 Total Indoor Area 224m2 Porch 1.7m2 Balcony 11.2m2 Timber deck 13.8m2 Garage 27.7m2 Total Indoor and outdoor Area 278.4m2 HOME 608
AC STORAGE AREA GARAGE 2 ND LIVING BATH BED 4 ST PORCH HWS OBSCURE 1 3 4 5 6 7 8 9 10 11 12 13 14 16 OBSCURE OBSCURE OBSCURE OBSCURE BALCONY BED 3 BED 2 BED 1 WIR LIVING KIT BATH PDR L DRY MEALS ENS DECK ST ST 3 4 5 6 AREA 1 2 GROUND FLOOR FIRST FLOOR
AC STORAGE AREA GARAGE 2 ND LIVING BATH BED 4 ST PORCH HWS OBSCURE 1 3 4 5 6 7 8 9 10 11 12 13 14 16 OBSCURE OBSCURE OBSCURE OBSCURE BALCONY BED 3 BED 2 BED 1 WIR LIVING KIT BATH PDR L DRY MEALS ENS DECK ST ST 3 4 5 6 AREA 1 2 GROUND FLOOR FIRST FLOOR
4 bedroom. 3 bathroom. 2 car HOME 609
Artist Impression — based on home 605

This plan is an artist’s impression. It is not to scale and should be used as a guide only. Please refer to the contract for sale for specifications and the inclusions list for details on landscaping, fencing, gates, driveways, turf etc. Purchasers must rely on their own enquiries and the contract for sale.

HOME 609

Village Green

Making up 1 hectare of the 2.5 hectares of open space throughout Burwood Brickworks, the Village Green offers residents and the wider community the opportunity to get outside and take in nature.

The Link

The Link acts as the precinct’s main thoroughfare, connecting the Urban Plaza to an abundance of green space via carefully articulated walking and cycling paths.

Shops and entertainment, the rooftop urban farm and Urban Plaza are all within easy walking distance of Park Crescent Homes.

Urban Plaza

An outdoor extension of the retail centre offers paved paths winding past grassy mounds and intimate spaces that make the most of the outdoors.

Future-forward retail

Designed to be the world’s most sustainable shopping centre with over 40 retailers as well as a full line Woolworths, all within walking distance from home. Amenities include a cinema, childcare centre and an abundance of restaurants and cafés.

A rooftop urban farm

acre farm and eatery Brickworks is home to a quail coop, composting and worm farms, as well as an impressive collection of vertical and hydroponic planting structures and garden beds, all alongside a beautiful café and restaurant offering paddock-toplate dining.

A premium location, all of Park Crescent Homes are located within close proximity to the Village Green.
Home type 5 2 5 3+ Home type 2 2 4 2+ Home type 1 1 4 2+ Home type 4 2 4 3+ Home type 3 1 4 3+ 611 621 612 622 623 624 626 630 631 627 632 625 628 629 613 614 615 616 617 618 619 620 610 BurwoodBrickworks.com.au 609 608 607 606 605 604 603 601
602
First Floor Ground Floor 0 1 2 4 DISCLAIMER: The dimensions and depictions of the layout of the house in this floor plan are approximations only, not to scale and may vary to the house when built. All room measurements are measured from internal walls to internal walls and may vary. Purchasers must rely on their own enquiries and the contract for sale. Bedroom 4 Bathroom 3 Powder room 1 Car 2 Lot area 295m2 Area Summary Ground floor 42.5m2 First floor 160.7m2 Total Indoor Area 203.2m2 Porch 3.4m2 Balcony 9.2m2 Timber deck 13m2 Garage 38.7m2 Total Indoor and outdoor Area 267.5m2 HOME 609
AC STORAGE AREA BED 4 ENS ST GARAGE ENTRY PORCH HWS 10 11 12 13 14 15 16 OBSCURE ENS WIR BED 1 BED 2 BED 3 LIVING MEALS KIT WIP PDR L DRY BALC BATH DECK OBSCURE OBSCURE OBSCURE ST 3 4 5 6 AREA 1 2 GROUND FLOOR FIRST FLOOR
AC STORAGE AREA BED 4 ENS ST GARAGE ENTRY PORCH HWS 10 11 12 13 14 16 OBSCURE ENS WIR BED 1 BED 2 BED 3 LIVING MEALS KIT WIP PDR L DRY BALC BATH DECK OBSCURE OBSCURE OBSCURE ST 3 4 5 6 AREA 1 2 GROUND FLOOR FIRST FLOOR
LOT 609
LOT 609
4 bedroom. 3 bathroom. 2 car HOME 610
Artist Impression — based on home 606

This plan is an artist’s impression. It is not to scale and should be used as a guide only. Please refer to the contract for sale for specifications and the inclusions list for details on landscaping, fencing, gates, driveways, turf etc. Purchasers must rely on their own enquiries and the contract for sale.

HOME 610

Village Green

Making up 1 hectare of the 2.5 hectares of open space throughout Burwood Brickworks, the Village Green offers residents and the wider community the opportunity to get outside and take in nature.

The Link

The Link acts as the precinct’s main thoroughfare, connecting the Urban Plaza to an abundance of green space via carefully articulated walking and cycling paths.

Shops and entertainment, the rooftop urban farm and Urban Plaza are all within easy walking distance of Park Crescent Homes.

Urban Plaza

An outdoor extension of the retail centre offers paved paths winding past grassy mounds and intimate spaces that make the most of the outdoors.

Future-forward retail

Designed to be the world’s most sustainable shopping centre with over 40 retailers as well as a full line Woolworths, all within walking distance from home. Amenities include a cinema, childcare centre and an abundance of restaurants and cafés.

A rooftop urban farm

acre farm and eatery Brickworks is home to a quail coop, composting and worm farms, as well as an impressive collection of vertical and hydroponic planting structures and garden beds, all alongside a beautiful café and restaurant offering paddock-toplate dining.

A premium location, all of Park Crescent Homes are located within close proximity to the Village Green.
Home type 5 2 5 3+ Home type 2 2 4 2+ Home type 1 1 4 2+ Home type 4 2 4 3+ Home type 3 1 4 3+ 611 621 612 622 623 624 626 630 631 627 632 625 628 629 613 614 615 616 617 618 619 620 BurwoodBrickworks.com.au 610 609 608 607 606 605 604 603 601
602
First Floor Ground Floor 0 1 2 4 DISCLAIMER: The dimensions and depictions of the layout of the house in this floor plan are approximations only, not to scale and may vary to the house when built. All room measurements are measured from internal walls to internal walls and may vary. Purchasers must rely on their own enquiries and the contract for sale. Bedroom 4 Bathroom 3 Powder room 1 Car 2 Lot area 295m2 Area Summary Ground floor 42.5m2 First floor 160.7m2 Total Indoor Area 203.2m2 Porch 3.4m2 Balcony 9.2m2 Timber deck 13m2 Garage 38.7m2 Total Indoor and outdoor Area 267.5m2 HOME
AC STORAGE AREA BED 4 ENS ST GARAGE ENTRY PORCH HWS 10 11 12 13 14 15 16 OBSCURE ENS WIR BED 1 BED 2 BED 3 LIVING MEALS KIT WIP PDR L DRY BALC BATH DECK OBSCURE OBSCURE OBSCURE ST 3 4 5 6 AREA 1 2 GROUND FLOOR FIRST FLOOR
AC STORAGE AREA BED 4 ENS ST GARAGE ENTRY PORCH HWS 1 2 3 4 5 6 7 8 9 10 11 12 13 14 15 16 OBSCURE ENS WIR BED 1 BED 2 BED 3 LIVING MEALS KIT WIP PDR L DRY BALC BATH DECK OBSCURE OBSCURE OBSCURE ST 3 4 5 6 AREA 1 2 GROUND FLOOR FIRST FLOOR
610 LOT 610
LOT 610
4 bedroom. 2 bathroom. 1 car HOME 611
Artist Impression

This plan is an artist’s impression. It is not to scale and should be used as a guide only. Please refer to the contract for sale for specifications and the inclusions list for details on landscaping, fencing, gates, driveways, turf etc. Purchasers must rely on their own enquiries and the contract for sale.

HOME 611

Village Green

Making up 1 hectare of the 2.5 hectares of open space throughout Burwood Brickworks, the Village Green offers residents and the wider community the opportunity to get outside and take in nature.

The Link

The Link acts as the precinct’s main thoroughfare, connecting the Urban Plaza to an abundance of green space via carefully articulated walking and cycling paths.

Shops and entertainment, the rooftop urban farm and Urban Plaza are all within easy walking distance of Park Crescent Homes.

Urban Plaza

An outdoor extension of the retail centre offers paved paths winding past grassy mounds and intimate spaces that make the most of the outdoors.

Future-forward retail

Designed to be the world’s most sustainable shopping centre with over 40 retailers as well as a full line Woolworths, all within walking distance from home. Amenities include a cinema, childcare centre and an abundance of restaurants and cafés.

A rooftop urban farm

acre farm and eatery Brickworks is home to a quail coop, composting and worm farms, as well as an impressive collection of vertical and hydroponic planting structures and garden beds, all alongside a beautiful café and restaurant offering paddock-toplate dining.

A premium location, all of Park Crescent Homes are located within close proximity to the Village Green.
Home type 5 2 5 3+ Home type 2 2 4 2+ Home type 1 1 4 2+ Home type 4 2 4 3+ Home type 3 1 4 3+ 621 612 622 623 624 626 630 631 627 632 625 628 629 613 614 615 616 617 618 619 620 BurwoodBrickworks.com.au 611 610 609 608 607 606 605 604 603 601
602
First Floor Ground Floor DISCLAIMER: The dimensions and depictions of the layout of the house in this floor plan are approximations only, not to scale and may vary to the house when built. All room measurements are measured from internal walls to internal walls and may vary. Purchasers must rely on their own enquiries and the contract for sale. 0 2 4 HOME 611 Bedroom 4 Bathroom 2 Powder room 1 Car 1 Lot area 262m2 Area Summary Ground floor 101.8m2 First floor 106.4m2 Total Indoor Area 208.2m2 Porch 1.9m2 Garage 24.7m2 Total Indoor and outdoor Area 234.8m2
GARAGE 2 ND LIVING LIVING KIT WIP LDRY PDR ST MEALS ENTRY STORAGE AREA PORCH HWS AC 1 2 3 4 5 6 7 10 11 12 13 14 15 16 OBSCURE BED 3 BED 2 BED 1 BATH ENS WC BED 4 WIR ST GROUND FLOOR FIRST FLOOR
GARAGE 2 ND LIVING LIVING KIT WIP LDRY PDR ST MEALS ENTRY STORAGE AREA PORCH HWS AC 1 2 3 4 5 6 7 8 9 10 11 12 13 14 15 16 OBSCURE BED 3 BED 2 BED 1 BATH ENS WC BED 4 WIR ST GROUND FLOOR FIRST FLOOR
LOT 611
LOT 611
4 bedroom. 2 bathroom. 2 car HOME 612
Artist Impression

This plan is an artist’s impression. It is not to scale and should be used as a guide only. Please refer to the contract for sale for specifications and the inclusions list for details on landscaping, fencing, gates, driveways, turf etc. Purchasers must rely on their own enquiries and the contract for sale.

HOME 612

Village Green

Making up 1 hectare of the 2.5 hectares of open space throughout Burwood Brickworks, the Village Green offers residents and the wider community the opportunity to get outside and take in nature.

The Link

The Link acts as the precinct’s main thoroughfare, connecting the Urban Plaza to an abundance of green space via carefully articulated walking and cycling paths.

Shops and entertainment, the rooftop urban farm and Urban Plaza are all within easy walking distance of Park Crescent Homes.

Urban Plaza

An outdoor extension of the retail centre offers paved paths winding past grassy mounds and intimate spaces that make the most of the outdoors.

Future-forward retail

Designed to be the world’s most sustainable shopping centre with over 40 retailers as well as a full line Woolworths, all within walking distance from home. Amenities include a cinema, childcare centre and an abundance of restaurants and cafés.

A rooftop urban farm

acre farm and eatery Brickworks is home to a quail coop, composting and worm farms, as well as an impressive collection of vertical and hydroponic planting structures and garden beds, all alongside a beautiful café and restaurant offering paddock-toplate dining.

A premium location, all of Park Crescent Homes are located within close proximity to the Village Green.
Home type 5 2 5 3+ Home type 2 2 4 2+ Home type 1 1 4 2+ Home type 4 2 4 3+ Home type 3 1 4 3+ 621 622 623 624 626 630 631 627 632 625 628 629 613 614 615 616 617 618 619 620 BurwoodBrickworks.com.au 612 611 610 609 608 607 606 605 604 603 601
602
First Floor Ground Floor DISCLAIMER: The dimensions and depictions of the layout of the house in this floor plan are approximations only, not to scale and may vary to the house when built. All room measurements are measured from internal walls to internal walls and may vary. Purchasers must rely on their own enquiries and the contract for sale. 0 2 4 HOME 612 Bedroom 4 Bathroom 2 Powder room 1 Car 2 Lot area 250m2 Area Summary Ground floor 80.9m2 First floor 114m2 Total Indoor Area 194.9m2 Porch 1.9m2 Garage 38.3m2 Total Indoor and outdoor Area 235.1m2
MEALS LIVING ENTRY PDR WIP KIT LDRY ST GARAGE STORAGE AREA PORCH HWS AC 1 2 3 4 5 6 7 8 9 10 11 12 13 14 15 16 OBSCURE BATH WC BED 3 BED 4 BED 2 BED 1 WIR ENS 2 ND LIVING ST ST GROUND FLOOR FIRST FLOOR
MEALS LIVING ENTRY PDR WIP KIT LDRY ST GARAGE STORAGE AREA PORCH HWS AC 10 11 12 13 14 15 16 OBSCURE BATH WC BED 3 BED 4 BED 2 BED 1 WIR ENS 2 ND LIVING ST ST GROUND FLOOR FIRST FLOOR
LOT 612
LOT 612
4 bedroom. 2 bathroom. 2 car HOME 613
Artist Impression — mirrored from Home 623

This plan is an artist’s impression. It is not to scale and should be used as a guide only. Please refer to the contract for sale for specifications and the inclusions list for details on landscaping, fencing, gates, driveways, turf etc. Purchasers must rely on their own enquiries and the contract for sale.

HOME 613

Village Green

Making up 1 hectare of the 2.5 hectares of open space throughout Burwood Brickworks, the Village Green offers residents and the wider community the opportunity to get outside and take in nature.

The Link

The Link acts as the precinct’s main thoroughfare, connecting the Urban Plaza to an abundance of green space via carefully articulated walking and cycling paths.

Shops and entertainment, the rooftop urban farm and Urban Plaza are all within easy walking distance of Park Crescent Homes.

Urban Plaza

An outdoor extension of the retail centre offers paved paths winding past grassy mounds and intimate spaces that make the most of the outdoors.

Future-forward retail

Designed to be the world’s most sustainable shopping centre with over 40 retailers as well as a full line Woolworths, all within walking distance from home. Amenities include a cinema, childcare centre and an abundance of restaurants and cafés.

A rooftop urban farm

acre farm and eatery Brickworks is home to a quail coop, composting and worm farms, as well as an impressive collection of vertical and hydroponic planting structures and garden beds, all alongside a beautiful café and restaurant offering paddock-toplate dining.

A premium location, all of Park Crescent Homes are located within close proximity to the Village Green.
Home type 5 2 5 3+ Home type 2 2 4 2+ Home type 1 1 4 2+ Home type 4 2 4 3+ Home type 3 1 4 3+ 621 622 623 624 626 630 631 627 632 625 628 629 614 615 616 617 618 619 620 BurwoodBrickworks.com.au 613 612 611 610 609 608 607 606 605 604 603 601
602

LOT 613

First Floor Ground Floor DISCLAIMER: The dimensions and depictions of the layout of the house in this floor plan are approximations only, not to scale and may vary to the house when built. All room measurements are measured from internal walls to internal walls and may vary. Purchasers must rely on their own enquiries and the contract for sale. 0 2 4 HOME 613 Bedroom 4 Bathroom 2 Powder room 1 Car 2 Lot area 250m2 Area Summary Ground floor 81m2 First floor 115.4m2 Total Indoor Area 196.4m2 Porch 2.6m2 Garage 38.3m2 Total Indoor and outdoor Area 237.3m2
MEALS LIVING ENTRY PDR WIP KIT LDRY ST GARAGE STORAGE AREA PORCH AC HWS 10 11 12 13 14 15 16 OBSCURE BATH WC BED 3 BED 4 BED 2 BED 1 WIR ENS 2 ND LIVING ST GROUND FLOOR FIRST FLOOR
MEALS LIVING ENTRY PDR WIP KIT LDRY ST GARAGE STORAGE AREA PORCH AC HWS 10 11 12 13 14 15 16 OBSCURE BATH WC BED 3 BED 4 BED 2 BED 1 WIR ENS 2 ND LIVING ST GROUND FLOOR FIRST FLOOR
LOT 613
4 bedroom. 2 bathroom. 1 car HOME 614
Artist Impression

This plan is an artist’s impression. It is not to scale and should be used as a guide only. Please refer to the contract for sale for specifications and the inclusions list for details on landscaping, fencing, gates, driveways, turf etc. Purchasers must rely on their own enquiries and the contract for sale.

HOME 614

Village Green

Making up 1 hectare of the 2.5 hectares of open space throughout Burwood Brickworks, the Village Green offers residents and the wider community the opportunity to get outside and take in nature.

The Link

The Link acts as the precinct’s main thoroughfare, connecting the Urban Plaza to an abundance of green space via carefully articulated walking and cycling paths.

Shops and entertainment, the rooftop urban farm and Urban Plaza are all within easy walking distance of Park Crescent Homes.

Urban Plaza

An outdoor extension of the retail centre offers paved paths winding past grassy mounds and intimate spaces that make the most of the outdoors.

Future-forward retail

Designed to be the world’s most sustainable shopping centre with over 40 retailers as well as a full line Woolworths, all within walking distance from home. Amenities include a cinema, childcare centre and an abundance of restaurants and cafés.

A rooftop urban farm

acre farm and eatery Brickworks is home to a quail coop, composting and worm farms, as well as an impressive collection of vertical and hydroponic planting structures and garden beds, all alongside a beautiful café and restaurant offering paddock-toplate dining.

A premium location, all of Park Crescent Homes are located within close proximity to the Village Green.
Home type 5 2 5 3+ Home type 2 2 4 2+ Home type 1 1 4 2+ Home type 4 2 4 3+ Home type 3 1 4 3+ 621 622 623 624 626 630 631 627 632 625 628 629 615 616 617 618 619 620 BurwoodBrickworks.com.au 614 613 612 611 610 609 608 607 606 605 604 603 601
602
First Floor Ground Floor DISCLAIMER: The dimensions and depictions of the layout of the house in this floor plan are approximations only, not to scale and may vary to the house when built. All room measurements are measured from internal walls to internal walls and may vary. Purchasers must rely on their own enquiries and the contract for sale. 0 2 4 HOME 614 Bedroom 4 Bathroom 2 Powder room 1 Car 1 Lot area 254m2 Area Summary Ground floor 95.4m2 First floor 103.5m2 Total Indoor Area 198.9m2 Porch 2.8m2 Garage 25.7m2 Total Indoor and outdoor Area 227.4m2
1 2 3 4 5 STORAGE AREA LIVING PDR ENTRY 2 ND LIVING KIT LDRY WIP MEALS GARAGE PORCH AC HWS 1 2 3 4 5 6 7 8 9 10 11 12 13 14 15 16 OBSCURE BED 3 BED 2 BED 1 BATH ENS WC BED 4 WIR OBSCURE ST GROUND FLOOR FIRST FLOOR
1 2 3 4 5 STORAGE AREA LIVING PDR ENTRY 2 ND LIVING KIT LDRY WIP MEALS GARAGE PORCH AC HWS 1 2 3 4 5 6 7 8 9 10 11 12 13 14 15 16 OBSCURE BED 3 BED 2 BED 1 BATH ENS WC BED 4 WIR OBSCURE ST GROUND FLOOR FIRST FLOOR
LOT 614
LOT 614
4 bedroom. 2 bathroom. 2 car HOME 615
Artist Impression

This plan is an artist’s impression. It is not to scale and should be used as a guide only. Please refer to the contract for sale for specifications and the inclusions list for details on landscaping, fencing, gates, driveways, turf etc. Purchasers must rely on their own enquiries and the contract for sale.

HOME 615

Village Green

Making up 1 hectare of the 2.5 hectares of open space throughout Burwood Brickworks, the Village Green offers residents and the wider community the opportunity to get outside and take in nature.

The Link

The Link acts as the precinct’s main thoroughfare, connecting the Urban Plaza to an abundance of green space via carefully articulated walking and cycling paths.

Shops and entertainment, the rooftop urban farm and Urban Plaza are all within easy walking distance of Park Crescent Homes.

Urban Plaza

An outdoor extension of the retail centre offers paved paths winding past grassy mounds and intimate spaces that make the most of the outdoors.

Future-forward retail

Designed to be the world’s most sustainable shopping centre with over 40 retailers as well as a full line Woolworths, all within walking distance from home. Amenities include a cinema, childcare centre and an abundance of restaurants and cafés.

A rooftop urban farm

acre farm and eatery Brickworks is home to a quail coop, composting and worm farms, as well as an impressive collection of vertical and hydroponic planting structures and garden beds, all alongside a beautiful café and restaurant offering paddock-toplate dining.

A premium location, all of Park Crescent Homes are located within close proximity to the Village Green.
Home type 5 2 5 3+ Home type 2 2 4 2+ Home type 1 1 4 2+ Home type 4 2 4 3+ Home type 3 1 4 3+ 621 622 623 624 626 630 631 627 632 625 628 629 616 617 618 619 620 BurwoodBrickworks.com.au 615 614 613 612 611 610 609 608 607 606 605 604 603 601
602

LOT 615

LOT 615

First Floor Ground Floor DISCLAIMER: The dimensions and depictions of the layout of the house in this floor plan are approximations only, not to scale and may vary to the house when built. All room measurements are measured from internal walls to internal walls and may vary. Purchasers must rely on their own enquiries and the contract for sale. 0 2 4 HOME 615 Bedroom 4 Bathroom 2 Powder room 1 Car 2 Lot area 252m2 Area Summary Ground floor 82.7m2 First floor 117.3m2 Total Indoor Area 200m2 Porch 2.1m2 Garage 38.3m2 Total Indoor and outdoor Area 240.4m2
MEALS LIVING ENTRY PDR WIP KIT LDRY ST GARAGE STORAGE AREA PORCH AC HWS OBSCURE 1 2 3 4 5 6 7 8 9 10 11 12 13 14 15 16 OBSCURE OBSCURE OBSCURE OBSCURE BATH WC BED 3 BED 4 BED 2 BED 1 WIR ENS 2 ND LIVING GROUND FLOOR FIRST FLOOR
MEALS LIVING ENTRY PDR WIP KIT LDRY ST GARAGE STORAGE AREA PORCH AC HWS OBSCURE 10 11 12 13 14 15 16 OBSCURE OBSCURE OBSCURE OBSCURE BATH WC BED 3 BED 4 BED 2 BED 1 WIR ENS 2 ND LIVING GROUND FLOOR FIRST FLOOR
4 bedroom. 2 bathroom. 2 car HOME 616
Artist Impression

This plan is an artist’s impression. It is not to scale and should be used as a guide only. Please refer to the contract for sale for specifications and the inclusions list for details on landscaping, fencing, gates, driveways, turf etc. Purchasers must rely on their own enquiries and the contract for sale.

HOME 616

Village Green

Making up 1 hectare of the 2.5 hectares of open space throughout Burwood Brickworks, the Village Green offers residents and the wider community the opportunity to get outside and take in nature.

The Link

The Link acts as the precinct’s main thoroughfare, connecting the Urban Plaza to an abundance of green space via carefully articulated walking and cycling paths.

Shops and entertainment, the rooftop urban farm and Urban Plaza are all within easy walking distance of Park Crescent Homes.

Urban Plaza

An outdoor extension of the retail centre offers paved paths winding past grassy mounds and intimate spaces that make the most of the outdoors.

Future-forward retail

Designed to be the world’s most sustainable shopping centre with over 40 retailers as well as a full line Woolworths, all within walking distance from home. Amenities include a cinema, childcare centre and an abundance of restaurants and cafés.

A rooftop urban farm

acre farm and eatery Brickworks is home to a quail coop, composting and worm farms, as well as an impressive collection of vertical and hydroponic planting structures and garden beds, all alongside a beautiful café and restaurant offering paddock-toplate dining.

A premium location, all of Park Crescent Homes are located within close proximity to the Village Green.
Home type 5 2 5 3+ Home type 2 2 4 2+ Home type 1 1 4 2+ Home type 4 2 4 3+ Home type 3 1 4 3+ 621 622 623 624 626 630 631 627 632 625 628 629 617 618 619 620 BurwoodBrickworks.com.au 616 615 614 613 612 611 610 609 608 607 606 605 604 603 601
602
First Floor Ground Floor DISCLAIMER: The dimensions and depictions of the layout of the house in this floor plan are approximations only, not to scale and may vary to the house when built. All room measurements are measured from internal walls to internal walls and may vary. Purchasers must rely on their own enquiries and the contract for sale. 0 2 4 HOME 616 Bedroom 4 Bathroom 2 Powder room 1 Car 2 Lot area 252m2 Area Summary Ground floor 82.6m2 First floor 115.7m2 Total Indoor Area 198.3m2 Porch 3.7m2 Garage 38.3m2 Total Indoor and outdoor Area 240.3m2
MEALS LIVING ENTRY PDR WIP KIT LDRY ST GARAGE STORAGE AREA PORCH HWS AC OBSCURE 10 11 12 13 14 15 16 OBSCURE OBSCURE OBSCURE BATH WC BED 3 BED 4 BED 2 BED 1 WIR ENS 2 ND LIVING SCREEN OBSCURE GROUND FLOOR FIRST FLOOR
MEALS LIVING ENTRY PDR WIP KIT LDRY ST GARAGE STORAGE AREA PORCH HWS AC OBSCURE 10 11 12 13 14 15 16 OBSCURE OBSCURE OBSCURE BATH WC BED 3 BED 4 BED 2 BED 1 WIR ENS 2 ND LIVING SCREEN OBSCURE GROUND FLOOR FIRST FLOOR
LOT 616
LOT 616
4 bedroom. 2 bathroom. 1 car HOME 617
Artist Impression

This plan is an artist’s impression. It is not to scale and should be used as a guide only. Please refer to the contract for sale for specifications and the inclusions list for details on landscaping, fencing, gates, driveways, turf etc. Purchasers must rely on their own enquiries and the contract for sale.

HOME 617

Village Green

Making up 1 hectare of the 2.5 hectares of open space throughout Burwood Brickworks, the Village Green offers residents and the wider community the opportunity to get outside and take in nature.

The Link

The Link acts as the precinct’s main thoroughfare, connecting the Urban Plaza to an abundance of green space via carefully articulated walking and cycling paths.

Shops and entertainment, the rooftop urban farm and Urban Plaza are all within easy walking distance of Park Crescent Homes.

Urban Plaza

An outdoor extension of the retail centre offers paved paths winding past grassy mounds and intimate spaces that make the most of the outdoors.

Future-forward retail

Designed to be the world’s most sustainable shopping centre with over 40 retailers as well as a full line Woolworths, all within walking distance from home. Amenities include a cinema, childcare centre and an abundance of restaurants and cafés.

A rooftop urban farm

acre farm and eatery Brickworks is home to a quail coop, composting and worm farms, as well as an impressive collection of vertical and hydroponic planting structures and garden beds, all alongside a beautiful café and restaurant offering paddock-toplate dining.

A premium location, all of Park Crescent Homes are located within close proximity to the Village Green.
Home type 5 2 5 3+ Home type 2 2 4 2+ Home type 1 1 4 2+ Home type 4 2 4 3+ Home type 3 1 4 3+ 621 622 623 624 626 630 631 627 632 625 628 629 618 619 620 BurwoodBrickworks.com.au 617 616 615 614 613 612 611 610 609 608 607 606 605 604 603 601
602
First Floor Ground Floor DISCLAIMER: The dimensions and depictions of the layout of the house in this floor plan are approximations only, not to scale and may vary to the house when built. All room measurements are measured from internal walls to internal walls and may vary. Purchasers must rely on their own enquiries and the contract for sale. 0 2 4 HOME 617 Bedroom 4 Bathroom 2 Powder room 1 Car 1 Lot area 255m2 Area Summary Ground floor 95m2 First floor 103.7m2 Total Indoor Area 198.7m2 Porch 1.7m2 Garage 25.9m2 Total Indoor and outdoor Area 226.3m2
1 2 3 4 5 STORAGE AREA LIVING PDR ENTRY 2 ND LIVING KIT LDRY WIP MEALS GARAGE PORCH HWS AC 1 2 3 4 5 6 7 8 9 10 11 12 13 14 15 16 OBSCURE OBSCURE BED 3 BED 2 BED 1 BATH ENS WC BED 4 WIR ST GROUND FLOOR FIRST FLOOR
1 2 3 4 5 STORAGE AREA LIVING PDR ENTRY 2 ND LIVING KIT LDRY WIP MEALS GARAGE PORCH HWS AC 1 2 3 4 5 6 7 8 9 10 11 12 13 14 15 16 OBSCURE OBSCURE BED 3 BED 2 BED 1 BATH ENS WC BED 4 WIR ST
FLOOR FIRST FLOOR
LOT 617
LOT 617
GROUND
4 bedroom. 2 bathroom. 1 car HOME 618
Artist Impression

This plan is an artist’s impression. It is not to scale and should be used as a guide only. Please refer to the contract for sale for specifications and the inclusions list for details on landscaping, fencing, gates, driveways, turf etc. Purchasers must rely on their own enquiries and the contract for sale.

HOME 618

Village Green

Making up 1 hectare of the 2.5 hectares of open space throughout Burwood Brickworks, the Village Green offers residents and the wider community the opportunity to get outside and take in nature.

The Link

The Link acts as the precinct’s main thoroughfare, connecting the Urban Plaza to an abundance of green space via carefully articulated walking and cycling paths.

Shops and entertainment, the rooftop urban farm and Urban Plaza are all within easy walking distance of Park Crescent Homes.

Urban Plaza

An outdoor extension of the retail centre offers paved paths winding past grassy mounds and intimate spaces that make the most of the outdoors.

Future-forward retail

Designed to be the world’s most sustainable shopping centre with over 40 retailers as well as a full line Woolworths, all within walking distance from home. Amenities include a cinema, childcare centre and an abundance of restaurants and cafés.

A rooftop urban farm

acre farm and eatery Brickworks is home to a quail coop, composting and worm farms, as well as an impressive collection of vertical and hydroponic planting structures and garden beds, all alongside a beautiful café and restaurant offering paddock-toplate dining.

A premium location, all of Park Crescent Homes are located within close proximity to the Village Green.
Home type 5 2 5 3+ Home type 2 2 4 2+ Home type 1 1 4 2+ Home type 4 2 4 3+ Home type 3 1 4 3+ 621 622 623 624 626 630 631 627 632 625 628 629 619 620 BurwoodBrickworks.com.au 618 617 616 615 614 613 612 611 610 609 608 607 606 605 604 603 601
602

LOT 618

First Floor Ground Floor DISCLAIMER: The dimensions and depictions of the layout of the house in this floor plan are approximations only, not to scale and may vary to the house when built. All room measurements are measured from internal walls to internal walls and may vary. Purchasers must rely on their own enquiries and the contract for sale. 0 2 4 HOME 618 Bedroom 4 Bathroom 2 Powder room 1 Car 1 Lot area 255m2 Area Summary Ground floor 95m2 First floor 103.7m2 Total Indoor Area 198.7m2 Porch 1.7m2 Garage 25.9m2 Total Indoor and outdoor Area 226.3m2
1 2 3 4 5 STORAGE AREA LIVING PDR ENTRY 2 ND LIVING KIT LDRY WIP MEALS GARAGE PORCH HWS AC 1 2 3 4 5 6 7 8 9 10 11 12 13 14 15 16 OBSCURE BED 3 BED 2 BED 1 BATH ENS WC BED 4 WIR OBSCURE ST GROUND FLOOR FIRST FLOOR
1 2 3 4 5 STORAGE AREA LIVING PDR ENTRY 2 ND LIVING KIT LDRY WIP MEALS GARAGE PORCH HWS AC 1 2 3 4 5 6 7 8 9 10 11 12 13 14 15 16 OBSCURE BED 3 BED 2 BED 1 BATH ENS WC BED 4 WIR OBSCURE ST GROUND FLOOR FIRST FLOOR
LOT 618
4 bedroom. 2 bathroom. 2 car HOME 619
Artist Impression

This plan is an artist’s impression. It is not to scale and should be used as a guide only. Please refer to the contract for sale for specifications and the inclusions list for details on landscaping, fencing, gates, driveways, turf etc. Purchasers must rely on their own enquiries and the contract for sale.

HOME 619

Village Green

Making up 1 hectare of the 2.5 hectares of open space throughout Burwood Brickworks, the Village Green offers residents and the wider community the opportunity to get outside and take in nature.

The Link

The Link acts as the precinct’s main thoroughfare, connecting the Urban Plaza to an abundance of green space via carefully articulated walking and cycling paths.

Shops and entertainment, the rooftop urban farm and Urban Plaza are all within easy walking distance of Park Crescent Homes.

Urban Plaza

An outdoor extension of the retail centre offers paved paths winding past grassy mounds and intimate spaces that make the most of the outdoors.

Future-forward retail

Designed to be the world’s most sustainable shopping centre with over 40 retailers as well as a full line Woolworths, all within walking distance from home. Amenities include a cinema, childcare centre and an abundance of restaurants and cafés.

A rooftop urban farm

acre farm and eatery Brickworks is home to a quail coop, composting and worm farms, as well as an impressive collection of vertical and hydroponic planting structures and garden beds, all alongside a beautiful café and restaurant offering paddock-toplate dining.

A premium location, all of Park Crescent Homes are located within close proximity to the Village Green.
Home type 5 2 5 3+ Home type 2 2 4 2+ Home type 1 1 4 2+ Home type 4 2 4 3+ Home type 3 1 4 3+ 621 622 623 624 626 630 631 627 632 625 628 629 620 BurwoodBrickworks.com.au 619 618 617 616 615 614 613 612 611 610 609 608 607 606 605 604 603 601
602

LOT 619

First Floor Ground Floor 0 2 4 DISCLAIMER: The dimensions and depictions of the layout of the house in this floor plan are approximations only, not to scale and may vary to the house when built. All room measurements are measured from internal walls to internal walls and may vary. Purchasers must rely on their own enquiries and the contract for sale. HOME 619 Bedroom 4 Bathroom 2 Powder room 1 Car 2 Lot area 252m2 Area Summary Ground floor 82.6m2 First floor 115.7m2 Total Indoor Area 198.3m2 Porch 3.7m2 Garage 38.3m2 Total Indoor and outdoor Area 240.3m2
MEALS LIVING ENTRY PDR WIP KIT LDRY ST GARAGE PORCH STORAGE AREA AC HWS OBSCURE 1 2 3 4 5 6 7 8 9 10 11 12 13 14 15 16 OBSCURE OBSCURE OBSCURE OBSCURE BATH WC BED 3 BED 4 BED 2 BED 1 WIR ENS 2 ND LIVING GROUND FLOOR FIRST FLOOR
MEALS LIVING ENTRY PDR WIP KIT LDRY ST GARAGE PORCH STORAGE AREA AC HWS OBSCURE 1 2 3 4 5 6 7 8 9 10 11 12 13 14 15 16 OBSCURE OBSCURE OBSCURE OBSCURE BATH WC BED 3 BED 4 BED 2 BED 1 WIR ENS 2 ND LIVING GROUND FLOOR FIRST FLOOR
LOT 619
4 bedroom. 2 bathroom. 2 car HOME 620
Artist Impression

This plan is an artist’s impression. It is not to scale and should be used as a guide only. Please refer to the contract for sale for specifications and the inclusions list for details on landscaping, fencing, gates, driveways, turf etc. Purchasers must rely on their own enquiries and the contract for sale.

HOME 620

Village Green

Making up 1 hectare of the 2.5 hectares of open space throughout Burwood Brickworks, the Village Green offers residents and the wider community the opportunity to get outside and take in nature.

The Link

The Link acts as the precinct’s main thoroughfare, connecting the Urban Plaza to an abundance of green space via carefully articulated walking and cycling paths.

Shops and entertainment, the rooftop urban farm and Urban Plaza are all within easy walking distance of Park Crescent Homes.

Urban Plaza

An outdoor extension of the retail centre offers paved paths winding past grassy mounds and intimate spaces that make the most of the outdoors.

Future-forward retail

Designed to be the world’s most sustainable shopping centre with over 40 retailers as well as a full line Woolworths, all within walking distance from home. Amenities include a cinema, childcare centre and an abundance of restaurants and cafés.

A rooftop urban farm

acre farm and eatery Brickworks is home to a quail coop, composting and worm farms, as well as an impressive collection of vertical and hydroponic planting structures and garden beds, all alongside a beautiful café and restaurant offering paddock-toplate dining.

A premium location, all of Park Crescent Homes are located within close proximity to the Village Green.
Home type 5 2 5 3+ Home type 2 2 4 2+ Home type 1 1 4 2+ Home type 4 2 4 3+ Home type 3 1 4 3+ 621 622 623 624 626 630 631 627 632 625 628 629 BurwoodBrickworks.com.au 620 619 618 617 616 615 614 613 612 611 610 609 608 607 606 605 604 603 601
602
First Floor Ground Floor DISCLAIMER: The dimensions and depictions of the layout of the house in this floor plan are approximations only, not to scale and may vary to the house when built. All room measurements are measured from internal walls to internal walls and may vary. Purchasers must rely on their own enquiries and the contract for sale. 0 2 4 HOME 620 Bedroom 4 Bathroom 2 Powder room 1 Car 2 Lot area 252m2 Area Summary Ground floor 82.7m2 First floor 117.3m2 Total Indoor Area 200m2 Porch 2.1m2 Garage 38.3m2 Total Indoor and outdoor Area 240.4m2
MEALS LIVING ENTRY PDR WIP KIT LDRY ST GARAGE PORCH STORAGE AREA AC HWS OBSCURE 10 11 12 13 14 15 16 OBSCURE OBSCURE OBSCURE BATH WC BED 3 BED 4 BED 2 BED 1 WIR ENS 2 ND LIVING OBSCURE GROUND FLOOR FIRST FLOOR
MEALS LIVING ENTRY PDR WIP KIT LDRY ST GARAGE PORCH STORAGE AREA AC HWS OBSCURE 10 11 12 13 14 15 16 OBSCURE OBSCURE OBSCURE BATH WC BED 3 BED 4 BED 2 BED 1 WIR ENS 2 ND LIVING OBSCURE GROUND FLOOR FIRST FLOOR
LOT 620
LOT 620
4 bedroom. 2 bathroom. 1 car HOME 621
Artist Impression

This plan is an artist’s impression. It is not to scale and should be used as a guide only. Please refer to the contract for sale for specifications and the inclusions list for details on landscaping, fencing, gates, driveways, turf etc. Purchasers must rely on their own enquiries and the contract for sale.

HOME 621

Village Green

Making up 1 hectare of the 2.5 hectares of open space throughout Burwood Brickworks, the Village Green offers residents and the wider community the opportunity to get outside and take in nature.

The Link

The Link acts as the precinct’s main thoroughfare, connecting the Urban Plaza to an abundance of green space via carefully articulated walking and cycling paths.

Shops and entertainment, the rooftop urban farm and Urban Plaza are all within easy walking distance of Park Crescent Homes.

Urban Plaza

An outdoor extension of the retail centre offers paved paths winding past grassy mounds and intimate spaces that make the most of the outdoors.

Future-forward retail

Designed to be the world’s most sustainable shopping centre with over 40 retailers as well as a full line Woolworths, all within walking distance from home. Amenities include a cinema, childcare centre and an abundance of restaurants and cafés.

A rooftop urban farm

acre farm and eatery Brickworks is home to a quail coop, composting and worm farms, as well as an impressive collection of vertical and hydroponic planting structures and garden beds, all alongside a beautiful café and restaurant offering paddock-toplate dining.

A premium location, all of Park Crescent Homes are located within close proximity to the Village Green.
Home type 5 2 5 3+ Home type 2 2 4 2+ Home type 1 1 4 2+ Home type 4 2 4 3+ Home type 3 1 4 3+ 622 623 624 626 630 631 627 632 625 628 629 BurwoodBrickworks.com.au 621 620 619 618 617 616 615 614 613 612 611 610 609 608 607 606 605 604 603 601
602

FLOOR

GROUND FLOOR

LOT 621

LOT 621

First Floor Ground Floor DISCLAIMER: The dimensions and depictions of the layout of the house in this floor plan are approximations only, not to scale and may vary to the house when built. All room measurements are measured from internal walls to internal walls and may vary. Purchasers must rely on their own enquiries and the contract for sale. 0 2 4 HOME 621 Bedroom 4 Bathroom 2 Powder room 1 Car 1 Lot area 268m2 Area Summary Ground floor 95.4m2 First floor 103.7m2 Total Indoor Area 199.1m2 Porch 2.8m2 Garage 25.7m2 Total Indoor and outdoor Area 227.6m2
1 2 3 4 5 STORAGE AREA LIVING PDR ENTRY 2 ND LIVING KIT LDRY WIP MEALS GARAGE PORCH AC HWS 1 2 3 4 5 6 7 8 9 10 11 12 13 14 15 16 BED 3 BED 2 BED 1 BATH ENS WC BED 4 WIR OBSCURE ST
GROUND
FIRST FLOOR
1 2 3 4 5 STORAGE AREA LIVING PDR ENTRY 2 ND LIVING KIT LDRY WIP MEALS GARAGE PORCH AC HWS 1 2 3 4 5 6 7 8 9 10 11 12 13 14 15 16 BED 3 BED 2 BED 1 BATH ENS WC BED 4 WIR OBSCURE ST
FIRST
FLOOR
4 bedroom. 2 bathroom. 1 car HOME 622
Artist Impression

This plan is an artist’s impression. It is not to scale and should be used as a guide only. Please refer to the contract for sale for specifications and the inclusions list for details on landscaping, fencing, gates, driveways, turf etc. Purchasers must rely on their own enquiries and the contract for sale.

HOME 622

Village Green

Making up 1 hectare of the 2.5 hectares of open space throughout Burwood Brickworks, the Village Green offers residents and the wider community the opportunity to get outside and take in nature.

The Link

The Link acts as the precinct’s main thoroughfare, connecting the Urban Plaza to an abundance of green space via carefully articulated walking and cycling paths.

Shops and entertainment, the rooftop urban farm and Urban Plaza are all within easy walking distance of Park Crescent Homes.

Urban Plaza

An outdoor extension of the retail centre offers paved paths winding past grassy mounds and intimate spaces that make the most of the outdoors.

Future-forward retail

Designed to be the world’s most sustainable shopping centre with over 40 retailers as well as a full line Woolworths, all within walking distance from home. Amenities include a cinema, childcare centre and an abundance of restaurants and cafés.

A rooftop urban farm

acre farm and eatery Brickworks is home to a quail coop, composting and worm farms, as well as an impressive collection of vertical and hydroponic planting structures and garden beds, all alongside a beautiful café and restaurant offering paddock-toplate dining.

A premium location, all of Park Crescent Homes are located within close proximity to the Village Green.
Home type 5 2 5 3+ Home type 2 2 4 2+ Home type 1 1 4 2+ Home type 4 2 4 3+ Home type 3 1 4 3+ 623 624 626 630 631 627 632 625 628 629 BurwoodBrickworks.com.au 622 621 620 619 618 617 616 615 614 613 612 611 610 609 608 607 606 605 604 603 601
602

LOT 622

LOT 622

First Floor Ground Floor DISCLAIMER: The dimensions and depictions of the layout of the house in this floor plan are approximations only, not to scale and may vary to the house when built. All room measurements are measured from internal walls to internal walls and may vary. Purchasers must rely on their own enquiries and the contract for sale. 0 2 4 HOME 622 Bedroom 4 Bathroom 2 Powder room 1 Car 2 Lot area 269m2 Area Summary Ground floor 81m2 First floor 114.1m2 Total Indoor Area 195.1m2 Porch 2.3m2 Garage 38.3m2 Total Indoor and outdoor Area 235.7m2
MEALS LIVING ENTRY PDR WIP KIT LDRY ST GARAGE STORAGE AREA PORCH AC HWS 10 11 12 13 14 15 16 OBSCURE BED 4 BED 3 BED 2 BED 1 ENS WIR 2 ND LIVING BATH WC ST ST GROUND FLOOR FIRST FLOOR
MEALS LIVING ENTRY PDR WIP KIT LDRY ST GARAGE STORAGE AREA PORCH AC HWS 1 2 3 4 5 6 7 8 9 10 11 12 13 14 15 16 OBSCURE BED 4 BED 3 BED 2 BED 1 ENS WIR 2 ND LIVING BATH WC ST ST GROUND FLOOR FIRST FLOOR
4 bedroom. 2 bathroom. 2 car HOME 623
Artist Impression

This plan is an artist’s impression. It is not to scale and should be used as a guide only. Please refer to the contract for sale for specifications and the inclusions list for details on landscaping, fencing, gates, driveways, turf etc. Purchasers must rely on their own enquiries and the contract for sale.

HOME 623

Village Green

Making up 1 hectare of the 2.5 hectares of open space throughout Burwood Brickworks, the Village Green offers residents and the wider community the opportunity to get outside and take in nature.

The Link

The Link acts as the precinct’s main thoroughfare, connecting the Urban Plaza to an abundance of green space via carefully articulated walking and cycling paths.

Shops and entertainment, the rooftop urban farm and Urban Plaza are all within easy walking distance of Park Crescent Homes.

Urban Plaza

An outdoor extension of the retail centre offers paved paths winding past grassy mounds and intimate spaces that make the most of the outdoors.

Future-forward retail

Designed to be the world’s most sustainable shopping centre with over 40 retailers as well as a full line Woolworths, all within walking distance from home. Amenities include a cinema, childcare centre and an abundance of restaurants and cafés.

A rooftop urban farm

acre farm and eatery Brickworks is home to a quail coop, composting and worm farms, as well as an impressive collection of vertical and hydroponic planting structures and garden beds, all alongside a beautiful café and restaurant offering paddock-toplate dining.

A premium location, all of Park Crescent Homes are located within close proximity to the Village Green.
Home type 5 2 5 3+ Home type 2 2 4 2+ Home type 1 1 4 2+ Home type 4 2 4 3+ Home type 3 1 4 3+ 624 626 630 631 627 632 625 628 629 BurwoodBrickworks.com.au 623 622 621 620 619 618 617 616 615 614 613 612 611 610 609 608 607 606 605 604 603 601
602

LOT 623

LOT 623

First Floor Ground Floor DISCLAIMER: The dimensions and depictions of the layout of the house in this floor plan are approximations only, not to scale and may vary to the house when built. All room measurements are measured from internal walls to internal walls and may vary. Purchasers must rely on their own enquiries and the contract for sale. 0 2 4 HOME 623 Bedroom 4 Bathroom 2 Powder room 1 Car 2 Lot area 269m2 Area Summary Ground floor 81m2 First floor 115.4m2 Total Indoor Area 196.4m2 Porch 2.6m2 Garage 38.3m2 Total Indoor and outdoor Area 237.3m2
3 4 MEALS LIVING ENTRY PDR WIP KIT LDRY ST GARAGE STORAGE AREA PORCH AC HWS 10 11 12 13 14 15 16 OBSCURE BED 4 BED 3 2 ND LIVING BED 1 ENS WIR BATH WC BED 2 ST AREA 1 2 GROUND FLOOR FIRST FLOOR
3 4 MEALS LIVING ENTRY PDR WIP KIT LDRY ST GARAGE STORAGE AREA PORCH AC HWS 10 11 12 13 14 15 16 OBSCURE BED 4 BED 3 2 ND LIVING BED 1 ENS WIR BATH WC BED 2 ST AREA 1 2 GROUND FLOOR FIRST FLOOR
4 bedroom. 2 bathroom. 1 car HOME 624
Artist Impression

This plan is an artist’s impression. It is not to scale and should be used as a guide only. Please refer to the contract for sale for specifications and the inclusions list for details on landscaping, fencing, gates, driveways, turf etc. Purchasers must rely on their own enquiries and the contract for sale.

HOME 624

Village Green

Making up 1 hectare of the 2.5 hectares of open space throughout Burwood Brickworks, the Village Green offers residents and the wider community the opportunity to get outside and take in nature.

The Link

The Link acts as the precinct’s main thoroughfare, connecting the Urban Plaza to an abundance of green space via carefully articulated walking and cycling paths.

Shops and entertainment, the rooftop urban farm and Urban Plaza are all within easy walking distance of Park Crescent Homes.

Urban Plaza

An outdoor extension of the retail centre offers paved paths winding past grassy mounds and intimate spaces that make the most of the outdoors.

Future-forward retail

Designed to be the world’s most sustainable shopping centre with over 40 retailers as well as a full line Woolworths, all within walking distance from home. Amenities include a cinema, childcare centre and an abundance of restaurants and cafés.

A rooftop urban farm

acre farm and eatery Brickworks is home to a quail coop, composting and worm farms, as well as an impressive collection of vertical and hydroponic planting structures and garden beds, all alongside a beautiful café and restaurant offering paddock-toplate dining.

A premium location, all of Park Crescent Homes are located within close proximity to the Village Green.
Home type 5 2 5 3+ Home type 2 2 4 2+ Home type 1 1 4 2+ Home type 4 2 4 3+ Home type 3 1 4 3+ 626 630 631 627 632 625 628 629 BurwoodBrickworks.com.au 624 623 622 621 620 619 618 617 616 615 614 613 612 611 610 609 608 607 606 605 604 603 601
602
First Floor Ground Floor DISCLAIMER: The dimensions and depictions of the layout of the house in this floor plan are approximations only, not to scale and may vary to the house when built. All room measurements are measured from internal walls to internal walls and may vary. Purchasers must rely on their own enquiries and the contract for sale. 0 2 4 HOME 624 Bedroom 4 Bathroom 2 Powder room 1 Car 1 Lot area 273m2 Area Summary Ground floor 95.4m2 First floor 103.5m2 Total Indoor Area 198.9m2 Porch 2.8m2 Garage 25.7m2 Total Indoor and outdoor Area 227.4m2 0 LOT
3 4 1 2 3 4 5 STORAGE AREA LIVING PDR ENTRY 2 ND LIVING KIT LDRY WIP MEALS GARAGE PORCH HWS AC 1 2 3 4 5 6 7 8 9 10 11 12 13 14 15 16 BED 3 BED 2 BED 1 BATH ENS WC BED 4 WIR OBSCURE OBSCURE ST AREA 1 2 GROUND FLOOR FIRST FLOOR 0 LOT
3 4 1 2 3 4 5 STORAGE AREA LIVING PDR ENTRY 2 ND LIVING KIT LDRY WIP MEALS GARAGE PORCH HWS AC 1 2 3 4 5 6 7 8 9 10 11 12 13 14 15 16 BED 3 BED 2 BED 1 BATH ENS WC BED 4 WIR OBSCURE OBSCURE ST AREA 1 2 GROUND FLOOR FIRST FLOOR
624
624
5 bedroom. 3 bathroom. 2 car HOME 625
Artist Impression

This plan is an artist’s impression. It is not to scale and should be used as a guide only. Please refer to the contract for sale for specifications and the inclusions list for details on landscaping, fencing, gates, driveways, turf etc. Purchasers must rely on their own enquiries and the contract for sale.

HOME 625

Village Green

Making up 1 hectare of the 2.5 hectares of open space throughout Burwood Brickworks, the Village Green offers residents and the wider community the opportunity to get outside and take in nature.

The Link

The Link acts as the precinct’s main thoroughfare, connecting the Urban Plaza to an abundance of green space via carefully articulated walking and cycling paths.

Shops and entertainment, the rooftop urban farm and Urban Plaza are all within easy walking distance of Park Crescent Homes.

Urban Plaza

An outdoor extension of the retail centre offers paved paths winding past grassy mounds and intimate spaces that make the most of the outdoors.

Future-forward retail

Designed to be the world’s most sustainable shopping centre with over 40 retailers as well as a full line Woolworths, all within walking distance from home. Amenities include a cinema, childcare centre and an abundance of restaurants and cafés.

A rooftop urban farm

acre farm and eatery Brickworks is home to a quail coop, composting and worm farms, as well as an impressive collection of vertical and hydroponic planting structures and garden beds, all alongside a beautiful café and restaurant offering paddock-toplate dining.

A premium location, all of Park Crescent Homes are located within close proximity to the Village Green.
Home type 5 2 5 3+ Home type 2 2 4 2+ Home type 1 1 4 2+ Home type 4 2 4 3+ Home type 3 1 4 3+ 626 630 631 627 632 628 629 BurwoodBrickworks.com.au 625 624 623 622 621 620 619 618 617 616 615 614 613 612 611 610 609 608 607 606 605 604 603 601
602
First Floor Ground Floor DISCLAIMER: The dimensions and depictions of the layout of the house in this floor plan are approximations only, not to scale and may vary to the house when built. All room measurements are measured from internal walls to internal walls and may vary. Purchasers must rely on their own enquiries and the contract for sale. 0 2 4 HOME 625 Bedroom 5 Bathroom 3 Powder room 2 Car 2 Lot area 353m2 Area Summary Ground floor 113.7m2 First floor 126.1m2 Total Indoor Area 239.8m2 Porch 1.6m2 Balcony 8.2m2 Garage 37.7m2 Total Indoor and outdoor Area 287.3m2 0
3 4 5 GARAGE BALCONY PORCH KIT WIP LDRY MEALS LIVING GARAGE ENTRY BED 5 WIR ENS PDR STORAGE AREA PORCH HWS AC WT BED 2 BED 3 BED 4 PDR BATH ENS WIR 2 ND LIVING OBSCURE OBSCURE OBSCURE BALCONY BED 1 AREA 1 2 GROUND FIRST GROUND FLOOR FIRST FLOOR 0
3 4 5 GARAGE BALCONY PORCH KIT WIP LDRY MEALS LIVING GARAGE ENTRY BED 5 WIR ENS PDR STORAGE AREA PORCH HWS AC WT BED 2 BED 3 BED 4 PDR BATH ENS WIR 2 ND LIVING OBSCURE OBSCURE OBSCURE BALCONY BED 1 AREA 1 2 GROUND FIRST GROUND FLOOR FIRST FLOOR
LOT 625
LOT 625
5 bedroom. 3 bathroom. 2 car HOME 626
Artist Impression

This plan is an artist’s impression. It is not to scale and should be used as a guide only. Please refer to the contract for sale for specifications and the inclusions list for details on landscaping, fencing, gates, driveways, turf etc. Purchasers must rely on their own enquiries and the contract for sale.

HOME 626

Village Green

Making up 1 hectare of the 2.5 hectares of open space throughout Burwood Brickworks, the Village Green offers residents and the wider community the opportunity to get outside and take in nature.

The Link

The Link acts as the precinct’s main thoroughfare, connecting the Urban Plaza to an abundance of green space via carefully articulated walking and cycling paths.

Shops and entertainment, the rooftop urban farm and Urban Plaza are all within easy walking distance of Park Crescent Homes.

Urban Plaza

An outdoor extension of the retail centre offers paved paths winding past grassy mounds and intimate spaces that make the most of the outdoors.

Future-forward retail

Designed to be the world’s most sustainable shopping centre with over 40 retailers as well as a full line Woolworths, all within walking distance from home. Amenities include a cinema, childcare centre and an abundance of restaurants and cafés.

A rooftop urban farm

acre farm and eatery Brickworks is home to a quail coop, composting and worm farms, as well as an impressive collection of vertical and hydroponic planting structures and garden beds, all alongside a beautiful café and restaurant offering paddock-toplate dining.

A premium location, all of Park Crescent Homes are located within close proximity to the Village Green.
Home type 5 2 5 3+ Home type 2 2 4 2+ Home type 1 1 4 2+ Home type 4 2 4 3+ Home type 3 1 4 3+ 630 631 627 632 628 629 BurwoodBrickworks.com.au 626 625 624 623 622 621 620 619 618 617 616 615 614 613 612 611 610 609 608 607 606 605 604 603 601
602

LOT 626

LOT 626

GROUND FLOOR FIRST FLOOR

GROUND FLOOR FIRST FLOOR

First Floor Ground Floor DISCLAIMER: The dimensions and depictions of the layout of the house in this floor plan are approximations only, not to scale and may vary to the house when built. All room measurements are measured from internal walls to internal walls and may vary. Purchasers must rely on their own enquiries and the contract for sale. 0 2 4 HOME
Bedroom 5 Bathroom 3 Powder room 2 Car 2 Lot area 316m2 Area Summary Ground floor 104.2m2 First floor 127.3m2 Total Indoor Area 231.5m2 Porch 3.7m2 Balcony 8.4m2 Garage 39m2 Total Indoor and outdoor Area 282.6m2
626
BED 5 PDR ENS ENTRY ST KIT MEALS LIVING LDRY GARAGE STORAGE AREA PORCH HWS WT AC OBSCURE OBSCURE 1 2 3 4 5 6 7 8 9 10 11 12 13 14 15 16 OBSCURE OBSCURE WIR BATH BED 1 BED 2 BED 4 BED 3 2 ND LIVING WC BALCONY ENS OBSCURE OBSCURE OBSCURE OBSCURE OBSCURE
BED 5 PDR ENS ENTRY ST KIT MEALS LIVING LDRY GARAGE STORAGE AREA PORCH HWS WT AC OBSCURE OBSCURE 10 11 12 13 14 15 16 OBSCURE OBSCURE WIR BATH BED 1 BED 2 BED 4 BED 3 2 ND LIVING WC BALCONY ENS OBSCURE OBSCURE OBSCURE OBSCURE OBSCURE
5 bedroom. 3 bathroom. 2 car HOME 627
Artist Impression

This plan is an artist’s impression. It is not to scale and should be used as a guide only. Please refer to the contract for sale for specifications and the inclusions list for details on landscaping, fencing, gates, driveways, turf etc. Purchasers must rely on their own enquiries and the contract for sale.

HOME 627

Village Green

Making up 1 hectare of the 2.5 hectares of open space throughout Burwood Brickworks, the Village Green offers residents and the wider community the opportunity to get outside and take in nature.

The Link

The Link acts as the precinct’s main thoroughfare, connecting the Urban Plaza to an abundance of green space via carefully articulated walking and cycling paths.

Shops and entertainment, the rooftop urban farm and Urban Plaza are all within easy walking distance of Park Crescent Homes.

Urban Plaza

An outdoor extension of the retail centre offers paved paths winding past grassy mounds and intimate spaces that make the most of the outdoors.

Future-forward retail

Designed to be the world’s most sustainable shopping centre with over 40 retailers as well as a full line Woolworths, all within walking distance from home. Amenities include a cinema, childcare centre and an abundance of restaurants and cafés.

A rooftop urban farm

acre farm and eatery Brickworks is home to a quail coop, composting and worm farms, as well as an impressive collection of vertical and hydroponic planting structures and garden beds, all alongside a beautiful café and restaurant offering paddock-toplate dining.

A premium location, all of Park Crescent Homes are located within close proximity to the Village Green.
Home type 5 2 5 3+ Home type 2 2 4 2+ Home type 1 1 4 2+ Home type 4 2 4 3+ Home type 3 1 4 3+ 630 631 632 628 629 BurwoodBrickworks.com.au 627 626 625 624 623 622 621 620 619 618 617 616 615 614 613 612 611 610 609 608 607 606 605 604 603 601
602

LOT 627

LOT 627

First Floor Ground Floor DISCLAIMER: The dimensions and depictions of the layout of the house in this floor plan are approximations only, not to scale and may vary to the house when built. All room measurements are measured from internal walls to internal walls and may vary. Purchasers must rely on their own enquiries and the contract for sale. 0 2 4 HOME 627 Bedroom 5 Bathroom 3 Powder room 2 Car 2 Lot area 316m2 Area Summary Ground floor 104.2m2 First floor 127.3m2 Total Indoor Area 231.5m2 Porch 3.7m2 Balcony 8.4m2 Garage 39m2 Total Indoor and outdoor Area 282.6m2
BED 5 PDR ENS ENTRY ST KIT MEALS LIVING LDRY GARAGE STORAGE AREA PORCH HWS WT AC OBSCURE OBSCURE 1 2 3 4 5 6 7 8 9 10 11 12 13 14 15 16 OBSCURE OBSCURE WIR BATH BED 1 BED 2 BED 4 BED 3 2 ND LIVING WC BALCONY ENS OBSCURE OBSCURE OBSCURE OBSCURE OBSCURE
GROUND FLOOR FIRST FLOOR
BED 5 PDR ENS ENTRY ST KIT MEALS LIVING LDRY GARAGE STORAGE AREA PORCH HWS WT AC OBSCURE OBSCURE 1 2 3 4 5 6 7 8 9 10 11 12 13 14 15 16 OBSCURE OBSCURE WIR BATH BED 1 BED 2 BED 4 BED 3 2 ND LIVING WC BALCONY ENS OBSCURE OBSCURE OBSCURE OBSCURE OBSCURE
GROUND FLOOR FIRST FLOOR
5 bedroom. 3 bathroom. 2 car HOME 628
Artist Impression

This plan is an artist’s impression. It is not to scale and should be used as a guide only. Please refer to the contract for sale for specifications and the inclusions list for details on landscaping, fencing, gates, driveways, turf etc. Purchasers must rely on their own enquiries and the contract for sale.

HOME 628

Village Green

Making up 1 hectare of the 2.5 hectares of open space throughout Burwood Brickworks, the Village Green offers residents and the wider community the opportunity to get outside and take in nature.

The Link

The Link acts as the precinct’s main thoroughfare, connecting the Urban Plaza to an abundance of green space via carefully articulated walking and cycling paths.

Shops and entertainment, the rooftop urban farm and Urban Plaza are all within easy walking distance of Park Crescent Homes.

Urban Plaza

An outdoor extension of the retail centre offers paved paths winding past grassy mounds and intimate spaces that make the most of the outdoors.

Future-forward retail

Designed to be the world’s most sustainable shopping centre with over 40 retailers as well as a full line Woolworths, all within walking distance from home. Amenities include a cinema, childcare centre and an abundance of restaurants and cafés.

A rooftop urban farm

acre farm and eatery Brickworks is home to a quail coop, composting and worm farms, as well as an impressive collection of vertical and hydroponic planting structures and garden beds, all alongside a beautiful café and restaurant offering paddock-toplate dining.

A premium location, all of Park Crescent Homes are located within close proximity to the Village Green.
Home type 5 2 5 3+ Home type 2 2 4 2+ Home type 1 1 4 2+ Home type 4 2 4 3+ Home type 3 1 4 3+ 630 631 632 629 BurwoodBrickworks.com.au 628 627 626 625 624 623 622 621 620 619 618 617 616 615 614 613 612 611 610 609 608 607 606 605 604 603 601
602

LOT 628

LOT 628

First Floor Ground Floor DISCLAIMER: The dimensions and depictions of the layout of the house in this floor plan are approximations only, not to scale and may vary to the house when built. All room measurements are measured from internal walls to internal walls and may vary. Purchasers must rely on their own enquiries and the contract for sale. 0 2 4 HOME 628 Bedroom 5 Bathroom 3 Powder room 2 Car 2 Lot area 373m2 Area Summary Ground floor 113.7m2 First floor 126.1m2 Total Indoor Area 239.8m2 Porch 1.6m2 Balcony 8.2m2 Garage 37.7m2 Total Indoor and outdoor Area 287.3m2 0
KIT WIP LDRY MEALS LIVING GARAGE ENTRY BED 5 WIR ENS PDR STORAGE AREA PORCH WT HWS AC OBSCURE OBSCURE OBSCURE OBSCURE SCREEN BED 2 BED 3 BED 4 PDR BATH ENS WIR 2 ND LIVING BALCONY BED 1 3 4 5 GARAGE BALCONY PORCH AREA SCHEDULE 1 2 GROUND FIRST GROUND FLOOR FIRST FLOOR 0
KIT WIP LDRY MEALS LIVING GARAGE ENTRY BED 5 WIR ENS PDR STORAGE AREA PORCH WT HWS AC OBSCURE OBSCURE OBSCURE OBSCURE SCREEN BED 2 BED 3 BED 4 PDR BATH ENS WIR 2 ND LIVING BALCONY BED 1 3 4 5 GARAGE BALCONY PORCH AREA SCHEDULE 1 2 GROUND FIRST GROUND FLOOR FIRST
FLOOR
5 bedroom. 3 bathroom. 2 car HOME 629
Artist Impression

This plan is an artist’s impression. It is not to scale and should be used as a guide only. Please refer to the contract for sale for specifications and the inclusions list for details on landscaping, fencing, gates, driveways, turf etc. Purchasers must rely on their own enquiries and the contract for sale.

HOME 629

Village Green

Making up 1 hectare of the 2.5 hectares of open space throughout Burwood Brickworks, the Village Green offers residents and the wider community the opportunity to get outside and take in nature.

The Link

The Link acts as the precinct’s main thoroughfare, connecting the Urban Plaza to an abundance of green space via carefully articulated walking and cycling paths.

Shops and entertainment, the rooftop urban farm and Urban Plaza are all within easy walking distance of Park Crescent Homes.

Urban Plaza

An outdoor extension of the retail centre offers paved paths winding past grassy mounds and intimate spaces that make the most of the outdoors.

Future-forward retail

Designed to be the world’s most sustainable shopping centre with over 40 retailers as well as a full line Woolworths, all within walking distance from home. Amenities include a cinema, childcare centre and an abundance of restaurants and cafés.

A rooftop urban farm

acre farm and eatery Brickworks is home to a quail coop, composting and worm farms, as well as an impressive collection of vertical and hydroponic planting structures and garden beds, all alongside a beautiful café and restaurant offering paddock-toplate dining.

A premium location, all of Park Crescent Homes are located within close proximity to the Village Green.
Home type 5 2 5 3+ Home type 2 2 4 2+ Home type 1 1 4 2+ Home type 4 2 4 3+ Home type 3 1 4 3+ 630 631 632 BurwoodBrickworks.com.au 629 628 627 626 625 624 623 622 621 620 619 618 617 616 615 614 613 612 611 610 609 608 607 606 605 604 603 601
602

LOT 629

LOT 629

First Floor Ground Floor DISCLAIMER: The dimensions and depictions of the layout of the house in this floor plan are approximations only, not to scale and may vary to the house when built. All room measurements are measured from internal walls to internal walls and may vary. Purchasers must rely on their own enquiries and the contract for sale. 0 2 4 HOME 629 Bedroom 5 Bathroom 3 Powder room 2 Car 2 Lot area 373m2 Area Summary Ground floor 113.6m2 First floor 124.9m2 Total Indoor Area 238.5m2 Porch 4.6m2 Balcony 7.8m2 Garage 37.8m2 Total Indoor and outdoor Area 288.7m2
KIT WIP LDRY MEALS LIVING GARAGE ENTRY BED 5 WIR ENS PDR STORAGE AREA PORCH WT HWS AC BED 1 BED 2 BED 3 BED 4 PDR BATH ENS WIR 2 ND LIVING BALCONY OBSCURE OBSCURE OBSCURE 4 5 6 AREA 1 2 GROUND
FIRST FLOOR
FLOOR
KIT WIP LDRY MEALS LIVING GARAGE ENTRY BED 5 WIR ENS PDR STORAGE AREA PORCH WT HWS AC BED 1 BED 2 BED 3 BED 4 PDR BATH ENS WIR 2 ND LIVING BALCONY OBSCURE OBSCURE OBSCURE 4 5 6 AREA 1 2
FIRST
GROUND FLOOR
FLOOR
5 bedroom. 3 bathroom. 2 car HOME 630
Artist Impression — based on Home 627

This plan is an artist’s impression. It is not to scale and should be used as a guide only. Please refer to the contract for sale for specifications and the inclusions list for details on landscaping, fencing, gates, driveways, turf etc. Purchasers must rely on their own enquiries and the contract for sale.

HOME 630

Village Green

Making up 1 hectare of the 2.5 hectares of open space throughout Burwood Brickworks, the Village Green offers residents and the wider community the opportunity to get outside and take in nature.

The Link

The Link acts as the precinct’s main thoroughfare, connecting the Urban Plaza to an abundance of green space via carefully articulated walking and cycling paths.

Shops and entertainment, the rooftop urban farm and Urban Plaza are all within easy walking distance of Park Crescent Homes.

Urban Plaza

An outdoor extension of the retail centre offers paved paths winding past grassy mounds and intimate spaces that make the most of the outdoors.

Future-forward retail

Designed to be the world’s most sustainable shopping centre with over 40 retailers as well as a full line Woolworths, all within walking distance from home. Amenities include a cinema, childcare centre and an abundance of restaurants and cafés.

A rooftop urban farm

acre farm and eatery Brickworks is home to a quail coop, composting and worm farms, as well as an impressive collection of vertical and hydroponic planting structures and garden beds, all alongside a beautiful café and restaurant offering paddock-toplate dining.

A premium location, all of Park Crescent Homes are located within close proximity to the Village Green.
Home type 5 2 5 3+ Home type 2 2 4 2+ Home type 1 1 4 2+ Home type 4 2 4 3+ Home type 3 1 4 3+ 631 632 BurwoodBrickworks.com.au 630 629 628 627 626 625 624 623 622 621 620 619 618 617 616 615 614 613 612 611 610 609 608 607 606 605 604 603 601
602

LOT 630

LOT 630

GROUND FLOOR FIRST FLOOR

First Floor Ground Floor DISCLAIMER: The dimensions and depictions of the layout of the house in this floor plan are approximations only, not to scale and may vary to the house when built. All room measurements are measured from internal walls to internal walls and may vary. Purchasers must rely on their own enquiries and the contract for sale. 0 2 4 HOME 630 Bedroom 5 Bathroom 3 Powder room 2 Car 2 Lot area 316m2 Area Summary Ground floor 104.2m2 First floor 127.3m2 Total Indoor Area 231.5m2 Porch 3.7m2 Balcony 8.4m2 Garage 39m2 Total Indoor and outdoor Area 282.6m2
BED 5 PDR ENS ENTRY ST KIT MEALS LIVING LDRY GARAGE STORAGE AREA PORCH WT HWS AC OBSCURE OBSCURE 10 11 12 13 14 15 16 OBSCURE WIR BATH BED 1 BED 2 BED 4 BED 3 2 ND LIVING WC BALCONY ENS OBSCURE OBSCURE OBSCURE OBSCURE OBSCURE OBSCURE 3 4 5 AREA 1 2
GROUND FLOOR FIRST FLOOR
BED 5 PDR ENS ENTRY ST KIT MEALS LIVING LDRY GARAGE STORAGE AREA PORCH WT HWS AC OBSCURE OBSCURE 10 11 12 13 14 15 16 OBSCURE WIR BATH BED 1 BED 2 BED 4 BED 3 2 ND LIVING WC BALCONY ENS OBSCURE OBSCURE OBSCURE OBSCURE OBSCURE OBSCURE 3 4 5 AREA 1 2
5 bedroom. 3 bathroom. 2 car HOME 631
Artist Impression — based on Home 626

This plan is an artist’s impression. It is not to scale and should be used as a guide only. Please refer to the contract for sale for specifications and the inclusions list for details on landscaping, fencing, gates, driveways, turf etc. Purchasers must rely on their own enquiries and the contract for sale.

HOME 631

Village Green

Making up 1 hectare of the 2.5 hectares of open space throughout Burwood Brickworks, the Village Green offers residents and the wider community the opportunity to get outside and take in nature.

The Link

The Link acts as the precinct’s main thoroughfare, connecting the Urban Plaza to an abundance of green space via carefully articulated walking and cycling paths.

Shops and entertainment, the rooftop urban farm and Urban Plaza are all within easy walking distance of Park Crescent Homes.

Urban Plaza

An outdoor extension of the retail centre offers paved paths winding past grassy mounds and intimate spaces that make the most of the outdoors.

Future-forward retail

Designed to be the world’s most sustainable shopping centre with over 40 retailers as well as a full line Woolworths, all within walking distance from home. Amenities include a cinema, childcare centre and an abundance of restaurants and cafés.

A rooftop urban farm

acre farm and eatery Brickworks is home to a quail coop, composting and worm farms, as well as an impressive collection of vertical and hydroponic planting structures and garden beds, all alongside a beautiful café and restaurant offering paddock-toplate dining.

A premium location, all of Park Crescent Homes are located within close proximity to the Village Green.
Home type 5 2 5 3+ Home type 2 2 4 2+ Home type 1 1 4 2+ Home type 4 2 4 3+ Home type 3 1 4 3+ 632 BurwoodBrickworks.com.au 631 630 629 628 627 626 625 624 623 622 621 620 619 618 617 616 615 614 613 612 611 610 609 608 607 606 605 604 603 601
602

GROUND FLOOR

GROUND FLOOR

LOT 631

LOT 631

FIRST FLOOR

FIRST FLOOR

First Floor Ground Floor DISCLAIMER: The dimensions and depictions of the layout of the house in this floor plan are approximations only, not to scale and may vary to the house when built. All room measurements are measured from internal walls to internal walls and may vary. Purchasers must rely on their own enquiries and the contract for sale. 0 2 4 Bedroom 5 Bathroom 3 Powder room 2 Car 2 Lot area 316m2 Area Summary Ground floor 104.2m2 First floor 127.3m2 Total Indoor Area 231.5m2 Porch 3.7m2 Balcony 8.4m2 Garage 39m2 Total Indoor and outdoor Area 282.6m2 HOME 631
BED 5 PDR ENS ENTRY ST KIT MEALS LIVING LDRY GARAGE STORAGE AREA PORCH WT HWS AC OBSCURE OBSCURE 1 2 3 4 5 6 7 8 9 10 11 12 13 14 15 16 OBSCURE WIR BATH BED 1 BED 2 BED 4 BED 3 2 ND LIVING WC BALCONY ENS OBSCURE OBSCURE OBSCURE OBSCURE OBSCURE OBSCURE 3 4 5 AREA 1 2
BED 5 PDR ENS ENTRY ST KIT MEALS LIVING LDRY GARAGE STORAGE AREA PORCH WT HWS AC OBSCURE OBSCURE 10 11 12 13 14 15 16 OBSCURE WIR BATH BED 1 BED 2 BED 4 BED 3 2 ND LIVING WC BALCONY ENS OBSCURE OBSCURE OBSCURE OBSCURE OBSCURE OBSCURE 3 4 5 AREA 1 2
5 bedroom. 3 bathroom. 2 car HOME 632
Artist Impression

This plan is an artist’s impression. It is not to scale and should be used as a guide only. Please refer to the contract for sale for specifications and the inclusions list for details on landscaping, fencing, gates, driveways, turf etc. Purchasers must rely on their own enquiries and the contract for sale.

HOME 632

Village Green

Making up 1 hectare of the 2.5 hectares of open space throughout Burwood Brickworks, the Village Green offers residents and the wider community the opportunity to get outside and take in nature.

The Link

The Link acts as the precinct’s main thoroughfare, connecting the Urban Plaza to an abundance of green space via carefully articulated walking and cycling paths.

Shops and entertainment, the rooftop urban farm and Urban Plaza are all within easy walking distance of Park Crescent Homes.

Urban Plaza

An outdoor extension of the retail centre offers paved paths winding past grassy mounds and intimate spaces that make the most of the outdoors.

Future-forward retail

Designed to be the world’s most sustainable shopping centre with over 40 retailers as well as a full line Woolworths, all within walking distance from home. Amenities include a cinema, childcare centre and an abundance of restaurants and cafés.

A rooftop urban farm

acre farm and eatery Brickworks is home to a quail coop, composting and worm farms, as well as an impressive collection of vertical and hydroponic planting structures and garden beds, all alongside a beautiful café and restaurant offering paddock-toplate dining.

A premium location, all of Park Crescent Homes are located within close proximity to the Village Green.
Home type 5 2 5 3+ Home type 2 2 4 2+ Home type 1 1 4 2+ Home type 4 2 4 3+ Home type 3 1 4 3+ BurwoodBrickworks.com.au 632 631 630 629 628 627 626 625 624 623 622 621 620 619 618 617 616 615 614 613 612 611 610 609 608 607 606 605 604 603 601
602

LOT 632

LOT 632

First Floor Ground Floor DISCLAIMER: The dimensions and depictions of the layout of the house in this floor plan are approximations only, not to scale and may vary to the house when built. All room measurements are measured from internal walls to internal walls and may vary. Purchasers must rely on their own enquiries and the contract for sale. 0 2 4 HOME
Bedroom 5 Bathroom 3 Powder room 2 Car 2 Lot area 390m2 Area Summary Ground floor 139m2 First floor 130.5m2 Total Indoor Area 269.5m2 Porch 4.3m2 Garage 40.8m2 Total Indoor and outdoor Area 314.6m2
632
ENTRY BED 5 KIT MEALS LIVING PDR ENS WIR 2 ND LIVING LDRY WIP GARAGE STORAGE AREA PORCH WT HWS AC OBSCURE ENS BED 1 BED 2 BED 3 BED 4 BATH WC WIR WIR WIR WIR OBSCURE OBSCURE 3 4 AREA 1 2 GROUND FLOOR FIRST FLOOR
ENTRY BED 5 KIT MEALS LIVING PDR ENS WIR 2 ND LIVING LDRY WIP GARAGE STORAGE AREA PORCH WT HWS AC OBSCURE ENS BED 1 BED 2 BED 3 BED 4 BATH WC WIR WIR WIR WIR OBSCURE OBSCURE 3 4 AREA 1 2 GROUND FLOOR FIRST FLOOR

STAGE 6 PARK CRESCENT HOMES

Burwood Brickworks Stage 6 Park Crescent Homes 21/11/2020
LOT NO TOTAL HOUSE M2 LAND M2 PRICE 4 Bedrooms / 2 Bathrooms / 1 Garage 611 234.8 262 $1,215,000 614 227.4 254 $1,235,000 617 226.3 255 $1,235,000 618 226.3 255 $1,235,000 621 227.6 268 $1,215,000 624 227.4 273 $1,235,000 4 Bedrooms / 2 Bathrooms / 2 Garages 612 235.1 250 $1,268,000 613 237.3 250 $1,268,000 615 240.4 252 $1,325,000 616 240.3 252 $1,325,000 619 240.3 252 $1,325,000 620 240.4 252 $1,325,000 622 235.7 269 $1,268,000 623 237.3 269 $1,268,000 4 Bedrooms / 3 Bathrooms / 1 Garage 601 278.2 301 $1,180,000 607 278.4 295 $1,180,000 608 278.4 295 $1,180,000 4 Bedrooms / 3 Bathrooms / 2 Garages 602 273.7 297 $1,195,000 603 273.8 295 $1,195,000 604 273.8 295 $1,215,000 605 267.5 295 $1,195,000 606 267.5 295 $1,195,000 609 267.5 295 $1,195,000 610 267.5 295 $1,195,000

*Note: Total House Area comprises: Living Areas all Floors +Garage + Porch + Balcony (if applicable)

TERMS OF SALE

Deposit: 10% - Bank Cheque or Money Order – No Cash

Balance: 21 days after issue of Certificate of Occupancy Price List Effective: 21 November 2020

Project Sales Manager: Giuliana Balla - 0438 653 162 Jamie Chua – 0418 211 647

Frasers Property Australia Level 9, 484 St Kilda Road, Melbourne, Vic 3004 Phone: 13 38 38

Burwood Brickworks Stage 6 Park Crescent Homes 21/11/2020 - 2LOT NO TOTAL HOUSE M2 LAND M2 PRICE 5 Bedrooms / 3 Bathrooms / 2 Garages 625 287.3 353 $1,440,000 626 282.6 316 $1,430,000 627 282.6 316 $1,450,000 628 287.3 373 $1,468,000 629 286.7 373 $1,468,000 630 282.6 316 $1,450,000 631 282.6 316 $1,450,000 632 314.6 390 $1,538,000

13 July 2023

Frasers Property Level 9, 484 St Kilda Road

MELBOURNE VIC 3004

Dear Kelly

Re: Comparative Sales Evidence

Property: 78 Middleborough Road, Burwood East

Further to your recent instructions requesting the latest sales evidence of comparable townhouses in the general locality, we advise as follows.

At your request, our advice herein provides a schedule of sales evidence considered broadly relevant to the Stages 6 and 7 of the Burwood Brickworks development at 78 Middleborough Road, Burwood East, and could reasonably be expected to be made by an alternate valuation firm.

Charter notes that there is limited evidence within the immediate locality of established projects which present a comparable level of amenity to a masterplanned development such as Burwood Brickworks.

The sales schedule relevant to the various townhouse typologies and price points are detailed on the following pages.

charterkc.com.au

reception@charterkc.com.au

T 1300 242 787

Charter Keck Cramer Pty Ltd

ACN: 618 794 853

Charter Keck Cramer (Sydney) Pty Ltd

ACN: 601 785 326

ADVISORY. RESEARCH & STRATEGY VALUATIONS. PROJECTS. CAPITAL. Our Reference BC

With consideration to the product type having pre-sold ‘off-the-plan’, we have considered comparative established sales evidence within the general locality in the following categories:

i. Three-Bedroom Townhouse Sales;

ii. Four-Bedroom Townhouse Sales; and

iii. Five-Bedroom Townhouse Sales

We refer to the following sales:

We have considered comparative sales evidence as follows:

Sales Schedule – Three-Bedroom Townhouses

3/1 Malabar Road, Blackburn

Sale Price $1,215,000

Sale Date March 2023

Sale Settled Yes (SOURCE - RP Data)

Value Rate $7,594 p.s.m.

Building Area (sq.m.) 160

Lot Area (sq.m.) 204

BRs 3

Car Space 1 + 1 OSCP

Building Age 2015

Description

Floor Plan Internal

Two storey townhouse comprising three bedrooms, ensuite, central bathroom, powder room and separate laundry. Specifications include inset sink, glass splashbacks, stone benchtops and stainless steel appliances. Complemented by a single lock up garage and one off-street car space.

Christine Bafas – Jellis Craig Whitehorse – 0427 835 610

9 Charlottes Way, Forest Hill

Sale Price $1,170,000

Sale Date March 2023

Sale Settled Yes (SOURCE - RP Data)

Value Rate $6,126 p.s.m. Building Area (sq.m.) 191

Floor Plan

Contemporary style two-level townhouse. Comprises three bedrooms, ensuite, central bathroom, powder room, separate laundry and open plan living/dining. Specifications include timber flooring to living and kitchen, stone benchtops, stainless steel appliances and double undermount sink. Complemented by a double lockup garage and private open space.

Evan Zhang – McGrath Box Hill – 0430 838 662

PAGE 2
Burwood Brickworks (Stages 6 & 7), 78 Middleborough Road, Burwood East
Internal
Lot Area (sq.m.) 180 BRs 3 Car Space 2 Building Age 2015 Description

Sales Schedule – Three-Bedroom Townhouses

1/23 Pippin Avenue, Burwood East

Sale Price $1,245,000

Sale Date February 2023

Sale Settled Yes (SOURCE - RP Data)

Value Rate $7,114 p.s.m.

Building Area (sq.m.) 175

Lot Area (sq.m.) 234

BRs 3 + Study

Car Space 2

Building Age 2015

Description

Floor Plan

Contemporary but not new townhouse. Accommodation comprises of three bedrooms, study, ensuite to master, central bathroom, separate laundry/powder room and open plan living/dining. Specifications include timber flooring to kitchen and living, stone benchtops and splashbacks, stainless steel appliances and double undermount sink. Complemented by a double lockup garage and south facing private open space.

Connor Sun – Harcourts Ashwood – 0450 250 126

8 Northcote Circuit, Burwood East

Sale Price $1,105,000

Sale Date February 2023

Sale Settled Yes (SOURCE - RP Data)

Value Rate $7,517 p.s.m.

Building Area (sq.m.) 147

Lot Area (sq.m.) 151

BRs 3 + Study

Car Space 1 + 1 OSCP

Building Age 2021

Description

Floor Plan

Modern two storey townhouse forming part of the ‘Foundation Homes’ stage of the ‘Burwood Brickworks’ development. Comprises three bedrooms, study, ensuite, central bathroom, powder room, Euro laundry, and open plan living/dining. Specifications include timber flooring to living and kitchen, stone benchtops and splashbacks and stainless steel appliances. Complemented by a single lockup garage and one offstreet car space.

Mia Li – Auspacific Property Investment Melbourne – 0450883 163

20 Burn Nar Look Drive, Burwood

Sale Price $1,055,000

Sale Date December 2022

Sale Settled Yes (SOURCE - RP Data)

Value Rate $6,806 p.s.m.

Building Area (sq.m.) 155

Lot Area (sq.m.) 214

BRs 3

Car Space 1 + 1 OSCP

Building Age 2012

Description

Floor Plan

Older two-level townhouse. Accommodation comprises of three bedrooms, ensuite to master, central bathroom, powder room and open plan living/dining. Specifications include stainless steel appliances, inset sink and stone benchtops. Complemented by a single lockup garage, one off-street car space and south facing private open space.

Michelle Yan – Fletchers Blackburn – 0412 701 190

Burwood Brickworks (Stages 6 & 7), 78 Middleborough Road, Burwood East PAGE

3
Internal
Internal
Internal

Sales Schedule – Three-Bedroom Townhouses

20 Northcote Circuit, Burwood East

Sale Price $1,085,000

Sale Date November 2022

Sale Settled Yes (SOURCE - RP Data)

Value Rate $6,061 p.s.m.

Building Area (sq.m.) 179

Lot Area (sq.m.) 169

BRs 3 + Study

Car Space 1 + 1 OSCP

Building Age 2021

Description

Floor Plan

Contemporary style townhouse situated within the ‘Foundation Homes’ stage of the ‘Burwood Brickworks’ development. Comprises three bedrooms, study, ensuite to master, central bathroom, powder room and Euro laundry. Specifications include timber flooring to general areas, stone benchtops, double undermount sink and stainless steel appliances. Complemented by a single lockup garage and one off-street car park.

Casey Wang – Barry Plant Whitehorse – 9874 3355

We have considered comparative sales evidence as follows:

Sales Schedule – Four-Bedroom Townhouses

93 Eley Road, Box Hill South

Sale Price $1,600,000

Sale Date June 2023

Sale Settled No (SOURCE - RP Data)

Value Rate $6,926 p.s.m.

Building Area (sq.m.) 231

Lot Area (sq.m.) 399

BRs 4

Car Space 2

Building Age 2014

Description

Floor Plan

Contemporary style but not new double storey townhouse. Accommodation provides for four bedrooms, ensuite, central bathroom, powder room, second living area and open plan living/dining. Average level of specifications throughout including Caesarstone benchtops. Complemented by a double lockup garage and private open space.

Sam Babalis – Jellis Craig Doncaster – 0419 513 197

11 Christa Avenue, Burwood East

Sale Price $1,287,000

Sale Date May 2023

Sale Settled No (SOURCE - RP Data)

Value Rate $6,600 p.s.m.

Building Area (sq.m.) 195

Lot Area (sq.m.) 290

BRs 4

Car Space 1 + 1 OSCP

Building Age 2023

Description

Floor Plan

Internal

Recently completed two storey townhouse comprising four bedrooms, three ensuites, central bathroom and Euro laundry. Specifications include stone benchtops, glass splashbacks, stainless steel Omega appliances, double undermount sink and timber flooring to living and kitchen. Complemented by a single lockup garage and one off-street car space.

Connor Sun – Harcourts Ashwood – 0450 250 126

Burwood Brickworks (Stages 6 & 7), 78 Middleborough Road, Burwood East PAGE

4
Internal
Internal

Sales Schedule – Four-Bedroom Townhouses

1/3 McCubbin Street, Burwood

Sale Price $1,355,000

Sale Date April 2023

Sale Settled Yes (SOURCE - RP Data)

Value Rate $6,843 p.s.m.

Building Area (sq.m.) 198

Lot Area (sq.m.) 290

BRs 4

Car Space 2

Building Age 2023

Description

Floor Plan

Recently completed two-level townhouse forming part of a development of four. Accommodation comprises four bedrooms, two ensuites, central bathroom, powder room and separate laundry. Specifications include timber flooring to living and kitchen, stone benchtops, tiled splashbacks, double undermount sink, matte black finish single lever mixer tapware and stainless steel appliances. Complemented by a double garage.

Hans Liu – Ray White Burwood – 0430 595 592

1/48 Shawlands Avenue, Blackburn South

Sale Price $1,380,000

Sale Date March 2023

Sale Settled Yes (SOURCE - RP Data)

Value Rate $7,041 p.s.m.

Building Area (sq.m.) 196

Lot Area (sq.m.) 335

BRs 4

Car Space 2

Building Age 2012

Description

Floor Plan

Older two-level townhouse comprising four bedrooms, ensuite, central bathroom, powder room, second living area and open plan living/dining. Specifications include stone benchtops, inset sink, tiled splashbacks and stainless steel appliances. Complemented by a double lockup garage, private open space and street frontage.

Tony Kwan – The One Real Estate Box Hill – 0422 876 886

2/29 Montpellier Road, Burwood

Sale Price $1,293,000

Sale Date February 2023

Sale Settled Yes (SOURCE - RP Data)

Value Rate $6,989 p.s.m.

Building Area (sq.m.) 185

Lot Area (sq.m.) 268

BRs 4

Car Space 1 + 1 OSCP

Building Age 2017

Description

Floor Plan

Two-level townhouse constructed in 2017. Comprises four bedrooms, ensuite to master, central bathroom and separate laundry/powder room.

Average level of specifications throughout. Complemented by a single lockup garage and one off-street car space.

Hans Liu – Ray White Burwood

0430 595 592

5
Burwood Brickworks (Stages 6 & 7), 78 Middleborough Road, Burwood East
PAGE
Internal
Internal
Internal

Sales Schedule – Four-Bedroom Townhouses

2/1178 Riversdale Road, Box Hill South

Sale Price $1,180,000

Sale Date January 2023

Sale Settled Yes (SOURCE - RP Data)

Value Rate $5,763 p.s.m.

Floor Plan

Two-level townhouse within a development of two units. Accommodation provides for four bedrooms, two ensuites, central bathroom, powder room, separate laundry and open plan living/dining. Average level of specifications throughout. Complemented by a double lockup garage and south facing private open space.

Agent Unknown

Sale Price $1,230,000

Sale Date October 2022

Sale Settled Yes (SOURCE - RP Data) Value

p.s.m.

4/16 McCubbin Street, Burwood Floor Plan

Recently completed two-level townhouse within development of five units. Comprises four bedrooms, two ensuites, central bathroom, powder room and Euro laundry. Specifications include timber flooring to general areas, stone benchtops and splashbacks, matte black finish single lever mixer tapware, double undermount sink and induction cooktop. Complemented by a double lockup garage and 42 sq.m. of west facing private open space.

Hans Liu – Ray White Burwood – 0430 595 592

Price $1,490,000

Sale Date October 2022 Sale Settled Yes (SOURCE - RP Data)

1/2 Eyre Street, Burwood Floor Plan

Recently completed two-level townhouse. Accommodation provides for four bedrooms, two ensuites, central bathroom, powder room and open plan living/dining. Above average level of specifications throughout. Complemented by a double lockup garage and private open space.

Ethan He – First National JXRE Clayton – 0477 588 390

PAGE 6
Burwood Brickworks (Stages 6 & 7), 78 Middleborough Road, Burwood East
Internal
Building Area (sq.m.)
Lot Area (sq.m.) 294 BRs 4 Car Space 2 Building Age 2015 Description
205
Internal
Building Area (sq.m.) 202 Lot Area (sq.m.) N/A BRs 4 Car Space 2 Building Age 2022 Description
Rate $6,089
Internal
Sale
Building Area
Lot Area (sq.m.)
BRs 4 Car Space 2 Building Age
Description
Value Rate $7,233 p.s.m.
(sq.m.) 206
259
2022

We have considered comparative sales evidence as follows:

Sales Schedule – Five-Bedroom Townhouses

Sale Price $1,785,000

Sale Date June 2023

Sale Settled No (SOURCE - RP Data)

Value Rate N/A Building Area (sq.m.) N/A

2/42 Roslyn Street, Burwood Floor Plan

Recently completed double storey townhouse. Comprises five bedrooms, three ensuites, central bathroom, separate laundry/powder room and open plan living/dining. Specifications include timber herringbone flooring to living and kitchen and Miele appliances. Complemented by a double lockup garage and east facing private open space.

Nicole Lismore – Buxton Camberwell – 0401 617 908

1/21 Kingston Street, Mount Waverley

Sale Price $1,655,000

Sale Date April 2023

Sale Settled No (SOURCE - RP Data)

Value Rate $7,196 p.s.m. Building Area (sq.m.) 230 Lot Area (sq.m.) 319

5

Age 2020

Floor Plan

Contemporary style two-level townhouse. Comprises five bedrooms, ensuite to master, two central bathrooms, powder room and separate laundry. Specifications include stainless steel Bosch appliances, double undermount sink and stone benchtops. Complemented by a double lockup garage (no internal access).

Eric Li

LLC Real Estate Mount Waverley

0415 689 981

Sale Price $1,490,000 Sale Date March 2023

Settled Yes (SOURCE - RP Data)

1C Neville Street, Box Hill South Floor Plan

Double storey townhouse built 2019, enjoying its own street frontage. Comprises five bedrooms plus study, three bathrooms, open plan living and a retreat. Complemented by a double garage and a timber deck.

Calvin Chan – Buxton Box Hill – 0422 056 222

Burwood Brickworks (Stages 6 & 7), 78 Middleborough Road, Burwood East

PAGE 7
Internal
BRs 5 Car Space 2 Building
2023
Lot Area (sq.m.) 280 (Approx)
Age
Description
Internal
BRs
Car
Building
Description
Space 2
Internal
Sale
Value
Building Area
Lot Area (sq.m.)
BRs 5 Car Space 2 Building Age 2019 Description
Rate $6,682 p.s.m.
(sq.m.) 223
355

Sales Schedule – Five-Bedroom Townhouses

2/9 Skene Street, Burwood East

Sale Price $1,568,000

Sale Date March 2023

Sale Settled Yes (SOURCE - RP Data)

Value Rate N/A

Building Area (sq.m.) N/A

Lot Area (sq.m.) 267

BRs

Car Space 2

Building Age 2020

Description

Floor Plan

Contemporary two-level townhouse. Comprises five bedrooms, two ensuites, central bathroom, powder room, separate laundry and open plan living/dining. Standard level of specifications throughout including stone benchtops and stainless steel appliances. Complemented by a double lockup garage and east facing private open space.

Stephen Huang – Jellis Craig Monash – 0499 088 880

1/449 Highbury Road, Burwood East

Sale Price $1,619,000

Sale Date August 2022

Sale Settled Yes (SOURCE - RP Data)

Value Rate $6,718 p.s.m.

Building Area (sq.m.) 241

Lot Area (sq.m.) 331

BRs 5

Car Space 2

Building Age 2022

Description

Floor Plan

Recently completed two-level townhouse. Comprises five bedrooms, two ensuites, central bathroom, powder room, separate laundry and second living area. Specifications include stone benchtops and stainless steel Smeg appliances. Complemented by a double lockup garage and private open space.

Stephen Huang – Jellis Craig Monash – 0499 088 880

The sales summarised have been collated from sources including PDOL, REIV sales data, council records, estate agent reports and other usual sources of comparable sales data. The information reported is to the best of our knowledge correct however, we cannot make any absolute representation as to accuracy as it has been sourced essentially from information provided rather than obtained “first hand”. The building areas are based on council records, Endorsed Plans or, in some instances, RP Data Any party proposing to rely upon this sales summary should therefore make their own enquiries as to the accuracy of this advice. Additionally, the status of any non-settled sales listed in the schedule may have progressed since the date of issue of this letter and thus should be examined if relied upon for valuation purposes at a later date.

Should you have any queries in relation to this matter, please do not hesitate to contact the undersigned on mobile number +61 (0) 421 103 359 or via email at ben.carter@charterkc.com.au.

Yours sincerely

Liability limited by a scheme approved under Professional Standards Legislation.

8
Burwood Brickworks (Stages 6 & 7), 78 Middleborough Road, Burwood East
PAGE
Internal
5
Internal
Z:\JOBS\SETTLEMENT PACKS\BURWOOD BRICKWORKS - FRASERS\STAGE 6-7 (MD)\COMPARABLE SALES EVIDENCE LETTER - BURWOOD BRICKWORKS (MD6&7).DOCX

The following table provides a condensed summary of the sales contained within this report.

PAGE 9
Burwood Brickworks (Stages 6 & 7), 78 Middleborough Road, Burwood East
Three-Bedroom Townhouses Address Built BRs BthRs Cars Area (sq.m.) Sale Date Sale Price Value Rate p.s.m. 3/1 Malabar Road Blackburn 2015 3 2 + P 2* 160 Mar-23 $1,215,000 $7,594 9 Charlottes Way Forest Hill 2015 3 2 + P 2 191 Mar-23 $1,170,000 $6,126 1/23 Pippin Avenue Burwood East 2015 3 + S 2 + P 2 175 Feb-23 $1,245,000 $7,114 8 Northcote Circuit Burwood East 2021 3 + S 2 + P 2* 147 Feb-23 $1,105,000 $7,517 20 Burn Nar Look Drive Burwood 2012 3 2 + P 2* 155 Dec-22 $1,055,000 $6,806 20 Northcote Circuit Burwood East 2021 3 + S 2 + P 2* 179 Nov-22 $1,085,000 $6,061 Four-Bedroom Townhouses Address Built BRs BthRs Cars Area (sq.m.) Sale Date Sale Price Value Rate p.s.m. 93 Eley Road Box Hill South 2014 4 2 + P 2 231 Jun-23 $1,600,000 $6,926 11 Christa Avenue Burwood East 2023 4 4 2* 195 May-23 $1,287,000 $6,600 1/3 McCubbin Street Burwood 2023 4 3 + P 2 198 Apr-23 $1,355,000 $6,843 1/48 Shawlands Avenue Blackburn South 2012 4 2 + P 2 196 Mar-23 $1,380,000 $7,041 2/29 Montpellier Road Burwood 2017 4 2 + P 2* 185 Feb-23 $1,293,000 $6,989 2/1178 Riversdale Road Box Hill South 2015 4 3 + P 2 205 Jan-23 $1,180,000 $5,756 4/16 McCubbin Street Burwood 2022 4 3 + P 2 202 Oct-22 $1,230,000 $6,089 1/2 Eyre Street Burwood 2022 4 3 + P 2 206 Oct-22 $1,490,000 $7,233 Five-Bedroom Townhouses Address Built BRs BthRs Cars Area (sq.m.) Sale Date Sale Price Value Rate p.s.m. 2/42 Roslyn Street Burwood 2023 5 4 + P 2 N/A Jun-23 $1,785,000 N/A 1/21 Kingston Street Mount Waverley 2019 5 3 2 230 Apr-23 $1,655,000 $7,196 1C Neville Street Box Hill South 2019 5 + S 3 2 223 Mar-23 $1,490,000 $6,682 2/9 Skene Street Burwood East 2020 5 3 + P 2 N/A Mar-23 $1,568,000 N/A 1/449 Highbury Road Burwood East 2022 5 3 + P 2 241 Aug-22 $1,619,000 $6,718
*Second car space is off-street

RE: Park Crescent Homes - Rental Appraisal

Burwood Brickworks MD Stage 6

I am pleased to provide you with a with a rental appraisal for the above development.

After taking into account current market conditions and comparable brand-new properties leased in the Burwood area, if these apartments were available for rental today, I anticipate that gross weekly rental rates would be as follows:

- 4 bedroom + 2 bathrooms + 1 car space- $900 to $930 per week

- 4 bedrooms + 2 bathrooms + 2 car space- $930 to $960 per week

- 4 bedrooms + 3 bathrooms + 1 car space- $960 to $990 per week

- 4 bedrooms + 3 bathrooms + 2 car space - $970 to $1000 per week

- 5 bedrooms + 3 bathrooms + 2 car space - $990 to $1150 per week

These figures are gross rental amounts and do not factor in holding costs, including council rates, water rates, strata levies and any property management fees payable on the property.

I may need to re assess the rental estimate upon completion of the development which will enable me to consider factors such as market conditions, aspect, views and vacancy rates.

This appraisal is provided for information purposes only and therefore should not be taken as a sworn valuation to be relied upon for investment purposes or by a third party.

Should you have any queries, please do not hesitate to contact me via email on irene.colasante@frasersproperty.com.au or 0407 674 792.

Yours sincerely

T +61 3 9258 1281

M +61 407 674 792

E irene.colasante@frasersproperty.com.au

Level 9, 484 St Kilda Road, Melbourne VIC 3004 Australia www.frasersproperty.com.au | LinkedIn | YouTube

Dear purchaser, 23/06/2023

Turn static files into dynamic content formats.

Create a flipbook
Issuu converts static files into: digital portfolios, online yearbooks, online catalogs, digital photo albums and more. Sign up and create your flipbook.