FRANK T. MEISINGER
Washington University in St. Louis | M.Arch
Preview Portfolio 2026
![]()
Washington University in St. Louis | M.Arch
Preview Portfolio 2026
M.Arch student at Washington University in St. Louis seeking a Summer 2026 architectural internship. Adept in Revit-based design and documentation and Rhino-toAdobe workflows. Hands-on fabrication and construction experience strengthens my ability to deliver clear, welldetailed work with strong constructability.
Experience Highlights
• HDR, Inc. — Architectural Design Intern
• WashU Sam Fox Walker Metal/Wood Shop — Shop Monitor
• UNL College of Architecture Wood Shop — Shop Manager
• Meisinger Construction — Field + Shop Operations
Core Tools
Revit • Rhino 6/7/8 • Grasshopper • Adobe (Ps/Ai/Id) Enscape • V-Ray • Twinmotion
Education
B.S. Architecture – University of Nebraska–Lincoln (May 2025 | Minor: Landscape Architecture)
Master of Architecture – Washington University in St. Louis (Expected May 2027)

Contact Info (651) 600-2514

franktmeisinger@gmail.com frank-meisinger




















Central Lounge - Main Floor

College of Architecture
Project Sector: High Education
Location: Kansas City, MO
Duration : 10 Weeks
Semester : Spring 2024
Institution: University of Nebraska – Lincoln
Instructor: Dr. Peter Ol’shavsky
Partners: Noor Alsudani, Grace Helmuth













This project centers around a new Department of Architecture (DoArc) at the Kansas City Art Institute in Kansas City, Missouri, a mass timber structure with a curtain wall envelope and double-skin facade made of terra-cotta baguette panels.
The sustainable nature of DoArc’s design allows the building to act as a learning tool, exemplifying state of the art material technology and envrionmental response. This also extends into the building’s landscape, which showcases contextual integration, native planting schemes, and stormwater control strategies.
The department’s architectural program illuminates the discipline’s ability to bring together people of different backgrounds, which is coupled by the structure’s organization.

























Massing Strategy














Notheast Isometric Northwest Corner - Street Parking















































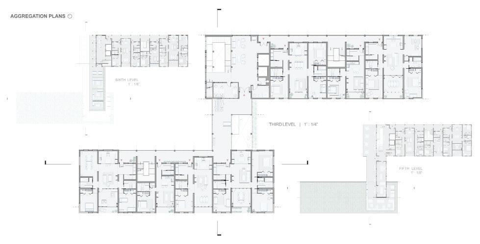
Urban Waterfront Housing Development
Project Sector: Multi-Family Residential / Mixed-Use
Location: Dartmouth/Halifax, NS
Duration : 8 Weeks
Semester : Fall 2025
Institution: Washington University in St. Louis
Instructor: Donald Koster
Partner: N/A


King’s Wharf in Dartmouth, Nova Scotia is being reshaped by rapid waterfront redevelopment: an edge defined by new towers, an expanding harborwalk, and a growing demand for housing that still feels grounded and livable. In this context, the project asks how a residential building can support public life along the harbor while protecting the everyday privacy and comfort of the home, especially in a coastal climate.
King’s View Apartments is a midrise, mixed-use housing proposal organized around layered thresholds. The ground floor activates the harborwalk with resident-support amenities and small commercial programs, while upper levels group flexible units around the concept of a sheltered outdoor room, intended for year-round use. The architecture focuses on mediation between public and private, exposure and refuge, and largescale development and human-scale dwelling.




Unit Aggregation Plans | 3rd, 5th, 6th Floors


Longitudinal Building Section / Southern Elevation

Community Center & Public Park
Project Sector: Civic/Community
Location: Omaha, NE
Duration : 6 Weeks
Semester : Fall 2024
Institution: University of Nebraska – Lincoln
Instructor: Brain Kelly
Partners: Judy Garces-Garcia, Andy Real, Rebecca Thomas
At the heart of the Walnut Hill neighborhood in Omaha, Nebraska sits a neglected park which holds the reminants of a now decomissioned reservoir. Ripe with historic value, this infrastructure has sat neglected and now acts as an ugly divider in this once tight-knit community.
This project aimed to restore the beatuy and life to this historic site, drawing in new people from the surrounidng neighborhoods with a modern design that pays tribute to the hertiage of the area. The community center is intended to act as a modern agora; a place for gathering and interacting with members of the community, and for growing alongside them.












Multimodal Transit Hub and Community Lounge
Project Sector: Transportation / Hospitality
Location: Omaha, NE
Duration : 12 Weeks
Semester : Spring 2025
Institution: University of Nebraska – Lincoln
Instructor: Ashley Byars
Partner: Kayla Hans


On the southern edge of Downtown, Omaha’s Amtrak station sits as an underutilized transportation node, a place that forgot what rail travel once meant to the city of Omaha. This project reimagines this site as a multimodal destination that stitches Downtown to its southern neighborhoods through transit, hospitality, and landscape repair.
Rooted in the city’s transit-oriented development goals, the proposal blends station operations with lodging, dining, and nightlife so the station becomes a place to arrive, stay, and return to.
The architecture draws from the historic American station typology while remaining contemporary in assembly and performance. Prefabricated GFRC cladding, exposed steel arches, perforated brass screens, and a barrel-vault skylight create depth, rhythm, and controlled daylight across the public rooms.






TEMPORAL ACTIVATIONHISTORIC REVIVALECOLOGICAL REMEDIATION














































































































































































UPPER LEVEL – Lodge








































The Grand Lounge - 12:00 AM / 3:00 PM












Wall Section – Northern Facade
WALL:
14. PARAPET FLASHING
15. PARAPET SHEATHING
16. 1”-THICK GRFC SHELL CLADDING
17. CONTINUOUS WEATHER-RESISTANT BARRIER (WRB)
18. 5/8” PLYWOOD SHEATHING
19. AIR GAP (2” AT MINIMUM)
20. LIGHT GAUGE STEEL STUDS (6”/8”)
21. 5/8” GYPSUM BOARD
22. 1” INSULATED GLASS UNIT (IGU)
23. ALUMINUM WINDOW SILL
24. R-12 RIGID INSULATION
25. R-25 BATT INSULATION
26. R-30 CLOSED-CELL SPRAY FOAM INSULATION
27. DECORATED BRASS CLADDING
FLOOR:
28. 3W-36 COMPOSITE METAL DECKING
29. 2” REINFORCED CONRETE SLAB
30. REINFORCED CONCRETE TOPPING SLAB (1:12 SLOPE)
31. ADJUSTABLE FLOOR PEDESTAL
32. 1/8” HARDWOOD VINEER
33. 1” RAISED HARDWOOD FLOOR PANEL
34. CONCRETE PAVERS (ADA-COMPLIANT)
35. 4” IN-GROUND CONCRETE FLOORPLATE
36. 2” COMPRESSIBLE FILL
37. FOUNDATION - FROST WALL
38. FOUNDATION - FOOTING
39. FOUNDATION - STEEL REBAR
40. 12” IN-GROUND DRAINAGE PIPE
41. TRAIN PLATFORM END SUPPORT

Washington University in St. Louis | M.Arch
Preview Portfolio 2026