CV_Portfolio_Frank Yu

Page 1


FRANK JIA YU

KEY SKILLS

• Software Proficiency including Revit, Sketchup, AutoCAD, Rhino, Adobe Suite

• Client relations and communication

• Bilingual and CrossCultural Competence

• Project management and Coordination

frank.yujia@gmail.com 0451 893 318 32 Ebsworth Street, Zetland

PROFILE

With 6 years of architectural and interior design education combined with 4 years of design-related retail experience, I am a highly motivated and results-driven professional. Passionate about architecture and interior design, I bring a strong foundation in design principles, technical expertise, and exceptional customer service skills. My ability to blend creativity with practical problem-solving allows me to deliver thoughtful, client-focused design solutions.

WORK EXPERIENCE

DESIGN CONSULTANT

POLIFORM | SPACE SYDNEY

November 2020 – Present

Responsibilities

EDUCATION

2024-2025

Bachelor of Architecture at UNSW

2020-2024

Bachelor of Interior Architecture at UNSW

2019-2020

Diploma in Interior Design at TAFE Enmore Design Centre

Coordinating closely with retail clients through the process in joinery design and furniture selection, including taking design brief, presenting design proposal, planning spatial arrangement and furniture placement, consulting colour and finishes scheme, coordinating documentation and site check measure.

Achievements

• Achieved and exceeded sales budget

• Received multiple positive feedback for excellent service.

GRADUATE INTERIOR DESIGNER

STUDIO GESTALT

September 2022 – December 2022

Responsibilities

Assist project teams with day-to-day project tasks including design concept, design development, finishes and FFE schedules, furnishing selection. Prepare presentations for projects. Coordination of projects and documentation.

Achievements

• Achieved and exceeded director’s requirement.

• Positive feedback for efficiency, accuracy, and attention to detail.

FRANK YU / PORTFOLI

2024 / ACADEMIC YEAR

ARCHITECTURAL STUDIO / COURSE

PUBLIC / CATEGORY

A NEW LIBRARY & PUBLIC SPACES IN ROSEHILL PARRAMATTA

The FLO is a proposal that transforms an anonymous suburban site in Parramatta into a key local centre by the addition of a library and public spaces.

Inspired by the aboriginal leader Aunty Julie Jones’s poem, the FLO embodies the dynamic and connective power of water. The project features generous public spaces facing busy pedestrian and bike routes, with an extra vestibule on the top level providing stunning river views.

The dual towers serve distinct functions: the library offers environment for reading and research, while the exhibition and community rooms foster creativity and engagement with independent access.

Leveraging the level differences, the design creates a cozy, sunken reading area in the library and a small podium that connects the two programs, ensuring an indepedent public access.

“I am garrigarrang yuu badu saltwater and fresh, carved between a long unseen, hidden valley of sandstone and shale... What are these weirs, that have changed my course, my identity and impede my natural ebb and flow?

Aunty Julie Jones

2024 / ACADEMIC YEAR

ARCHITECTURAL STUDIO / COURSE

MIXED-USE RESIDENTIAL / CATEGORY

A MIXED-USE RESIDENTIAL PROJECT IN NEWTOWN

PARKVILLE

The Parkville aims to presents a friendly and diverse community in the heart of Newtown where community and individuality thrive together. With a sensitivity to the sloping topography, this proposal builds a collection of residences that offer each dwelling with unique views of the parkland at varying elevations, as well as a café that benefits the neighbourhood.

Dwelling 1 is a three-storey house crafted for a couple with two children, featuring a rooftop terrace providing private outdoor area for both parents and children.

Dwelling 2, shaped for a couple without children, has a two-storey structure with a generous balcony as its outdoor area. Situated by the path leading to the park, it features a partition wall with grand openings that artistically frame the lush greenery, merging the boundaries between the built and natural environment.

Dwelling 3 is designed for the elderly resident with easy navigation and comfort, offering full functions on the ground level with wheelchair access.

At the heart of the site is a sprawling courtyard, a shared landscape fostering community bonds while respecting the privacy of each residence. This communal canvas is thoughtfully designed for a variety of gatherings and moments of solitude.

PARKVILLE RESIDENCE
SITE PLAN
SKETCHES

2019 / ACADEMIC YEAR

INTERIOR DESIGN STUDIO / COURSE

RESIDENTIAL / CATEGORY

AN INTERIOR PROJECT FOR A HERITAGE LISTED RESIDENTIAL IN ENMORE

SHAPE OF SPIRITS

Shape of Spirits is a residential project set in the vibrant suburb of Enmore, designed to blend contemporary living with a respect for architectural heritage

This design transforms a 2.5-metre-wide Victorian terrace into a spacious, light-filled sanctuary using an open plan and honours both the building's heritage spirit and the artistic and contemporary aesthetic required in the design brief.

The interior features a striking staircase at the heart of the home, connecting all levels before exploding into pixelated glass installations at the rooftop bar. Natural light from the skylight pours through the iridescent glass balustrade and Victorian floral-patterned cast iron stair treads, drawing inspiration from the ornate decorations typical of Victorian terrace houses. This interaction of light and intricate metalwork casts colourful, lace-like shadows throughout the interior, adding a dynamic and visually engaging element that shifts with the time of day.

Responding the needs of a working couple, a writer husband who loves Latin music and a fashion designer wife who loves the art of Juan Miro, the design provides them with dynamic spaces that is not just lived in but truly embodies the vibrant spirit of its inhabitants.

I try to apply colours like words that shape poems, like notes that shape music.

2023 / ACADEMIC YEAR

INTERIOR ARCHITECTURE STUDIO / COURSE

ADAPTIVE REUSE PUBLIC / CATEGORY

ADAPTIVE REUSE PROJECT IN NEWCASTLE

PORTAL

Located on the land traditionally custodied by the Awabakal and Worimi peoples, the Portal is an adaptive reuse project that transforms the heritage listed Carrington Pumphouse into a mixed-use creative venue for both local residents and visitors from Australia and abroad. The design aims to provide its users with a transformative experience for art engagement.

The design employs a modular joinery design, allowing for a versatile environment that can adapt to various cultural activities and exhibitions. The joineries are designed to be mobile, facilitating easy reconfiguration to suit different events, from intimate art displays to large cultural gatherings.

This flexibility is enhanced by innovative internal walls and storage units that can be lifted, taking advantage of the double height of the space to create a vast, open-plan area ideal for significant cultural events and social interactions.

By merging functionality with creative freedom, the Portal not only respects but also revitalises its historical context, turning a once static structure into a dynamic hub for creativity and community engagement. The design incorporates sustainable materials and modern aesthetic elements that contrast with and highlight the industrial features of the original pumphouse, creating a dialogue between the old and the new.

Feeling is the portal to strength.
― A.D. Posey

2021 / ACADEMIC YEAR

INTERIOR ARCHITECTURE STUDIO / COURSE

RESIDENTIAL / CATEGORY

MICRO-DWELLING RESIDENTIAL PROJECT IN KINGSFORD

PALIMPSEST

Set in a heritage-listed Arts and Crafts building in the vibrant community of Kingsford, Sydney, and on the traditional lands of the Bidjigal People, Palimpsest serves an elderly Japanese artist couple transitioning from New York to Sydney.

The concept of Palimpsest encapsulates my approach: layering spaces, forms, and materials to reflect the rich tapestry of past and present uses, cultures, and architectural styles.

The design addresses the challenge of a limited 25 sqm footprint through dynamic spatial solutions. A ceiling-mounted bed and a rotatable underfloor storage system allow the space to fluidly transform between a bedroom, living room, and studio.

Inspired by the Arts and Crafts floral motifs of the site, the urban intervention flows from the ground, ascends to intertwine with the building, and culminates in a spiralling form that reaches towards the sky. This dynamic structure symbolises the enduring spirit of the First Nations people and introduces an organic continuity to the urban landscape. The intervention extends beyond mere functionality to become a sculptural element that invites community engagement.

2025 / YEAR

DOCUMENTATION / TYPOLOGY

RESIDENTIAL / CATEGORY

FAÇADE DESIGN OF A RESIDENTIAL PROJECT

EAST FACING FAÇADE

This elevation drawing forms part of a comprehensive technical documentation set developed for the ARCH1331 course, focusing on detailed façade construction at 1:10 scale. The project explores a two-storey brick veneer terrace house, with a strong emphasis on modular construction, thermal performance, and architectural expression. The east-facing façade integrates operable and fixed glazed systems framed by rhythmic timber battens, layered over a recessed brick base. Key construction elements include a continuous timber batten sunscreen, aluminium-framed sliding doors, and thermally treated pine flooring, all articulated through precise assembly detailing. The façade composition responds to both climatic orientation and internal programmatic needs, creating filtered transparency for the upper living zone and a more solid, secure articulation at ground level. This drawing also demonstrates integration of cladding, water drainage, vapour control, and insulation strategies each aligned with a coherent construction logic and a focus on buildability.

/ YEAR

INTERIOR DESIGN / TYPOLOGY

RESIDENTIAL / CATEGORY

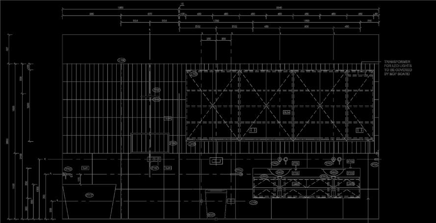
INTERIOR DESIGN PROJECT FOR A DUPLEX RESIDENTIAL IN NORTH RYDE

WILTON & LANCE RESIDENCE

This interior design project, commissioned by a client for their duplex houses in North Ryde, serves as a testament to my ability to communicate complex design ideas and intricate construction details effectively.

The project includes a comprehensive set of drawings, ranging from 1:100 scale floor plans that provide a broad overview of the spatial design, detailed 1:20 scale joinery designs that highlight custom joinery with built-in elements, to the 1:2 scale drawings detailing intricate construction details, underscoring the precision required for successful implementation. These drawings not only illustrate my proficiency in drafting but also but also reflect my ongoing pursuit of professionalism and excellence in design practice. Each component of the project is meticulously crafted to ensure the alignment with the client's preferences and the architectural character of the duplex project.

Turn static files into dynamic content formats.

Create a flipbook
Issuu converts static files into: digital portfolios, online yearbooks, online catalogs, digital photo albums and more. Sign up and create your flipbook.