PORTAFOLIO FRANCO CAMPOMANES

Page 1

FRANCO CAMPOMANES AVELLANEDA

UBICACION: LIMA, PERU

CONTACTO: 955762135

EXPERIENCIALABORAL

INTERESES:

ARCHVIZ-METODOLOGIA BIM-DISEÑO DEVIVIENDA

-RCG CONSTRUCCIONES Y ACABADOS(2021-22)

DISEÑO DE CABIDAS ARQUITECTONICAS

ELABORACION DE EXPEDIENTES TECNICOS

SUPERVISION DE OBRA GRIS Y ACABADOS

METRADOS Y PRESUPUESTOS

-ARKIHERMES(2021)

DESARROLLO DE PLANOS DE SEGURIDAD

EXPEDIENTE TECNICO DE SEGURIDAD

-QUADRO(2019)

MODELADO 3D

DESARROLLO DE PLANIMETRIAS

EXTRAS

FORMACION

-UNIVERSIDAD RICARDO PALMA

ARQUITECTO Y URBANISTA(BACHILLER)

-COLEGIO DE ARQUITECTOS DEL PERU

CURSO VIRTUAL EXPEDIENTE TECNICO

HABILITACIONES URBANAS

-MACROTEC CENTER

REVIT AVANZADO

-NETZUM

PHOTOSHOP INDESIGN

ILLUSTRATOR

-DOMESTIKA

SKETCH UP -VRAY 3D MAX

-EPIC GAMES

TWINMOTION

-VOLUNTARIADO VERANEARQ UNI- PREVENCION DE RIESGOS DE DESASTRES MVCS COMAS

-VOLUNTARIADO QUINTAS DE RIMAC- MVCS RIMAC

-MIENBRO CDF ETERNIT- CAPCITACIONES COMPLETAS

-MIEMBRO CES SODIMAC- CAPACITACIONES COMPLETAS

-CENTRO DE IDIOMAS URP- INGLES INTERMEDIO

INDICE

PROYECTOS PROFESIONALES:

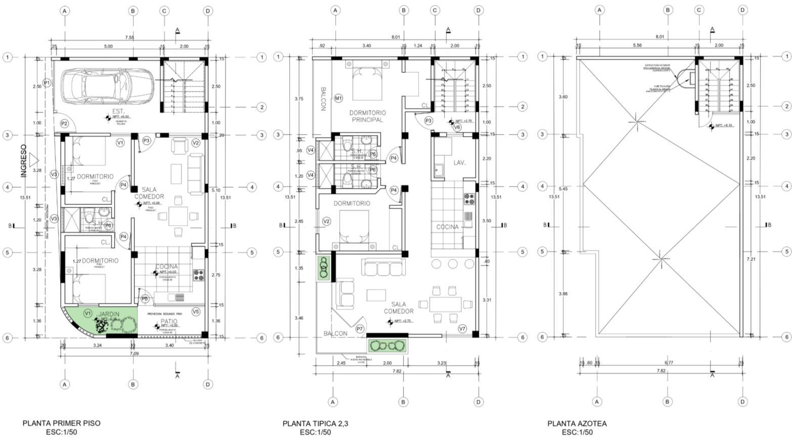
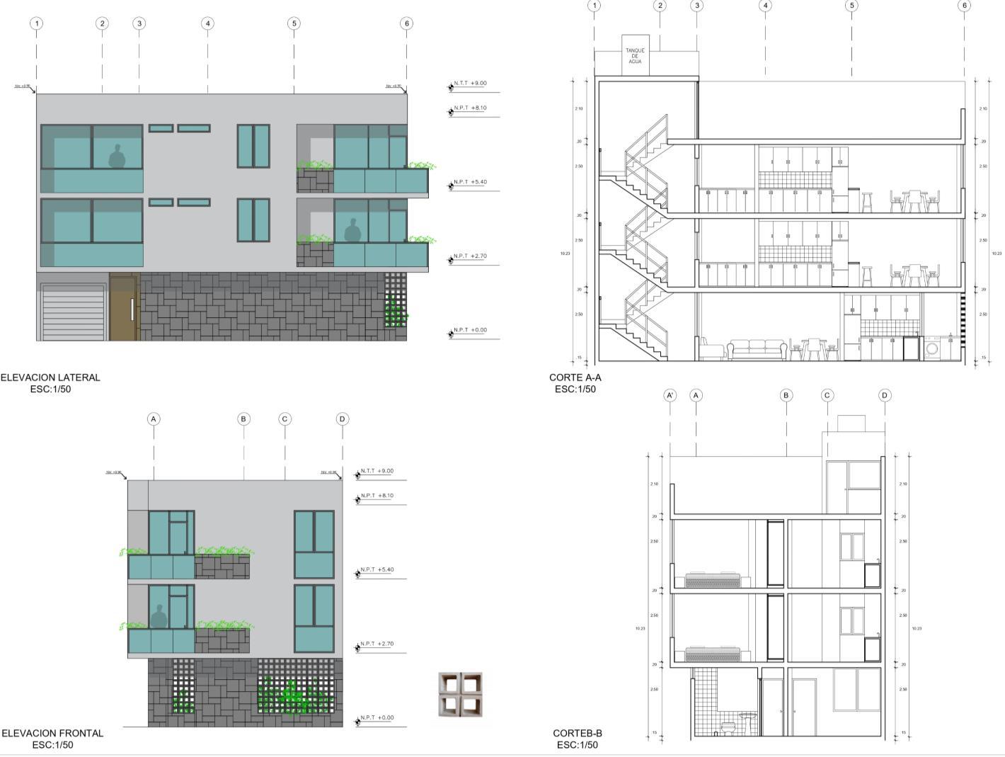
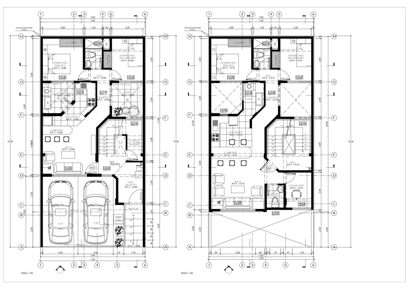
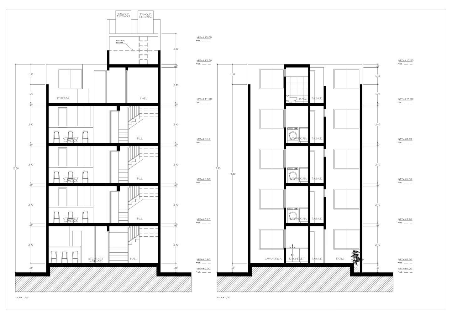
• MULTIFAMILIAR SAN MIGUEL

• MULTIFAMILIAR CARABAYLLO

• MULTIFAMILIAR SURCO

• DEPARTAMENTO SALAMANCA

PROYECTOS ACADEMICOS:

• CENTRO CULTURAL UNAM (LIMA,PERU)

• RENDERS CURSO DOMESTIKA (CERTIFICADO)

2021. Centro Cultural Universidad Agraria

Lima, Peru

PROYECTO: CENTRO CULTURAL

UNIVERSIDAD ARAGRA LA MOLINA

UBICACION: CERCADO DE LIMA

AUTOR: FRANCO CAMPOMANES

AREA CONSTRUIDA: 7150m2

El proyecto de taller de tesis nivel x, se desarrolla en el distrito de Cercado de Lima en la zona limite del centro historico de Lima y el distrito de Breña, el contexto urbano inmediato es la plaza dos de Mayo y sus ocho edificios que son patrimonio monumental de la ciudad de Lima, el estado actual de la zona es que los monumentos han sido restaurados pero esto no cambia la falta de “seguridad” y disnamismo en la manzana de intervencion.

El lote en donde se emplaza el proyecto es de propiedad de la Universidad Agraria La Molina colinda con un pasaje que conecta a la Plaza Dos de Mayo lo cual brinda un eje principal para el proyecto. A traves de la exploracion volumetrica(1)(2) se buscaba un espacio central a modo de patio algo muy particualr de la arquitectura monumental del crento historico, puesto que el concepto es que el futuo edificio sea parte del espacio publico y se entienda como una extension de este. Pues el concepto de uso publico en la manzana es el de una area verde que divide a las personas.

(1) (2)

La manzana cuenta con un equipamiento deportivo de escala local , por lo cual se propone un edificio de uso cultural como conector al eje cultural que se desarrolla en el distrito. El edificio cuenta de tres pisos y un sotano, espacialmente son cuatro bloques definidos y subdivididos a su vez en dos separados espacialmente por un espacio central dinamico que erige como patio central de iluminacion y area ludica de libre uso para los usuarios del centro cultural y visitantes. A escala urbana se proyecta una cobertura de estructura semitechada que une los dos bloques y controla el clima en la calle interna y las actividades.

Turn static files into dynamic content formats.

Create a flipbook
Issuu converts static files into: digital portfolios, online yearbooks, online catalogs, digital photo albums and more. Sign up and create your flipbook.