FRANCK KABILA PORTFOLIO 2025

Page 1


PortFolio.
Franck Kabila Lobe
Architectural Technologist

My passion for architecture is driven by my strong desire to contribute to the welfare of our communities and Africa as a whole through designs that are significant and add values to the built environments. My interest in materiality as the influential factor in how we perceive architecture has been an eye opener in my design thinking and process.

01

Bloemhof Estate

Work Project: Block of flats with different unit design layout.

02

House Young Jeff

Work Project: Renovation of a residential building.

03

Three Houses On One Plot

Internship Project: Residential project - An exploration of maximal use of space on 1 plot.

04

Partial Design - Facade Studies

Academic Project: Facade study and technical development of a facade design of an existing building.

05

Dunoon Research Facility

Academic Project: Concept design of the potential future Dunoon research facility.

06

Photographs - Walk With Me

Personal Project: An exploration and appreciation of the beauty of the architecture of the city.

01 Bloemhof Estate

Project Location: Ottary - Cape Town

Located in the southern suburb of Cape Town, specifically in Ottery, Bloemhof Estate is a modern development designed to accommodate 54 apartments with a variety of spacious layouts. The three-story building features ground-floor parking bays for both vehicles and bicycles, ensuring convenience for residents. This new project aims to provide affordable rental units while promoting a sustainable and vibrant living environment in the heart of the southern suburbs.

This new development will be part of the Turf Hall Estate, unlocking the full potential of Bloemhof Avenue and its neighboring sites. Bloemhof Estate will join other apartment blocks in the area, enhancing the neighborhood’s connectivity and proximity to employment opportunities and essential public infrastructure.

All ground-floor units are designed with private backyards, proportionate to the size of each unit.

House Young Jeff 02

Project Location: Hout Bay - Cape Town

This project involves the renovation of a three-story residential building located in the prestigious Ruyteplaats Mountain Estates in Hout Bay. Major upgrades include relocating the pool, creating additional rooms, replacing all flooring throughout the building, upgrading timber windows to modern aluminum frames, and adding new fireplaces and a braai area on the extended deck. Minor updates involve replacing outdated accessories with modern fixtures. Guided by the client’s brief, the renovation aims to rejuvenate the home’s contemporary aesthetic while maximizing its breathtaking views of the Atlantic Ocean and surrounding green spaces.

Photos taken during construction
Credit: Author & Raaziq Nordien
Photos taken prior construction
Credit: Deen Karim & Taariq Nordien

PERGOLA (NEW)

50MMX152MM BALAU

TIMBER POST.

50X152MM BALAU

TIMBER PURLIN

SPACED @ 240MM C/C

FIXED TO 50X152MM BALAU RAFTER WITH TOENAILS AS PER SPECIALIST SPECIFICATION.

50x152MM BALAU TIMBER PURLIN

SPACED AT 240MM C/C FIXED WITH TOENAIL CONNECTION TO 50x152 BALAU TIMBER RAFTER. NAILS SIZE TO MANUFACTURER'S SPEC

STANDARD HANGER BRACKET 50MM FIXED TO RC SLAB AS PER MANUFACTURER SPEC. 50x152MM BALAU TIMBER RAFTER FIXED TO STANDARD HANGER BRACKET 50MM AS PER MANUFACTURER'S SPEC

50x152MM BALAU TIMBER PURLIN SPACED AT 240MM C/C FIXED WITH TOENAIL CONNECTION TO 50x152 BALAU TIMBER RAFTER. NAILS SIZE TO MANUFACTURER'S SPEC

STANDARD HANGER BRACKET 50MM FIXED TO RC SLAB AS PER MANUFACTURER SPEC. 50x152MM BALAU TIMBER RAFTER FIXED TO STANDARD HANGER BRACKET 50MM AS PER MANUFACTURER'S SPEC

50x152MM BALAU TIMBER PURLIN SPACED AT 240MM C/C FIXED WITH TOENAIL CONNECTION TO 50x152MM BALAU TIMBER RAFTER. NAILS SIZE TO MANUFACTURER'S SPECIFICATION

50x152MM BALAU TIMBER PURLIN SPACED AT 240MM C/C FIXED WITH TOENAIL CONNECTION TO 50x152 BALAU TIMBER RAFTER. NAILS SIZE TO MANUFACTURER'S SPECIFICATION

BOLTS SIZE TO MANUFACTURER'S SPECIFICATION

50x228MM BALAU DOUBLE TIMBER POSTS CAREFULLY PRE -DRILLED AND 50x152MM BALAU TIMBER RAFTER PRE-DRILLED PLACED BETWEEN 50x228MM DOUBLE TIMBER POSTS, ALL BOLTED TOGETHER AS PER MANUFACTURER'S SPECIFICATION.

50x152MM BALAU TIMBER SPACER CAREFULLY PRE-DRILLED AND BOLTED AS PER MANUFACTURER'S SPECIFICATION. STACK BETWEEN 50x228MM BALAU TIMBER DOUBLE POST.

50x152MM BALAU TIMBER PURLIN SPACED AT 240MM C/C FIXED WITH TOENAIL CONNECTION TO 50x152 BALAU TIMBER RAFTER. NAILS SIZE TO MANUFACTURER'S SPECIFICATION

BRICK PAVER TO FALL NEW BRICKWORK EDGE WALL

U-SUPPORT SHOE HOT GALVANISE TO MANUFACTURER SPECIFICATION AND RECOMMENDATION. BOLTS ANCHORED TO CONCRETE FOOTING AS PER ENGINEER'S SPECIFICATION

50x152MM BALAU DOUBLE TIMBER POSTS CAREFULLY PRE-DRILLED AND CONNECTED WITH BOLTS AS PER MANUFACTURER'S SPECIFICATION.

U-SUPPORT SHOE HOT GALVANISE TO MANUFACTURER SPECIFICATION AND RECOMMENDATION. BOLTS ANCHORED TO CONCRETE FOOTING AS PER ENGINEER'S SPECIFICATION

CONCRETE FOOTING CONDITION TO ENGINEER'S SPECIFICATION

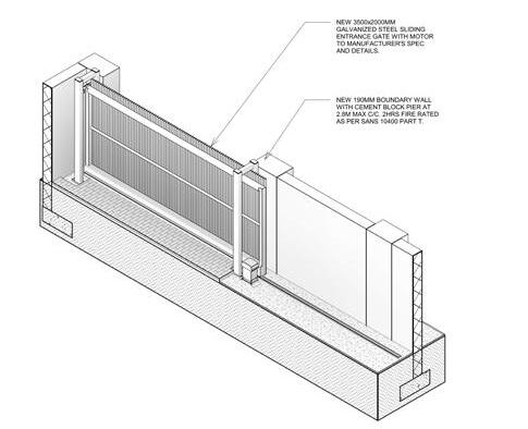
Three Houses On One Plot 03

Project Location: Kuilsriver, Cape Town

Situated in Kuilsriver, ERF 641 has a single frontage street access. This project aims to accommodate three houses on a single plot, addressing the demand for affordable housing through a communal lifestyle approach. A thorough assessment of the client’s brief, along with an analysis of climatic factors and zoning regulations, was essential to determine a feasible design and construction strategy. The goal is to balance modern aesthetics with affordability while acknowledging the uniqueness of each design. The project focuses on creating cost-effective housing solutions that cater to three distinct family types: House 1: A three-bedroom home for a young family with two children. House 2: A two-bedroom home for a single mother and her son. House 3: A one-bedroom home for a single professional man. Additionally, provisions for parking are integrated into the design to accommodate residents’ vehicles.

Sketch Not to scale
Site picture Credit: By author
Sketch Not to scale
Site picture Credit: By author
3D Parking area
3D FRONTYARD
3D Kitchen/Dining house 03
3D Overview of proposed design
3D Kitchen/Dining house 01

04 Partial Design - Facade Studies

Project Location: Cape Town

Situated in Waterkant Street, Cape Town. The building comprises of 3 floors with a penthouse on the rooftop, the main functions of the building are commercial which occupies the ground floor and residential on the upper floors. The aim of this project is to redesign the facade of an existing building with consideration to the climatic context as well as the surrounding context of the site. The partial facade design include in the front and back facade of the building.

9 am Summer solstice on North-East

The summer sunlight penetration in the building is filtered by the vertical louvers on the facade.

9 am Winter solstice on North-East

The winter sunlight penetration in the building is unfiltered due to its low angle

2D Detail 01: Penthouse wall detail Not to scale
2D Detail 02: Rooftop detail Not to scale
3D Detail 02: Rooftop detail Not to scale
3D Detail : Stick system curtain with louvers screening system Not to scale

2D Detail 03: Middle floor detail Not to scale

aluminum flat bar

Aluminum flashing fixed to 45x455mm sloped continuous block

20x50x1000mm stainless steel balustrade with 120x120mm base-plate bolted to the side of parapet wall

280x500mm Rc up-stand beam

25x134mm fiberon composite decking

3D Detail 03: Middle floor detail Not to scale

50x50mm treated timber battens with brass screws raised on pedestals

screed at 1.60 fall with waterproofing membrane

coated spandrel glass

Pine flat lapboard

50x50mm SA pine battens spaced at 600mm max

12x2440x1200mm Pine exterior ply with 0.5mm breather membrane layer on the outer skin

SA pine stud spaced at 400mm max

SA pine batten

Toughened double glazing

aluminum spandrel 1015x1520mm powder coated aluminum openable window

2D Detail 05: Penthouse wall detail Not to scale 3D Detail 05: Penthouse wall detail Not to scale

Grade 5 SA pine lintel 1100x1380mm Powder coated aluminum window with clear safety glass

SA pine batten

Stick system curtain wall with uncontinuous vertical aluminum louver screening,

The screening system on the North-East facade is designed to block the direct North-East summer sunlight while allowing natural light to penetrate in the building. While obscurring the direct summer sunlight, the vertical louvers maintain a visual connection with the external environment.

3D Axonometric drawing

Dunoon Research Facility 05

Project Location: Diep River,Cape Town

Dunoon reseach centre is located on the North-Western section of the Potsdam urban sustainable campus site, on the banks of Diep River, between Table View and Dunoon. This design proposal aim to enhance the integration of urban agriculture in the urban fabric with the intension of diminishing the autonomy on distant food sources. The building facades are composed of a contrast between exposed brickwork and plastered walls with appropriate shading devices on the North and West facade that shield the glazing from the sun. The Dunoon research building is structurally composed of reinforced concrete slabs, concrete columns, brickwork walls, glazing and corrugated roof sheeting creating a different design approach from massive concrete roof design. The building comprises of 4 floors with programmes. The basements comprises of 40 parking bays, a refuse bin room, a mechanical plant room, and a receiving and loading bay. The ground floor is comprises a food processing hall, a digital research centre, 2 collaborative workshops and ablutions. The first floor comprises of a cafeteria, 6 shared laboratories with storage, 4 meeting rooms and ablutions. And the second floor comprises of 10 single and double offices, a research library, ablutions, and a break-away space. The double and triple volume spaces maintain a perceptual contuinity in the building.

Subtracting and adding mass to the upper block to create a difference in shape from the bottom block.

Dividing the main block into two blocks allowing the lower section to act as a plinth to the upper section.

Main block representing the initial shape of the building before subtraction and adding of mass.

race track
3D Visual - Entrance Lobby
3D Visual - Main entrance
North elevation Not to scale
South elevation Not to scale
Longitudinal section Not to scale
West elevation Not to scale
Cross section Not to scale

Photographs - Walk With Me

Personal Project

As a passionate of art and architecture, I embarked on an exploration of the city, capturing the exquisite beauty of its architectural marvels through the lens of my phone. These photographs serve as a heartfelt appreciation of the city’s architectural wonders, each frame a testament to the enduring power of human creativity and ingenuity in shaping our built environment. Through my smartphone, I aimed to capture the city’s architectural splendors, highlighting their elegance and grandeur.

Turn static files into dynamic content formats.

Create a flipbook
Issuu converts static files into: digital portfolios, online yearbooks, online catalogs, digital photo albums and more. Sign up and create your flipbook.