FACULTAD DE ARQUITECTURA, URBANISMO Y ARTE

TALLER DE INGENIERIA DEL PROYECTO -

CENTRO INTEGRAL DEL ADULTO MAYOR ORIENTADO A LA
ARQUITECTURA BIOFÍLICA PARA EL ENVEJECIMIENTO SALUDABLE EN
TAMBOGRANDE, PIURA 2024

DOCENTES:
Ph.D. Arq. Carlos Eduardo Zulueta Cueva
Arq.Ruiz Lachira Maria Gabriela
INTEGRANTES:
Est. Arq. Castro Odar Francesca
Est. Arq. Vasquez Jaime Ashly
N R C 1 2 5 5 1
PLANODE UBICACIÓN
PLANO
TOPOGRAFICO
PLANODE
PLATAFORMADO
PLANTAGENERAL
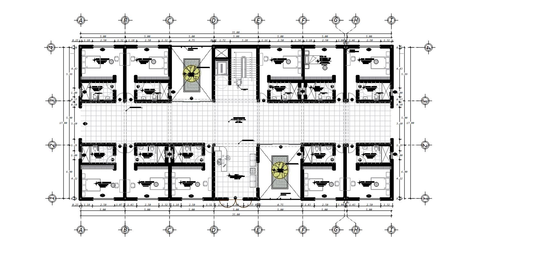
PLANOS
ESTRUCTURALES
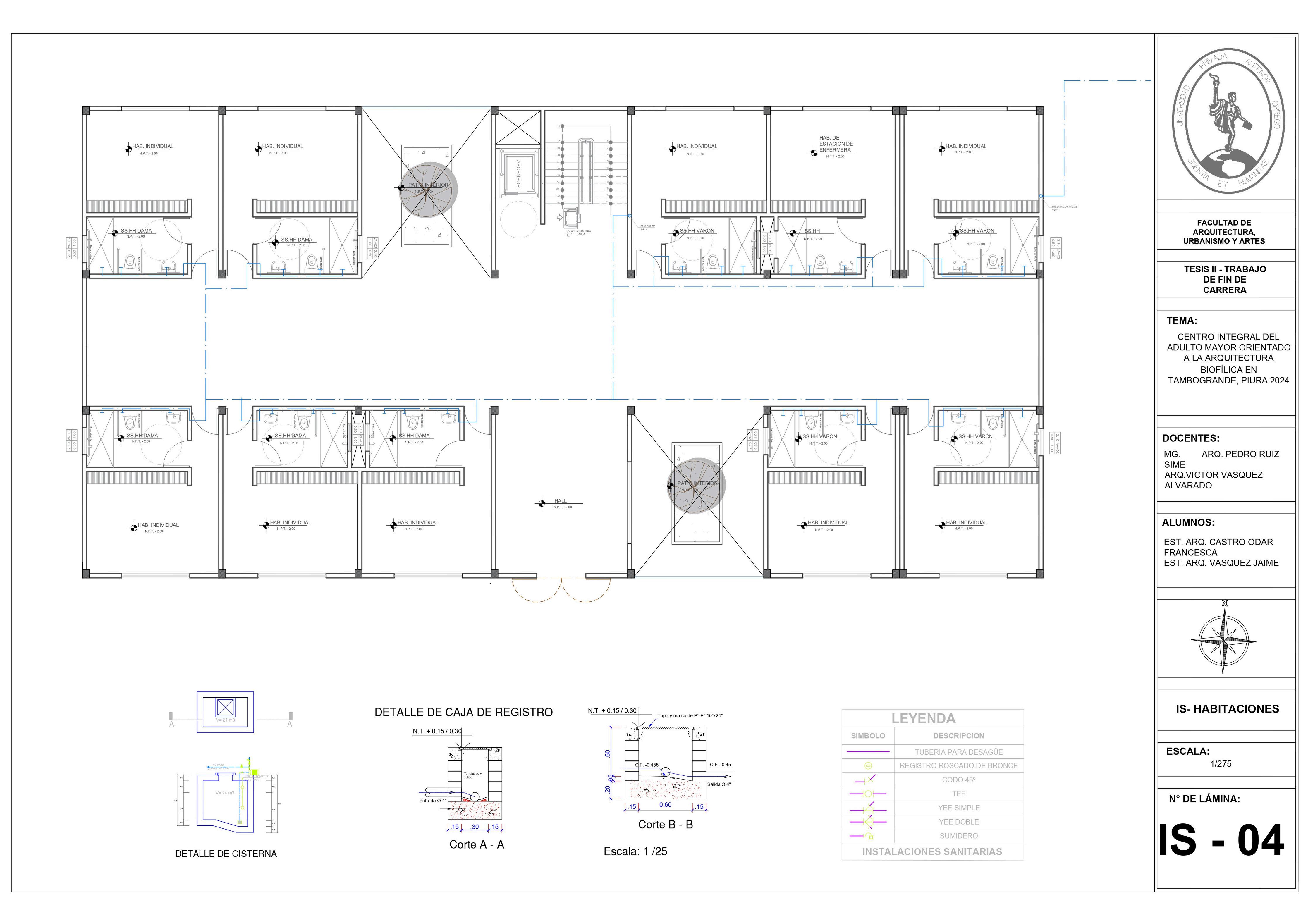
PLANOSDE
INSTALACIONES
SANITARIAS
INSTALACIONES
ELECTRICAS

P L A N O D E U B I C A C I Ó N
























