FRANCCESCA
LUNA Portfolio
Architecture 2019 - 2025
ÍNDICE
Contenido

TIV - Arquitectura y Funcionalidad
TIV - Taller de Integración


TIV - Arquitectura y Ciudad
ModeladoCasa VRV40

![]()
Architecture 2019 - 2025
Contenido

TIV - Arquitectura y Funcionalidad
TIV - Taller de Integración


TIV - Arquitectura y Ciudad
ModeladoCasa VRV40

ARQUITECTURA & DISEÑO 20172022

PORTAFOLIO
Click aquí para visualizar mi portafolio de arquitectura.
CONTACTO





IDIOMAS
Universidad Peruana de Ciencias Aplicadas (UPC) - Perú
Bachiller en Arquitectura
Oklahoma State University - EE.UU
Intercambio Académico
Completé el curso enfocado en el diseño paisajista a cargo de la facultad de Arquitectura Paisajista de la Universidad Estatal de Oklahoma.
LABORAL / LOGROS
Arquitecta Proyectista
Desarrollo de planimetría y diseño para proyectos, anteproyectos y detalles constructivos de viviendas multifamiliares, oficinas y centros educativos, asegurando la precisión técnica, funcionalidad y eficiencia en la ejecución.
fmlunar@gmail.com
+51 984181134
Santiago de Surco, Perú franccescaluna_arq franccescaluna
Inglés (Avanzado)
Español (Nativo)
HABILIDADES DIGITALES
Autocad (Avanzado)
MS Office (Avanzado)
Sketchup + Vray (Avanzado)
Edge (IFC) (Intermedio)
Revit + BIM (Avanzado)
Rhinoceros (Intermedio)
Adobe Photoshop (Avanzado)
Ilustrator (Intermedio)
InDesign (Avanzado)
Lumion (Avanzado)
HABILIDADES PERSONALES
Comunicación Adaptabilidad
Atención al detalle Planificación Trabajo en equipo Orientación al cliente
2021A la fecha Marzo
SPDA - Elaboración de detalles, planimetría y diseño en la remodelación de fachada e interiores de las oficinas de la “Sociedad Peruana de Derecho Ambiental” (SPDA).
UNFPA - Asistencia en la supervisión de obra para la remodelación interior de las oficinas del “Fondo de Población de las Naciones Unidas”, garantizando el cumplimiento de los estándares de diseño y ejecución dentro de los plazos establecidos.
Escuela “Tikapata” - Diseño bioclimático de la Escuela Tikapata ubicada en el Valle Sagrado del Cusco, aplicando estrategias sostenibles para mejorar la eficiencia energética y el confort térmico.
CURSOS Y TALLERES
EDGE Experts training (8 hrs) Julio 2024
EDGE V3 Technical Online Workshop
Bim Pro
Grid Studio (40 hrs, 6h/semana)
Rhinoceros + Grasshopper
Trazzo Studio (18 hrs, 3h/semana)
Lectura de Planos de II.SS
Sencico (24 hrs)
Bim User
Grid Studio (36 hrs, 4h/semana)
SketchUp + Vray / Lumion / Photoshop
Trazzo Studio (18 hrs, 6h/semana)
Click aquí para visualizar constancias y certificaciones.
El proyecto tiene origen en el Taller de Arquitectura y Entorno, de la facultad de Arquitectura de la Universidad Peruana de Ciencias Aplicadas (*). Se intervino el terreno en donde se encuentra el actual Museo de Arte Contemporáneo, ubicado en el distrito de Barranco, en el departamento de Lima. El diseño busca el balance entre la funcionalidad y el atractivo, a través de una arquitectura minimalista.
(*) Taller a cargo de los Arqs. Juan Carlos DobladoyJoseLuisBalarezo



Los edificios que se encuentran cerca al proyecto son en sumayoría viviendas, o edificios de oficinas de gran altura. Uno de los edificios más importantes que se encuentra cercano al proyecto es la UTEC.

El concepto principal del proyecto es generar una conposicióm volumétrica atractiva y funcional. El volumen del proyecto, está compuesto por formas puras, e intersecciones de planos, los cuales se pueden aprecia en la fachada.

Edificio existente “MAC”
Zona de la propuesta
Entorno Inmediato
Planos
Volúmenes


DEP.
SALA DE EXPOSICIONES TEMPORALES
NPT -1.50
NPT +/- 0.00

Se busca diferenciar los espacios servidos y los espacios de servicio. Ambos están conectados pero presentan ingresos y circulaciones independientes.
SALA DE ARTE DIGITAL
NPT+1.50
SALA DE EXPOSICIONES PERMANENTES
NPT +3.00
NIVEL +3.00
NIVEL + 6.00
NIVEL + 3.00
NIVEL +/- 0.00

NIVEL + 6.00
NIVEL + 3.00
NIVEL +/- 0.00
CORTE A - A
El recorrido interior presenta una gran rampa, la cual conduce a los distintos niveles y permite crear conexiones visuales con los espacios interiores.
NIVEL + 6.00
NIVEL + 1.50
NIVEL - 1.50
CORTE B - B
NIVEL + 6.00
NIVEL + 3.00
NIVEL +/- 0.00
El proyecto tiene origen en el Taller de Integración, de la facultad de Arquitectura de la Universidad Peruana de Ciencias Aplicadas (*). Se intervino el terreno ubicado en el cruce de Jr. Amazonas con Jr. Huánuco, en el departamento de Lima. Busca conectar la comunidad Shipiba y el Río Rímac con la ciudad de Barrios Altos, dando a conocer su cultura y costumbres amazónicas.
(*)TalleracargodelosArqs.HectorChiangy EnriqueLlatas.



Reubicar viviendas para generar más visuales con el parque.

Colocar actividades en ambos extremos del terreno para generar tensión.

Insertar programa según nexos con el entorno.

Analizar flujos según usuario y como su recorrido moldea la forma.

Generar espacio público mediante cóncavos y convexos que permitan la menor cantidad de puntos ciegos.


NIVEL +3.00



-7.00
CORTE A-A
E. DETALLES

Malla metálica / espacio para lmpieza de mampara
Placa colaborante
Viga metalica
Celosía de listones de madera de 10x5 cm
Estabilizador metálico
DETALLE 1: Encuentro de celosía de madera con vigas metálicas
Placa colaborante
Manta protectora
Vegetación sustrato (25 cm)
DETALLE 2: Techo Verde
Filtro separador
Capa drenante
Se busca regular el ingreso de luz de los volúmenes que tienen las fachadas orientadas al norte, ya que estos requieren mayor protección al ingreso de luz, para esto se utilizó celosías de madera horizontales.
Uso de cubiertas verdes, permitiendo que la vegetación se crezca sobre el proyecto y que la naturaleza tome protagonismo.



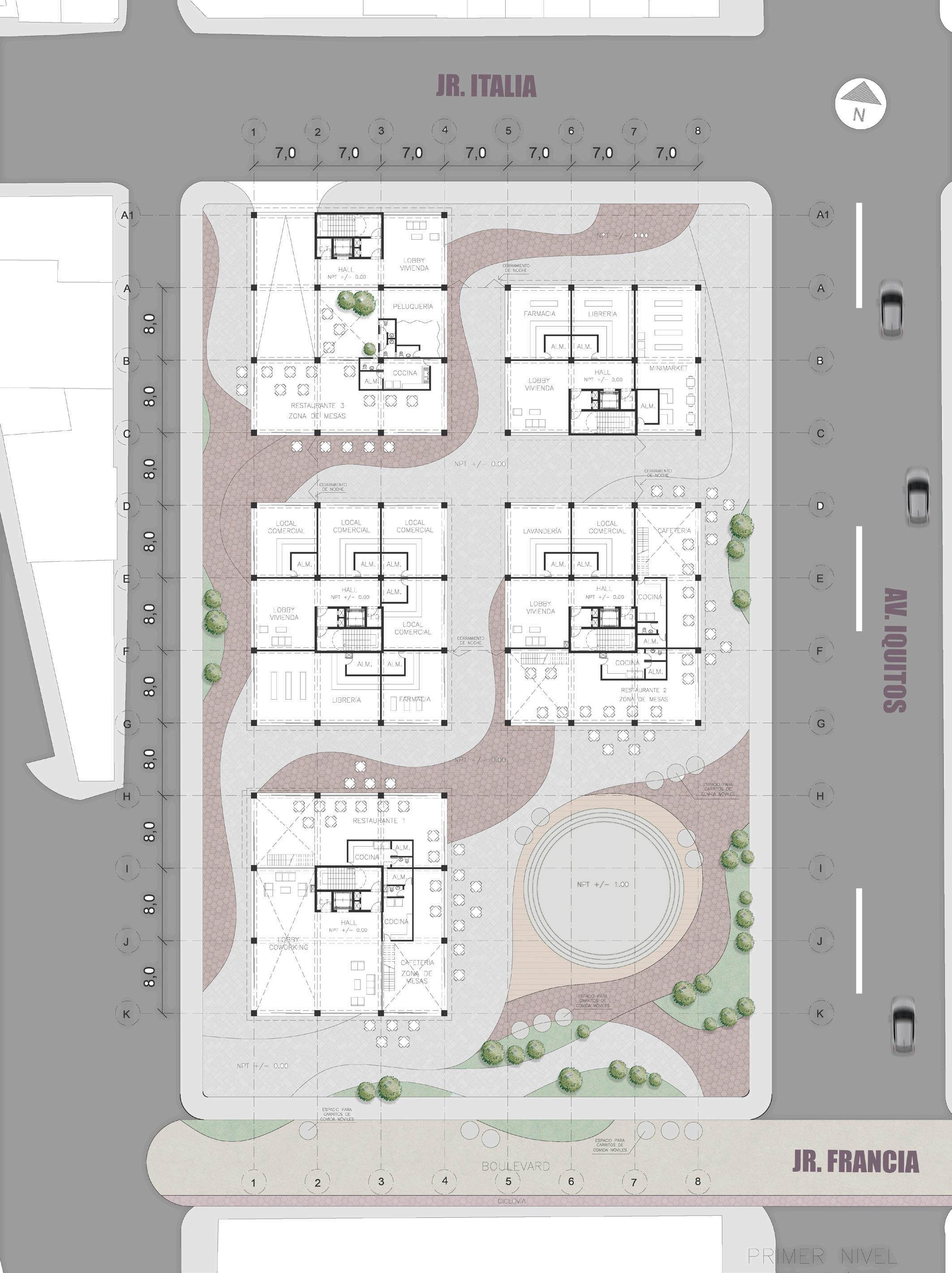
El proyecto tiene origen en el Taller de Arquitectura y Ciudad, de la facultad de Arquitectura de la Universidad Peruana de Ciencias Aplicadas (*). Se realizó una intervención urbana en el distrito de la Victoria. Donde se desarrolló de manera más precisa los proyectos estratégicos que refuercen, de mejor manera, la propuesta macro del distrito. El presente edificio busca reconectar la ciudad a través de la arquitectura, brindando espacios de encuentro y actvididad para los ciudadanos.
(*) Taller a cargo de los Arqs. Sebastian ChamányGonzalodelCastillo



Generar un espacio articulador que reciba el flujo de los paraderos cercanos.

Se ubican los volúmenes orientados al parque propuesto. Sin embargo el cruce del volumen de vivienda permite genear una terraza que conecta visualmente con la Av. Paseo de la República y el parque.

El edificio busca brindar un espacio que sirva de remate al boulevard peatonal propuesto por el sector. Generando un punto de encuentro y actividad.






SÉTIMO NIVEL













Vivienda ubicada en la ciudad de Guadalajara, México. Busca seaparar los espacios privados de la casa, ubicando los espacios de servicio en el sótano. Las circulaciones verticales se resuelven gracias a un gran bloque de concreto aparente y madera, que se eleva desde el sótano, hasta la planta alta.
Diseño: Estudio Erre
Año: 2015
Área: 348 m2
Modelador: Franccesca Luna (*)
(*) Modelado realizado para certificación del curso deSketchUp+Vray+Lumion+Photoshop,acargo delestudioTrazzo.










Correo: fmlunar@gmail.com
Teléfono: 984181134


franccescaluna_ARQ