PROYECTO TALLER V: ALBERGUE PARA JOVENES

Page 1

PROYECTO TALLER V

UNIVERSIDAD NACIONAL DE SAN MARTIN

La arquitectura para mi es una carrera donde puedes crear miles de cosas a partir una idea, relacionarla con otras miles y hacer que se vuelva más rica esa idea por los contextos dedel lugar en el que nos encontremos

La arquitectura para mi es una carrera donde puedes crear miles de cosas a partir una idea, relacionarla con otras miles y hacer que se vuelva más rica esa idea por los contextos dedel lugar en el que nos encontremos

ALBORNOZ SANCHEZ, FRANK JAIRO UNIVERSIDAD: UNIVERSIDAD NACIONAL DE SAN MARTIN CICLO: V CIUDAD: HUANUCO - PERU
REPRESENTACIÓN ARQUITECTÓNICA V
ALBORNOZ SANCHEZ, FRANK JAIRO UNIVERSIDAD: UNIVERSIDAD NACIONAL DE SAN MARTIN CICLO: V CIUDAD: HUANUCO - PERU

IDEA RECTORA

TANGRAM

El concepto se basa en las formas simples que llega a tener este juego tan interesante ques es el tangram, hace referencia a las diferentes facetas que puede llegar a tener un joven, las diferentes formas de afrontar sus problemas, que cada una de estas piezas son unicas asi como cada uno de ellos.

TEMA: ALBERGUE PARA ADOLECENTES

ZONIFICACION

CUADRO DE NECESIDADES

MATRIZ Y DIAGRAMACIÓN

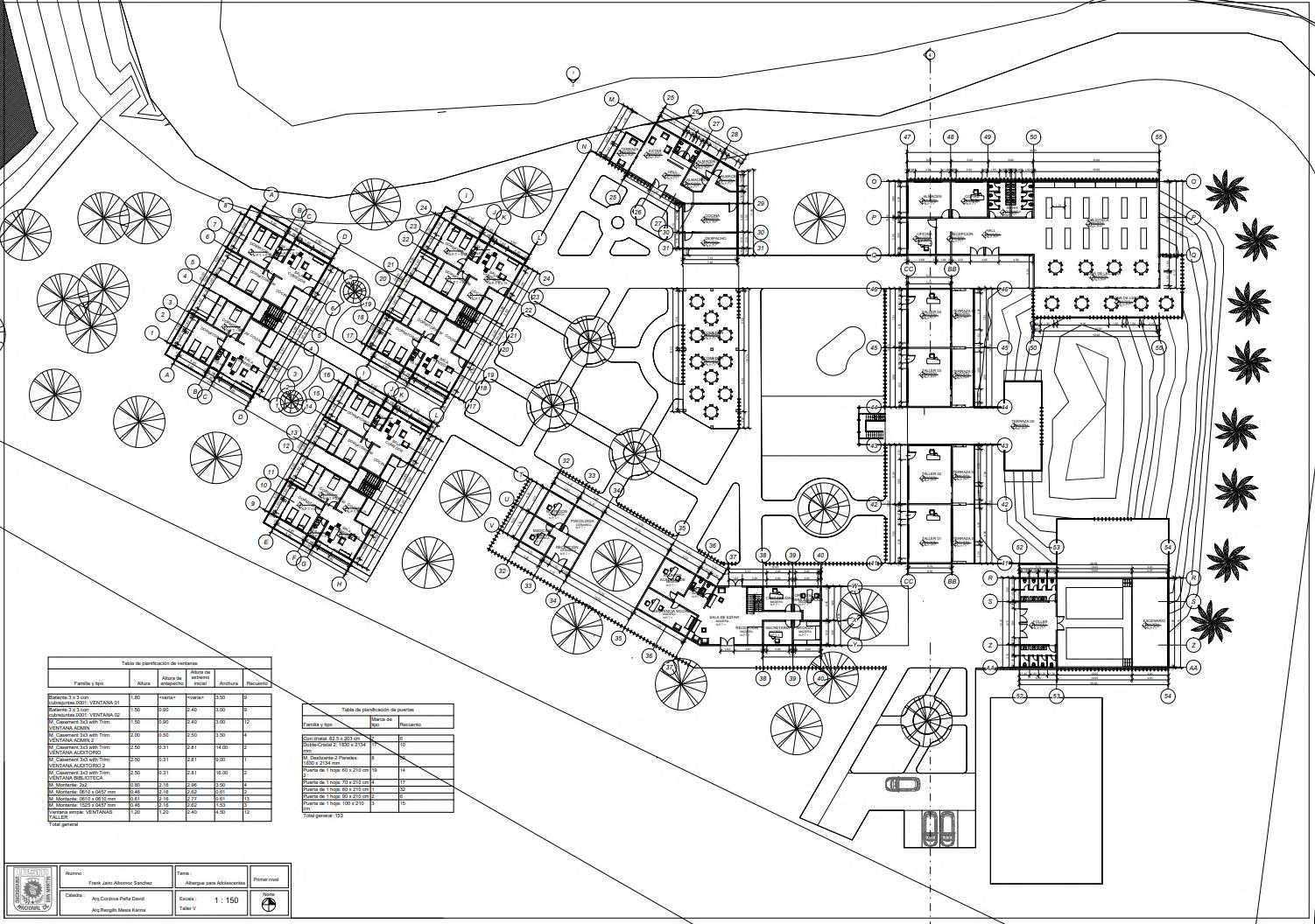
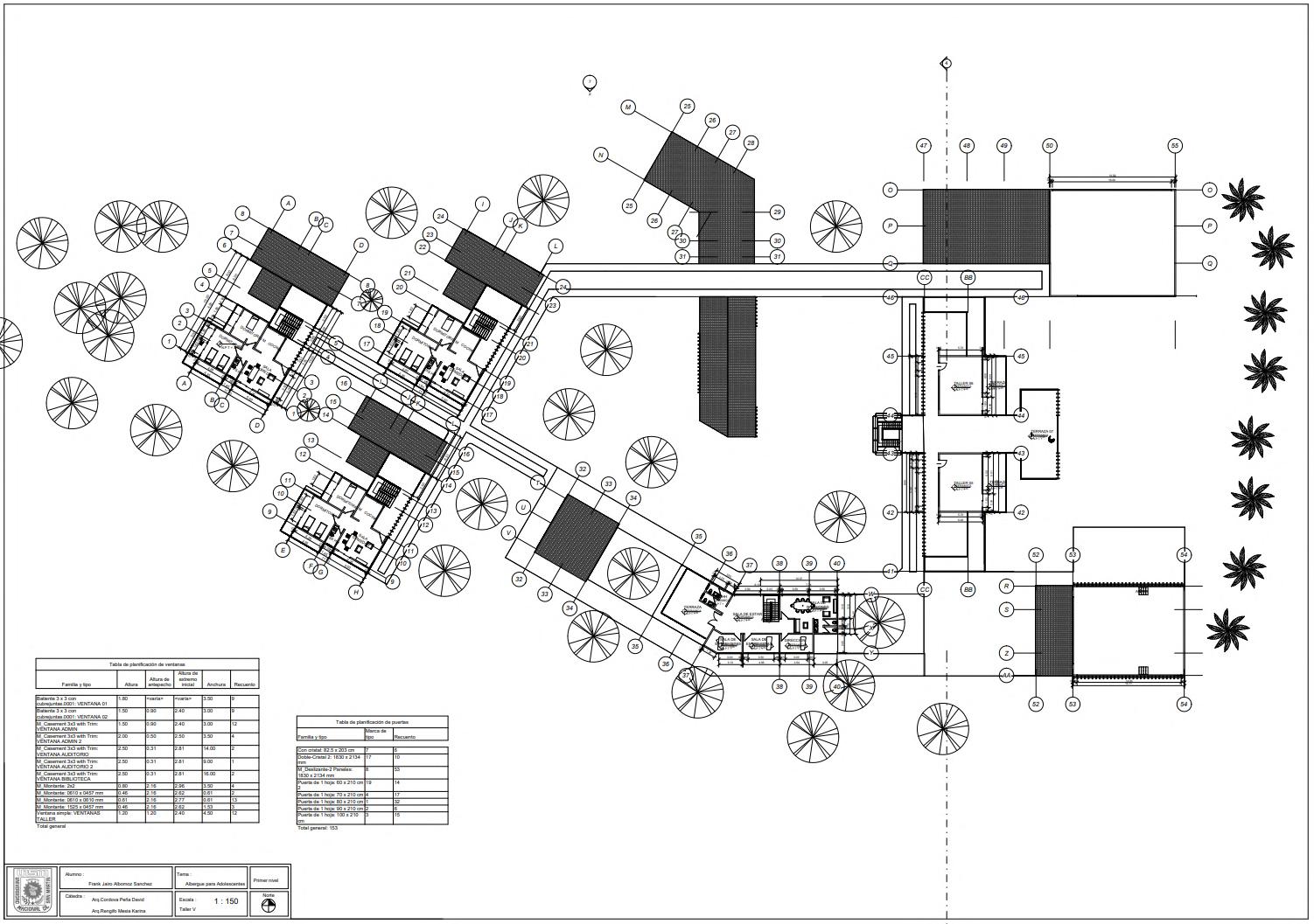
PLANOS DE PLANTA

PRIMERA PLANTA

PLANOS DE PLANTA

SEGUNDA PLANTA

PLANOS LEYENDA A COLORES PRIMERA PLANTA

PLANOS LEYENDA A COLORES

SEGUNDA PLANTA

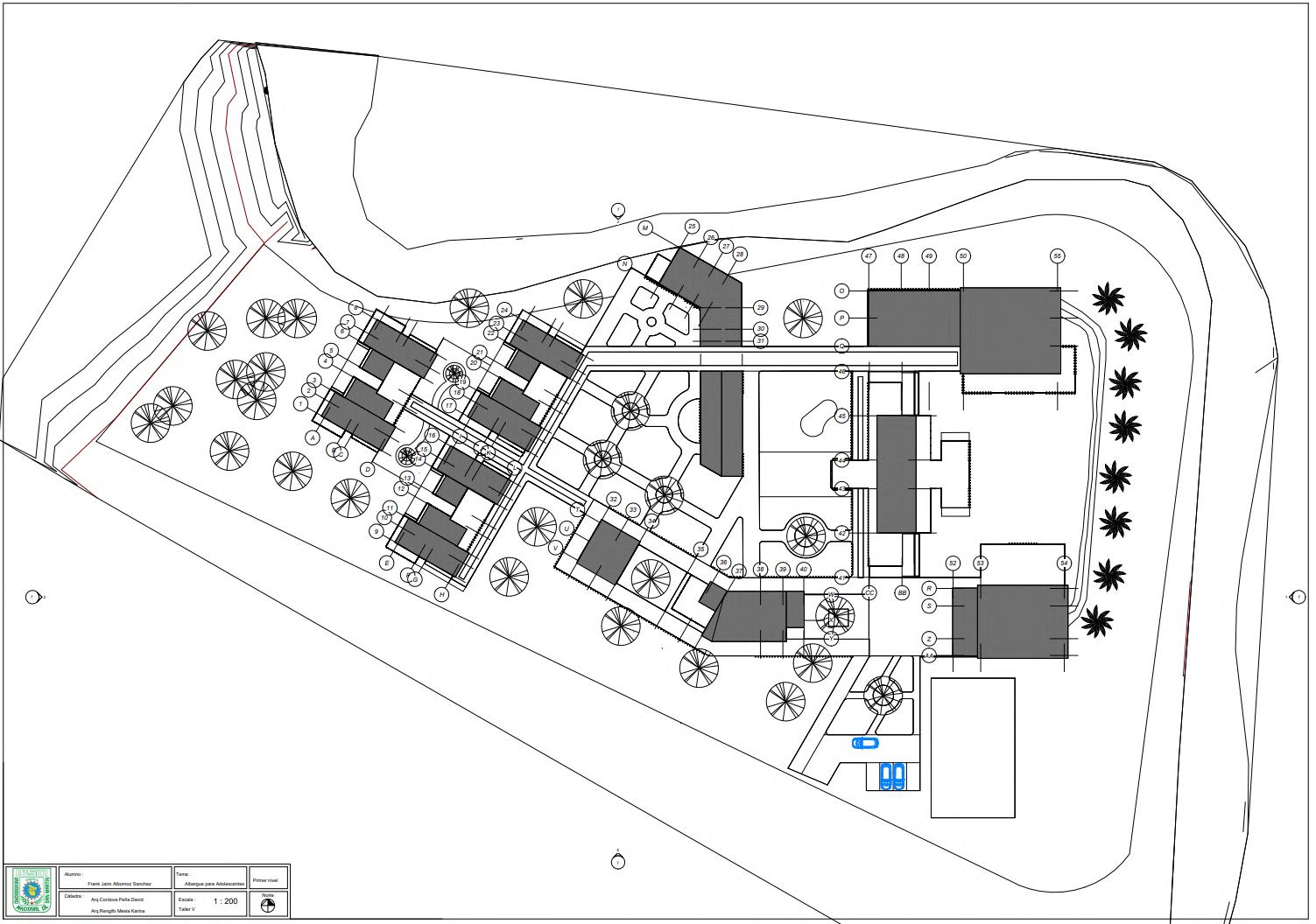
PLANOS DE EMPLAZAMIENTO
CORTES

ELEVACIONES

ISOMETRICOS

ISOMETRICOS

AXOMETRIAS

RENDERS

RENDERS

CONCLUSIONES

Durante todo el desarrollo del proyecto llegamos a ver la necesidades de aquellos jovenes que no cuentan con un hogar, a tal punto que nuestro trabajo era diseñar un proyecto que cumpla con las necesidades y comodidades de los residentes

AGRADECIMIENTO

Agradezco a mis padres por todo el apoyo que me brindan a lo largo de la carrera, a mis docentes que me van formando para ser un gran profesional, por todas las enseñanzas que nos dejan con cada clase.

GRACIAS

Turn static files into dynamic content formats.

Create a flipbook
Issuu converts static files into: digital portfolios, online yearbooks, online catalogs, digital photo albums and more. Sign up and create your flipbook.