Bsc. Architecture Portfolio Part 1 2018-2023

Page 1

PORT FOLIO

BACHELOR OF SCIENCE ARCHITECTURE PART 1

UNIVERSITI MALAYSIA KELANTAN (UMK)

MARCH 2023 AFIQAH
AHMAD

01 13 25 33 48

Integrated Kuching Market | Foodmarket

Kuching, Sarawak

3rd Year | Semester 6

The Retirement ‘Retreat Village’ | PCB Townlet

Kota Bharu, Kelantan

3rd Year | Semester 5

Playschool | C-Play Kindergarten

Bachok, Kelantan

2rd Year | Semester 4garten

Working Drawing

Kota Bharu, Kelantan

2rd Year | Short Semester

Others

Content

EDUCATION

Universiti Malaysia Kelantan, Bachok

Bachelor of Science in Architecture with Honours

2019 - 2023

Politeknik Ungku Omar, Ipoh

Diploma in Architecture

2015 - 2018

SMK Kuala Balah, Jeli

Sijil Pelajaran Malaysia

2010 - 2014

[Archievements & Experiences]

2016 Recolation and Restoration of Kampung Teluk Memali Mosque

2017 Program Murah, Rumah Seri Kenangan Taiping

2017 Program Capacity Intellectual Intensive Course (CIC)

2021 Poster Competition UMRAN (Platinum Award)

2022 Bengkel Inovasi & Kreativiti Kesenian Batik Canting

WORK EXPERIENCE

Industrial Practical, 2018

ATIRA GROUP, Kota Bharu

6 months internship

• Assisted in working drawing of Semi D housing project

• Responsible in 3D modelling and rendering housing project

• Tasked to design brochures for marketing purposes

• Participated in site inspection with site supervisor and site engineer

July 2018 - August 2019

ATIRA GROUP, Kota Bharu

Assistant Architecture

• Assisted in working drawing of Semi D housing and rest area project

• Responsible in 3D modelling and rendering housing project

• Tasked to design brochures for marketing purposes

• Participated in site inspection with site supervisor and site engineer

SKILL

AutoCAD

SketchUp

Lumion

Photoshop

MS Office

Revit

Indesign

Enscape

Kuching is the capital city of Sarawak. It is located at the southwest of the Sarawak with area of 431 square kilometers. Kuching has become the new economic hub for Sarawak and one of the main industrial and commercial centre.

The development around Kuching today as striking its history and the peaceful co-existence of its peoples. Kuching can be describes as romantic and displays its appeal ‘with such an easy grace’. Its historic core is indeed well preserved with a well-planned sectioning of the old and new. It is inviting and a walk at the city centers is a walkthrough the different layers of history, architecture, and everything in between. Kuching’s building are built with respect to the general architectural layout of the area.

The constructivist density of the urban fabric is considered one of the most important elements of the urban design. It’s responsible of the height of the building where the shade and his alternation throughout the day, the shaded area where the convection, natural lighting are low, and protected from wind.

Kuching, Sarawak

3rd Year | Semester 6

1 Integrated Kuching Market | Foodmarket

1

Many markets are referred as a community center which hosting many communal activities such as retail trades, local business, social interactions, tourist spot, arts, and cultural exchange in supporting the livelihood of a city. This is where city folks gathered, socialized, run businesses, generate income, and complete the cycle of economy.

Kuching integrated market is located at Jalan Abell, Kuching, Sarawak. TThe urban area is lively during the day and next to Sarawak river. The foodmarket offers an socialization space both in and out of the facilities and focussing on food espesially source from river.

The vegetable that farm at the rooftop will contributes to cooking activities and seafood foodcourt while the live fish display act as aquarium for water to hydroponic plants.

5
6
7
8
9
View ground floor wet market from entrance
from rooftop foodcourt 10
View
11
12
2
Village | PCB Townlet
5
Retirement
Kota Bharu, Kelantan 3rd Year | Semester

REVILATIZE IN NATURE

Is (n) the act or process of giving new life or fresh vitality or energy to someone or something. The concept idea in mind is to bring back the elderly to nature and give them a new life of freedom after a

Social Interaction

Multifunction activites promoting social interaction

Health and Well-being

Offering different spatial for recreation

15
IDEA DEVELOPMENT

The site is located at Pantai Cahaya Bulan, Kota Bharu, Kelantan. Pantai Cahaya Bulan is one of the famous beaches in the state of Kelantan, Malaysia. It is located about 10km from Kota Bharu. The proposed site is surrounded by nature such as existing trees, sea, and man-made ponds that will keep the area cool and shaded with the highest temperature is 30.9°C and the lowest of 28.9°C. For humidity are in the range of 70.8°C to 93.0°C that area achieves outdoor comfort. The study stated that cold, dry air can promote respiratory infection especially to the elderly as they are vulnerable to cold and dry air (Anderson and Bell, 2009; Hajat et al., 2007).

16

Pantai Cahaya Bulan is one of the famous beaches in the state of Kelantan, Malaysia. It is located 10km from Kota Bharu and was the landing area of the japanese army to attack the british during world war ll. At one time, this beach was called Pantai Cinta Berahi, a name said to have been given by British soldier when he was on this beach during world war time.

A fishing village along the coastline of Pantai Sabak and Pantai Cahaya Bulan was there during the japanese army landed on world war ll. The coasline area was facing the soil erosion from the sea waves had moved the villagers to take initiative by using sand dunes around their house to block the waves as no help form the goverment to solve the problem.

The worst erosion occured when the 2004 storm occured causing strong wind and wave with the high if 2 meter hit the shoreline. The federal goverment provide rubble mounf seawall around the coastline to give protection, however was sunk due to sand mining activiteees in the beach. The goverment located the residents living to the safer areas. The area was abandoned and the pond of rain water channel turn into the water body where rain water can be channeled to the Sungai Raja Gali.

18
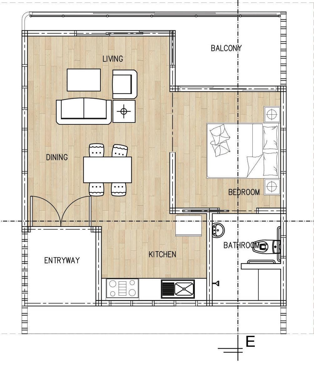
Clubhouse Type A Unit Type B Unit
20
View of mini library in clubhouse View of interior courtyard from outside
21

The typical unit of Type A are facing the seafront to maximizing the sea views with unobstructed. The recreation area in front of the units is shaded with natural shading, both remaining trees and planted trees to keep close to the nature and offer views to the residents. The bonding between residents, can get through the connection of social and resident area.

Type A, the ground floor and Type A1 are typical units which different activities at the open space, balcony where aquaponic system is proposed. The ground floor is a pond, that will recycle and supply the water to the hydropnic tank at the first floor.

22

Type B unit house is designed for single users, where the studio layout considered to make the space spacious and open. Six units are facing the sea are pririotize to maximing the seafront and unobstructed view. At the center of the zone, outdoor kitchen and seating area are provided for users social space among the occupants to keep close to each other. Aquaponic farming at the frontage are part of the zone, where users can pick the vegetables to be use individualy and together at the outdoor kitchen

23
24
View of recreation area from seaside View of Type B Unit house area from main entrance
3 Playschool
Kindergarten Bachok, Kelantan 2rd Year | Semester 4
| C-Play

A play school is a preschool educational institution for children. The play and activity institution are tas a social experience for children for their transition from home to school. With play to learn children willingly to learn unconditionly in a home feels while meeting new people. Proposed site is located near to UMK mosque, next to UMK gateway and visible to residental area. The total area of the proposed site is 1225sqm with 32 pax of children.

29
30
31
View of play area from studio classroom View of gardening area from office
33
34
Perspective view of entrance from main road Perspective view of entrance from secondary road Perspective view of front elevation

4

Working Drawing | Retreat House

Kota Bharu, Kelantan 2rd Year | Short Semester

35 6966 6983 6984 6982 6981 6979 6980 6978 6977 6976 7031 6939 6937 6935 6933 6931 6929 6927 6925 6923 6921 6919 6917 6915 6913 6912 6914 6916 6918 6920 6922 6924 6926 6928 6930 6932 6934 6936 6938 7003 7002 7000 7001 6999 6998 6996 6997 6995 6994 6993 6990 7004 7005 7006 7008 7007 7009 7010 7012 7011 7014 7013 7016 7015 7029 7030 7028 7027 7025 7026 7024 7023 7021 7022 7020 7019 7018 6883 6882 6885 6884 6887 6886 6889 6888 6891 6890 6893 6895 6897 6899 6801 6803 6805 6807 6809 6811 6910 6908 6906 6904 6902 6900 6898 6896 6894 6892 1530 1284 6377 6376 6375 1532 6943 6942 337 336 229° 27.418M 319° 51 36.694M TNB LAM B 12/12 TNB LAM B 13/12 229° 27.418M 51' 51
36-REV UNIVERSITI MALAYSIA KELANTAN Naib Canselor Universiti Malaysia Kelantan UNIVERSITI MALAYSIA KELANTAN (UMK) Karung Berkunci 36, 16100 Pengkalan Chepa, Kelantan Darul Naim, Malaysia. 6965 6968 6969 6972 6973 6964 6971 6970 6967 6966 6978 6975 6964 6963 6962 6961 6960 6959 6958 6957 6956 6955 6987 6986 6985 6992 6991 6988 6989 6954 6953 6952 6951 6950 6949 6948 6947 6946 6945 6944 6943 341 340 5254 LAUT CINA SELATAN ROMPIN BEACH RESORT KERAJAAN MALAYSIA 37 18 219° 45 19 36.798M 51 229° 50' 12 27.255M 37' 18 219° 45' 19 36.798M 319° 36.694M LIVING DINING KITCHEN LAUNDRY BEDROOM UP UP INTERIOR COURTYARD A A B B BATH D2 D3 D4 SD1 SD2 W1 W1 W1 W1 W2 W1 V1 TERRACE0.450FFL: 0.600FFL: 0.600FFL: 1.200FFL: FFL:1.150 FFL:1.150 0.550FL: FOYER0.600FL: m²11.4FA:FF: CT m²16.2FA:FF: FA:FF: m²12FA:FF: CT m²9.9FA: HT HTFF: SD2 m²8.8FA:FF: HT WALKWAYFFL:0.050 CRFF: DECKINGFL: 1.200 m²14FA: TSFFL: 6.250.000FFL: FF: 11m²FA: 9m²FA: 1 1A 2 4 5 6 3 GT 0.025 0.600dp 0.025 0.025 0.025dp DECKINGFA: m²10TSFFL: DECKINGFA: m²10TSFF: FFL:1.1002.26m²FA:FF: 150mm DIA. UPVC SEWER PIPE 100mm DIA. uPVC SOIL PIPE 50mm DIA. PVC WASTE PIPE DASHED LINE TO INDICATE BUILDING BEAM ABOVE CONCRETE POST TO ENGR'S DETAIL 1200mm HIGH BRICKWALL DRIVEWAYFFL: 0.000 MH1 MH3 MH2 MH4 SEWER''MAINTO (3M) (4M) 1:80GRADIENT GRADIENT1:80 1:80(8M)GRADIENT ICFF: DRAIN'SIDE'ROADTO BRICKPOST JBA WATER METER 9106 APRONFFL:0.025 CRFF: APRONFFL:0.025 CRFF:
SGA3353/JUNE15/CC/01
37 229 ° 37 18 27.418M 219° 45 19" 36.798M 319° 51' 51" 36.694M 229 ° 50 12 27.255M LIVING DINING KITCHEN LAUNDRY BEDROOM 11 12 UP INTERIOR COURTYARD A A B B BATH 1 D2 D3 D4 SD1 SD2 W1 W1 W1 W2 W1 V1 V1 TERRACE FFL: 0.450 FFL: 0.600 FFL: 0.600 FFL: 1.200 FFL:1.150 FFL:1.150 FL: 0.550 FOYER FL: 0.600 FA: 11.4 m² FF: CT FA: 16.2 m² FF: CT FA: 9 m² FF: HT FA: 12 m² FF: CT FA: 9.9 FF: HT FF: HT SD2 FA: 8.8 m² FF: HT WALKWAY FFL:0.050 FF: CR DECKING FL: 1.200 FA: 14 m² FFL: TS FFL: 0.000 FA: 11m² FA: 9m² 1 1A 2 4 5 6 3 GT GT dp 0.025 dp 0.600 dp 0.025 dp 0.025 dp 0.025 DECKING FA: 10 m² FFL: TS DECKING FA: 10 m² FF: TS FFL:1.100 FF: HT FA: 2.26m² 225mm DIA. P.C DRAIN LAID TO FALL 150mm DIA. UPVC SEWER PIPE LAID TO FALL AT GRAD. 1:80 100mm DIA. uPVC SOIL PIPE 50mm DIA. PVC WASTE PIPE DASHED LINE TO INDICATE BUILDING BEAM ABOVE 114mm THK BRICKWALL C/W. X-MET WIRE @ EVERY 4 TH BRICK & 19mm THK PLASTER ON BOTHSIDES 114mm THK BRICKWALL WITH 19mm THK PLASTER ON BOTHSIDES BOTHSIDES FINISHED BY 300 x 390 mm THK SELECTED GLAZED WALL TILES UP TO CEILING HIGH ALL AROUND INTERNALLY CONCRETE POST TO ENGR'S DETAIL MS GATE TO MANUF'S DETAIL 1200mm HIGH BRICKWALL FENCING TO DETAIL 1200mm HIGH CHAIN LINK FENCING TO DETAIL RC. STEP TO ENGR'S DETAIL WITH R:150 AND T:250 RC. COLUMN TO ENGR'S DETAIL STAIR CONSTRUCTION - RISER : 180mm - TREAD : 250mm - 150mm THK SOLID CONCRETE RAILING TP FT TP DRIVEWAY FFL: 0.000 MH1 MH3 MH2 MH4 TO 'MAIN SEWER' 200 x 250 mm THK SELECTED 19mm THK PLASTER ON BOTHSIDES 114mm THK BRICKWALL WITH BOTHSIDES FINISHED BY GLAZED WALL TILES UP TO 2100mm HIGH ALL AROUND INTERNALLY (3M) (4M) GRADIENT 1:80 GRADIENT 1:80 (8M) GRADIENT 1:80 FF: IC TO 'ROAD SIDE DRAIN' BRICKPOST LETTER BOX, REFUSE CHAMBER BRICKPOST JBA WATER METER 9106 PC. DRAIN COVER APRON FFL:0.025 FF: CR APRON FFL:0.025 FF: CR fall 300 x 300 mm THK SELECTED GLAZED WALL TILES UP TO CEILING HIGH ALL AROUND INTERNALLY CR HT CT IC TS CEMENT RENDER HOMOGENOUS TILES CERAMIC TILES IMPRINT CEMENT TIMBER STRIP A B C D D1 E 11600 3100 3000 3000 2500 15100 1000 3000 4200 2900 2500 1500 fold DOOR TO SCHEDULE RC FLOOR SLAB WITH WATER PROOFING UP TO 300mm HIGH TO ENGR'S DETAIL RC BEAM TO ENGR'S DETAIL D D 100 DIA. UPVC VENT RC FLOOR SLAB UP TO 300mm HIGH RC BEAM TO ENGR'S 450mm ABOVE ROOF DETAIL WINDOW TO SCHEDULE 19mm THK PLASTER ON BOTHSIDES MEZZANINE LEVEL FIRST FLOOR LEVEL BEAM LEVEL 1500 1500 114mm THK BRICKWALL 19mm THK PLASTER BOTHSIDES FINISHED 300 x 300 mm CERAMIC CEILING HIGH ALL 114mm THK BRICKWALL WITH BOTHSIDES FINISHED BY 300 x 300 mm CERAMIC TILES UP TO CEILING HIGH ALL AROUND INTERNALLY 189 1000 2000 3125 3600 475 WC SH 1200

DETAIL BATH 1

114mm THK BRICKWALL WITH 19mm THK PLASTER ON BOTHSIDES

100mm DIA. VENT PIPE

WINDOW TO SCHEDULE

300 x 300mm CERAMIC TILES UP TO CEILING HEIGHT WITH 1800mm WATERPROOFING MEMBRANE TO ENGR'S DETAIL

RC. COLUMN TO ENGR'S DETAIL

300 x 300mm CERAMIC TILES

BY 300 x 300 mm CERAMIC TILES UP TO CEILING HIGH ALL AROUND INTERNALLY

UNIVERSITI MALAYSIA KELANTAN

KERAJAAN MALAYSIA R CA501/JUNE15/CC/02

Naib Canselor Universiti Malaysia Kelantan

UNIVERSITI MALAYSIA KELANTAN (UMK) Karung Berkunci 36, 16100 Pengkalan Chepa, Kelantan Darul Naim, Malaysia.

38 18 " 5 DOOR TO SCHEDULE RC FLOOR SLAB WITH WATER PROOFING UP TO 300mm HIGH TO ENGR'S DETAIL RC BEAM TO ENGR'S DETAIL VENT PIPE TO BE RAISED WITH WATER PROOFING HIGH TO ENGR'S DETAIL ENGR'S DETAIL RC LINTOL TO ENGR'S DETAIL ROOF FLOOR TO ENGR'S SCHEDULE 100 DIA. UPVC VENT PIPE TO BE RAISED 450mm ABOVE ROOF FLOOR TO ENGR'S DETAIL 114mm THK BRICKWALL WITH 19mm THK PLASTER ON BOTHSIDES BOTHSIDES FINISHED BY 300 x 300 mm CERAMIC TILES UP TO CEILING HIGH ALL AROUND INTERNALLY BRICKWALL WITH PLASTER ON BOTHSIDES FINISHED BY CERAMIC TILES UP TO ALL AROUND INTERNALLY WC 1500 5 DOOR TO SCHEDULE RC FLOOR SLAB WITH WATER PROOFING TO ENGR'S DETAIL RC BEAM TO ENGR'S DETAIL RC LINTOL TO ENGR'S DETAIL MEZZANINE LEVEL FIRST FLOOR LEVEL BEAM LEVEL 1500 114mm THK BRICKWALL WITH 19mm THK PLASTER ON BOTHSIDES BOTHSIDES FINISHED
3125 3600 475 BATH 1 dp 0.025 FFL:1.100 FF: HT FA: 2.26m²
5 D 3 3 2 2 1 1 4 4
541 520 laidtofall 1500 1500 TP WC FT SH 282REV
39 A A B B D1 D2 D3 D4 SD2 SD1 1800mm (W) x 2100mm (H) METAL FRAME SINGLE LEAF TIMBER PANEL DOOR WITH FIXED GLASS c/w ALL NECESSARY ACCESSORIES TO MANUF'S DETAIL 900mm (W) x 2100mm (H) 750mm (W) x 2100mm (H) mm (W) x 2100mm (H) 1800mm (W) x 2100mm (H) 1200mm (W) x 2100mm (H) W1 W2 V1 W4 1200mm (W) x 1200mm (H) ALUM. CASEMENT WINDOW c/w ALL NECCESSARY ACCESSOROES TO MANUF'S DETAIL 3600mm (W) x 2100mm (H) ALUM. CASEMENT WINDOW SLIDING WINDOW WITH FIXED GLASS PANEL c/w ALL NECCESSARY ACCESSOROES TO MANUF'S DETAIL 600mm (W) x 450mm (H) ALUM. VENTILATION WINDOW c/w ALL NECESSARY ACCESSORIES TO MANUF'S DETAIL 1200mm (W) x 1200mm (H) BREEZE BLOCK VENTILATION WINDOW c/w ALL NECESSARY ACCESSORIES TO MANUF'S DETAIL FOYER BEDROOM, STAIRCASE TERRACE LAUNDRY, LAUNDRY TERRACE, BATH 2, BATH 1 BEDROOM, LOFT BEDROOM FIRST FLOOR ROOF, DINING KITCHEN, DINING, FIRST FLOOR HALLWAY, BEDROOM, MINI LIBRARY LIVING LAUNDRY, BATH 1, BATH 2 KITCHEN VOID, COURTYARD VOID ROOF CONSTRUCTION 450mm THK WAFFLE SLAB TO ENGR'S DETAIL 50mm THK CEMENT SAND SCREED LAID TO FALL 50mm THK THERMAL INSULATION 2500 1400 4200 4000 1 1A 2 4 5 6 15100 1500 2900 3 1000 DASHED LINE TO INDICATE BUILDING BEAM BELOW 100mm DIA. UPVC RWDP SKYLIGHT TO MANUF'S DETAIL WATER TANK TO ENGR'S DETAIL FALL 2° FALL 2° FALL 2° FALL 2° fold FLOOR LEVEL 1200 450 600 1200 900 2100 1800 900 600 900 2100 750 2100 1000 2100 1200 600 2100 1800 METAL FRAME SINGLE LEAF TIMBER PANEL DOOR c/w ALL NECESSARY ACCESSORIES TO MANUF'S DETAIL METAL FRAME SINGLE LEAF TIMBER PANEL DOOR c/w ALL NECESSARY ACCESSORIES TO MANUF'S DETAIL METAL FRAME FOLDING PVC DOOR c/w ALL NECESSARY ACCESSORIES TO MANUF'S DETAIL ALUM. FRAME SLIDING GLASS DOOR c/w ALL NECESSARY ACCESSORIES TO MANUF'S DETAIL ALUM. FRAME SLIDING GLASS DOOR c/w ALL NECESSARY ACCESSORIES TO MANUF'S DETAIL FLOOR LEVEL TYPE (WINDOW) ELEVATION DESCRIPTION LOCATION QUANTITY TYPE (DOOR) ELEVATION DESCRIPTION LOCATION QUANTITY 8 1 3 3 1 2 3 1 2 2 600 600 200 A B C D D1 E 11600 3100 3000 3000 2500 RC FLAT ROOF WATER PROOFING TO ENGR'S DETAIL SKIMCOAT AND PAINT FINISH
40-REV UNIVERSITI MALAYSIA KELANTAN Naib Canselor Universiti Malaysia Kelantan UNIVERSITI MALAYSIA KELANTAN (UMK) Karung Berkunci 36, 16100 Pengkalan Chepa, Kelantan Darul Naim, Malaysia.
MALAYSIA A B C D D1 E 11600 3100 3000 3000 2500 MINI LIBRARY LOFT BEDROOM BATH 2 A B B TERRACE TERRACE 1 1A 2 4 5 6 3 1800 1800 1200 1200 1200 1200 1200 900 750 1200 A B C D D1 E CEILING CONSTRUCTION INTERNAL 450mm THK WAFFLE SLAB TO ENGR'S DETAIL VOID VOID VOID CEILING CONSTRUCTION 450mm THK WAFFLE SLAB TO ENGR'S DETAIL WITH SKIMCOAT AND PAINT RC FLAT ROOF WATER PROOFING TO ENGR'S DETAIL SKIMCOAT AND PAINT FINISH LIVING DINING KITCHEN LAUNDRY BEDROOM UP A A B BATH 1 TERRACE FOYER WALKWAY DECKING 1 1A 2 4 5 6 3 DECKING DECKING VOID VOID CEILING CONSTRUCTION 1200x600mm ASBESTOS FREE GYPSUM BOARD CEILING @ 10mm GAP 95x114mm PLASTER CORNICE B CR HT CT IC TS CEMENT RENDER HOMOGENOUS TILES CERAMIC TILES IMPRINT CEMENT TIMBER STRIP 1200mm FLOURESENT LIGHT POINT ONE WAY SWITCH FUSE BOX METER BOX CEILING FAN POINT WITH HANGER CA501/JUNE15/CC/09 CA501/JUNE15/CC/05 WITH SKIMCOAT AND PAINT CEILING CONSTRUCTION 1200x600mm ASBESTOS FREE GYPSUM BOARD CEILING @ 10mm GAP 95x114mm PLASTER CORNICE 2500 1400 4200 4000 15100 1500 2900 1000 SKIM COAT 1200 x 600mm x 3.2mm THK GYPSUM BOARD 11600 3100 3000 3000 2500 2500 1400 4200 4000 15100 1500 2900 1000 -
KERAJAAN
41 1A 2 1400 4200 2500 4000 4 5 1 15100 6 2900 1500 3 1000 600 600 3600 GROUND LEVEL ROOF BEAM LEVEL GROUND FLOOR LEVEL MEZZANINE LEVEL 3600 FIRST FLOOR LEVEL INTERIOR COURTYARD KITCHEN BATH1 2100 2500 3000 3000 1000 E D B D1 A 11600 C LIVING VOID INTERIOR COURTYARD 7 12 6 9 1 3 6 1200 900 200 100mm THK SOLID CONCRETE RAILING 40mm x 40mm TIMBER SCREEN 900 100mm THK RC LINTOL TO ENGR'S DETAIL 3000 D4 W1 WALKWAY PANEL TO MANUF'S DETAIL RC BEAM TO ENGR'S DETAIL RC WAFFLE SLAB TO ENGR'S DETAIL RC SLAB TO ENGR'S DETAIL 114mm THK BRICKWALL WITH 19mm THK PLASTER ON BOTHSIDES BOTHSIDES FINISHES BY 200 x 250 mm THK SELECTED GLAZED WALL TILES UP TO STAIR CONSTRUCTION - RISER : 180mm - TREAD : 250mm - 150mm BRICK RAILING WITH PLASTER AND PAINT 450mm THK WAFFLE SLAB TO ENGR'S DETAIL 50mm THK CEMENT SAND SCREED LAID TO FALL 50mm THK THERMAL INSULATION TOP ROOF BEAM LEVEL STAIR CONSTRUCTION - RISER : 180mm - TREAD : 250mm - 150mm THK SOLID CONCRETE RAILING VOID VOID VOID 225mm WIDE H.R.P.C DRAIN LAID TO FALL R.C GROUND BEAM & R.C FOUNDATION TO ENGR;S DETAIL 114mm THK BRICKWALL WITH 19mm THK PLASTER ON BOTHSIDES BOTHSIDES FINISHES BY 200 x 250 mm THK SELECTED GLAZED WALL TILES UP TO 100mm DIA. VENT PIPE TO ENGR'S DETAIL RC. STEP TO ENGR'S DETAIL WITH R:150 AND T:250 600 600 3600 GROUND LEVEL GROUND FLOOR LEVEL FIRST FLOOR LEVEL 3000 RC BEAM TO ENGR'S DETAIL ROOF CONSTRUCTION 50mm THK CEMENT SAND SCREED LAID TO FALL 50mm THK THERMAL INSULATION 40mm x 40mm TIMBER SCREEN 100mm THK RC LINTOL TO ENGR'S DETAIL PANEL TO MANUF'S DETAIL RC SLAB TO ENGR'S DETAIL R.C GROUND BEAM & R.C FOUNDATION TO ENGR;S DETAIL CEILING HIGH ALL AROUND INTERNALLY 100mm DIA. UPVC RWDP ROOF CONSTRUCTION VOID 2100mm HIGH ALL AROUND INTERNALLY VOID ROOF BEAM LEVEL 100mm THK SOLID CONCRETE RAILING 3600 TOP ROOF BEAM LEVEL 100mm DIA. UPVC RWDP MEZZANINE LEVEL 450mm THK WAFFLE SLAB TO ENGR'S DETAIL 225mm WIDE H.R.P.C DRAIN LAID TO FALL SKYLIGHT TO MANUF'S DETAIL SKYLIGHT TO MANUF'S DETAIL 100mm THK RC LINTOL TO ENGR'S DETAIL RC FLAT ROOF WATER PROOFING TO ENGR'S DETAIL SKIMCOAT AND PAINT FINISH RC FLAT ROOF WATER PROOFING TO ENGR'S DETAIL SKIMCOAT AND PAINT FINISH VOID VOID VOID WATER TANK TO ENGR'S DETAIL

KERAJAAN MALAYSIA

42REV UNIVERSITI MALAYSIA KELANTAN Naib Canselor Universiti Malaysia Kelantan UNIVERSITI MALAYSIA KELANTAN (UMK) Karung Berkunci 36, 16100 Pengkalan Chepa, Kelantan Darul Naim, Malaysia.
FALL FALL CA501/JUNE15/CC/06 WATER METER COMPLETE WITH BALL VALVE CONTROL LAUNDRY BATH 1 KITCHEN BATH 2 FT FT FT SINK WB TP WC TP SH TP FROM GOVT. MAINPIPE BATH 2 WB LAUNDRY BATH 1 KITCHEN OVERFLOW PIPE STOP COCK TO MDKB WATER WORK GRADIENT 1:80 MH3 MH1 MH2 MH4 150 GALLONS FIBRE GLASS WATER STORAGE 25mm DIA. PVC RISING PIPE COVER, BALL VALVE OVER FLOW PIPE AND TANK ON 3 NOS. CONCRETE SUPPORT WITH SCOUR PIPE DISCHARGE TO CONCRETE DRAIN 32mm DIA. PVC DISTRIBUTION PIPE 13mm DIA. PVC SUPPLY PIPE 13mm DIA. PVC SUPPLY PIPE 100 DIA. UPVC SOIL PIPE (1:80) SEPTIC TANK AND FILTERED TO ENGR'S DETAIL 50 DIA. UPVC WASTE PIPE GROUND LEVEL FIRST FLOOR LEVEL GROUND FLOOR LEVEL GROUND LEVEL FIRST FLOOR LEVEL ROOF LEVEL GROUND FLOOR LEVEL ROOF LEVEL SC SC SC SC SC SC SC WB WC-
43 1 1A 2 4 5 6 3 GROUND LEVEL GROUND FLOOR LEVEL MEZZANINE LEVEL FIRST FLOOR LEVEL ROOF BEAM LEVEL A B C D D1 D3 E D1 V1 VOID GROUND LEVEL GROUND FLOOR LEVEL FIRST FLOOR LEVEL STAIR CONSTRUCTION VOID SD2 VOID TOP ROOF BEAM LEVEL VOID VOID V1 VOID VOID W1 VOID V1 ROOF BEAM LEVEL TOP ROOF BEAM LEVEL MEZZANINE LEVEL 100mm DIA. UPVC RWDP 100mm DIA. UPVC RWDP - RISER : 180mm RC. STEP TO ENGR'S DETAIL RC. COLUMN TO ENGR'S DETAIL BRICK RAILING WITH BOTHSIDE PLASTER AND PAINT FINISH WITH 40mm ROUND STEEL RAILING RC. COLUMN TO ENGR'S DETAIL BRICK RAILING WITH BOTHSIDE PLASTER AND PAINT FINISH WITH 40mm ROUND STEEL RAILING - 150mm BRICKWALL WITH PLASTER AND PAINT - TREAD : 250mm 40mm ROUND STEEL RAILING WITH R:150 AND T:250 RC FLAT ROOF WATER PROOFING TO ENGR'S DETAIL WITH SKIMCOAT AND PAINT FINISH RC FLAT ROOF WATER PROOFING TO ENGR'S DETAIL WITH SKIMCOAT AND PAINT FINISH GROUND LEVEL GROUND FLOOR LEVEL MEZZANINE LEVEL FIRST FLOOR LEVEL ROOF BEAM LEVEL TOP ROOF BEAM LEVEL FIRST FLOOR LEVEL GROUND FLOOR LEVEL ROOF BEAM LEVEL TOP ROOF BEAM LEVEL GROUND LEVEL MEZZANINE LEVEL 3000 3600 3600 600 600 3000 3600 3600 600 600 3000 3600 3600 600 600 3000 3600 3600 600 600 2500 4200 4000 15100 1500 2900 1000 3000 2100 11600 2500 3000 1000
44-REV UNIVERSITI MALAYSIA KELANTAN Naib Canselor Universiti Malaysia Kelantan UNIVERSITI MALAYSIA KELANTAN (UMK) Karung Berkunci 36, 16100 Pengkalan Chepa, Kelantan Darul Naim, Malaysia.
CA501/JUNE15/CC/07 A B C C1 D D1 E 1 1A 2 4 5 6 3 LEVEL LEVEL LEVEL LEVEL LEVEL W1 LEVEL LEVEL RC. COLUMN TO ENGR'S DETAIL 100mm DIA. UPVC RWDP SD2 VOID VOID W1 SD2 VOID VOID VOID W1 VOID SD1 SD2 SD1 BRICK RAILING WITH BOTHSIDE PLASTER AND PAINT FINISH WITH 40mm ROUND STEEL RAILING RC. COLUMN TO ENGR'S DETAIL BRICK RAILING WITH BOTHSIDE PLASTER AND PAINT FINISH WITH 40mm ROUND STEEL RAILING 100mm DIA. UPVC RWDP RC FLAT ROOF WATER PROOFING TO ENGR'S DETAIL WITH SKIMCOAT AND PAINT FINISH RC FLAT ROOF WATER PROOFING TO ENGR'S DETAIL WITH SKIMCOAT AND PAINT FINISH 3000 4000 1500 15100 1000 4200 2900 1000 2500 11600 2100 1500 3000 1500 -
KERAJAAN MALAYSIA
45
6 15 14 1 2 4 3 5 8 7 11 9 13 10 17 18 16 19 12 20 R.C STAIRCASE TO ENGR'S DETAIL UP - RISER : 180mm -150mm THK SOLID CONCRETE RAILING AT 900mm (H) WITH SKIMCOAT AND PAINT FINISHED BOTHSIDES - TREAD : 250mm 1250 D2 LIVING BEDROOM INTERIOR COURTYARD A A B B 1 3 2 5 4 6 10 7 8 9 11 LANDING 4 3 2 4 3 2 D C R.C STAIRCASE - RISER : - TREAD : - 150mm THK AT 900mm PAINT FINISHED MEZZANINE LEVEL FIRST FLOOR LEVEL BEAM LEVEL R.C STAIRCASE HOMOGENOUS R.C STAIRCASE FINISHED WITH HOMOGENOUS TILES 114mm THK BRICKWALL WITH 19mm THK PLASTER ON BOTHSIDES R.C COLOMN TO ENGR'S DETAIL 40mm x 40mm 900 DOOR TO 3125 3600 475 4500 3000 1500 4200 2900 4200 2900 2
DETAIL STAIRCASE 1
46 DETAIL C D STAIRCASE TO ENGR'S DETAIL 180mm 250mm THK SOLID CONCRETE RAILING 900mm (H) WITH PLASTER AND FINISHED BOTHSIDES 3000 STAIRCASE FINISHED WITH HOMOGENOUS TILES BOTHSIDES DETAIL 40mm TIMBER SCREEN PANEL 900-REV UNIVERSITI MALAYSIA KELANTAN Naib Canselor Universiti Malaysia Kelantan UNIVERSITI MALAYSIA KELANTAN (UMK) Karung Berkunci 36, 16100 Pengkalan Chepa, Kelantan Darul Naim, Malaysia. KERAJAAN MALAYSIA SCHEDULE CA501/JUNE15/CC/10 15 14 6 1 4 9 1500 2 16 8 13 3 10 12 5 18 11 7 19 17 20 CORRIDOR A 1250 CORRIDOR INTERIOR COURTYARD A B 4 B 4200 2900 3 2 DN 15 3 10 2 1 LANDING 19 LANDING 6 5 4 8 9 7 11 17 18 16 13 14

Pamphlet Design

Software: Photoshop

OtherS

Envolope Design

Software: Photoshop

5
48 Terrace House 3D Modelling
50 Afiqah Ahmad afiqahahmad1209@gmail.com 017-9463479 MARCH 2023 Thank You

Turn static files into dynamic content formats.

Create a flipbook
Issuu converts static files into: digital portfolios, online yearbooks, online catalogs, digital photo albums and more. Sign up and create your flipbook.
Bsc. Architecture Portfolio Part 1 2018-2023 by nur afiqah - Issuu