
2012 - 2024



2022-2024
HGA
San Jose, CA, USA
Intuitive Project Sunnyvale, CA
Intuitive Project Sunnyvale, CA
HPP Office Refresh Project - Bay Area
BD Biosciences Campus - Milpitas, CA
HPP Office Refresh Project - Bay Area
BD Biosciences Campus - CA









![]()

2012 - 2024



2022-2024
HGA
San Jose, CA, USA
Intuitive Project Sunnyvale, CA
Intuitive Project Sunnyvale, CA
HPP Office Refresh Project - Bay Area
BD Biosciences Campus - Milpitas, CA
HPP Office Refresh Project - Bay Area
BD Biosciences Campus - CA









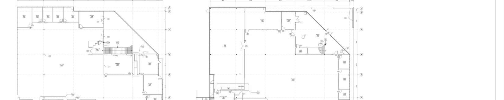
As the Project Lead and Coordinator for the B140 Intuitive project in Sunnyvale, I’m managing a significant office and R&D space covering approximately 100,000 square feet. This project involves the comprehensive design and construction of a state-of-the-art facility tailored to Intuitive's cutting-edge operational needs. My role includes guiding the project from initial planning through execution, ensuring alignment with the client's vision. Currently, I'm focused on addressing punch walk items and managing Construction Administration (CA) tasks to ensure a seamless project completion and handover.







-
----------- - -------------------
--
--- ------ ---------- --------------------- ---------------------------------------- --------- -- - -- - --- - - -- - - -- - - ---- - -- - -- - - -- - - - - -- - - -- --- --- -- ----------------- - ---- - -- - -- -- - -- - -- -- - -- - -- - -- - -- - -- - -- - -- - -- - ---- - - --- - -- -- - -- - -- - -- - -- - -- - --- -- - -
-
---------- -
---
--




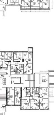
For the 240,000-square-foot BD Biosciences campus located at Park Point in Milpitas, CA, I played a crucial role in project coordination, schematic planning, and interior design. The campus, part of a newly revitalized corporate space, is designed to foster innovation and collaboration. My contributions ensured that the interior environments were aligned with BD’s operational needs, supporting both R&D and office functions with modern, flexible workspaces and state-of-the-art amenities.





In the BD Biosciences campus project, I played a pivotal role in coordinating with various stakeholders, including architects, engineers, and the client, to ensure smooth communication and collaboration. The project was marked by constant design changes, which required agility and precision in managing updates. My efforts ensured that the evolving design stayed aligned with the overall project goals, resulting in a cohesive and functional space that supports BD's innovation and operational needs.







successfully managed the HPP office refresh project in the Bay Area from start to finish. My role included conducting field verifications, developing demolition and design plans based on client requirements, and creating a cohesive finish scheme. I also took the project to the City of San Jose for an over-the-counter review, secured the necessary permits, and provided support during the Construction Administration (CA) phase to ensure the project was completed smoothly and met all client expectations.








































































































































































































