

![]()


Florin Dissegna Ausgewählte Arbeiten
Curriculum Vitae
BIM Entwerfen Umbau Gebäudelehre Bauen im Bestand - Schloss Eggenberg Denkmalpfege
Public House in den Stadtbahnbögen in und Wiener Linien
Studio Hochbau
Entwurf eines Performativen Raumes - Theater für 500 Zuschauer Studio Gebäudelehre Wohnhaus in einem imaginären rechteckigen Raster in Wien
Studio Wohnbau

03.09.1998 Südtirol Italien
Handwerkerzone 56
Graf Starhemberggasse 32/1/15
Florin1998@outlook.de
AUSBILDUNG
Masterstudium Architektur
Technische universität Wien
Credits 120ECTS
SPRACHEN
Deutsch Muttersprache
Italienisch Sehr Gut
Englisch Gut
COMPUTERKENTNISSE
Graphisoft Archicad
Phino
Autodesk Autocad
Autodesk Revit
Adobe Illustrator Blender
Adobe Photoshop Twinmotion
Adobe Indesign
Adobe Lightroom
Künstlerin Xenia Hausner
Wien, Österreich
Assistenzarbeiten
Baufrma Stuefer Bau
Ritten, Südtirol
Maurerarbeiten (Schalungsarbeiten, Bewährungsarbeiten, Fundamentgießen)
Architekturbüro Feld72
Wien, Österreich
Umbau eines Heurigen
Baufrma Niederstätter
Bozen, Südtirol
Conteinerabteilung
BILDUNG
Fachoberschule für Bauwesen TUWien Architektur - Bachelor
Spezialisierung Geotechnik
AUSZEICHNUNGEN
Studio Gebäudelehre
Projekt wurde unter die Top 20 gewählt
BIM Entwerfen Gewinner des VDI Wettbewerbs: BIM Sonderpreis & Architektur Anerkennungspreis
Studio Wohnbau
Projekt wurde als bester Block ausgezeichnet
GEWINNER DES VDI-WETTBEWERBS:
- BIM Sonderpreis
- Architektur Anerkennungspreis
Projektpartner: Giovanni D´anna und Sebastian Pißermayr
Tutor: Iva Kovacic, Sophia Pipal
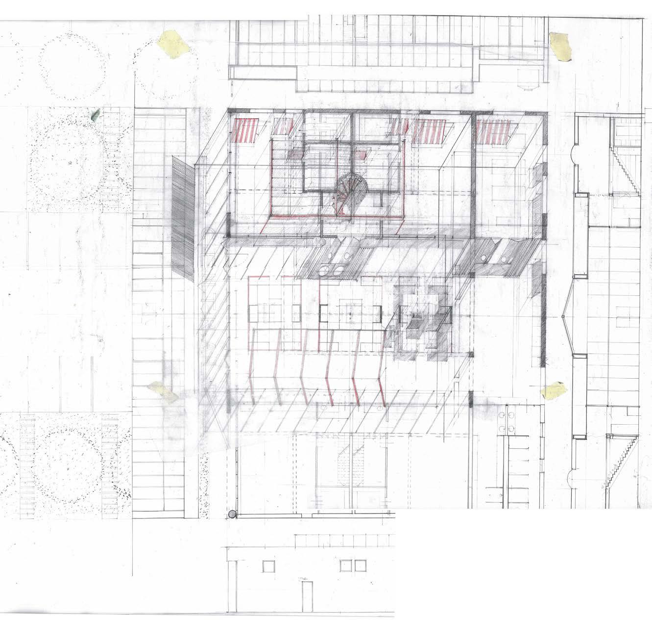
Um den Bestand gut nutzbar zu machen werden Teile abgebrochen und auch dazugegeben. Eben jene Orte, wo Bauteile entfernt wurden stellen besondere Qualitätspunkte im Projekt dar. Dort wird Gemeinschaft neu defniert: Handwerker werden dazu angeregt, ihr wissen zu vermitteln. Alte Menschen werden ermutigt mit Jungen in interaktion zu treten. Bewohner werden dazu motiviert, zum Gartenwerkzeug zu greifen. Ang estellte werden dazu gezwungen, eine gemeinschaftliche Pause zu verbringen. Jene Gemeinschaft braucht einen besonderen Platz: den Schnittpunkt
Schnittpunkt 1
Marktplatz /
Produktion:
Flächen für Künstler Handwerker und Hobbyisten um selbst hand anzulegen.


Schnittpunkt 2
Sport / Universität:
Öffentlicher Teil der Universität, Treffpunkt für Sportbegeisterte jeglicher Herkunft.

Bewohner / Benutzer: freie Räumlichkeiten für die Bewohner der Bettenhochhäuser aber auch adere interessierte für Arbeit und abendliche Gemeinschaft.


Bildung/Büros: großzügig gestalteter gemeinschafts und aufenthaltsBereich für Studenten und Arbeiter. Teeküche und Sitzmöglichkeiten im Innenraum bieten gemeinschaftliche erhohlungsmöglichkeit



Alt / Jung: Im Süden angesetzte Räume bilden eine Erweiterung des Wohnraums über den Gang hiunaus und somit eine nachbarschaftliche Treffmöglichkeit für Alt und Jung.
Schnittpunkt 3: Co working spaces und Gemeinschaftsräume
Balkone aus recyclten Bestandsdecken
Schnittpunkt 1
Zentraler Platz, Atelierwohnungen, Marktplatz, Freie Werkstätten
Marktplatz verbindet die produktion mit den bewohnern und Benutzern des Gebäudes. jedermann kriegt Einblick in das Handwerk
Schnittpunkt 2 Merzwecksaal, Uni Mensa, Sport
Beim Abbruchk sich um eine chicad zu Gr von Umbaufltern war die Grundlage katalogs. In lungen wird enden Umbauelmente diese über an Grasshopper
Abbruch | Recycling | Weiternutzung
Abbruchkatalog handelt es eine Schnittstelle von ArGrasshopper. Zuweisen Umbaufltern zu allen Bauteilen Grundlage des Abbruchden Ausschnitteinsteldann auf entsprechUmbauelmente gefltert und die Live-Connection asshopper weitergegeben
Obergurt
Diagonalstäbe
3 Travertin Platten (bearbeitet aus Bestand)
8 Split Schüttung 4/8
16 Bitumenbahn Abdichtung
2-lagig
24 Harte Dämmung (XPS)
18 Stahlbeton (Bestand)
10 EPS
05 Silikonharzputz (SHP)
Untergurt
Abhängung
Abhängung
7 Heizestrich Trennfolie
4 Tritschall
18 Stahlbeton decke (Bestand)
6 Silikonharzputz
Projektpartner: Benjamin Sachsalber
Tutor: Caroline Jäger-Klein, Hannes Toifel
Konzept:
- Einfügen in die Natur - Verschmelzung von Innen- und Außenraum
- Sensibler Umgang mit Bestand und Natur
- Leichtbau - Kontrast zu massivem Bestand



Bauplatz: U-Bahn Station Längenfeldgasse,1120, Wien
Projektpartner: Giovanni Danna
Tutor: Christian Lichtenwagner

Die historische gleich mod-ern, adukt ausgeführt, Kurve, die einerseits nach Außen
Die Zugtrasse einer Gewölbestruktur wie eine lässigkeit
Die leicht For-men-Materialsprache ab. Die Artikulation Rhythmus durch eine bietet, Depots der Langseite An den Kurzseiten dem Gebäude
historische Stadtbahnlinie, von Otto Wagner geplant, zeitlos und zumod-ern, führt erhöht durch den Wiener Stadteil Meidling. Als Viausgeführt, zeichnet die Stadtbahn in diesem Bereich eine leichte die mit großzügiger Geste einen Stadtraum schafft. Diese begrenzt einerseits im Innern eine vielbesuchte Parkanlage den Längefeldplatz, Außen wird der Stadtteil umgrenzt.
Zugtrasse ist in gemauerten Ziegelsteinen ausgeführt. Diese wird von Gewölbestruktur den sogenannten Stadtbahnbögen getragen, die Brücke das lange Bauwerk artikuliert und dem Stadtraum Durchlässigkeit gewährt.
leicht wirkende Struktur in Metall und Glas hebt sich in klare kubischer For-men-Materialsprache von der historischen, massiven Bausubstanz Artikulation des Gebäudes ist durch 3 Baukörper akzentuiert, den Rhythmus der Bögen der Bahntrasse aufnehmend. Das Gebäude erhält eine 2-schalige Außenhülle, die in ihrer Tiefe zusätzlichen Raum Depots und Stauräume, welche mit mobilen Hebevorrichtungen an Langseite des Gebäudes wie Körbe in den Wänden verstaut werden. Kurzseiten drängen Zuschauertribünen nach draußen bzw. geben Gebäude beidseitig einen Vorbau - Portikus.


PU-Beschichtungweiß 7 Sitzbank mit ausziehbaren Stauraum für kleinere Gegen stände
Attika: Gewalztes Edelstahlblech
Wärmedämmung XPS 50mm Folie
Pro
fil 300 x (90+90) mm
Akustikplatte weiß mit Halterung
Isolierverglasung
Stegplatten Polycarbonat 10-schalig 70 mm Aluminiumprofil U thermisch getrennt
Seilwinde
Zugseile 11 Überkopf Verklasung VSG, Isolierveglasung
Lagerraum Hochfahrbar -Beschichtung weiß
Sitzbank mit ausziehbaren Stauraum für kleinere Gegensrtände
12 Anschluss Verglasung mit Ziegelmauer, Stahlblech mit Silikon abge dichtet
Isolierverglasung
HEB Stütze 230mm
Zugseile
1 Attika: - Gewalztes Edelstahlblech
- Wärmedämmung XPS 50mm
- PE-Folie
- Z-Profil 300 x (90+90) mm
2 Akustikplatte weiß mit Halterung
3 Stegplatten Polycarbonat 10-schalig 70 mm in Aluminiumprofil U thermisch getrennt
1 Attika: - Gewalztes Edelstahlblech
Lagerraum Hochfahrbar
- Wärmedämmung XPS 50mm
6 PU-Beschichtung weiß
- PE-Folie
- Z-Profil 300 x (90+90) mm
2 Akustikplatte weiß mit Halterung
7 Sitzbank mit ausziehbaren Stauraum für kleinere Gegensrtände 8 Isolierverglasung
3 Stegplatten Polycarbonat 10-schalig 70 mm in Aluminiumprofil U thermisch getrennt
9 HEB Stütze 230mm
Zugseile
5 Lagerraum Hochfahrbar
6 PU-Beschichtung weiß
7 Sitzbank mit ausziehbaren Stauraum für kleinere Gegensrtände
8 Isolierverglasung
1 Attika:
9 HEB Stütze 230mm 4 Seilwinde
- Gewalztes Edelstahlblech
- Wärmedämmung XPS 50mm - PE-Folie
- Z-Profil 300 x (90+90) mm
2 Akustikplatte weiß mit Halterung
3 Stegplatten Polycarbonat 10-schalig 70 mm in Aluminiumprofil U thermisch getrennt
4 Seilwinde
1 Attika: - Gewalztes Edelstahlblech
5 Lagerraum Hochfahrbar
- Wärmedämmung XPS 50mm
6 PU-Beschichtung weiß
- PE-Folie
10 Zugseile 4
- Z-Profil 300 x (90+90) mm
7 Sitzbank mit ausziehbaren Stauraum für kleinere Gegensrtände
2 Akustikplatte weiß mit Halterung
8 Isolierverglasung
3 Stegplatten Polycarbonat 10-schalig 70 mm in Aluminiumprofil U thermisch getrennt
9 HEB Stütze 230mm
4 Seilwinde
5 Lagerraum Hochfahrbar
6 PU-Beschichtung weiß
7 Sitzbank mit ausziehbaren Stauraum für kleinere Gegensrtände
8 Isolierverglasung
9 HEB Stütze 230mm
10 Zugseile






BAUPLATZ: Hütteldorf
Partner: Benjamin Sachsalber
Tutor: Michael Obrist, Lorenza Baroncelli

sibilities effcient to ture wild cing the their way the
„KEY
Paesaggio saggio as a place of infnite possibilities within a frame-structured grid.
Located above the train lines of the viennese westbahn, Paesaggio saggio supposed to create a fexible urban space, which reacts to the needs of the residential districts in the surroundings.
Inside the Structure and its infnite possibilities of use, the focus is on a new effcient way of logistics. As a contrast this mechanical process the Structure gets enclosed in the south by a wild zone of greenery. Both Ideas facing the needs of the people during the pandemic of more green spaces in their surroundings and a new effcient way of logistics as a consequence of the rising online shopping trend.
every year, with a strong increasing


Food Court Raum für lokale Produzenten im ehemaligen Supermarkt
Projektpartner: Giovanni D´anna, Filip Marcetic, Matei Tulban
Betreuung: Prof. Lorenzo de Chiffre
Diese Arbeit entsteht als ein Themendiplom, bestehend aus einer Gruppe von neun StudentInnen, die sich, strategisch organisiert, mit dem Leerstand in Pernitz beschäftigt hat. In diesem Prozess hat eine Gruppe aus vier Kollegen den Ortskern thematisiert. Diese Doppelsynergie ermöglicht eine noch dialektischere Auseinandersetzung mit dem Ort und den jeweiligen Projekten.
Bei einem dieser vier Projekte geht es um einen “Food Court”: die Vision eines Raumes für lokale Lebensmittel-Produzenten im ehemaligen Supermarkt.
Nach einer näheren Analyse der allgemeinen Versorgung und Nahversorgung im Ort haben wir verschiedenen Akteure beobachten können. Im Vordergrund stehen heute vor allem die großen Supermarktketten vor Ort.
In diesen standardisierten und proftorientierten Strukturen scheint kaum Raum für Vielfalt und Authentizität zu bleiben. Die Priorität liegt vor allem bei der Gewinnmaximierung, dies passiert jedoch zu Lasten der kleineren, lokalen Produzenten, die keinen Zugang mehr zu dieser Art der Vermarktung haben.
Dabei war die Idee einen Gegenpol zu dem bestehenden Verkaufsweg zu schaffen, wobei die Verbindung zwischen traditioneller Produktion und modernen Konsumgewohnheiten im Vordergrund steht.
Das Gebäude soll in zwei Zonen aufgeteilt werden: einerseits ein fester Produktionsbereich mit der notwendigen Infrastruktur, andererseits ein fexibler Mittelbereich, der sowohl zur Produktion als auch zum Konsum und Verkauf dient.
Zentral für die Umnutzung dieses Raumes stehen lokalen Produzenten: ihnen sollen neue Möglichkeiten geboten werden, um Produkte herzustellen und diese zu vermarkten. Das Ziel besteht darin, die lokale Produzenten, die bislang im Verborgenen arbeiteten, in den Mittelpunkt zu rücken.
Dieser neugeschaffene, interaktive Raum soll sich zu einem lebendigen Zentrum entwickeln. Er soll ein Ort des Austauschs werden, in dem interessierte Dorfbewohner die Herstellung von Produkten beobachten und dabei lernen können. Hier können Menschen ihre Erfahrungen tauschen, voneinander lernen und ihre eigenen Fähigkeiten durch Beobachtung und gegenseitige Unterstützung vor Ort verbessern.
Die “Centrale” soll so als Initiator für ein kulinarisches Umdenken in Pernitz wirken, dabei vorhandene Stärken pfegen und soziale-wirtschaftliche Aspekten des Ortes positiv beeinfussen.





KONZEPT - SCHAFFEN EINER ZWEITEN ÖFFENTLICHEN EBENE - VERBINDEN VON URBAN UND NATUR
Wohnhaus in einem imaginären rechteckigen Raster in Wien
KONZEPT - schaffen einer zweiten öffentlichen Ebene - verbinden von Urban und Natur
Projektpartner: Benjamin Sachsalber/ Elena Thöni
Tutor: Walraff Michael
GASTROSTÄNDE
MARKTPLATZ
Lageplan 1:500
Fläche:Radwerkstatt-Pavillion 14m²+18m²
Fläche:Wohn-Pavillion 44m²
Fläche:Radpavillion 23m²
Fläche:Wohn-Pavillion 93m²
Fläche:Marktpavillion 80m²
Fläche:Müll/Lager3m²+3m²
Fläche:Markthalle Marktpavillion2.600m²
Fläche:Markt-Pavillionkalt 23m²Levels:3
Grünfäche
Fläche:Wohn-Pavillion 90m²Levels:3
Fläche:WC-Damen/Herren 14m²+18m²
Fläche:Müllraum 56m²
Fläche:Technik 19m²
Fläche:LagerGastro 39m²
Sitzbänke
Fläche:Gastro-Stand 30m²
Fläche:Markthalle 1.060m²
Fläche:Müllraum 28m²
EingangAufzugArkaden Wohnhaus