portfolio 2024

Page 1

PORTFOLIO

Floriane Cannonge architecture intérieure 2024

- 1

En grandissant et durant mes études, j’ai réussi à trouver un style d’architecture d’intérieur dans lequel je m’épanouis pleinement. Dans mes projets, j’essaie de créer un sentiment de bien-être en réfléchissant à des espaces où confort et souvenirs se rencontrent à travers des matériaux naturels et un style intemporel.

Fraichement diplômée, je suis à la recherche de mon premier emploi dans l’architecture d’intérieur. J’ai eu l’opportunité de réaliser plusieurs stages et d’acquérir de nombreuses compétences que je serais ravie de mettre à profit pour votre entreprise. Les stages sont pour moi, une occasion unique de travailler avec des nouvelles personnes, de découvrir de nouveaux concepts et d’apprendre de nouvelles choses. J’ai eu l’opportunité d’en réaliser un à Chicago durant l’été 2023. Cette expérience m’a permis d’acquérir une grande connaissance de l’architecture d’intérieur en hôtellerie, de comprendre comment les projets étaient réfléchis et réalisés outre-Atlantique. Je repars bilingue de ce séjour et je suis capable de réaliser un projet intégralement en anglais du relevé métré à la phase PRO et de le présenter. J’espère que vous apprécierez mon travail et que nous pourrons discuter de vive voix lors d’un entretien. Je suis disponible à n’importe quel moment de la journée. A très vite !

- 2
Floriane Cannonge 2 Architecture résidentiel 3 Architecture commercial 1 A propos
1

1 A propos

FORMATION

2019 /2024

Master en architecture d’intérieur & design global / RNCP niveau 7 - CREAD (Lyon) 2019

Obtention du bac ESLycée Maurice

Genevoix (Marignane)

EXPÉRIENCES

2023

STAGE - The Gettys Group / Chicago (IL,USA) - 3 mois

Réalisation de visuels 3D, plans techniques et d’accessibilité, planches matériaux, visites showroom, rendez-vous avec des fournisseurs, présentation projet au groupe Hilton.

2022

STAGE - Atelier Boyet / Lyon (France) - 2 semaines

Réalisation de mobilier en bois massif, plans de réalisations, rendez vous clients.

2021

STAGE - UNE architecte / Lyon (France) - 3 mois

Réalisations de visuels 3D, plans techniques et urbanisme, planches matériaux, visites de chantiers, rendez-vous clients, carnets de détail, visites de showroom.

2016

STAGE - UNE architecte / Lyon (France) - 2 semaines

Stage sur la base du volontariat, premiers pas dans l’architecture d’intérieur, visites de chantiers.

LANGUES

Français Anglais

Espagnol

HARD SKILLS

Logiciel de modélisation et rendus 3D (Sketchup, Vray, Cinéma 4D)

Logiciels de réalisations de plans (Archicad, Autocad)

SOFT SKILLS

Sens du relationnel

Travail en équipe

Polyvalence

Croquis à la main

Suite Adobe

Palettes matériaux

Suivi de chantier

CONTACT

Téléphone : 07 83 73 04 75

Email : florianecannonge01@gmail.com

Linkedin : FlorianeCannonge

Instagram : @flcastudio

Autonomie

Capacité d’adaptation

Dynamisme

- 3
Floriane Cannonge 2 Architecture résidentiel 3 Architecture commercial
- 4
p.08 Projet Lyon Résidentiel p.10 Projet Nature Peinture Résidentiel p.20 Projet Madalena Hôtel p.30 Projet The village Hôtel

p.16

Projet Témoin

Résidentiel

p.17

Projet Escalier Résidentiel

p.32

Projet Jacquemus

Boutique

p.34

Projet Youssef Hotait

Boutique

SOMMAIRE

- 5

L’architecture résidentielle. L’architecture résidentielle est une des choses que je préfère dans la grande famille de l’architecture intérieure. Créer des lieux de vie à partir de zéro tout en prenant en compte les attentes et souhaits des clients me plaît énormément. Le secteur du résidentiel est également le plus challengeant car le lieu que nous créons influe sur le bien être des clients et doit correspondre à leur mode de vie, tout en incluant notre style esthétique.

RÉSIDENTIEL

- 7
Floriane Cannonge 2 Architecture résidentiel 3 Architecture commercial
1 A propos 2

LYON

Certains éléments ont été conservés, comme les poutres en bois naturel et la cour extérieure qui a été réaménagée. Les clients souhaitaient un intérieur minimaliste avec des matériaux naturels comme le bois massif, le lin, l’argile…

Rénovation totale d’un loft de 120m2.
Sketchup / rendu Vray

La chambre master a été pensé comme un endroit chaleureux et confortable, un endroit où se reposer après une longue journée.

Le salon est intégralement en couleurs claires : du béton ciré blanc cassé est présent sur le sol et une peinture blanche sur les murs. Le bois massif a été un des éléments principaux du projet : le mobilier est chiné ou vintage (l’établi, la chaise Jeanneret, ..)

- 9
Floriane Cannonge 2 Architecture résidentiel 3 Architecture commercial 1 A propos

NATURE PEINTURE

« Nature peinture « , c’est l’histoire des textures et des matériaux. Les clients étaient une famille de 4 personnes, 2 artistes et 2 enfants avec beaucoup de besoins et d’exigences. La maison nécessite un réaménagement intérieur total et une mise aux normes.

Je voulais créer une circulation naturelle et confortable dans le lieu. Composé d’une maison principale de deux étages et d’un studio d’art, le rez-de-chaussée n’a pas de mur, seulement un cube de bois central, la pièce centrale de mon projet.

/ rendu Vray
Sketchup

Floriane Cannonge

2 Architecture résidentiel 3 Architecture commercial 1 A propos

détails Plan d’agencement du rez de chaussée, 1er étage et coupe de l’atelier .

coin enfants

Cheminée

Salon

HSP : 279cm 46,6 m²

Dgmt HSP : sous charpente 6,4 m²

Cuisine

HSP : 259cm 18 m²

Buanderie / Cellier

HSP : 279cm 11,3 m²

WC HSP : 279cm 3.1 m²

Dgmt HSP : 279cm 5 m²

cf zoom escalier PRO

Légende

Accès à l'atelier par l'extérieur

Atelier bas HSP : sous charpente + HSP 279cm sous mezzanine 21.5 m²

Blocs de béton manufacturés

Isolation en fibres de bois, 10cm en intérieur et 20cm à l'extérieur

Cloisons BA13 phoniques

Cloisons 72 / 48 BA13

Surface habitable : 134m²

Garage

HSP : 279cm 24.3 m²

Salle à manger

HSP : 279cm 18,5 m²

Entrée

HSP : sous charpente 8,8 m²

- 11
GTL
Bloc froid Bloc froid LL SL Bloc chaud
Vaisselier
Cave à vin
Buffet
Sculpture
bas
Gaine technique
A A B B Bibliothèque ±0.00 ±20.0 ±0.00 ±0.00 ±0.00 ±0.00 C C
Plan agencement
Floriane
Albens Lot
Chambre Ethan HSP sous charpente 17 m² HSP sous charpente sauf dressing 23 m² Salle de bain HSP 250cm 7,4 m² Espace amis HSP sous charpente 8,2 m² Chambre parentale HSP : sous charpente 18,4 m² Salle de bain HSP 250cm 10,3 m² Dressing HSP 250cm 9,2 m² Dgmt HSP sous charpente 3,5 m² WC 2,4 m² HSP sous charpente 25,5 m² Conduit cheminée Niche Tête de rgmts Légende Blocs de béton manufacturés Isolation en fibres de bois, 10cm en intérieur et 20cm à l'extérieur Cloisons 72 / 48 BA13 Surface habitable 126m² Vide sur RDC A A B B C C Balcon 13m2 HSP 250cm Faux plafond PRO Coupe agencement CC Floriane Cannonge promo MM 78 impasse des Vignes 73410 Albens Lot Ech. 1/50e Mes cm Légende Blocs de béton manufacturés Isolation en fibres de bois, 10cm en intérieur et 20cm l'extérieur Cloisons BA13 phoniques Cloisons 72 48 BA13 Cloisons BA13 hydrofuges Faux plafond plaques de plâtres BA13 sur suspentes métalliques Bureau Mr Aleman HSP 250cm Salle de bain annexe HSP 250cm Atelier HSP sous charpente Cuisine d'appoint évier, refrigérateur et micro onde ±0.00 ±324 ±215
R+1
Cannongepromo MM 78 impasse des Vignes 73410
/ Ech. 1/75e Mes : cm

Floriane Cannonge

1 A propos

2 Architecture résidentiel 3 Architecture commercial

- 12
Plan menuiserie RDC Floriane Cannongepromo MM 78 impasse des Vignes 73410 Albens Lot / Moyen Ouvrage Ech. 1/75e Mes : cm Salon HSP 279cm 46,6 m² Entrée HSP 579cm 8,8 m² Salle à manger HSP 279cm 18,5 m² Cuisine HSP 279cm 18 m² Dgmt HSP 579cm 6,4 m² Dgmt HSP 279cm 5 m² Buanderie Cellier HSP 279cm 11,3 m² WC 3.1 m² Atelier bas HSP 279cm pour une partie 21.5 m² Garage HSP : 279cm 24.3 m² Légende Blocs de béton manufacturés Isolation en fibres de bois, 10cm en intérieur et 20cm à l'extérieur Cloisons BA13 phoniques Cloisons 72 / 48 BA13 45 162 164 171,5 171,5 60 200 400 340 330 90 90 90 80 Porte d'entrée vitrée, cadre en bois A A B B C C 1 2 3 4 5 6 400 200 90 Surface habitable : 126m² Zoom des agencements menuisés dans les pages suivantes. Ensemble des meubles numérotés Baie vitrées bois sur mesure en bois et fênetres doubles battants en bois 120x140cm, voir détails menuiseries extèrieures 0
ATELIER
CUISINE

Structure,

Floriane Cannonge

2 Architecture résidentiel 3 Architecture commercial 1 A propos

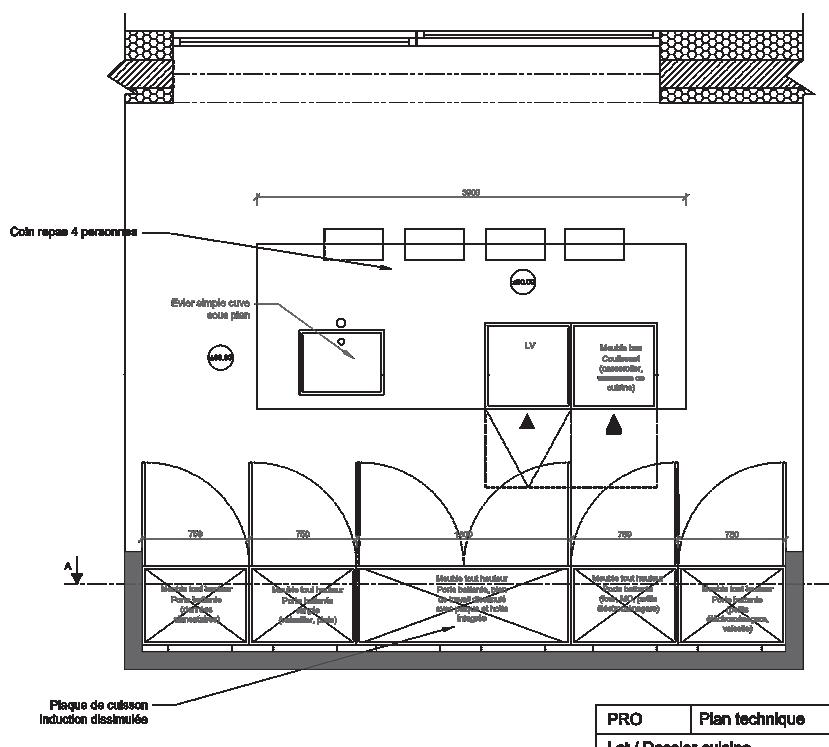
détails Elévation de la cuisine avec explications rangement.

Elevation esthétique Photoshop avec placage de textures, électroménager et éclairage.

Meuble

Etagères vaiselles

Etagères vaiselles

Etagères vaiselles

Etagères vaiselles

Etagères épices et

Etagères épices et divers

Etagères vaiselles

Four encastré

Etagères vaiselles

Etagères vaiselles

Cuisine : 18m² HSFP 334cm Meuble haut rgmts divers

Meuble

Ensemble des portes de façades en MDF placage chêne, poignées dissimulées

Crédence en MDF placage bois

Faux tiroir pour dissimuler encastrement plaque

Tiroir dissimulé coulissant vaiselle

Tiroir dissimulé coulissant vaiselle

rangements petit déj et

rangements petit déj et

rangements petit déj

rangements petit déj et

PRO Coupe technique BB : description rangements

Lot / Dossier cuisine Ech. 1/20e

78 impasse des Vignes 73410 Albens

Floriane Cannonge - promo MM

Mes : mm

- 13
haut hotte encastrée
rgmts divers
haut
Micro onde encastré
Plinthe
portes de placard et tiroirs en placage chêne
rgmts
Meuble haut hotte encastrée
divers
divers
condiments rgmts divers rgmts divers rgmts divers rgmts divers rgmts divers
rangements petit déj et
condiments
et condiments rangements
déj et condiments rgmts divers rgmts divers
rangements petit déj et
rangements petit déj
petit
condiments
condiments
condiments
et
condiments rgmts
rgmts
divers rgmts divers
divers
100 420 20 230 20 230 20 230 20 210 20 400 20 380 20 230 325 305 150 20 800 20 425 20 405 20 400 20 340 20 560 20 440 20 380 20 230 100 420 20 230 20 230 20 230 20 210 20 400 20 380 20 230

1 A propos

détails Croquis à la main avec insertion d’un papier peint Etoffe - Rendu

3D de la chambre avec vue sur le lit esprit cabane, bibliothèque et coin lecture au fond.

- 14
Floriane Cannonge 2 Architecture résidentiel 3 Architecture commercial

détails Rendu 3D de la salle de bain - Master suite, plan colorimétrique du 1er étage et plan colorimétrique de la salle de bain

- 15
Floriane Cannonge 2 Architecture résidentiel 3 Architecture commercial 1 A propos

client fictif - projet de 3ème année

2023 année

détails Création d’un appartement témoin dans une nouvelle construction. Volonté d’apporter du cachet à cet appartement neuf. Ajout de parquet massif et de meubles chinés. La cuisine est dissimulée par un meuble menuisé sur mesure en noyer offrant une bibliothèque d’un côté et un espace pour l’électroménager de l’autre.

La salle à manger attenante au séjour est lumineuse, discrète mais permet une bonne délimitation des espaces.

Une seule et même essence de bois est utilisée dans l’appartement apportant des petites touches chaleureuses au lieu.

- 16
Floriane Cannonge 2 Architecture résidentiel 3 Architecture commercial 1 A propos
TEMOIN

Floriane Cannonge

1 A propos

2 Architecture résidentiel 3 Architecture commercial

Projet de 2ème année - 2022 Création d’un escalier avec calculs, plans et devis de réalisation

Projet escalier Plan détaillé de l'escalier

Projet escalier Plan détaillé de l'escalier

Légende

Lot / Technique Ech : 1/25

Béton coulé

Escalier à quart tournant avec balancement

Floriane Cannonge - promo MM

Mes cm

Béton ciré 5mm

Lot / Technique

Escalier à quart tournant avec balancement

Floriane Cannonge - promo MM

Plancher supérieur bois

Légende

Ech : 1/25

Mes cm

Béton coulé

Béton ciré 5mm

Plancher supérieur bois

Projet escalier Coupe technique de l'escalier - vue de profil

Escalier à quart tournant avec balancement Lot / Technique Ech : 1/25

Floriane Cannonge - promo MM

Mes cm

Projet escalier Elévation technique de l'escalier

Escalier à quart tournant avec balancement Lot Technique Ech : 1/25

Floriane Cannonge - promo MM

Mes cm

- 17
+/- 0.00
280 96 247,08 343,08 16 16 43,96
+/-
246 34 17,5 17,5 17,5 17,5 17,5 17,5 17,5 17,5 17,5 17,5 17,5 17,5 17,5 17,5 17,5 17.5 183,03 10 30 80
500 105 246 85 90 130 5 63 63 63 70,5 89,11
ESCALIER

L’architecture commerciale

J’ai commencé à traiter des projets d’architecture commerciale il y a 2 ans. Les boutiques, restaurants et hôtels sont autant d’opportunités de créer avec un nouveau cahier des charges, de nouveaux besoins. Je suis particulièrement sensible à élaborer une charte graphique pour une marque, une enseigne et réutiliser cette dernière dans le lieu. Villa Madalena en est un très bon exemple.

COMMERCIAL

- 19
Floriane Cannonge 2 Architecture résidentiel 3 Architecture commercial 1 A propos
3

Floriane Cannonge

VILLA madalena

2 Architecture résidentiel 3 Architecture commercial 1 A propos

client projet de fin d’année - 4ème année

2023 année

détails Création d’un hôtel de charme sur les hauteurs de Nice dans un hôtel particulier.

Volonté de créer un lieu authentique mais haut de gamme avec peu de chambres mais de très bonnes prestations.

Création complète de l’identité du lieu, au branding et marketing en passant par l’architecture d’intérieur.

La campagne toscane a été mon inspiration principale autant sur le mode de vide des clients à l’hôtel que sur le design intérieur.

Madalena c’est quoi ? C’est la nonna. Celle chez qui il fait bon vivre, où l’on mange et on dort bien. L’endroit où l’on se ressource le temps d’un weekend. Le concept de l’hôtel découle de cette idée. Peu de chambres, un hôtel chaleureux mais qui respecte l’espace de chacun. Un endroit où prestations haut de gamme et authenticité se rencontrent. concept A gauche : motif et logo de l’hôtel.

- 20

détails Élévations axonométriques des 3 étages de l’hôtel, zoning des pièces et des différents espaces.

- 21
Floriane Cannonge 2 Architecture résidentiel 3 Architecture commercial
03 02 01
1 A propos

Incrustation du logo dans le placard, construction à flanc du mur.

Porte d’accès à la bagagerie et arrière réception dissimulée. Reprends la colorimétrie de la campagne toscane.

01
Sketchup / Vray rendering

01 / Réception de l’hôtel, avec arrière réception derrière les portes dissimulées.

02 / Zoom sur coin lounge avec accès au balcon

03 / Vue sur le coin lounge : espace salon et travail au fond.

Rendu 3D vue de haut du rez-de-chaussée

- 23 02 03
Floriane Cannonge 2 Architecture résidentiel 3 Architecture commercial 1 A propos

Accès au bar à vins locaux : bar en bois massif, tablette en métal doré brossé.

Escalier en direction des étages, présence de la signalétique sur les carreaux de ciments.

01 / Accès au bar et aux étages sur la gauche - signalétique reprenant le logo.

02 / Bar sur mesure reprenant les matériaux classiques toscan.

03 / Zone assise du bar avec carreaux Mutnia et table avec insertion du motif.

- 25
Floriane Cannonge 2 Architecture résidentiel 3 Architecture commercial
02 03
1 A propos

Floriane Cannonge

2 Architecture résidentiel 3 Architecture commercial 1 A propos

- Plan éclairagisme du 1er étage

- Rendu 3D d’une des 4 suites doubles vue, lit double à baldaquin sur le modèle toscan, suspension en verre soufflé.

- Zoom sur le dressing et bureau de la suite.

- Zoom vasque de la suite, carrelage Mutina et vasque en marbre italien.

SUITE DOUBLE

- 26
3ème anné e 28 boulev ar d du Par c Imp ér ial 06000 Nic e no nge F lor iane A3 En cm Ec h 1: 7 5 23/ 05/ 2023 P lan éc lair agis me - 1e r ét age A PS 3 46 m2 6,00 m2 1 2 3 4 5 7 8 9 1 0 1 1 1 2 1 4 1 5 1 6 1 7 1 8 9 0 9 cm 9 6 m 5 2 4 8 7 6 3 1 0 4 1 0 0 1 2 0 7 1 4 7 1 9 7 1 5 7 25 92 18 1 1 8 8 4 5 8 1 2 5 1 5 1 6 4 4 6 7 4 9 5 1 320 201 25 70 1 4 1 2 0 0 2 1 3 6 2 8 8 171 108 50 19 80 14 B B B B B
- 27
SALLE DE BAIN Floriane Cannonge 2 Architecture résidentiel 3 Architecture commercial 1 A propos
- 28 01
Floriane Cannonge 2 Architecture résidentiel 3 Architecture commercial 1 A propos

Floriane Cannonge

1 A propos

01 / Rendu 3D master suite de l’hôtel située au 2ème étage.

02 / Rendu 3D de l’entrée de la suite avec insertion de carreaux de terracotta dans le parquet d’origine massif

03 / Zoom rendu 3D de la salle de bain ouverte sur la chambre avec baignoire et douche.

Plan d’aménagement du 2ème étage.

2 Architecture résidentiel 3 Architecture commercial

Légende :

Estrade technique pour les salles de bains ayant une baignoire sur pieds

- 29 02 03
1 8 1 1 2 0 1 2 0 1 0 0 1 2 0 1 2 0 2 8 1 100 120 120 235 120 120 311 120 120 181 1 187 1 187 2 7 7 2 4 0 2 3 0 2 8 5 8 0 2 8 0 2 987 200 1 187

1 A propos projet de stage - Renaissance 2023

2 Architecture résidentiel 3 Architecture commercial

THE VILLAGE

L’hôtel est situé à Schaumburg - Illinois (USA).Il s’agit d’une rénovation globale des espaces communs et des suites tout en gardant le maximum afin de minimiser les frais de rénovation.

Schaumburg étant une ville industrielle et très fréquentée, l’objectif était d’amener le village à l’intérieur de l’hôtel, de créer un endroit confortable. La principale inspiration a été de créer un endroit contemporain mais chaleureux.

J’ai eu l’opportunité de réaliser les visuels 3D, élévations pour la salle de bain ainsi que la palette de matériaux du club lounge.

- 30
Floriane Cannonge

01 Plan d’aménagement d’une suite double avec travail du plafond

02 Plan colorimétrqiue du club lounge

03 Rendu 3D de la salle de bain avec miroir

04 Elévation photoshop vue de l’entrée de la salle de bain - douche et meuble vasque

05 Rendu 3D du club lounge avec cuisine

06 Palette de matériaux du club lounge

- 31
Floriane Cannonge
01 04 05
2
Architecture résidentiel 3 Architecture commercial 1 A propos
03
02

JACQUEMUS

L’objectif étant de créer une boutique à Marseille (France). Jacquemus est connu pour son esthétique très définie et ses produits minimalistes. Tous ces défilés sont inspirés par le début de sa carrière dans l’industrie de la mode ; avec ce projet, nous nous sommes concentrés sur le début de la vie de Simon Porte Jacquemus dans le sud de la France. Nous voulions que la boutique ressemble à une maison de famille, avec un jardin, une maison principale, quelques chambres et des meubles. Le jardin, tout en monochromie blanche, contraste avec la partie maison, en monochromie jaune.

1 A propos

Jacquemus - projet de 3ème année - groupe

2022

De vieilles portes en bois rustiques, des sous bassement recouverts de bois, un grand buffet rustique et d’autres éléments se conjuguent pour apporter une âme à la boutique. Tout est jaune pour être un peu plus minimaliste et recréer une maison provençale de manière plus moderne et architecturale. Le couloir a été pensé comme un couloir de maison, avec un accès direct aux autres pièces, comme les cabines d’essayage. Ici sont représentées la salle de bain (cabine PMR), la chambre d’enfant et le cellier.

- 33
Floriane Cannonge 2 Architecture résidentiel 3 Architecture commercial
02 03

Youssef Hotait - projet de 3ème année

2023

Pour ce projet de groupe et suite à une rencontre avec Youssef Hotait, créateur de mode, nous avons dû créer sa boutique parisienne en adéquation avec l’ADN de la marque.

Youssef Hotait est une marque très centrée sur les origines de son créateur (libanaise et allemande) et qui met en avant la sensualité des hommes. Nous avons souhaité traiter cela dans l’espace par le biais de 3 zones distinctes (cf zoning ci-dessous).

Les lumières ont eu un rôle très important dans notre projet, vous trouverez donc le plan d’éclairage.

- 35 2 Architecture résidentiel 3 Architecture commercial 02 03 CANNONGE Floriane BAEZA Jessie BERNARD Marine CHADEBAUD Elsa Margareth MacKintosh 2022-2023 YOUSSEF HOTAIT 21 Rue Sainte Croix de la Bretonnerie 75004 Paris Ech. 1/100 Mes. cm LOT Eléctricité Plan Eclairagisme APS HSFP 270 ±0,00 HSFP 270 HS Verrière 600 HS Verrière 350 N LEGENDES spot encastré plafond spot encastré sol applique mural suspension led boite perforée avec led dedans 2 interrupteur va-et-vient interrupteur simple Surface de vente 384 m² Réserves 69 m² mur en pierre naturelle avec isolant et finitions béton

1 A propos

2 Architecture résidentiel 3 Architecture commercial

01 Rendu 3D espace cabine, comme un cocon.

02

03

01 Cube central, rideau en bronze.

04 05

Cheminement à travers le magasin, de l’entrée aux cabines, les couleurs

Cintres qui prennent un aspect humain et font écho aux outils de musculation des hommes.

Zoom du cube central avec élément phare de la collection, les limites du carré sont accentué par la teinte des carreaux extérieures de la verrière

- 36
Floriane Cannonge
- 37
Floriane Cannonge 2 Architecture résidentiel 3 Architecture commercial
02
1 A propos
03 04 05

J’espère que vous avez apprécié mon travail et ma perception de l’architecture d’intérieur et du design global.

Vous pouvez me contacter à tout moment pour plus d’informations ! Merci :)

CONTACT

Téléphone : 07 83 73 04 75

Email : florianecannonge01@gmail.com

Linkedin : FlorianeCannonge

Instagram : @flcastudio

Turn static files into dynamic content formats.

Create a flipbook
Issuu converts static files into: digital portfolios, online yearbooks, online catalogs, digital photo albums and more. Sign up and create your flipbook.