Skip to main content

Portfolio arkitektur

Page 1


Hammarskiöld / 2017 - 2025

Lukas

LUKAS HAMMARSKIÖLD

Östervärnsgatan 6B

212 18 Malmö

Sverige

+46762409936

lukas.hld@live.se

Med brinnande intresse för arkitektur och design vill jag skapa framtidens hållbara levnadsmiljöer. Jag är färdigutbildad arkitekt med arbetserfarnehet från kontor och som frilans. Kreativiteten är min drivkraft i strävan efter att alltid bredda mina kunskaper och skaffa nya erfarenheter. Tveka inte att höra av er!

UTBILDNING

Arkitektur, Lunds tekniska högskola 2017 - 2023

God praktiskt och teoretisk kunskap inom arkitektur.

Faculty of Architecture , University of Lisbon

VT 2021, Ubytesstudier

Erfarenhet av att studera och leva i annat land/kultur.

Designskolan , Ölands Folkhögskola 2016 - 2017

Konstnärlig och processbaserad grund inom design, form och hantverk.

MJUKVAROR FÄRDIGEHTER

God kunskap:

Adobe: Ps, Ai, Ind

3D: Rhinoceros

Rendering: D5, Vray

Enscape, Lumion

AI: firefly, chatgpt

Final cut

Grundläggande:

Revit

AutoCAD

Sketchup

Grasshopper

3D-modellering

Visualisering

Projektering

Konceptutveckling

Illustration

Grafisk design

Modellbygge

Möbelformgivning

Svenska, engelska, norska, danska B-Körkort

ARBETSERFARENHETER

Arkitektpraktikant , White Arkitekter, Stockholm Jan - Juli 2021

Vidare utveckling av rollen som arkiekt. Arbetade i större team med olika sorters projekt inom bl.a. kultur och vård. Producerat grafiskt material i flera stadier- från tidiga skisser till slutgiltiga byggnadshandlingar.

Arkitektpraktikant , ERIK Arkitekter, Köpenhamn Sep 2020 - Jan 2021 Tagit del av ett arkitektkontors projekt och fått inblick i yrkeslivet som arkitekt. Producerat ritningar, renderingar, modeller samt skisser för främst bostadsprojekt.

Utställningsvärd , Form/Design Center, Malmö 2022 - pågående Delaktig i flera av verksamhetens områden; vaktande och bygge av utsällningar, cafe och butik. Kombination av service samt kunskap/utveckling inom arkitektur, design, konsthantverk och utställningsdesign.

Cafébiträde , Teaterbaren, Stockholm 2015 - 16

Marknadsförare , Nova Vista, Oslo, 2014

Förskoleassistent , Jobzone as, Oslo, 2014 - 15

Café/museivärd , Vamlingbo Prästgårds, Gotland Sommararna 2011 - 15

EGEN PRAKTIK

Frilans Egen utforskande arkitektur- och designdriven praktik genom tävlingar, egeninitierade projekt och mindre uppdrag

Gemensam designdriven praktik med vänner genom den delade studion Streck Office (@streck_office) feb 2024 - pågående

Ritningsarbeten 2018- pågående Uppmätande och ritande åt privatpersoners bostäder

Tävlingar i urval

Easdale ferry office, Terraviva, 2024-25, Honorable mention med “Ankomstpunkt: Easdale”

Horst art and music festival, 2025, under bedömning

Mellan-rummet, Form/design center, 2024 Tredje plats med “Rem och Regel”

INNEHÅLL

00. CV Curriculum vitae...................................................................02

01. Vattenbruket

Examensarbete om tångproduktion i Malmö.........04

02. Aerostatic Ett naturum för luftföroreningar...................................10

03. Två hus Kvalitativa bostäder i centrala Lund...........................12

04. Grönby kvarn Kvarn, bageri och bostäder på landet.......................16

05. Living with water Stadsbyggnadskoncept utifrån framtida vattenhöjningar i Lissabon.............................................18

06. Förskolan Trappen Hållbar och stimulerande miljö för barn..................20

07. Ankomstpunkt: Easdale Om- och utbyggnad av ett färjekontor......................22

08. Rem och Regel Förslag på installation till utlysningen “Mellan-rummet”...................................................................24

09. Möbler, modeller och grafiskt

Annat

01. VATTENBRUKET

En produktionsanläggning för tång

Individuellt / 5 månader / Examensarbete

Avståndet mellan produktion och konsumtion av livsmedel är långt. Dagens globala och komplexa matsystem har försvagat vår relation till råvarors ursprung och dess värde. Industrier hamnar allt längre bort i periferin och blir otillgängliga för stadens invånare. Med växande befolkning och ökat livsmedelsbehov krävs alternativa och transparenta former av matsystem som grundar sig i naturens egna processer.

Tång är en outnyttjad resurs från havet där intresset ökat för dess potential som framtida livsmedel. Utifrån tångens odlings- och förädlingsprocess undersöker arbetet hur ett närmre förhållande till

livsmedelsproduktion kan etableras. Hur kan arkitektur hjälpa oss komma närmre vår mat, och vilka värden kan det skapa? Då tångindustrin är ny och outforskad i Sverige samt bunden till en årscykel blir aspekter av tid och ovisshet viktiga delar i gestaltningen av en produktionsanläggning i centrala Malmö.

Projektet tar plats i Nyhamnen i Malmö. Ett av stadens äldsta hamnområden är idag fast mellan sin industrihistoria och spekulativa stadsutvecklingsplaner. Ett avspärrat hamnområde i närhet till innerstaden utgör därför en intressant utgångspunkt att utforska gränsen mellan industri, stad, människor och råvara.

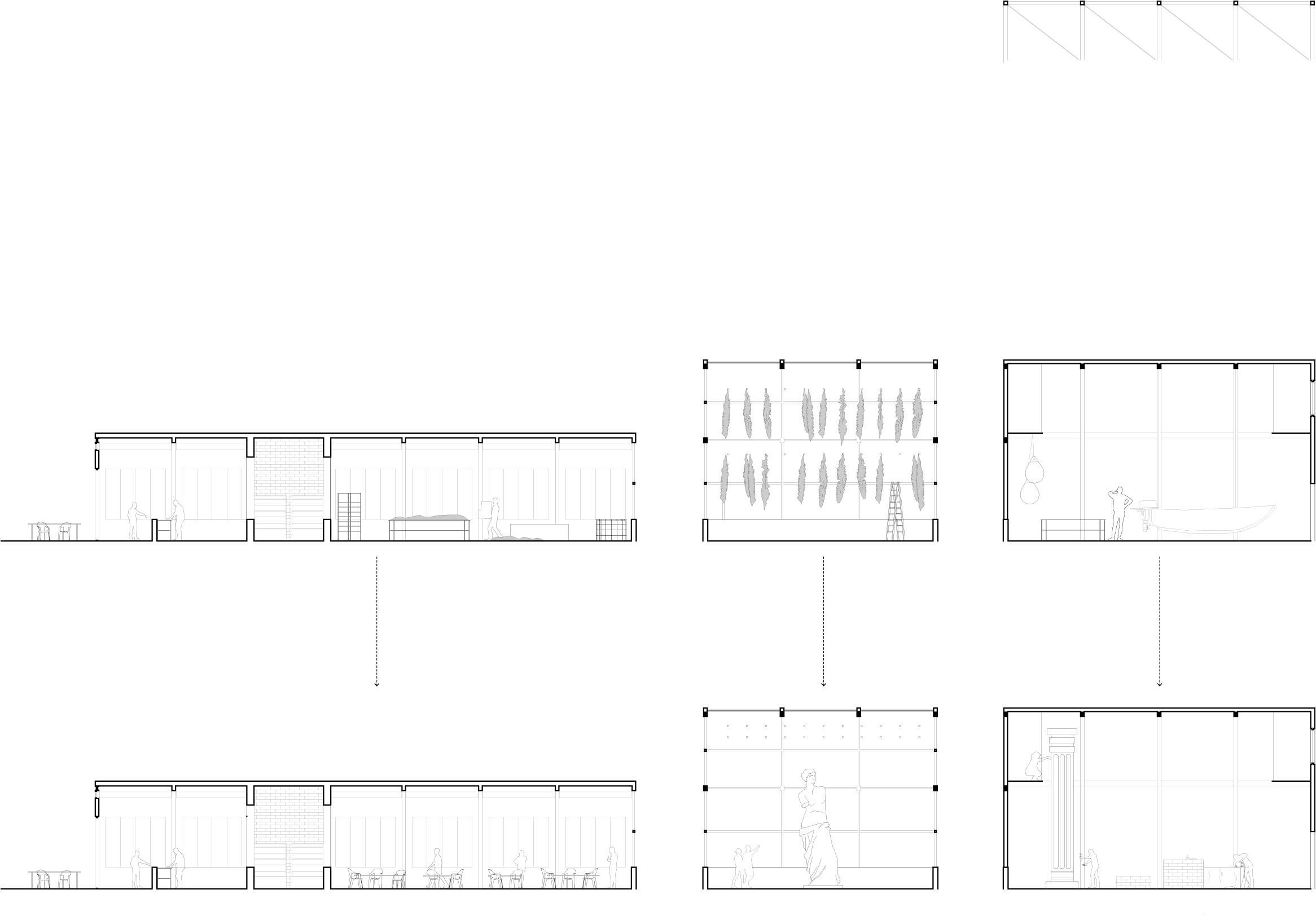
Utifrån en rationell placering av produktionens funktioner har publika verksamheter och flöden integrerats i anläggningen för att koppla människor närmre tångens ursprung och processer.

Produktionslinje

Produktionslinje:

1. Uppfödning

2. Havsodling

3. Skölj och kontroll

4. Tork

5. Förädling

6. Paketering

7. Leverans

Publik rörelse:

8. Servering

9. Butik / bar

10. Gemensam lokal

11. Havsträdgård

12. Research/föreläsning

Plan 1

Sektion
Verkstad
Förankring båt
Torkrum
Produktionshall
Kök
Servering
Bar/butik
Fermenteringsrum
Packetering
Lager
Export
Gemensamhetslokal
Havsträdgård
Vattenprovsstation

Interiör Torkrum

Exteriör En mindre odling i anslutning till anläggningen för pedagogiska och sociala syften.

Sektion B-B

02. AEROSTATIC

Center för luftföroreningar

Individuellt / 3 månader / Kandidatarbete

Kandidatkursen Arkitektur i samtid fokuserar på nya rumsliga och strukturella typologier genom utfroskande av parametriska modelleringsverktyg såsom Rhino och Grasshopper.

Huvuduppgiften var att utforma ett naturum i Limhamns kalkbrott i linje med de 17 hållbara utvecklingsmålen, med eget valt fokus på mål 13: klimatåtgärder för luftföroreningar. Konceptet är att visa luft i ett mer fysisk och begripligt sammanhang som samtidigt utmanar det traditionella konceptet kring naturum.

Limhamns kalkbrott i södra Malmö har en geologisk historia på över 65 miljoner år. Gruvdriften mellan 1866 till 1994 formade dess platåer och väggar. Sedan 2011 är det ett naturreservat med unik flora och fauna. Naturummet ligger placerat i det nedre högra hörnet. Siteplan

Luftmätningar Naturrummet kan mäta kringliggande luft varav takhöjden regleras därefter. Luftförhållandena blir läsbart i strukturen.

Translucit rörligt tak

Flexibelt tak av polykarbonat som kontrolleras av data från luften.

Solida väggar

Gjorda av metallskivor som kommer få patina med tiden.

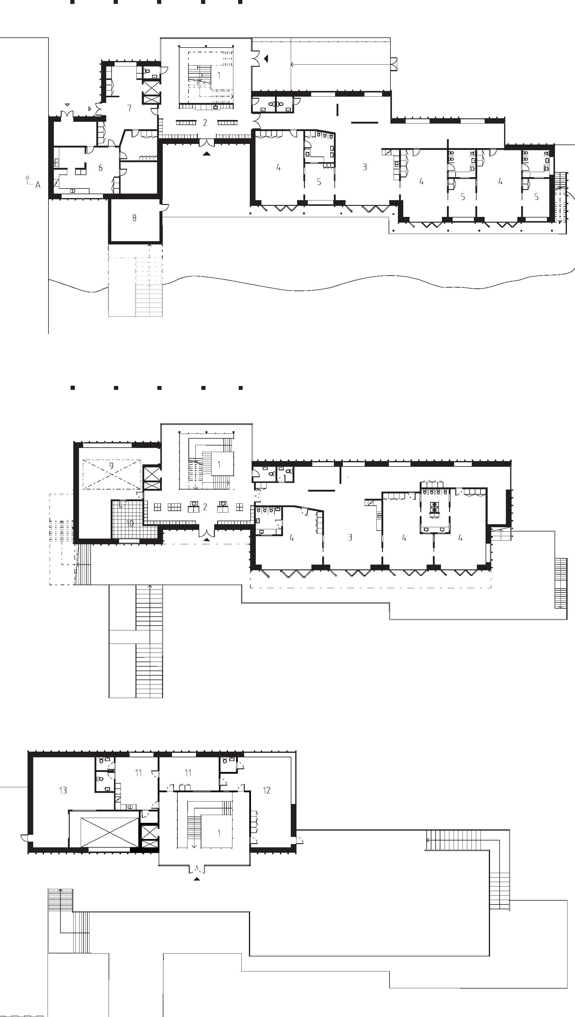
Plan 0

Entré, café, kontor, faciliteter och workshopyta

Plan -1

Utställningsyta

03. TVÅ HUS

Värdesökande bostäder i centrala Lund

Arbete med Karin Hedberg / termin 9 / 2 månader

Projektet grundar sig i ett sökande efter mätbara och omätbara värden i bostäder utifrån en urban kontext. Vilka kvaliteter kan vi faktisk planera för, och vilka uppstår i förhållande till platsen? Kråkelyckan är ett stort och lummigt kvarter strax nordöst om Lunds centralstation och erbjuder ett unikt möte mellan stad och natur.

Två byggnadsvolymer ligger placerade i L-form och definierar en innergård och flöde i marknivå. De flesta lägenheterna är runt 100 kvadratmeter och har utformats efter flexibilitet, cirkulation, siktlinjer samt privata och sociala ytor. Stora fönsterpartier

ger ljusinsläpp och visuell koppling till både stad och växtlighet. Gemensamma ytor finns på taknivå. Fasaden rymmer integrerade fågel- och insektshem. Ett biogalleri med café för urban biologisk mångfald huserar i gatuplan. Detta länkar samman bostäder med staden och naturen runtomkring.

St.Laurentiigatan

Siteplan

Koncept

1. Följande av kvartersstrukturen

2. Porositet och passager

Biodiversitet den dynamiska fasaden har integrerade fågel- och insektshem. Pergolor och rutnätsstrukturer låter grönskan klättra upp på byggnaderna.

Interiör badrum med öppningsbara frostade fönster som vetter mot den grönskande gården

3. Tillgängliggörande takytor och dagsljus på gården

4. Gemesamma ytor i botten- och taknivå

Interiör vy från kök med matsal och vardagsrum samt utgång till de båda balkongerna

Perspektivplan Lägenhet i gatuhuset med två sovrum, kök, matsal och vardagsrum med utgångspunkt i cirkulation, utblickar och uppdelning av privata och sociala ytor.

04. LIVING WITH WATER

Stadsplan anpassad för vattenhöjningar

Induviduellt / Termin 7 / 2 månader

Projektet gjordes under en utbytestermin på Faculdade de Arquitetura i Lissabon. Arbetet utgår från hur framtida vattenhöjningar orskade av klimatförändringar kan hanteras och integreras i en mindre stadsplan.

Sacavem ligger norr om Lissabons stadskärna. En mindre flod genom ett övergivet industriområdet gör platsen utsätt för översvämningar där den beräknade vattennivån i framtiden kan stiga till 4,5 meter ö.h.

Vatten infrastruktur +4.5 nivå

Typologier

3D rutnät

2.5 x 2.5 rutnät

Allmänna platser

Mark, väg, flod

Arbetet föreslår konceptuella typologier och offentliga rum anpassade till vattenstigning. Ett rationellt 2,5x2,5 meter rutnät är grunden och fungerar som ett konstruktiv och sammanbindande struktur i olika nivåer. Marken närmast vattnet (+0-1,5M) är allmän grönyta som kan sugea upp översvämmat vatten. Genom att fördela vattentankar i området kan överflödigt vatten lagras och användas i cirkulära aquaponiska odlingsystem för närproducerad mat och sociala mötesplatser.

Interiör vy Den gemensamma aquaponiska oldingen blir mötesplats och förser området med livsmedel

Cirkulärt vattensystem Överflödigt vatten lagras i tankar och används till de gemensamma växt- och fiskodlingarna samt som resurslagring och blir en mötesplats för boende i området

05. GRÖNBY KVARN

Kvarn, bageri och bostäder på landsbyggden

Arbete med Karin Hedberg / termin 9 / 1 månad

Det skånska landskapet med jordbruksfält, vyer och väderkvarnar lockar allt fler till ett liv nära naturen, men nuvarande boendesituation möter inte alltid deras behov. I norra Grönby i sydvästra skåne utvecklas en gastronomisk knutpunkt med en moderniserad kvarn, bageri och bostäder som kopplar samman området med dess kulturella historia. Kvarnen producerar mjöl och elektricitet, medan bageriet och caféet lockar besökare. Bostäderna är modulära och flexibla, med ett inne-ute utrymme som förenar hem och natur, inspirerat av gamla Skånegårdar. Enhelheten ska göra det möjligt för yngre att flytta till landsbygden och anpassa sitt boende efter tid och behov. Visualiseringar från 2025.

Interiör bageri och café

Koncept

Kvarnen som symbol för hantverk och landsbygd + +

Gastronomisk hub i Grönby lockar besökare

Kollektivt, flexibelt och hållbart boende i närhet till naturen

06. FÖRSKOLAN TRAPPEN

En förskola utifrån hållbarhetsaspekter

Arbete m. Marko Milosev / Termin 5 / 2 månader

Västerbro är ett industriområde i västra Lund. Miljön utgörs av tomma ytor och stora industribyggnader. I den framtida stadsplanen omvandlas industrierna till multi-use byggnader och området förtätas med nya huskroppar. Genom att aktivera takytorna förlängs gaturummen och nya dynamiska utemiljöer skapas i stadens andra nivå. I och med en förtätning kommer

behovet av förskola.Förskolan och binder samman mark och tak samt nyttjar sina egna tak till utemiljöer. Utemiljöer skapas i flera nivåer. Förskolans huvudfokus är hållbarhet inom det sociala, ekonomiska och ekologiska. Designen och utformning har styrts utav energi- och resursanvändning, samt skapa en så bra vistelsemiljö för barnen som möjligt.

UTFORMNING AV BYGGNADSKROPPEN

UTFORMNING AV BYGGNADSKROPPEN

1. staplande av tre våningsplan

1. staplande av tre våningsplan

UTFORMNING AV BYGGNADSKROPPEN 2. Förskjutning nordväst för

UTFORMNING AV BYGGNADSKROPPEN 2. Förskjutning nordväst för solljus och takyta 3. Sammanbindande atrium genom kropparna

1. staplande av tre våningsplan

Den vertikala kopplingen mellan mark och tak blir utöver kommunikation också plats för samling och lek

Allrummens placering har samtliga direkt utgång mot utemiljön i söderläge. Tak och gårdsytan fungerar då som en förlägning av

söder

7. Tvätt och förråd

Förråd

Vattenlukrum

Atrium/groventé
Kapprum
Torg 4. Allrum
Vilorum
Kök
Lekrum
Personalrum
Ateljé
Teknikrum

07. ANKOMSTPUNKT: EASDALE

Om- och utbyggnad av ett färjekontor

Individuellt / Tävlingsbidrag, honorable mention / 2024-25 https://www.terravivacompetitions.com/easdale-ferry-office-competition-results-2024/

På ön Easdale i norra Skottland planeras en utbyggd ankomstplats som förenar behovet av nya besöksfunktioner med öns kulturarv av skifferbrytning. Det existerande färjekontornet expanderar till informationscenter och nya volymer tillkommer med personalfaciliteter, väntrum, bastu och kajakuthyrning. Ett anspråklösa formspråk med bärande skiffertäckta gabionväggar, svartbetsad trästruktur och sedumtak integreras i landskapet för att skapa möten mellan besökare och lokalbefolkning.

Ankomstpunkt

1. Utbyggad av kontor 2. Gabion väggar
Easdale
Fastland
3. Pelar balk system i trä
4. Volymer och sedum tak

Plan 1.ankomst 2.väntrum 3.wc, dusch 4.förråd/verkstad 5.Infocenter 6.kontor 7.färjeoperatörers yta 8.kajak 9.bastu

färjebyggnaden blir informationscenter

Gamla
Sektion A-A
Nya ytor för färjeoperatörerna

08. REM OCH REGEL

Tillfällig installation på form/design centers innergård

Bidrag till utlysningen "Mellan-Rummet" i.o.m. Form/design centers 60års jubileum. Fokus på nya cirkulära byggmedtoder som ger sociala och estetiska värden till platsen. Reglar från brädgården

montereas med spännrem och kan därefter i famtiden ta annan form eller nyttjas till något annat, t.ex. en regelvägg likt diagrammet nedan.

kan bilda en scen för olika typer av samtal, föreläsningar och framträdanden.

Plan Genom fasta och flexibla sittplatser kan strukturen nyttjas i flera riktningar och skapa olika sociala ytor.
Pallarna
Med Veronica Larsson / 72 timmar, 2024 / Tävlingsbidrag tredje plats

09. MÖBLER...

Pallar till Streck Office

Individuellt formgivna pallar till den kollektiva studion. Ställdes ut under Southern Sweden Design Days 2024

Möbel baserad på subkulturen “urban exploring”

Arbete med Olivia Kornfält / Termin 3 / 1 månad

Ställdes ut på möbelmässan och form/design center 2019

...MODELLER OCH GRAFISKT

KV37 Modell för Kvarter 37 under praktiken på White Arkitekter 3D printad och laserskuren.

Print A4

Kalender 2025 Illustrerad och formgiven årskalender

Illustration

Turn static files into dynamic content formats.

Create a flipbook