


This report is not an insured product or service or a representation of the condition of title to real property. It is not an abst ract, legal opinion, opinion of title, title insurance commitment or preliminary report, or any form of Title Insurance or Guaranty. This report is issued exclusively for the benefit of the Applicant therefor and may not be used or relied upon by any other person. This report may not be reproduced in any manner without First American or Title Security's prior written consent. First American or Title Security does not represent or warrant that the information herein is complete or free from error, and the information herein is provided without any warranties of any kind, as-is, and with all faults. As a material part of the consideration given in exchange for the issuance of this report, recipient agrees that First American or Title Security's sole liability for any loss or damage caused by an error or omission due to inaccurate information or negligence in preparing this report shall be limited to the fee charged for the report. Recipient accepts this report with this limitation and agrees that First American or Title Security would not have issued this report but for the limitation of liability described above. First American or Title Security makes no representation or warranty as to the legality or propriety of recipient's use of the information herein.
This REiSource report is provided "as is" without warranty of any kind, either express or implied, including without limitations any warrantees of merchantability or fitness for a particular purpose. There is no representation of warranty that this information is complete or free from error, and the provider does not assume, and expressly disclaims, any liability to any person or entity for loss or damage caused by errors or omissions in this REiSource report without a title insurance policy.
The information contained in the REiSource report is delivered from your Title Company, who reminds you that you have the right as a consumer to compare fees and serviced levels for Title, Escrow, and all other services associated with property ownership, and to select providers accordingly. Your home is the largest investment you will make in your lifetime and you should demand the very best.
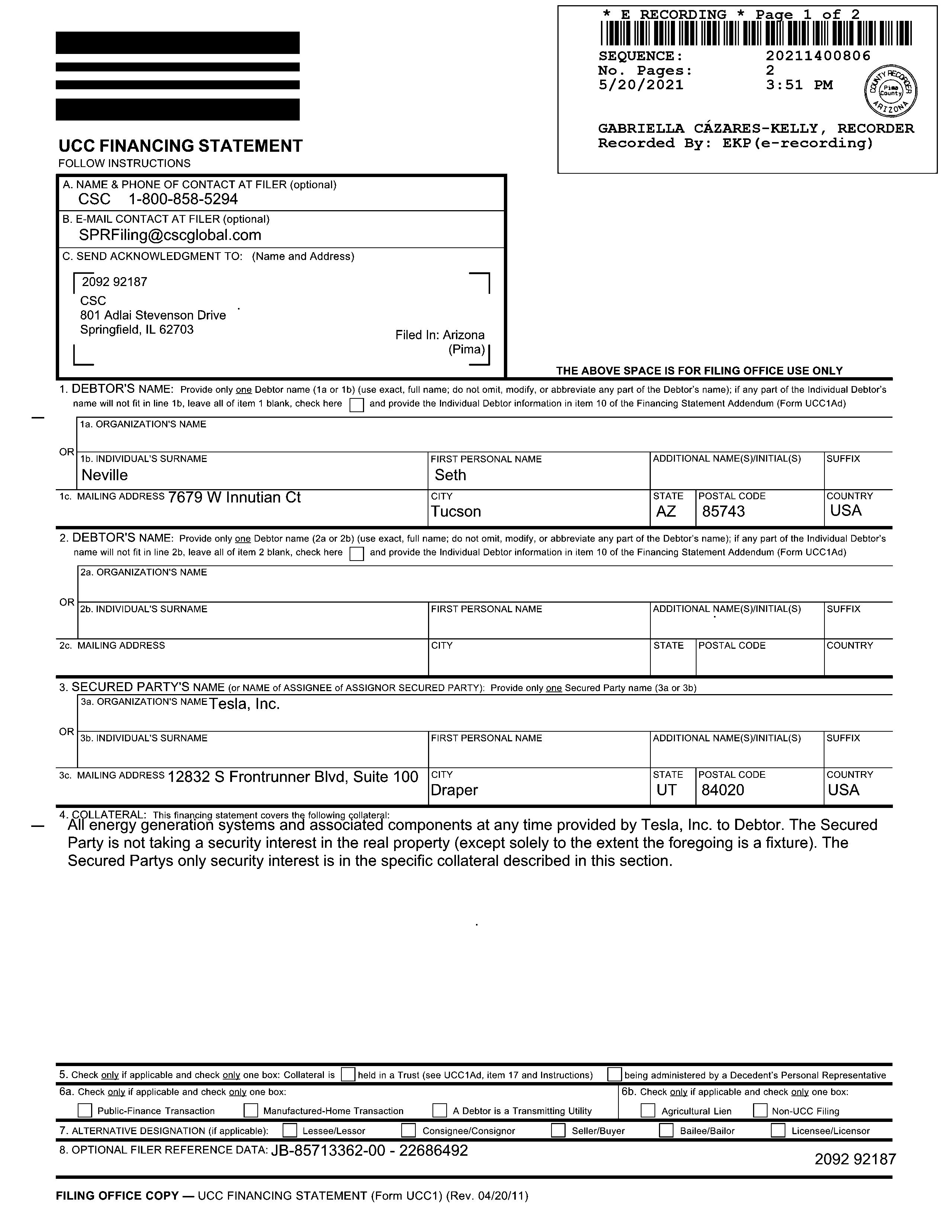
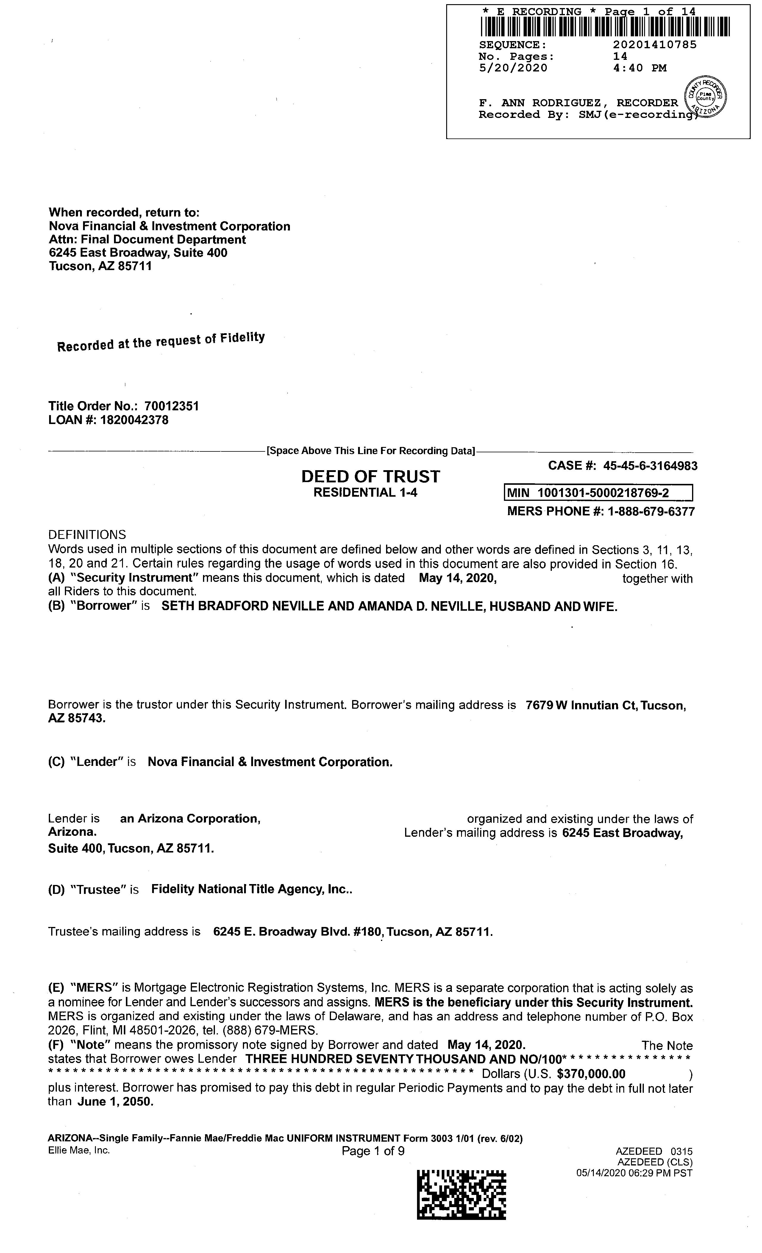
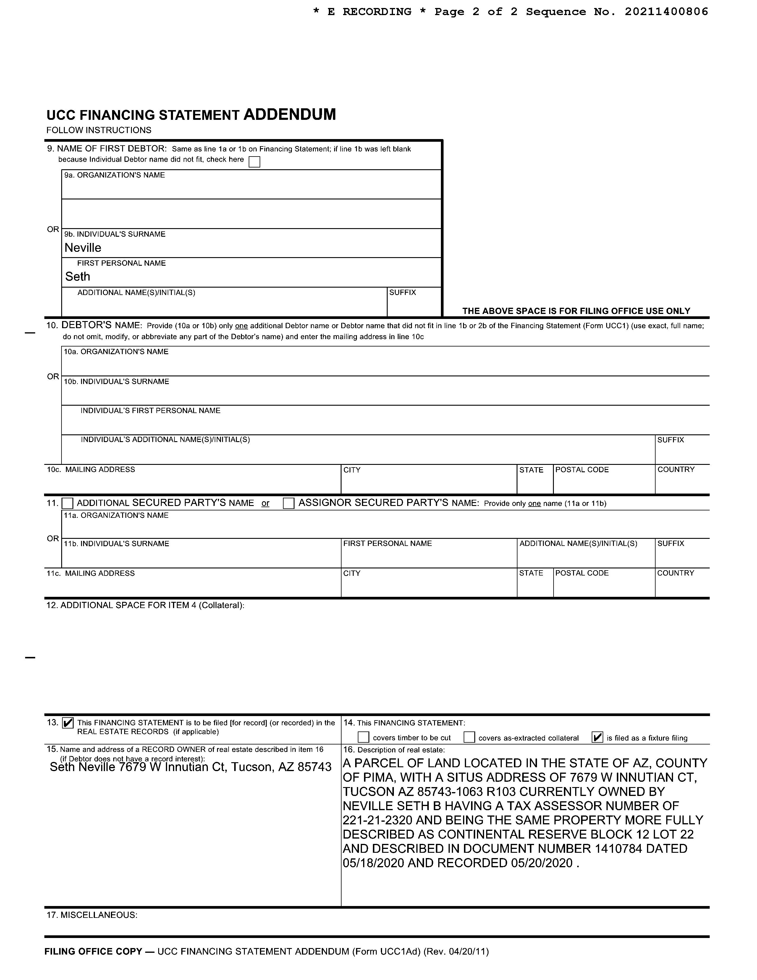
Subject Property : 7679 W Innutian Ct Tucson AZ 85743
Owner Name : Neville Seth Bradford / Neville Amanda Mailing Address : 7679 W Innutian Ct, Tucson AZ 85743-1063 R103
Vesting Codes : / / Community Property
Owner Occupied Indicator : O
Legal Description : Continental Reserve Block 12 Lot 22
County : Pima, Az
Market Area : 21
Census Tract / Block : 44.40 / 2 APN : 221-21-2320
Township-Range- Sect : 12S-12E-28
Legal Book/Page : 55-79
Legal Lot : 22
Subdivision : Continental Reserve
Map Reference : 28-12S-12E
School District : Marana
Legal Block : 12 Munic/Township : Marana
Recording/Sale Date : 05/20/2020 / 05/18/2020 1st Mtg Amount/Type : $370,000 / Va
Sale Price : $370,000 1st Mtg Document # : 1410785
Document # : 1410784
1st Mtg Term : 30
Deed Type : Warranty Deed Price Per SqFt : $127.24
Title Company : Fidelity Nat'l Title Agcy Inc
Lender : Nova Fin'l & Inv Corp
Seller Name : Navarro Roberto
Prior Rec/Sale Date : 11/10/2015 / 11/03/2015
Prior Sale Price : $270,000
Prior Doc Number : 3140419
Prior Deed Type : Warranty Deed
Prior Lender : Nova Fin'l & Inv Corp
Prior 1st Mtg Amt/Type : $265,109 / Fha
Customer Name : Chantel Cortez
Customer Company Name : FIRST AMERICAN TITLE
Prepared On : 01/18/2023
CoreLogic.
Gross Area : 2,908 Garage Capacity : 3 Pool : Pool
Living Area : 2,908 Roof Material : Tile Air Cond : Refrigeration
Total Rooms : 8 Heat Type : Forced Air Quality : Good
Year Built / Eff : 2004 Cooling Type : Forced Air Condition : Excellent
# of Stories : 1.5
Exterior wall : Frame Wood Bath Fixtures : 11
Parking Type : Garage Patio Type : Covered Patio Pool Size : 450
Land Use : Sfr Zoning : F Lot Size : 9,762
County Use : Single Fam Resurban Subd Lot Acres : 0.22 State Use : Single Fam Resurban Subd
Total Value : $305,011
Property Tax : $4,113.88 Current Year Total Value : $35,514
Total Taxable Value : $28,463 Tax Rate Area : 0612 Current Year Improvement Value :
$35,463
Assessed Year : 2021 Market Value : $305,011 Current Year Land Value : $50
Tax Year : 2021 Current Assessed Year : 2023
Customer Name : Chantel Cortez
Customer Company Name : FIRST AMERICAN TITLE Prepared On : 01/18/2023
Price $370,000 $450,000 $580,000 $506,778 Bldg/Living Area 2908 2481 2917 2785 Price Per Square Foot $127.24 $160 $200 $181.97 Year Built 2004 2003 2007 2005 Lot Size 9,762 6,325 14,885 7,967 Bedrooms Bathrooms 4 4 5 4 Stories 1.5 1 2 1
S 7679 W Innutian Ct 370,000 305,011 05/20/2020 4 2,908 9,762 2004 F 1 8070 N Iron Ridge Dr 580,000 302,294 06/30/2022 4 2,908 10,265 2004 0.05 F 2 8015 N Higgins Feather Dr 549,000 302,294 04/14/2022 4 2,908 10,707 2004 0.1 F 3 7987 N Higgins Feather Dr 550,000 284,615 05/25/2022 4 2,908 9,117 2004 0.13 F 4 8276 N Stonehill Dr 450,000 260,326 03/10/2022 4 2,481 7,083 2004 0.29 F 5 7458 W Balcony Bay Dr 530,000 258,778 08/25/2022 4 2,713 7,876 2005 0.31 F 6 7442 W Balcony Bay Dr 465,000 283,346 01/06/2023 4 2,908 8,662 2005 0.33 F 7 8274 N Rocky Brook Dr 510,000 298,108 05/20/2022 4 2,783 6,325 2003 0.35 F 8 7810 N Blue Brick Dr 560,000 303,861 04/01/2022 4 2,908 14,885 2005 0.36 F 9 8285 N Rocky Brook Dr 458,000 275,127 05/25/2022 5 2,783 6,325 2003 0.41 F 10 7458 W Crimson Ridge Dr 456,550 281,932 03/09/2022 4 2,783 6,325 2004 0.48 F Customer Name : Chantel Cortez Customer Company Name : FIRST AMERICAN TITLE Prepared On : 01/18/2023
11 7906 N Coltrane Ln 470,000 284,494 05/25/2022 4 2,537 9,687 2006 0.48 F
12 7804 W Shadow Wash Ct 535,000 296,878 03/15/2022 4 2,917 6,469 2007 0.49 F
13 7378 W Shining Amber Ln 455,000 273,779 03/23/2022 5 2,783 7,548 2004 0.51 F
14 8348 N Rocky Brook Dr 489,000 300,811 04/27/2022 5 2,783 6,765 2003 0.53 F
15 7173 W Dimming Star Dr 509,900 309,909 07/28/2022 5 2,875 6,848 2005 0.55 F
16 8428 N Moonfire Dr 470,000 283,469 11/17/2022 4 2,537 7,865 2007 0.55 F
17 8217 N Amber Burst Dr 475,000 262,303 08/10/2022 5 2,587 6,782 2005 0.6 F
18 8233 N Amber Burst Dr 575,100 309,909 09/01/2022 5 2,875 6,600 2005 0.61 F
19 8289 N Amber Burst Dr 518,000 293,078 02/15/2022 4 2,840 6,601 2005 0.65 F
20 8286 N Amber Burst Dr 530,000 304,441 12/29/2022 5 2,875 6,599 2005 0.67 F
Distressed Sales =
Customer Name : Chantel Cortez
Customer Company Name : FIRST AMERICAN TITLE Prepared On : 01/18/2023
Owner Name: Neville Seth Bradford /Neville Amanda APN / Alternate APN: 221-21-2320 / Deed Type: Warranty Deed Land Use: Sfr Subdivision / Tract: Continental Reserve / Lot Size: 9,762 Year Built / Eff: 2004 / Rec. Date / Price: 05/20/2020 / $370,000 Living Area: 2,908 # of units:
Document #: 1410784 Bedrooms: Pool: Pool Total Tax Value: $305,011 Bath(F/H): /
Owner Name: Polley Tyson R / APN / Alternate APN: 221-21-2770 / Deed Type: Warranty Deed Land Use: Sfr Subdivision / Tract: Continental Reserve / Lot Size: 10,265 Year Built / Eff: 2004 / Rec. Date / Price: 06/30/2022 / $580,000 Living Area: 2,908 # of units: Document #: 1810503 Bedrooms: Pool: Pool
Total Tax Value: $302,294 Bath(F/H): /
Owner Name: Karnap Jeremy /Jimenez Sarah APN / Alternate APN: 221-21-7020 / Deed Type: Joint Tenancy Deed Land Use: Sfr Subdivision / Tract: Continental Reserve / Lot Size: 10,707 Year Built / Eff: 2004 / Rec. Date / Price: 04/14/2022 / $549,000 Living Area: 2,908 # of units: Document #: 1040654 Bedrooms: Pool: Pool
Total Tax Value: $302,294 Bath(F/H): /
Owner Name: Crp & Associates Llc / APN / Alternate APN: 221-21-7050 / Deed Type: Warranty Deed Land Use: Sfr Subdivision / Tract: Continental Reserve / Lot Size: 9,117 Year Built / Eff: 2004 / Rec. Date / Price: 05/25/2022 / $550,000 Living Area: 2,908 # of units: Document #: 1450336 Bedrooms: Pool: Pool Total Tax Value: $284,615 Bath(F/H): /
#4
Owner Name: Macazani Francisco /Macazani Lori APN / Alternate APN: 221-21-1640 / Deed Type: Warranty Deed Land Use: Sfr Subdivision / Tract: Stoneridge / Lot Size: 7,083 Year Built / Eff: 2004 / Rec. Date / Price: 03/10/2022 / $450,000 Living Area: 2,481 # of units: Document #: 690525 Bedrooms: Pool: Total Tax Value: $260,326 Bath(F/H): /
Customer Company Name : FIRST AMERICAN TITLE Prepared On : 01/18/2023
Customer Name : Chantel CortezOwner Name: Perez Jesus M /Perez Rocio R
APN / Alternate APN: 221-27-0610 / Deed Type: Warranty Deed Land Use: Sfr Subdivision / Tract: Continental Reserve / Lot Size: 7,876 Year Built / Eff: 2005 / Rec. Date / Price: 08/25/2022 / $530,000 Living Area: 2,713 # of units: Document #: 2370477 Bedrooms: Pool: Total Tax Value: $258,778 Bath(F/H): /
Owner Name: Coffee Theresa /Coffee Steve
APN / Alternate APN: 221-27-0590 / Deed Type: Warranty Deed Land Use: Sfr Subdivision / Tract: Continental Reserve / Lot Size: 8,662 Year Built / Eff: 2005 / Rec. Date / Price: 01/06/2023 / $465,000 Living Area: 2,908 # of units: Document #: 61352 Bedrooms: Pool: Total Tax Value: $283,346 Bath(F/H): /
Owner Name: Peters Jeremy / APN / Alternate APN: 221-21-3160 / Deed Type: Warranty Deed Land Use: Sfr Subdivision / Tract: Continental Reserve / Lot Size: 6,325 Year Built / Eff: 2003 / Rec. Date / Price: 05/20/2022 / $510,000 Living Area: 2,783 # of units: Document #: 1400251 Bedrooms: Pool: Pool Total Tax Value: $298,108 Bath(F/H): /
Owner Name: Tate Michael /Tate Rebecca APN / Alternate APN: 221-27-0290 / Deed Type: Warranty Deed Land Use: Sfr Subdivision / Tract: Continental Reserve / Lot Size: 14,885 Year Built / Eff: 2005 / Rec. Date / Price: 04/01/2022 / $560,000 Living Area: 2,908 # of units:
Document #: 910856 Bedrooms: Pool: Pool Total Tax Value: $303,861 Bath(F/H): /
#9
Owner Name: Dwf Vi Atlas Sfr-az Llc / APN / Alternate APN: 221-21-3460 / Deed Type: Warranty Deed Land Use: Sfr Subdivision / Tract: Continental Reserve / Lot Size: 6,325 Year Built / Eff: 2003 / Rec. Date / Price: 05/25/2022 / $458,000 Living Area: 2,783 # of units: Document #: 1450649
Bedrooms: Pool: Total Tax Value: $275,127 Bath(F/H): /
Owner Name: Traylor Aron R / APN / Alternate APN: 221-21-4220 / Deed Type: Warranty Deed Land Use: Sfr Subdivision / Tract: Continental Reserve / Lot Size: 6,325 Year Built / Eff: 2004 / Rec. Date / Price: 03/09/2022 / $456,550 Living Area: 2,783 # of units: Document #: 680282
Bedrooms: Pool: Total Tax Value: $281,932 Bath(F/H): /
Customer Name : Chantel Cortez
Customer Company Name : FIRST AMERICAN TITLE Prepared On : 01/18/2023
#11
Owner Name: Olson Bethany / APN / Alternate APN: 221-27-1180 / Deed Type: Warranty Deed Land Use: Sfr Subdivision / Tract: Continental Reserve / Lot Size: 9,687 Year Built / Eff: 2006 / Rec. Date / Price: 05/25/2022 / $470,000 Living Area: 2,537 # of units: Document #: 1450522 Bedrooms: Pool: Total Tax Value: $284,494 Bath(F/H): /
Owner Name: Phelps Sean / APN / Alternate APN: 221-22-1480 / Deed Type: Warranty Deed Land Use: Sfr Subdivision / Tract: Ironwood Reserve / Lot Size: 6,469 Year Built / Eff: 2007 / Rec. Date / Price: 03/15/2022 / $535,000 Living Area: 2,917 # of units: Document #: 740833 Bedrooms: Pool: Pool Total Tax Value: $296,878 Bath(F/H): /
Owner Name: Santos Maria C / APN / Alternate APN: 221-21-3840 / Deed Type: Warranty Deed
Land Use: Sfr Subdivision / Tract: Continental Reserve / Lot Size: 7,548 Year Built / Eff: 2004 / Rec. Date / Price: 03/23/2022 / $455,000 Living Area: 2,783 # of units: Document #: 820207 Bedrooms: Pool: Total Tax Value: $273,779 Bath(F/H): /
Owner Name: Cornwell Joshua R / APN / Alternate APN: 221-21-3350 / Deed Type: Warranty Deed Land Use: Sfr Subdivision / Tract: Continental Reserve / Lot Size: 6,765 Year Built / Eff: 2003 / Rec. Date / Price: 04/27/2022 / $489,000 Living Area: 2,783 # of units: Document #: 1170207 Bedrooms: Pool: Pool Total Tax Value: $300,811 Bath(F/H): /
Owner Name: Smith April /Smith Aaron APN / Alternate APN: 221-41-1270 / Deed Type: Warranty Deed Land Use: Sfr Subdivision / Tract: Continental Reserve / Lot Size: 6,848 Year Built / Eff: 2005 / Rec. Date / Price: 07/28/2022 / $509,900 Living Area: 2,875 # of units: Document #: 2090531 Bedrooms: Pool: Pool Total Tax Value: $309,909 Bath(F/H): /
Owner Name: Nicolarsen Carol / APN / Alternate APN: 221-22-2950 / Deed Type: Warranty Deed Land Use: Sfr Subdivision / Tract: Ironwood Reserve / Lot Size: 7,865 Year Built / Eff: 2007 / Rec. Date / Price: 11/17/2022 / $470,000 Living Area: 2,537 # of units: Document #: 3210214
Bedrooms: Pool: Total Tax Value: $283,469 Bath(F/H): /
Customer Name : Chantel Cortez
Customer Company Name : FIRST AMERICAN TITLE Prepared On : 01/18/2023
Owner Name: Mahant Management Llc / APN / Alternate APN: 221-41-1590 / Deed Type: Warranty Deed Land Use: Sfr Subdivision / Tract: Continental Reserve / Lot Size: 6,782 Year Built / Eff: 2005 / Rec. Date / Price: 08/10/2022 / $475,000 Living Area: 2,587 # of units: Document #: 2220639 Bedrooms: Pool: Total Tax Value: $262,303 Bath(F/H): /
Owner Name: Dickens Megan / APN / Alternate APN: 221-41-1610 / Deed Type: Warranty Deed Land Use: Sfr Subdivision / Tract: Continental Reserve / Lot Size: 6,600 Year Built / Eff: 2005 / Rec. Date / Price: 09/01/2022 / $575,100 Living Area: 2,875 # of units: Document #: 2440437 Bedrooms: Pool: Pool Total Tax Value: $309,909 Bath(F/H): /
Owner Name: Kubelka Michael D /Kubelka Christine APN / Alternate APN: 221-41-1680 / Deed Type: Warranty Deed Land Use: Sfr Subdivision / Tract: Continental Reserve / Lot Size: 6,601 Year Built / Eff: 2005 / Rec. Date / Price: 02/15/2022 / $518,000 Living Area: 2,840 # of units: Document #: 460346 Bedrooms: Pool: Pool Total Tax Value: $293,078 Bath(F/H): /
#20 8286 N Amber Burst Dr Tucson Az 85743
Owner Name: Sanchez James D /Sanchez Crystal A APN / Alternate APN: 221-41-2160 / Deed Type: Warranty Deed Land Use: Sfr Subdivision / Tract: Continental Reserve / Lot Size: 6,599 Year Built / Eff: 2005 / Rec. Date / Price: 12/29/2022 / $530,000 Living Area: 2,875 # of units:
Document #: 3630421 Bedrooms: Pool: Pool
Total Tax Value: $304,441 Bath(F/H): /
Customer Name : Chantel Cortez
Customer Company Name : FIRST AMERICAN TITLE
Prepared On : 01/18/2023
Customer Name : Chantel Cortez Customer Company Name : FIRST AMERICAN TITLE Prepared On : 01/18/2023
© 2023 CoreLogic. All rights reserved
85629 520.625.3502
SUNNYSIDE UNIFIED 2238 E. Ginter Road, Tucson, AZ 85706 520.545.2000
TANQUE VERDE UNIFIED 2300 N. Tanque Verde Loop, Tucson, AZ 85749 520.749.5751
TUCSON UNIFIED 1010 E. 10th Street, Tucson, AZ 85717 520.225.6000
VAIL UNIFIED 10701 E. Mary Ann Cleveland Way, Tucson, AZ 85747 520.879.2000
Public Schools : Elementary Schools
Rattlesnake Ridge Elementary Distance 0.61 Miles 8500 N Continental Links Dr Tucson AZ 85743
Telephone : (520) 352-7000
School District : Marana Unified District (4404)
Lowest Grade : Pre-K Highest Grade : 6th Kindergarten : Yes School Enrollment : Enrollment : 457 Total Expenditure/Student : 269
Coyote Trail Elementary School Distance 1.27 Miles 8000 N Silverbell Rd Tucson AZ 85743
Telephone : (520) 579-5105
School District : Marana Unified District (4404)
Lowest Grade : Pre-K Highest Grade : 6th Kindergarten : Yes School Enrollment : Enrollment : 506 Total Expenditure/Student : 269
Twin Peaks Elementary School Distance 1.46 Miles 7995 W Twin Peaks Rd Tucson AZ 85743
Telephone : (520) 579-4750
School District : Marana Unified District (4404)
Lowest Grade : Pre-K Highest Grade : 8th Kindergarten : Yes School Enrollment : Enrollment : 787 Total Expenditure/Student : 269
Leman Academy Of Excellence Distance 1.94 Miles 7720 N Silverbell Rd Tucson AZ 85743
Telephone : (520) 639-8080
School District : Leman Academy Of Excellence Inc. (92730)
Lowest Grade : K Highest Grade : 8th Kindergarten : Yes School Enrollment : Enrollment : 1078 Total Expenditure/Student :
Customer Name : Chantel Cortez
Customer Company Name : FIRST AMERICAN TITLE Prepared On : 01/18/2023
Name Address
Telephone Distance (Miles)
Gateway Martial Arts Academy 7482 W Shining Amber Ln Tucson Az (520) 744-3377 0.41
Joanne D Rink 8484 N Moonfire Dr Tucson Az (620) 275-3741 0.6
Happy Dance Creations 7716 W Shining Moon Way Tucson Az (520) 250-8816 0.77
Jesse Stanley 7996 W Irnwood Rserve Ct Tucson Az (520) 975-6599 0.87
Name Address Telephone Distance (Miles)
Carrol Ann's Coffee 8140 N Iron Ridge Dr Tucson Az (520) 225-8248 0.14
Arizona Bay Brewing Co., Llc 8198 N White Stallion Pl Tucson Az (520) 990-3231 0.17
Blimpie Subs Salads 8685 N Silverbell Rd Tucson Az (520) 579-2620 0.79
La Olla Mexican Cafe 8553 N Silverbell Rd # 10 Tucson Az (520) 579-0950 0.87
Name Address Telephone Distance (Miles)
Pediatric Comm Svcs 8119 N Night Pony Dr Tucson Az (520) 780-1826 0.2
Kristen Lehmbeck 7759 W Thelon Ct Tucson Az (520) 403-1565 0.24
Groves Assisted Living, Llc 7961 W Sunset Ranch Pl Tucson Az (520) 825-7975 0.37
Hiscox Optometry, Pllchiscox, Jacob 8220 N Sunset Ranch Loop Tucson Az (520) 885-2052 0.38
Name Address Telephone Distance (Miles)
Atlantis Backyard Resorts, L.l.c. 6983 W Somerton Dr Tucson Az (520) 665-1813 0.99
Name Address Telephone Distance (Miles)
Vintage Church 8500 N Contntl Resv Loop Tucson Az (573) 228-1090 0.56
All Creeds Incbrotherhood 8001 N Scenic Dr Tucson Az (520) 744-2375 0.63
Light The Way Lutheran Church 8611 N Silverbell Rd Tucson Az (520) 360-8782 0.82
Customer Name : Chantel Cortez
Customer Company Name : FIRST AMERICAN TITLE Prepared On : 01/18/2023
Name Address Telephone Distance (Miles)
Fearfully Made Fitness 7173 W Dimming Star Dr Tucson Az (520) 850-9116 0.54
Ally Oop Fitness 8048 N High Branch Dr Tucson Az (520) 232-4855 0.76
Asg Salon & Spa, Llc 8711 N Moonfire Dr Tucson Az (520) 744-2966 0.83
Snap Fitness 8567 N Silverbell Rd # 12 Tucson Az (520) 395-2210 0.86
Name Address
Telephone Distance (Miles)
Exclusive Paint & Body 8514 N Snny Rock Ridge Dr Tucson Az (520) 400-0535 0.58
Off Road Trail Tools Llc 7099 W Hutchs Pools Pl Tucson Az (520) 579-2079 0.71
Quik-mart Stores, Inc. 8685 N Silverbell Rd Tucson Az (520) 579-2620 0.79
Customer Name : Chantel Cortez
Customer Company Name : FIRST AMERICAN TITLE
Prepared On : 01/18/2023
7708
Owner Name : Williams Anthony J
Sale Date : 10/14/2003
Subdivision : Continental Reserve
Recording Date : 10/17/2003
Total Value : $303,480 Sale Price : $232,455
Bed / Bath : / 4 Property Tax : $3,790.14
Land Use : Sfr Lot Acres : 0.21 Stories : 1.5 Living Area : 2,908
Yr Blt / Eff Yr Blt : 2003 / APN : 221-21-2350
Owner Name : Tsao Shu Ting Chen
Sale Date : 07/00/2004
Subdivision : Continental Reserve
Recording Date : 04/22/2005
Total Value : $255,473 Sale Price : $239,624
Bed / Bath : / 3 Property Tax : $3,003.99
Land Use : Sfr Lot Acres : 0.19 Stories : 1 Living Area : 2,198
Yr Blt / Eff Yr Blt : 2005 / APN : 221-21-2260
Owner Name : Polley Tyson R
Sale Date : 06/22/2022
Subdivision : Continental Reserve
Recording Date : 06/30/2022
Total Value : $302,294 Sale Price : $580,000
Bed / Bath : / 4 Property Tax : $4,076
Land Use : Sfr Lot Acres : 0.24
Stories : 1.5 Living Area : 2,908
Yr Blt / Eff Yr Blt : 2004 / APN : 221-21-2770
Owner Name : Jarecki Janine
Recording Date : 04/05/2016
Sale Date : 03/22/2016 Sale Price : $247,000
Total Value : $231,650
Property Tax : $3,660
Bed / Bath : / 3 Lot Acres : 0.18
Land Use : Sfr Living Area : 2,096
Stories : 1 APN : 221-21-8950
Yr Blt / Eff Yr Blt : 2003 /
Customer Name : Chantel Cortez
Customer Company Name : FIRST AMERICAN TITLE Prepared On : 01/18/2023
CoreLogic.
8096
Owner Name : Garcia Raul
Sale Date : 02/26/2004
Subdivision : Continental Reserve
Recording Date : 03/02/2004
Total Value : $232,725 Sale Price : $211,053
Bed / Bath : / 3 Property Tax : $3,283.67
Land Use : Sfr Lot Acres : 0.17
Stories : 1 Living Area : 1,917
Yr Blt / Eff Yr Blt : 2003 / APN : 221-21-8960
Owner Name : Lund Jody
Subdivision : Continental Reserve Sale Date : 12/03/2019
Recording Date : 12/11/2019
Total Value : $302,294 Sale Price : $349,900
Bed / Bath : / 4 Property Tax : $4,076
Land Use : Sfr Lot Acres : 0.20 Stories : 1.5 Living Area : 2,908
Yr Blt / Eff Yr Blt : 2004 / APN : 221-21-2240
Owner Name : Brown Edward L
Subdivision : Continental Reserve Sale Date : 03/02/2015
Recording Date : 03/09/2015
Total Value : $233,857 Sale Price : $252,000
Bed / Bath : / 3 Property Tax : $3,306.80
Land Use : Sfr Lot Acres : 0.16 Stories : 1 Living Area : 1,917
Yr Blt / Eff Yr Blt : 2004 / APN : 221-21-8970
Owner Name : Gard Brian Edward
Sale Date : 06/29/2015
Subdivision : Continental Reserve
Recording Date : 07/02/2015
Total Value : $276,943 Sale Price : $299,000
Bed / Bath : / 3 Property Tax : $3,800.21
Land Use : Sfr Lot Acres : 0.25
Stories : 1 Living Area : 2,156
Yr Blt / Eff Yr Blt : 2004 / APN : 221-21-2780
Customer Name : Chantel Cortez
Customer Company Name : FIRST AMERICAN TITLE Prepared On : 01/18/2023
CoreLogic.
Owner Name : Roberts Stephanie B
Sale Date : 09/21/2018
Subdivision : Continental Reserve
Recording Date : 09/26/2018
Total Value : $222,297 Sale Price : $270,000
Bed / Bath : / 3 Property Tax : $3,176.87
Land Use : Sfr Lot Acres : 0.17
Stories : 1 Living Area : 1,917
Yr Blt / Eff Yr Blt : 2004 / APN : 221-21-8930
Owner Name : Shain David J
Sale Date : 08/14/2019
Subdivision : Continental Reserve
Recording Date : 08/22/2019
Total Value : $242,087 Sale Price : $275,000
Bed / Bath : / 3 Property Tax : $3,333.99
Land Use : Sfr Lot Acres : 0.20
Stories : 1 Living Area : 2,156
Yr Blt / Eff Yr Blt : 2004 / APN : 221-21-2710
Customer
Customer Name : Chantel CortezNo demographics data for selected property.
Customer Name : Chantel Cortez
Customer Company Name : FIRST AMERICAN TITLE Prepared On : 01/18/2023
PARCEL: 221-21-2320 PARCEL: 221-21-2320 INSTRUMENT REC DATE
PRIMARY 29,127 0 0 8.7588 0612 SECONDARY 50 29,077 0 6.4610 2022 TOTAL TAX BILLED 3,934.08 2022 TAX AMT TAX DUE INTEREST DATE PAID TOTAL DUE FIRST HALF 1,967.04 0.00 0.00 10/24/2022 0.00 SECOND HALF 1,967.04 1,967.04 0.00 1,967.04 TOTAL CURRENT TAXES DUE 01/23 1,967.04 02/23 1,967.04 (ESTIMATED)
RESIDENTIAL BLDG SQFT 2,908 FULL CASH VALUE 291,272 YEAR BUILT 2004 LAND USE 01 31 NUMBER OF STORIES 1.5 LOT SIZE 1 STDLT STORIES HEIGHT 0 SCHOOL DISTRICT 0612 EXTERIOR WALLS FRAME WOOD LAND FULL CASH VALUE 502 GRADE MATERIALS IMPR FULL CASH VALUE 290,770
Thank you for the opportunity to be of service.
Restrictions indicating a preference, limitation or discrimination based on race, color, religion, sex, handicap, familial status, or national origin are hereby deleted to the extent such restrictions violate 42 USC 3604(c).
This information is furnished without fee and without benefit of a complete title search. No liability is assumed by First American Title or Title Security. If it is desired that liability be assumed, you may apply for a policy of title insurance with First American Title Insurance Company.
Southwest Gas 1.877.860.6020 www.swgas.com Cox 602.277.1000 www.cox.com
Direct TV 1.888.777.2454 www.directv.com
Dish Network 1.800.823.4929 www.dishnetwork.com CenturyLink 800.366.8201 www.centurylink.com AT&T 1.800.222.0300 www.att.com
Verizon 1.877.300.4498 www.connecttoverizon.com
Salt River Project 602.236.8888 www.srpnet.com APS 602.371.7171 www.aps.com
Welcome to the home-selling process. Throughout this process, you can count on First American Title to guide you smoothly through your transaction and provide expert answers to your questions. We are happy to serve you.
First American Title’s professionals are proud to provide the title insurance that assures people’s home ownership. Backed by First American Title Insurance Company, your transaction will be expertly completed in accordance with state-specific underwriting standards and state and federal regulatory requirements.
First American Title is the principal subsidiary of First American Financial Corporation, and one of the largest suppliers of title insurance services in the nation. With roots dating back to 1889, we’ve served families for generations.
First American Title has a direct office or agent near you, offering convenient locations throughout Arizona. We also have an extensive network of offices and agents throughout the United States, and internationally.
First American Financial Corporation offers more than title insurance and escrow services through its subsidiaries. Our subsidiaries also provide property data, title plant records and images, home warranties, property and casualty insurance, and banking, trust and advisory services.
Before you make the decision to try to sell your home alone, consider the benefits a REALTOR ® can provide that you may not be aware of.
› Understands market conditions and has access to information not available to the average homeowner.
› Can advertise effectively for the best results.
› Knows how to price your home realistically, to give you the highest price possible within your time frame.
› Is experienced in creating demand for homes and how to show them to advantage.
› Knows how to screen potential buyers and eliminate those who can’t qualify or are looking for bargain-basement prices.
› Knows how to go toe-to-toe in negotiations.
› Is always “on-call,” answering the phone at all hours, and showing homes evenings and weekends.
› Can remain objective when presenting offers and counter-offers on your behalf.
› Maintains errors-and-omissions insurance.
› Will listen to your needs, respect your opinions and allow you to make your own decisions.
› Can help protect your rights, particularly important with the increasingly complicated real estate laws and regulations.
› Is experienced with resolving problems to facilitate a successful closing on your home.
Only you can determine whether you should attempt to sell your home—probably your largest investment—all alone. Talk with a REALTOR® before you decide. You may find working with a professional is a lot less expensive and much more beneficial than you ever imagined!
Many people believe they can save a considerable amount of money by selling their homes themselves. It may seem like a good idea at the time, but while you may be willing to take on the task, are you qualified? The following are some questions to help you realistically assess what’s involved.
- have the knowledge, patience, and sales skills needed to sell your home?
- know how to determine your home’s current market value?
- know how to determine whether or not a buyer can qualify for a loan?
- understand the steps of an escrow and what’s required of you and the buyer?
- need to hire a real estate attorney? If so, do you know what the cost will be and how much liability they will assume in the transaction?
- know how to advertise effectively and what the costs will be?
- understand the various types of loans buyers may choose and the advantages and disadvantages for the seller?
- have arrangements with an escrow and title company, home warranty company, pest-control service and lender to assist you with the transaction?
- aware of conditions in the marketplace today that affect value and length of time to sell?
- concerned about having strangers walking through your home?
- familiar enough with real estate regulations to prepare a binding sales contract? Counter-offers?
- aware that every time you leave your home, you are taking it off the market until you return?
- aware that prospective buyers and bargain hunters will expect you to lower your cost because there’s no REALTOR® involved?
- prepared to give up your evenings and weekends to show your home to potential buyers and “just-looking” time wasters?
A REALTOR ® is a licensed real estate agent and a member of the National Association of REALTORS,® a real estate trade association. REALTORS ® also belong to their state and local Association of REALTORS.®
A real estate agent is licensed by the state to represent parties in the transfer of property. Every REALTOR ® is a real estate agent, but not every real estate agent has the professional designation of a REALTOR.®
A key role of the listing agent or broker is to form a legal relationship with the homeowner to sell the property and place the property in the Multiple Listing Service.
A key role of the buyer’s agent or broker is to work with the buyer to locate a suitable property and negotiate a successful home purchase.
The MLS is a database of properties listed for sale by REALTORS ® who are members of the local Association of REALTORS.® Information on an MLS property is available to thousands of REALTORS ®
These are the people who carry out the title search and examination, work with you to eliminate the title exceptions you are not willing to take subject to, and provide the policy of title insurance regarding title to the real property.
An escrow officer leads the facilitation of your escrow, including escrow instructions preparation, document preparation, funds disbursement, and more.
Mow and edge the lawn regularly, and trim the shrubs.
Make your entry inviting: Paint your front door and buy a new front door mat.
Paint or replace the mailbox, if needed.
If screens or windows are damaged, replace or repair them.
Repair or replace worn shutters and other exterior trim.
Make sure the front steps are clear and hazard-free. Make sure the doorbell works properly and has a pleasant sound.
Ensure that all exterior lights are working.
Check stucco walls for cracks and discoloration.
Remove any oil and rust stains from the driveway and garage.
Clean and organize the garage, and ensure the door is in good working order.
Shampoo carpeting or replace if worn. Clean tile floors, particularly the caulking.
Brighten the appearance inside by painting walls, cleaning windows and window coverings, and removing sunscreens.
Repair leaky faucets and caulking in bathtubs and showers.
Repair or replace loose knobs on doors and cabinets. If doors stick or squeak, fix them.
Make sure toilet seats look new and are firmly attached.
First impressions have a major impact on potential buyers. Try to imagine what potential buyers will see when they approach your house for the first time and walk through each room. Ask your REALTOR ® for advice; they know the marketplace and what helps a home sell. Here are some tips to present your home in a positive manner:
Repair or replace loud ventilating fans.
Replace worn shower curtains.
Rearrange furniture to make rooms appear larger. If possible, remove and/or store excess furniture, and avoid extension cords in plain view.
Remove clutter throughout the house. Organize and clean out closets.
Clean household appliances and make sure they work properly.
Air conditioners/heaters, evaporative coolers, hot water heater should be clean, working and inspected if necessary. Replace filters.
Check the pool and/or spa equipment and pumps. Make sure all are working properly and that the pool and/or spa are kept clean.
Inspect fences, gates and latches. Repair or replace as needed.
To make the best impression, keep your home clean, neat, uncluttered and in good repair. Please review this list prior to each showing:
Keep everything clean. A messy or dirty home will cause prospective buyers to notice every flaw.
Clear all clutter from counter tops.
Let the light in. Raise shades, open blinds, pull back the curtains and turn on the lights.
Get rid of odors such as tobacco, pets, cooking, etc., but don’t overdo air fresheners or potpourri. Fresh baked bread and cinnamon can make a positive impact.
Send pets away or secure them away from the house, and be sure to clean up after them.
Close the windows to eliminate street noise.
If possible you, your pets, and your children should be gone while your home is being shown.
Clean trash cans and put them out of sight.
If you must be present while your home is shown, keep noise down. Turn off the TV and radio. Soft, instrumental music is fine, but avoid vocals.
Keep the garage door closed and the driveway clear. Park autos and campers away from your home during showings
Hang clean attractive guest towels in the bathrooms.
Check that sink and tub are scrubbed and unstained.
Make beds with attractive spreads.
Stash or throw out newspapers, magazines, junk mail.
An estimate of value of property resulting from analysis of facts about the property; an opinion of value.
The borrower’s costs of the loan term expressed as a rate. This is not their interest rate.
The recipient of benefits, often from a deed of trust; usually the lender.
Closing Disclosure form designed to provide disclosures that will be helpful to borrowers in understanding all of the costs of the transaction. This form will be given to the consumer three (3) business days before closing.
Generally the date the buyer becomes the legal owner and title insurance becomes effective.
Sales that have similar characteristics as the subject real property, used for analysis in the appraisal. Commonly called “comps.”
Occurs when the borrower becomes contractually obligated to the creditor on the loan, not, for example, when the borrower becomes contractually obligated to a seller on a real estate transaction. The point in time when a borrower becomes contractually obligated to the creditor on the loan depends on applicable State law. Consummation is not the same as close of escrow or settlement.
An instrument used in many states in place of a mortgage.
Limitations in the deed to a parcel of real property that dictate certain uses that may or may not be made of the real property.
The date the amounts are to be disbursed to a buyer and seller in a purchase transaction or the date funds are to be paid to the borrower or a third party in a transaction that is not a purchase transaction.
Down payment made by a purchaser of real property as evidence of good faith; a deposit or partial payment.
A right, privilege or interest limited to a specific purpose that one party has in the land of another.
As to a title insurance policy, a rider or attachment forming a part of the insurance policy expanding or limiting coverage.
Real estate insurance protecting against fire, some natural causes, vandalism, etc., depending upon the policy. Buyer often adds liability insurance and extended coverage for personal property.
A trust type of account established by lenders for the accumulation of borrower’s funds to meet periodic payments of taxes, mortgage insurance premiums and/or future insurance policy premiums, required to protect their security.
A description of land recognized by law, based on government surveys, spelling out the exact boundaries of the entire parcel of land. It should so thoroughly identify a parcel of land that it cannot be confused with any other.
A form of encumbrance that usually makes a specific parcel of real property the security for the payment of a debt or discharge of an obligation. For example, judgments, taxes, mortgages, deeds of trust.
Form designed to provide disclosures that will be helpful to borrowers in understanding the key features, costs and risks of the mortgage loan for which they are applying. Initial disclosure to be given to the borrower three (3) business days after application.
The instrument by which real property is pledged as security for repayment of a loan.
A payment that includes Principal, Interest, Taxes, and Insurance.
A written instrument whereby a principal gives authority to an agent. The agent acting under such a grant is sometimes called an “Attorney-in-Fact.”
Filing documents affecting real property with the appropriate government agency as a matter of public record.
Provides a complete breakdown of costs involved in a real estate transaction.
TILA-RESPA Integrated Disclosures
Gets pre-approval letter from Lender and provides to Real Estate Agent.
Makes offer to purchase. Upon acceptance, opens escrow and deposits earnest money.
Finalizes loan application with Lender. Receives a Loan Estimate from Lender.
Completes and returns opening package from First American Title.
Schedules inspections and evaluates findings. Reviews title commitment/ preliminary report.
Provides all requested paperwork to Lender (bank statements, tax returns, etc.) All invoices and final approvals should be to the lender no later than 10 days prior to loan consummation.
Lender (or Escrow Officer) prepares CD and delivers to Buyer at least 3 days prior to loan consummation.
Escrow officer or real estate agent contacts the buyer to schedule signing appointment.
Buyer consummates loan, executes settlement documents, & deposits funds via wire transfer.
Documents are recorded and the keys are delivered!
Accepts Buyer’s offer to purchase.
Completes and returns opening package from First American Title, including information such as forwarding address, payoff lender contact information and loan numbers.
Orders any work for inspections and/or repairs to be done as required by the purchase agreement.
Escrow officer or real estate agent contacts the seller to schedule signing appointment.
Documents are recorded and all proceeds from sale are received.
Upon receipt of order and earnest money deposit, orders title examination.
Requests necessary information from buyers and sellers via opening packages.
Reviews title commitment / preliminary report.
Upon receipt of opening packages, orders demands for payoffs. Contacts buyer or seller when additional information is required for the title commitment/ preliminary report.
All demands, invoices, and fees must be collected and sent to lender at least 10 days prior to loan consummation.
Coordinates with lender on the preparation of the CD.
Reviews all documents, demands, and instructions and prepares settlement statements and any other required documents.
Schedules signing appointment and informs buyer of funds due at settlement.
Once loan is consummated, sends funding package to lender for review.
Prepares recording instructions and submits docs for recording.
Documents are recorded and funds are disbursed. Issues final settlement statement.
Accepts Buyer’s application and begins the qualification process. Provides Buyer with Loan Estimate.
Orders and reviews title commitment / preliminary report, property appraisal, credit report, employment and funds verification.
Collects information such as title commitment / preliminary report, appraisal, credit report, employment and funds verification. Reviews and requests additional information for final loan approval.
Underwriting reviews loan package for approval.
Coordinates with Escrow Officer on the preparation of the Closing Disclosure, which is delivered to Buyer at least 3 days prior to loan consummation.
Delivers loan documents to escrow.
Upon review of signed loan documents, authorizes loan funding.
The escrow is the process of having a neutral party manage the exchange of money for real property. The escrow holder is known as an escrow or settlement officer or agent. The buyer deposits funds and the seller deposits a deed with the escrow holder along with all of the other documents required to remove all "contingencies" (conditions and approvals) in the purchase agreement prior to closing.
Once a purchase agreement is signed by all necessary parties, the agent representing the party who will pay the fee selects an escrow holder and the buyer's earnest money deposit and contract are submitted to the escrow holder. From this point, the escrow holder will follow the mutual written instructions of the buyer and seller, maintaining a neutral stance to ensure that neither party has an unfair advantage over the other. The escrow holder also follows the instructions of the Buyer's new lender, the seller's existing lender, and both parties' agents. The escrow holder ensures the transparency of the transaction, while carefully maintaining the privacy of the consumers.
Open escrow and deposit good faith funds into an escrow account
Conduct a title search to determine the ownership and title status of the real property
Review the title commitment and begin the process of working with you and the title officer to eliminate the title exceptions the buyer and the buyer’s new lender are not willing to take subject to. This includes ordering a payoff demand from your existing lender.
Coordinate with the buyer’s lender on the preparation of the Closing Disclosure (CD)
Prorate fees, such as real property taxes, per the contract and prepare the settlement statement
Set separate appointments allowing the buyer and seller to sign documents and deposit funds
Review documents and ensure all conditions are fulfilled and certain legal requirements are met
Request funds from buyer and buyer’s new lender
When all funds are deposited and conditions met, record documents with the County Recorder to transfer the real property to the buyer
After recording is confirmed, close escrow and disburse funds, including proceeds, loan payoffs, tax payments, and more
Prepare and send final documents to all parties
Prior to the development of the title industry in the late 1800s, a home-buyer received a grantor’s warranty, attorney’s title opinion, or abstractor’s certificate as assurance of home ownership. The buyer relied on the financial integrity of the grantor, attorney, or abstractor for protection. Today, home-buyers look primarily to title insurance to provide this protection. Title insurance companies are regulated by state statute. They are required to post financial guarantees to ensure that any claims will be paid in a timely fashion. They also must maintain their own “title plants” which house duplicates of recorded deeds, mortgages, plats, and other pertinent county property records.
Title insurance provides coverage for certain losses due to defects in the title that, for the most part, occurred prior to your ownership. Title insurance protects against defects such as prior fraud or forgery that might go undetected until after closing and possibly jeopardize your ownership and investment.
Title insurance insures buyers against the risk that they did not acquire marketable title from the seller. It is primarily designed to reduce risk or loss caused by defects in title from the past. A loan policy of title insurance protects the interest of the mortgage lender, while an owner’s policy protects the equity of you, the buyer, for as long as you or your heirs (in certain policies) own the real property.
You pay for your owner’s title insurance policy only once, at the close of escrow. Who pays for the owner’s policy and loan policy varies depending on local customs.
Protection from: 1 Someone else owns an interest in your title 2 A document is not properly signed
Forgery, fraud, duress in the chain of title
Defective recording of any document 5 There are restrictive covenants 6 There is a lien on your title because there is: a) a deed of trust b) a judgement, tax, or special assessment c) a charge by a homeowner’s association 7 Title is unmarketable 8 Mechanics lien 9 Forced removal of a structure because it: a) extends on another property and/or easement b) violates a restriction in Schedule B c) violates an existing zoning law* 10 Cannot use the land for a Single-Family Residence because the use violates a restriction in Schedule B or a zoning ordinance
Unrecorded lien by a homeowners association
Unrecorded easements
Building permit violations*
Restrictive covenant violations
Post-policy forgery
Post-policy encroachment
Post-policy damage from extraction of minerals or water
Lack of vehicular and pedestrian access 19 Map not consistent with legal description 20 Post-policy adverse possession
Post-policy prescriptive easement
Covenant violation resulting in your title reverting to a previous owner
Violation of building setback regulations
Discriminatory covenants
Other benefits:
Pays rent for substitute land or facilities
Rights under unrecorded leases
Plain language statements of policy coverage and restrictions
Compliance with Subdivision Map Act
Coverage for boundary wall or fence encroachment*
Added ownership coverage leads to enhanced marketability 31 Insurance coverage for a lifetime 32 Post-policy inflation coverage with automatic increase in value up to 150% over five years 33 Post-policy Living Trust coverage * Deductible and maximum limits apply. Not available to investors on 1- to 4-unit residential properties. Coverage may vary based on an individual policy.
As with any insurance contract, the insuring provisions express the coverage afforded by the title insurance policy and there are exceptions, exclusions and conditions to coverage that limit or narrow the coverage afforded by the policy. Also, some coverage may not be available in a particular area or transaction due to legal, regulatory, or underwriting considerations. Please contact a First American representative for further information. The services described above are typical basic services. The services provided to you may be different due to the specifics of your transaction or the location of the real property involved.
One escrow transaction could involve more than 20 individuals, including real estate agents, buyers, sellers, attorneys, escrow officer, escrow technician, title officer, loan officer, loan processor, loan underwriter, home inspector, termite inspector, insurance agent, home warranty representative, contractor, roofer, plumber, pool service, and so on. And often, one transaction depends on another.
When you consider the number of people involved, you can imagine the opportunities for delays and mishaps. Your experienced escrow team can’t prevent unforeseen problems from arising; however, they can help smooth out the process.
Once the loan is approved and all invoices and paperwork have been provided, the lender and escrow officer will collaborate on the preparation of the Closing Disclosure (CD). In order to close on time, all paperwork and invoices should be submitted at least 10 days prior to the expected close of escrow date. The borrower must receive the CD at least three days* prior to consummation of the loan (typically the signing date). The escrow officer will also prepare an estimated settlement statement and inform the buyer of the balance of the down payment and closing costs needed to close escrow.
*For purposes of the Closing Disclosure“business day” is defined as every day except Sundays and Federal legal holidays.
The escrow holder will contact you or your agent to schedule a closing or signing appointment. In some states, this is the "close of escrow." In some others, the close of escrow is either the day the documents record or that funds are disbursed. Ask your escrow holder if you would like clarification about your state's laws.
You will have a chance to review the settlement statement and supporting documentation. This is your opportunity to ask questions and clarify terms. You should review the settlement statement carefully and report discrepancies to the escrow officer. This includes any payments that may have been missed. You are responsible for all charges incurred even if overlooked by the escrow holder, so it's better to bring these to their attention before closing.
The escrow holder is obligated by law to have the designated amount of money before releasing any funds. If you have questions or foresee a problem, let your escrow holder know immediately.
You will need valid identification with your photo I.D. on it when you sign documents that need to be notarized (such as a deed). A driver's license is preferred. You will also be asked to provide your social security number for tax reporting purposes, and a forwarding address.
If the buyer is obtaining a new loan, the buyer’s signed loan documents will be returned to the lender for review. The escrow holder will ensure that all contract conditions have been met and will ask the lender to "fund the loan."
If the loan documents are satisfactory, the lender will send funds directly to the escrow holder. When the loan funds are received, the escrow holder will verify that all necessary funds are in. Escrow funds will be disbursed to the seller and other appropriate payees. Then, the REALTOR® will present the keys to the property to the buyer.
Create an inventory sheet of items to move.
Research moving options You’ll need to decide if yours is a do-it-yourself move or if you’ll be using a moving company.
Request moving quotes Solicit moving quotes from as many moving companies and movers as possible. There can be a large difference between rates and services within moving companies.
Discard unnecessary items Moving is a great time for ridding yourself of unnecessary items. Have a yard sale or donate unnecessary items to charity.
Packing materials. Gather moving boxes and packing materials for your move.
Contact insurance companies. (Life, Health, Fire, Auto) You’ll need to contact your insurance agent to cancel/transfer your insurance policy. Do not cancel your insurance policy until you have and closed escrow on the sale.
Seek employer benefits. If your move is work-related, your employer may provide funding for moving expenses. Your human resources rep should have information on this policy.
Changing Schools. If changing schools, contact new school for registration process.
Contact utility companies Set utility turnoff date, seek refunds and deposits and notify them of your new address.
Obtain your medical records. Contact your doctors, physicians, dentists and other medical specialists who may currently be retaining any of your family’s medical records. obtain these records or make plans for them to be delivered to your new medical facilities.
Note food inventory levels Check your cupboards, refrigerator and freezer to use up as much of your perishable food as possible.
Service small engines for your move by extracting gas and oil from the machines. This will reduce the chance to catch fire during your move.
Protect jewelry and valuables. Transfer jewelry and valuables to safety deposit box so they can not be lost or stolen during your move.
Borrowed and rented items. Return items which you may have borrowed or rented. Collect items borrowed to others.
Plan your itinerary. Make plans to spend the entire day at the house or at least until the movers are on their way. Someone will need to be around to make decisions. Make plans for kids and pets to be at the sitters for the day.
Change of address. Visit USPS for change of address form.
Bank accounts Notify bank of address change. Make sure to have a money order for paying the moving company if you are transferring or closing accounts.
Service automobiles If automobiles will be driven long distances, you’ll want to have them serviced for a trouble-free drive.
Cancel services. Notify any remaining service providers (newspapers, lawn services, etc) of your move.
Start packing. Begin packing for your new location.
Travel items. Set aside items you’ll need while traveling and those needed until your new home is established. Make sure these are not packed in the moving truck!
Scan your furniture. Check furniture for scratches and dents before so you can compare notes with your mover on moving day.
Prepare Floor Plan. Prepare floor plan for your new home. This will help avoid confusion for you and your movers.
Review the house. Once the house is empty, check the entire house (closets, the attic, basement, etc) to ensure no items are left or no home issues exist.
Sign the bill of lading. Once your satisfied with the mover’s packing your items into the truck, sign the bill of lading. If possible, accompany your mover while the moving truck is being weighed.
Double check with your mover. Make sure your mover has the new address and your contact information should they have any questions during your move.
Vacate your home. Make sure utilities are off, doors and windows are locked and notify your real estate agent you’ve left the property.
First American Title Branch Locator
1 SUN CITY WES T 623.299.3644 13940 W. Meeker Blvd., #119 Sun City West, AZ 85375 N of Meeker Blvd W of R.H. Johnson
2 GOODYEAR 623.936.8001 1626 N. Litchfield Rd. Ste. #170 Goodyear, AZ 85395 NW corner of McDowell & Litchfield
3 ARROWHEAD 623.487.0404 16165 N. 83rd Ave , #100 Peoria, AZ 85382 S of Bell/E side of 83rd Ave
4 THE LEGENDS 623.537.1608 20241 N. 67th Ave , #A-2 Glendale, AZ 85308 E side 67th Ave/N of 101
5 ANTHEM 623.551.3265 39508 N. Daisy Mountain Dr., #128 Anthem, AZ 85086 NE corner Daisy Mtn Dr/ Gavilan Peak Pkwy
6 BILTMORE 602.954.3644 3200 E Camelback Rd., #123 Phoenix, AZ 85018 NE Corner of Camelback/32nd Street
7 TATUM RIDGE 480.515 4369 11211 N Tatum Blvd, #A150 Phoenix, AZ 85028 N of Shea, E side of Tatum
8 CAREFREE 480.575.6609 7202 E. Carefree Dr , Bldg 1, #1 Carefree, AZ 85377 NE corner of Tom Darlington/ Carefree Dr.
9 KIERLAND COMMONS 480.948.6488 14648 N Scottsdale Rd., Ste. #100 Scottsdale, AZ 85254 W of Scottsdale Road, S side of Greenway
10 SCOTTSDALE FORUM 480.551.0480 6263 N. Scottsdale Rd., #110 Scottsdale, AZ 85250 E Side Scottsdale/S of Lincoln
11 DC CROSSING 480.563.9034 18291 N. Pima Rd , #145 Scottsdale, AZ 85255 SE corner of Pima/Legacy
12 AHWATUKEE 480.753.4424 4435 E. Chandler Blvd , #100 Phoenix, AZ 85048 SW corner Chandler/45th St.
13 CHANDLER PORTICO 480.777.0051 2121 W. Chandler Blvd., #215 Chandler, AZ 85224 SW Corner Chandler Blvd./ Dobson Rd.
14 GILBERT SAN TAN 480.777.0614 1528 E. Williams Field Rd., #101 Gilbert, AZ 85295 NW corner of Williams Field Rd./ Val Vista Rd.
15 MESA 480.401.3738 1630 S. Stapley Dr., #123 Mesa, AZ 85204 N of Baseline / W of Stapley
16 RED MOUNTAIN
480.534.3599 1135 N. Recker Rd., #103 Mesa, AZ 85205 SE corner of Recker & Brown
17 GOLD CANYON 480.288.0883 6877 South Kings Ranch Rd., #5 Gold Canyon, AZ 85118 E of 60/ South Side Kings Ranch Rd.
1 MAIN OFFICE
520.885.1600 | Fax 520.885.2309 6390 E. Tanque Verde Rd. Tucson, AZ 85715
2 BROADWAY 520.747.1644 | Fax 520.747.1403 3777 E. Broadway Blvd., Ste. 220 Tucson, AZ 85716
3 CAMBRIC 520.577.8707 | Fax 520.529.5034 1840 E. River Rd., Ste. 200 Tucson, AZ 85718
4 CASA GRANDE 520.426.4600 | Fax 520.426.4699 421 E. Cottonwood Ln. Casa Grande, AZ 85122
5 CASAS ADOBES
520.575.1900 | Fax 520.432.0168 6760 N. Oracle Rd., Ste. 100B Tucson, AZ 85704
6 FOOTHILLS 520.299.4606 | Fax 520.577.6993 6262 N Swan Road, Suite 205 Tucson, AZ 85718
7 GREEN VALLEY 520.625.1095 | Fax 520.958.9663 190 W. Continental Rd., Ste. 226 Green Valley, AZ 85622
8 ORO VALLEY/LA CANADA 520.877.9200 | Fax 520.202.6348 11165 N. La Canada Dr., Ste. 143 Oro Valley, AZ 85737
9 ORO VALLEY/ORACLE
520.229.9194 | 520.297.2576 Fax 520.229.9210 | 520.742.5866 8500 N. Oracle Rd., Ste 100 Oro Valley, AZ 85704
10 RITA ROAD
520.618.7790 | Fax 520.901.1720 10222 East Rita Rd., Ste. 190 Tucson, AZ 85747
11 RIVER
520.529.1944 | Fax 520.615.2945 1650 E. River Rd., Ste. 105 Tucson, AZ 85718
12 SKYLINE
520.529.0506 | Fax 520.529.8998 2890 E. Skyline Dr., Ste. 200 Tucson, AZ 85718 13 TANQUE VERDE 520.202.2626 | Fax 520.495.6151 7479 E. Tanque Verde Tucson, AZ 85715