

portfolio.
SELECTED PROJECTS 2019-2025 FIORELLA CRISPIN
about me.

FIORELLA CRISPIN Architectural & Interior Designer
I’m a detail-oriented designer passionate about architecture and interior spaces. With experience supporting projects from design development through construction, I enjoy turning creative concepts into functional, well-crafted solutions. Recently completing the Interior Design Fundamentals Certificate at BCIT, I’ve strengthened my skills in Canadian construction practices and technical detailing. I’m eager to contribute my design vision, creativity, and collaborative approach to projects that make a meaningful impact for clients.

Petersen Residence
Status: Academic Project - BCIT
Year: 2025
Typology: Residential
Location: Deep Cove, North Vancouver, BC
Area: 3,169 sq. ft.
Software: AutoCAD, SketchUp, Enscape
The design direction for this home is guided by the client’s preference for a strong connection with nature. The main intention is to bring nature into the interiors, creating a home that functions as a peaceful retreat from daily life.
This two-storey residence features an open-plan layout that enhances visual continuity and maximizes views of the surrounding natural landscape of Deep Cove. The setting is characterized by lush greenery, coastal views, and a calm atmosphere, all of which strongly influence the overall design approach.
mood board

The mood board is inspired by the natural surroundings of Deep Cove and the clients’ desire to feel connected to nature within their home. The natural material selection aims to create a calm and serene ambiance, while subtle refined finishes add a sense of sophistication. The colour palette draws inspiration from sunset hues, combining warm earthy tones with accents of orange and red.









Typology: Residential Location: Vancouver, BC Area: 1,554 sq. ft.
Software: AutoCAD
This one-storey single-family residential project, developed for the Construction Drawings course at BCIT, aims to streghten proficiency in construction documentation. The scope included the preparation of coordinated floor plans including furniture, finishes, construction, and power & communication plans, as well as elevations. Relevant sections of the BC Building Code (Part 9 – Housing and Small Buildings) were applied, including fixtures clearances, outlets spacing, circulation requirements, and dimensional compliance with residential standards.
2 of 8
8.
7.
4.





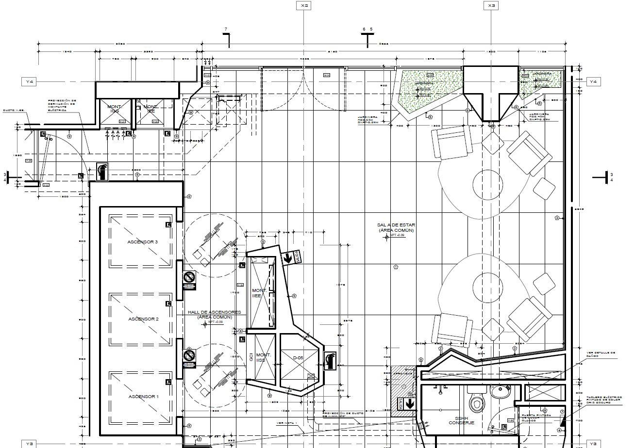
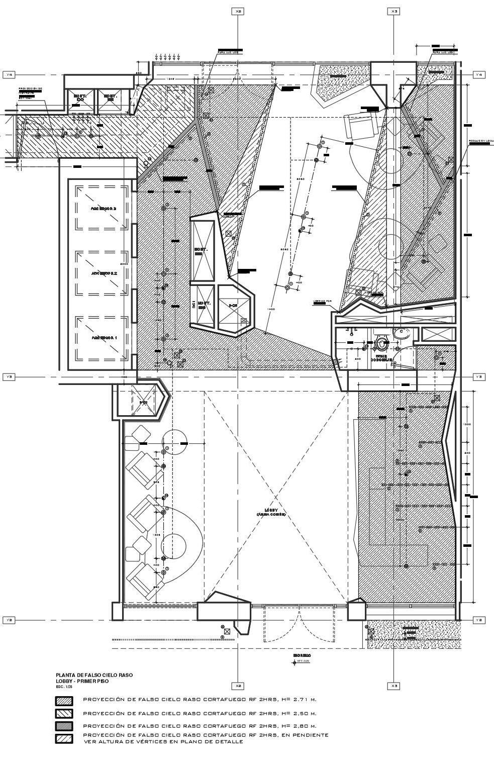
Salaverry 2431
Status: Designed - Reusche Reyna Atelier
Year: 2023
Typology: Multifamily (High-rise building)
6 basements, 28 stories
Location: San Isidro, Lima, Peru
Software: AutoCAD
Role: Junior Architect
Scope: CD
For the development of detailed drawings for the amenity areas of this 28-storey multifamily building, I collaborated with a team of three to manage deliverables under tight deadlines. My role focused on producing execution-level details that respected the design intent and material standards established by the design team and the builder’s guidelines. Additionally, this required reviewing engineering drawings to integrate technical requirements and proposing thoughtful solutions as needed.
Drawings and images property of Reusche Reyna Atelier Renders by A. Puch



LAYOUT

REFLECTED CEILING PLAN
rooftop pool area



FLOOR PLAN
bbq area


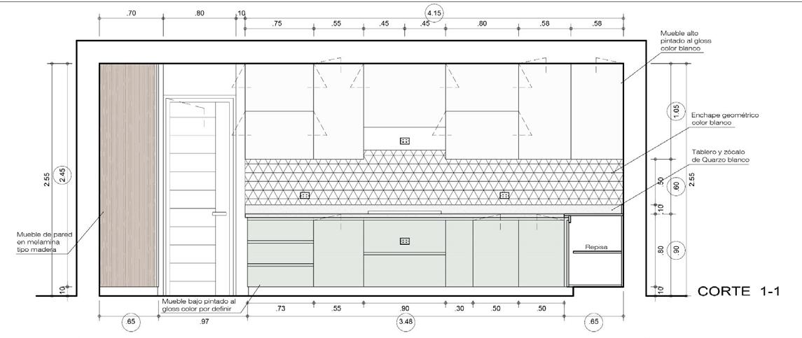
MILLWORK ELEVATION

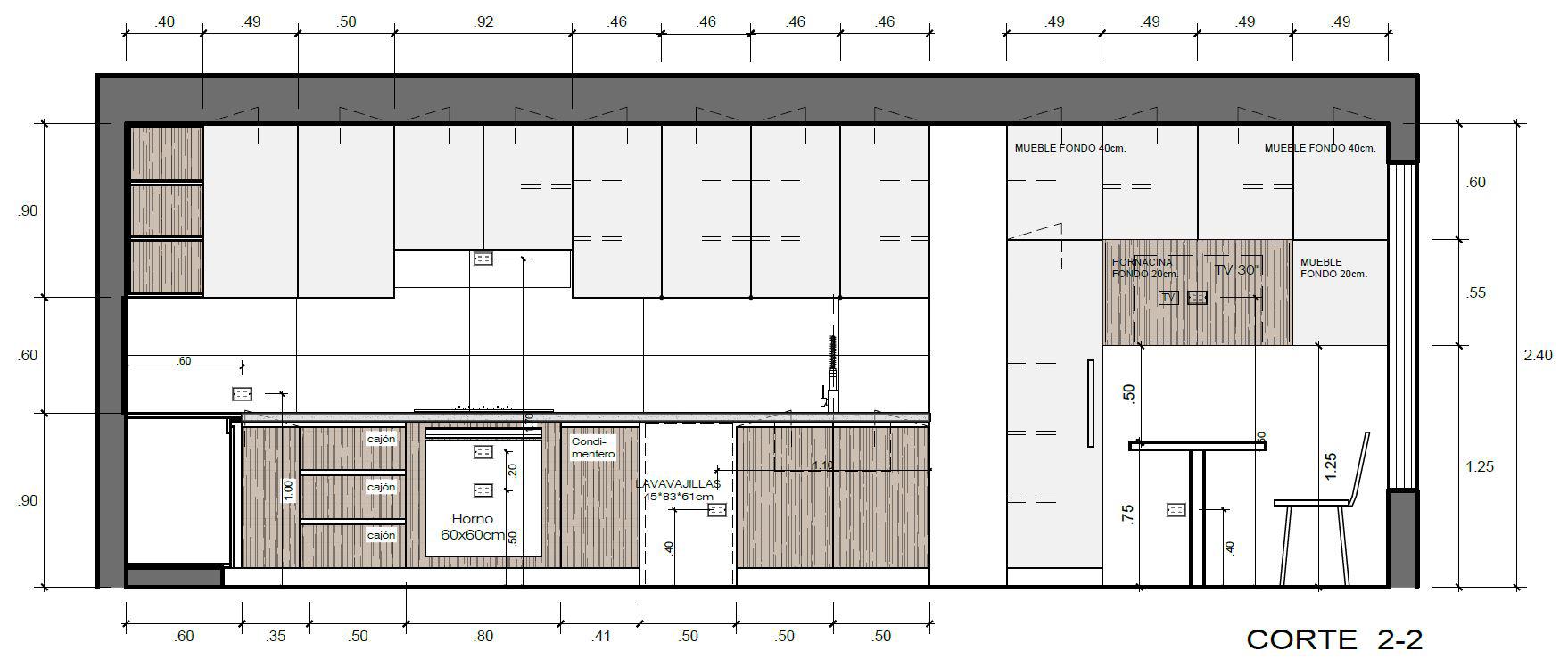
SEATING AREA ELEVATION

Millwork Drawings
Status: Built Projects - Arquiga
Year: 2021
Typology: Residential
Location: Lima, Peru
Software: AutoCAD, Photoshop, SketchUp
Role: Architectural Project Assistant
Scope: SD, DD, BP, CD


Drawings and Images property of Arquiga




Hand-drawn renderings
Status: Academic Project - BCIT
Year: 2025
Typology: Residential
Colour applications were explored to achieve visually balanced renderings. Using colour markers and freehand sketching techniques, these hand-drawn renderings effectively communicate the design intent, along with material and furniture selections.




furniture selection material selection





furniture board





Kidsmadehere
Status: Academic Project - UCAL
Year: 2019
Typology: Retail
Location: Miraflores, Lima, Peru
Area: 807 sq. ft.
Software: AutoCAD, SketchUp, V-Ray, Photoshop, Illustrator
Following Kidsmadehere’s established retail identity, this project proposes a layout and custom furniture aligned with the brand’s existing concept. Maintaining its vintage-inspired style, the design incorporates soft, warm lighting and natural materials such as wood and brick to reinforce a cozy and inviting atmosphere. The project is visually communicated through perspectives, diagrams, sections, plans, and V-Ray renders.

PRESENTATION PLAN FLOOR PLAN
presentation diagrams.


ZONES
MATERIAL SELECTION

3D SECTION

Passarela
Status: Academic Project - UCAL
Year: 2019
Typology: Corporative
Location: Miraflores, Lima, Peru
Area: 4822 sq. ft.
Collaborators: Juan Carlos Espinoza
Software: AutoCAD, SketchUp, V-Ray, Photoshop
The design of Passarela’s offices reflects its brand identity, preserving a minimalist visual lenguage with a contemporary and sophisticated image. Inspired by the brand name, the main circulation spine connecting both sides of the office features a dynamic pattern that creates a warm and youthful atmosphere. The colour palette uses an analogous combination complemented by neutral grey tones. The vibrant warm hues stimulate creativity and social interaction, while the grey tones ground the space.

Lobby
Hallway showcase
Showroom
Kitchenette
Training Room floor plan
General Archive
Storage
Boardroom
General Management Office
Executive Meeting Room 11. Planning and Finance Management
Commercial Management Office
Management Office
Meeting Room
Bleacher Seating Area

email: fiorellacrispinr@gmail.com
LinkedIn: www.linkedin.com/in/fiorellacrispin