Fiona Wilson-Shipp Architectural Portfolio

Page 1


ACHITECTURE PORTFOLIO

Selected Works 2022-2024

Fiona Wilson-Shipp

Architecture exists within phases of technique, pattern and tone. There exists archetypes that cast a shadow on the possibilities and paths of design. These archetypes have never found solace within my designs. Seeking a way to represent these predecessors, the box was formed. With facades representing different prototypes. Sat within the form is a presence that is a manifestation of self, resolute in its refusal to conform. Defying the constraints of the box, spilling over the sides, a metaphoric nonconformity of predefined archetypes. This is a representation of myself within architecture.

September 2024December 2024

Graduate Teaching Assistant

McEwen School of Architecture

• Supervising the digital fabrication lab

• Assisting students with the use of digital tools, performing minor maintenance on the machines

• Managing the point of sale and inventory system for the lab

September 2023April 2024

LA Assistant Librarian

McEwen School of Architecture

• organized and returned literature and resources within the library

• Provided assistance to students locating and procuring research materials

May 2023

August 2023

Architectural Student Intern

GEC Architecture

• Developed design iterations for an educational renovation project

• Interpreted design requirements and translated them into specification documentation

• Worked through an iterative design process for a residential masterplan, then prepared drawings for city rezoning application

• Produced renderings for the city to be used for public project

• Collaborated closely with architects and fellow interns to as project support

• Managed the workload and deadlines of many projects running simultaneously

September 2022April 2023

May 2022August 2022

LA Assistant Librarian

McEwen School of Architecture

Student Gardener

NCC (National Capital Comission)

• Provided care to Canada’s official residences, including the Prime minister’s summer home, cottage, guest house, speaker of the house’s residence, opposition leaders residence and rideau hall.

• Took care, maintained and rotated plants of all kinds

Fiona Wilson-Shipp

Masters of Architecture Student

Bachelors of Architecture

Minor of Psychology

Facade Design and Composition Award

McEwen School of Architecture

Ontario Graduate Scholarship

McEwen School of Architecture

LU Academic Excellence

McEwen School of Architecture

June 2024

September 2024

September 2020September 2024

September 2022Present The Telegraph

McEwen School of Architecture

Founding President

LA Student Association

McEwen School of Architecture

Masters 1 Representative

LA Student Association

McEwen School of Architecture

Executive Secretary

LA Student Association

September 2024Present

September 2023April 2024

September 2022April 2023

September 2021April 2022

LA

Assistant Librarian

McEwen School of Architecture

McEwen School of Architecture 3rd Year Representative

519-771-3782

40A Coachwood road Brantford, ON, N3R3R4 McEwen School Of Architecture

Psychological Understanding

• Emotion

• Motivation

• Cognition

• Social psychology

• Perception

• Receptor Processes

Digital software

• Adobe Photoshop

• Adobe Illustrator

• Adobe Indesign

• Adobe After Effects

• Rhino

• Grasshopper

• AutoCAD

• Revit

• Enscape Rendering

• Lumion Rendering

Construction and model making

• Power tools (Jig Saw, Drill Press,Scroll Saw,Band Saw, Table Saw, etc.)

• Hand Tools (Chisel, etc.)

• Other Modeling tools (3D printer, laser cutter)

Textiles

• Sewing

• Knitting

• Crocheting

• Embroidery

To Whom it May Concern,

I am writing to endorse Fiona Wilson-Ship, who worked with us in our Toronto Studio as a full-time student architect during the summer of 2023 Fiona was a great addition to our studio; she had a positive attitude and was a team player who meaningfully contributed to the success of our studio

Fiona worked on a variety of project-related tasks during her tenure with us, including:

• Assisting with the development of architectural designs for several smallscale renovation projects. Deliverables for these projects included site plans, floor plans, elevations, 3D models, renderings, and diagrams.

• Supporting land-use planning studies for proposed multi-family housing projects.

• Developing graphic diagrams and drawings for proposal submissions.

Fiona’s contributions were often utilized for client presentations and submissions. Her work was thoughtful and graphically compelling.

Fiona was great to work with and she easily integrated into our office culture. She would be an asset to your team.

We wish Fiona success in her future career.

Best Regards,

B.A (with distinction), M.Arch., Architect, AAA, AIBC, SAA, MRAIC

Village of the Aspen Trees

It was the Aspen tree that yielded the appropriate response to the question of interconnectivity, support, and growth in the community setting. Looking beneath the surface of the earth, the root system of the Aspen Forest lends valuable lessons on how a well-knit community can thrive, learning and growing up with and from each other. The Aspen root structure is built in such a way that it moves in a lateral direction, with sporadic shoots that dive deeper into the ground. This lateral drive, however, creates opportunities for new shoots, called suckers to arise and thus grow into a new Aspen Tree. In this fashion, every Aspen tree is connected to one another. When discussing the problem of the lone parent household, lessons of interconnectivity can be learned and applied through thoughtful interpretations of architectural programs and intentions of bettering the lives of those involved. It is from this interconnection seen from the Aspen Tree that can start to influence programmatic adjacencies, and the paths on which one wanders, and the moments that one takes to stop and watch others, whether they be other parents or other children. It is from these moments that new growth may appear, feeding off the lessons of those around. A building designed in such a way must draw from lessons of seeing, watching, and learning, because for us, the eyes are the roots to feed off the information all around us. Opportunities to grow must come from a comfortable environment, where seeing, interacting, meeting and learning – community - are made possible because of the architectural objectives passed down from the Aspen Trees.

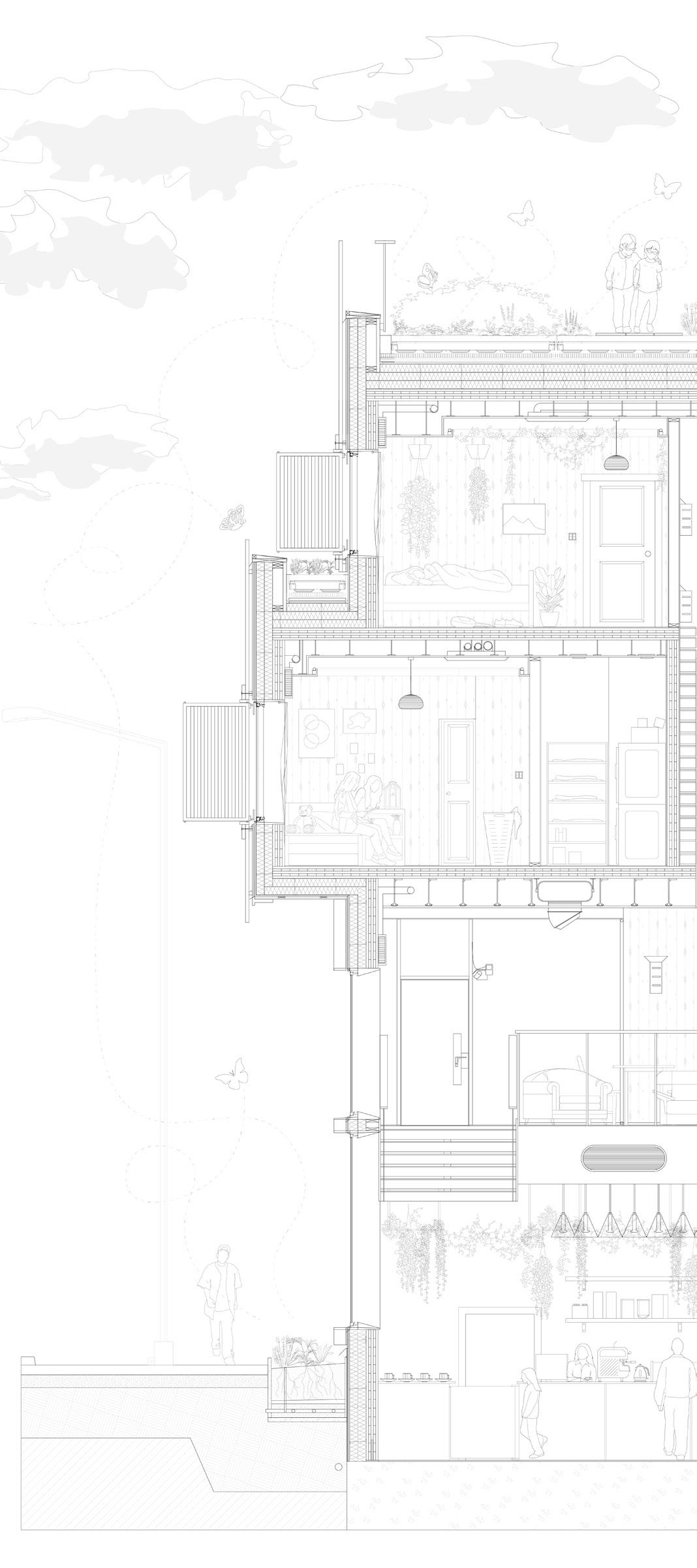
Project Notes

Project Status Course

Collaborators

Project Length Date Completed Studio Jenson Clarke

7 Months Oct - April 2024

12.7mm Flooring

175mm 5-Ply CLT

1.5mm Vapour Barrier

120mm Cellulose Fiber insulation

120mm Cellulose Fiber insulation

19mm Particle board

25mm Drainage space

25mm Wooden Spacers

19mm Cedar board rainscreen

Operable Window Screen

Fastened back into 50x50mm horizontals

Track with rollers Track with rollers

Grab bar fixed to operable screen

Fastened back into 50x50mm horizontals

50mm Vertical Slats

50mm Horizontal Slats

19mm Cedar board Rainscreen

15mm Drainage space

15mm Vertical Hat channels

19mm plywood

120mm Cellulose Fiber insulation

120mm Cellulose Fiber insulation

240mm Fiberglass Z-Girts

1.5mm Vapour Barrier

175mm 5-Ply CLT

90mm LiveRoof Engineered Soil

179mm LiveRoof Module

52mm Root Barrier / Slip Sheet

37mm Waterproofing Membrane

19mm Particle Board

120mm Cellulose Fiber insulation

120mm Cellulose Fiber insulation

120mm Cellulose Fiber insulation

360mm Fiberglass Z-Girts

1.5mm Vapour Barrier

175mm 5-Ply CLT

RSI

Smooth Rock Falls Civic Center

During the conception of the Smooth rock falls Civic Center, my aim was to harmonize its design with the evolving masterplan which this building was a part of. The masterplan is split into 4 phases and so is the proposed building. Each phase introduces distinct architectural elements that enrich the fabric of Smooth Rock Falls. The central focus was to create a building which seamlessly integrates itself within the masterplan and community offering adaptability and synergy at each phase. Embracing the growth of the community the Civic Centre is designed to be a building within a building. Its structure encloses the internal building which ensures year-round comfort. This architectural approach fosters a connection between residence and the surrounding landscape. Beyond its functional role, the civic Center serves as a place of communal engagement, creating connections between residents and the surrounding landscape.

Project Notes

Project Status Course Collaborators

Project Length Date Completed Studio Individual 2.5 Months Feb - April 2023

1-Garden

2-Proposed Civic Center

3-Gathering Space

4-Indigenous Learning Space

5-Proposed Hotel

6-Proposed Developemnt

Early Education Center

In the realm of architecture, sight and sound play off each other in complex ways. Guided by this principle, sight and sound can be orchestrated to shape spatial experiences. Central to this exploration is the recognition of the distinct roles played by adults and children within these environments, each offering unique perspectives. With the focus on creating spaces that encourage play and learning, yet ensure safety and security, by employing design elements such as short walls to delineate boundaries while maintaining visual connectivity. The deliberate choice of a circular form allows sound to permeate freely, fostering a sense of life within the building. At the center of the design lies a transparent courtyard encased in glass, a space of openness and connectivity. Children are afforded the opportunity to engage with their surroundings unencumbered by isolation and barriers. Recognizing the pivotal role of sensory exploration in early childhood development, the architecture serves as a catalyst for cognitive growth, nurturing a profound understanding of the world in an intimate and secure setting. Through this holistic approach, the early education center becomes more than just a physical space; it becomes a canvas for the nurturing of young minds, fostering a deep connection to their environment while laying the foundation for lifelong learning and understanding. Project

Exterior 1- Playground 2- Garden 3- Coverd Playspace

1- Play Activity Room (Pre-School) 2- Quite Room (Pre-School)

3- Cubbies (Pre-School)

4- Play Activity Room (Toddler)

5- Quite Room (Toddler)

6- Cubbies (Toddler)

7- Play Activity Room (Infant)

8- Quite Room (Infant) 9- Storage 10- Library Reading Space

and

Building Section|

Aviary

Lake Laurentian is a place of regrowth and renewal. In response to a concerted effort to restore its natural beauty, the focus has been on nurturing the natural vegetation back to what it once was.

Yet, amidst this renewal, one vital aspect of the ecosystem has been overlooked, the birds. Transient yet integral, birds inhabit Lake Laurentin seasonally, weaving a delicate thread of continuity through its ever-changing landscape. Inspired by this symbiotic relationship, my vision for the ‘environmental education center’ seeks to embrace and celebrate its avian inhabitants, crafting a sanctuary that echoes the essence of their habitat.

Central to this vision is the notion of elevation, both literal and metaphorical. The center rises as a beacon, its tower reaching to the sky to offer a bird’s eye perspective of the regenerating forest below. Nestled within a clearing the building is located, to allow the building to not take any homes for the creatures it is meant to house, respecting the sanctity of the surrounding habitat while offering an immersive experience for visitors. At its core, the tower serves to guide seekers of knowledge and solace. With lookout points positioned at varying heights, it invites exploration and connection. As the trees ascend so does the tower, a testament to the enduring bond between nature and the creatures of the sky.

Project Notes

Project Status Course Collaborators

Project Length

Date Completed Studio Individual 2 Months Feb - April 2022

Sauna

Nestled by the shores of Bennett Lake, the sauna is a place of relaxation and release. At its core lies the belief that true release comes from tension, in this case caused by the unknown, the anticipation of what lies ahead. Drawing inspiration from this notion, the design seeks to subvert expectations and beckon visitors into a journey of sensory exploration. As one crosses the threshold, they enter a realm of where anticipation dances with uncertainty. Each space within the path of the sauna is subtly changed to tease the senses and provoke curiosity. From the moment of entry guests relinquish control and surrender to the unfolding experience. Materiality becomes a tool for transformation, as textures shift and surfaces evolve, reflecting the unique character of each space. Envelope elements such as windows create different levels of light to create different character of each space. In this sauna confusion becomes clarity, and curiosity sparks revelation. The sauna stands as a testament to the possible perceptual experience of design.

Physical Sauna Model|

Turtle Calendar

The Medicine Wheel

For various indigenous cultures, or those who wish to study indigenous culture, the medicine wheel can represent a multitude of meanings. The most popular (and how we have interpreted it through “The Turtle Callander”) is that of the seasons: yellow being spring, red being summer, black being fall, and white being winter. It can also be representative of the stages of life, aspects of life, elements of nature, animals, and ceremonial plants. The Medicine wheel embodies the Four Directions, as well as Father Sky, Mother Earth and Spirit Tree, symbolizing dimensions of health and the cycles of life.

Project Notes

Project Status

Course

Collaborators

Project Length

Date Completed Indigenous Precidents

Jenson Clarke, William Albert

1 Months

November 2022

North West America

Though the feather symbolizes honor and connection between the opener, the creator and the bird from which the feather came, we see that the culture and practice of ceremony revolves amore around the traditional significance of a feather amongst western North American tribes. Additionally it is the responsibility of the carrier to carry that feather with respect by walking a good path.

North East North America

The use of birch bark was extremely valuable for tribes all over turtle island, but particularly in this geographical region. A real method of communal craft is developed along with an understanding of place and land . Among many things, birch bark is typically used for the construction of wigwams, which were integral to their nomadic lifestyle while they also utilized their advanced knowledge of birchbark canoe of inter-tribe trade.

South East North America

Rolling back time to around 5000 years ago, evidence of an enhanced understanding of land and use of Indigenous cultures on Turtle island is apparent through uncovered “shell middens”. Which refers to the harvest of large quantities of shellfish, shucking out and processing the meat for consumption and use of the shells as raw materials. Leaving large quantities of shell debris on their habitation and processing sites.

Along coastal areas, these mounds of shells indicate a certain knowledge indigenous tribes would have had of moon cycles, time of year and use of what is given to them. Because of this, they were able to trap and use oysters and other shelled creatures.

South West North America

Sand and the abundance of sand in certain areas of turtle island shows the variety of ways Indigenous cultures are able to use and learn from the land. Navajo sandpaintings illustrated either physical or mythological space and the elements that exist within it. It recognizes the land as holy and sacred. Navajo sandpaintings are healing cer native legends which provide the foundation for all aspects of life take place.

Project Notes

The Telegraph Publication

The Telegraph is the McEwen School of Architecture’s first student run publication. As the founding president, I spearheaded the creation of a platform showcasing student work and articles created by students for students. From inception to execution, my role encompassed organizing the publication from securing funding to overseeing printing. My responsibilities were to lead the graphic design of the publication. This encompassed designing the logo, creating templates, and seamlessly integrating student projects and articles into the publication. Through collaboration and teamwork, the publication emerged as a new yet important part of the McEwen school of architecture. Yet, it would have never come to fruition without the amazing team working with me.

Project Status Course

Collaborators

Project Length

Date Ongoing Extra-Carricular

Individual

2 Years

fionawilsonshipp@gmail.com 519-771-3782

Brantford, ON, N3R3R4

McEwen School Of Architecture

Turn static files into dynamic content formats.

Create a flipbook
Issuu converts static files into: digital portfolios, online yearbooks, online catalogs, digital photo albums and more. Sign up and create your flipbook.