Finnlamelli Kütük Ev Kataloğu

Page 1

Kütük Ev Kataloğu

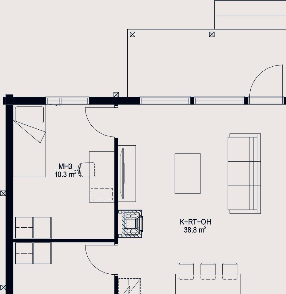
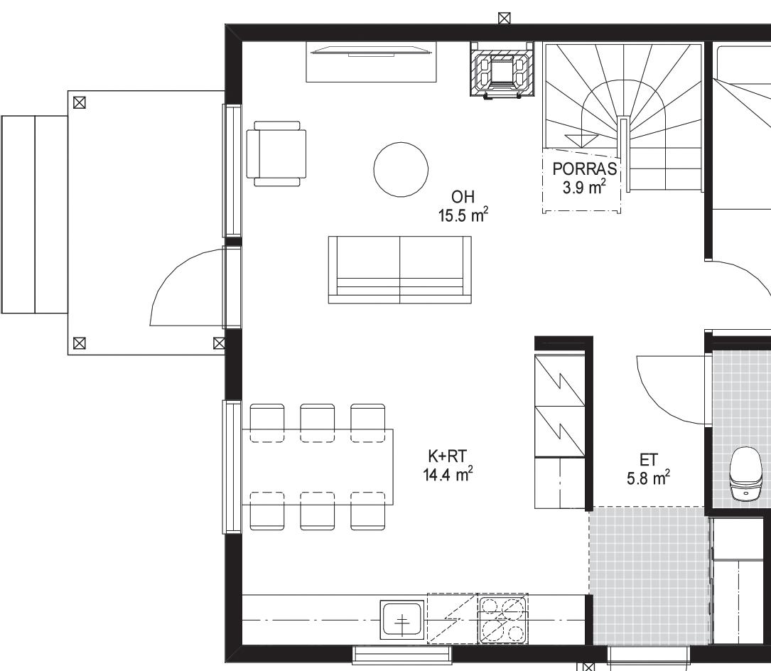
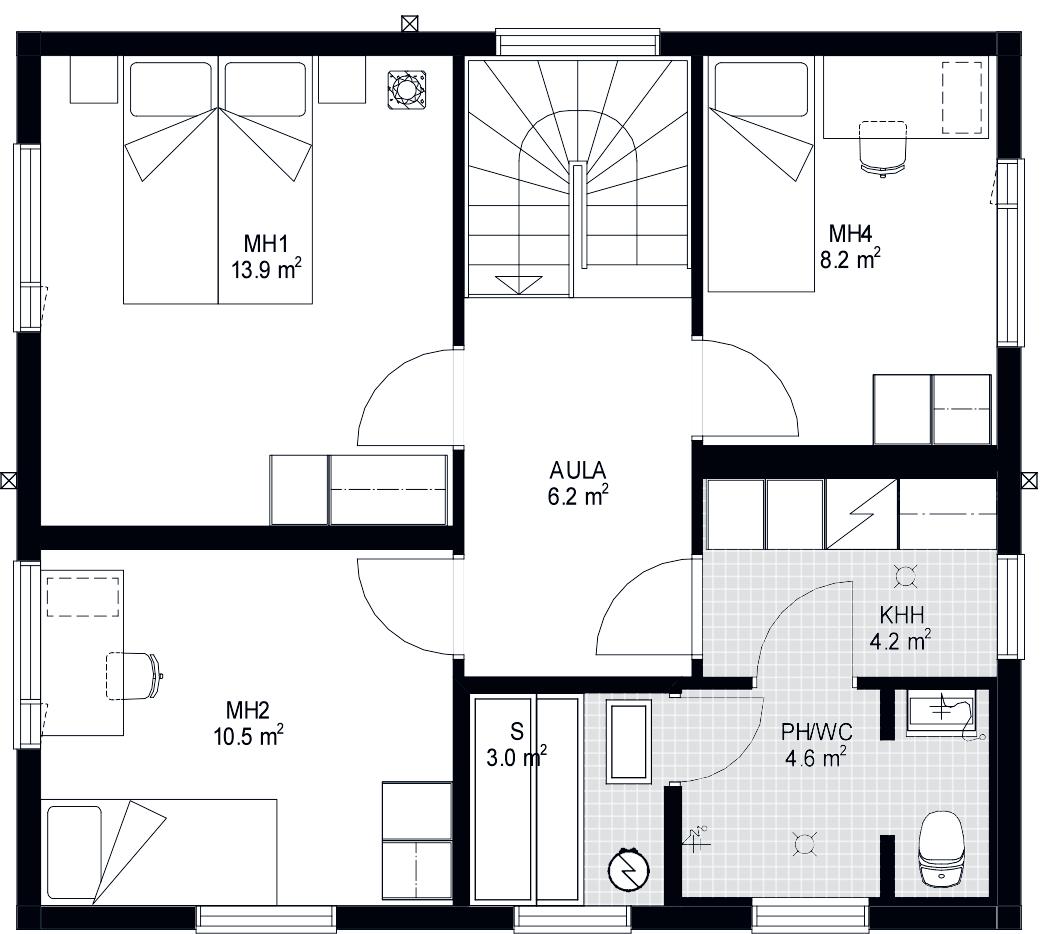
1 krs Hohde 1

Finnlamelli

Dünyaca ünlü bir kütük ev

tasarımcısıdır.

Esnek ve yüksek kaliteli tasarım

Seçebileceğiniz, özelleştirilebilir yüzlerce kütük ev koleksiyonu tekliflerimizden ilham alın. Tasarımlarımız, test edilip aklınızdaki fikri mükemmel bir şekilde yansıtır.

Deneyimle oluşturulan uzmanlık

Yaklaşık 30 yıldır; fabrikamızda, Finlandiya` da yetişen ağaçlardan kütüklerimizi elde ediyoruz. Şirketimiz kurulduğundan beri, yüksek kaliteli kütük evlerimizi Finlandiya` dan ihracat ediyoruz.

Kütük evler yenilikçi bir seçimdir.

Finnlamelli` nin kütükleri, kütük eviniz için en güvenli seçimdir. Evinizi geleneksel yada modern bir dizaynda seçebileceğiniz gibi sağlam bir yapıda olacağını da garanti ediyoruz.

Doğal malzemenin mükemmel özellikleri.

Kütükler, yapı malzemesi olarak çevre dostu, sağlıklı ve dayanıklıdır. Kütük evlerimiz modern inşaat teknikleriyle yapılmakta olup, size sadece arkanıza yaslanıp, en kaliteli malzemelerden yapılmış evlerimizde keyfinize bakmak kalıyor.

2

Organik ağaçlardan üretilmiş

İşte başlıyoruz! Son durağın konforlu kütük evin olduğu hayal ve ilhamla dolu yolculuğunuz.

Kataloğumuzu beğenmenizi umuyoruz. Hayallerinizi birlikte gerçekleştirelim.

3

Güçlü ve sürdürülebilir

Finnlamelli` nin öz odundan yapılmış, lamine ahşabı kusursuz ve güçlüdür. Kütüklerimiz özenle seçilmiş, serin bir iklimde yetişen ve zamanla olgunlaşan çam ve ladin ağaçlarından oluşmaktadır. Kütüklerimiz, özel yöntemlerimizle ağacın en dayanıklı kısmı olan öz odun yüzeyde kalacak şekilde birleştirilir. Bu yöntem sayesinde Finnlamelli kütükleri diğer kütüklere göre zorlu iklim koşullarına dayanıklıdır.

Kütük ev aynı zamanda daha az karbon ayak izi demektir. Ağaçlar havadaki karbondioksiti temizlediğinden dolayı daha sağlıklı ve temiz bir hava oluşumuna yardımcı olur. Hem bedeni hem de ruhu etkileyen dengeli bir yaşam, ince detayların ardında saklıdır. Kütük eve sahip olmak, gelecek nesillere daha parlak bir gelecek de sunar.

Sağlıklı ev ikliminin keyfini çıkarın.

Kütük duvarlarımız nefes aldığı için, sağlıklı bir hava kalitesi sunar. Odanızdaki nem oranı sabit kaldığından dolayı hava kalitesi de yüksektir. Hava kalitesi yüksek olan odalarda bakteri ve küfler oluşamaz. Temiz ve yüksek hava kalitesi sunan kütük evler, alerjik reaksiyonları olan insanlar için etkili bir çözümdür.

4

İskandinav ağaçlarından yapılmış bir yuva

Evinizi inşa etmek için kullanılan ağaçlar, sürdürülebilir Finlandiya ormanlarından gelmektedir. Burada ahşabın dayanıklılığı, çeşitli iklim testlerden geçerek onaylanmıştır.

Kendi kütük evinizi tasarlayın!

Kat planlamanızı kendiniz yapmak ister misiniz?

Yatak odası sayınızı arttırmak ister misiniz? Belki oda sayılarınız yeterli ama balkonunuzu daha geniş yapmak istersiniz.

Özelleştirilebilir kütük ev koleksiyonumuza bakın ve gerisini hayal gücünüze bırakın. İnşaata hazır modellerimizden birini seçebilir ya da size en uygun aklınızdaki tasarımla başlayabilirsiniz.

Ailenize en uygun kat planını keşfedin.

Kapı ve pencere sayılarını istediğiniz gibi ayarlayın.

Balkon genişliğini

Sabit mobilya,lavabo ve muslukların nerede olacağına hatta adetine bile siz karar verin!

Dış bölüm ölçülerine de karar verebilirsiniz.

Boş bölgelerin ölçülerini ayarlayabilirsiniz.

Kat planlarını

Oda genişliğine, sayısına ve yerini siz karar verin.

Yüksek veya eğimli tavan seçebilirsiniz.

6

Dış tasarımı istediğiniz gibi yapabilirsiniz.

Özelleştirilebilir seçenekler için daha fazlasını finnlamelli.com/tr da bulabilirsiniz.

7
Üçgen Çatı Eğimli Çatı Asimetrik üçgen çatı

Size ait

Finlamelli kütük evleri, sahibinin karakterini, tarzını yansıtır.

En iyi sonuçları elde etmenin yolu işbirliğinden geçer. Hayallerinizdeki evin gerçeğe dönüşmesi için, tüm çözümleri sunuyoruz. Gündelik kullanımı kolaylaştıran, inşa süreci son derece kolay geçen bir süreç haline getiriyoruz. Finnlamelli` yi tercih ettiğinizde, kendinizi yansıtan evinizi tercih etmiş olursunuz.

Finnlamelli kütük evleri kendine has; gizemli ve büyüleyici özellikleri içinde barındırır. Diğer bir deyişle gerçek bir İskandinav havası barındırır. Tasarım örneklerimizden birini seçip, kendi fikirilerinize göre şekillendirebilir veya size en yakın müşteri temsilcimizle irtabata geçebilirsiniz. Aklınızda ne kadar farklı bir tasarım olursa olsun merak etmeyin, mimarlarımız hayallerinizdeki eve kavuşmanız için size yardımcı olacaktır. İşte size ait derken bundan bahsediyorduk.

8
Size en yakın Finnlamelli temsilcisine, finnlamelli.com/tr dan ulaşabilirsiniz.

Dünyanın heryerine

Eviniz ne kadar büyük olursa olsun merak etmeyin, size ulaştıracağız. Her stile, zevke, mimariye ve çevreye hitap eden üç tane Finnlamelli köşe profili bulunmaktadır. Yardıma ihtiyacınız olduğunda bizimle irtibata geçebilirsiniz.

Bu köşe profili mimari yapıyı bir eldiven gibi sarar.

Kütükler eşit hizadadır. Köşe kaplamaları kusursuz bitirişe sahip olup, modern ağaç dokusu vurgulanmıştır.

Çapraz kütüklerin bitiş kısımları, köşeleri 2-3 cm kaplayacak şekilde birleştirilir. Bu tip köşe profilleri hem kırsal hem de kentsel hayata uygundur. Farklı renklerde tercih edebilirsiniz.

Finlandiya ulusal geleneğinden gelen çapraz köşelerinden ayırt edebileceğiniz kütük kabinler. Geleneksel çapraz köşeli profili, ek yerini geçen tasarımından ayırt edebilirsiniz. Bu köşe modeli kırsal hayat için güzel bir tercih olabilir.

Kütük profilleri

Etkiliyeci görünüşlerine ek olarak kütük profilleri, evinizin iskeletini oluşturur. İç ve dış cephelerde aynı ahşap ürün kullanıldığı için kendine has bir hava oluşturur. Tercih ettiğiniz kütükler, evin içinde yüksek hava kalitesi sunarken çevre dostu ve yenilenebilir bir materyaldir.

Lamelli

Modern dizayna sahip Lamelli kütükler dar damarlı görünüşe sahiptir. Sade dizayna sahip evlere uyumlu gibi gözükürken dinamik yapıda modern evlere de gösterişli bir hava katar.

Klasik

Klasik profiller, daha derin kesiklerle işlenmiş olduğu için geleneksel kütük ev yapımında daha sık tercih edilir. Daha geniş arazilere kurulan evler için idealdir.

10
Eşit Köşeli Geleneksel çapraz köşe Modern çapraz köşe

Finnlamelli, Avrupa Teknik Değerlendirme (ETA-12/0353) belgesine sahip olup CE işaretini kütük ev inşa ürünlerinde kullanma hakkını elde etmiştir. CE belgesi sahip ürünler, insan sağlına zararı olmayan güvenli ürünlerdir.

Finnlamelli` de sadece yasal ve sürdürülebilirliği denetlenen ormanlardan elde edilen ağaçlar kullanılmaktadır. Sahip olduğumuz PEFC sertifikası bu işi ne kadar ciddiye aldığımızın belgesidir.

İçindekiler

Finlandiya ormanlarından, ömür boyu kullanabileceğiniz kütük evlerimiz. Hayallerinizdeki evi en ince detayına kadar inşa edin!

Tüm ev modellerimize finnlamelli.com/tr adresinden ulaşabilirsiniz.

12
Hohde s.13 Aava s.61 Pouta s.69 Siimes s.83

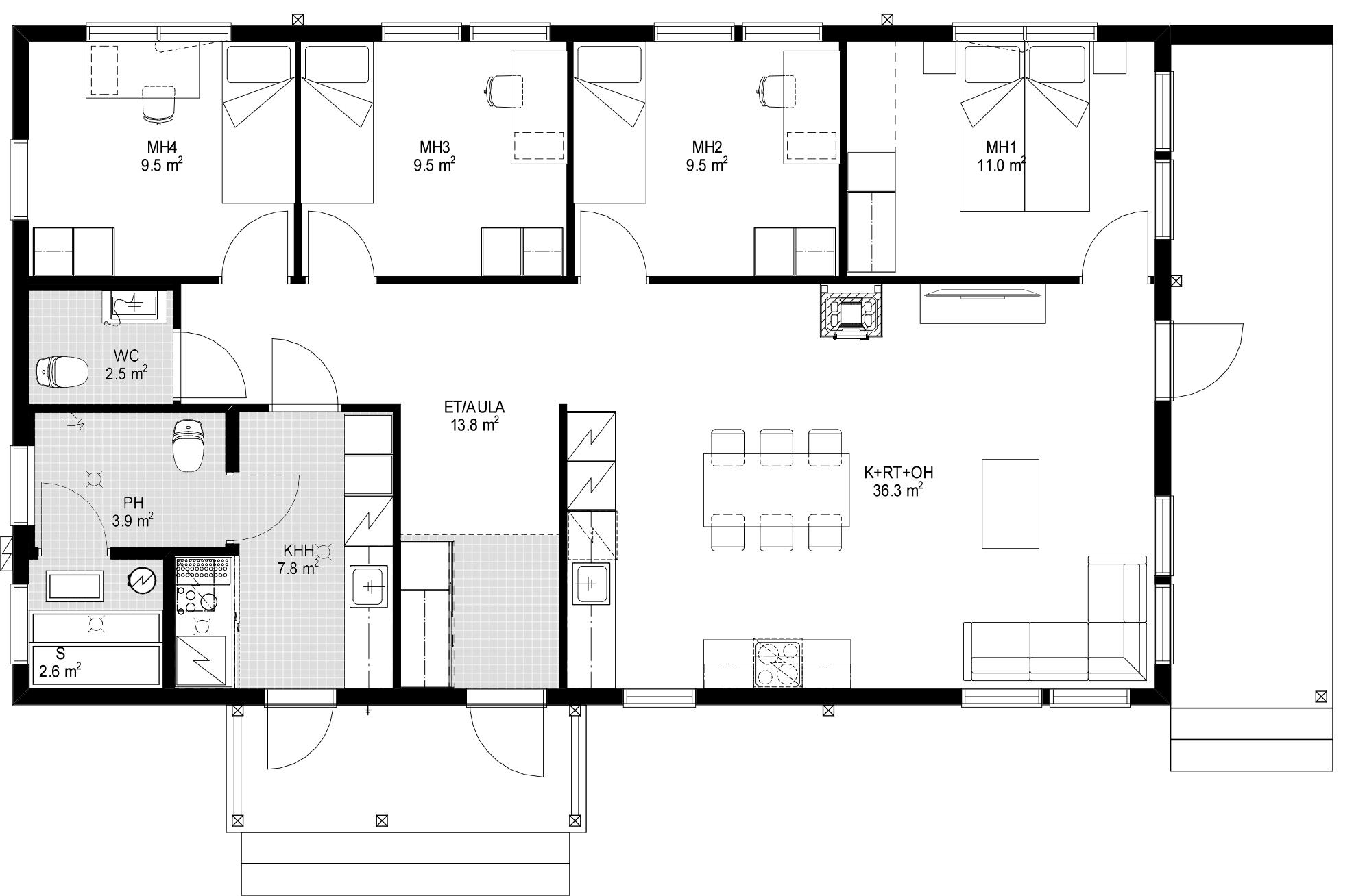
Hohde

Hohde 82

Kat Sayısı: 1

Bürüt Alan: 82 m2

Net Alan: 75 m2

Hohde 14 1 Kat

Hohde 82 Classic

Kat Sayısı: 1

Bürüt Alan: 82 m2

Net Alan: 75 m2

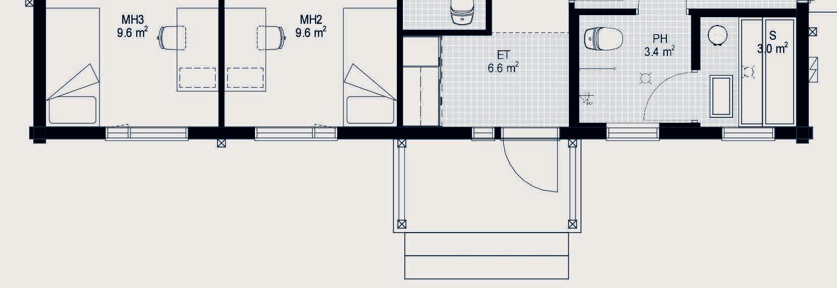
15 Hohde 1 krs
1 Kat

Hohde 86

Kat Sayısı: 1

Brüt Alan: 86 m2

Net Alan: 78.5 m2

Hohde 16 1 Kat

Hohde 86 Classic

Kat Sayısı: 1

Brüt Alan: 86 m2

Net Alan: 78.5 m2

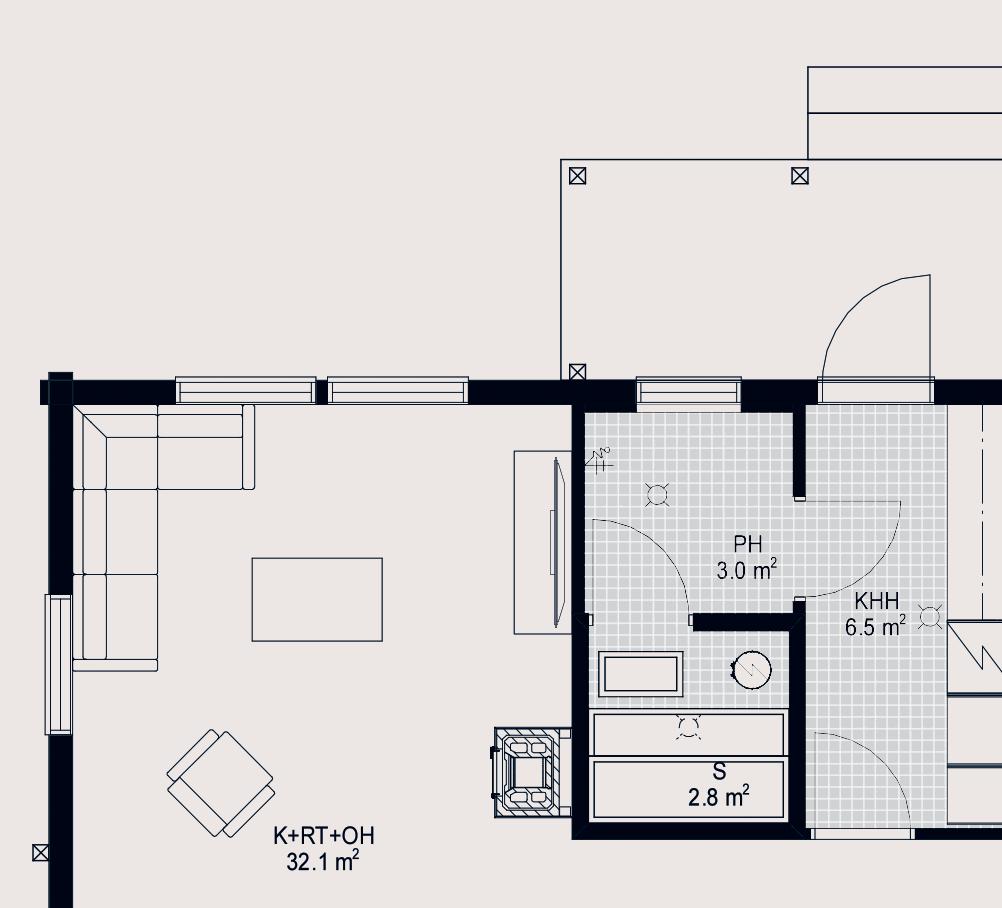
17 Hohde 1 krs
1 Kat

Hohde 93

Kat Sayısı: 1

Brüt Alan: 93 m2

Net Alan: 85 m2

Bu modelin daha fazla kat plan seçeneklerine finnlamelli.com/tr adresinden ulaşabilirsiniz.

Hohde 18 1 Kat

Hohde 93 Classic

Kat Sayısı: 1

Brüt Alan: 93 m2

Net Alan: 85 m2

1 krs Hohde 19
1 Kat

Hohde 99

Kat Sayısı: 1

Brüt Alan: 99 m2

Net Alan: 90.5 m2

Bu modelin daha fazla kat plan seçeneklerine finnlamelli.com/tr adresinden ulaşabilirsiniz.

Hohde 20 1 Kat

99

1 krs Hohde 21
1 Kat
Hohde
Classic Kat Sayısı: 1 Brüt Alan: 99 m2 Net Alan: 90.5 m2

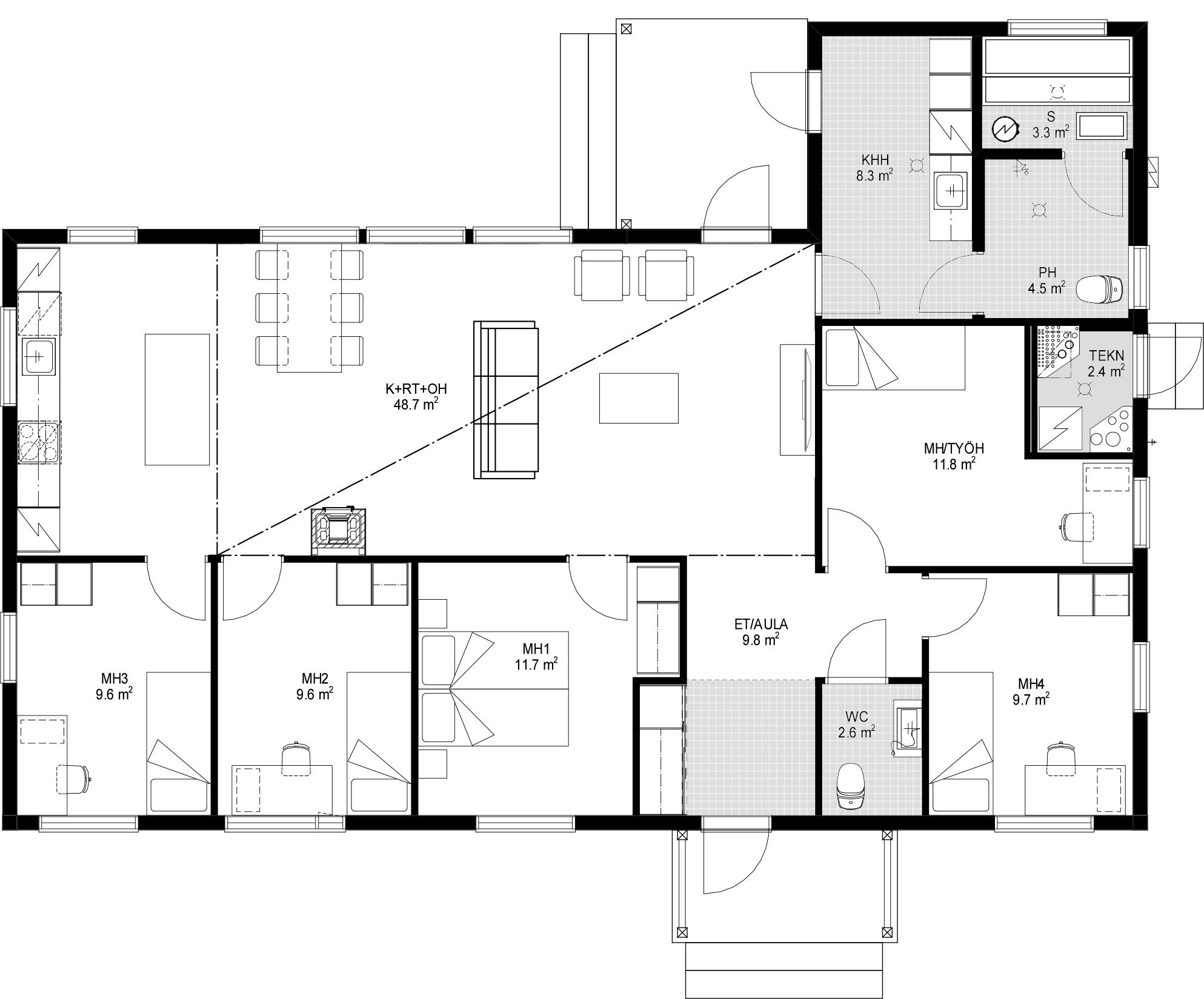
Hohde 108

Kat Sayısı: 1

Brüt Alan: 108 m2

Net Alan: 99.5 m2

Bu modelin daha fazla kat plan seçeneklerine finnlamelli.com/tr adresinden ulaşabilirsiniz.

Hohde 22 1 Kat
1 krs Hohde 23
Classic Kat Sayısı: 1 Brüt Alan: 108 m2 Net Alan: 99.5 m2 1 Kat
Hohde 108

Hohde 115

Kat Sayısı: 1

Brüt Alan: 115 m2

Net Alan: 106 m2

Bu modelin daha fazla kat plan seçeneklerine finnlamelli.com/tr adresinden ulaşabilirsiniz.

Hohde 24 1 Kat
1 krs Hohde 25
115 1 Kat
Hohde

Hohde 115 Classic

Kat Sayısı: 1

Brüt Alan: 115 m2

Net Alan: 106 m2

1 Kat Hohde
26
Hohde 27 1 Kat

Hohde 126

Kat Sayısı: 1

Brüt Alan: 126 m2

Net Alan: 117 m2

Bu modelin daha fazla kat plan seçeneklerine finnlamelli.com/tr adresinden ulaşabilirsiniz.

Hohde 28 1 Kat
1 krs Hohde 29
126 1 Kat
Hohde

Hohde 126 Classic

Kat Sayısı: 1 Brüt Alan: 126 m2

Net Alan: 117 m2

1 krs Hohde 30
Kat
Hohde 31 1 Kat

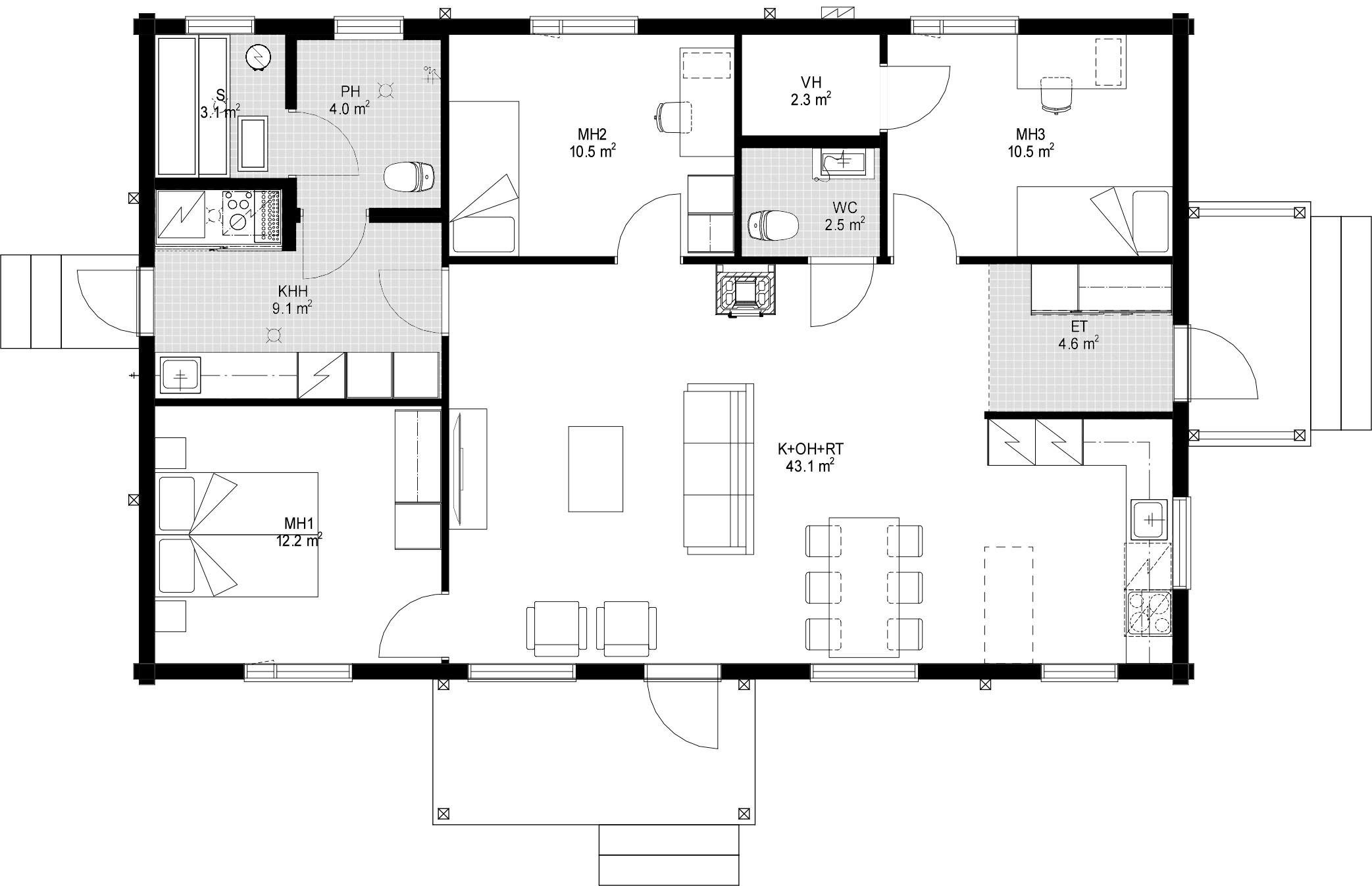
Hohde 135

Kat Sayısı: 1

Brüt Alan: 135 m2

Net Alan: 126 m2

Bu modelin daha fazla kat plan seçeneklerine finnlamelli.com/tr adresinden ulaşabilirsiniz.

Hohde 32 1 Kat
Hohde 33 1 krs
1 Kat
Hohde 135

Hohde 135 Classic

Kat Sayısı: 1 Brüt Alan: 135 m2

Net Alan: 126 m2

1 krs Hohde 34
Kat
Hohde 35 1 Kat

Hohde 143

Kat Sayısı: 1

Brüt Alan: 143 m2

Net Alan: 133 m2

Bu modelin daha fazla kat plan seçeneklerine finnlamelli.com/tr adresinden ulaşabilirsiniz.

Hohde 36 1 Kat

Hohde 143 Classic

Kat Sayısı: 1

Brüt Alan: 143 m2

Net Alan: 133 m2

1 krs Hohde 38
Kat
Hohde 39 1 Kat
Hohde 143 Classic

Hohde 153

Kat Sayısı: 1

Brüt Alan: 153 m2

Net Alan: 143 m2

Bu modelin daha fazla kat plan seçeneklerine finnlamelli.com/tr adresinden ulaşabilirsiniz.

Hohde 40 1 Kat
1 krs Hohde 41
1 Kat
Hohde 153

Hohde 155

Kat Sayısı: 1

Brüt Alan: 155 m2

Net Alan: 145 m2

Hohde 42 1 Kat
1 krs Hohde 43
155 1 Kat
Hohde

Hohde 165

Kat Sayısı: 1

Brüt Alan: 165 m2

Net Alan: 154 m2

Hohde 44 1 Kat

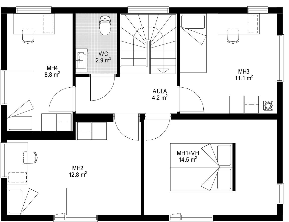
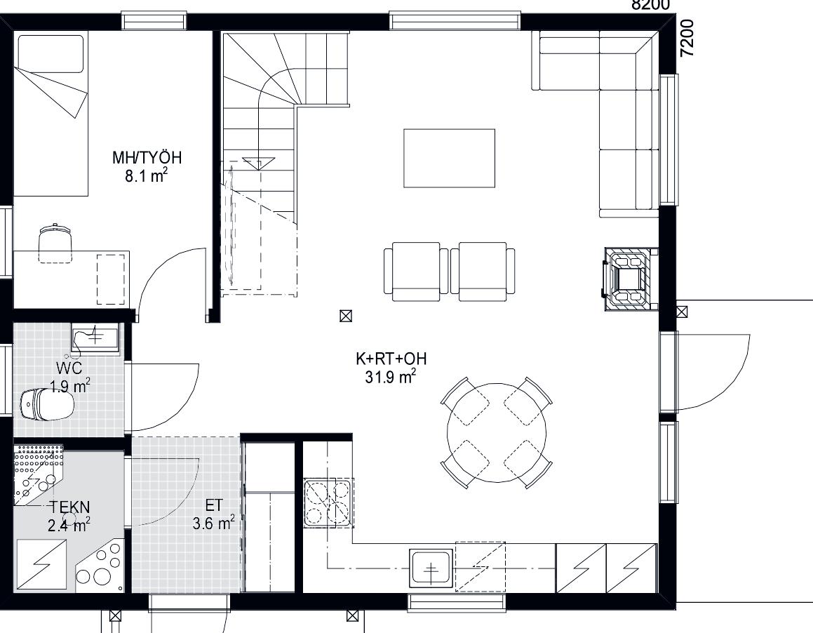
Hohde 114

Kat Sayısı: 2

Brüt Alan: 114 m2

Net Alan: 102 m2

2 krs Hohde 46
Kat
Hohde 47 2 Kat

Hohde 125

Kat Sayısı: 2

Brüt Alan: 125 m2

Net Alan: 113 m2

2 krs Hohde 48
Kat
Hohde 49 2 Kat

Hohde 133

Kat Sayısı: 2

Brüt Alan: 133 m2

Net Alan: 120 m2

2 krs Hohde 50
Kat
Hohde 51 2 Kat 9500

Hohde 140

Kat Sayısı: 2

Brüt Alan: 140 m2

Net Alan: 126.5 m2

2 krs Hohde 52
Kat
Hohde 53 2 Kat

Hohde 142

Kat Sayısı: 2

Brüt Alan: 142 m2

Net Alan: 128 m2

2 krs Hohde 54
Kat
Hohde 55 2 Kat

Hohde 150

Kat Sayısı: 2

Brüt Alan: 150.5 m2

Net Alan: 136 m2

2 krs Hohde 56
Kat
Hohde 57 2 Kat

Hohde 153

Kat Sayısı: 2

Brüt Alan: 153 m2

Net Alan: 138 m2

2 krs Hohde 58
Kat
Hohde 59 2 Kat

Aava

Aava 72

Kat Sayısı: 1

Brüt Alan: 72.5 m2

Net Alan: 63 m2

Aava 62 1 Kat
Aava 72

Aava 140

Kat Sayısı: 1

Brüt Alan: 140 m2

Net Alan: 134 m2

Aava 64 1 Kat
1 krs Aava 65
140 1 Kat
Aava

Aava 148

Kat Sayısı: 1

Brüt Alan: 148 m2

Net Alan: 137.5 m2

Aava 66 1 Kat

Aava 156

Kat Sayısı: 1

Brüt Alan: 156 m2

Net Alan: 145 m2

67 1 Kat Aava

Pouta

14100

Pouta 101

Kat Sayısı: 1

Brüt Alan: 101.5 m2

Net Alan: 94.5 m2

Pouta 70 1 Kat

Pouta 118

Kat Sayısı: 1

Brüt Alan: 118 m2

Net Alan: 109 m2

71 1 Kat Pouta

Pouta 120

Kat Sayısı: 1

Brüt Alan: 120 m2

Net Alan: 111 m2

Pouta 72 1 Kat

Pouta 136

Kat Sayısı: 1

Brüt Alan: 136 m2

Net Alan: 126 m2

Pouta 73 1 Kat

Pouta 157

Kat Sayısı: 1

Brüt Alan: 157 m2

Net Alan: 144.5 m2

Pouta 74 1 Kat
1 krs Pouta 75
1 Kat
Pouta 157

Pouta 154

Kat Sayısı: 2 Brüt Alan: 154 m2

Net Alan: 138.5 m2

2 krs Pouta 76
Kat
Pouta 77 2 Kat

Pouta 155

Kat Sayısı: 2

Brüt Alan: 155.5 m2

Net Alan: 140 m2

2 krs Pouta 78
Kat
79 2 Kat Pouta

Pouta 161

Kat Sayısı: 2 Brüt Alan: 161 m2

Net Alan: 144.5 m2

2 krs Pouta 80
Kat
81 2 Kat Pouta

Siimes

Siimes 91

Kat Sayısı: 1

Brüt Alan: 91 m2

Net Alan: 83 m2

Siimes 84 1 Kat

Siimes 126

Kat Sayısı: 1

Brüt Alan: 126 m2

Net Alan: 116.5 m2

Siimes 85 1 Kat

Siimes 144

Kat Sayısı: 1

Brüt Alan: 144 m2

Net Alan: 133.5 m2

Siimes 86 1 Kat
Siimes 144

Siimes 157

Kat Sayısı: 1

Brüt Alan: 157 m

Net Alan: 146 m2

Siimes 88 1 Kat

Siimes

Siimes 89 1 krs 1 Kat
157
Finnlamelli, DEN Group Oy'un bir parçasıdır. DEN, Finlandiya` da bulunan; müstakil evler, işlevsel alanlar tasarlayan aynı zamanda hizmet sağlayıcısı bir şirkettir.

Kütük ev inşasında 30 Yıllık tecrübe

Lamine ahşap üzerine onlarca yıllık tecrübeye sahibiz. Sahip olduğumuz tecrübeyle, eşsiz kütük evleri size sıfırdan ulaştırabiliyoruz. 1995` de Alajärvi, Finlandiya` da kurulup, bugün hala işlemekte olan kütük ev fabrikamız aynı yerinde hizmet vermektedir.

Finlandiya` nın ikliminde yetişen ağaçlarla neredeyse aynı yaştaki tecrübemiz nerede olursanız olun size hizmet etmek için hazırız. Kütük evlerimiz Finlandiya` dan ithal olduğu için kalitesi konusunda şüphe duymanıza gerek yoktur.

1 krs Siimes 91
1 krs Siimes 92
finnlamelli.tr finnlamelli.com/tr
finnlamelli.tr

Turn static files into dynamic content formats.

Create a flipbook
Issuu converts static files into: digital portfolios, online yearbooks, online catalogs, digital photo albums and more. Sign up and create your flipbook.
Finnlamelli Kütük Ev Kataloğu by Finnlamelli - Issuu