
2 Chapter
![]()

2 Chapter
“With a great position on the edge of the town, walks in the beautiful Savernake Forest are just moments away, however the amenities of Marlborough remain within easy reach. This wonderful home offers incredibly spacious and stylish accommodation with all 5 bedrooms coming with an en-suite.”
Edward Taylor – Director

What is your favourite room of the house and why?
Kitchen/diner, it’s really sociable and light and with the doors open in the summer it really comes into its own.
Who do you think would be the next ideal owner?
People who like entertaining, we have had some great parties here!
What do you love most about the house and why?
It is private but accessible. We have our space with the benefit of all the amenities Marlborough has to offer within a 10 minute walk.
What do you love about the local community?
We are on very friendly terms with all the neighbours but honestly rarely see or hear them!
How easy is it to commute from here?
Exceptionally - 15 mins to Hungerford for either the station or to get to the M4. 10 minutes to Pewsey for trains
What made you choose this property over others that were available at the time?
It is bright even on a dull day and felt very welcoming. We have been extremely happy here and will be very sad to leave.*

* These comments are the personal views of the current owner and are included as an insight into life at the property. They have not been independently verified, should not be relied on without verification and do not necessarily reflect the views of the agent.


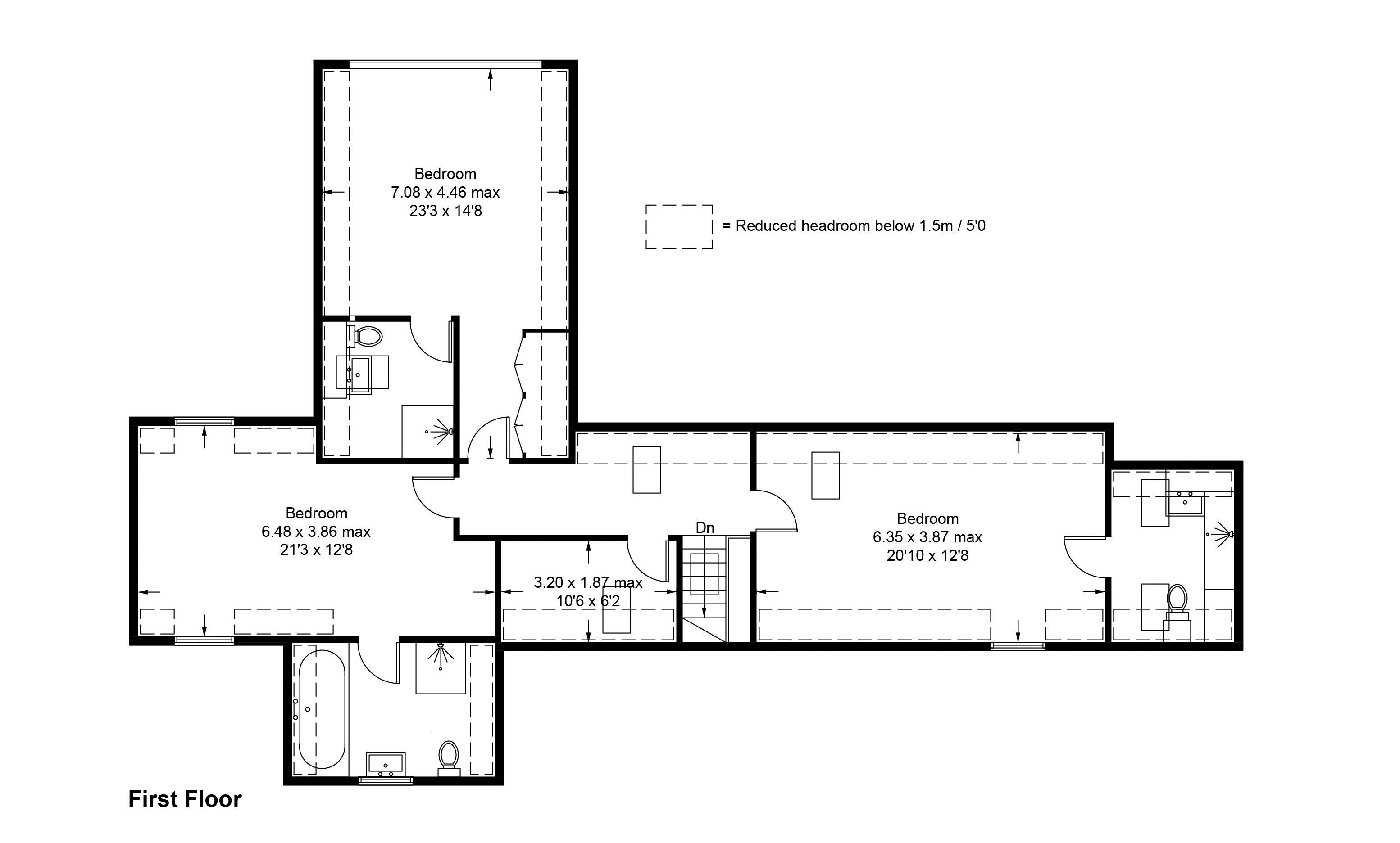
Due to the south-facing rear aspect, natural light floods 2 Chapter Close, particularly apparent in the sitting room and double aspect kitchen diner. This is a house with wonderful proportions, allowing larger families or groups to gather in one room without feeling cramped. Bi-fold doors from both main reception rooms offer easy access to the outside, and the kitchen leads through to a generous and useful utility/boot room and then on to a large garage, which includes the plant room. Off the welcoming entrance hall is the study, a perfect space for those working from home. In addition, at ground floor level are 2 large bedrooms, with a dressing room and ensuite to the principal bedroom and built-in wardrobe space and ensuite to bedroom 2. Of course if not required as bedrooms, these rooms could suit a variety of uses.
To the first floor are 3 further generous double bedrooms, again all benefitting from an ensuite. The additional smaller room at this level provides useful storage for a large family or could make a second office/study space. As with the ground floor, the property is presented in immaculate condition, and is ready for its new owners to move straight in with the minimum of hassle.

















Outside
A wide and expansive driveway provides parking spaces for several vehicles, including room to turn. To the rear, the garden faces directly south and benefits from excellent sunlight as a result. A terrace runs along the rear with a pergola constructed of some of it to provide shade when needed. The rear garden is totally enclosed and a good level of privacy in maintained by mature hedging.
Location
The amenities in Marlborough are plentiful, it boasts the second widest high street in the UK, and is host to a fantastic range of shops, cafes, restaurants, public houses and an independent cinema, all within walking distance of 2 Chapter Close. These all help Marlborough retain its character and charm. The picturesque historic high street itself provides many interesting and architecturally important buildings. The local pub, The Roebuck has recently come under new management and is developing a reputation for good food. The surrounding countryside is a huge draw to the area, with walks, bike rides and other outdoor pursuits all readily available, a cycle route running along the old railway line is accessible in moments from the front door, as is the ancient Savernake Forest.
The area is renowned for its excellent schooling at all levels in both the state and private sectors with secondary provision at St. John’s Academy, Dauntsey’s and Marlborough College. Direct rail services to London Paddington are available from Bedwyn, Hungerford and Swindon, with the fastest journey times under 1 hour.
Local Authority
Wiltshire, Band G
Services
Mains gas, electricity, water & drainage
What3Words ///sensual.perfectly.nuzzled









Agents notes: All measurements are approximate and for general guidance only and whilst every attempt has been made to ensure accuracy, they must not be relied on. The fixtures, fittings and appliances referred to have not been tested and therefore no guarantee can be given that they are in working order. Internal photographs are reproduced for general information and it must not be inferred that any item shown is included with the property. For a free valuation, contact the numbers listed on the brochure. Printed 07.02.2025

Fine & Country is a global network of estate agencies specialising in the marketing, sale and rental of luxury residential property. With offices in over 300 locations, spanning Europe, Australia, Africa and Asia, we combine widespread exposure of the international marketplace with the local expertise and knowledge of carefully selected independent property professionals.
Fine & Country appreciates the most exclusive properties require a more compelling, sophisticated and intelligent presentation – leading to a common, yet uniquely exercised and successful strategy emphasising the lifestyle qualities of the property.
This unique approach to luxury homes marketing delivers high quality, intelligent and creative concepts for property promotion combined with the latest technology and marketing techniques.
We understand moving home is one of the most important decisions you make; your home is both a financial and emotional investment. With Fine & Country you benefit from the local knowledge, experience, expertise and contacts of a well trained, educated and courteous team of professionals, working to make the sale or purchase of your property as stress free as possible.
The production of these particulars has generated a £10 donation to the Fine & Country Foundation, charity no. 1160989, striving to relieve homelessness. Visit fineandcountry.com/uk/foundation

EDWARD TAYLOR
DIRECTOR - MARLBOROUGH, DEVIZES AND NEWBURY
follow Fine & Country on



Fine & Country
Rockley 1, Elcot Mews, Stonebridge Close, Marlborough, SN8 2AE 07464 893 337 | edward.taylor@fineandcountry.com 01672 511 211 | kate.ormond@fineandcountry.com
