

![]()


EPC: C | Tenure: Freehold | Council Tax: A 1
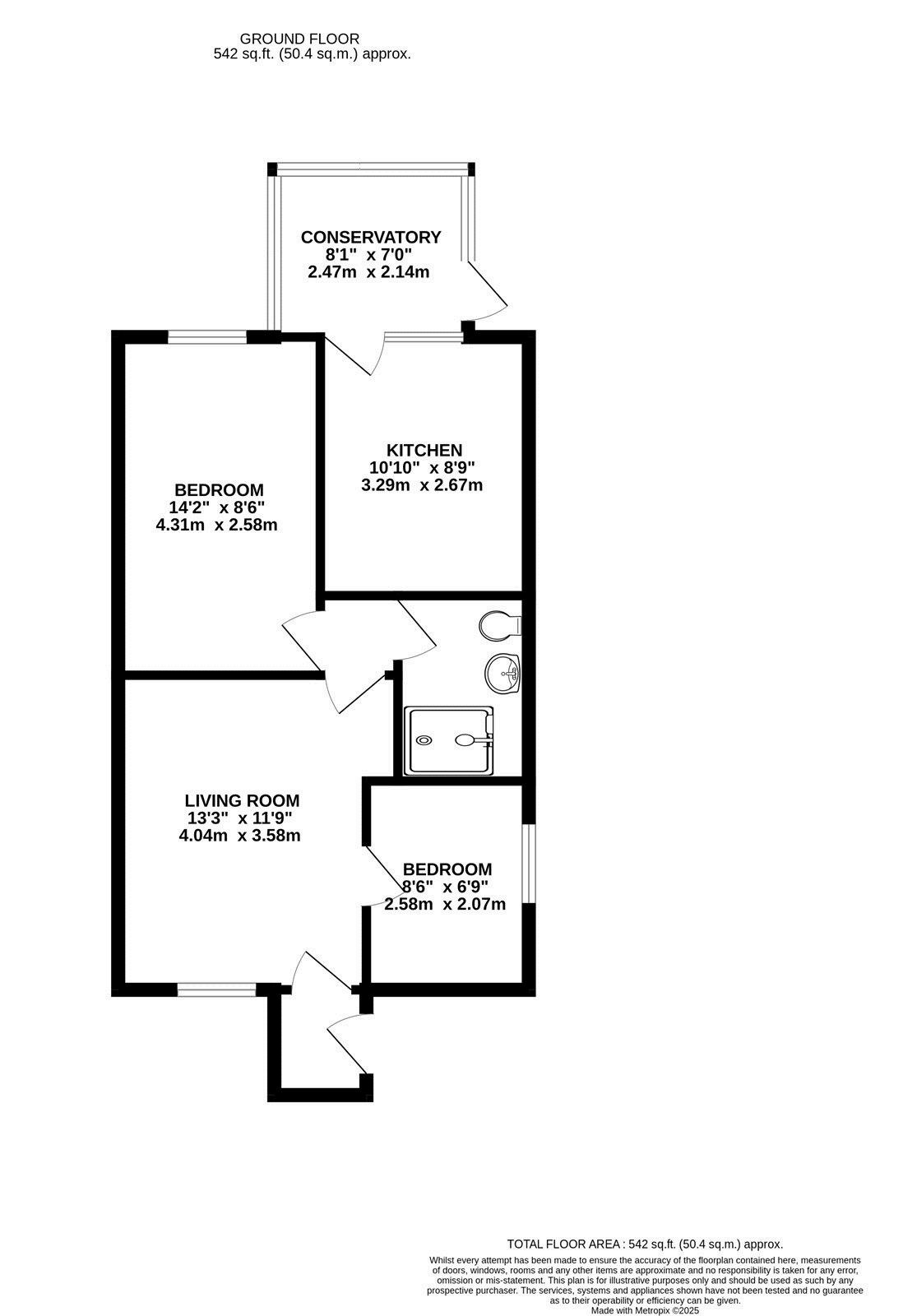
Stepping inside, you are welcomed into a bright and inviting layout. The good sized living room provides a comfortable hub for relaxation, enjoying plenty of natural light and a warm, homely feel. Two well-proportioned bedrooms offer versatility—perfect for guests, a home office, or hobbies.
The modern kitchen is fitted with a range of wall and base units, providing generous storage and practical workspace. A ceramic hob and integrated electric fan oven make cooking a breeze. From the kitchen, access flows naturally into the conservatory, creating a delightful additional sitting area overlooking the garden.
The property benefits from a contemporary shower room, finished to a modern standard and designed for easy maintenance.
To the front, a block-paved driveway provides ample off-road parking and leads to the attached single garage, offering secure storage or workshop potential.
The enclosed rear garden is a true highlight—featuring an ornate cobblestone patio area ideal for outdoor dining and entertaining, complemented by a pretty flower border that adds colour and charm throughout the seasons.
Location
Situated within walking distance of village amenities, the property offers the perfect blend of rural tranquillity and everyday convenience. Barrow upon Humber is well-regarded for its community atmosphere, green spaces, and excellent access to nearby towns and transport links.











