portfólio | Filipa Teiga Pinto

Page 1


portfolio Filipa Teiga Pinto

Filipa Teiga Pinto

MSc Arquitectura FAUL

1986 África do Sul

filipateiga@gmail.com

960 045 330

Gestão de projeto

Projeto de execução e orçamento

Acompanhamento de obra Coordenação de especialidades

Estudo de viabilidade | Concurso

BIM | CAD | Office | Adobe edição de imagem e conteúdo

Língua materna Português fluente em Inglês, Francês e Alemão

2022-2024 Kleinriehenstrasse Habitação coletiva + Equipamento Público

Estrutura parcial em madeira | 24 fogos e espaço comunal

Basel | Arquitecta responsável | Burckhardt Architektur

2019-2022 Swiss Post Riehen

Conversão de um edifício industrial

Edifício protegido | 19 novos apartamentos e uma creche

Basel | Arquitecta responsável | Burckhardt Architektur

2018-2019 Grosspeter Baufeld C

Estudo para novo edifício empresarial

Estrutura integral em madeira | 5500m2 espaço trabalho Basel | Arquitecta | Burckhardt Architektur

* Projetos selecionados

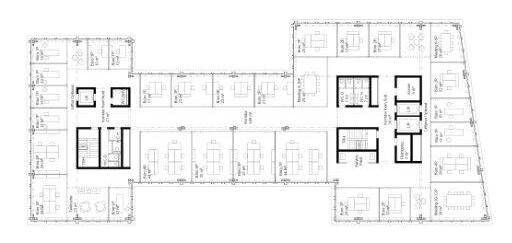
conversão edifício

Swiss Post Riehen

Projeto

Renovação e conversão de um edifício industrial em 19 fogos e uma creche no piso térreo

Demolição de cobertura exterior e criação de um espaço público dedicado à circulação de passageiros da linha férrea

Edifício constrangido laterialmente pela plataforma de passageiros da linha férrea e no piso subterrâneo por uma central de fibra ótica da Swisscom

Empresas e entidades envolvidas

Swiss Post (cliente)

Departamento Património

Baselstadt

Câmara Municipal de Riehen Deutsche Bahn Swisscom

Desenvolvimento

Projeto integral em BIM (do projeto à execução)

Coordenação BIM com especialidades

Responsabilidades

Responsável de arquitetura e BIM

Conceito de materiais

Coordenação com as especialidades

Quantity take-off para orçamentação

Materialisierung

Fensterrahmen inHolz-Aluminium PulverbeschichtetDunkelgrau (IGPDURAxal4201Style27)

Metallverkleidung InTitanzinkblech VMZincNuitd’été (Mittlegrau)

VerputzFein StoVollabriebSilcanova1311 ForteKörnung1.5 NCSS2005-Y20R(Sandgrau) Photovoltaikanlage IndachSystem MegaSlateIIModule(Schwarz)

Fensterrahmen inAluminium PulverbeschichtetDunkelgrau (IGPDURAxal4201Style27)

(NCS3005-Y20R/NCSS4005-Y20R)

VerputzGrob StoVollabriebSilcanova1311 ForteKörnung6.0 Sandgrau(NCSS2005-Y20R)

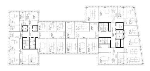
habitação coletiva Kleinriehenstrasse

Evangelisch-reformierteKircheBasel-Stadt BauundVermögensverwaltung

VisualisierungHof

Evangelisch-ReformierteKircheBasel-Stadt BauundVermögensverwaltung

Projeto

Demolição de templo existente e inserção de dois novos edifícios na malha suburbana

Distribuição de 24 novos fogos em habitação coletiva e de um espaço comunal

Construção sustentável - estrutura e fachada em madeira

Entidades envolvidas

Igreja Evangélica Reformada Basel (cliente)

Associação de moradores

Desenvolvimento

Projeto BIM Coordenação com especialidades BIM

Responsabilidades

Responsável de arquitetura e BIM Conceito de materiais Coordenação com as especialidades Comunicação com entidades

Evangelisch-ReformierteKircheBasel-Stadt BauundVermögensverwaltung

RückblickStadtbildkommission(Fachsekretariat)3.6.2021

Typologie&Setzung

Evangelisch-ReformierteKircheBasel-Stadt BauundVermögensverwaltung

RückblickStadtbildkommission(Fachsekretariat)3.6.2021

Typologie&Setzung

Zusammenfassung Prozess

Evangelisch-ReformierteKircheBasel-Stadt BauundVermögensverwaltung

Zusammenfassung Prozess

Quartierstruktur Baulinien&Freiräume

Evangelisch-ReformierteKircheBasel-Stadt BauundVermögensverwaltung

RückblickStadtbildkommission(Fachsekretariat)3.6.2021

Typologie&Setzung

Gebäudetypologie&Setzung KontextbezogeneRedimensionierung

ErgänzungGemeinschafts-&Quartiersnutzungen FassendesPlatzesmitderErweiterungdesVordaches

Gebäudetypologie&Setzung KontextbezogeneRedimensionierung

ErgänzungGemeinschafts-&Quartiersnutzungen FassendesPlatzesmitderErweiterungdesVordaches

ErgänzungGemeinschafts-&Quartiersnutzungen FassendesPlatzesmitderErweiterungdesVordaches

ErgänzungGemeinschafts-&Quartiersnutzungen FassendesPlatzesmitderErweiterungdesVordaches

Akzentuierung&OH�ffnungderGiebelfassaden

Akzentuierung&OH�ffnungderGiebelfassaden

Burckhardt+PartnerAG 22.Februar2022

Akzentuierung&OH�ffnungderGiebelfassaden

Burckhardt+PartnerAG 22.Februar2022 16/17

Akzentuierung&OH�ffnungderGiebelfassaden

Burckhardt+PartnerAG 22.Februar2022

Quartierstruktur
Baulinien&Freiräume

Kleinriehenstrasse.Materialiserungskonzept

OberWlächenFassade

1.Fassadefläche

KleinriehenstrasseMaterialiserungskonzept

Gewerberaum

1.Boden/Sockelleiste

Holzfassade Weisstannesägeroh Imprägniertundlasiert

Fensterrahmen undLamellenstoren IGP581MA60090A10

Eingangsleuchten RogerPradier

Briefkasten IGP581MA60090A10

•VorgefertigteHolzfassade,90mmbreit,vertikalBrettschalungWeisstannesägeroh, Nut+Kamm,DiotrolAquaImprägnierungundNaturöl-LasurIndustrieSW-O(salbeigrün)

2.Fenster/Hauseingangstüren

BodenFeinsteinzeugf MargresMosaic HexagonToolWhite

•Feinsteinzeugfliesen,Margres,MosaicHexagonToolWhiteTL1,240x266x9.5mmNR

•FeinsteinzeugSockelleiste,Margres,ToolWhite,50x600x9.5mmNRoderVariantekein

2.Decke

Türdrücker Glutz5056Berlin

•FensterrahmenundRahmenverbreitungHolz-Metallfenster,mit2Brüstungsstangen 50x30mm,pulverbeschichtetIGP-DURAface581M(581MA60090A10)(dunkelgrün)(aussen)

•CLTDecke,Sichtholz,2xgestrichenFarbeNCSS0500-N

3.Wand

•VerbundraffstorenVR90,mitSchieneführung,pulverbeschichtetIGP-DURAface581M (581MA60090A10)(dunkelgrün)

Decke NCSS0500-N Sichtholzgestrichen

•Gipskartonwändegespachtelt;evtl.MitVariovlies,FarbeNCSS0500-N

•Fensterbank:MetallpulverbeschichtetIGP-DURAface581M(581MA70330A00)(salbeigrün)

4.Innentüren

3.HorizontalesFassadenbandundVordach

Fensterinnen RAL9001

•InnenbündigMetallUmfassungszarge,Oberflächeglatt,alleTeileRAL9001(beidseitig)

•horizontalBrettschalung,Weisstannesägeroh,320mmhoch,DiotrolAquaImprägnierung undNaturöl-LasurIndustrieSW-O(salbeigrün)

•Beschläge:Glutz5056BerlinEdelstahlmattgebürstet

5.Schiebetüren

•Vordachabschluss/Decke:MetallblechVerkleidungpulverbeschichtetIGP-DURAface581M (581MA70330A00)(salbeigrün);VordachFlachflächemitKies

Vordach Weisstannesägeroh Imprägniertundlasiert

Brandriegel IGP581MA70330A00

Sockel Sichtbeton

Regenfallrohre VMZincQuartz-Zinc

4.Brandschutzriegel

Wandgespachtelt NCSS0500-N

•Taschentür,MDFglatt,FarbeNCSS0500-N(beidseitig),SchieneHawa

•MuschelgriffOPODLine80mm,Edelstahlmattgebürstet,BodenebenSchwelle,Stopper

•HolzbrettmitMetallblechVerkleidungpulverbeschichtetIGP-DURAface581M (581MA70330A00)(salbeigrün)

4.Beleuchtung

FensterDrehgriff GlutzCFBerlin

Türdrücker Glutz5056Berlin

6.Falltwand

•Produkt

•HauseingängeleuchteRogerPradierRP195Modell3,OpalglasLED7W800lm,IP65

5.Briefkasten

6.Fensterrahmen

•Holz-MetallfensterdeckendweissFarbeRAL9001

Türen RAL9001

•RahmenundKastenausAlluminiumpulverbeschichtetIGP-DURAface581M (581MA60090A10)(dunkelgrün)

•FensterDrehgriffGlutz5056/5616CFBerlinEdelstahlmattgebürstet

7.Beleuchtung

•Systemen:BewegungsmelderundVideosprechanlagevorne

Deckenleuchte VibiaTop

6.Sockel

•200mmhochSichtbeton

7.Regenfallrohre

•VibiaTopDecke,GehäuserausMetall,3Grössen(900,600und400mm),GrünundWeiss 3500Kneutralweiss,LED174.2W4056lm/4243lm,IP20

8.Elektro

•Schalter/Taster/Steckdosen,alleFellerSTANDARDdueweiss,90x90mm

•ZinkFarbeQuartz-Zinc(mittelgrau)oderVariante-Alu

Burckhardt+PartnerAG 13.Dezember2022

Burckhardt+PartnerAG 13.Dezember2022

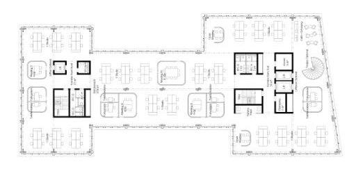
estudo de escritórios

Grosspeter Baufeld C

Projeto

Estudo de conversão de um edifício industrial em escritórios - parte de plano de urbanização de Grosspeter

Estudo de flexibilidade de tipologias de espaços de trabalho

Lote confinado entre a linha férrea e o eixo ferroviário principal da cidade Elementos estáticos integralmente em madeira

Empresas e entidades envolvidas

PSP Swiss Property (cliente) SBB Swiss Federal Railways

Desenvolvimento

Projeto BIM, Enscape, Adobe Coordenação BIM com especialidades

Responsabilidades

Arquitetura e desenhadora BIM Responsável gráfica

todos os direitos reservados 2024

Turn static files into dynamic content formats.

Create a flipbook
Issuu converts static files into: digital portfolios, online yearbooks, online catalogs, digital photo albums and more. Sign up and create your flipbook.