Architecture Portfolio | Figo Shendy Ullilazmy

Page 1

:ontents. 02 Business House (Guest House). Industrial Loft Academic Work 3rd Semester Final Exam (Stupa 3) ..._ "i..,. �, ':!-- . 1 I -. .. ·� � _.. j 'h.....1 � 04 Student Co-Housing Apartment. Casa de Verde Academic Work 5th Semester Final Exam (Stupa 5) 4
5 ■ MicroHealthyHouse Sep. 2021 - Nov. 2021 Site Location. Overview.
Jin. Tambak Wedi Gang Langgar, Surabaya, Jawa Timur

Akhir-akhir ini ketersediaan lahan untuk pembangunan rumah di wilayah perkotaan sangat terbatas. Maka dari ltu, penerapan rumah dengan menggunakan konsep Micro Healthy Housing dirasa cocok pada situasi saat ini, terlebih lagi dengan adanya pandemi yang memungkinkan banyak orang untuk berkegiatan di dalam rumah dan meminimalisir kegiatannya di luar rumah.

Dengan Micro Healthy Housing ini, rumah nantinya akan sejuk karena terdapat banyak bukaan dan vegetasi yang berada di sekitar rumah meskipun berada di lahan yang sempit. Penggunaan material alami dan warna-warna yang netral akan cocok digunakan agar hunian tetap sejuk dan sehat terutama di daerah yang lembap.

ouse 6

Issue. i! Q)

Concept.

Micro Healthy House ini menggunakan konsep minimalis. Konsep Minimalis ini sangat cocok untuk diterapkan di lahan yang terbatas dikarenakan konsep ini mengedepankan penataan ruang sehingga memberikan kesan yang luas dan nyaman.

Tidaklupa juga, Micro Healthy Houseinimemilikitujuan untukmemberikansolusi pembangunan rumah di lahan yang terbatas namun tetap memerhatikan aspek sehat,amandannyaman.

Users.

Grandfather Grandmother Boy Father Mother Girl

7
Suhu Curah Minim Panas Hujan Tinggi Vegetasi
(f)

Solution.

1 . Bangunan menggunakan warna dominan cerah agar tidak menyerap panas.

2. Penggunaan material alami seperti kayu dan batu alam agar hunian tetap sejuk.

3. Adanya dry garden pada samping rumah sebagai daerah resapan air.

4. Elevasi rumah yang ditinggikan agar tidak terkena genangan air.

5. Penanaman pohon di samping rumah selain untuk menghalau sinar matahari langsung juga sebagai penyejukan alami.

6. Terdapat banyak ruang terbuka hijau pada hunian.

1st & 2nd Floor Plan 8

Perspective.

9
North & East Elevation

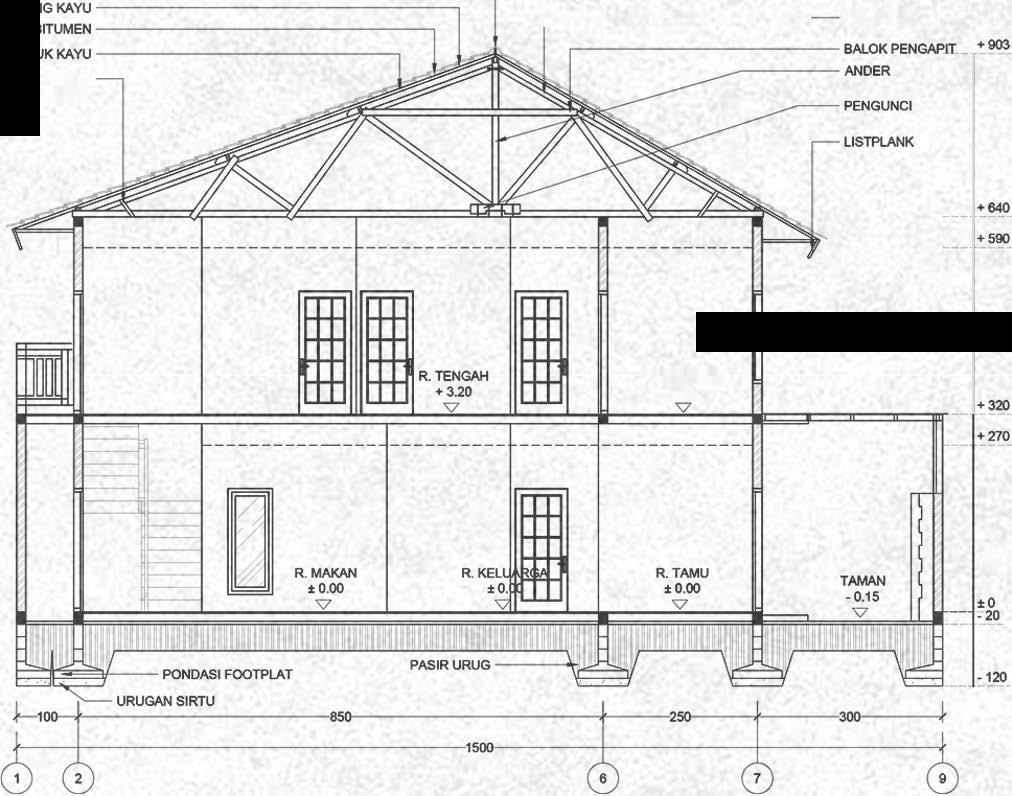
A-A' & B-B' Section

,eca SERONG ,---- -llutlUNtlAN ,--- --KUOM<UOA WORKSPACE •320
10

Board of Presentation

11 I I KO I �:��;( te.rbat ruang memb, namun I Tidok I L I DEi I I I PO I I I TAI II Pfl I I I

MICRO HEALTHY HOUSE IJIDJJIIJ MJIDJIWSE

NSEP

Healthy House ini menggunakan konsep minimolis. Konsep llis ini sangat cocok untuk diteropkan di lohan yang as dikarenakan konsep ini mengedepankan pcznataan sehingga memberikan kesan yang luas don nyaman. lupa juga, Micro Healthy House ini memiliki tujuan untuk �rikan solusi pembangunan rumah di lohan yang terbatas tetop memerhatikan aspek sehat, amen don nyaman.

VAH

DOSEN PEM�IM�ING IR. NINIEK A., MT.

SITE

Site terletak di kawason padat penduduk yang berada di JI. Tambak Wedi Langgar, Kata Surabaya don memiliki suhu rota-rota sekitar 34°C. Dengan lohan yang terbatas don kurangnya vegetasi, nantinya bangunan akan dibangun dengan tetap memerhatikan beberapa faktor, mulai dari penghawoon, pencahayon, termal, don loin-lain sehinggo akon menghosilkan rumah yang sehat.

TONGAN '1PAK

SOLUS/

SUHU PANAS

CURAH HUJAN TINCCI (iJ

I. Bangunan menggunakan worna dominon ceroh agar tidak menyerap ponas

2. Penggunaan material alami seperti kayu don batu alam agar hunian tetap seiuk

KURANCNYA VECETASI

PENGGUNA 0 ;a

KAKEK NENEK ANAK LAKI-LAKI iaij ,.,.., I

AYAH IBU ANAK PEREMPUAN

I. Adanya dry garden pada somping rumah sebagai daeroh resapan air

2.Elevasirumah yang ditinggikan agar tidok terkena genangan air

I. Penonamon pohon di somping rumah selain untuk menghalau sinor motahari longsung jugo sebagai penyejukan o1ami

2.Terdopat banyak ruang terbuko hijou podo hunion

PERSPEKTIF INTERIOR

RUANG TAMU

- ------ -
� �-
·II I ---
,I
SHENDY ULLILAZMY 200510 I0038 PERANCANGAN ARSITEKTUR3
FICO
/SU i�
(iJ
PLAN
PLAN
-- --I I I I I I I I I I I I I I I I 12
JURUSAN ARSITEl(TUR FAl(ULTAS ARSITEl(TUR DAN DESAIN UPN "VETERAW JAWA TIMUR
LAYOUT
SITE
KAMAR TIDUR

Pada era saatini ketersediaanlahan diwilayah yang memilikiekonomi berkembang sangatlah sedikit dandiperkirakanakanterusberkurang,akibatdarihat tersebutmakahargatanahataupunhargasewa tanah sangatlah tinggi. Oleh sebab itu, jika seseorang memiliki lahan yang berada dalam kawasan ekonomi berkembang seperti daerah perkotaan sangat diperlukan inovasi dan pemanfaatan lahan yang dapat digunakan bukan hanya sekedar sebagai rumah hunian, karena sangat banyak sekali peluang dalam membangun suatu usaha dalam sektor ekonomi.

Business House dapat menjadi salah satu solusi untuk memaksimalkan ketersediaan lahan dengan menggabungkan hunian dengan kegiatan bisnis tanpa mengganggu fungsi satu sama lainnya.

13

Business House (Guest House)

Nov. 2021 - Jan.

2022

Site Location.

Overview.
Jin. Baruk Utara 1, Surabaya, Jawa Timur
-
□ ]□□□ 14
-

Hunian

Concept. tlr

Berfungsi sebagai tempat tinggal penghuni dari segala kondisi dan juga digunakan sebagai tempat untuk beristirahat.

Guest House

Berfungsi sebagai tempat penginapan bagi tamu yang memiliki beberapa fasilitas seperti hotelnamun dengan konseprumah.

� cp cp

15
C nsa. I.. 0 0LL "C C: N ca ..., u, ,-
'◊ {D -®
,-0

Style. Industrial.

Industrial Style merupakan salah satu gaya desain yang unik dancukup banyak diminati saat ini. Gaya ini menampilkan elemen-elemen struktural yang khas lewat penggunaan besi sebagaimaterialbangunan.

Pemilihan Industrial Style ini bukan tanpa sebab. Di masa pandemi saat ini, masalah perekonomian sangat berpengaruh pada sebagian besar orang sehingga dengan style ini paling tidak dapat mengurangi biaya pembangunan karena desainnya yang terkesan unfinished (belumselesai) dan memiliki kesan tegas.

Site Plan LayoutPlan

16
17
North & West Elevation

�ctive.

A-A'&B-B' Section

18

BUSINESS HOUSING GUEST HOUSE

�N�UJ5>l���IL lOr'l

TEMA

Sebuah hunian yang kemudian dikembangkan untuk kebutuhan Business sehingga nantinya terdapat penambahanruangataumemanfaatkanruangluaruntuk mendukung konsep tersebut. Diharapkan mampu menciptakan kesan nyaman pada tempat tinggal serta bisa memenuhi fungsi bisnis tanpa mengganggu satu samalainnya.

KONSEP

Rumahakandidesaindengankonsepruangterbuka,tanpasekat danmeminimalisirpembatasruanganberupadinding.Dengan tujuanuntuk memaksimalkan pencahayaanalamidansirkulasi udarayangbaiksehinggamenciptakanlingkunganyangsehat.

GAYA/STYLE

Pemilihan Industrial Style bukan tanpa sebab. Di r pandemi saat ini, ma� perekonomian sa berpengaruh pada seba besar orang sehingga der style ini paling tidak d mengurangi t pembangunankarenadesai yang terkesan unfinished memilikikesantegas.

19 r- -----------1 I I I I I
I
I POTONGAN ==- -·--I ". : f -- • -• DOSEN PEMBIMBING IR. NINIEK A., M.T. FIGO SHENDYULLILAZMY PERANCANGAN 20051010038 ARSITEKTUR3 JURUSAN ARStTEKTUR FAKULTAS AASITEKTUR DAN OESAIN UPN "VETERAN"JAWA TIMUR
i
0
SITEPLAI\ LAYOUT PU I I I I I I I I I :-0 DENAH LANTAI2 !••1 MAT ERIAL ,-0 � � f-t..!!,_ __t_• ....------------
� I ini I nasa ;alah �Taa� I 1gan apat ,iaya dan nnya I I I - I I I �N I I I I I I I I I � Board
20
Presentation of

Site Location.

21
Center Mar. 2022 - Jul. 2022
Creative
Overview.
Jin. Rungkut Madya, Surabaya, Jawa Timur

Creative Center sangat berperan penting untuk mengembangkan, menyalurkan, dan mempromosikan ide-ide dan karya-karya para pelaku kreatif. Kurangnya Creative Center di Surabaya ini menjadi salah

satu masalah yang menjadi penghambat bagi para pelaku kreatif untuk berkreasi. Oleh karena itu, dibutuhkan Creative Center yang memiliki sarana dan prasarana yang lengkap dan memadai agar masalah tersebut dapat teratasi.

Dengan kurangnya wadah untuk mengembangkan dan menyalurkan bakat serta ide-ide dari para pelakukreatifterutama di Surabaya. Lantasharusdiciptakan Creative Center yang dapat menampung masalah tersebut.

■ I 22

Kurangnya Wadah Menyalurkan Ide

Dengan memberi kreatif 1 dapat te,

Mewadahi Pe/aku Kreatif

Dengan m, mem media, mewada yang me

Kecenderungan Sosial Media

Lingkungan Tidak Nyaman dan Sehat

Concept.

Menciptakan Komunitas Kreatif

Adanya Creative permasa yang kur

Menyediakan

Open Space

Berdasarkan fakta dan isu yang sudah ada, tema yang akan digunakan pada perancangan ini adalah INFINITY OF CREATIVITY yang memiliki makna bahwa Creative Center ini menjadi tempat atau wadah bagi perancang dan para pelaku kreatif untuk menyalurkan ide dan kreatifitasnya yang tak terbatas. Pengembangan potensi para pelaku kreatif ini harus diwujudkan untuk mengembangkan industri kreatif terutama di Kata Surabaya agar semakin maJu.

23
CCC C·C
Issue. Goals. CCC
ffl
-.-.-.-.-.....
Tempat/ Wadah
+ I<

hadirnya Creative Center ini akan kan pengaruh kepada para pelaku mtuk menyalurkan ide-idenya agar ·us berkembang.

perilaku masyarakat yang belakangan 1iliki kecenderungan terhadap sosial maka Creative Center ini dapat hi dalam terciptanya komunitas kreatif miliki kegiatan-kegiatan positif.

pemanfaatan open space dalam Center m1 dapat mengatasi lahan di sekitar site terkait lingkungan ang nyaman dan sehat.

+ e �reativitas
1st 2nd & 3rd FloorPlan I I 24
Tak Terbatas
West& Sou· 25
A-A'& 8-B

�ctive

....00•\6 40 •15.00 r' Section th Elevation 26

Board of Presentation

27 I. I � I I I I I I I I I I I I I I I I I

FIGOSHENDYULLILAZMY 20051010030

UPN"VETERAN" JAWATIMUR L I B E R

A CREATIVE CE NTER

<urangnya Crealiive Cenlier di Surabaya ini nenjadi salah sat;u masalah yang menjadi )enghambat; bagi para pelaku kreat;if unt;uk lerkreasi. Oleh karena iliu, dibuliuhkan :::realiive Cenlier yang memiliki sarana dan lrasarana yang lengkap dan memadai agar masalah liersebut;dapali lieraliasi.

"INFINITY OF CREATIVITY" t;ema yang diambil ini memiliki makna bahwa Creat;ive Cent;er ini akan menjadi t;empat; at;au wadah bagi perancang dan para pelaku kreat;if unt;uk menyalurkan ide dan kreat;ifit;asnya yang t;ak t;erbat;as.

------------
PERANCANGAN ARSITEKTUR4
PERSPEKTIFINTERIROR R.RAPAT PERSPEKTIFINTERIROR CAFE ODD ODD D .J KA [ATI f ITAS TEMPAT/ WADAH
TAK TEA BATAS 0ENAH CREATIVECENTER
e
TAMPAK SAMPINGSITE
-----------I I I I I I I I I I I I I I I I I I 28
TAMPAK DEPANSITE

Usai pandemi Covid-19 yang berlangsung selama dua tahun terakhir, mengakibatkan berbagai kegiatan mulai dilaksanakan secara luring termasuk kegiatan akademis di perguruan tinggi sehingga memaksa mahasiswa untuk merantau dan mencari tempat tinggal khususnya mereka yang berasal dari luar kota. Hal ini membuat permintaan akan hunian mahasiswa menjadi sangat meningkat.

Oleh karena itu, Co-housing menjadi solusi tepat yang dapat membantu mahasiswa untuk memperoleh hunian dengan fasilitas yang baik serta dilengkapi sarana dan prasarana lingkungan yang memadai seperti ruang bersama dan ruang terbuka.

29
Overview.
asa Student Co-Housing Apartment Sep. 2022 - Jan. 2023 Site Location. Ir,D[ □[ 30
Jin. Medokan Asri Tengah, Surabaya, Jawa Timur

Issue.

' I , Kebutuhan tempat tinggal/hunian bagi

mahasiswa yang semakin meningkat dan susahnya mencari kamar kos dengan harga terjangkau namun memiliki fasilitas yang

layak serta tidak adanya privasi yang didapat

bahkan tidak tertata dengan rapi dan sempit

menjadipermasalahan utama.

Goals.

1. Mewadahi Kebutuhan Hunian Mahasiswa

2. Mengoptimalkan Potensi Lahan

3. Sarana dan Prasarana yang Memadahi

4. Harga Sewa yang Terjangkau

5. Menciptakan Komunitas yang Saling Support

Unit 1 & 2 Floor Plan

.()
+ �
l:
i�
+
��
31

Concept.

"Healthy Social Space" merupakan suatu konsep yang mengedepankan aspek

kenyamanan dan juga tempat yang interaktif. Dengan menggabungkan dua hal tersebutakanmewadahipenghuniyang ada didalamnya untukberkembangbersama dengan carameningkatkan kualitas diri danjuga rasa saling memiliki satu sama lain.

Healthy Interactive SelfImprove

Site Plan

LayoutPlan

+ ti)�
'--.�,-
I
a
32
33
North & We;

�ctive.

st Elevation 34

,-ngedepankanaspeltlcenyamanandonjugalsmpatyang

lnteralrtJf;Dengan�gkanduahal htrs"'1utakan rr»Wadahipenglluniyangadadidalamnyauntukt,e,1<•mbang benomadongancaromemnglcaffranlnKll,tosd,ridonJugo msasal!ngm,,m,/1/clsatusamoloin.

Apa,t..,,,.,,,ini�Iran�atanucaroBiol<limatik yang menghubutlgkan antara lingkungon fisik dengan kenyomanonpadomanusio.UngkunganfisikmMjodjhat utamadorlparomot«yangadodip,tndekatanBloJdimatik, yangnwmpunyalkontaklangsunglemodapln<leramanusla (alrustika, optik, don tennal) dan ,,.,,,yamanan fisilc lni dlpe,ollmdarlpenggunaonmareriolyangr.potsehlnggCI >Mjadikanbangunonnyoman,amondonhiglonis

.,r2.Mengppt/mcA/(.onPotens,Loha �sa.,��n�)'ang��a,:,r'"<: t�r§irse��"!T��=-,:f1 , ,,5.�'1'!konf�YarJ9�ng��1 .��'.i:,.,, •f ,+,.,,.

35 r I I -FigoShendyUllilazmy 20051010038 ---PERANCANGANARSITEKTUR 5 -PROGRAMSTUDIARSfTEKTUR FAICLI.TASARSITEKTURDANDESAIN UPN"VETERAN"JAWATIMUR .... 'I. -, I I I ��..............1,;i,-� I I I I 1 r-r.P.!"'Pr--�-=-----------;--;--:---;-i---;....,..-J1!5"1�� 11 I
I
I I I I I I I I I I I
Ea·!,�g I
!I I! !Jtu:J,.l ....
I I I I I I I I I I I_,____________________ _ __________ ...._ii ----------
Board
36
Presentation of
37 Hunian Tetap (RISHA) Jul. 2022 - Agu. 2022 Site Location. Overview. o '-' oo□ □□ 00 D o O o□□C 0 D o□ D 0 0 c::cJ D D 0□ 0 oo□□ 0Rfoi5D 8□□ □ Dooo CUifbo ■-== �:::::=;:::::::::==:::=::::::�::::::::�:'.:::=, D□oJO o □ Balaroa, PaluI Sulawesi Tengah Setelc: 2018 kerus,
Maka bentu meng pada tradis

1h peristiwabencana gempa bumiyang sempatmelanda Kata Palu, Sigidan Donggalapada 28 September

silam disertai munculnya tsunami dan memicu likuifaksi, mengakibatkan banyak kerusakan terutama akan bangunan diwilayah terdampak.

pembangunan pada masa itu, digencarkan dengan hunian tetap pasca bencana yang menggunakan k dan struktur bangunan tanggap bencana. Tetapi melihat dari konsep desain yang digunakan, masih gunakankonsepdesainsederhanayangbersifat Prototype. Olehsebabitu,diperlukanadanyapeningkatan konsep desain hunian tetap dengan pendekatan konsep desain yang merekontektualisasikan bangunan ional SulawesiTengah yang tanggap akan bencana berdasarkan standar SNI.

38

Issue. �

Culture Tragedy Behavior Material

Rumah merupakan kebutuhan dasar manusia. Hadirnya rumah merupakan sebuah penyesuaian manusia terhadap kondisi keadaan lingkungan demi memenuhi kebutuhan manusia. Sebuah perancangan rumah, tidak lepas dari kondisi dan sifat dari sebuah lingkungan.

Dengan adanya pengembangan rancangan arsitektur yang memperhatikan kondisi dan sifat lingkungan serta budaya sekitar. Penghuni diharapkan mudah untuk menyesuaikan dengan hunian yang baru dan akan memberikan rasa aman serta nyaman kepada penghuninya.

Ground, 1st Floor Plan, & Site Plan

39
;----�

Solution.

bentuk rumah Tambi pada rancangan merupakan implementasi desain rumah budaya asli dari Sulawesi Tengah.

1. Penerapan 2. Penambahan corak pada desain bangunan merupakan langkah dalam mempertahankan budaya asli dari Sulawesi tengah. 1. Penerapan kontruksi tanggap bencana dengan penggunaan panel RISHA yang memiliki beberapa keunggulan seperti ramahlingkungan, tahan gempa, dan harga yang relatifmurah. 1. Kebutuhan penghuni semakin hari akan semakin meningkat. Oleh karena itu, penerapan rancangan rumah tumbuh yang berada di lahan bagian depan rumah dapat dimanfaatkan sebagai sarana rumah tumbuh penghuni.
A-A' & B-B' Section 40
1. Penggunaan material lokal dan alami yang ramah lingkungan seperti kayu dan bambu.
41
South & East Elevation

�ctive.

Axonometry 42

RUMAH SEMULA

Rumah merupakan kebutuhan dasar manusia. Hadirnya rumah merupakan sebuah penyesuaian manusia terhadap kondisi keildaan lingkungan demi memenuhi kebutuhan manusia.Sebuah perancangan rumah,tidak lepasdari kondisidan sifat dari sebuah lingkungan. KotaPalu merupakan salah satu kota di Indonesia yang terletakdiSulawesiTengah.Terletak pada garis khatulistiwa.KotaPalu menjadikan kota tersebut kota rawan bencana. Pada tahun 2018 terjadi gempa bumi dan tsunamiyangmenyebabkankerusakan padalingkungansekitarnya.Olehkarenaitu, terdapat penyesuaian bentuk bangunan yang tidak mengurangi identitas budaya sekaligus bangunan tanggap bencana.Dengan adanya pengembangan rancangan arsitektur yang memperhatikan kondisi dan sifat llngkungan serta budaya sekitar. Penghuni diharapkan mudah untuk menyesuaikan dengan hunian yang baru dan akan memberikan rasa aman serta nyaman kepada penghuninya.

BU DAYA

KEGIATAN PENGHUNI

LO KAL

BU DAYA

PENERAPAN CORAK BUDAYA PADA FASAO BANGUNAN.

BENCANA

PENGGUNAAN KONSTRUKSI RISHA PAOA BANGUNAN.

KEGIATAN PENGHUNI

PENERAPANZONING BANGUNAN p TERHAOAP KEGIATAN PENGHUNI.

MATERIAL LO KAL

43 -----------I I I I I I I I I I I L A T A R u R A I A N B E L A K A N B M A s A L A H
HUNIAN TETAP T A N G G A P 8 E N C A N A
BENCANA
�..,;
-
MATERIAL
t�
I D E s a L u s I
Presentation p a T a R T a B a N A L s T R u K T u R HUNIAN TANHAP POTONGhN A-A·
FASTb_056
Board of
--------------S E M U LA T ETAP BENCANA FASTb_056 ,.RU MAH S E M U LA FASTb_056 I D£ NAH LANTAI DASAR HUNIAN TETAP T A N B B A P B E NCANA D£NAH LAN TAI I SIT£ PLAN ■ II I I I I I I I I I I�----............... -I I -- --------� 44

Turn static files into dynamic content formats.

Create a flipbook
Issuu converts static files into: digital portfolios, online yearbooks, online catalogs, digital photo albums and more. Sign up and create your flipbook.