Fiamma Morselli Portfolio

Page 1

MORSELLI F I A M M A

PORT— – FOLIO
A R C H I T E C T U R E

LANGUAGES

Italian mothertongue

English bilingual - IELTS certification

French

MORSELLI F I A M M A

CONTACT information

Via Derocati sup. 8/3, Cinzano (TO) Italy

+39 331 3267259

fiamma.morselli@studenti.polito.it

AboutI am an architecture student of the Masters program in Architecture for Sustainability at Politecnico di Torino.

I am a curious and creative person, I am not afraid of new challenges and I am a tenacious worker.

I have lived most of my life in contact with nature seeking and respecting it’s dynamic dimension. I am very interested and passionate about sustainable and ecological architecture and the traditional heritage of different cultures.

I believe there is a strong and sometimes lost connection between nature and architecture.

To quote Tadao Ando I too believe “We borrow from nature the space upon which we build”.

EDUCATION

Master in Architecture for Sustainability

Politecnico di Torino - 2020 - NOW

Bachelor of Architecture

Politecnico di Torino - 2017 - 2020

Highschool Art school Architecture course

Primo Liceo Artistico Statale, Torino - 2012 - 2017

Middle school Sperimental International European Altiero Spinelli, Torino - 2009 - 2011

SKILLS PERSONAL SKILLS

AutoCAD

Photoshop

InDesign

Illustrator

Sketchup

Lumion Render

DaVinci Resolve

Design builder

Termolog

QGIS

Office: Word, Power Point, Excel

Hand Graphics and Drawing

Organised Professional Detail oriented Open minded Fast learner Motivated Problem solving Collaboration

Adaptable Decision making Creative thinking

EXPERIENCES

Volunteering with ANAB - Torino - Milano 2023

Associazione Nazionale Architettura Bioecologica

Teaching in high-schools “natural materials and architecture”

Internship - Torino 2023

PAT design

Workshop - Torino 2022

“La certificazione energetica degli edifici”

Autoconstruction Workshop - Ghesc 2021

FoRTI Student Team

Design workshop - Bionaz - Valle D’Aosta 2021

“Atelier 2000 - scenari di progetto in alta quota”

Internship - Locana 2020

ZeroPositivo Architetti

OTHER EXPERIENCES

Design and autoconstruction workshop - Sicily 2019 Periferica Project

Book illustations - Turin 2020

M. Barlocco, (2020), In bici sulle alpi Alpine studio

Student Parlament - Turin 2016

Agorà e scienza

Volunteering experience India, Madikeri 2014

English teacher for special needs children - WEP

Painting Exhibition - Turin 2014

“Il mio nome è autismo”

National Library in Collaboration with ANGSA, Environmental volunteering Venice - Certosa Island 2013 Legambiente

3 2 Fiamma Morselli Curriculum vitae

Content

PROJECTS

Parasite Social CoHousing

Final design studio, Favara - Sicily 2022

AFFORDABLE HOUSING - PARTICIPATORY APPROACH

Rifugio Aosta

Design workshop “Atelier 2000 - scenari di progetto in alta quota”

Arpy - Aosta Valley 2021

RURAL LANDSCAPE - MOUNTAIN ARCHITECTURE

INTO the RIFT

Design studio

Arpy - Aosta Valley 2021

RAMMED EARTH - PASSIVE STRATEGIES

FoRTI Student Team

Autoconstruction and rehabilitation of traditional heritage workshop

Ghesh - Montecrestese 2021

RESTORATION - STONE BUILDING - LOW-TECH

Other projects

5 4 Fiamma Morselli Portfolio
06 14 20 28 32

Parasite

Final design studio

Location: Favara AG Sicily - Italy

Year: 2021/2022

Project: Final design studio

Architectural and urban design

Environmental control systems

Advanced Environmental performance

Professors: Robiglio Matteo

Defilippi Francesca

Simonetti Marco

Video: https://www.youtube.com/watch?v=NGZG4DLkZEc

The city of Favara, like many others in the world, is characterized by many vacant apartments unused spaces and unfinished buildings. There are more than 11 million lie empty homes across Europe; Favara current inhabitants are 33 000, if the built environment would be restored another 60 000 could be added. Most of the population lives in overcrowded situations or in spaces unfit and uninhabitable. The restoration of the vacant built environment could face the challenges of affordable housing and implement social rehabilitation

The different levels and position of the unused spaces could lead to different solutions and divide the volumes in apartments for social housing or co-housing or even spaces dedicated to the community to create a stronger sense of cooperation

The key is to find interventions that could be applied in different situations that have common aspects, and try to adapt the current structures to the changing spatial needs of the residents. Uniting, connecting and extending living spaces would create new living situations that can constantly evolve and change.

The idea is to involve the people and have a participatory approach: the restoration of the built environment could create a training program that would face the unemployment problem, professionals training a new workforce that would learn a new trade and also have spaces to live and be a part of community: social rehabilitation meets architecture

So the question is can DESIGN change SOCIETY?

6 Fiamma Morselli Portfolio

Favara - territorial connections

Parasite - periferic interventions

9 8 Fiamma Morselli Portfolio
F A V A R A N
Perceptions of
Parasitelevels of abandonment Meta-project

PARASITE INTERVENTIONS

Key plan

PLUG IN

Front AA’, Via Archimede n° 39-57

PLUG IN affordable housing

CONNECT VERTICALLY - affordable housing duplex

CONNECT HORIZONTALLY cohousing

PLUG OUT

Section AA’, Via Archimede n° 39-57

PLUG IN affordable housing

The PARASITE INTERVENTIONS are visible on the exterior facades with the shading strategies that provide a reduction of solar radiation but also present an aestethic choice to connect and make visible the insertion of the parasite intervention of social housing or cohousing.

UNITE

EXTEND

CONNECT VERTICALLY - affordable housing duplex

CONNECT HORIZONTALLY cohousing

CONNECT - horizontally

CONNECT - vertically

10 Fiamma Morselli Portfolio
11

The PARASITE INTERVENTIONS involve services for the community to engage the people and enrich their living conditions. The interventions involving the ground floor see an opportunity for public use of the spaces due to the easy accessibility. The interventions that involve the top floor demand a system of public accessibility: an outside external lift and a staircase that can become a type of second skin of the building.

Front BB’, Str Provinciale 80 n° 167-165

UNITE HORIZONTALLY - elderly relif kinde haus

Front DD’, Via Ospedale 2

EXTEND - social kitchen

Front CC’, Via Archimede 102

EXTEND - coworking

DETAILS

SECTION AA’

PLUG IN - MASHARABIYA DETAIL

SECTION AA’

Section BB’, Str Provinciale 80 n° 167-165

UNITE HORIZONTALLY - elderly relif kinde haus

Section CC’, Strada Provinciale 80

EXTEND - social kitchen coworking

FRONT AA’

-

PLAN AA’

PLUG IN - MASHARABIYA DETAIL

PLAN AA’

SECTION CC’

EXTEND - RETROFIT DETAIL

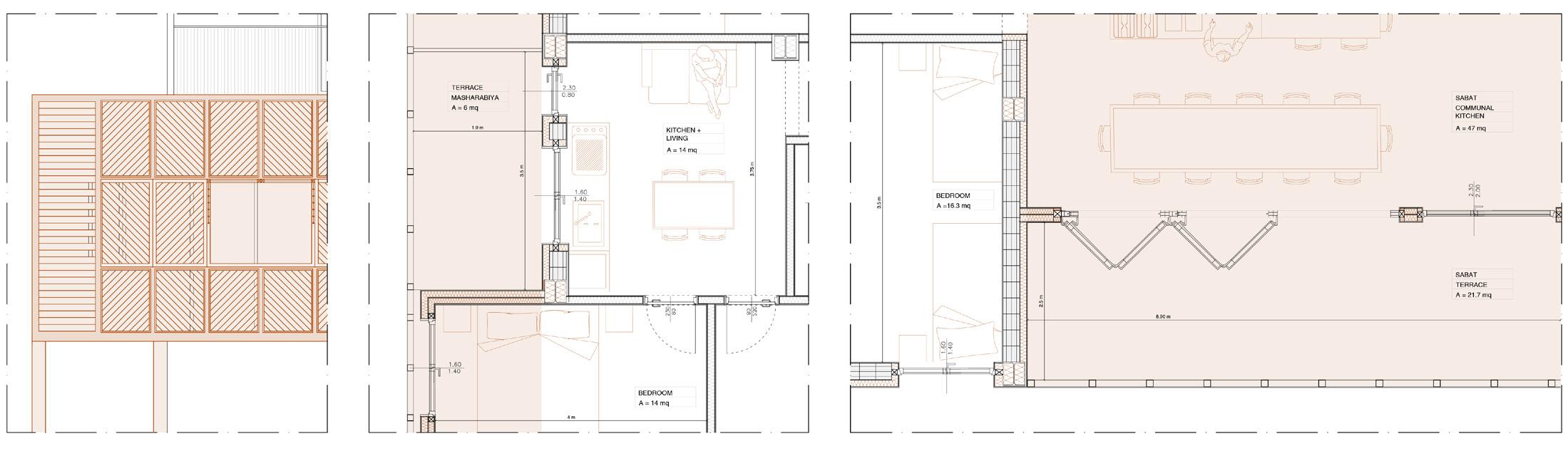
13 Key plan
PLUG IN MASHARABIYA DETAIL
SABAT
CONNECT SABAT DETAIL CONNECT
DETAIL

Rifugio Aosta

Design workshop

Location: Bionaz AO

Aosta Valley - Italy

Year: 2021

Project: Alpine architecture design

“Atelier 2000 - scenari di progetto in alta quota”

Professor: Dini Roberto

Video: https://www.youtube.com/watch?v=NGZG4DLkZEc

The workshop took place in an alpine refuge located at 2000 m.a.s.l. immersed in the rural landscape of the Aosta Valley, it saw several interventions and comparisons with experts including alpine guides, geologists, engineers, designers and builders of high altitude structures.

The workshop started with the analysis of a specific site with the aim to illustrate the issues and the emerging problems in this particular area, providing knowledge and methodologies with a multidisciplinary approach also applicable in others contexts with a high landscape value.

The project addresses a strategic plan for the sustainable development of high mountain areas by proposing an itinerant “mountain education” path and a plan for the relocation of the Aosta Refuge and the proposal of the new structure.

14 Fiamma Morselli Portfolio

Old Rifugio Aosta

New location

Rifugio Aosta

3rdStop

Glaciers and climate changes

2ndStop

Learning how to read the territory

user/need - meta-project

USERS

Mountain climbers

1rst Stop Flora and Fauna

N

Educational Path - New itinerary proposal

New location - project area

Reception Research Monitoring and survey Training

Previous location

Boulder Education program of outdoor mountain activities

NEEDS

sleep / shelter / eat

Ski mountaneers sleep / shelter / eat sleep / shelter / eat / teach

Alpine guides Cyclists

Hikers

sleep / eat sleep / eat

Refuge owner management / reception

Students didactics / learn / conscious tourism

Technicians researchers

monitoring/ study / research

17 16 Fiamma Morselli Portfolio

volume combination

combination and juxtaposition of winter space combination and integration of winter space

water collection through fondaire

signal lights

18 Fiamma Morselli Portfolio
imhoff pit for biological waste disposal raised structure secured to the rock with anchor bolts rainwater and melted snow tank for water recycling continuous covering in corrugated sheet in pre-painted aluminum photovoltaic panels on the south facing facade prefabricated light panels transportable by helicopter pitched roof to allow water and snow flow Night view of the new structure Top view of the new structure

INTO THE RIFT

Design studio

Location: Arpy - Morgex AO

Aosta Valley - Italy

Year: 2020/2021

Project: Design studio

Architectural and urban design

Environmental control systems

Advanced Environmental performance

Professors: Dini Roberto

Thiebat Francesca

Serra Valentina

Video: https://www.youtube.com/watch?v=ZKxnF-VcZnE

The intervention area currently presents a hostel divided in four buildings, three for rooms and one for common areas. The territorial analysis focused on the sport vocation of the Valdigne region, it was decided to maintain the accommodation function of the structure, focusing the attention on different types of users and given the central geographical location another primary function closely linked to the sporting field is that of an educational centre focused on “living the mountains”. The aim of the project is to pursue and spread environmental education and respect for the mountain landscape.

The intervention preserves the integrity of the pre-existing structure, intervening to solve the critical issues of the distribution system. The new connection develops underground not to add additional volumes in an already largely built area.This intervention superficially manifests in the form of a rift which, through a geological metaphor, splits the project area along its entire length. On the surface this emerges with transparent prismatic volumes.

The intervention involves major excavations in the soil and given the large amount of earth volume, the choice is to reuse it for the construction of the wall structure of the underground level. The intention is to create a strong contrast that distinguishes the materiality of the hypogeal environments from the transparency of the prisms on the surface whilst choosing eco-compatible materials

20 Fiamma Morselli Portfolio
01 Vehicular mobility Before 02 Vehicular mobility After 03 Pedestrian mobility user/need - meta-project NEW ACCOMODATION FACILIETIES AND MOUNTAIN EDUCATION CENTRE Sportsman Sleep Eat Education Relax Services Families Staff P1 PT P-1 NEEDS USERS SPACES 23

GROUND FLOOR PLAN

Reception

Restaurant and kitchen

Rooms

relax area and Bar

Kinder house

Common kitchen

Laudry Warehouse

Prisms

structural concept steel core and structural glass with photovoltaic cells

Gym

Sauna

Relax area

Classrooms

multifunctional spaces

Ski rental

Bike rental

Hypogeum connections

structural concept

frame structure with concrete pillars and rammed earth wall

24
Fiamma Morselli Portfolio
N 25
HYPOGEUM FLOOR PLAN
N

RAMMED

EARTH WALL

Pisè technique

Terra stabilizzata 400 mm Isolante polyiso rigido 14 mm Pannelli radianti in argilla 40 mm Intonaco a base di argilla 20 mm

27 26 Fiamma Morselli Portfolio Section BB’ - NE
Detail Section Front
Section BB’ - SO

FoRTI student TEAM

Autoconstruction workshop

The project involved the restoration of a traditional stone building in Ghesc.

Location: Ghesc, Montecrestese VB

Piemont - Italy

Year: 2021

Project: Restoration and retrofit of a stone building

Rapresentative: Bocco Andrea

In collaboration with: Associazione Canova Ghesc Lab

Video: https://www.instagram.com/p/CVpjmSMPxB0/

Student team contact:

Instagram: forti.polito

Facebook: Forti

The first phase involved a theoretical course in collaboration with professionals, artisans and professors of the Polytechnic of Turin.

The second phase saw a “hands on” approach in the worksite. Here the team first completed the completion of the stone wall structure, subsequently the construction of the internal lime-hemp insulation and, finally, the construction of the collaborating screed in reinforced concrete.

The experience of the student team and the practical aspect that characterized this work were very formative and fundamental for the understanding of how a construction site works and the organization of this type of activity in relation to the rural context in which the village is located.

28 Fiamma Morselli Portfolio

The renovation has seen as protagonists the use of NATURAL materials in harmony with the strong presence of TRADITION and NATURE.

Interventions

Stone drywall construction where missing

Hempcrete wall thermo insulation

Hemp roof thermo insulation

Lime plastering of interior walls

30 Fiamma Morselli Portfolio
The site and the student Team in Ghesh - Montecrestese

Other projects

Design studio

The new centre

Location: Bardonecchia, TO Piemont - Italy

Year: 2021

Project: Design studio

Urban planning

Environmental socilogy

Professors: Davico Luca

Corrado Federica

Video: https://www.youtube.com/watch?v=ms7WfWuSPIs&feature=youtu.be

Book illustartions

“In bici sulle alpi”

Author: Mattia Barlocco

Publishing house: Alpine studio, Orizzonti

Year: 2020

Technique: Pen on paper

Design studio

P.R.I.A. - Programma ricerca innovazione agro alimentare

Location: Foglizzo, TO Piemont - Italy

Year: 2021

Project: Design studio

Restoration

Representation of the built environment

Professors: Davico Pia

Novelli Francesco

Video: https://www.youtube.com/watch?v=gebGOO5kX38

Design autoconstruction workshop

Periferica Project - Evocava

Location: Mazara del vallo, Sicily - Italy

Year: 2019

Project: Design workshop and autoconstruction of interior wood furnishings for the Evocava exhibition

Material: Wood contructions

Painting

Open to the blue world

Location: Torino - Piemont - Italy

Year: 2014

Painting Exhibition: “Il mio nome è autismo”

National Library in Collaboration with ANGSA

Technique: Acrylics on canvas

33 32 Fiamma
Morselli Portfolio

PORT— – FOLIO

MORSELLI F I A M M A

A R C H I T E C T U R E

Turn static files into dynamic content formats.

Create a flipbook
Issuu converts static files into: digital portfolios, online yearbooks, online catalogs, digital photo albums and more. Sign up and create your flipbook.
Fiamma Morselli Portfolio by Fiamma Morselli - Issuu