Portfolio Architecte - Designer

Page 1

PORTFOLIO

Feoktistova Victoria

2

Zone de la récréation à Nijni Novgorod............................................................................................

Reconstruction du quartier historique à Nijni Novgorod............................................................10 Conception d’un bâtiment résidentiel à Nijni Novgorod..............................................................12

Rénovation du 10 Galerie de l’Arlequin à Grenoble......................................................................16

Réhabilitation du quartier au Beaurepaire......................................................................................18

Image directrice et plan de valorisation patrimonial du site de Livettaz à Bassens............20 Centre culturel de création artistique en République tchèque..................................................22 Aménagement d’un appartement à Monaco...................................................................................24 Aménagement d’une maison individuelle à Bor.............................................................................25

Aménagement d’un appartement à Nijni Novgorod......................................................................26

3 SOMMAIRE
Centre de divertissement au Havre...................................................................................................4
8
Maison de haute couture à Ivrea.......................................................................................................14
Dessins.....................................................................................................................................................28

CENTRE DE DIVERTISSEMENT

Le Havre, France

PFE à l’ENSAG

La concentration des établissements de divertissements est assez dispersée au Havre et ils en comptent un petit nombre. C’est pourquoi nous souhaitons inscrire dans le tissu urbain un équipement ambitieux dédié à la pratique contemporaine du loisir qui permettra de réunir en son sein une variété de formes de jeux, de divertissements et d’équipements culturels non seulement à l’echelle des quiartiers alentours mais aussi à celle de l’agglomeration du Havre. Comme un navir, le bâtiment va accueillir différentes activités et va devenir une sorte de jeu qui offre des ambiances completement différentes dans un même ensemble. Notre architecture est un support dans lequel nous pouvons imaginer toutes sortes de programmes plus au moins éphémères.

Coupe transversale de la serre botanique Coupe transversale de la mur d’escalade Coupe transversale du cinéma Coupe transversale de l’espace ludique

ZONE DE LA RÉCRÉATION

Nijni Novgorod, Russie

PFE à NNGASU

Le parc est situé dans une zone inondable qui est délimitée par deux rivières Volga et Vezloma et comprend plusieurs lacs. Cette zone est adjacente au centre-ville de Bor et située le long du téléphérique reliant le centre-ville de Nijni Novgorod et le centre-ville de Bor.

Ce site est parfaitement visible du Kremlin de Nijni Novgorod (de la haute côte de la Volga), et ainsi que des cabines du téléphérique, qui est devenu l’une des principales attractions de la région. Cette zone est déjà une zone de loisirs (pêche, pique-nique) bien établie pour les citoyens. Cependant ce territoire n’utilise pas son potentiel.

L’objectif du projet est de développer, amenager, maximiser un grand espace naturel près du centre-ville de Bor ainsi que de relier le centreville de Bor à la rive de la Volga. Le projet propose un parc multifonctionnel avec différents espaces thématiques pour les visiteurs de tous âges et classes sociales.

8
Rivière Volga
0 100 200 300
Rivière Vezloma

RECONSTRUCTION DU QUARTIER HISTORIQUE

Projet d’études à NNGASU

Le concept «Quartier dans le quartier» est la création d’un espace public développé avec un environnement plus favorable et plus confortable. Une caractéristique de ce projet est la conservation maximale de l’environnement historique et l’adaptation du projet proposé à l’environnement existant.

Tous les éléments de la structure donnée sont interconnectés par des cheminements piétons. Le quartier possède des espaces à differentes échelles dans lesquels une personne passe à travers les arches. La fonction de certains bâtiments a été modifié suite à une rénovation. La structure est basée sur la trame urbaine transformée dans le contexte d’un environnement historique.

Schèma d’aménagement paysager

Schèma du transport et de la connextion des piétons

Schèma du zonage fonctionnel .

10
Schéma de la transformation de la trame urbaine Schéma de la mixité programmatique Principaux axes de projet

Nijni Novgorod, Russie

Réalisation de documentation pour l’Institut des projets de Nijni Novgorod (NPI)

Bâtiment de six étages avec des appartements aux étages supérieurs, des locaux à bureaux et un parking souterrain. La finition du bâtiment se fait par l’enduit et la peinture des façades. Ce projet a une zone locale bien entretenue. Dans l’arrière-cour, nous retrouvons les espaces de repos pour les habitants conçus sur deux niveaux.

12 WC + Douche WC + Douche WC + Douche WC + Douche WC + Douche WC + Douche WC + Douche WC + Douche WC + Douche WC + Douche Plan du 1er étage Chambre Chambre Chambre Chambre Chambre Chambre Chambre Chambre Chambre Chambre Chambre Chambre Cuisine Cuisine Cuisine Cuisine Cuisine Cuisine Cuisine Cuisine Cuisine Cuisine 0 1 1 5 10
Plan du RDC
RÉSIDENTIEL
Coupe 1-1
CONCEPTION D’UN BÂTIMENT
Zone de récréation Salle de gym Bureau Bureau Bureau Bureau Bureau Bureau Vestiaire

MAISON

Ivrea,

Italie

Projet d’études à l’ENSAG

L’entreprise est organisée en deux corps principaux distincts mais parallèles reliés par une passerelle. Les deux espaces d’entrée sont éclairés naturellement par des ouvertures zénithales. La barre la plus large est destinée aux ateliers, à l’espace de défilé ainsi qu’à des expositions. La seconde est dédiée à la partie administrative avec des bureaux organisés sur la longueur. L’atelier est baigné de lumière naturelle grâce à des ouvertures généreuses en façade et des puits de lumière. Les couloirs le long du bâtiment administratif sont aussi éclairés naturellement via des ouvertures. Le projet est bordé d’un parc et d’une zone pietonne. L’édifice est construit en béton armé. Des brises soleil en bois sont disposés certaines ouvertures afin de créer un jeu d’ombre et de lumière qui dynamise l’espace perçu depuis l’interieur.

14
DE
HAUTE COUTURE

Façade Sud-Est

Façade Sud-Ouest

15
Plan RDC
Façade Sud-Est Plan R+1
1 2
Coupe 3-3
Façade
Nord-Ouest Coupe 2-2 Coupe 1-1
0 1 5 1 3 3 2
Façade Nord-Ouest

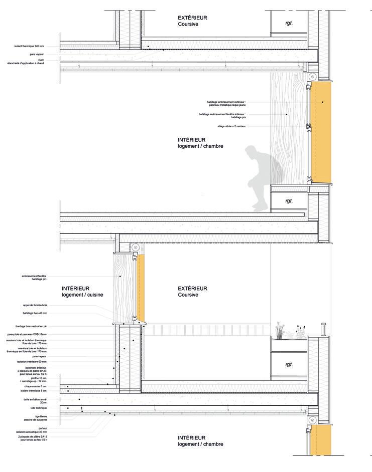
RÉNOVATION DU 10 GALERIE DE L’ARLEQUIN

Grenoble, France

Projet d’études à l’ENSAG

Vue des coursives

La galerie piétonne se transforme en galerie commerçante et reste passante. Au nivau de la galerie haute, la passerelle de la Bruyère est prolongée pour donner accès au parc Jean Verlhac et au toit de la Régie.

Côté parc, la régie de quartier est agrandie pour completer le vide creusé après la démolition de la Galerie 20. La nouvelle façade lui offre une ouverture sur la ville. La toiture se transforme en jardin partagé.

Au bout des coursives, on trouvera des terrasses communes, à partir de la coursive 4, sur les toitures en cascase du 10. Certains espaces de la toiture seront comblés pour que le toit se transforme en jardin.

Ancien système de distribution

Vue des espaces communs

Nouveau système de distribution

Nord Nord Sud Sud

Régie de quartier Parc Jean Verlhac

16
Avenue la Bruyère Régie de quartier Parc Jean Verlhac Avenue la Bruyère

Les habitants viennent s’exprimer sur la manière dont ils souhaitent habiter leurs logements et ils pourraient choisir leur trame pour habiter : ce qui va multiplier les plans et les possibilités afin de sortir des normes de l’habitat standard. Chaque entrée se fait donc au niveau de la coursive et sur le même principe qu’auparavant on vient montrer ou descendre pour rejoindre la pièce principale. On va retrouver des logements en semi duplex, en semi triplex et même parfois en quadruplex allant du T1 de 30 m2 au T6 de 112 M2.

17
Détail constructif de la façade Nord Détail constructif de la façade Sud Plan de la galerie haute projet Plan de la galerie basse projet Parc Jean Verlhac Parc Jean Verlhac

RÉHABILITATION DU QUARTIER

Beaurepaire, France

Projet d’études à l’ENSAG

Le centre-ville voit un flux constant de différentes générations, mais elles n’y restent pas longtemps. Un projet de revitalisation vise à créer une zone multi-activités piétonne, intégrant un cinéma, une médiathèque avec jardin, un espace de coworking, un atelier, une salle de sport et un restaurant. Le cinéma s’étendra avec une grande entrée, une médiathèque sur deux niveaux incluant un café. Un ancien magasin deviendra l’espace de coworking, et un hangar sera réaménagé en zone sportive. Trois étages accueilleront un café au rez-de-chaussée et un studio aux deux derniers étages.

18
Le
site existant Le site projet
19
Le site existant Le site existant Le site projet Le site projet

Livettaz, Bassens, France

Réalisation des croquis à la main pour INCA Architectes

20 IMAGE DIRECTRICE ET PLAN DE VALORISATION PATRIMONIAL DU SITE
21

CENTRE CULTUREL DE CRÉATION ARTISTIQUE

République Tchèque

Réalisation des dessins techniques (à la main) pour

INCA Architectes en vue de la création ultérieure de prototypes de l’escalier et d’auditorium.

22
23

AMÉNAGEMENT D’UN APPARTEMENT

Monaco, France

Création des plans pour MPMC DESIGN

24

AMÉNAGEMENT D’UNE MAISON INDIVIDUELLE

Bor, Russie

Création d’un design d’intérieur pour un particulier

25

AMÉNAGEMENT D’UN APPARTEMENT

Réalisation de documentation pour

Atelier de l’architecte Tumanin

Mes travaux consistaient à réaliser des plans de l’amenagement de l’intérieur pour deux chambres dans un appartement. Au cours de mes travaux j’ai pu réaliser différentes tâches allant de la sélection du mobilier à la conception des différents luminaires, en passant par l’installation des divers systhèmes domotiques (VMC encastré, TV mural connecté etc).

26
A1 Mur A1 A2 Mur A2 Mur A3 Mur A4 Mur A5 Mur A6 Mur A7 Mur A8 A3 A4 A5 A6 A7 A8
Chambre 1
27
Chambre 2 B1 Mur B1
B2
Mur B2 B3 Mur B3 B4 Mur B4 B5 Mur B5 B6 Mur B6 B7 Mur B7 B10 Mur B10 B9 Mur B9 B8 Mur B8
28 DESSINS
29

MERCI POUR VOTRE ATTENTION

30

Turn static files into dynamic content formats.

Create a flipbook
Issuu converts static files into: digital portfolios, online yearbooks, online catalogs, digital photo albums and more. Sign up and create your flipbook.
Portfolio Architecte - Designer by Victoria FEOKTISTOVA - Issuu