Portfolio de Arquitetura

Page 1


LUIS FELIPE FERNANDES DE SOUSA

portfólio de arquitetura 2025

SOBRE MIM

Sou estudante de Arquitetura e Urbanismo pela Universidade de São Paulo - FAUUSP. Apaixonado pela criação e pelo desenho desde sempre, encontrei no curso de arquitetura a minha identidade. Desde o início da graduação, tenho buscado não apenas entender a técnica, mas também diferentes formas de tornar significativos os espaços para as pessoas que os habitam. Investigo sempre maneiras de aplicar meus conhecimentos nos projetos que faço. Ao mesmo tempo, busco aprender com profissionais e colegas de curso que compartilham a mesma paixão pela criação de espaços inspiradores e humanizados.

IDIOMAS

Inglês fluente, Espanhol básico

SOFTWARES

AutoCad

SketchUp

Photoshop

Qgis

Blender

Archicad

Revit

InDesign

(98) 99115 2406

luisfelipefersousa@gmail.com

HABILIDADES

Facilidade de aprendizagem e receptivo a feedback;

Boa gestão de prazos e resolução de problemas;

Criatividade e excelente visão espacial;

Habilidade em modelagem 3D, edição de imagens e renderização de projetos;

Compreensão de linguagens de programação e criação de programas básicos nas linguagens Python e C#.

FORMAÇÃO ACADÊMICA

MAR 2021 - JUL 2026 (previsão)

Graduação em Arquitetura e Urbanismo

Faculdade de Arquitetura e Urbanismo e de Design da Universidade de São Paulo - FAUUSP

2024.2

Modelagem da Informação da Construção - BIM

Disciplina optativa - FAUUSP

Modelagem de projeto residencial em Revit, procedimentos de representação gráfica, produção e gerenciamento da documentação técnica do projeto.

EXTENSÃO

ABR 2023 - JUN 2023

Extensão Universitária em Oficina de Fotografia

FotoVideo FAU

Utilização de câmeras profissionais digitais e analógicas, estudo de técnicas de enquadramento, luz e sombra, revelação e ampliação de negativos.

OUT 2024 - NOV 2024

Monitoria em oficina de abordagem STEAM e Cultura Maker

Inova USP

Projetos simples de circuitos elétricos em Arduino, técnicas de impressão 3D, resolução criativa de problemas cotidianos.

EXPERIÊNCIA PROFISSIONAL

AN 2024 - MAR 2024

Escritório Casalua

Estagiário

Elaboração de desenhos executivos para reformas residenciais; detalhamento de marcenaria; geração de planilhas de orçamento; modelagem em SketchUp e renderização de projetos de interiores.

MAR 2024 - DEZ 2024

Laboratório Caverna Digital - Inova USP

Estagiário

Elaboração de desenhos técnicos para salas de servidores, incluindo layout físico e infraestrutura de elétrica e climatização; modelagem de objetos e ambientes em Blender; edição de fotos e vídeos; escaneamento 3D e processamento de nuvem de pontos.

AGO 2025 - Presente

Estúdio Favo - Arquitetura e Gestão

Estagiário

Modelagem em Archicad de áreas comuns e privativas para empreendimentos condominiais, elaboração de pranchas executivas para obra, detalhamento de áreas molhadas, geração de tabelas de esquadrias e revestimentos

1.

CASA PARA DOIS (e mais)

página 6

habitação, conforto térmico, tijolo cerâmico, cobogó, paisagismo

2.

ESCOLA E TEATRO ZÉ

CELSO

página 10

teatro, biblioteca, cultura, parque urbano, parque alagável

3.

VIVENDA SUSPENSA

página 14

habitação temporária, aço, madeira, interiores

4.

CONJUNTO BALEIA VERDE

página 18

habitação coletiva, habitação de interesse social, alvenaria estrutural,

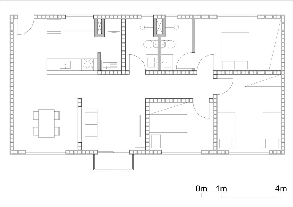
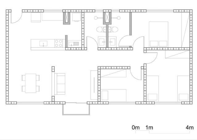
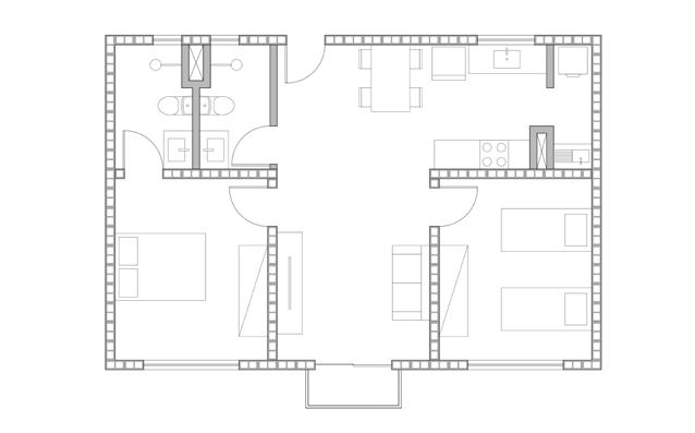
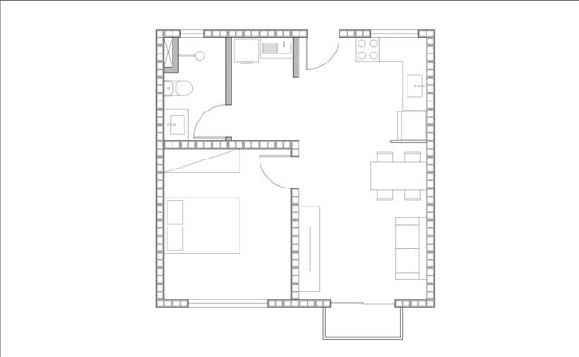
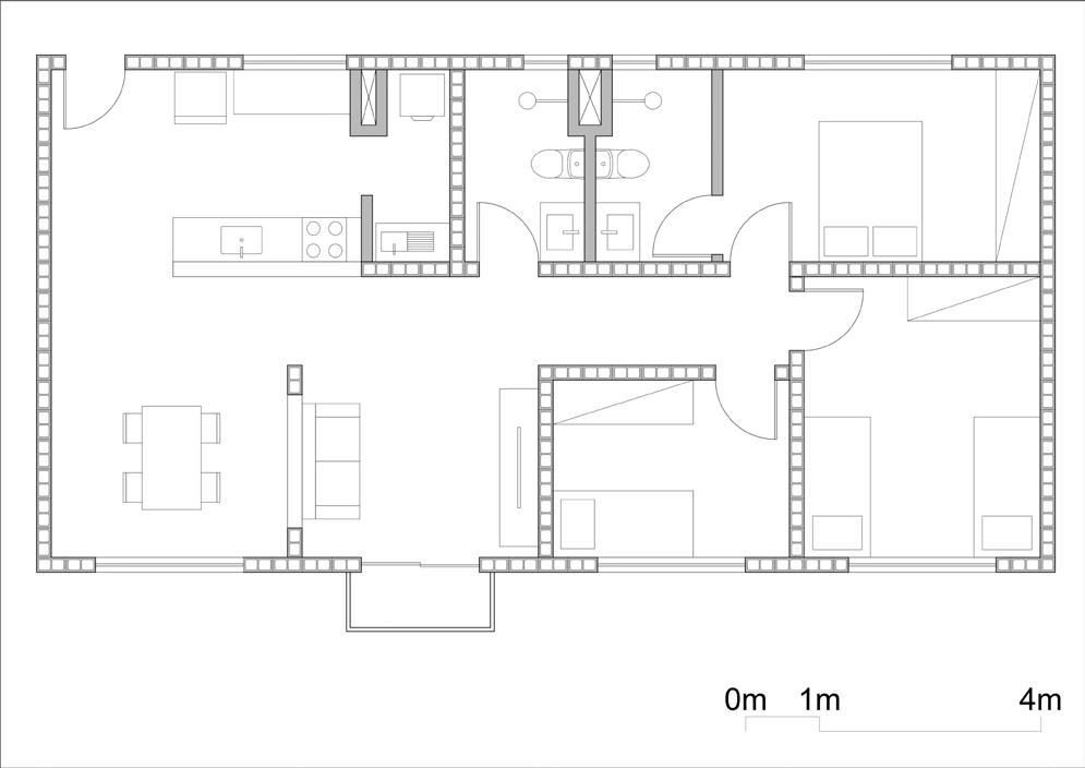
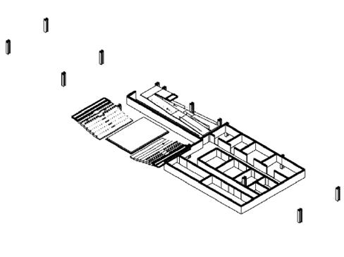
CASA PARA DOIS (e mais)

Habitação unifamiliar

São Luís, Maranhão

ano: 2024

autor: Luis Felipe F de Sousa orientação: Marta Vieira Bogéa disciplina: Projeto IV

A residência foi projetada para um casal sênior, cujo ciclo familiar se reorganizou após a saída dos filhos adultos. O projeto visa abrigar o casal e acolher confortavelmente as visitas frequentes dos filhos e de suas respectivas famílias.

A residência é organizada em dois blocos que contornam um jardim central. O bloco frontal contém as áreas comuns, dispostas em uma planta aberta. O bloco posterior contém as áreas íntimas da residência. São conectados por um elemento translúcido de circulação vertical e horizontal.

O projeto incorpora vários elementos da arquitetura local. A vedação externa é feita em tijolos aparentes. Em alguns momentos a ordenação dos tijolos é alterada para criar cobogós nas paredes, aprimorando a ventilação natural da residência. Os elementos estruturais são revestidos com placas cerâmicas semelhantes aos tijolos dispostos de forma vertical e alinhados entre si, dialogando com o padrão intertravado das paredes de vedação.

Softwares utilizados: AutoCad, Revit, Photoshop

perspectiva explodida

cobogós

policarbonato alveolar fosco

cerâmicas

piso de concreto polido

grama
cascalho branco
tijolo maciço exposto
lambari-roxo
telhas

planta térreo

planta superior

corte aa

ESCOLA E TEATRO

ZÉ CELSO

Equipamento cultural e parque urbano

Bela Vista, São Paulo - SP

ano: 2024

autores: Luis Felipe F de Sousa, Ana Carolina Kessaris, Christian Nascimento, Ryan Mulatinho orientação: Felipe Noto 2º concurso labideias

O projeto propõe uma integração entre arte, cidade e natureza. Situado em um grande lote vazio que contorna o Teatro Oficina (antes liderado pelo eterno “Zé Celso”) na Bela Vista e cortado pelo córrego Bexiga, o projeto se baseia em uma lâmina arquitetônica contínua que pousa sobre o terreno e abriga biblioteca, galerias e salas multiuso. Devido ao relevo acidentado, a proposta explora as diferenças de níveis para criar múltiplos acessos e interligar os espaços do Teatro Oficina com o anfiteatro público do parque.

A estrutura do projeto é marcada por uma grande cobertura metálica sustentada por treliças longitudinais e um vão de 15 metros. As rampas, além de funcionarem como meios de acesso, se transformam em espaços de permanência e mirantes para o anfiteatro.

O parque utiliza-se do terreno acidentado para criar plataformas e passagens em diferentes níveis. Sua integração com o córrego Bexiga se dá por meio de áreas alagáveis que recebem o excesso de águas pluviais. Desenhou-se um caminhar permeado por árvores e cantos de descanso e reflexão

Softwares utilizados: AutoCad, SketchUp, Enscape

nível 750,0
nível 753,0
nível 756,0

corte aa

nível 761,0
nível 764,0

VIVENDA SUSPENSA

Habitação de uso temporário

Tuntum, Maranhão

ano: 2023

autor: Luis Felipe F de Sousa

O projeto foi concebido como um refúgio em meio à natureza do interior maranhense, a fim de proporcionar tranquilidade e conexão com o ambiente ao redor. A volumetria suspensa do chalé foi a decisão tomada para enfrentar o terreno irregular, garantindo leveza visual à construção e diminuindo o impacto no entorno.

A estrutura do chalé é composta por vigas e colunas de aço, fixadas ao solo por meio de pilares que se unem à fundação de concreto. A estrutura se eleva sobre o solo, minimizando as movimentações de terra.

A estrutura metálica pesada contrasta com a leveza dos revestimentos em madeira. O assoalho é composto por madeira de Sucupira e o forro por madeira de Jatobá. Os móveis foram planejados com MDF em tons claros. A vedação interna apresenta uma cor branco suave em harmonia com o mobiliário.

O caráter horizontal do chalé é evidenciado na planta pela largura e profundidade desiguais, estabelecendo linearmente os diferentes ambientes do chalé. No corte, a horizontalidade é delimitada pelas lajes planas e simétricas, conectadas verticalmente pelas janelas de piso a teto.

Softwares utilizados: Archicad, SketchUp, Enscape

corte aa

perspectiva explodida

CONJUNTO BALEIA VERDE

Habitação multifamiliar

Praia da Baleia, São Sebastião - SP

ano: 2023

autores: Luis Felipe F de Sousa, Lucas Funchal, Jocy Paulo Mendes

orientação: Helena Ayoub disciplina: Projeto III

Pensado para abrigar os moradores das áreas de risco da Vila Sahy, o projeto inclui 3 diferentes tipologias de apartamento para melhor atender as diferentes formações familiares. Os dois blocos de edifício se inserem em um grande passeio de pedestres, equipado com comércios, uma creche e ligações a um parque urbano.

O projeto priorizou a redução dos custos e a rapidez na construção. Portanto, adotou-se a alvenaria estrutural e uma modulação dos pavimentos tipo. Módulos de 3,4 x 7 metros foram estabelecidos para facilitar a concepção do projeto e construção da obra. Os

apartamentos contém 1, 2 ou 3 quartos e são dimensionados de acordo com a modulação citada.

As passarelas de circulação dos corredores são feitas em concreto e apoiadas em vigas metálicas. Elas se distanciam das unidades, desenhando vazios que iluminam e ventilam os pavimentos abaixo. A cobertura nesta seção do edifício é translúcida e elevada, facilitando ainda mais a ventilação e a iluminação natural.

Softwares utilizados: Archicad, AutoCad, Enscape, Photoshop

implantação térreo

corte aa

apt. 1 quarto
apt. 2 quartos
apt. 3 quartos
corte bb
OBRIGADO

Turn static files into dynamic content formats.

Create a flipbook
Issuu converts static files into: digital portfolios, online yearbooks, online catalogs, digital photo albums and more. Sign up and create your flipbook.