PORTFÓLIO DE TRABALHO - ARQ. FELIPE NUNES

Page 1

portfolio felipe nunes da silva arquiteto e urbanista

FELIPE NUNES DA SILVA arquiteto e urbanista

informações e contato 28 anos, brasileiro arq.felipenunes@gmail.com (51) 99105-6244 porto alegre, rs

experiência profissional

set/2022 - jan/2023 arquiteto na Lubianca Arquitetos desenvolvimento de projetos comerciais utilizando a plataforma BIM, contato com clientes e fornecedores, efetuando as etapas de criação, desenvolvimento e detalhamento.

ago/2019 - set/2022 arquiteto na OCTO Coletivo elaboração de projetos arquitetônicos em diferentes escalas utilizando a plataforma BIM, compatibilização com demais projetos complementares, gerenciamento de equipe, contato com clientes e fornecedores.

mar/2017 - ago/2019 estágio na Fourcorp Engenharia projeto e modelagem em BIM de projetos complementares (elétrico e hidráulico) e compatibilização com os demais projetos (arquitetônico, estrutural, entre outros).

jan/2018 - jun/2018 Projeto Residêncial Porto Seguro desenvolvimento de projeto arquitetônico e plantas técnicas do residencial porto seguro, em cachoeirinha, para o Arq. Gildo Martinez.

mar/2016 - mar/2017 estágio na Secretaria de Obras Públicas elaboração e desenvolvimento de projetos elétricos e compatibilização com projetos SPDA em processos de obras estaduais.

formação acadêmica

ago/2014 - dez/2020 Arquitetura e Urbanismo graduação - Universidade Federal do Rio Grande do Sul (UFRGS)

mar/2014 - dez/2015 Técnico em Edificações Escola Técnica Estadual Parobé

mar/2009 - fev/2012 Técnico em Informática Escolas e Faculdades QI

nov/2021 Templates em REVIT Democratizando o BIM - ABDI

mar/2016 Revit Architecture Básico Data Lógica

1 3 5 2 4 6 NÚCLEO 4D Habitação na Cidade Baixa Complexo de eventos e convenções na orla Casa do imigrante Projetos profissionais Apartamento MS

informações sobre o projeto

NÚCLEO 4D

Proposta de reabilitação da fábrica de fogões Wallig

ano: 2021 autor: Felipe Nunes da Silva orientadora: Cassandra Coradin Salton softwares utilizados: Revit, Enscape, Adobe Photoshop, Adobe Indesign e Adobe Ilustrator trabalho de conclusão de curso - FAU UFRGS

O projeto consiste na reabilitação de um conjunto arquitetônico industrial histórico da cidade de Porto Alegre. O despertar para a temática surgiu à partir de análises sobre a cidade, principalmente no alto número de edificações históricas em estado de decadência ou abandono na região central. O governo do estado tem lançado várias medidas de incentivo da reutilização desses locais, criando novos polos atrativos para a população, principalmente na região do 4º Distrito. Concomitantemente, durante a etapa de pesquisa e criação da problemática, diversas notícias e anúncos trouxeram á tona o destaque nacional dado à cidade de Porto Alegre por ser o maior polo de produção cervejeira do país, principalmente no bairro onde o terreno está localizado. Por este motivo, foi escolhido desenvolver a restauração das edificações à fim de receber a cervejaria Núcleo 4D, onde teremos tanto a produção cervejeira, quanto espaços para eventos, loja e bar para consumo dos produtos.

isométricacomplexo

1 colagem da fachada - rua almirante barroso

perspectiva - acesso rua câncio gomes perspectiva

Área destinada para abrigar uma cervejaria de médio porte, com média mensal de produção de 3.000 litros de cerveja, contemplando as áreas administrativas, operacionais e estocagem. Um percurso feito pelo mezanino permite a visitação de clientes em todo o processo de produção, tendo início em uma rampa monumental na recepção e encerrando na loja, onde é possível degustar e levar para a casa os produtos.

RECEPÇÃO / PRODUÇÃO BAR

O bar é voltado para o público boêmio da cidade, que tem procurado cada vez mais espaços agradáveis para encontrar seus amigos e apreciar bons produtos. No bar poderão ser comercializadas tanto cervejas tradicionais quanto as que forem produzidas na cervejaria.

LOJA

A loja de produtos cervejeiros procura oferecer um apoio aos produtores que forem fabricar suas cervejas na edificação próxima e também atender ao público externo que precise destes mesmos produtos.

RECEPÇÃO
PRODUÇÃO
RAMPA INÍCIODO

perspectiva - acesso rua almirante barroso perspectiva - área aberta bar

PRODUÇÃO LOJA

CIRCULAÇÃO EXTERNA CIRCULAÇÃO EXTERNA

MEZANINO ESTRUTURA ATIRANTADA MEZANINO|ESCADA FIMDOPERCURSO

RAMPADEACESSO INÍCIODOPERCURSO

isométrica percurso
BAR
A
A
01 02 03 04
07
B
B RECEPÇÃO a = 594,73m² 0,10 0,05 ACESSO ACESSO ACESSO FUTURO ACESSO QUE CONECTARÁ A RECEPÇÃO AO EQUIPAMENTO SOCIOCULTURAL PISO CONCRETO ALISADO COM ADITIVO DE COR PISO CONCRETO ALISADO COM ADITIVO DE COR
05
06 CIRCULAÇÃO FINANCEIRO ADMINISTRAÇÃO DEPÓSITO BANHEIRO PNE BANHEIRO MASCULINO BANHEIRO FEMININO CIRCULAÇÃO VERTICAL 01 02 03 04 05 06 07 08 08 04
Cobertura Pav. CORTE A
Pav.
0.00 m 03 -
9.00 m Segundo Pav. 4.60 m
CORTE B
Térreo
Cobertura
Pav. Térreo 0.00 m Segundo Pav. 4.60 m Segundo Pav.
m Pav. Térreo 0.00 m 1 - LAJE SECA - PAINEL WALL REVESTIMENTO EM PLACA CIMENTÍCIA 2 - GUARDA CORPO MEZANINO REVESTIMENTO: CHAPA METÁLICA DOBRADA PINTADA NA COR AMARELO E = 15MM 3 - VIGA METÁLICA GERDAU W 200 X 35,9 4 - GUIA PERFIL C 5 - CHAPA POLICARBONATO 3MM 1 2 3 4 5 Pav. Térreo Segundo Pav. 4.60 m
4.60

LAJE WALL COM PISO

GUARDA CORPO METÁLICO

ESTRUTURA CONTRAVENTAMENTO

GUIA PERFIL C

ESTRUTURA METÁLICA

Pav. Térreo
Pav. Térreo 0.00 m 03 - Cobertura 9.00 m Segundo Pav. 4.60 m Pav. Térreo 0.00 m 01 02 03 04 05 06 07 08 09 10 11 16 15 14 13 12 11 03 14 15 08 15 19 20 09 14 0,10 16

01 - Telha Sanduíche Metálica Termoacústica Calha Forte pintura branca e=30mm 02 - Viga metálica estrutural Perfil I Gerdau W 200 x 35,9 03 - Algeroz Metálico com Pintura na cor branco e=15mm 04 - Viga metálica estrutural Perfil I Gerdau W 360 x 44,6 05 - Esquadria de fechamento da cobertura, Perfis tubulares metálicos Metalon, Vidro Laminado Insulado 6mm 06 - Forro em gesso acartonado fixado em estrutura metálica superior 07 - Viga metálica estrutural Perfil H Gerdau W 530 x 72 08 - Parede pré existente tijolo maciço e=30cm 09 - Pilar metálico estrutural Perfil H Gerdau W 530 x 72 10 - Lâmina vidro temperado e=6mm

11 - Viga metálica estrutural

Perfil I Gerdau W 150 x 22,5

12 - Guia Perfil C fixada em viga lateral

13 - Perfil metálico para fechamento pintura branca e=15mm

14 - Esquadria fixa em alumino pintado branco fosco eletrostático

15 - Porta Dupla de correr em alumínio pintado em branco fosco eletrostático

16 - Piso existente em concreto armado, contrapiso de concreto alisado com aditivo de cor

17 - Calha metálica de chapa dobrada 15x25 cm

18 - Perfil Metálico Metalon 5x5cm fixação das telhas

19 - Pilar metálico estrutural Perfil I Gerdau W 150 x 22,5

20 - Pilar em concreto armado existente 28x28cm

Pav. Térreo 0.00 m 03 - Cobertura 9.00 m Segundo Pav. 4.60 m 03Cobertura 9.00 m Segundo Pav. 4.60 m
05 17 18 06 02 01
07 02 09 20 08 10 12 19 13 11
16
2

informações

CASA DO IMIGRANTE

ano: 2020 autor: Felipe Nunes, Josiane da Mota e Bárbara Kayser orientadores: Carlos Bahima, Nicolas Palermo, Silvia Morel Correa softwares utilizados: Revit, Adobe Photoshop, Adobe Indesign e Adobe Ilustrator projeto arquitetônico VII - FAU UFRGS

sobre o projeto

Com o intuito de oferecer moradia temporária, fonte de renda e e espaços de lazer para imigrantes na cidade de Porto Alegre, o projeto consiste na construção de uma edificação que permita o fortalecimento da pluralidade cultural e econômica do 4º Distrito, com espaços de moradia, produção e comércio;

LOJA SALA DE AULA MÓDULO HAB. PCD ÁREA APOIO INFRAESTRUTURA PRAÇA INTERNA ESTACIONAMENTO / ESPAÇO PARA FEIRAS

MÓDULO HABITACIONAL TERRAÇO 08 09

01 01 01 01 02 03 03 03 04 05 06 07
08 08 08 08 08 08 08 08 08 08 09
01 02 03 04 05 06 07

TÉRREO PILARES + LAJES 1 CAMINHÃO

TÉRREO PAREDES + ESQUADRIAS 1 CAMINHÃO

TÉRREO MÓDULO PNE 6 CAMINHÕES

PAVIMENTO 2 MÓDULO HABITAÇÃO ÁLVARO CHAVES 8 CAMINHÕES

PAVIMENTO 2 MÓDULO HABITAÇÃO SANTOS DUMONT 12 CAMINHÕES

PAVIMENTO 2 VARANDAS, GUARDA-CORPOS E PASSARELAS 1 CAMINHÃO

PAVIMENTO 3 MÓDULO HABITAÇÃO ÁLVARO CHAVES 8 CAMINHÕES

PAVIMENTO 3 MÓDULO HABITAÇÃO SANTOS DUMONT 12 CAMINHÕES

PAVIMENTO 3 VARANDAS, GUARDA-CORPOS E PASSARELAS 1 CAMINHÃO

PLANTA BAIXA MÓDULO HABITACIONAL

CORTE PERSPECTIVADO MÓDULO HABITACIONAL

3

COMPLEXO DE EVENTOS E CONVENÇÕES NA ORLA

informações

ano: 2020 autor: Felipe Nunes e Ana Clara Menuzzi orientadores: Claudio Calovi e Glênio Bohrer softwares utilizados: Revit, Enscape, Adobe Photoshop, Adobe Indesign e Adobe Ilustrator projeto arquitetônico VI - FAU UFRGS

sobre o projeto

O complexo de eventos e convenções na orla do guaíba foi pensado a partir de um conceito de topografia: a base do edifício, que engloba o programa das feiras e das convenções, tem um desenho generativo irregular que abraça todas os nãoparalelismos do terreno, gerando uma curva de nível artificial, que se multiplica em mais um pavimento, assim como no paisagismo.

Dessa base, pouco permeável visualmente, afloram coberturas e envoltórios de vidro como cristais, de formas irregulares com inúmeras deformações em todos os planos, para replicar as formas topográficas da base. Os hoteis se desenvolvem como o maior desses cristais, mais verticalizado e maior em sua largura, proeminente em relação aos demais.

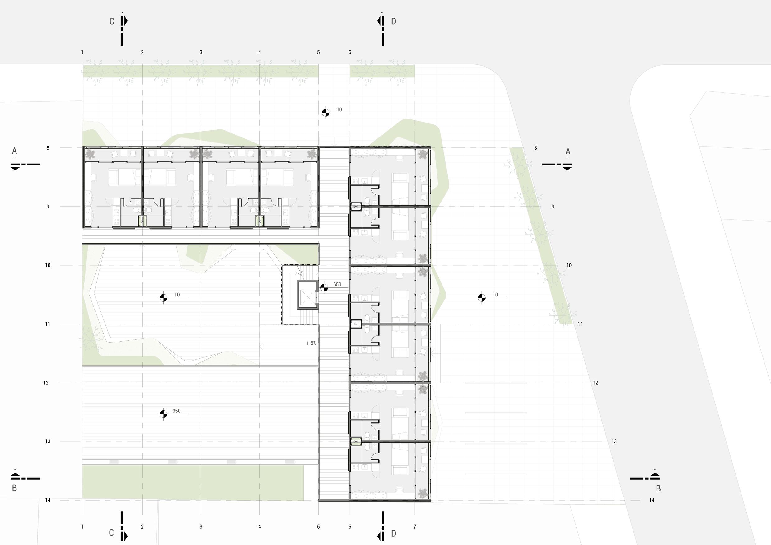
HABITAÇÃO NA CIDADE BAIXA

informações

ano: 2017 autor: Felipe Nunes e Giulia Massuco orientadores: Cláudia Cabral e Maria Luiza Sanvitto softwares utilizados: Sketchup, AutoCAD, Adobe Photoshop, Adobe Indesign e Adobe Ilustrator projeto arquitetônico III - FAU UFRGS

sobre o projeto

O objetivo do atelier de projeto 3 consiste em criar um conjunto habitacional no bairro cidade baixa, em porto alegre, o qual integrasse espaços públicos e privados em um lote de meio de quadra. As unidades habitacionais foram moduladas previamente com a largura de 3,5m e nelas proposto um ambiente de trabalho. Além das habitações, o conjunto conta com três equipamentos: uma grande biblioteca em forma de galeria, uma cafeteria e um cowork.

As principais diretrizes da dupla foram otimizar o espaço de atelier no térreo, fazendo das fachadas elementos dinâmicos com vida, funcionando como os “olhos das ruas” e integrando os espaços abertos do interior do lote.

4

PLANTA BAIXA - PAVIMENTO TÉRREO

PLANTA BAIXA - SEGUNDO PAVIMENTO

PLANTA BAIXA - SEGUNDO PAVIMENTO

CORTE LONGITUDINAL

FACHADA SUDESTE FACHADA NOROESTE CORTE TRANSVERSAL

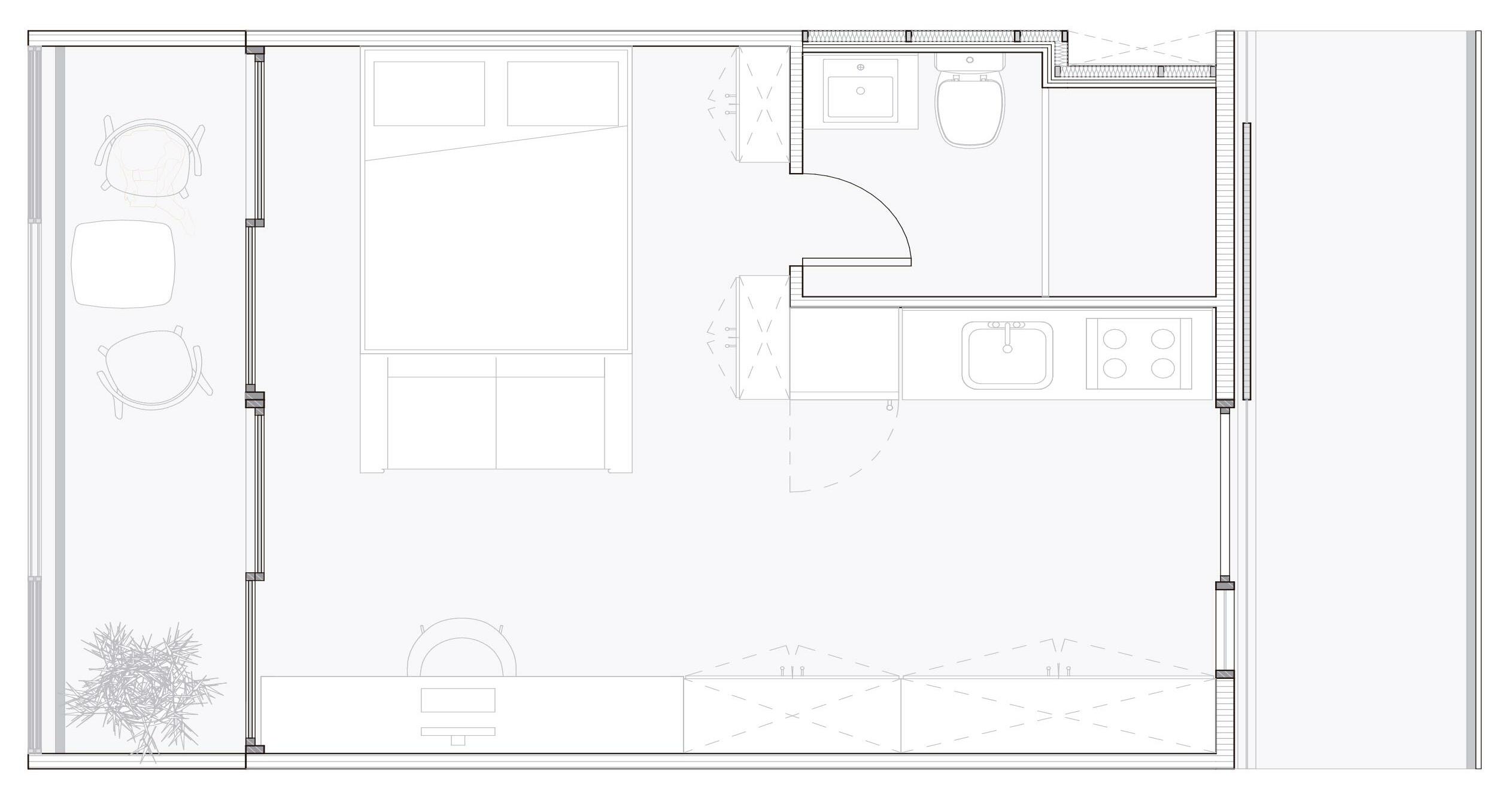
informações

ano: 2022 autor: Felipe Nunes softwares utilizados: Revit, Sketchup, Adobe Photoshop, Adobe Indesign e Adobe Ilustrator

sobre o projeto

Projeto de reforma de interiores realizado para casal de jovens que buscavam um projeto que entendesse as características de cada um e as necessidades de moradia e trabalho. Ambos com empregos em formato de trabalho home office, o apartamernto precisava fornecer um aplo espaço de trabalho e um bom isolamento em relação à área social. Como uma das pessoas do casal é artista gráfica, foram utilizadas estratégias de projeto que trouxessem elementos de arte urbana e contemporânea para o espaço.

5
APARTAMENTO MS
SALA DE ESTAR CIRCULAÇÃO COZINHA DORMITÓRIO ESCRITÓRIO BANHO PLANTA BAIXA PERSPECTIVADA A A B B F F C D F C D F BONECO CORTES
CORTE AA CORTE BB CORTE CC CORTE DD CORTE EE CORTE FF
Revestimento cimentício Chapa MDF madeiratextura Chapa MDF cor grafite Chapa MDF cor branca AMBIENTE 01
SALA DE ESTAR
01
02
PERSPECTIVA
PERSPECTIVA
AMBIENTE 02
Azulejos traço azul real Chapa MDF madeiratextura Granito São Gabriel preto escovado
COZINHA PERSPECTIVA 01 PERSPECTIVA 02
AMBIENTE 03
Chapa MDF madeiratextura Chapa MDF cor grafite
ÁREA DE SERVIÇOS
PERSPECTIVA 01
AMBIENTE 04
Revestimento cimentício Chapa MDF madeiratextura Chapa MDF cor telha Pintura PVC cor telha
DORMITÓRIO
01
02
PERSPECTIVA
PERSPECTIVA

Tinta louça preto fosco lavável Chapa MDF textura madeira Chapa MDF cor verde real Chapa MDF cor verde real

AMBIENTE 05
ESCRITÓRIO
01
02
PERSPECTIVA
PERSPECTIVA
Azulejobrancometrô Revestimento porcelanato Chapa MDF textura madeira
MDF cor branca Bancada em pedra de mármore branca AMBIENTE 06
Chapa
BANHO PERSPECTIVA 01 PERSPECTIVA 02

PROJETOS PROFISSIONAIS

CONJUNTO HABITACIONAL ÓROS OCTO COLETIVO

informações

ano: 2019 escritório proprietário do projeto: OCTO Coletivo equipe: Marcus Weber, Michele Librelotto e Felipe Nunes softwares utilizados: Revit, Sketchup, Vray e Lumion

sobre o projeto

Localizado na cidade de Canela - Rio Grande do Sul, o conjunto habitacional foi projetado inspirado na arquitetura local, onde existe muito fortemente a utilização de materiais locais (pedra e madeira) e uma linguagem prórpia (telhado duas águas com telha cerâmica, grandes panos envidraçados).

6 .1
ÓROS

LEGENDA -PONTOS ELÉTRICO

DPAVIMENTO TÉRREO52.21 m²0.00 m²9.56 m²0.00 m² 0.00 m²0.00 m²61.77 m²

TÉRREO0.00 m²37.38 m²0.00 m²0.00 m²350.58 m²0.00 m²387.96 m² 218.69 m²37.38 m²34.91 m²0.00 m²350.58 m²0.00 m²641.56 m²

ASEGUNDO PAVIMENTO37.77 m²0.00 m²15.75 m²0.00 m²0.00 m²0.00 m²53.52 m² Casa BSEGUNDO PAVIMENTO39.02 m²0.00 m²0.00 m²0.00 m²0.00 m²0.00 m²39.02 m² Casa CSEGUNDO PAVIMENTO39.02 m²0.00 m²0.00 m²0.00 m²0.00 m²0.00 m²39.02 m² Casa DSEGUNDO PAVIMENTO40.46 m²0.00 m²0.00 m²0.00 m²0.00 m²0.00 m²40.46 m² 156.26 m²0.00 m²15.75 m²0.00 m²0.00 m²0.00 m²172.01 m²

Casa A PAVIMENTO SUBTELHADO 42.20 m²0.00 m²14.93 m²0.00 m²0.00 m²0.00 m²57.14 m

Casa B PAVIMENTO SUBTELHADO 44.62 m²0.00 m²14.79 m²0.00 m²0.00 m²0.00 m²59.41 m

Casa C PAVIMENTO SUBTELHADO 44.62 m²0.00 m²14.79 m²0.00 m²0.00 m²0.00 m²59.41 m

Casa D PAVIMENTO SUBTELHADO 45.62 m²0.00 m²16.12 m²0.00 m²0.00 m²0.00 m²61.74 m 177.06 m²0.00 m²60.64 m²0.00 m²0.00 m²0.00 m²237.70 m²

Casa ARESERVATÓRIOS13.05 m²0.00 m²0.00 m²0.00 m²0.00 m²0.00 m²13.05 m²

Casa BRESERVATÓRIOS13.84 m²0.00 m²0.00 m²0.00 m²0.00 m²0.00 m²13.84 m²

Casa CRESERVATÓRIOS13.84 m²0.00 m²0.00 m²0.00 m²0.00 m²0.00 m²13.84 m²

Casa DRESERVATÓRIOS14.16 m²0.00 m²0.00 m²0.00 m²0.00 m²0.00 m²14.16 m² 54.90 m²0.00 m²0.00 m²0.00 m²0.00 m²0.00 m²54.90 m² Totais 606.91 m²195.10 m²111.30 m²178.32 m²353.62 m² 14.82 m²1460.07 m²

Quantitativo

de correr com tela JA05Janela tipo maxim-ar em (vidro laminado 6mm) com tela mosquiteiro PAVIMENTO TÉRREO 1.000.501.201 TÉRREO JA07Janela de correr duas folhas de vidro (vidro la - 6mm) e uma folha externa de correr com tela JA08Janela fixa (vidro laminado 8mm) PAVIMENTO TÉRREO 0.561.150.541 TÉRREO JA08Janela fixa (vidro laminado 8mm) JA09Janela de correr duas folhas de vidro (vidro laminado - 6mm) e uma folha externa de correr com tela mosquiteiro

PAVIMENTO TÉRREO 1.821.150.601 - e TÉRREO JA09Janela de correr duas folhas de vidro (vidro la - 6mm) e uma folha externa de correr com tela

-2.05 0.75 6.32 6.32 6.32 6.32 -0.15 -0.31 0.08 -0.15 -0.30 -0.30 0.02 ENTRADA DE ENERGIA ELÉTRICA HIDRÔMETROS ENTRADA REDE ABASTECIMENTO HIDRÁULICO DEPÓSITO DE LIXO CASA DCASA C CASA BCASA A -2.05 3.36 CALÇAMENTO PÚBL CO 0.75 e a uo d a d a nham o me o nh n eo recuo lateral 816 RUA DONA LU ZA COR EA RUA OÃO WEND R P B S vad e C e P o B S avad o deConc o Alinhamento Área de avanço da rua sobre lote Curva de nível principal Curva de nível secundária 2356 35,79 2.19 recuo d m 900 6 00 3 0 3 0 3 0 8 2 6 4 32 16 3 72 28 44 0 90 1 2 Á a Pe meá - G ama A 7 35m Á a P meá el - G am A 5 92m Á a P meá e - G am A 1 27m Ár Pe meá - G ama A 4 75m Á ea Pe m áve - Gra a A 5 92m Á ea Pe m áve - Gra a A 7 95m ÁeaPemeáve -Gama A 621m Área P e m ávelG ama A = 12 61m A 44,55m² Área Permeável A = 47,14 m² Área Permeável A = 114,39m² Área de Preservação Ambiental A = 189,20 m² Piso Intertravado A = 16,81m² Piso Intertravado A = 13,95m² Rampa de Acesso de Veículos Piso Basalto A = 43,33m² C çam o púb P Basa o | A 87 92m 37 8 110 090 22 54 2.36 17.64 3.06 14.28 2.47 4.30 5.87 1.61 2.50 1.58 14.42 1.64 2.93 3.05 4.45 3.87 1.80 5.84 2.64 5.84 1.52 2 0 0 90 -0.19 0.20 0.60 Área Permeável A 2,90 m² CENTRAL DE GÁS esc. 1 100 IMPLANTAÇÃO revisão: DADOS AUTORIAIS RESERADOS ARQ. MARCUS EDUARDO DE ANDRADE WEBER CAU RS: A47157-7 marcus@octocoletivo.com.br ARQ. FELIPE NUNES DA SILVA CAU RS: A267118-2 felipe@octocoletivo.com.br arquivo: RUA GENERAL LIMA E SILVA, 578, SALA 306 CENTRO HISTÓRICO PORTO ALEGRE RS CEP: 90050-100 (51) 99987.7678 contato@octocoletivo.com.br data criação: fase: escala: desenho: rrt principal: área projeto: data modificação: assunto: responsável técnico pelo projeto equipe técnica de projeto ARQ. MICHELE PIGATTO LIBRELOTTO CAU RS: A48675-2 michele@octocoletivo.com.br proprietário endereço projeto 29/07/2022 1 1 100 04/09/2019 Felipe OCTO-SGV-Canela-PE-R01.rvt 2019/4546 8144093 PE 896.53m² R. JOÃO WENDER ESQ. R. Dª LUIZA CORREA -VILA SUZANA -CANELA RS SGV -INCORPORAÇÃO E INVESTIMENTOS IMOBILIÁRIOS LTDA IMPLANTAÇÃO E PLANILHA DE ÁREAS 02 | 33 CONDOMÍNIO RESIDENCIAL ÓROS N Área Construída - Condominial CASA NÍVEL ÁREA INTERNA ÁREA ABERTA ÁREA SACADA ÁREA GARAGEM ÁREA PERMEÁVEL ÁREA CONDOMINIAL ÁREA TOTAL Casa APAVIMENTO SUBSOLO0.00 m²0.00 m²0.00 m²42.40 m²0.00 m²0.00 m²42.40 m² Casa BPAVIMENTO SUBSOLO0.00 m²0.00 m²0.00 m²44.95 m²0.00 m²0.00 m²44.95 m² Casa CPAVIMENTO SUBSOLO0.00 m²0.00 m²0.00 m²44.96 m²0.00 m²0.00 m²44.96 m² Uso ComumPAVIMENTO SUBSOLO0.00 m²157.72 m²0.00 m²0.00 m²3.04 m²14.82 m²175.58 m² 0.00 m²157.72 m²0.00 m²178.32 m²3.04 m²14.82 m²353.90 m² Casa APAVIMENTO TÉRREO63.98 m²0.00 m²8.93 m²0.00 m² 0.00
Casa
Casa
Casa
Uso
m²0.00 m²72.92 m²
BPAVIMENTO TÉRREO51.27 m²0.00 m²8.19 m²0.00 m² 0.00 m²0.00 m²59.46 m²
CPAVIMENTO TÉRREO51.23 m²0.00 m²8.23 m²0.00 m² 0.00 m²0.00 m²59.46 m²
ComumPAVIMENTO
Casa
Área Construída - Casas CASA TOTAL ÁREA INTERNA TOTAL ÁREA SACADA TOTAL ÁREA GARAGEM ÁREA TOTAL PAVIMENTO Casa A157.01 m² 39.61 m² 42.40 m² 239.02 m² Casa B148.75 m² 22.99 m² 44.95 m² 216.68 m² Casa C148.71 m² 23.02 m² 44.96 m² 216.68 m² 606.91 m² 111.30 m² 178.32 m² 896.53 m² REVISÃO DESCRIÇÃO 1 29/07/2022 EMISSÃO INICIAL FELIPE NUNES MICHELE H 0 19 20 16 12 13 2º Pav. 11 14 10 17 2º Pav. 12 13 16 2º Pav. 16 12 13 11 14 10 17 2º Pav. 16 13 AQ 60.0 cm Esgoto 50.0 cm AF 60.0 cm AQ 60.0 cm Esgoto 50.0 cm AF 60.0 cm 10 10 13 10 13 10 4 A 1 0 AQ 0 g o m A 600 AF 15.0 cm AF 15.0 cm AF 15.0 cm 6 2º Pav 2º Pav Esgoto 70.0 cm 6 2º Pav AQ 60.0 cm Esgoto 50.0 cm AF 60.0 cm AQ 60.0 cm Esgoto 50.0 cm AF 60.0 cm Esgoto = 50.0 cm Esgoto 50.0 cm 2º Pav Esgoto 70.0 cm Q 10 c A 11 0 m F 2 0 m A 1 0 A F F 1.90 0.150.250.050.400.05 4.50 0.050.710.05 1.79 0.140.4 80.140.25 2.20 0.05 0.40 2.50 0.75 1.79 6.21 1.90 0.70 4 2 2 1 0 Cozinha 01 02 Lavabo 01 Sala de Estar e Jantar Cozinha 01 Sala de Estar e Jantar 01 02 Lavabo Cozinha 1.40 m² 01 02 Lavabo 01 Sala de Estar e Jantar Cozinha 1.40 m² 01 02 Lavabo 28.66 m² Sala de Estar Jantar 01 Suíte Térreo Banho Suíte Térreo 01 01 Varanda 01 01 Varanda 01 01 Varanda 01 01 Varanda 13.55 0.10 0.80 0.100.300.10 0.300.10 0.250.10 0.10 0.30 0.10 0.30 1.75 0.10 7.60 R 18 0 G 0 m AC h=2,1m h=1,3m h=2,2m h=1,3m 11 Adega 5 2º Pav. h=2,1m Sensor de Presença h=2,2m Campainha h=1,5m Lava-Louças fotovoltaica/eólica sobe cobertura 11 12 10 1,6m 0.15 1.60 0.300.30 1.00 0.05 1.70 2.25 5.25 1.00 1.35 0.14 0.14 0.05 1.14 0.57 0.57 3.20 0.05 0.070.250.250.250.250.250.250.250.250.53 0.59 1.40 0.05 0.20 0.30 1.39 2.22 0.89 0.57 0.57 1.000.050.09 0.57 0.57 0.58 0.54 0.25 0.25 0.25 0.25 0.25 0.25 0.25 0.58 0.54 0.25 0.25 0.25 0.25 0.25 0.25 0.25 0.05 1.00 0.30 0.30 1.60 0.15 1.40 0.100.25 7.60 0.10 1.75 1.35 1.00 5.25 1.70 2.25 1,8m JA05 Ponto CFTV 5 2º Pav. Sensor Presença JA07 h=2,1m Campainha teclado alarme JA07 11 11 AC h=2,1m espera para energia fotovoltaica/eólica h=1,5m h=0,7m h=0,7m Coifa h=2,2m h=0,7m Coifa h=2,2m exaustão h=1,3m h=1,5m h=0,7m h=0,7m h=2,2m ventilação sobe pelo 5 2º Pav. 11 11 AC h=2,1m h=2,1m ventilação mecânica sobe pelo shaft 13 ventilação mecânica sobe pelo shaft 13 ventilação mecânica sobe pelo shaft 13 13 h=1,5m h=0,7m Forno Cooktop Coifa h=2,2m h=1,3m 2º Pav. 11 8 11 1,8m Adega AC h=2,1m teclado alarme h=2,1m saída exaustão ventilação mecânica CD CD Adega 10 1,6m Adega espera para energia sobe cobertura 1,6m espera para energia fotovoltaica/eólica 1,6m saída coifa exaustão ventilação saída exaustão exaustão ventilação mecânica exaustão saída ventilação mecânica Guarda corpo em vidro 1,20m Guarda corpo em vidro 1,20m Guarda corpo em vidro 1,20m Guarda corpo em vidro 1,20m h=2,2m Sensor de Presença h=2,2m Ponto CFTV Sensor Presença 0.120.100.67 0.70 0.12 0.120.100.67 0.70 0.12 0.100.60 0.100.60 0.40 1.25 1.40 5.85 0.70 0.10 0.80 0.100.300.10 0.05 1.00 0.30 0.30 1.60 0.15 1.75 0.10 7.60 0.100.25 0.100.60 0.40 1.25 1.40 5.85 0.70 2.25 1.70 1.41 0.090.25 7.60 0.10 1.75 5.25 1.00 1.35 2.25 0.120.100.67 0.70 0.12 1.70 0.10 0.80 0.100.300.10 1.77 1 3 5 1 5 1 06 0 2 0.650.140.48 2.25 0.40 0.370.14 3.20 3.20 0.57 0.570.05 0.59 0.53 0.25 0.25 0.25 0.25 0.25 0.25 0.25 0.25 0.05 0.05 3.18 5.85 0.450.10 3.84 0.300.12 2.25 0 0.25 Shaft 145x17 30x20 30x20 30x20 30x20 Fechamento fachada em painéis madeira 5,00cm Ver desenho das fachadas 0.45 0.100.250.10 0.45 G G B 5,00cm Ver desenho das fachadas Fechamento da fachada em painéis de madeira 5,00cm Ver desenho das fachadas Ø 5,00cm Ver desenho das fachadas Fechamento da fachada em barras metálicas Ø 5,00cm Ver desenho das fachadas Fechamento da fachada em barras metálicas 5,00cm Ver desenho das fachadas Fechamento da fachada em barras metálicas Ø 5,00cm Ver desenho das fachadas Campainha Campainha 181x154x60 181x154x60 07 07 07 07 04 07 01 01 01 04 02 04 04 06 06 06 05 03 01 01 05 05 01 01 01 01 01 01 01 01 04 04 01 05 01 01 05 01 01 01 01 05 01 01 01 05 01 01 01 04 05 01 01 05 02 4 4 04 07 04 02 04 07 07 07 07 07 07 07 07 07 07 07 07 8 1 Interruptor teclas. 1,10m
Tomada
conforme indicado
conforme
Tomada simples. 0,30m
simples.
Ponto lógica (telefone internet).
Ponto interfone. 1,10m
conforme indicado Ponto gás. conforme indicado Caixa sifonada com tampa com fecho 15x15. LEGENDA -PONTOS HIDROSSANITÁRIOS LEGENDA -PAREDES Parede em concreto armado (estrutural) LEGENDA -DESENHOS DE PISOS Piso com pedras em basalto Área com grama 02 04 05 06 08 PLANTA BAIXA -PAVIMENTO TÉRREO ARQ. MARCUS EDUARDO DE ANDRADE WEBER CAU RS: A47157-7 marcus@octocoletivo.com.br ARQ. FELIPE NUNES DA SILVA CAU RS: A267118-2 felipe@octocoletivo.com.br CENTRO HISTÓRICO PORTO ALEGRE RS CEP: 90050-1 (51) 99987.7678 contato@octocoletivo.com.br data criação: desenho: rrt principal: área projeto: data modificação: responsável técnico pelo projeto equipe técnica de projeto ARQ. MICHELE PIGATTO LIBRELOTTO CAU RS: A48675michele@octocoletivo.com.br proprietário projeto 29/07/2022 Como indicado 04/09/2019 Autor OCTO-SGV-Canela-PE-R01.rvt 2019/4546 8144093 PE 896.53m² R. JOÃO WENDER ESQ. R. Dª LUIZA CORREA -VILA SUZANA SGV -INCORPORAÇÃO E INVESTIMENTOS IMOBILIÁRIOS LTDA PLANTA BAIXA -PAVIMENTO TÉRREO 10 | 33 CONDOMÍNIO RESIDENCIAL ÓROS Quantitativo - Acabamento de parede - Pav. Térreo DESCRIÇÃO PAVIMENTO TÉRREO01 PAVIMENTO TÉRREO03 Pintura externa na cor cinza graf 5.83 m² PAVIMENTO TÉRREO04 Revestimento porcelanato de pared PAVIMENTO TÉRREO06 Painel em madeira 106.42 m² PAVIMENTO TÉRREO07 Quantitativo - Forro - Pav. Térreo PAVIMENTOCÓD. DESCRIÇÃO ALTURAÁREA PAVIMENTO TÉRREO01 Forro de gesso acartonado com acabamento em pintura branca Quantitativo Janelas - Pav. Térreo DESCRIÇÃO JA02Janela de correr duas folhas de vidro (vidro laminado - 6mm) e uma folha externa de correr com tela mosquiteiro PAVIMENTO TÉRREO 0.701.711.254 1111 TÉRREO JA04Janela de correr duas folhas de vidro (vidro la - 6mm) e uma folha externa
Ponto termostato para controle de piso aquecido. Ponto iluminação no piso. Eixo esgoto. conforme indicado Ponto esgoto piso. Ponto água fria.
Material de parede Pav. Térreo DESCRIÇÃO PAVIMENTO TÉRREOA Concreto armado moldado no local 106.52 m² PAVIMENTO TÉRREOB Estrutura metálica de parede dry-w PAVIMENTO TÉRREOD Fechamento em gesso para paredes ry-wall PAVIMENTO TÉRREOF Placa cimentícia 60.82 m² Quantitativo - Piso - Pav. Térreo PAVIMENTOCÓD. DESCRIÇÃO ÁREA PAVIMENTO TÉRREO02 Revestimento porcelanato de piso 60x60 8.56 m² PAVIMENTO TÉRREO04 PAVIMENTO TÉRREO08 Piso intertravado de bloco de concreto 31.38 m² Quantitativo - Portas - Pav. Térreo DESCRIÇÃO PM60Porta pivotante em madeira (acabamento em laca acetinada) com batente e marco 0.602.100.005 PMR80Porta pivotante em painel ripado de madeira com puxador linear N
RESIDÊNCIAS 6
.2

RESIDÊNCIAS ALBANO E NELSON OCTO COLETIVO

informações sobre o projeto

ano: 2020 escritório proprietário do projeto: OCTO Coletivo equipe: Marcus Weber, Michele Librelotto e Felipe Nunes softwares utilizados: Revit, Sketchup, Vray e Lumion

Projetado para clientes que residem em Garopaba, Santa Catarina, o projeto contempla um conjunto habitacional com três casas, sendo duas delas exatamente iguais, rebatidas por um eixo em forma de leque desenhado no terreno e, a terceira, uma casa menor projetada com o intuito de ser vendida para uma terceira pessoa. Foram utiliados elementos arquitetônicos semelhantes em todas as edificações, como os grandes panos de vidro, os elementos de revestimento, a cobertura com área social e pergolado, as persianas veneziandas no segundo pavimento revestindo as esquadrias privativas, etc.

PROJETOS PROFISSIONAIS
15 11 10 9 7 5 3 16 15 13 11 10 8 7 6 5 Projeção Pavimento Superior 0.8 m RUA DOS IPÊS Central de Gás 0.8 m 0.8 m 0.8 m Previsão Cisterna Previsão Cisterna Área Permeável -Grama Área Permeável -Grama Área Permeável -Grama Projeção pergolado Área Permeável -Grama Área Permeável -Grama Linha de divisa dos terrenos Muro h 240m Muro h: 2,40m Lnha de divsa dos terrenos Chuveiro Externo 16.27 m² Suíte Térreo 7.76 m² Hall Cozinha Sala de Estar 29.76 m² Garagem 5.78 m² Área de Serviço 12.78 m² Churrasqueira 12.78m Churrasqueia 20.28m Cozinha 25.02m SaladeEstar 842 m² Hall 1956m SuíteTérreo 351m² BanhoSuíte Área de Serviço Rampa de acesso de veículos = 12.3% Á ea Permeáve - G Espera Elevador Projeção Forro Projeção Mezanino Lavabo 3.78
E p Elevado CASA
Área
Área
M
F h t
M o h 1 40m F h o em v d o h: 1 00 Mur
Acesso de pedestres Muro h1
1,40m Muro h: 1,40m Muro h: 1,40m Muro h: 1,40m Fechamento em vidro h: 1,00m Por ão de co er h 4 Central de Gás C ntra deGás Det. 01 Det. 02 Recuo de Jardim Alinhamento Muro h: 2,40m m 5.29 m² Depósito 3.87 m² Depósito 2 4 6 4 5 7 16,51 0 15 6 21 2 03 7 22 2 83 0 15 6 10 2 41 1 40 12.45 4.00 1 1 0 0 6 870 344 164 1375 1.00 20 67 0.15 2.70 0.151.600.151.200.15 6.20 0.15 0.15 5.05 0.15 5.50 0.15 1.85 3.20 1.05 0.15 3.70 0.15 2.00 1.05 0.15 4.65 0.151.400.15 3.10 0.150.850.50 11.05 4.45 0.15 2.45 14.60 3.40 0.38 4.38 0.151.10 1.80 1.500.150.551.20 5.60 5.40 1.20 12.20 015 350 015 105 465 015 105 050 085 015 320 015 130 015 100 285 090 630 1105 455 015 235 1460 150 180 110 015 438 038 340 Meio-Fio 0.00 Muro h:1,40m Fechamento em vidro h:1,00m Nicho para hidrômetros individuais Pórtico Nicho para medidores individuais Muro h:1,40m Fechamento em vidro h:1,00m Muro h:1,40m Fechamento em vidro h:1,00m Nicho para hidrômetros individuais Nicho para medidores individuais Caixa de correspondências Identificação da casa no conjunto Portão de acesso Pótico revestido com madeira Interfone Chuveiros Externos Depósito Central de Gás Depósito de Gás 100 120 157 197 055 0.76 1.31 0.55 1.25 0.15 1.86 0.151.00 Depósito Central de Gás Depósito Central de Gás esc. 1 100 Planta Baixa -Pavimento Térreo N esc. 1 50 Det. 01 -Muros e Pórticos de Entrada Det. 01 -Isométrica Muros e Pórticos de Entrada esc. 1 50 Det. 02 -Depósito e Central de Gás Det. 02 -Isométrica Depósito e Central de Gás
esc. 1 : 100 Empreendimento -Rua das Amendoeiras esc. 1 : 100 Empreendimento -Rua dos Ipês esc. Empreendimento -Perspectiva Fachada
m² Banho Suíte
A CASAB
pav. térreo = 136.06 m²
gás e depósito = 7.61 m² Áreapav térreo =13606m² Áreagásedepósito =600m²
h 1 40m
m dro h 1 00m
Fechamentoem
Muro h:
Pav. Térreo 1.00 Segundo Pav. 3.80 Meio-Fio 0.00 Pav. Terraço 6.60 Cobertura Reserv. 9.50 Platibanda 10.00 Pav. Térreo 1.00 Segundo Pav. 3.80 Meio-Fio 0.00 Pav. Terraço 6.60 Cobertura Reserv. 9.50 Platibanda 10.00
16 15 98 76 ProjeçãoP imentoS peror Projeção Pavimento Superior 1 m 0.8 m 0.85 m RUADASAMENDOEIRAS Previsão Cisterna Área Permeável -Grama ÁreaPermeável -G ama Á eaPemeável -Grama Projeçãopergolado 2576m Garagem 244 m² Lavabo 15.84 m² Cozinha / Sala de Jantar Sala de Estar Churrasqueira Serviço Circulação Lavabo Rampadevacessode eículos=125% Rampadevacessode eículos=1125% Á eaPemeável -Grama CASA C Área pav. térreo = 57.53 m² Área gás e depósito = 1.51 m² Pojeçã For o o h:140mvido h 100m Mu o h 140m Fechamenoemvidro h:100m Muro h 140m Fechamentoemvdro h 100m Muo h 140m Fechamentoemvidro h:100m pAcessode edest es pAcessode edesres Muo h140m Muo h:140m Muro h140m Muo h:140m Muro h140m Muo h:140m 40m Potãode orer h:24m Porãodecorrer h 24m 080m Á eaPe meá el -G ama 080m Det 01 De 01 RecuodeJadim Alinhamento Muro h: 1,40m Fechamento em vidro h: 1,00m 1 2 3 1 2 3 4 5 6 7 2128 259 121 270 015 504 621 205 392 4 22 3 71 13 00 1 70 8 05 1 00 1 2 4 7 2 2 0 7 0 6 0 100 100 0 56 0 44 11 30 0 50 1381 081 835 205 33 83 1220 560 540 120 550 015 505 015 220 015 120 055 015 Caixa de correspondências Identificação da casa no conjunto Portão de acesso Pótico revestido com madeira Pórtico de acesso Interfone ENDEREÇO: PROPRIETÁRIO: CONSTRUÇÃO: AUTORIA: COAUTORIA: TIPO DE CONSTRUÇÃO E ESTRUTURA: EXPEDIENTE ÚNICO: RRT PRINCIPAL: Nº PAVIMENTOS: ALTURA MÁXIMA: TIPO DE PROJETO: FASE: CATEGORIA: ÁREA DO TERRENO: ÁREA TOTAL CONSTRUÍDA: ÁREA AMPLIADA: REVISÃO Nº: PRANCHA DISCRIMINAÇÃO: CLASSIFICAÇÃO ATIVIDADE: DADOS AUTORIAIS RESERADOS "DECLARO QUE O PROJETO ATENDE À LEGISLAÇÃO VIGENTE, EM ESPECIAL A LC 284/90". ESCALA: OCTO COLETIVO ARQUITETURA LTDA, ME CAU RS: 20.010-7 CNPJ: 13.079.364/0001-50 INSC MUN.: 537049-2-4 RUA JOAQUIM NABUCO 46/103 CIDADE BAIXA PORTO ALEGRE RS CEP: 90050-340 FONE: (51) 32863978 contato@octocoletivo.com.br ARQ. MARCUS EDUARDO DE ANDRADE WEBER CAU RS: A47157-7 marcus@octocoletivo.com.br ARQ. MICHELE PIGATTO LIBRELOTTO CAU RS: A48675-2 michele@octocoletivo.com.br VERSÃO DATA:
Como indicado
02 01 OCTO-AN-Cond. Hori. IA PROJ-ARQ-PE-BIM-R00 SI10822926I00 Condomínio Residencial -Casas Unifamiliares Habitações Unifamiliares em Série 3 Pavimentos 8.5 m Arquitetura Executivo 824.78 m² 722.48 m² Rua dos Ipês, esquina Rua das Amendoeiras –Garopaba -SC Albano Marcos de Andrade -CPF: 290.190.520-04 Nelson Roberto Lopes da Silva -CPF: 164.807.590-87 Construtora EIFFEL Construções LTDA. -CNPJ 04.768.036/0001-70 Custodio Jose de Sa Junior -CREA: 054201-0-SC ARQ. Michele Pigatto Librelotto -CAU/RS: A 48675-2 ARQ. Marcus Eduardo de Andrade Weber -CAU/RS: A 47157-7 PLANTA BAIXA -PAVIMENTO TÉRREO COND. RES. IPÊS E AMENDOEIRAS /25 REVISÃO DATA DESCRIÇÃO DESENHO REVISOR R012 02/09/2021 Emissão projeto executivo Felipe Michele R010 28/07/2021 Emissão final pontos para projetos complementares Felipe Michele R07 25/06/2021 Alteração dos Níveis do Projeto Felipe Michele R04 19/04/2021 Detalhe ampliado 01 e 02 para orçamentação da obra Felipe Marcus R03 14/04/2021 Retorno para proposta anterior de projeto e alterações pavimento térreo Felipe Marcus R02 02/12/2020 Estudo criação de terraço e alteração segundo pavimento Felipe Marcus R01 28/08/2020 Lançamento Inicial Felipe Marcus Residencial
DESENHO: MODIFICADO EM: ARQUIVO: 02/09/2021 R012
16/01/2020 Felipe
14 1312 13 1211 A A D D B B C C Suíte Térreo 7.76 m² Hall 5.78 m² Área de Serviço Cozinha 25.02 m² Sala de Estar 29.76 m² Garagem Churrasqueira Projeção Pavimento Superior m Lavabo Banho Suíte Projeção forro Projeção mezanino 15x38 cm 10 10 x 140 rev. pedra Soleira com piso 77 15 cm Soleira com piso 67 15 cm Soleira em pedra 67 15 cm 112 111 112 112 112 142 113 22 Projeção forro 2 5 7 7 7 2 Shaft Shaft Piso integrado entre os ambientes: -Sala de estar -Cozinha -Garagem -Suíte Térreo -Área de serviços 64 5 3 0.15 0.900.10 1.70 0.15 1.60 0.15 1.200.15 6.20 0.15 0.95 12.45 1.20 14.60 0.15 3.40 4.90 1.10 1.80 1.65 1.75 14.60 2.55 0.150.700.15 0.23 4.38 0.15 1.10 0.27 2.33 0.76 1.09 0.151.15 4.30 0.15 0.15 5.05 0.15 5.50 0.15 1.15 5.40 0.42 5.00 0.18 12.15 m Soleira em pedra 110 20 cm Soleira com piso Recorte no contrapiso para embutir o 1.13 1.44 Mureta ilha cozinha 0,87 0.10 1.60 0.41 0.23 0.15 0.15 2.29 Caimento Piso Caimento Piso Came o so C men Pso CimetoP o Cim oPso C me oPio PM70 JA05 PB60 60x230 PC270 270X245 PM80 PM80 PM80 80X210 PM60 PS01 500X240 JA02 125X240/00 JA01 525X240/00 JA02 125X240/00 PMV110 PMF01 180X240 Recorte no contrapiso para embutir o trilho das portas de correr Escada Nº Degraus: 16 Base: 28,0 cm Altura: 17,5 cm Entrepiso: 2,80 m 0.15 1.000.15 2.25 0.15 3.15 4.65 0.15 1.05 0.15 Espera Elevador 1.25 1.40 Projeção segundo pavimento PC210 Recorte no contrapiso para embutir o trilho das portas de correr JA03 255x40/110 2 2 JA04 160x40/200 1.500.15 0.25 0.25 2.45 0.15 1.60 3.35 E E Manter alinhamento entre pilar e shaft 2.24 A A D D B C 9.87 m² Dormitório 02 4.03 m² Varanda 10.51 m² Dormitório 01 Banho Circulação Banho Suíte 10.85 m² Suíte 7.12 m² Poço de Luz 21.30 m² Varanda Mureta em alvenaria 10x10x130 rev. pedra Soleira com piso 10x10x130 rev. pedra Soleira com piso 67 15 cm Soleira em pedra Soleira em pedra Shaft 28x58 cm Shaft 16x46 cm Shaft 111 111 7 7 2 2 0.141.160.15 3.60 0.15 0.88 0.65 0.70 0.65 0.88 0.15 3.20 0.1 0.95 5.20 3.75 3.50 1.20 14.60 11.05 3.07 0.15 1.050.15 2.50 0.15 2.50 0.15 2.50 0.15 1.050.15 0.500.60 2.45 0.15 2.87 1.73 4.40 0.15 1.90 0.150.25 1.05 0.15 3.40 0.150.23 4.38 0.15 14.60 3.75 m 3.8 m 1.01 1.43 0.10 0.10 1.41 0.18 0.20 C m oP Cime oP o Cam noPio CamenoP C n P o C m Pi o Ca m PC180 180X230 JA11 160X185/45 PM80 80X210 PM80 PM60 60X210 PM60 60X210 PM80 80X210 JA07 75X190/20 PMV90 90X245 PC210 210X210 Escada Nº Degraus: 16 Base: 28,0 cm Altura: 17,5 cm Entrepiso: 2,80 m Guarda Corpo em vidro 1,10m Guarda Corpo em vidro 1,10m Mureta em alvenaria h = 0,10m Guarda Corpo em vidro h 1,00m JA12 Recorte no contrapiso para embutir o trilho das portas de correr trilho das portas de correr 1.05 0.15 1.05 0.15 1.30 1.72 4.75 4.70 1.60 0.15 1.75 0.15 JA10 65X190/20 JA10 JA09 440X240 JA08 525X240 1.40 1.30 1.35 1.25 0.70 0.70 1 Moldura em alvenaria para instalação de peitoril na varanda P ch m ó M e n 60 0.71 0.25 0.28 0.28 Patamar alinhado pelo fim da estrutura de reforço do vão do elevador 0.15 0.070.900.08 E E 2.24 1.45 esc. 1 50 Planta Baixa -Pavimento Térreo esc. 1 50 Planta Baixa -Segundo Pavimento 2 1 4 2 PMV90 90X245 Pav. Térreo 1.00 Segundo Pav. 3.800.00 Pav. Terraço 6.60 Cobertura Reserv. 9.50 Platibanda 10.00 2.65 Pav. Térreo 1.00 Segundo Pav. 3.80 Meio-Fio 0.00 Pav. Terraço Cobertura Reserv. 62 JA10 JA10 2.40 3.20 0.400.65 2.40 0.25 3.55 0.65 2.65 6.00 3.00 Pav. Térreo 1.00 Segundo Pav. 3.80 Meio-Fio 0.00 Pav. Terraço Cobertura Reserv. Platibanda 10.00 2.35 0.65 3.55 2.45 0.20 0.90 1.30 0.55 0.80 0.15 2.10 0.20 PC180 JA11 160X185/45 JA05 PB60 PC270 1.10 0.40 1.35 1.03 0.42 2.40 0.70 0.60 2.80 0.15 2.45 JA12 6.70 6.00 9.00 PC210 JA14 231X100/110 JA13 esc. 1 50 Fachada Lateral Direita (Oeste) esc. 50 Fachada Posterior (Sul) REVISÃO DATA DESCRIÇÃO DESENHO REVISOR R012 02/09/2021 Emissão projeto executivo Felipe Michele R010 28/07/2021 Emissão final pontos para projetos complementares Felipe Michele R07 25/06/2021 Alteração dos Níveis do Projeto Felipe Michele R04 19/04/2021 Detalhe ampliado 01 e 02 para orçamentação da obra Felipe Marcus R03 14/04/2021 Retorno para proposta anterior de projeto e alterações pavimento térreo Felipe Marcus R02 02/12/2020 Estudo criação de terraço e alteração segundo pavimento Felipe Marcus R01 28/08/2020 Lançamento Inicial Felipe Marcus
14 13 1211 8 6 B C 6 so Mureta em alvenaria 0,10m Guarda Corpo em vidro 1,00m A A D D B B C C 17.64 m² Varanda Fundos 13.67 m² Circulação 7.74 m² Reservatórios 2.60 m² Lavabo 5.11 m² Depósito 43.67 m² Terraço Deck Piscina Banco 40cm Projeção Projeção Pergolado Soleira em pedra 92 x 15 cm Soleira com piso 67 15 cm Soleira com piso 67 15 cm Soleira em pedra Soleira em pedra 67 15 cm 111 6 22 0.15 2.42 0.15 3.75 0.15 3.20 0.15 2.48 2.72 3.75 3.50 1.20 2.00 0.150.27 1.33 2.85 0.75 0.50 2.90 0.20 3.20 0.15 3.10 3.20 0.15 3.40 4.75 0.37 4.88 1.20 14.60 0.080.67 1.90 0.67 1.230.15 1.60 0.15 5.45 0.15 0.57 0.60 C me oPs C ime oP C m to o C noPs CamenoPio m P 0.18 0.20 Cam oP C me Pso 2.65 0.40 2.00 0.40 1.15 0.40 0.230.250.25 1.50 0.40 0.30 2.40 0.30 0.80 0.40 1.80 JA13 PV98 98X210 JA14 PM60 60X210 PM60 60X210 PM60 60X210 PV92 JA17 PC90 90X210 JA15 228X210/00 Nº Degraus: 16 Base: 28,0 cm Entrepiso: 2,80 m Mureta em alvenaria 0,45m Guarda Corpo em vidro 0,65m Mureta em alvenaria h = 0,45m Guarda Corpo em vidro 0,65m Mureta em alvenaria 0,45m Guarda Corpo em vidro = 0,65m Mureta em alvenaria = 0,45m Guarda Corpo em vidro h = 0,65m Mureta em alvenaria h 1,15m Mureta em alvenaria = 1,15m Mureta em alvenaria 0,45m Guarda Corpo em vidro 0,65m M ri 5m Co h 65 Mureta em alvenaria = 0,45m Guarda Corpo em vidro 0,65m Guarda Corpo em vidro 1,10m Guarda Corpo em vidro h 1,10m 1.200.150.71 1.04 Espera Elevador 1.25 Saída chaminé churrasqueira Ø mínimo 25cm 0.86 0.74 0.27 0.27 Soleira em pedra 90 x 15 cm E E 1.29 1.63 0.90 0.15 2.42 0.15 3.75 0.15 2.72 3.90 6.62 1.90 5.45 7.35 0.15 0.15 3.16 3.16 0.15 0.15 C m nt P Platibanda em alvenaria = 0,50m Platibanda em alvenaria h = 0,50m = 0,50m Platibanda em alvenaria 0,50m Platibanda em alvenaria 0,50m Platibanda em alvenaria 0,50m ENDEREÇO: PROPRIETÁRIO: CONSTRUÇÃO: AUTORIA: COAUTORIA: TIPO DE CONSTRUÇÃO E ESTRUTURA: EXPEDIENTE ÚNICO: ALTURA MÁXIMA: CATEGORIA: ÁREA DO TERRENO: ÁREA TOTAL CONSTRUÍDA: ÁREA AMPLIADA: REVISÃO Nº: PRANCHA DISCRIMINAÇÃO: CLASSIFICAÇÃO ATIVIDADE: DADOS AUTORIAIS RESERADOS "DECLARO QUE O PROJETO ATENDE À LEGISLAÇÃO VIGENTE, EM ESPECIAL A LC 284/90". ESCALA: OCTO COLETIVO ARQUITETURA LTDA, ME CAU RS: 20.010-7 CNPJ: 13.079.364/0001-50 INSC MUN.: 537049-RUA JOAQUIM NABUCO 46/103 CIDADE BAIXA PORTO ALEGRE RS CEP: 90050-340 FONE: (51) 32863978 contato@octocoletivo.com.br ARQ. MARCUS EDUARDO DE ANDRADE WEBERmarcus@octocoletivo.com.br ARQ. MICHELE PIGATTO LIBRELOTTO CAU RS: A48675-2 michele@octocoletivo.com.br VERSÃO MODIFICADO EM: ARQUIVO: 30/11/2021 R013 1 : 50 16/01/2020 Felipe 09 01 OCTO-AN-Cond. Hori. IA SI10822926I00 Condomínio Residencial -Casas Unifamiliares Habitações Unifamiliares em Série 3 Pavimentos 8.5 m Arquitetura Executivo 824.78 m² 722.48 m² Rua dos Ipês, esquina Rua das Amendoeiras –Garopaba -SC Albano Marcos de Andrade -CPF: 290.190.520-04 Nelson Roberto Lopes da Silva -CPF: 164.807.590-87 Construtora EIFFEL Construções LTDA. -CNPJ 04.768.036/0001-70 Custodio Jose de Sa Junior -CREA: 054201-0-SC ARQ. Michele Pigatto Librelotto -CAU/RS: A 48675-2 ARQ. Marcus Eduardo de Andrade Weber -CAU/RS: A 47157-7 PROJETO EXECUTIVO -PLANTAS BAIXAS -CASA A COND. RES. IPÊS
/1 esc. 50 Planta Baixa -Pavimento Terraço esc. 1 50 Planta Baixa -Pavimento Cobertura Residencial 2 2 ACABAMENTOS PISO PAREDE FORRO 1 -Porcelanato retificado 90x90 interno 2 -Porcelanato retificado 90x90 externo 3 -Deck externo sem contrapiso 4 -Revestimento cimentício (pintura ou efeito concreto) 5 -Basalto regular grandes formatos 6 -Grama -Massa corrida e pintura na cor branca -Reboco e pintura externa na cor branca -Reboco e pintura externa na cor preta -Porcelanato retificado 30x60 cor branca -Painel ripado de madeira -Revestimento cimentício (pintura ou efeito concreto) -Revestimento de pedra Miracema amarela 1 -Laje rebocada e pintada na cor branca 2 -Forro de gesso pintado na cor branca 3 -Pergolado metálico pintado na cor preta 4 -Pergolado em madeira natural 5 -Revestimento cimentício (pintura ou efeito concreto) LEGENDA ACESSÓRIOS 1 Tampa com fecho para caixa sifonada 15x15 2 Tampa com fecho para ralo 10x10 3 Grelha Linear 4 Caixa de gordura Posição rodapé LEGENDA PISOS Casa A -Pav. Térreo -Porcelanato retificado 90x90 interno | A = 125,94 m² Casa A -Segundo Pav. -Porcelanato retificado 90x90 interno | A = 58,35 m² -Porcelanato retificado 90x90 externo | A = 24,17 m² Casa A -Pav. Terraço -Porcelanato retificado 90x90 interno | A = 26,42 m² -Porcelanato retificado 90x90 externo | A = 80,26 m² -Revestimento Cimentício | A = 18,31 m² -Pastilha revestimento piscina | A = 32,83 m² -Deck Externo | A = 11,30 m² Casa A -Pav. Cobertura -Porcelanato retificado 90x90 externo | A = 40,09 m² LEGENDA RODAPÉS -Rodapé Poliestireno 10x3 cm branco = 55,94 m Casa A -Segundo Pav. -Rodapé Poliestireno 10x3 cm branco = 44,02 m Casa A -Pav. Terraço -Rodapé Poliestireno 10x3 cm branco = 34,80 m REVISÃO DATA DESCRIÇÃO DESENHO REVISOR R013 30/11/2021 Alterações projeto conforme visita à obra Felipe Michele Pav. Térreo 1.00 Segundo Pav. 3.80 Meio-Fio 0.00 Pav. Terraço 6.60 9.50 B B C C 10.00 2.40 2.40 0.200.20 2.75 0.15 0.50 2.15 0.300.80 1.85 0.90 0.65 9.00 0.20 0.15 0.20 0.20 2.60 0.20 2.40 0.20 1.10 1.40 1.000.25 1.80 0.10 0.85 Mureta em alvenaria h = 0,10m Guarda Corpo em vidro = 1,00m PM80 80X210 JA02 PS01 PC210 PM60 PM60 PM60 60X210 PM60 60X210 PM80 80X210 Garagem Hall Suíte Térreo Dormitório 01 Varanda Banho Banho Suíte Suíte Varanda Depósito Lavabo Reservatórios Varanda Fundos 0.40 0.50 1.30 0.10 0.10 2.60 2.60 2.35 0.30 2.45 Fechamento em painel EPS Fechamento em painel EPS (fazer impermeabilização) Fechamento em painel EPS Pav. Térreo 1.00 Segundo Pav. 3.800.00 Pav. Terraço 6.60 Cobertura Reserv. 9.50 10.00 2.35 0.65 6.00 Mureta em alvenaria 0,45m Guarda Corpo em vidro h 0,65m 9.00 Pav. Térreo 1.00 Segundo Pav. 3.800.00 Pav. Terraço 6.60 9.50 A A D D 10.00 3.45 0.15 0.20 2.40 0.20 0.20 2.40 1.30 2.80 0.15 2.45 9.00 1.30 1.00 0.45 0.15 0.20 2.40 0.20 1.67 0.93 Banho Suíte Área de Serviço Churrasqueira Dormitório 02 Dormitório 01 Varanda Fundos PM80 PM70 70X210 PM80 80X210 PM80 80X210 PC270 270X245 PV98 JA13 JA14 231X100/110 JA12 270X280 Mureta em alvenaria 0,45m Guarda Corpo em vidro 0,65m Mureta em alvenaria = 0,10m Guarda Corpo em vidro = 1,00m 2.35 0.65 6.00 2.60 2.60 PROPRIETÁRIO: CONSTRUÇÃO: AUTORIA: TIPO EXPEDIENTE DISCRIMINAÇÃO: CLASSIFICAÇÃO Condomínio Habitações Rua Nelson COND. Corte DD Corte CC REVISÃO DATA DESCRIÇÃO DESENHO REVISOR R012 02/09/2021 Emissão projeto executivo Felipe Michele R010 28/07/2021 Emissão final pontos para projetos complementares Felipe Michele R07 25/06/2021 Alteração dos Níveis do Projeto Felipe Michele R04 19/04/2021 Detalhe ampliado 01 e 02 para orçamentação da obra Felipe Marcus R03 14/04/2021 Retorno para proposta anterior de projeto e alterações pavimento térreo Felipe Marcus R02 02/12/2020 Estudo criação de terraço e alteração segundo pavimento Felipe Marcus R01 28/08/2020 Lançamento Inicial Felipe Marcus
E AMENDOEIRAS
B 29
57 55 55 57 Guarda corpo em vidro temperado cm incolor
cm com acabamento superior
em perfil de alumínio 3 cm com pintura eletrostática na cor preta C C A A Base e espelho em madeira e
cm 16 15 14 13 12 11 10 30.00° 00 00 3 00 0.00° 30 00 D D 119 Corrimão metálico fixado na parede Perfil tubular Ø5,00 cm
= 110 cm Pav. Térreo 1.00 Segundo Pav. 3.80 Guarda corpo em vidro temperado cm incolor h=110,00 cm com em perfil de alumínio cm com pintura eletrostática na cor preta Base e espelho em madeira e 3,50 cm 17.5 205 Corrimão metálico fixado na parede Perfil tubular Ø5,00 cm =
cm Detalhe 03 3.514.0 15 14 13 Base espelho em
=
cm e
515
17.5 28.0 3.514.0 2
12
13 Base
= 15,00 cm 149 228 28.0 3.5 24.5 17.5 3.514.0 280 Corrimão metálico fixado na parede Perfil tubular Ø5,00 cm h 110 cm Parede estrutural revestida com pedra e = 15,00 cm Detalhe 04 Suporte de aço Ø1 cm com fixação na parede 29 62 2828 29 62 28282828 63 49 Guarda corpo em vidro temperado 1 cm incolor h=110 cm com acabamento superior (passa-mão) em perfil de alumínio 3 cm com pintura eletrostática na cor preta Base e espelho em madeira = 3,50 cm G G H H F F 16 15 14 E E 30 30.00° 00 3 00 30.00° 315 225 147 62 43 105 112 Segundo Pav. 3.80 Pav. Terraço 6.60 2 3 4 17.5 3.514.0 Base espelho em madeira e 3,50 cm (mín) = 15,00 cm Guarda corpo em vidro temperado 1 cm incolor h=110,00 cm com acabamento superior (passa-mão) em perfil de alumínio cm com pintura eletrostática na cor preta Perfil tubular Ø5,00 cm h 110 cm Base espelho em madeira e = 3,50 cm Estrutra em concreto armado (mín) = 15,00 cm 17.5 11 10 Guarda corpo em vidro temperado 1 cm incolor h=110,00 cm com acabamento superior (passa-mão) em perfil de alumínio cm com pintura eletrostática na cor preta Perfil tubular Ø5,00 cm h 110 cm 3.514.0 Base e espelho em madeira = 3,50 cm e (mín) = 15,00 cm 13 12 11 3 (em relação ao piso da escada) Arandela h = 200 cm (em relação ao piso da escada) Guarda corpo em vidro temperado 1 cm incolor h=110,00 cm com acabamento superior (passa-mão) em perfil de alumínio 3 cm com pintura eletrostática na cor preta Corrimão metálico fixado na parede Perfil tubular Ø5,00 cm h 110 cm 17.5 3.514.0 Planta Baixa -Pavimento Térreo Corte AA Corte CC esc. 1 25 Corte BB ESCADA CASA A -TÉRREO DIMENSÕES Nº de degraus: Base: Altura: Entrepiso: MATERIAIS Estrutura: Pisada: Espelho: Guarda Corpo: Corrimão: 16 28,0 cm 17,5 cm 2,80 m Concreto Armado Chapa de madeira Chapa de madeira Vidro Perfil de Alumínio Anodizado 3 cm ESCADA CASA A -SEGUNDO PAV. DIMENSÕES Nº de degraus: Base: Altura: Entrepiso: MATERIAIS Estrutura: Pisada: Espelho: Guarda Corpo: Corrimão: 16 28,0 cm 17,5 cm 2,80 m Concreto Armado Chapa de madeira Chapa de madeira Vidro Perfil de Alumínio Anodizado 3 cm esc. 1 25 Planta Baixa -Segundo Pav. esc. 1 25 Corte EE esc. 1 25 Corte FF esc. 1 25 Corte GG A A 13 AF h=0,2m Esgoto h=0,5m AQ h=0,6m Chuveiro h=2,1m Reg. Pressão h=1,1m Reg. Gaveta h=1,8m Reg. Pressão h=1,1m Reg. Gaveta h=1,8m 14 13 C C D D B B 0.40 0.50 0.60 1.30 0.30 0.30 0.45 0.60 0.95 1.40 0.65 0.75 0.90 0.10 1.70 2.70 Somente tubulação, sem fios 0.68 0.05 1.28 JA05 65X200/20 P.D. 2.40 Pav. Térreo 1.00 Segundo Pav. 3.80 1.10 PM70 70X210 1.60 P.D. 2.40 Pav. Térreo 1.00 Segundo Pav. 3.80 AF h=0,2m Esgoto h=0,5m AF h=0,6m AQ h=0,6m h=1,8m Chuveiro h=2,1m Reg. Pressão h=1,1m Reg. Gaveta h=1,8m Reg. Pressão h=1,1m Reg. Gaveta h=1,8m 1.10 1.80 1.10 0.50 Eixo Esgoto (furo piso) 1.80 0.45 Tubulação seca (sem fiação) 0.60 1.90 0.10 13 1.60 P.D. 2.40 0.10 1.90 1.60 0.20 0.70 1.30 A A C C D D B B PM70 1.40 0.65 0.75 0.90 0.10 1.70 2.70 A A C C D D B B 1.40 0.65 0.75 0.90 0.10 1.70 2.70 A A C C D D B B 13 0.45 0.90 2.70 Eixo água fria. conforme indicado Eixo esgoto. h = conforme indicado Ponto água fria. h = conforme indicado Ponto esgoto. = conforme indicado LEGENDA -PONTOS HIDROSSANITÁRIO Grelha linear. Interruptor tecla. 1,10m Interruptor teclas. 1,10m Tomada simples. h = 1,10m Tomada simples. h = 0,30m Tomada dupla. Tomada Tripla. Arandela parede. h = conforme indicado 1 Ponto iluminação no gesso. LEGENDA -PONTOS ELÉTRICO JA05 P.D. 2.40 1.33 0.68 0.20 1.00 Segundo Pav. 3.80 1.10 PM70 70X210 P.D. 2.40 1.00 Segundo Pav. 3.80 1.80 P.D. 2.40 0.30 0.95 ENDEREÇO: PROPRIETÁRIO: CONSTRUÇÃO: TIPO DE CONSTRUÇÃO E ESTRUTURA: DISCRIMINAÇÃO: CLASSIFICAÇÃO ATIVIDADE: "DECLARO QUE O PROJETO ATENDE À LEGISLAÇÃO VIGENTE, OCTO COLETIVO ARQUITETURA LTDA, ME- -RUA JOAQUIM NABUCO 46/103 CIDADE BAIXA PORTO ALEGRE RS CEP: 90050-340 FONE: (51) 32863978 contato@octocoletivo.com.brARQ. MICHELE PIGATTO LIBRELOTTO CAU RS: A48675-2 michele@octocoletivo.com.br DESENHO: 10/09/2021 R14 16/01/2020 Felipe 19 01 SI10822926I00 Condomínio Residencial -Casas Unifamiliares Habitações Unifamiliares em Série 3 Pavimentos 8.5 m Arquitetura Detalhamento 824.78 m² 722.48 m² Rua dos Ipês, esquina Rua das Amendoeiras –Garopaba -SC Nelson Roberto Lopes da Silva -CPF: 164.807.590-87 Construtora EIFFEL Construções LTDA. -CNPJ 04.768.036/0001-70 Custodio Jose de Sa Junior -CREA: 054201-0-SC ARQ. Michele Pigatto Librelotto -CAU/RS: A 48675-2 ARQ. Marcus Eduardo de Andrade Weber -CAU/RS: A 471 DETALHAMENTO ÁREAS MOLHADAS -CASA A -BANHO SUÍTE COND. RES. IPÊS E AMENDOEIRAS /49 Planta Obra Corte BB Corte DD esc. 25 Corte AA Corte CC Planta Acessórios Planta Piso LEGENDA ACESSÓRIOS Torneira de tampo com misturador Tampa com fecho para caixa sifonada 15x15 Chuveiro Planta Forro Acabamento em pintura branca Corte BB -Revestimentos Corte DD -Revestimentos esc. 1 25 Corte AA -Revestimentos esc. 25 Corte CC -Revestimentos REVISÃO DESCRIÇÃO R14 10/09/2021 Emissão detalhamentos áreas molhadas Felipe Michele Emissão final pontos para projetos complementares Felipe Residencial
Escada h = 17,5 cm B
62 28 29 62 2828282828282828 3.15
h=110
(passa-mão)
= 3,50
h
110
madeira
3,50
(mín) = 15,00 cm
260
3
14
e espelho em madeira = 3,50 cm e (mín)
Churrasqueira para sustentação do pergolado pintura preta A A B B C C Projeção da cobertura do pergolado 0.15 0.70 Local para engastamento A A B B C C Pergolado metálico perfis vigas 15 cm pintura preta 0.56 0.96 2.85 0.43 0.43 0.43 0.43 0.43 0.43 0.40 01 02 02 02 02 Projeção da cobertura do pergolado 2.90 Pav. Térreo Segundo Pav. 2015 245 260 Cobertura em vidro laminado perfil 350 150cm 0,20 cm junção seca Pilar metálico 15 15cm para sustentação do pergolado pintado em preto Cobertura em vidro laminado perfil 350 150cm 0,20 cm junção seca 1% (feita com perfis metálicos) 2.60 Pav. Térreo Segundo Pav. 280 2.45 0.150.20 0.15 2.45 Pilar metálico 15x15cm para sustentação do pergolado pintado em preto Cobertura em vidro laminado perfil 350 150cm 0,20 cm junção seca 1% (feita com perfis metálicos) Pilar metálico 15 15cm para sustentação do pergolado 245 4 30 5 6 84 290 4 3 4 43 4 3 4 0 pintura preta 01 01 02 02 02 0 10 10 15 30 5 365 25 15 14 5 9 0 6 perfil 350 150cm 0,20 cm junção seca 1% (feita com perfis metálicos) A A B B C C 3.50 0.15 0.67 3.65 0.10 0.10 1,0% 1,0% 1,0% 3.05 Cobertura em vidro laminado perfil 350 150cm 0,20 cm junção seca 1% (feita com perfis metálicos) ENDEREÇO: CONSTRUÇÃO: AUTORIA: TIPO DE CONSTRUÇÃO E ESTRUTURA: EXPEDIENTE ÚNICO: RRT PRINCIPAL: Nº PAVIMENTOS: ALTURA MÁXIMA: TIPO DE PROJETO: FASE: CATEGORIA: ÁREA DO TERRENO: ÁREA TOTAL CONSTRUÍDA: ÁREA AMPLIADA: REVISÃO Nº: CLASSIFICAÇÃO ATIVIDADE: "DECLARO QUE O PROJETO ATENDE À LEGISLAÇÃO VIGENTE, OCTO COLETIVO ARQUITETURA LTDA, ME-50 INSC MUN.: 537049-FONE: (51) 32863978 contato@octocoletivo.com.br ARQ. MARCUS EDUARDO DE ANDRADE WEBERmarcus@octocoletivo.com.brmichele@octocoletivo.com.br MODIFICADO EM: 09/12/2021 R1 1 25 Felipe 03 01 Habitações Unifamiliares em Série Arquitetura Rua dos Ipês, esquina Rua das Amendoeiras –Garopaba -SC Albano Marcos de Andrade -CPF: 290.190.520-04 Nelson Roberto Lopes da Silva -CPF: 164.807.590-87 Construtora EIFFEL Construções LTDA. -CNPJ 04.768.0 Custodio Jose de Sa Junior -CREA: 054201-0-SC ARQ. Michele Pigatto Librelotto -CAU/RS: A 48675-2 ARQ. Marcus Eduardo de Andrade Weber -CAU/RS: A 47157-7 PERGOLADO CASA A -PAVIMENTO TÉRREO COND. RES. IPÊS E AMENDOEIRAS /14 Planta Baixa -Pavimento Térreo Planta Baixa -Segundo Pavimento Esquema montagem pergolado -Final Corte AA Corte BB Corte CC Esquema montagem pergolado -Etapa 01 Esquema montagem pergolado -Etapa 02 Esquema montagem pergolado -Etapa 03 DESCRIÇÃO 01 02 03 04 Comprimento 3,80m Comprimento 2,84m Comprimento 3,40m Comprimento 0,56m Planta Baixa -Segundo Pavimento 8 Base espelho em madeira = 3,50 cm Estrutra em concreto armado Base e espelho em madeira e 3,50 cm Estrutra em concreto armado (mín) = 15,00 cm Parede estrutural revestida com pedra = 15,00 cm Corrimão metálico fixado na parede Perfil tubular Ø5,00 cm h 110 cm Guarda corpo em vidro temperado 1 cm incolor h=110,00 cm com acabamento superior (passa-mão) em perfil de alumínio cm com pintura eletrostática na cor preta Pav. Térreo 1.00 Segundo Pav. 3.80 Base e espelho em madeira e 3,50 cm (mín) 15,00 cm Corrimão metálico fixado na parede Perfil tubular Ø5,00 cm = 110 cm revestida com pedra 28.0 3.5 24.5 17.5 3.514.0 Suporte de aço Ø1 cm com fixação na parede 12 14 13 5
metálico fixado na parede Perfil tubular Ø5,00 cm = 110 cm
de aço x 5 cm com fixação na parede
em perfil de alumínio cm com
na cor preta
Vidro
com pintura eletrostática na cor preta para fixação inferior do vidro no corpo da escada Base e espelho em madeira e 3,50 cm cm incolor h=110,00 cm com acabamento superior (passa-mão) em perfil de alumínio cm com pintura eletrostática na cor preta Segundo Pav. 3.80 Pav. Terraço 6.60 17.5 Base e espelho em madeira Estrutra em concreto armado e (mín) = 15,00 cm 12 Corrimão metálico fixado na parede Perfil tubular Ø5,00 cm h = 110 cm 3.514.0 3.524.5 Base espelho em madeira = 3,50 cm e (mín) = 15,00 cm Parede estrutural revestida com pedra e = 15,00 cm Corrimão metálico fixado na parede Perfil tubular Ø5,00 cm h = 110 cm Guarda corpo em vidro temperado 1 cm incolor h=110,00 cm com acabamento superior (passa-mão) em perfil de alumínio cm com pintura eletrostática na cor preta ENDEREÇO: PROPRIETÁRIO: CONSTRUÇÃO: TIPO DE CONSTRUÇÃO E ESTRUTURA: ALTURA MÁXIMA: ÁREA TOTAL CONSTRUÍDA: ÁREA AMPLIADA: REVISÃO Nº: PRANCHA DISCRIMINAÇÃO: CLASSIFICAÇÃO ATIVIDADE: DADOS AUTORIAIS RESERADOS "DECLARO QUE O PROJETO ATENDE À LEGISLAÇÃO VIGENTE, EM ESPECIAL A LC 284/90". ESCALA: OCTO COLETIVO ARQUITETURA LTDA, ME CAU RS: 20.010CNPJ: 13.079.364/0001-50 INSC MUN.: 537049- -4 RUA JOAQUIM NABUCO 46/103 CIDADE BAIXA PORTO ALEGRE RS CEP: 90050-340 FONE: (51) 32863978 contato@octocoletivo.com.br ARQ. MARCUS EDUARDO DE ANDRADE WEBERmarcus@octocoletivo.com.br ARQ. MICHELE PIGATTO LIBRELOTTO CAU RS: A48675michele@octocoletivo.com.br VERSÃO DATA: DESENHO: 22/09/2021 R15 Como indicado 16/01/2020 Felipe 47 01 OCTO-AN-Cond. Hori. IA PROJ-ARQ-DET-BIM-R00 SI10822926I00 Condomínio Residencial -Casas Unifamiliares Habitações Unifamiliares em Série 3 Pavimentos 8.5 m Arquitetura Detalhamento 824.78 m² 722.48 m² Rua dos Ipês, esquina Rua das Amendoeiras –Garopaba -SC Albano Marcos de Andrade -CPF: 290.190.520-04 Nelson Roberto Lopes da Silva -CPF: 164.807.590-87 Construtora EIFFEL Construções LTDA. -CNPJ 04.768.036/0001-70 Custodio Jose de Sa Junior -CREA: 054201-0-SC ARQ. Michele Pigatto Librelotto -CAU/RS: A 48675-2 ARQ. Marcus Eduardo de Andrade Weber -CAU/RS: A 47157-7 DETALHAMENTO ESCADAS -CASA A COND. RES. IPÊS E AMENDOEIRAS /49 esc. 1 10 Detalhe 04 -Degraus Isométrica Escadas 11 Residencial esc. 1 25 Corte DD esc. 1 10 Detalhe 01 -Corrimão e fixação esc. 1 5 Detalhe 02 -Guarda Corpo esc. 1 5 Detalhe 03 -Fixação Guarda Corpo Detalhe 05 -Base e Espelho REVISÃO DATA DESCRIÇÃO DESENHO REVISOR R15 22/09/2021 Emissão detalhamento escadas Felipe Michele R9 22/07/2021 Detalhamento Áreas Molhadas e Escadas Felipe Michele esc. 1 25 Corte HH 9 10 12 16
Corrimão
Suporte
Passa-mão
pintura eletrostática
para fixação do vidro
temperado 1 cm incolor

PROJETOS PROFISSIONAIS

ARQUITETURA COMERCIAL LUBIANCA ARQUITETOS

informações sobre o projeto

ano: 2022 escritório proprietário do projeto: Lubianca Arquitetos equipe: Arlene Lubianca, Juliana Garcia, Barbara Armange e Felipe Nunes softwares utilizados: Revit, Sketchup e Enscape

Elaboração de novo conceito para loja da GANG localizada na cidade de Porto Alegre. Foram desenvolvidas todas as etapas de projeto, contemplando desde o brainstorming de idéias para a marca até o detalhamento de todas as marcenarias e elementos construtivos do projeto.

6 .3

PROJETOS PROFISSIONAIS

ARQUITETURA COMERCIAL LUBIANCA ARQUITETOS

informações

ano: 2022 escritório proprietário do projeto: Lubianca Arquitetos equipe: Arlene Lubianca, Juliana Garcia e Felipe Nunes softwares utilizados: Revit, Sketchup e Enscape

sobre o projeto

Projeto realizado para uma franquia da marca Lugano, utilizando os elementos de projeto considerados dentro do padrão da marca. Neste caso, o ponto se localizava dentro de uma loja de shopping, onde existe um manual norteando o que pode ou não ser utilizado no projeto. Com este, foi realizado um total de 6 lojas projetadas, em diversos pontos do país e com diferentes peculiaridades e características.

6 .4
portfolio felipe nunes da silva arquiteto e urbanista

Turn static files into dynamic content formats.

Create a flipbook
Issuu converts static files into: digital portfolios, online yearbooks, online catalogs, digital photo albums and more. Sign up and create your flipbook.