Feliks Kocibelli Portfolio | Drexel University 2020-2022

Page 1

FELIKS KOCIBELLI ARCHITECTURE

PORTFOLIO 2022

FELIKS KOCIBELLI

Architecture

is about trying to make the world a little more like our dreams.
Gilbet St, Broomall, PA
-Bjarke Ingles 484-472-2114 fk363@drexel.edu 2591
NEW/AGING REP/RESENT CO/SIC CO/ART QUA/RIES FINE/ARTS
page 04 page 12 page 18 page 28 page 38 page 40 CONTENTS

NEW/AGING

4
FELIKS KOCIBELLI ARCHITECTURE PORTFOLIO

THE NEW WAVE OF AGING

Date: 2nd Year Winter Term 2022

Duration: 10 weeks

Instructor: Rich Olaya

Programs: Hand Sketch| AutCAD Rhino | Photoshop | Illustrator | ArcGIS

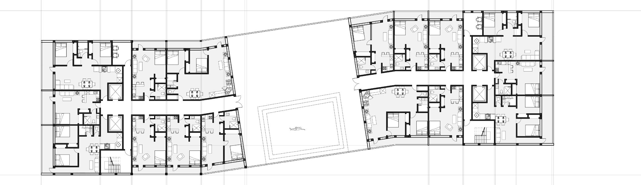
This Apartment Complex focuses on building a place for the senior community.

The design is heavily influenced by framing views close to the river, capturing light and bringing the Senior living community together.

The building creates a unique shape, depicting a new moon which represents a New Wave of Aging.

5
2022
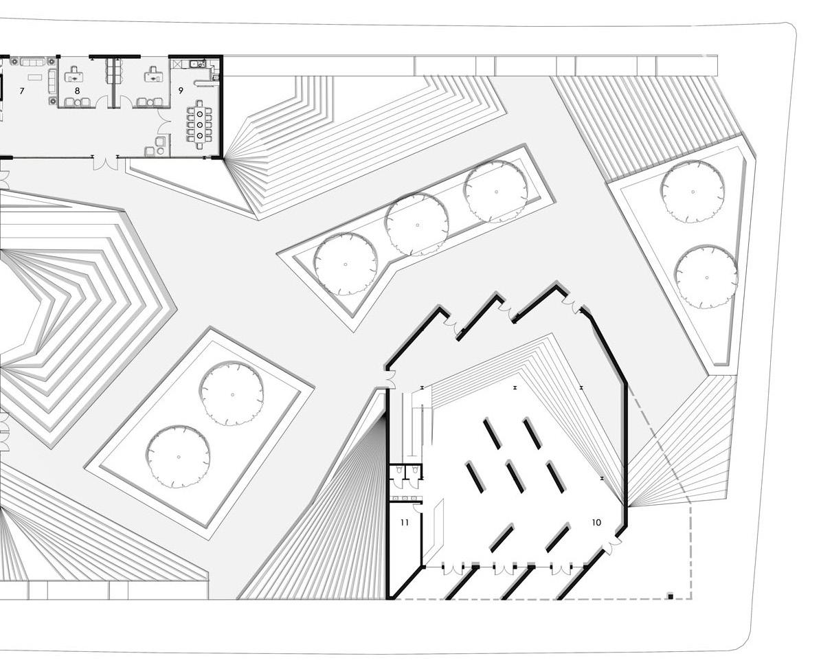
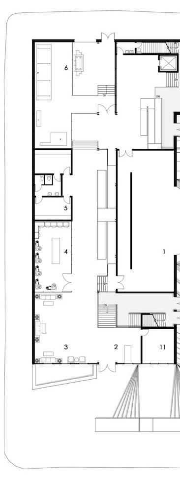
6 FELIKS KOCIBELLI ARCHITECTURE PORTFOLIO 01 Early sketch Idea 02 Amenities Space
7 03 Wall Section/ Typical bay
8 FELIKS KOCIBELLI ARCHITECTURE PORTFOLIO 04 Program Layout TOTAL SQF | 114,580 SQF | 100% Amenitis | 18,290 SQF | 14% Supporting Systems | 3,170 SQF | 02% Circulation | 19,000 SQF | 16% Commercial | 2,600 SQF | 02% Units | 88,520 SQF | 60% - Studio| 72 Units | 550 SQF - 1 Bed | 14 Units | 600-700 SQF - 2 Bed | 72 Units | 550 SQF 23rd
St. Section 1/16”=1’-0”
9 2022 Cut

GATHERING SPACE

Creating a space where neighboors can spend their time together while having a wonderful view of the sunset is what drives this project. This way, it creates a strong community for the older generation living in this place, preventing them from feeling alone.

SUMMER SUN PATH

Building Heights:

10 FELIKS KOCIBELLI ARCHITECTURE PORTFOLIO
05 Gathering Place/ Sunset View

THIRD FLOOR

SECOND FLOOR 1/16”=1’-0”

GROUND PLAN 1/16”=1’-0”

11 2022

REP/RESENT

12 FELIKS KOCIBELLI ARCHITECTURE PORTFOLIO

COMPETITION BOARD

Date: 2nd Year Spring Term 2022

Duration: 4 weeks

Instructor: Daniel Brown

Programs: Hand Sketch| Revit | Photoshop | InDesign | Enscape

As part of the learning process of Revit as a new tool, this project is an entry into the Stewartson Competition.

The Competition Board utalizes all the tools of representation to create a clear entry.

The goal of this project is to communicate the main idea with the proposed building in a graphically pleasing manner.

13 2022

THE SWISS/EXP

THE SWITZERLAND EXPERIENCE

Date: 2nd Year Winter Term 2022

Duration: 05 weeks

Instructor: Jacklynn Niemiec

Programs: Rhino | Illustrator | Enscape | Photoshop

This hotel is located in the mountains of St. Moritz, Switzerland. The purpose of this building is to take form with the flow of the mountain, so the visitors and locals can walk on the building and treat it as part

of the topography while providing incredible views of Switzerland. The place is located near ski resorts, allowing the visitors to ski around the topography and through the building!

14
FELIKS KOCIBELLI ARCHITECTURE PORTFOLIO
15 2022

01 Row House Section

Date: 2nd Year Fall Term 2021

Duration: 05 weeks

Instructor: Simon J. Tickell

Materials: Plaster, Basswood, Foam

This is a study on the Construction and materials of a row house. Understanding the foundation built in plaster and wood structural system through bass wood.

02 DETAIL AXON

Date: 2nd Year Fall Term 2021

Duration: 03 weeks

Instructor: Jeremiah Woodring

Programs: Hand sketch |Rhino | Illustrator |Photoshop

JETAVAN is a project by SP+A located in Maharashtra, India. The Intent of this project was to show the design intent of this building through a three dimensinal diagram

16
FELIKS KOCIBELLI ARCHITECTURE PORTFOLIO
17 2022

CO/SIC

18
FELIKS KOCIBELLI ARCHITECTURE PORTFOLIO

COMMUNITY MUSIC

Date: 2nd Year Fall Term 2021

Duration: 10 weeks

Instractor: JEREMY VOORHEES

Programs: Hand sketch/draft | Physical Model | AutoCAD | Rhino|Photoshop

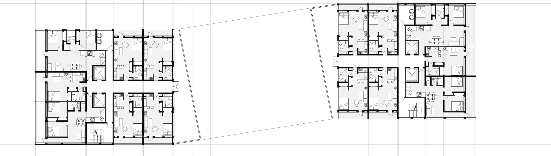
The row house project focuses on reducing heat islands, bringing the divided community together through music, while matching the materiality of the surrounding.

The place includes Mixed-use typologies in order to provide the commercial spaces that the neighborhood is missing but also Co-houses in an attempt to bring people together and fix the issue of the divided neighborhood.

The site is surrounded by trees which act as a threshold for the music while solving the problem of heat islands making it a lively place.

19
2022

01 Co-house diagrams explore ways of creating private and public spaces, while bringing natural light through solid and void.

20
FELIKS KOCIBELLI ARCHITECTURE PORTFOLIO

02 Mixed-use diagrams explore ways of dividing the living from the commercial area through the difference of transaprency, heights and circulation.

21
2022
22 GROUND PLAN 1/16”=1’-0” THIRD FLOOR A A A GROUND FLOOR CO-HOUSE 1/4" = 1'-0" N SECOND FLOOR 1/4" = 1'-0" THIRD FLOOR 1/4" = 1'-0" SECTION A 1/4" = 1'-0" SECOND FLOOR CO-HOUSE SECTION B B B GROUND FLOOR MIXED-USE 1/4" = 1'-0" N SECOND FLOOR 1/4" = 1'-0" THIRD FLOOR 1/4" = 1'-0" SECTION B 1/4" = 1'-0" FELIKS KOCIBELLI ARCHITECTURE PORTFOLIO
23 B B B GROUND FLOOR MIXED-USE 1/4" = 1'-0" N SECOND FLOOR 1/4" = 1'-0" THIRD FLOOR 1/4" = 1'-0" SECTION B 1/4" = 1'-0" GROUND PLAN 1/16”=1’-0” THIRD FLOOR SECOND FLOOR MIXED-USE SECTION 2022
24 FELIKS KOCIBELLI ARCHITECTURE PORTFOLIO 03 Testing Facades
04 Elevation, Plan, and Section Detail | AutoCAD, Photoshop

MUSIC GATHERING BACKYARD

Creating a space where the neighbors in the block and around the site can spend their time together while enjoying live music is what drives this project. This way, it brings the community of Mantua together and inspires kids to get into healthy habits brightening up the future of this community.

26 05 Backyard View
RESIDENT CIRCULATION PUBLIC CIRCULATION CO-HOUSE MIX-USE FELIKS KOCIBELLI ARCHITECTURE PORTFOLIO
27 SITE PLAN 1/16”=1’-0” 23rd St. Section Cut 1/16”=1’-0” 2022

CO/ART

28
FELIKS KOCIBELLI ARCHITECTURE PORTFOLIO

Theater Cocept

COMMUNITY ART

Date: 2nd Year Spring Term 2022

Duration: 10 weeks

Instractor: Ulrike Altenmüller-Lewis

Programs: Hand Sketch | Procreate | Rhino | Revit | AutoCAD | Illustrator | ArcGIS

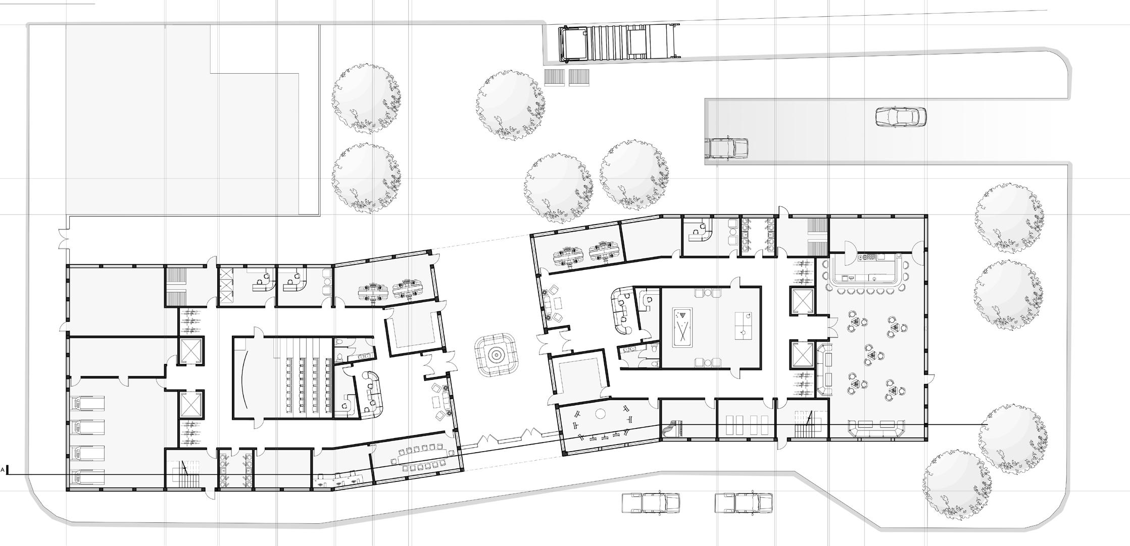
This Creative Making Community Center focuses on building a bridge between the residential and university community.

The design is heavily influenced to spread the community’s message through a squence of murals, art gallery, and an outdoor theater.

The exterior area provides gathering space for the community and acts as a bridge between the performance area and the art/performance school taught by the community.

29
2022

CO/ART

01 Initial Parti Diagrams Exploring

Solid/Void| Sequence | Circulation

02 Initial Bubble Diagram

Exploring the program realtionship to the site and how they are realted within one aother.

FELIKS KOCIBELLI ARCHITECTURE PORTFOLIO
31 2022

Restaurant

Fast Food

Police

Amenities Cafe School

Fire Station

Residential Community University Community

32
FELIKS KOCIBELLI ARCHITECTURE PORTFOLIO
COMMUNITY RESEARCH
33 2022
34 03 Enterence View FELIKS KOCIBELLI ARCHITECTURE PORTFOLIO
35 2022 04 Interior Spaces | Light Quality | Materiality

PERFORMANCE/ GATHERING SPACE

Creating a space where the community can spread their message through visual art and theatrical performance is what drives this project. This way, it creates a strong community where their concernes can be heard, seen, and experienced through creative ways.

FELIKS KOCIBELLI ARCHITECTURE PORTFOLIO
06 Rooftop Experience
07 Performance/Gathering area 2022

QUA/RIES

QUARANTINE MEMORIES

Date: Throughout Quarantine

Medium: Hand Sketch

The sketches recall moments before the lockdown. Instead, they appear to be quite lonely and empty.

A quote is associated to each drawing describing the feeling at the moment, bringing the audience closer to the scene.

38 FELIKS KOCIBELLI ARCHITECTURE PORTFOLIO
39 2022

FINE/ART

40
FELIKS KOCIBELLI ARCHITECTURE PORTFOLIO

FINE ART

Date: High School 2016-2020

Instractor: Michael Winterbottom

Mediums: Pencil and Paper |

Conté Pastel | Oil Pastel |Water

Color Pencils | Scratching Board

A mixed medium collection of Art through my 4 years in Marple

Newtown High School.

41
2022
2022 01 Strength & Connection
44 FELIKS KOCIBELLI ARCHITECTURE PORTFOLIO 02 Collage
45 2022 03 Smile
46 FELIKS KOCIBELLI ARCHITECTURE PORTFOLIO 04 What Now?
47 2022 05 So Close, Yet So Far Away
48 06 The Light Of Our Life

FELI OCIBELLI K S

EDUCATION

Drexel University

Philadelphia, PA

BArch 2+4 Program

2020-2026

GPA 3.72

AIAS

EXPERIENCE

DISCOVERING ARCHITECTURE

AMERICAN INSTITUTE OF ARCHITECTURE

STUDENTS

2020 - PRESENT

TRI-M MUSIC HONOR SOCIETY

2019-2020

TEACHER

PRESIDENT 2022-2023

EVENTS COORDINATOR 2021-2022

EVENTS COORDINATOR COORDINATED MUSIC EVENTS 40 HOURS OF VOLUNTEERING MUSIC PERFORMENCE IN NURSING HOMES

Marple Newtown High School Newtown Square, PA 2016-2020

AP Studio, Ap Music Theory

REFERENCES

Dr.-Ing. Ulrike Altenmüller-Lewis

AIA, Program Director, AIAS Architecture; Associate professor ua27@drexel.edu

David Beker

RA, Adjunct Assistant Professor, Drexel University dab429@drexel.edu 610-639-6604

Richard Olaya

Assistant Adjunct Professor, Drexel University rho23@drexel.edu

215-285-8324

SKILLS COMPUTER HOBBIES ACHIEVEMENTS

49 484-472-2114 fk363@drexel.edu 2591 Gilbet St, Broomall, PA 19008
PROFILE
GOT TALENT PERFORMED 3 PIANO CLASSICALS WON JUDGES 1ST CHOICE & $1,000 AIAS PRESIDENT 2022-2023 EVENTS COORDINATOR 2021-2022 DEAN’S LIST CURRENT GPA 3.72 SCHOLARSHIPS A J DREXEL SCHOLARSHIP WESTPHAL PORTFOLIO SCHOLARSHIP
MN’S
SUMMER 2022
AP STUDIO 2019-2020 STUDENT 1 YEAR COURSE PORTFOLIO- MIXED MEDIUM MATERIAL DESIGN PROCESS RENDER
ASSISTANT INTRODUCING ARCHITECTURE TO HIGH SCHOOL STUDENTS
ARCHITECTURAL DESIGNER
MAKING PHOTOSHOP AUTOCAD ILLUSTRATOR AUTODESK REVIT SKETCHUP INDESIGN RHINO ENSCAPE ADOBE ACROBAT
MODEL
ARCHITECTURE PORTFOLIO 2022 484-472-2114 fk363@drexel.edu 2591 Gilbet St, Broomall, PA

Turn static files into dynamic content formats.

Create a flipbook
Issuu converts static files into: digital portfolios, online yearbooks, online catalogs, digital photo albums and more. Sign up and create your flipbook.