Architecture Portfolio by Feiyang Wu 2025

Page 1


CONTENTS

ModEase DFD Center

Animating Waste

-Installation and benches fabrication

-Design for Disassembly Research Center rication enter

Highgate Fun Strip

-Communal Art-Crafts Workshops Markets

The Street Expand

-Self-agent Collective Housing

Walkie-Talkie

-Sicily Oral - Cultures Studio Complex

Chaoyin Temple

-Internship Proect at engo uma Associates

Rhythmic Mosaics

-Buildner Shortlisted Proect: Sound Sculpture

100 Reunions With Roses

-Art Exhibition Design

Jewerly Designs

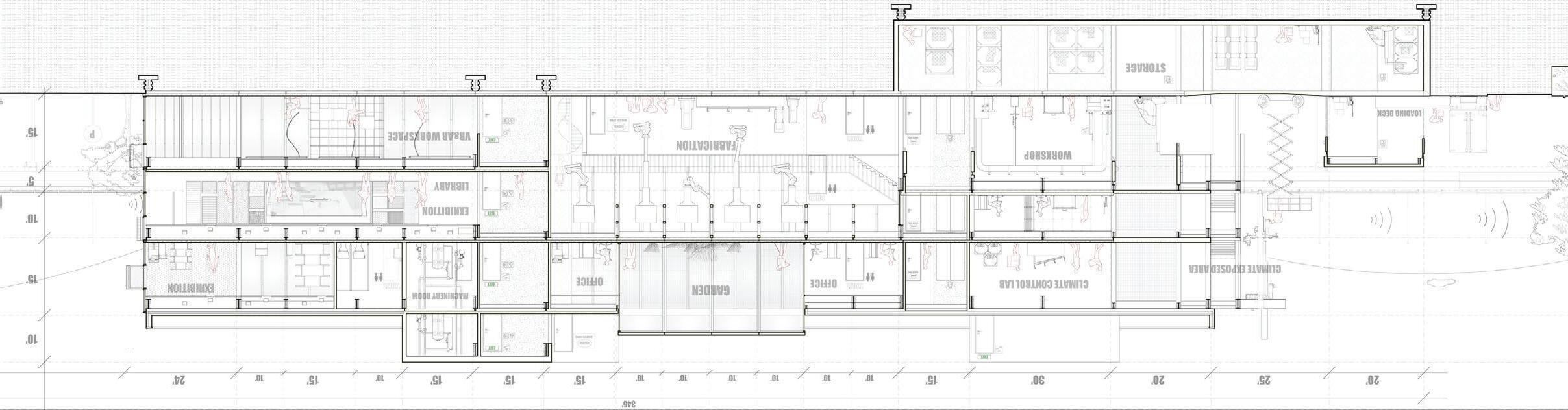
ModEase DFD Research Center

Design for Dissasemble Center

This research center is dedicated to advancing Design for Disassembly (DFD) principles in architecture. The building integrates horizontal and vertical divisions, with static upper s es n n e s ese n fabrication. Steel construction facilitates future recycling, e e n ne s ste s e s replacement and transportability.

The project incorporates innovative modular systems for both e n ne s en n n e t n s st n t in construction. The modular facade system features easily e e e e es n en s n glazing, allowing for rapid changes and serving as a testing n ne es ns e ne s st e ne on-site construction with layers including steel studs, CLT ne s nt e t es n n s n e s ne s independent joint design enables straightforward replacement without disturbing adjacent panels.

The project prioritizes accessibility, meeting relevant safety, building codes and syracuse zoning requirements.

Location: Syracuse Downtwon, NY, USA Spring 2024, Forth-Year Comprehensive Studio Instructor: Professors Brian Lonsway

Contributers: Feiyang Wu, Xiaoya Li

Long Section
Facade Modules

This 2-day bench-making workshop providing prefabricated discarded materials. Participants used only hand tools to dry-assemble benches or sculptures with nuts-and-bolts connections.

It aims to promotes upcycled, material-led design, empowering everyone to be a designer, seeing beauty from "trash" through hands-on making. And

I guided all projects, and made the rocking chair with red bike saddle as the sample

Highgate Fun Strips

Communal Art-Crafts Workshops & Markets

Highgate is characterized by its invigorate small business

n se s ent n t e e s st n e Highgate to further support its high street and local businesses s e s e t n e n s e e n ne highgate railyway station with woods surrounded contain st n s e t e e se n e te s rich cultural value, but only have a few art facilities, the design is about art workshops for creating and selling arts, which t te t t n e t te

e es n s t ene te e e t e t t t es t st s ks s n kets e st est ne st s e s n e ent s s t e ne te t e s e n e e e te n ne e te routes, attracting people to engage in creation, curation, and nte t n n t s s te

Location: Highgate Station, Haringey, London, UK Fall 2023, Forth-Year Design Studio

Instructor: Professors Amber Bartosh and Vanessa Lastrucci

Contributers: Feiyang Wu, Yilin Zhong, Yunan Wei

Site Plan

Lateral Section
Ceramic Studios

t n t t st e e k e e es n t

Instructor: Marcos Parga nt te s e n en e n e

ent t n n t e t t t e t eet n e t t eet s n t nt t n es ents of Harlem that holds most of its local culture, cuisine, n ts s ene e ent n se n es e t n n t e t nt n e ns n t e n tt n nt n displacing local residents, small businesses, and putting e s st eet t e t t e t s t e s n project is designed for the vulnerable Harlemite population as their community and culture are being pushed out of Harlem as big developers begin to take the street space es ents e t ks t Harlemites to preserve their right to the city and street in order to promote social justice that combats the wave of development in this area, and creates an environment that allows local Harlemites to continue to have agency at the st eet e e e e t e st eet s s et n e e e n n nt t e e es n t e t n t e n n n nte n t n s n t t references the circulatory and shared natures of the street nt n te t n e

Keywords: Self-Agency, Activism, Street, Gentrification, Culture, Preservation

Longitudinal Section

JAYDEN SCHEXNAYDER / FEIYANG WU

Walkie-Talkie

Sicily Oral-Cultures Studio Complex

Voice is a powerful tool but less respected by the majority compared to visuals. Archeology, as an example, defines itself as the study of the human past using material remains, excluding the importance of oral evidence. In fact, the oral language is the base of all cultures. This project invites worldwide scholars onsite to exchange acoustic knowledge and archaeoacoustics skills with the local community.

Together, through audio production, we aspire to preserve, celebrate and inherit the oral history of Sicily “where the very definition of language or dialect remains uncertain, ready to be denied and then confirmed again from one moment to another.”

The building itself was a cinema built in the facism period; and it sits at the city gate of Marsala, looking at the ocean and a roman archeology site. Acknowledging the geographical and cultural importance of the site, the project intends to stretch itself to the roman ruins and repurpose the facism building into a sound-culture exchange complex.

Contributers:

Location: Marsala, Sicily, Italy

Spring 2023, Third-Year Design Studio Instructor: Professors Daniele Profeta

Feiyang Wu, Huilin Wu, Jiwei Wang, Yuxuan Liu

e n t ss t e e s te n t e e nne ts t t e s n t t n t t e t n t e es ent t t e e t t s t e t t e t en e e into two types: one for the public with limited access and the other for producers, allowing them t ss t t e e es n ente t e es ent e

e tt t e n s s t ee e ent s n t e e t nt s e presentation areas, allowing performance to vary in scale

The original purpose of the Cenima is to propagate fascist ideas. Now, by changing the program into a sound production studio opens to everyone, the communication has changed from one-way to multiple directions. Instead of erasing the fascist history by destroy the original facade, the project keeps it and adds a screen that inverses the shape of the original facade, arguing for a place for everyone to make a sound. Besides, the new facade changed the main entry and provided a silent garden.

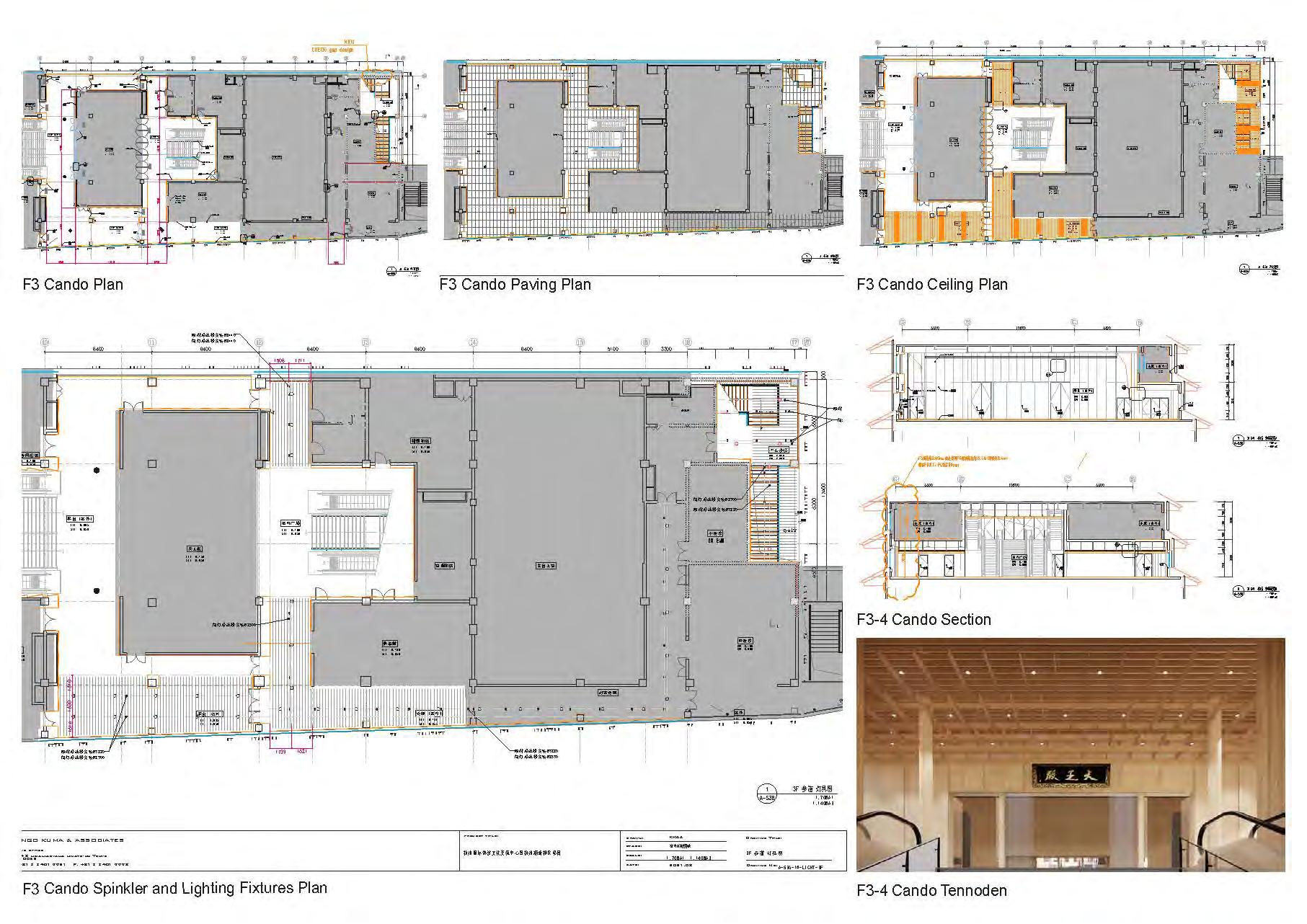
Chaoyin Temple

Internship at Kengo Kuma and Associates Beijing

This project creates a "Buddhist temple campus" inside a modern multi-story building. The spaces division was designed according to the requirements of the various monastery functional spaces in different sizes and with specific locations, providing different floor layouts and space heights. The contour of the eaves with the setback, like the traditional Chinese Buddhist pagoda generating a "mountain-like" silhouette, integrates the collective functional spaces of different sizes into one body y

This project challenges how to turn "courtyards" and "cities" that usually develop horizontally into an extensive collection of vital functional spaces in a vertical complex.

As an intern of this project, I participate in the design of facades, Cando, and temple details, including interior finishing, doors, location of fire hydrants/sprinklers/ lights, garters, ceiling, railing, abbot's reception room, escalators, exhibition space, auditorium, etc.

Internship Supervisors: Hirokatsu Asano, Siwen Liu, Sihan Li, Qianhe Xu

Stage as an instrument

Sansusi sound sculpture shortlisted project
Fridge
Liquor Shelf
Freezer
Bar Design

Turn static files into dynamic content formats.

Create a flipbook
Issuu converts static files into: digital portfolios, online yearbooks, online catalogs, digital photo albums and more. Sign up and create your flipbook.