

receuil de travaux
Ce portfolio rassemble mes travaux d’atelier réalisés au cours de l’année académique 2023-2024
fatouma sougou 4382267875
université de montréal faculté d’aménagement
table des matières
Le cube
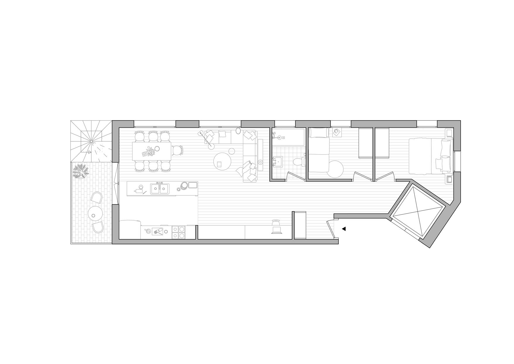
Le duplex
Le multilogement
p. 8-13
p. 14-19
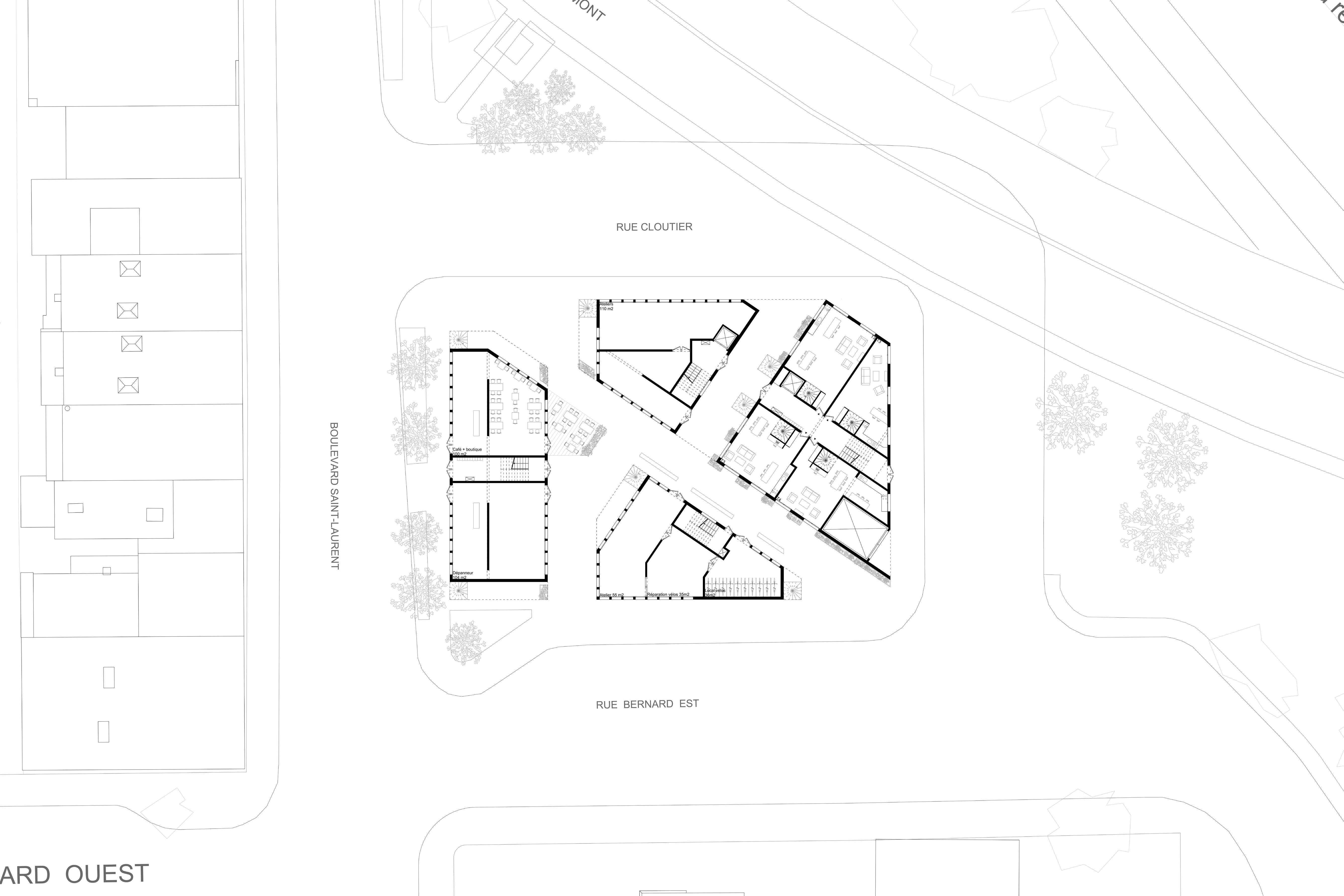
p. 20-33

Au cours des deux dernières années, j’ai développé une compréhension approfondie du processus de conception architecturale, en apprenant à transformer une idée en un projet cohérent et fonctionnel. J’ai exploré divers principes architecturaux, intégrant la lumière, l’espace et l’échelle pour créer des environnements significatifs.
L’analyse du site est devenue essentielle dans ma démarche, me permettant de concevoir des projets en dialogue avec leur contexte urbain et social. La matérialité et la construction ont aussi joué un rôle clé, m’aidant à saisir l’impact des choix structurels et des détails d’exécution sur l’expérience spatiale.
Chaque projet m’a permis de développer une approche plus sensible et rigoureuse, conciliant créativité, contraintes et fonctionnalité pour donner du sens à l’architecture.

Sillage conception d’un espace à partir d’une base cubique, où des mouvements sont intégrés pour modeler l’architecture de l’espace.







récit suspendu Le projet de duplex avec atelier d’artiste, situé dans le Mile End, explore l’interaction entre le site, les matériaux et la fonction des espaces.





















