FÁTIMA NACEVILLA
ARQUITECTA - DISEÑO Y CONSTRUCCIÓN

Mi nombre es Fátima Nacevilla y soy Arquitecta graduada por la Universidad Central del Ecuador. Soy una persona muy apasionada en el diseño y ejecución de proyectos arquitectónicos, con habilidades para el lenguaje gráfico y la dirección de proyectos.
Me caracterizo por estar en constante aprendizaje y por la creatividad a la hora de solucionar problemas, estoy en búsqueda de oportunidades laborales que me permitan generar crecimiento profesional y que desarrollen los conocimientos y habilidades obtenidos a lo largo de mi carrera.
A continuación he recolectado algunos de los proyectos más destacados en los que he podido participar y que muestran mis conocimientos y habilidades en el ámbito del diseño arquitectónico, diseño de interiores, visualización 2D 3D y construcción.
EXPERIENCIA LABORAL HABILIDADES
RESIDENTE Y PLANILLADOR- Anfavgroup
Abril 2204 | Actualidad
DIBUJANTE Y TRAMITADOR- Ecohabitarq
Dic 2023 | Mar 2024
ARQUITECTO JUNIOR - EseColectivo Arquitectura
Nov 2021 |Jun 2023
DIBUJANTE Y ASISTENTE DE INVESTIGACIÓN - Muñoz Consultoría
Oct 2017 |Oct 2021
EDUCACIÓN
UNIVERSIDAD CENTRAL DEL ECUADOR
Título de Arquitecto|Jun 2023
COLEGIO MARÍA ANGÉLICA IDROBO
Bachiller en Ciencias Matemáticas |2008-2014
DESTACADO
ARQ. JUNIOR EN PRIMER EDIFICIO DE MADERA LAMINADA DEL ECUADOR
Publicado en revistra TRAMA
PUBLICACIÓN DE TRABAJO DE FIN DE CARRERA
Nominado a Concurso Medalla de Oro
PARTICIPACIÓN EN CONCURSO VIVIENDA MIDUVI
“Reciclaje de Edificios Públicos para Vivienda Social” MIDUVI
DIBUJO Y MODELADO
Autocad
Sketchup Revit BIM
ADOBE
Adobe Photoshop
Adobe Illustrator
Adobe InDesign
DISEÑO
Diseño Arquitectónico
Diseño Urbano
Diseño hidro-sanitario
Diseño eléctrico
Residencia de obra
LENGUAJE
Español
Nativo
RENDERIZADO
V-ray
D5 Render TwinMotion
OFFICE 360 Excel Word
Power Point
PERSONALES
Creatividad
Responsabilidad
Rápido Aprendizaje Organización
Práctica de Acuarela
Inglés B2 Italiano Aprendiz
CONTACTO
Telf: +593 984919185
e- mail: fa.nacevilla96@gmail.com
linkedin.com/in/fátima-nacevilla-364141224
Dirección: Isla Floreana e Isla Fernandina 15/09/1996 (28 años)

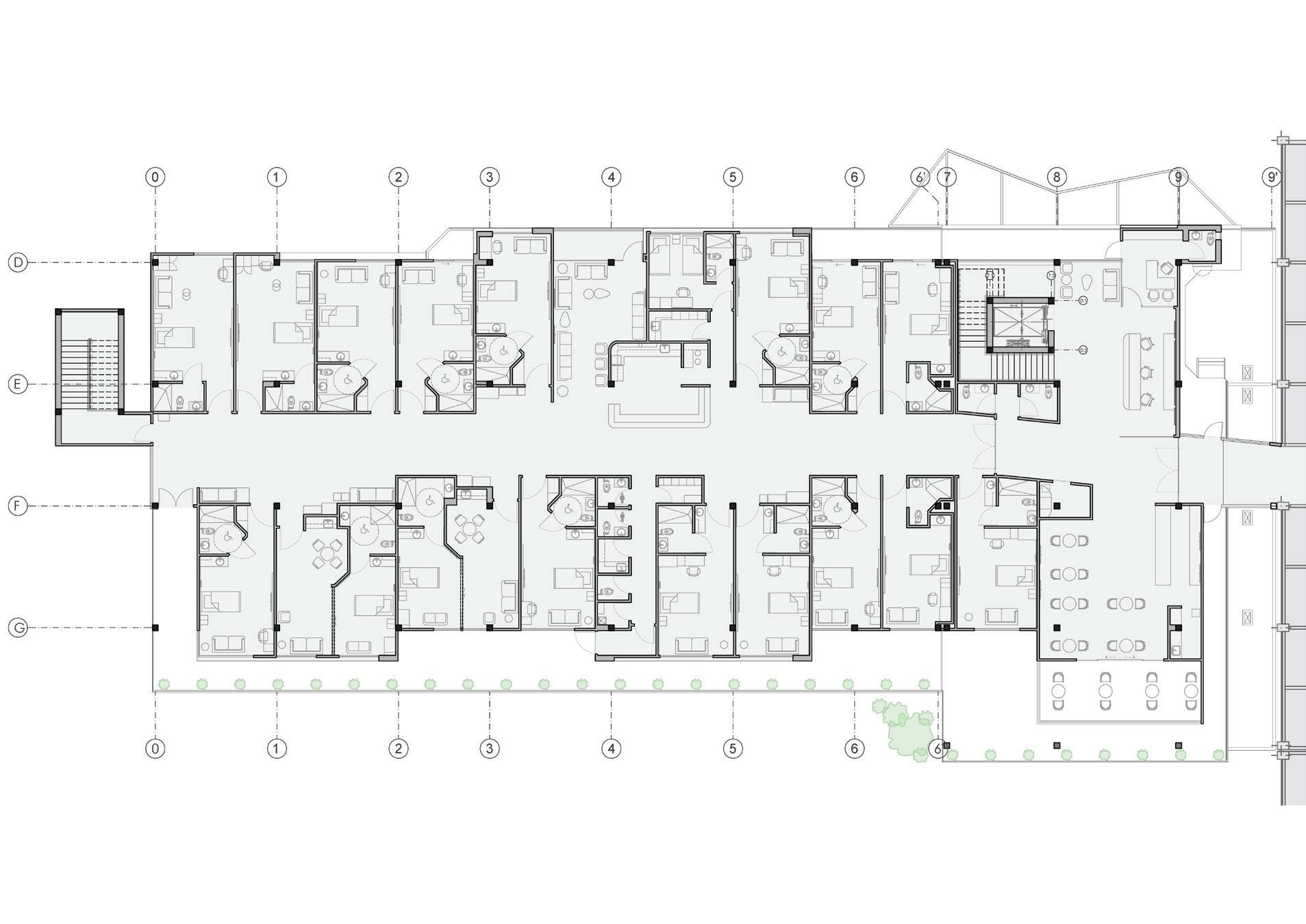
HABITACIONES EJECUTIVAS -HOSPITAL SOLCA NÚCLEO QUITO
Residente y Planillador | 2024
DIBUJO ARQUITECTÓNICO, DISEÑO DE INTERIORES Y ELABORACIÓN PLANOS INGENIERIAS
Con Anfragroup pude participar en la construcción de 15 habitaciones privadas y dos suites ejecutivas para el tratamiento oncológico en el hospital SOLCA, sobre un piso ya consolidado. Se destaca en este proyecto los acabados de lujo que marca uno de los establecimientos hospitalarios con mas alto grado de especializacion en el tratamiento de cáncer en Ecuador.
Estas habitaciones son complementadas con espacios de utilerías, sala de esperas, áreas de servicio, halls de ingreso de gran amplitud con un diseño vanguardista y elegante, donde se destacan los colores institucionales y el respeto a la normativa hospitalaria.







Trabajé activamente en el proceso de toma de decisiones en cuanto a acabados, colores, texturas, materiales, diseño de habitaciones, pasillo, elección de luminarias; como parte del proceso de Diseño Interior.
En cuando al Diseño Arquitectónico estaban a mi cargo el correcto manejo de los planos de ingenierías, para la ubicación adecuadade todos los elementos en el espacio. Mi labor fue estar consciente de cada componente del objeto arquitectónico, expresarlo en planos de obra para su posterior ejecución y supervisión de calidad.




También elaboraba en conjunto la Planilla de Obra mensualmente hacia la Fiscalización, para posterior al termino y entrega de obra generar los planos as built y organizar todos los documentos para la liquidación.
Fue una gran experiencia de la que agradezco ser parte, un reto pero sin duda una hito exitoso para mi carrera profesional.





PRIMER EDIFICIO DE MADERA LAMINADA DEL ECUADOR- LABORATORIO
Arquitecto Junior |2021-2023
RESIDENCIA
DE OBRA, DIBUJO ARQUITECTÓNICO Y GESTIÓN DE PROYECTOS
Con EseColectivo pude experimentar la construcción a gran escala con materiales alternativos como la madera laminada, en un edificio de laboratorios y oficinas de 4 pisos, en la ciudad de Quito. En el que estuve presente desde la colocación de la superestructura de madera y de metal hasta la fase de acabados y entrega del proyecto.
Entre las responsabilidades que realicé en ese periodo se encontraba la residencia de obra, donde dirigía los diferentes grupos de obreros para la realización de todas las ingenierías previstas. También llevaba el cronograma de actividades junto con la gestión de compra de materiales para la construcción.



Foto: EseColectivo Arquitectura











Elaboración de PLANOS AS BUILT





de ingenierías Planos hidro-sanitario |Planos de detalles|Planos de acabados |Planos de bomberos|Planos de evacuación

Además de realizar planos arquitectónicos y de ingenierías junto a los detalles necesarios para la construcción, estaba a cargo de la actualización de la información 2D y 3D del proyecto. Con el fin de obtener los volúmenes de obra para realizar las compras con los proveedores.
La experiencia fue gratificante debido a que aprendí un poco de la gran complejidad de la construcción y desarrollé capacidades con el trato de personas, como con los obreros para dirigir
y cumplir los tiempos pactados; al igual que el trato con los dueños de la obra sobre cambios no previstos.
Finalmente para mí fue impresionante ver que los dibujos realizados se convertían en una realidad funcional y estética que los usuarios pueden utizar.
El proyecto fue publicado en la revistra TRAMA donde se destaca el uso de madera laminada en la construcción de edificios.

ARQ. JUNIOR EN VIVIENDA UNIFAMILAIR EN TIERRA Y MADERA
Feb 2023|Jul 2023
RESIDENCIA DE OBRA, DIBUJO ARQUITECTÓNICO Y GESTIÓN DE PROYECTOS
De la mano de EseColectivo estuve a cargo de la construcción y gestión de una vivienda unifamiliar en Yaruquí con estructura de madera de eucalipto y paredes de tierra a manera de bahareque. Estuve presente en la realización de planos y construción de vivienda hasta llegar a la fase de acabados.
Las responsabilidades que realicé en ese periodo fueron las de residencia de obra, gestión avazada del proyecto en la cual era la responsable de las compras, presupuestos, cronograma, pago a trabajadores y elaboración de detalles constructivos y arquitectónicos.














































CORTE 1













TRABAJO DE FIN DE CARRERA
Nominado a Consurso Medalla de Oro | Jun2023
ESPACIOS TRANSFUNCIONALES EN LA VIVIENDA COLECTIVA POSPANDEMIA. CASO DE ESTUDIO: BARRIO LARREA
Como tesis de grado me plantee la pregunta de como vivir en medio de una pandemia, para lo cual fui descubriendo mediante algunos autores que la vivienda está constantemente en mutación por las diferentes formas de vida que la habitan.
Por lo que plantee a la vivienda como un organismo cambiante que necesita poder tener flexibilidad ante los distintos modos de vida de sus usuarios y los nuevos modos de habitar. Mediante un edificio híbrido se resuelve el programa con espacios de comercio, vivienda, coworking y un gran número de espacios comunales.




























CONTENIDO DE LÁMINA IMPLANTACIÓN




















ESCALA esc ______ 1:600


DATOS ADICIONALES



Implantación de Vivienda Colectiva 0 5m 10m 25m



Para generar flexibilidad en las plantas de vivienda, se plantea al mueble como elemento base para el movimiento de los usuarios ,a través de la Teoría de soportes de Habraken se usa al mueble como elemento para generar módulos agregativos en el tiempo.

Además se plantea una planta baja libre para generar interacciones directas con la ciudad y entregar al mismo tiempo espacio público resguardado del ruido de la ciudad.


DIBUJO Y DISEÑO ESTRUCTURAL DE PUENTES DE BAMBÚ
Ayudante en Tesis Doctoral|Oct 2017- Nov 2021
“EARTHQUAKE RESISTANT ANALYSIS FOR DESIGN BAMBOO REINFORCED HOUSING”
Tesis doctoral en Florida Atlantic University (USA)
Con Muñoz Consultoría ayudé en el proceso de obtención de Título de Doctorado al Ing. Guillermo Muñoz y su posterior devengamiento , a través de la investigación del bambú como material estructural predominante en viviendas y puentes. Con el fin de obtener un algoritmo de predimensionamiento estructural para facilitar la construcción con bambú.
Realicé labores de investigación, co-edición y procesamiento de datos de laboratorio obtenidos a partir del comportamiento del bambú sometido a diversas cargas. Para obtener un documento escrito en inglés que demuestre el increíble funcionamiento del bambú como material estructural.
Tablero de chamul o similar L=15 a= 3m
12 Vigas secundarias GaK Ø12cm L=3m @0,5 1C1F
12 Vigas rigidizador GaK Ø12cm L=2,5m @1,0 1C1F

principales GaK Ø12 cm L=3 1C2F
principales GaK Ø12 cm L=15m 1C3F






RENDERIZADO VIVIENDA MULTIFAMILIAR “CASA MENTOR”
VIVIENDA MULTIFAMILIAR “CASA


RENDERIZADO PROPUESTA DE PASILLO QUIRÓFANOS - SOLCA


GRACIAS POR TU TIEMPO
CONTACTO
Telf: +593 984919185 e- mail: fa.nacevilla96@gmail.com
linkedin.com/in/fátima-nacevilla-364141224
Dirección: Isla Floreana e Isla Fernandina Quito-Ecuador