Portofolio 2019-2024

Page 1

FATIMAH GUNAWAN PROJECT ARCHITECT

PORTO FOLIO

2019-2024

CURATED ALL TIME

BEST WORK

Portfolio containing selected projects that were carried out in the 2022-2024 range It consists of multi-sites, commercial sites The design thinking process is packaged in diagrams, narratives, and rendered photography

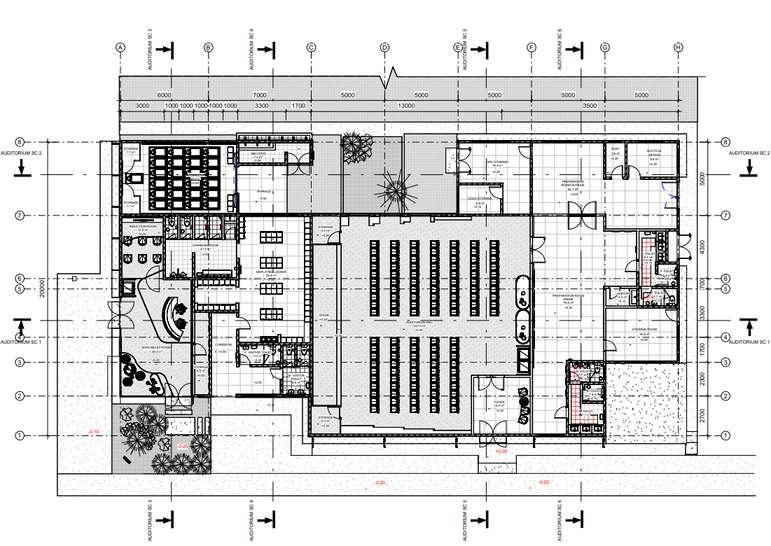
KALCER

SOCIAL SPACE

BUILT PROJECT 2023

SURABAYA, EAST JAVA

Design and construct a facility that fosters a dynamic creative ecosystem, facilitating economic activity while concurrently generating innovative spaces for collaborative endeavors

SCAN/CLICK FOR DETAIL

intip in/Kalcer SocialSpace

It was intentionally conceived not solely as a collaborative space, but also with a mindful approach towards sustainable renovation

As a result, components of the building deemed viable for reuse have been incorporated into the design

This establishment serves as a nexus for coffee enthusiasts, creative individuals, and city stakeholders Beyond being a coffee destination, it houses a creativity workshop and operates as a forward-thinking architectural consultancy

Façade Design : Revealing Identity

Give a new face to the building with the renovation of the 2nd floor and an attractive guardrail

Openness : Welcoming New Opportunity

Existing boundaries are open to improve the visuals of the building and display the activity inside them

Landscape: Design for Collaboration

Designing an active and attractive outdoor area as new gathering area to interact and collaborate

Outdoor Community Spaces

Some furniture are designed using discarded materials from demolitions

Circular Stairs

Meanwhile, this circular staircase is made with demolished material that connects the floors

Sustainable Renovation Implementation

The first and second floors of the buildings showcase a synthesis of collaborative work, focus, social interaction, and learning concepts

Coffee and Discussion

Elevate conversations through coffee and ambience

Kalcer Social Spaces

This serves as the workshop space, facilitating the exchange of ideas

Exhibit Artist’s Work

Valuing every artist’s work with providing place to exhibit

CIHERANG

SILIWANGI RESIDENCE

BUILT PROJECT 2020

BOGOR, WEST JAVA

Partnered project of residential under PT Bumi Sangkuriang Siliwangi 2 Located in a strategic place in Bogor with a beautiful view of Salak Mountain.

intip in/CiherangSiliwangi Scan/Click for Full Explanation

Various types of houses are also presented to provide choices for customers according to their budget

Legend

A : Carport

B : Front Terrace

C : Family Room

D : Kitchen

E : Bedroom 1

F : Toilet

G : Backyard Garden

H : Garden

I : Side Terrace

J : Carport Canopy

K : Stairs

L : Corridor

M : Bedroom 2

N : Bedroom 3

CIHERANG

OUR SERVICE

SILIWANGI RESIDENCE

BUILT PROJECT 2020

BOGOR, WEST JAVA

Experimental several residential models to find out customer interest in house models according to their buying power

MODEL-MAKING

Visualizing some housing projects with model-making to give a brief understanding for prospective home buyers

Legend A : Carport B : Garden C : Guest Room D : Bedroom 1 E : Toilet F : Kitchen G : Backyard Garden H : Bedroom 2 I : Bedroom 3 J : Toilet K : Balcony

PRODUCTION AREA

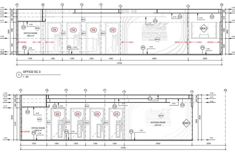
COCA-COLA CIKEDOKAN

ON-GOING PROJECT 2023-2024

BEKASI - WEST JAVA

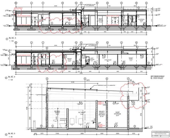
This project centers on the enhancement of various segments within the existing factory. The design process meticulously entails an analysis of the brand, determining the appropriate ambiance for each designated area

Develop a versatile meeting space with the capability for expansion

The office interior is crafted to foster a collaborative work environment for employees within this space The selected color palette is a harmonious blend of the brand's identity

After

Before

The dominant curve design is combined with a modern office look to increase productivity

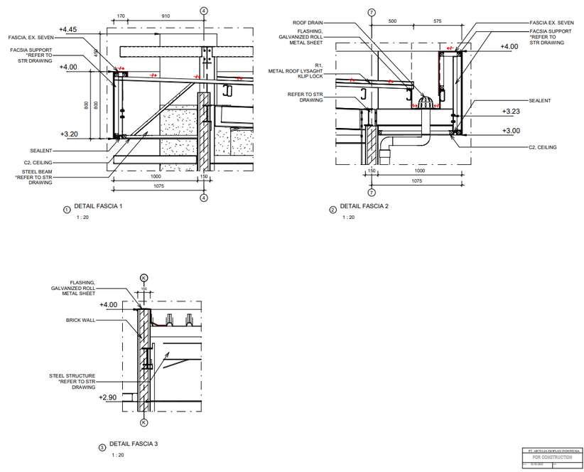
In the planning phase, Revit is employed as a tool to streamline the development of Detailed Engineering Design (DED) towards the tendering process

The design follows Coca-Cola's brand standards, ensuring consistent colors and details, documented in the

Detailed Engineering Design (DED)

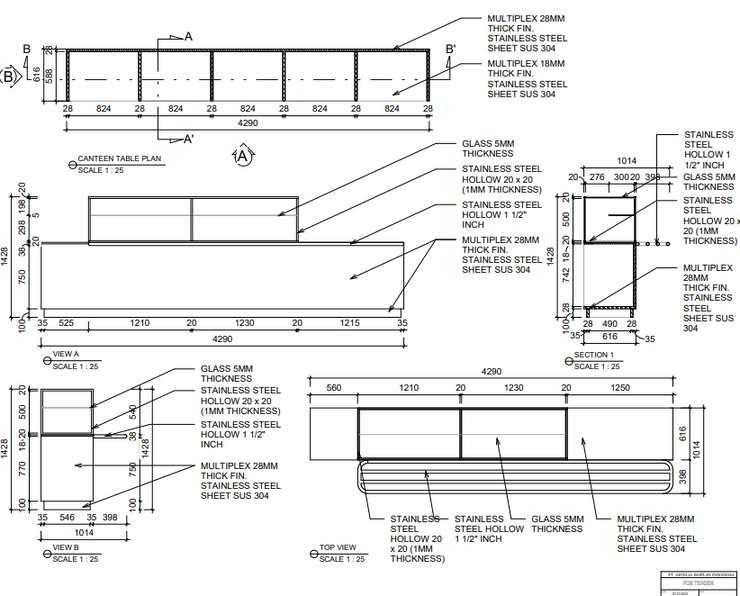
The cafeteria underwent a redesign to create a more vibrant atmosphere Material selection was carefully considered to ensure durability and resistance to wear and tear The furniture, as depicted in the picture below, is designed for longevity and constructed with stainless-steel

The bathroom is designed with a combination of wood to enhance the comfort for users

The brand's color palette seamlessly integrated with natural elements

for using glass to visually expand the room

The interior design of the aforementioned space is an integral component of the production area, as illustrated in the layout

Strategy

OFFICE BUILDING

COCA-COLA PASURUAN

ON-GOING PROJECT 2024

PASURUAN, EAST JAVA

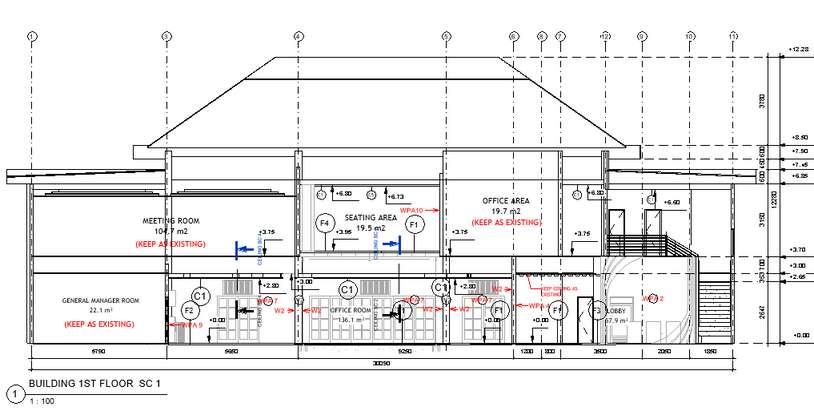
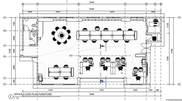
This project involves revitalizing the existing office space, infusing it with a fresh and modern ambiance to create a more comfortable and inviting work environment

The renovation project commenced with the refurbishment of the lobby interior, preserving its already commendable elements

The enhancements focus on incorporating Coca-Cola Euro-Pacific (CCEP) aesthetics, aligning with preestablished branding colors and incorporating shades of green

Revit is utilized to facilitate the efficient progression from Detailed Engineering Design (DED) to the tendering process

BIM TOOLS : REVIT

The existing design of the second floor lobby is also being considered for redesign and strengthening so that it can become a comfortable waiting area

The addition of curve elements and an open-space office concept were also considered to support a collaborative work atmosphere

KALIANGET

EAST QUAY

CONCEPTUAL PROJECT 2021

SUMENEP, EAST JAVA

This project was mainly proposed to bring back memories like in 1899 when the Dutch government built a Modern Briquette Salt Factory with its facilities in the modern era for tourism

Scan for Video

intip in/KaliangetEastQuay

REDESIGNED

ABANDONED SITES

The city planning were redesigned and Various industrial support facilities were renovated to strengthen the memory of firmly monopolized salt production by the Dutch Government

H I S T O R I C A L S I T E S D u t c h S a l t P r o d u c t i o n A r e a

GAS STATION

SHELL SOEPOMO

BUILT PROJECT 2023

DKI JAKARTA

This project entails the renovation of the existing Shell Gasoline Station, positioning it as the first flagship Shell establishment in Indonesia

This comprehensive renovation initiative includes the modernization of the gas station design, incorporating community-based elements

One stop bike rest area
filling experience
Comfortable

In the planning phase, Revit is employed as a tool to streamline the development of Detailed Engineering Design (DED) towards the tendering process

Building Plan

Building Elevation & Section Plan

As a renovation project for an existing structure, detailed documentation within the building is essential This process is expedited by utilizing Revit as a tool

Building Detail

Details are created with the specifications of the materials to be utilized

The fuel dispenser is represented as a Revit family in the drawing

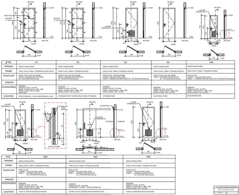
A comprehensive door and window schedule has been prepared to facilitate the tendering process

Supporting buildings are also designed in accordance with design standards set by Shell

Enhancing the service center to maximize convenience while retaining distinctive elements of the Shell’s brand

Transforming a conventional grocery store into a seamlessly integrated space that combines both a high-quality grocery store and a cafe

SCAN/CLICK

intip in/News Flagship
FOR DETAIL

EV CHARGING STATION

SHELL SOEPOMO

BUILT PROJECT 2023

DKI JAKARTA

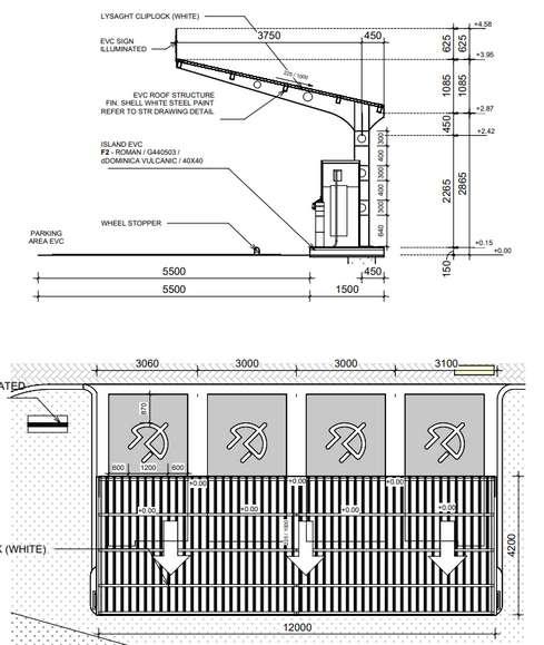
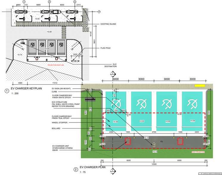
This project is an extension of Shell Soepomo flagship, featuring cutting-edge EV charging infrastructure designed for enhanced efficiency and environmental sustainability

The structure design help to reduce excessive use of material, while still considering the strength.

BIM TOOLS : REVIT

The design is crafted through collaborative efforts across various disciplines, resulting in drawings that support the Detailed Engineering Design (DED) process, subsequently serving as the tender documents for local contractors

BIM TOOLS : REVIT

Shell branding elements are still applied in accordance with standards The design has been thoughtfully crafted to fulfill the requirements for a comfortable car charging experience.

The EV charging project at the Shell fuel station on Jl Soepomo is currently a focal point for visitors Its deliberate front placement enhances visibility and attracts attention

intip in/EVNews
SCAN/CLICK

RESEARCH LAB.

COCA-COLA PASURUAN

ON-GOING PROJECT 2024

PASURUAN - EAST JAVA

The project involves the renovation of an existing laboratory that currently falls below established standards

Conformance to regulatory standards is achieved through the careful selection of specialized materials designed for laboratory work.

Additionally, floor and wall coatings are meticulously chosen to ensure safety within the laboratory environment.

The design prioritizes user activity patterns and hygiene levels, ranging from the most sterile areas to those with a lower sterile requirement Sterile areas are designed in such a way that they do not carry harmful particles out to other areas

The laboratory comprises four rooms, categorized according to varying levels of sterility: the quality check room, preparation room, incubation room, and micro-incubation room

The design of this entire area is tailored to accommodate the specific equipment requirements of each room, ensuring a seamless fit with the room size and the corresponding activities

Quality Check Room Preparation Room Incubation Room Micro Incubation Room

Shell Gas Station

Kebon Kawung - West Java

MULTI-SITES

ON-GOING & BUILT PROJECTS

ANOTHER SIMILAR PROJECT THAT HAS BEEN SUCCESSFULLY COMPLETED.

Shell Gas Station:

NTI Walikota Mustajab- SBY 1.

NTI Bukit Palma - SBY 2

3

4

5

NTI DR Semeru - Bogor

NTI Dramaga - Bogor

NTI Pasir Koja - Bandung

Shell EV Station:

1

Taman Anggrek BasementJakarta

Lobby Mall of IndonesiaJakarta 2

Shell EV Station Taman Anggrek Basement - Jakarta

MODEL GALLERY

COMBINATION OF SKILLFUL HAND AND 3D PRINTER

Mock-up models from several projects are used to give an overview of how the building looks It is a combination of high handicraft skills and 3D printed skills.

All of these models are selfmade with dedicated time and careful execution.

GALLERY MODEL-MAKING

Discover Architectural Portofolio from 2019-2022 https://intip.in/PortofolioFirstEdition
Architectural & Work Portfolio By Fatimah Gunawan All Rights Reserved +62 812 8735 1410

Turn static files into dynamic content formats.

Create a flipbook
Issuu converts static files into: digital portfolios, online yearbooks, online catalogs, digital photo albums and more. Sign up and create your flipbook.