Farnaz Sadeghi - Architecture Portfolio

Page 1


WORK EXPERIENCE

Aug 2024 - Current

Project Architect

Licensed Structural Engineers

Remote

Cultural, Retail, Multi-family, Single-family

- Managing drawings from start to completion

- Coordination with consultants

- Overseeing permitting revisions

Jul 2021 - Jul 2024

Associate Architect

BBA Architects

Chicago, IL

High-end single-family

- Producing SD/CD sets

- Construction administration

- Coordinating with consultants

- Client presentation/marketing materials

- Field-measuring

May 2020 - Aug 2020

Architectural Intern

Ozer Engineering

Memphis, TN

Single-family

- Producing Architectural/structural drawings

- Creating Revit template for office standards

2016-2017

Structural Engineer

Azarayin Consulting Engineers

Tehran, Iran

Large Public Library

- Design/analysis of steel/concrete structures

EDUCATION

2019-2021

Master of Architecture

University of Memphis Memphis, TN

2013-2016

M.Sc. in Civil Engineering

University of Tehran Tehran, Iran

2008-2013

B.Sc. in Civil Engineering

Iran University of Science and Technology

Tehran, Iran

MEMBERSHIP

2021

Tau Sigma Delta Honor Society

University of Memphis Chapter

2010-2012

Editorial board in «Cement and Concrete» monthly student magazine

School of Civil Engineering, IUST

2010-2011

Concrete Team

School of Civil Engineering, IUST

2010-2011

Student Science Community

School of Civil Engineering, IUST

CERTIFICATE

2018

Interior Architecture and Design

Iran Technical and Vocational Training Organization

2014

Architectural Design and Artistic Rendering

Seddigh Atelier

PROFICIENCY

Revit

Vectorworks

AutoCad

Sketchup

Lumion

3Dmax

Photoshop

InDesign

Lightroom

Office

FARNAZ SADEGHI

PROFESSIONAL WORK

Community Center Retrofit

San Jose, CA | Licensed Structural Engineers

Role: Project Architect

ACADEMIC WORK

Timeless Traditional

Winnetka, IL | BBA Architects

Role: Associate Architect

Mountain Retreat

Reno, NV | BBA Architects

Role: Associate Architect

Greystone Revival

Chicago, IL | BBA Architects

Role: Associate Architect

Architecture of Mindfulness

Memphis, TN | University of Memphis

Role: Graduate Student

The Dialouge

Memphis, TN | University of Memphis

Role: Graduate Student

Photography and Hand Drawing

Community Center Retrofit

Community Center

SanJose, CA | Aug 2024 - Feb 2025

Licensed Structural Engineers

Project Type: Renovation

Role: Project Architect

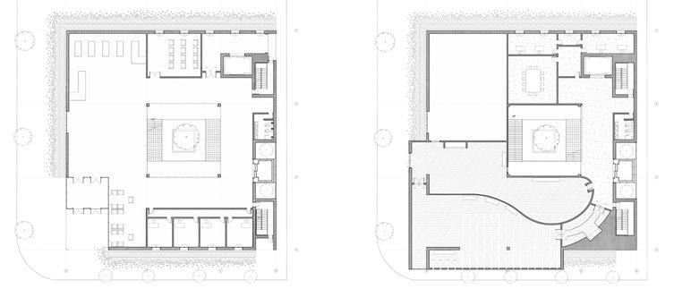
This project involved a complete renovation of the second floor of a multi-occupancy community center in San Jose, California. I was responsible for leading the team, which included managing drafters, coordinating with the client, and working closely with the permitting office to navigate regulatory challenges.

A significant hurdle was addressing the high occupant load, which caused the building area to exceed the maximum limits set by code requirements. To achieve compliance, we implemented fire-rated walls to separate occupancies effectively. Additionally, satisfying egress requirements presented another major challenge, requiring careful planning to ensure safe and efficient evacuation routes in accordance with building codes. This project demanded meticulous attention to detail and close collaboration with all stakeholders to meet both functional needs and regulatory standards.

HARRIS WAY

Timeless Traditional

Single Family High-end Custom Residence

Winnetka, IL | Feb 2022 - Mar 2023

BBA Architects

Project Type: New Construction

Role: Associate Architect

This luxurious Chicago North Shore residence is a custom-designed, new construction home that combines timeless charm with traditional details and features a generous backyard retreat. As a core member of the project team, I was responsible for producing approximately 80% of the drawings. My role included drafting comprehensive construction documents, covering architectural, electrical, plumbing systems, and full interior set, while collaborating with consultants across multiple disciplines—civil, structural, landscape, mechanical, and interior design.I also created client presentation materials such as 3D models and renderings and participated in select client meetings to help align design objectives. This complex project required seamless coordination between internal team members and external consultants, resulting in a meticulously crafted design that balances traditional elegance with functional excellence.

COVERED PATIO 3D VIEW

KITCHEN INTERIOR ELEVATION

PRIMARY BED INTERIOR ELEVATION

PRIMARY BATH INTERIOR ELEVATION

KITCHEN 3D VIEW
KITCHEN 3D VIEW

Mountain Retreat

Single Family High-end Custom Residence

Reno, NV | April 2023 - Mar 2024

BBA Architects

Project Type: New Construction

Role: Associate Architect

This modern transitional-style custom residence is a new construction project designed to maximize its stunning views of the Nevada mountains. A significant aspect of the design process was the site analysis, as the client requested specific mountain vistas to be visible from particular rooms. The building’s placement on the site and the orientation of key spaces were carefully planned to achieve these goals.

A significant challenge during the project was ensuring the design met the restrictive standards set by the HOA, which required careful attention to detail to satisfy their guidelines. As a key member of the production team, I was responsible for producing the entire interior design set and contributing to the construction drawings. I also participated in select client meetings and created multiple design sketches and renderings to help envision key spaces and highlight their connection to the surrounding views. This project required meticulous attention to detail and a strong focus on integrating the architecture with the natural landscape, resulting in a home that seamlessly balances functionality, style, and a deep connection to its environment.

FRONT

COVERED PORCH PERSPECTIVE

Greystone Revival

Single Family High-end Custom Residence

Chicago, IL | Feb 2022 - Jul 2024

BBA Architects

Project Type: Renovation + Addition

Role: Associate Architect

This was a significant renovation project that involved preserving the historic character of the home while updating and expanding certain areas. Key elements of the original structure were retained to maintain its charm, while some spaces underwent gut renovations, complemented by the construction of a new addition. One of the major design challenges was that portions of the existing 1980s addition slated for alteration did not comply with zoning regulations. This necessitated a lengthy zoning relief application process, including hearings before the Zoning Board of Appeals.

Another key aspect of the project was preserving as many historic elements as possible to qualify for a tax freeze. I was responsible for field measuring the existing house and producing 90% of the construction documents. Additionally, I coordinated with consultants in various areas, including landscape, structural, and interior design.

In the final phase of the project, I was involved in construction administration. This included weekly site visits to ensure the work was being carried out according to our drawings, as well as issuing several construction sketches and bulletins to address any issues or modifications needed on-site.

NEIGHBORING BUILDING

BUILDING

ALTERATION

NEIGHBORING BUILDING

SIDE - DURING CONSTRUCTION

KITCHEN & FAMILY ROOM INTERIORS

KITCHEN INTERIORS

KITCHEN
KITCHEN

Architecture of Mindfulness

Memphis Museum of Five Senses

Master Thesis Project

Memphis, TN | February 2021

University of Memphis

Today’s technological world is causing further separation between the mind and body, resulting in physiological and psychological issues. Mindfulness blurs this duality and helps people to be aware of their present life. This thesis explores the idea of presence and how architecture can play a role in creating moments of awareness. It investigates the ways architecture can engage the five senses through form, material, light and shadow, and connection to nature. The site is located in a dense part of downtown Memphis on Court Avenue between Main and Front Streets.

This is just a general insight of the ideas in this thesis. The entirety and deeper explanations of the ideas can be explored in the thesis book, which can be accessed by request.

Riverfront cobblestone creates tactile wall

Railroad tie pattern on the concrete facade

Concrete used as the main material

Concrete with Railroad Tie Pattern Elevation Key for Material Placement

Cobblestone

Vision Gallery

Sound Gallery

Touch Gallery

Smell Gallery

Taste Gallery

Materiality goes from darker gray at the bottom to the lighter one at the top (Darkness to Light: Mindfulness)
Vertical Circulation at the center
Basic form based on the site
Galleries are expressed in the exterior through volume extrusions
Galleries have sectional relationships
Exterior Materiality

The journey starts with a transitional room to remove the sense, continues with the main space of the gallery for the particular sense, then connects the galleries with a multi-sensory vertical circulation experience. Below shows an example of this sequential experience in vision gallery.

2. Gallery (Immersing in the sense)
1. Transition (Removing the sense)
3. Vertical Circulation (Multi-sensory experience)
Staircase
Elevator
1. Vision Transition (Low-lit Room)
2. Vision Gallery(Time Perception through light awareness)
3. Multi-Sensory Staircase

One Sense and Indicating Relationship with

Although each gallery in the museum emphasizes one particular sense over the others, the relationship between that sense with other ones is mandatory in body sensory awareness. The sensorial relationships between the galleries are presented in the sections.

Periscope Wall
Touching the Vision Gallery
Distant View to Touch Gallery
Distant Vision Room, Vision Gallery
Black Box Theater, Sound Gallery
Sun Rain Air Flower aroma travels from smell gallery to cafe
Clay Exhibition, Touch Gallery
Burnt Wood Smell Cone, Smell Gallery
Smell-Taste Connection, Taste Gallery

The Dialogue

River Park Highschool and Water Institute

Master 1st Semester

December 2019

University of Memphis

The project is a career education high school and a fresh water institute serving as an exhibition space regarding the river studies. The project is about enhancing the dialogue in the learning environment by encouraging interactions between students and teachers as well as students together. For doing so, the whole academic program is considered in a one-story building, thus creating an interactive sharing environment. Additionally, the highschool features a learning modules including classrooms and labs that share the same courtyard. The highschool encourages the interaction between inside and outside by offering outdoor and indoor courtyards that connect spaces together.

The site is located in Mud Island River Park in downtown Memphis. The existing buildings in the site include a museum and an amphitheater. In this project, the highschool is located at the existing location of the museum, and is connected to the amphitheater so that the school can take the advantage of the existing art performance area.

Interior Courtyard
Memphis, TN
Chicago, IL
Yerevan, Armenia

Photography and Hand Drawing

Photography and hand drawing have been my life passion for many years. These are some examples of my artwork.

Turn static files into dynamic content formats.

Create a flipbook
Issuu converts static files into: digital portfolios, online yearbooks, online catalogs, digital photo albums and more. Sign up and create your flipbook.