My Portfolio selected works

Page 1

PORTFOLIO

Selected works 2016-2024

Farhaneh Haririnia

About Me

My name is Farhaneh and I am studying master of architecture and urban design in Politecnico di Milano .

I am enthusiastic about architecture and creating spaces. My passion for design resides in how designing an Urban Structure can be efficent and effective for living.

FARHANEH

Farhaneh.haririnia@mail.polimi.it

EDUCATION

2023 - Current Politecnico di Milano

Master of Architecture and Urban desing (since September)

2021 - 2023 Palette Academy Illustrator /photoshop/Rhino

2018 - 2019 Tehran Institute of Technologhy ( 3D Max and vray)

2014 - 2018 Islamic Azad University

Skills

Software

Bachelor of Architectural Engineering

AutoCad Rhinoceros Revit 3D Max V-Ray

Photoshop Indesign Illustator Microsoft Office

Languages PERSIAN ENGLISH FLUENT NATIVE

Analoge

Hand Crafting|Model Making|Sketching|Drawing|Painting

Soft Skills Teamwork

Communication

Creativity Adaptability Time-management

Course experience

Professors: Grazia Concilio, Patrizia Scrugli

Construction and Sustainability studio

Architectural design studio

Professors: Matteo Clementi, Erpinio Labrozzi

Professors: Pallini Cristina, Korolija Aleksa

HARIRINIA Iranian Female March,1996
Milan Italy
Nationality Gender Email Birth
Urban design studio
Create new urban space underneath one of the main urban highways Create work space with multi-functions spaces . Regenerate Colonna castel in Genazzano Advanced Advanced Advanced Advanced Advanced Advanced Advanced Intermediate Intermediate
Cliff Hotel CONTENS Villa Apartment Local Market Milan Oasis Time Cultural Hub 05 12 18 22 28 34 18

Cultural Hub

This land is located in an area of Tehran that represents the history and character of an important part of Tehran (Arbab Jamshid area). From the type and color of the material to the mass and void spaces of the city, I researched this location intently. Surrounding the land by residential uses has caused the lack of a cultural space with educational and recreational classes in this area.

5

The project land, which is connected with urban intersections, is planned as a space and public use (cafe, restaurant), which makes the people of the neighborhood and users enjoy the ground floor in interaction with each other. In the first and second floors, we designed spaces that meet today’s needs for young people and even the elderly, while also strengthening and representing the lost culture.

The form and shape of the building is designed according to the proportions of the city’s mass and void spaces, in which you can see the representation of the shapes in the urban fabric. Also, to match more with the texture of the brick material used on the ground floor, it is coordinated with the context’s building material.

SOUTH ELEVATION

6 GSPublisherVersion 0.0.100.100 7 8 9 10 ±0.00 Ground Floor +4.00 First Floor +8.00 Second Floor +12.00 Roof Top

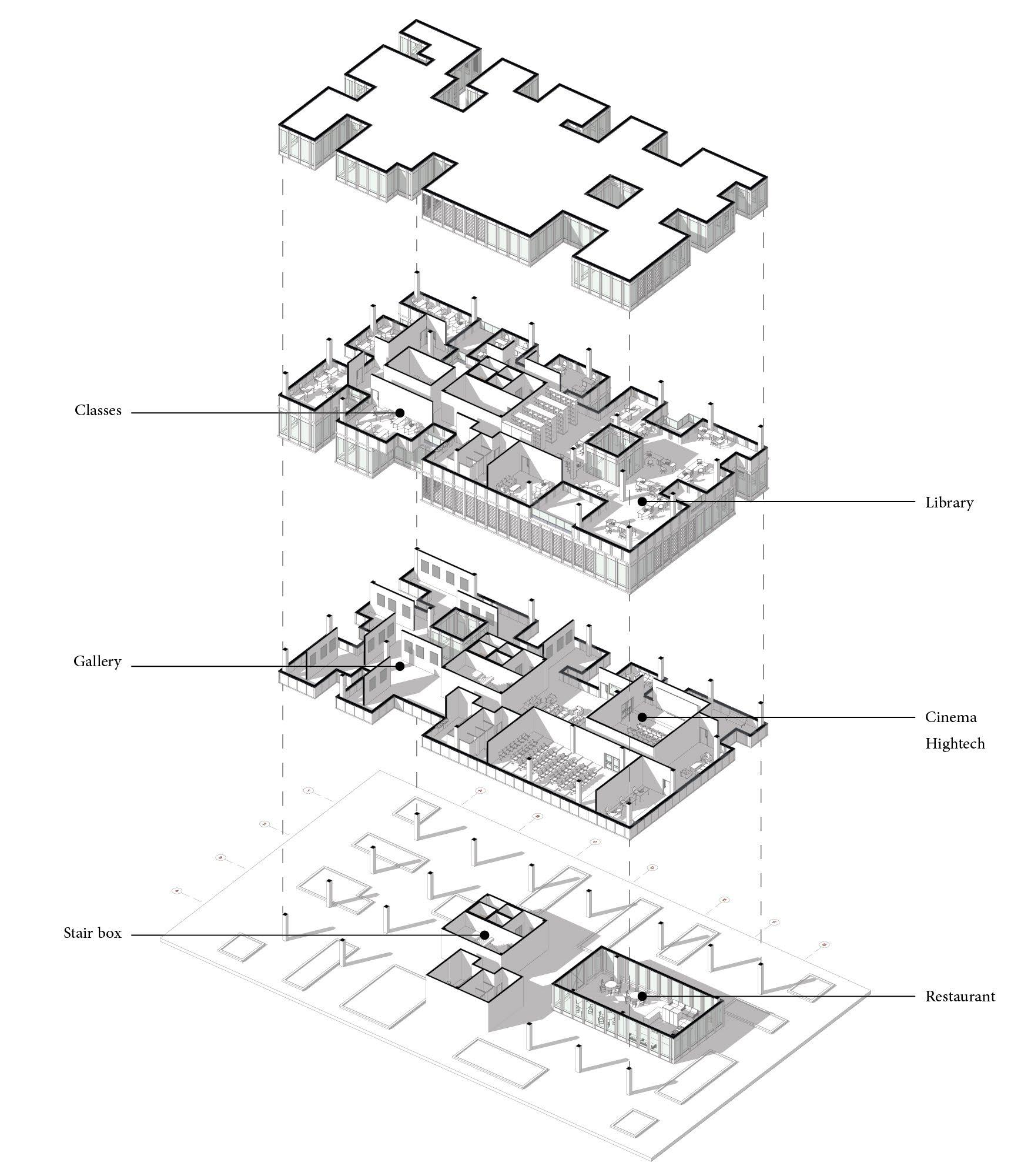
EXPLODED DIAGRAM

In this project, all programs are organised in four floors. A large proportion of the ground floor is planned for public activities.

7
8
9
Second Floor First Floor A B C D E F G 1 2 3 4 1 5 8 10 7.00 7.00 7.00 8.80 6.06 6.14 6.96 7.00 7.00 42.00 +8.00 +8.00 +8.00 +8.00 +8.00 +8.00 +8.00 +8.00 +8.00 A-A A-A B-B B-B A B C D E F G 1 2 3 4 1 5 7.00 7.00 7.00 8.80 6.06 6.14 42.00 6.96 7.00 7.00 20.96 +4.00 +4.00 +4.00 +4.00 +4.40 +4.70 +4.00 +4.00 A-A B-B B-B
Interior view-Library Interior view-Gallery

SOUTH ELEVATION

10 GSPublisherVersion 0.0.100.100 19R 0.21 1 2 4 6 8 9 10 A B C D E F G 1 2 3 4 6.96 7.00 7.00 20.96 42.00 7.00 7.00 7.00 8.80 6.06 6.14 ±0.00 ±0.00 ±0.00 ±0.00 A-A A-A B-B B-B
Ground Floor

Villa Apartment

In Tehran, common land for building residential buildings in the city has turned into a common and repetitive format.In this case,means that this structure would be surrounded by two residential buildings that have acess to the street from one or two parts. The idea of this project is The attempt is to change the repetitive structures of residential buildings and reach a new design.

12

As a result, the project is divided into two main parts and one of the staircases in the front of the building is designed as a collective and social space so that it can have a different experience of the apartment. Create current ones.

13
14 Ground floor First floor Second floor Third floor Fourth floor 14G 0.30 A C D 1 2 3 4 B A-A A-A B-B B-B 15R 0.20 14G 0.30 A C D 1 2 3 4 B Void A-A A-A B-B B-B 15R 0.20 14G 0.30 12 A C D 1 2 3 4 B +6.30 A-A A-A B-B B-B Void 15R 0.20 14G 0.30 A C D 1 2 3 4 B A-A A-A B-B B-B +9.30 Void A C D 1 2 3 4 B A-A A-A B-B B-B
15 4 3 2 1 3.20 4.25 4.55 12.00
3D SECTION A-A SECTION

The typology of this form of structure refers to the villa buildings that were designed in the past in Tehran, and this itself evokes the feeling of living in a villa in the city today.

STREET VIEW

17 +0.300 0 Ground Floor +3.300 1 First Floor +6.300 2 Second Floor +9.300 3 Third floor +12.300 4 Fourth floor +15.300 5 First Roof top +18.300 6 Second Roof top +0.300 0 Ground Floor +3.300 1 First Floor +6.300 2 Second Floor +9.300 3 Third floor +12.300 4 Fourth floor +15.300 5 First Roof top +18.300 6 Second Roof top
South Elevetaion North Elevation

Cliff Hotel

The coast of the southern region of Iran (Chabahar) has brought one of the most pristine views to the sea built within a rock form. We took this opportunity to design rooms amongst the rocks in the most peaceful area of open views. The ground floor, which is considered the highest level in this project, is dedicated to the pool and public space with a 360-degree view. And on the two lower floors, we placed rooms that we have to go down 30 to 55 steps to reach. All of this works leads to a sea view that provides a much needed cozy atmosphere.

20
Section
+3.00 +0.00 3.00 11.80 23.00
Ground Floor View
A-A
21
Ground floor
Top View
First Basement Level Second Basement Level
Facade View

Local Market

The southern part of Tehran (Shahre-rey) has an area with fertile lands suitable for agriculture. A large number of farmers work in this area and produce part of the city’s primary food.

EXPLODED DIAGRAM

The facades and plan are divided by Grids. In this project, all programs are organised in four floors.

23

Unfortunately, due to the inefficient decisions of the government, these farmers cannot sell their products directly to the people of the city, as a result, they earn little income with the great effort they spend on growing and harvesting the products.

Finally, it was decided to design a project that can be a solution for the direct supply and sale of raw materials by the farmers themselves to the people of the city, whose budget is provided by all the farmers. In this project, the staircase with two different characters provides

users with the experience of different views of the project and the surrounding area. The form and plan of the project consists of a simple square grid, and for a better view for the users, terraces have been installed towards the agricultural lands.

This cost-effective project will be built with local materials and labor forces. In this complex, we have organized the needs of the farmers, including the warehouse, the place of sale, as well as the uses that will make people more welcome to visit this Local Market.

24
25
1. Cultivation Gorunds 4. Divided by Grid and Structure 2. Full Solid 5. Unload some part of Facade 3. Extrude the main part 6. Adding figurative Stairs and Finall project
26
Street View
27
Interior View
TIME

The project aims to provide work and fun activities at the same time with flexibility and playfulness. Time as a natural fact is sensed as it changes seasons and activities; a case in point might be that in September a tree is planted and in another season the fruits of the tree are harvested. Throughout the project, the idea is to reveal a kind of engagement between space and time, a kind of spatial freedom within nature and its uninterruptedness that is combined with the movement of the spatial envelope. Fertile objects as independent spaces with different functions are responsible for responding to the users and workers and the events in SoulFood ForestFarms.

29
|Design Year: 2024
|Students: Ali Nazari, Farhaneh Haririnia |Professors: Matteo Clementi, Erpinio Labrozzi|Status: Academic, Politecnico di Milano
3 7m Scale: 1:200
TIME
30
|Design Year: 2024
|Students: Ali Nazari, Farhaneh Haririnia |Professors: Matteo Clementi, Erpinio Labrozzi|Status: Academic, Politecnico di Milano
31 1 4 2 5 3 6 7 8 9
Envelope Diagram
Year:
|Students: Ali Nazari, Farhaneh Haririnia |Professors: Matteo Clementi, Erpinio Labrozzi|Status: Academic, Politecnico di Milano
|Design
2024e
32 North Elevation
South Elevation |Students: Ali Nazari, Farhaneh Haririnia |Professors: Matteo Clementi, Erpinio Labrozzi|Status: Academic, Politecnico di Milano |Design Year: 2024 |Students: Ali Nazari, Farhaneh Haririnia |Professors: Matteo Clementi, Erpinio Labrozzi|Status: Academic, Politecnico di Milano |Design Year: 2024

MILAN OASIS

Under the highway, A vibrant oasis blooms

The project area analyzed offers the opportunity to create a new urban space underneath one of the main urban highways connecting the city of Milan, namely the East Tangeziale.

This road axis is very important from a mobility point of view as it directly connects at an upper level the city and meets at a lower level Viale Corelli, which is a trafficated street.

This vast infrastructure that serves as a link for traffic management, however, at the same time presents a fragility in that it divides into two portions, east and west respectively, one of the main parks of Milan: Grande Parco Forlanini.

It is therefore possible to consider this structure in a metaphorical sense as a double helix of architecture,as it creates divisions and connections both necessary to create a dynamic space.

This huge area currently, is in a state of abandonment and degradation and is inhabited by homeless people and migrants.

Main Concept

Our proposal reflect the idea of using ‘MILANOASIS’ as a new attraction centre for users around Parco Forlanini and city of Milan. We focused our research on the value of sports & events both linked together in a unique exhilarating project.

1 / Sports play a crucial role in the development of the society, promoting physical health, teamwork and discipline, and it also contribute to built a community providing the social interaction of peole creating cultural exchanges.

2 / Events achieve specific objectives, involving a gathering of people. Events can vary widely in nature and purpose ranging from social and cultural meetings, conferences and performances. They serve as platforms for networking, education, sharing ideas contributing to create a vibrancy between the community.

34
|Status: Academic, Politecnico di Milano |Design Year: 2024
SECTION VIEWS ISOMETRIC VIEWS 4 Mt. 4 Mt. 6 Mt. 7 Mt. 7 Mt. 7 Mt. AD-FORUM

|Status: Academic, Politecnico

AMUSEMENT PLAY

35 SECTION VIEWS ISOMETRIC VIEWS 7 Mt. 0.80 Mt. 7 Mt. 7 Mt. 5 Mt.
7 Mt. 7 Mt. 1,5 Mt.
SECTION VIEWS
di
|Design Year: 2024
Milano

SPORT

PUBLIC SERVICE

36 7 Mt. 13 Mt. 7 Mt. 7 Mt. 7 Mt. 7 Mt. 7 Mt. 2 Mt. 1,5 Mt.
di Milano |Design Year: 2024
Politecnico
1: 2000 LEGEND 1. Bike Station / Rental 2. Ad-Forum 4. ADV zone 3. Infopoint
12.
11.
13.
14.
16.
15.
18.
Masterplan Scale
5.
Exhibition Area
6.
Meet me at the Ropes
8.
Floor Games
7.
Table Games/ Chess
9.
Dog Park
10.
Archipelago of Concerts Gym Classes Climbing Area Recharging Station Publick Talk Bike Park Swing Zone
17.
Outdoor Training Area / Gym Water Garden
19.
Sand Pool
20.
Workshop area 21. Interactive Walls 22. Trampoline Forest
|Design Year: 2024
|Students: Farhaneh Haririnia, Chiara Ronchis, Charbel Abou Chakra |Professors: Grazia Concilio, Patrizia Scrugli |Status: Academic, Politecnico di Milano

TIMELINE

|Students: Farhaneh Haririnia, Chiara Ronchis, Charbel Abou Chakra |Professors: Grazia Concilio, Patrizia Scrugli |Status: Academic, Politecnico di Milano |Design Year: 2024

VISION

39
|Students: Farhaneh Haririnia, Chiara Ronchis, Charbel Abou Chakra |Professors: Grazia Concilio, Patrizia Scrugli |Status: Academic, Politecnico di Milano |Design Year: 2024
40
|Students: Farhaneh Haririnia, Chiara Ronchis, Charbel Abou Chakra |Professors: Grazia Concilio, Patrizia Scrugli |Status: Academic, Politecnico di Milano |Design Year: 2024
41
|Students: Farhaneh Haririnia, Chiara Ronchis, Charbel Abou Chakra |Professors: Grazia Concilio, Patrizia Scrugli |Status: Academic, Politecnico di Milano |Design Year: 2024
42
|Students: Farhaneh Haririnia, Chiara Ronchis, Charbel Abou Chakra |Professors: Grazia Concilio, Patrizia Scrugli |Status: Academic, Politecnico di Milano |Design Year: 2024
43
|Students: Farhaneh Haririnia, Chiara Ronchis, Charbel Abou Chakra |Professors: Grazia Concilio, Patrizia Scrugli |Status: Academic, Politecnico di Milano |Design Year: 2024

urban furniture and lexicon

44 Temporary Stage Outdoor Gym Outdoor Training area Infopoint Outdoor Gym Equipment Fitness Station ADV Screen ADV Room Trampoline Kiosk Bycicle Parking Digital Panel Water Fountain
stu
lights
Seating
Bollard
di Milano |Design Year: 2024
|Students: Farhaneh Haririnia, Chiara Ronchis, Charbel Abou Chakra |Professors: Grazia Concilio, Patrizia Scrugli |Status: Academic, Politecnico

Farhaneh.haririnia@mail.polimi.it

Farhaneh Haririnia

Turn static files into dynamic content formats.

Create a flipbook
Issuu converts static files into: digital portfolios, online yearbooks, online catalogs, digital photo albums and more. Sign up and create your flipbook.
My Portfolio selected works by farhaneharirinia - Issuu