PORTOFOLIO TEKNIK SIPIL


![]()


NamasayaFarhanIbrahimAzis
Saya merupakan lulusan S1 Teknik Sipil di Universitas Muhammadiyah Yogyakarta. Portofolio ini saya susun untuk membagikan pengalaman dan pencapaian yang telahsayaperoleh.
Selama 4 bulan magang di PT SIER saya mendapatkan tanggung jawab yang diberikan oleh mentor yaitu Perbaikan lapangansepakboladanRenovasigedungperkantoran.
Surabaya, Indonesia
ANGGOTA TIM
Tuaji
Wimas Adhyatma
Yahya
Farhan Ibrahim Azis
PELAKSANAAN MAGANG
Agustus 2023 - Desember 2023

PT. Surabaya Industrial Estate Rungkut
Renovasi gedung perkantoran khususnya di lantai 1 ini dalam rangka untuk membuat gedung yang saat ini masih terisi dengan ‘ex-tenant’ yang sudah tidak dipakai dan ingin dirubah menjadi ‘open space’ atau ‘ballroom’ yang digunakan untuk acara-acara besar.
LOKASI
Surabaya, Indonesia
Kantor
TIPOLOGI LUAS AREA RENOVASI ±




Gambar ini merupakan kondisi eksisting lantai 1 yang

dimana terdiri dari ruang ‘ex-tenant’ yang sudah tidak dipakaisejakbeberapatahunsilam.



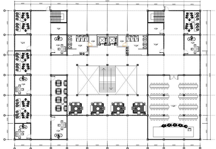
Gambar ini merupakan rencana desain untuk kantor PT SIER yang terletak di lantai 1. Ruangan direncanakan menggunakan konsep ' open space ' atau disesuaikan dengankebutuhanyangdirencanakandimasadepan.


Rak besi ini digunakan sebagai tempat untuk ‘AC Outdoor’ karena posisi AC Outdoor eksisting sudah menggangguestetikapadaarealuargedung.
Ruangan kecil yang bisa difungsikan sebagai ruang hias pengantin alih-alih digunakan sebagai pesta pernikahan ataupun alternatif ruangan yang bisa duganakanuntukacara-acaratertentu.









DenahInstalasiAC


DetailKusen


BoxPanelListrik






RencanaKerja&Syarat-syaratyangdigunakan
sebagai pedoman atau petunjuk teknis pada
saatpelaksanaanproyek
Hasilrealisasidaripelaksanaanproyek.



PT. Surabaya Industrial Estate Rungkut
Perbaikan lapangan sepak bola ini dalam rangka untuk memperbaiki kondisi tiang galvanis yang sudah rusak pada sepanjang sisi lapangan.
LOKASI Surabaya, Indonesia
Mini Stadion




Proyek ini hadir melalui relasi mulut ke mulut hingga saya dipercaya untukmendesainrumahtinggalyangberlokasidiBekasi.
LOKASI
Bekasi, Indonesia
TIPOLOGI TAHUN
Rumah Tinggal








Proyek ini merupakan hasil dari pengalaman saya dalam menganalisisdanmerancangstrukturgedungmenggunakanETABS. Bangunan kantor yang dianalisis ini memiliki 4 lantai utama, mulai dari Lantai Dasar hingga Lantai Atap, dengan tambahan Atap Tanggauntukaksesteknis.
Lantai)
JENIS STRUKTUR Beton Bertulang













DiagramMomenPada
KolomdanBalok

DiagramKonturMomen


LuasBajaTulanganyang Dibutuhkan

Pada kesempatan kali ini, saya diberi tanggung jawab untuk mengawasi pekerjaan konstruksi pada proyek pembangunan gedungasramapesantren.
LOKASI
Jawa Barat, Indonesia
TIPOLOGI
Bangunan Pendidikan
JUMLAH LANTAI
G+3 (4 Lantai)
JENIS STRUKTUR
Beton Bertulang
TAHUN 2024





Tahapan Konstruksi: Begisting, Pembesian, dan Pengecoran pada Kolom, Balok,danPelatLantai



TahapanKonstruksi:Begisting,Pembesian,danPengecoranpadaTangga





