













































The
it
be
nolli plans are of the
that the surrounding
on the
and roads,
mainly catered for
of the
The
In the
from the
has

both
facade of the
on the
and south of the
site and proposed. Based on the
is mainly
To the South of
immediate to the
are
A walkway can be

and
nolli
from
next to the
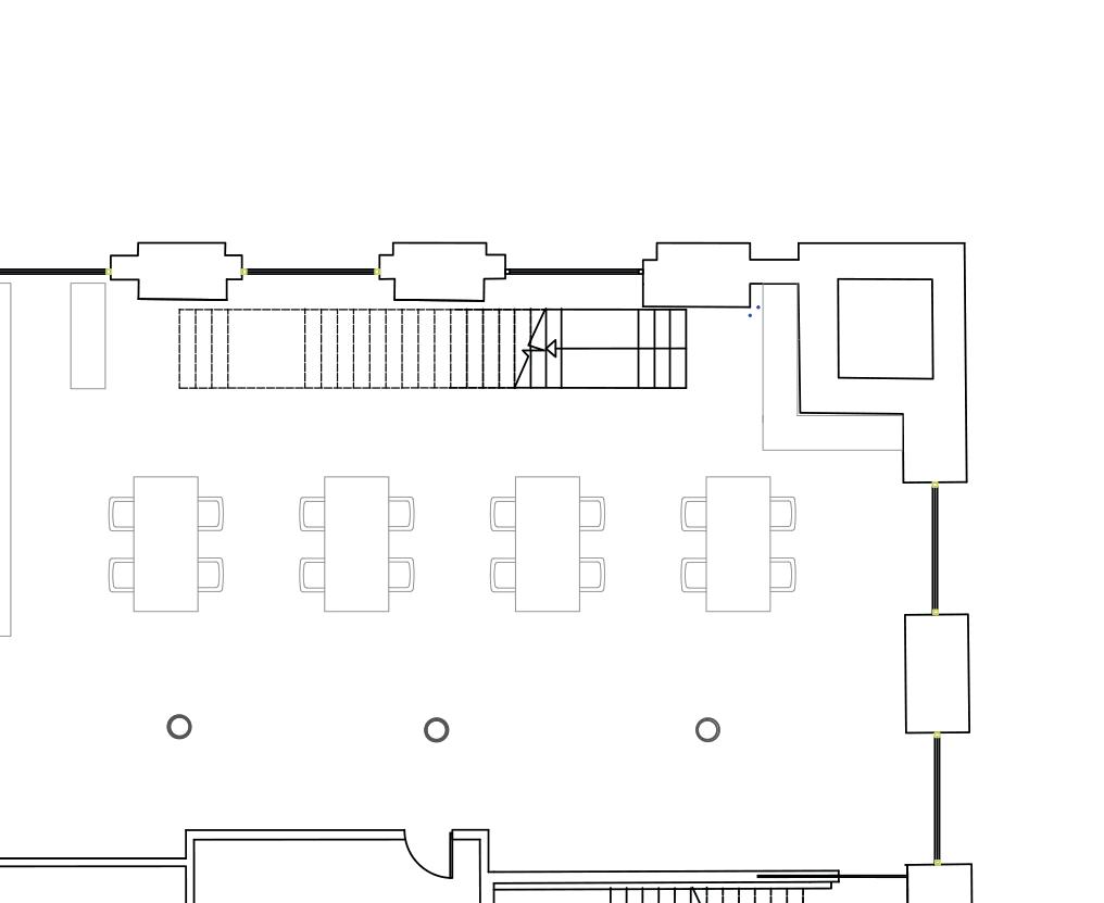
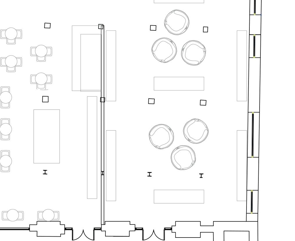
Soapworks, where few pedestrian flow can be observed. This area has strong potential to be used for urban activites, and we decided to activate the space and make it more welcoming for locals. Ultimately, the poor connectivity within the site area and lack of public spaces results in a need for more urban realms, meeting and relaxation areas for the public. Most of the area in Bristol, particularly to the North of this site, such as St Jude’s are catered to industrial, commercial and residential uses, resulting in the disconnect in these spaces. Our new urban strategy involves retroffiting the existing Old Soapworks building into a public library, most importantly, the ground floor to act as an extended urban pathway or street. We decided to introduce shopping and eating areas along the historic facade of the building, inviting urban life. The Old Soapworks is a historic building and icon of the city. We hope to welcome visitors through this scheme, allowing them to appreciate the beauty of the building, while bringing them together. Through creating an interior urban street which is accessible from the East and West entrance of the building, we were able to connect the two initially seperate urban areas on the two opposing sides of the building. This allows us to address the disconnection prevalent in the area and city. In terms of the landscaping, we decide to plant a few trees within close proximity to the building, acting as a shading device, particularly during the summer. Through placing chairs and tables around the landscaping, we are able to further invite locals to the site and enjoy the building. We imagine the landscaping to the west of the building to be activated with markets and stalls, as well as adding a long canopy to the entrance to form an urban street. This promotes life in the city and area within the site. Our site















































































































