Farah Portfolio 2025

Page 1


PORTFOLIO

ARCHITECTURE

FARAH I. KHALEEL

My passion for architecture concentrates on conception, inspiration, and creating a sense of place. I believe that there is a relationship between spaces and their occupants, and we- as an architect and designers - should play the main role in creating that experience; thus, why not make it a warm, and unforgettable one? I begin a journey in each of my designs to inspirational human experience.

MArch – Minor in Interior Design, Iowa State University. 2023

B. Sc. Architectural Engineering, Applied Science University. 2013

Contact: Farahi.khaleel@gmail.com

• HOSPITALITY + INNOVATION : NASA -STELLAR HOTEL

• WORKPLACE + ENTERTAINMENT : SEATTLE SELECTIVE CITY

• MIXED-USE: E 38 ROOT BUILDING

• COMMUNITY: LSI IMMIGRANTS WELCOMINGS CENTER

• CULTURAL: PERFORMING ART CENTER

• LANDSCAPE: ABDOUN PUBLIC PARK

ACADEMIC PROFESSIONAL

ACADEMIC

NASA’S INNOVATION MISSION - STELLAR HOTEL

HOSPITALITY + INNOVATION INTERDISCIPLINARY STUDO ORLANDO, FL

The Stellar project, recognized with a prestigious international design award Silver Prize in hospitality architecture design, the project is part of NASA’s innovative mission through design at the Kennedy Space Center. The Hotel is a key component of a hospitality and learning complex designed to provide a comprehensive visitor experience. The complex includes the Helios Hotel, Luna movable learning unit, and Asteria multi-sensory museum. My role included leading the architectural design, urban design, landscaping, and museum design. The team successfully collaborated on interior and furniture design, as well as print and corporate identity.

Stellar design recognized with 2023 International Design Awards. Two sliver prize prizes in hospitality and print identity and one honorable mention for exhibit design.

Team partners: Carley Hagan, Megan Harms, Ashtyn Hutcheson, Mia Marco, John Marquis.

Instructor: Mike Ford, Andrea Quam, and Pete Evans,

Inspired by planetary orbits, the design concept symbolizes the solar system with forms moving around a central ‘sun.’ Height and orientation harmonize with the Kennedy Space Center complex and respect the urban context.

MAIN ENTRANCE HELIOS + ASTERIA
THE POOL

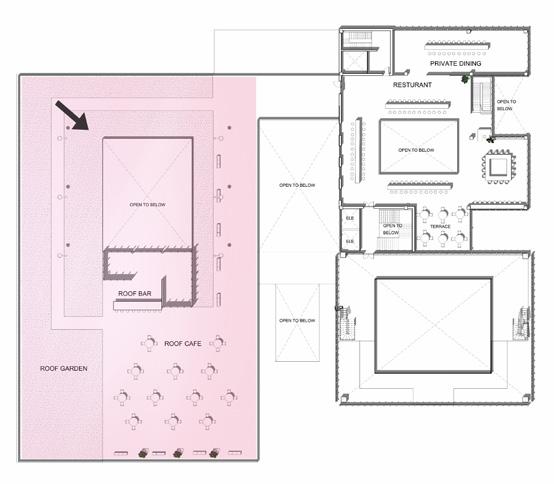
SEATTLE SELECTED CITY

WORKPLACE + ENTERTAINMENT ARCHITECTURAL DESGIN VII SEATTLE, WA

This studio challenged us to create innovative typological spaces by blending office and entertainment facilities, seemingly antithetical concepts. Our proposal, “Seattle: Reflected,” reimagines the workplace by integrating an immersive art exhibition that showcases Seattle’s nature, art, events, and future through cutting-edge technology. Visitors can experience Seattle in a commercial context and gain insight into the creation of these immersive works through factory/lab tours.

The building comprises three primary components: office spaces, exhibition areas (featuring four main exhibitions), and a public valley with a restaurant and retail store. Bridges seamlessly connect the office spaces with the exhibitions, fostering interaction and collaboration.

Team partner: Faiz Abbasi

Instructor: Bosuk Hur

THE FACTORY/LAB

The basement contains the Factory, which has space to experiment with projections, and the private office space is on levels 2 and 3; the Factory has visual aces the public valley and the central plaza/ entrance in the ground level.

The public valley serves as the primary access from the plaza to the exhibitions, integrating the office with an interactive screen for public engagement and providing visual access to the factory

PUBLIC VALLEY

ROOF GARDEN

The roof garden, open to the public via the restaurant, offers seating, ocean views, and an external experience of the Cube with its immersive screen.

E 38 ROOT

MIXES-USED

ZERO-NET STUDIO MINNEAPOLISE , MN

Design concept :

Inspired by the E38 Street community’s need for ritual healing and justice, the design aims to create an embracing environment for all ethnicities and backgrounds. The space is intentionally designed to maximize natural light, fresh air, and green elements, fostering a deep sense of connection and belonging

Instructors : Ulrike Pass , Chengde Wu Team : Sepideh Shanemati

This building’s design emphasizes a connection to nature and community. Symbolic ‘plant roots’ shade the central atrium, creating a continuous, immersive experience. The building integrates local elements like the market and a restaurant, and respects the surrounding urban scale. Diverse housing options and communal spaces, including a community hall and rooftop garden, foster interaction and engagement between residents and the wider neighborhood.

PORTLAND AVE.
FRONT VIEW
WEST ELEVATION
ATRIUM

PLANS

First Floor: Atrium

Commercial: - Market, Restau-

rant

Community hall

Second Floor:

Residential units

Third Floor:

Roof garden: farming indoor garden for unit users.

Fourth Floor:

Residential units

Fifth Floor:

Residential units

FIFTH FLOOR
FOURTH FLOOR
THIRD FLOOR

DAYLIGHT:

GLARE:
Wood
Concrete

Baseline: 193kWh/m2

77,055.88kWh/m2

Site EUI: 76kWh/m2

Natural Ventation: Cross ventaition single sided.

8.7 % natural ventilaton cooling.

Sustainability was a primary design focus. The south-facing entrance maximizes daylight, with shading devices reducing glare. Walls and roofs are thermally insulated for Minneapolis winters. North-side residential units are well-lit. Solar panels heat water. The structure utilizes lightweight CLT with concrete and wood finishes. Glare is further reduced by shading devices and opaque glass, achieving 68% daylighting during occupied hours.

Vertical shading devices
Water: Site collect about 17753.76 Gallon from rain and snow

OVERVIEW:

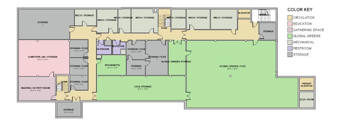
Greater Des Moines Welcoming Center (For Refegees and Imegrants) in partnership with the City of Des Moines, and Polk County.

PROJECT GOALS:

• Give LSI the tools to feel comfortable & confident working with designers going forward.

• Provide/help navigate to a solution that will meet your short-term and long-term needs.

Instructor: Juile Stevens Team: Javier Rodriguez

Hannah Larsen

LSI SITE AND BUILDING PROPOSAL

COMMUNITY OPTIONAL STUDIO DES MONIES, IOWA

Existing Site & Buildings:

Site Proposal Phase1a,1b, and 2 .

All Phases Plans:

• Renovate Drake building

• Renovation of existing Drake building

• Move out of LSI building into Drake

• Demolish LSI building

• Site work at front and back of site - addition of farmer’s market and add a new parking lot

• Construct and expand into a new building

Site Proposal Phase 2

Key contributions to the project include: proposing and designing a building addition with biophilic interior spaces emphasizing natural light and openness to promote well-being for immigrants and refugees; suggesting narrative artwork (murals) for the entrance; designing the parking lot/site rear; and providing additional design and team support.

MAIN ENTRANCE
COURTYARD
FRONT ELEVATION
FARMER’S MARKET SPACE

BUILDING PROPOSAL PHASE 2: PLANS

CAFE

PERFORMING ART CENTER

CULTURAL GRADUATION PROJECT AMMAN, JORDAN

Design Concept:

The formal reference of the design concept for the building took from the Sol key, one of the three forms of clefs (musical symbol) used to indicate the pitch of written notes. The curved strips that continued to cover the building from the exterior form to the interior spaces indicate musical waves’ movement. The project would be a cultural landmark in Amman, inspires and offers its visitors a unique experience by its curved shape.

Plans

• Basement Floor

- Theater

- Audience zone

• Ground Floor

- Main Entrance

- Audience zone

• First Floor

- Educational zone

• Second Floor

- Educational zone

The building locates in one of the most lively districts in Amman. The building’s site is characterized by steep hills, which, in turn, served its functionality in some way.

The building consists of three main zones the theater and audience zone, the educational one, and the administration area with the main entrance, which place in the heart of the building. Located on different levels on the topography of

The building also has three entrances, the main one located in the middle between the theater area and the educational area to receive a large scale-number.

The north area has the second main entrance for the educational area. The third one is near the performing space, besides the other entries for services and emergencies.

Main Entrance

All the essential elements of design in Theatre have been considered, such as the line, texture, form, space, movement, and shape. The curved lines with the smooth surface express the building’s dynamic movement in both exterior surfaces and interior spaces. The sunlight gets into the core from the skylight strips, and the glass covers a large space of the elevations, which creates a great connection between the internal and outdoor surroundings. Stairs and elevators played an important factor in connecting the three different levels of zones.

Section A - A
Theater Sectionsn

ABDOUN PUBLIC PARK

LANDSCAPE REQUIRED COURSE AMMAN, JORDAN

Design concept

A pattern of geometric lines and shapes painted on the ground in several layers describes the seven Amman hills.

The project includes :

- Green spaces and pathways

- Fountain and water elements

- Coffee shop

- Playground for children

- General parking for visitors

North Elev.

The landscape design principles for public parks that used in the project :

- Unity and connection between the park’s elements using circular shape in pathways play areas, fountains, and the café. The frequent use of the same form gave design unity.

- The simplicity in choosing a few shapes, colors, and plant species also gave it unity.

- Using high trees, like cypress trees, in places that need to cover, and short plants between pathways.

- The park has a linear central axis that extends from the main entrance to the second one.

PROFESSIONAL

RHODES CONTRACTING LTD.

EDUCATION AMMAN, JORDAN

Precast concrete schools

Primary School (12 classes)

Building area: 3250 m²

Secondary School (18 classes)

Building area: 4340 m²

Location: Iraq ,BaghdadRusafa , Diyala, and Several points in Westren Side of Iraq.

Design introduction: Rebuilding and renovation the area post-war.

Two types of the 9 types for +200 concrete primary and secondary schools in Iraq (typical units).

Rusafa

As a part of the design team, a part of individual accomplishment and responsibilities were:

- Redesigning the nine types of typical school unit buildings.

- Designing building facades and the fences .

- Finding architectural and structural solutions for the educational facilities and the precast units.

-Developing the construction documents for the facilities and production units ( precast concrete panels, sandwich walls, slabs, and partitions)

Structural Details

Sandwich Wall Structure Sample

Sandwich Wall Structure Sample

Slabs Structure Sample

THE END

Turn static files into dynamic content formats.

Create a flipbook
Issuu converts static files into: digital portfolios, online yearbooks, online catalogs, digital photo albums and more. Sign up and create your flipbook.
Farah Portfolio 2025 by Farah Khaleel - Issuu