RUKKHA HOUSE (LOGBOOK)

Page 1

PORTOFOLIO PERANCANGAN ARSITEKTUR 1

DATA KLIEN I

184301
PERANCANGAN ARSITEKTUR1 DA
PROGRAM SARJANA DEPARTEMENARSITEKTUR FTSPK-ITS
DOSENKOORDINATOR: JOHANES KRISDIANTO, S T , M T DOSENPEMBIMBING: WAWAN ARDIYAN SURYAWAN, S.T., M.T.
KELAS E MAHASISWA: FARAH EARLENE ARETA 5013211020 JUDULGAMBAR: DATA KLIEN

PROFIL KLIEN

PROFIL USAHA KLIEN

-RESTORAN MASAKAN THAILAND-

Pak Bayu (50) dan Istrinya

KEPALA KELUARGA ISTRI

(Pak Bayu)

Usia ±50 tahun Pemilik usaha rumah makan khas Thailand

Usia ±50 tahun

Asal dari Laos Punya garis keturunan Thailand

ANAK PEREMPUAN PEMBANTU NENEK

Usia 15 tahun

Saat ini kelas 10 SMA

Hobi menggambar dan bermain game

Ibunya Pak Bayu

Lansia berusia 74 tahun Memiliki gangguan penglihatan di mata kiri Sedikit kesusahan berjalan

Asisten rumah tangga Perempuan Bertugas membantu merawat ibunya Pak Bayu

SISTEM RESTORAN :

Mayoritas order take away menggunakan aplikasi online

Fasilitas Dine in sekitar 7-8 orang

Hari operasional Senin - Jumat dan hari libur tutup

Jam operasional pukul 11 pagi - 9 malam

INFORMASI TAMBAHAN :

Karyawan sekarang 2 orang, ke depannya mungkin menjadi 5 orang (pulang - pergi)

Target konsumen adalah 90% turis luar negeri Harga makanan kelas menengah ke atas

LATAR BELAKANG

Pak Bayu merupakan seorang WNI yang pernah tinggal di Laos, Beliau menikah dengan orang Laos yang mempunyai darah Thailand dan ahli dalam memasak makanan khas Thailand. Oleh karena itu, saat kembali ke Indonesia, Pak Bayu pun mencoba membuka sebuah kedai makanan khas Thailand di rumahnya yaitu di Bali Kedai tersebut ternyata laris dan dinikmati oleh sebagian besar turis manca negara. Dengan ramainya antusiasme pengunjung, Pak Bayu berniat untuk melebarkan kedainya di tempat yang lebih luas. Namun, Pak Bayu tetap ingin menempatkan kedai tersebut dengan rumah tinggalnya menjadi satu.

PERANCANGAN ARSITEKTUR1 DA 184301
DEPARTEMENARSITEKTUR FTSPK-ITS
E
JUDULGAMBAR:
PROGRAM SARJANA
DOSENKOORDINATOR: JOHANES KRISDIANTO, S T , M T DOSENPEMBIMBING: WAWAN ARDIYAN SURYAWAN, S.T., M.T. KELAS
MAHASISWA: FARAH EARLENE ARETA 5013211020
DATA KLIEN

TERKAIT RESTORAN :

Gaya restoran minimalis

Memaksimalkan sirkulasi udara Ruang semi-outdoor Posisi dapur dekat dengan selokan, sehingga mobilitas air untuk cuci piring mudah Desain dengan taste of Thailand terutama pada ruang dine-in

INFORMASI & PERMINTAAN LAINNYA :

Tidak boleh ada patung Boleh ada Saung

TERKAIT RUMAH TINGGAL :

RUANGAN YANG DIINGINKAN DI LANTAI 1

Kamar Ibu Pak Bayu dan kamar ART

Kamar mandi dalam Kolam Ikan Koi

RUANGAN YANG DIINGINKAN DI LANTAI 2

Kamar utama dan kamar anak dengan fasilitas kamar mandi dalam

Ruang keluarga

Ruang fitness dengan 1 treadmill dan 1 sepeda statis

Dapur private di sudut jika malas ke lantai 1

Musholla (tempat shalat) terutama bagi perempuan Balkon

L O K A S I L A H A N Jl. Dharmahusada Permai VI Blok V-533 No.1 UKURAN LAHAN : 15 M x 20 M Jl DharmahusadaPerma I J l D h a r m a h u s a d a P e r m a i V I J D h a r m a h u s a d a P e r m a i V J L W i s m a P e r m a i B a r a t Jl DharmahusadaPermai

KELAS

MAHASISWA: FARAH EARLENE ARETA 5013211020

PERANCANGAN ARSITEKTUR1 DA 184301 PROGRAM SARJANA DEPARTEMENARSITEKTUR FTSPK-ITS
DOSENKOORDINATOR: JOHANES KRISDIANTO, S.T., M.T.
E
DOSENPEMBIMBING: WAWAN ARDIYAN SURYAWAN, S.T., M.T. JUDULGAMBAR: DATA KLIEN
DAFTAR PERMINTAAN KLIEN
Untuk sekarang, rumah jarang kedatangan tamu Kendaraan 2 mobil, 1 motor, 3 sepeda Semua sisi bangunan harus ada jarak dari tembok dan tetangga sekitar, untuk sirkulasi udara dan keamanan Menggunakan material yang tidak panas, dan memberikan suasana sejuk di dalam rumah.

STUDI PRESEDEN II

DOSENKOORDINATOR:

184301
PERANCANGAN ARSITEKTUR1 DA
PROGRAM SARJANA DEPARTEMENARSITEKTUR FTSPK-ITS
JOHANES KRISDIANTO, S T , M T
DOSENPEMBIMBING: WAWAN ARDIYAN SURYAWAN, S.T., M.T.
KELAS E MAHASISWA: FARAH EARLENE ARETA 5013211020
JUDULGAMBAR: STUDI PRESEDEN

SIRKULASI

STUDI PRESEDEN 1

3X4 CAFÉ AND HOUSE

ARCHITECTS : SOBO ARCHITECT AREA : 104 M2 YEAR : 2019 YANGJU-SI, SOUTH KOREA

Sebuah rumah 4 lantai untuk pasangan pensiunan desainer buku. Mereka menginginkan sebuah rumah untuk membuka membership kafe dimana mereka ingin mengajarkan self-book making pada pengunjungnya, dan juga sebagai hunian.

Lower Ground Floor

Jalan masuk menuju bangunan dibagi menjadi 3 bagian, yaitu menuju storage, bakery, dan upper ground floor

Upper Ground Floor

Terdapat 2 entrance. (1) untuk ke kafe (2) untuk ke meeting room.

ZONING

Section B Section A

ANALISIS STRUKTUR

Tangga sebagai sirkulasi naik-turun terletak lurus sejajar sehingga juga berfungsi memaksimalkan sirkulasi udara

Dinding dengan kolom struktur

Balok dan plat antai yang sejajar

Pada potongan terlihat bagaimana ruangruang ditata sedemikian rupa sehingga dinding kolom struktur dapat berdiri menopang bangunan dari atas ke bawah tanpa menganggu space bangunan

PERANCANGAN ARSITEKTUR1 DA 184301
DEPARTEMENARSITEKTUR FTSPK-ITS
E
PROGRAM SARJANA
DOSENKOORDINATOR: JOHANES KRISDIANTO, S T , M T DOSENPEMBIMBING: WAWAN ARDIYAN SURYAWAN, S.T., M.T. KELAS
MAHASISWA: FARAH EARLENE ARETA 5013211020 JUDULGAMBAR: STUDI PRESEDEN 1
DENAH Lower Ground Floor First Floor Upper Ground Floor Second Floor
Zona
bakery Zona untuk kafe Zona untuk rumah tinggal Zona untuk roof garden
untuk
Publik (Cafe) Privat (Tempat Tingga ) Perbendaan lantai sebagai pemisah antara zona publik dan zona privat
Section A Section B
Source : Archdaily

ZONING

Section A

Publik (Cafe) Privat (Tempat Tinggal)

SIRKULASI

Hanya terdapat 1 akses untuk menuju lantai 2, yaitu melewati tangga di luar bangunan, sehingga dapat mendukung privacy dan kemanan

IDENTITY & BRANDING

Terlihat fasad bangunan didesain dengan bentuk yang merepresentasikan logo merk kafe

Fasad ini terkesan sangat "ikonik" sehingga dapat menjadi branding dari rumah usaha ini Tidak hanya pada fasad, pengulangan bentuk logo kafe juga terdapat pada interior bangunan.

PERANCANGAN ARSITEKTUR1 DA 184301 PROGRAM SARJANA DEPARTEMENARSITEKTUR FTSPK-ITS DOSENKOORDINATOR: JOHANES KRISDIANTO, S T , M T DOSENPEMBIMBING: WAWAN ARDIYAN SURYAWAN, S.T., M.T. KELAS E MAHASISWA: FARAH EARLENE ARETA 5013211020 JUDULGAMBAR: STUDI PRESEDEN 2
ARCHITECTS ; RIEULDORANG ATELIER AREA
YEAR
Floor
Floor Zona
Zona
VILLA VILLEKULLA CAFÉ & HOUSE
: 229 M2
: 2018 DONGNAE-GU, SOUTH KOREA DENAH First
Second
untuk kafe
untuk tempat tinggal
Floor
(2)
Floor
First
Terdapat 2 entrance memasuki bangunan Entrance (1) untuk ke kafe dan entrance
untuk naik ke lantai 2 (private house) Second
Section B Perbendaan lantai sebagai pemisah antara zona publik dan zona privat
MERK
LOGO
KAFE
KAYU DINDING CONCRETE KACA TRANSPARAN KUSEN ALUMUNIUM DINDING UPVC MOTIF KAYU FINISHING VINYL FINISHING VINYL KUSEN KAYU KACA GYPSUM Source : Archdaily STUDI PRESEDEN 2
MATERIAL

STUDI PRESEDEN 3

MOTHERBKK RESTAURANT

KONSEP

Interior pada MOTHER Restaurant yang terletak di Bangkok, Thailand, terinspirasi dari "Mother Earth" (Ibu Pertiwi) atau dewi pemberi kehidupan dan pemelihara alam di bumi

Seperti halnya bumi yang diberi kehidupan oleh "Mother Earth", interior restoran ini seakan-akan dirancang menggunakan elemen bumi seperti kayu batu mineral dan bahanbahan organik lainnya Warna interior yang dipi ih pun konsisten dengan palet warna-warna elemen alam

Konsep Open Kitchen memberikan kesan yang kuat dan koneksi yang lebih dekat karena dapat berinteraksi langsung dengan sang chef

Pemberian warna dengan tone gelap dan warna yang berbeda pada bagian tangga menuju lantai 2 memberikan kesan misterius dan secara tidak angsung menarik perhatian pengunjung untuk menuju lantai 2 Lukisan besar pada area bar seperti menunjukkan keberadaan The Mother of Origin sesuai dengan inspirasi dari a am

Plafon yang diberi bukaan secara acak sebagai representasi daun di pohon

Dekorasi berbentuk batang pohon yang diletakkan di langit-langit

PERANCANGAN ARSITEKTUR1 DA 184301 PROGRAM SARJANA DEPARTEMENARSITEKTUR FTSPK-ITS DOSENKOORDINATOR: JOHANES KRISDIANTO,
DOSENPEMBIMBING: WAWAN
KELAS E MAHASISWA: FARAH EARLENE ARETA
JUDULGAMBAR: STUDI PRESEDEN 3
S.T., M.T.
ARDIYAN SURYAWAN, S.T., M.T.
5013211020
ARCHITECTS ; TASTE SPACE AREA : 354 M2 YEAR : 2021 BANGKOK, THAILAND DENAH First Floor Second Floor
Penggunaan Earth Tone Color Pa lete SUASANA DUDUK DI BAWAH POHON
Source : Archdaily

KESIMPULAN HASIL STUDI PRESEDEN 1 - 3

Penggunaan struktur kolom dan balok yang menerus dan sejajar dari lantai dasar hingga lantai 4.

Penggunaan konsep grid sebagai alat bantu untuk mengatur peletakan ruangan.

Pemisahan cafe dan ruang privat hunian dengan menggunakan lantai yg berbeda.

Peletakan cafe lebih mudah diakses dari luar dibandingkan ruang privat hunian.

Perbedaan entrance menuju cafe dan ruang privat Penggunaan struktur kantilever yang memberikan kesan semi-outdoor. Mendesain bentuk bangunan agar sesuai dengan branding perusahaan.

Mendesain interior menggunakan suatu konsep dengan konsisten.

Palet warna yang digunakan dalam interior.

Penggunaan palet warna untuk membangun sifat dan interaksi dari bangunan Suasana yang dihasilkan dari desain interior bangunan.

DOSENKOORDINATOR: JOHANES KRISDIANTO, S.T., M.T.

KELAS

MAHASISWA: FARAH EARLENE ARETA 5013211020 JUDULGAMBAR: KESIMPULAN STUDI PRESEDEN POIN-POIN YANG DIDAPAT DARI HASIL STUDI PRESEDEN : 3X4 CAFÉ AND HOUSE VILLA VILLEKULLA CAFÉ & HOUSE MOTHERBKK RESTAURANT

184301
PERANCANGAN ARSITEKTUR1 DA
PROGRAM SARJANA DEPARTEMENARSITEKTUR FTSPK-ITS
DOSENPEMBIMBING: WAWAN ARDIYAN SURYAWAN, S.T., M.T. E
Pemisahan cafe dan ruang privat hunian dengan menggunakan lantai yg berbeda. Peletakan cafe lebih mudah diakses dari luar dibandingkan ruang privat hunian. Cara peletakan tangga dari lantai dasar ke lantai 4 yang sejajar.
PERANCANGAN ARSITEKTUR1 DA 184301 PROGRAM SARJANA DEPARTEMENARSITEKTUR FTSPK-ITS DOSENKOORDINATOR: JOHANES KRISDIANTO, S.T., M.T. DOSENPEMBIMBING: WAWAN ARDIYAN SURYAWAN, S.T., M.T. KELAS E MAHASISWA: FARAH EARLENE ARETA 5013211020 JUDULGAMBAR: STUDI PRESEDEN 4 INNER COURTYARD Studi preseden ka i ini diambi dari foto-foto di platform Pinterest untuk digunakan sebagai inspirasi ide pada rancangan nantinya FASAD MINIMALIS CAFE / RESTO INTERIOR Ada banyak opsi untuk memanfaatkan bagian inner courtyard yaitu bisa dimanfaatkan sebagai taman dengan pohon bahkan kolam ikan Fasad rumah minima is memiliki permainan garis dan geometri yang cenderung lebih simpel faktor keseimbangan geometri banyak diperhatikan dalam mendesain fasad Berbagai interior dan layout penataan meja pada kafe yang memiliki tema berbeda-beda STUDI PRESEDEN 4

ANALISIS SITE III

DOSENKOORDINATOR:

184301
PERANCANGAN ARSITEKTUR1 DA
PROGRAM SARJANA DEPARTEMENARSITEKTUR FTSPK-ITS
JOHANES KRISDIANTO, S T , M T
DOSENPEMBIMBING: WAWAN ARDIYAN SURYAWAN, S.T., M.T.
KELAS E MAHASISWA: FARAH EARLENE ARETA 5013211020
JUDULGAMBAR: ANALISIS SITE

LOKASI

Jl. Dharmahusada Permai VI Blok V-533 No.1, Surabaya

Berada di daerah perumahan Dharmahusada Permai yang cukup dekat dengan kampus C UNAIR, ITS, dan pusat perbelanjaan Galaxy Mall, menjadikan lokasi ini cukup strategis untuk dijadikan sebagai restoran

DIMENSI

Jalan pada bagian utara adalah jalan yang cukup lebar dan dapat dilalui oleh 2 mobil secara bersamaan, bahkan apabila terdapat mobil terparkir, mobil lainnya masih bisa lewat

VIEW KE DALAM SITE

Dharmahusada Permai

Jalan pada bagian barat site jauh lebih kecil dibandingkan dengan jalan pada bagian utara Tetapi, jalan pada barat site masih bisa dilalui 2 mobil secara bersamaan

VIEW KE LUAR SITE

Seke iling site berupa rumah diatas 1 antai dan mem lik perbedaan ketinggian antara alan raya dan teras rumah tetangga Karena ja an sekitar site cukup lebar, site tidak terlalu tertutupi oleh tetanggaan

PERANCANGAN ARSITEKTUR1 DA 184301 PROGRAM SARJANA DEPARTEMENARSITEKTUR FTSPK-ITS DOSENKOORDINATOR: JOHANES KRISDIANTO, S.T., M.T. DOSENPEMBIMBING: WAWAN ARDIYAN SURYAWAN, S.T., M.T. KELAS E MAHASISWA: FARAH EARLENE ARETA 5013211020 JUDULGAMBAR: ANALISIS SITE ANALISISSITE Jl DharmahusadaPermaiI J l D h a r m a h u s a d a P e r m a i V I J l D h a r m a h u s a d a P e r m a i V J L W i s m a P e r m a i B a r a t Jl
DharmahusadaPermaiI
KAMPUS C UNAIR GALAXY MALL
930cm 540 cm 275m2 25m 1 1 m
J
J l D h a r m a h u s a d a P e r m a i V I J l D h a r m a h u s a d a P e r m a i V J L W i s m a P e r m a i B a r a t 4 5 3 2 1 1 2 3 4 5
I
Jl Dharmahusada P mai I J l D h a r m a h u s a d a P e r m a i V I J l D h a r m a h u s a d a P e r m a i V J L W i s m a P e r m a i B a r a t 1 2 3 4 1 2 3 4

GAYA ARSITEKTUR DI SEKITAR SITE

PERANCANGAN ARSITEKTUR1 DA 184301 PROGRAM SARJANA DEPARTEMENARSITEKTUR FTSPK-ITS DOSENKOORDINATOR: JOHANES KRISDIANTO, S.T., M.T. DOSENPEMBIMBING: WAWAN ARDIYAN SURYAWAN, S.T., M.T. KELAS E MAHASISWA: FARAH EARLENE ARETA 5013211020 JUDULGAMBAR: ANALISIS SITE TINGGI BANGUNAN DI SEKITAR SITE S I T E A B C D E A Rumah dengan ketinggian ±15 Meter B Rumah dengan ketinggian ±7 Meter Rumah dengan ketinggian ±10 Meter Rumah dengan ketinggian ±13 Meter C D E Rumah dengan ketinggian ±14 Meter
Site dikelilingi oleh rumah-rumah dengan mayoritas gaya elite menengah ke atas. Rumah 3 lantai dengan gaya arsitektur klasik tepat di sebelah barat site Rumah 2 lantai dengan gaya minimalis tepat di sebelah timur site Wilayah di sekitar site didominasi oleh rumah-rumah modern dengan kombinasi arsitektur minimalis dan klasik ANALISISSITE

ANALISISSITE

ASPEK UTILITAS

SIRKULASI

Lampu Jalan

Tiang Listrik

Kabel Listrik

Ketinggian bangunan di sekitar site cenderung lebih tinggi dibandingkan dengan sambungan tiang listrik

POSISI SELOKAN

Selokan yang berada di site juga tesambung dengan tetanggan yang lainnya

Tetangga melakukan penataan pada gerbang atau pintu masuk sehingga saluran air menuju selokan juga tidak terhambat karena adanya bangunan

Lebar selokan = 100 cm Kedalaman selokan = 50 cm

Terdapat sebuah tong sebagai pembatas kendaraan akan berbelok.

Sirkulasi Pejalan Kaki

Tidak ada trotoar di sekitaran site, tetapi batas jalan dengan rumah cukup lebar

PERANCANGAN ARSITEKTUR1 DA 184301 PROGRAM
DEPARTEMENARSITEKTUR FTSPK-ITS
E
FARAH
JUDULGAMBAR: ANALISIS SITE 1 2 3 4
SARJANA
DOSENKOORDINATOR: JOHANES KRISDIANTO, S.T., M.T. DOSENPEMBIMBING: WAWAN ARDIYAN SURYAWAN, S.T., M.T. KELAS
MAHASISWA:
EARLENE ARETA 5013211020
POSISI KABEL LISTRIK DAN LAMPU JALAN
1 2 3 4
Sirkulasi Kendaraan
SITE SITE SITE SITE

ANALISISSITE

PERATURAN DAERAH

BERDASARKAN PERATURAN WALIKOTA SURABAYA

GSB

Pada jalan lingkungan yang lebarnya lebih dari 4 m sampai dengan 6 m, maka panjang GSB ditetapkan 3 m

KDB

1. 2 3. 4. 5

Lahan Kosong Lahan Kosong Tanaman Tetangga SITE Pembatas jalan

LEGENDA : KEBISINGAN PEMBAYANGAN JAM 3 SORE

LEGENDA : Kebisingan kendaraan di jalanan

KONTUR LAHAN

DOSENKOORDINATOR: JOHANES KRISDIANTO, S.T., M.T.

Tinggi Rendah

Menurut Pasal 1 No. 19 KDB = 60% x luas site = 60% x 300 m2 = max. 180 m2

KLB

Menurut Pasal 1 No. 20 KLB = 1,8 x luas site = 1,8 x 300 m2 = max. 540 m2

KETINGGIAN BANGUNAN

Menurut Pasal 1 No 23 (tinggi per lantai antara 3-5 m)

Ketinggian bangunan <15 m

KELAS

MAHASISWA: FARAH EARLENE ARETA 5013211020 JUDULGAMBAR: ANALISIS SITE

ARSITEKTUR1 DA 184301
PERANCANGAN
PROGRAM SARJANA DEPARTEMENARSITEKTUR FTSPK-ITS
E
DOSENPEMBIMBING: WAWAN ARDIYAN SURYAWAN, S.T., M.T. 5 SITE SITE
ASPEK ALAM
Arah Angin Orientasi Matahari
Sumber kebisingan dari rumah tetangga

IV

ORGANISASI &STUDI RUANG

PERANCANGAN ARSITEKTUR1 DA 184301
DEPARTEMENARSITEKTUR FTSPK-ITS
E
PROGRAM SARJANA
DOSENKOORDINATOR: JOHANES KRISDIANTO, S T , M T DOSENPEMBIMBING: WAWAN ARDIYAN SURYAWAN, S.T., M.T. KELAS
MAHASISWA: FARAH EARLENE ARETA 5013211020 JUDULGAMBAR: ORGANISASI DAN STUDI RUANG

STUDI PROGRAM RUANG

UNTUK USAHA (RESTORAN)

Tempat makan bagi pengunjung restoran

Dapur Restoran Memasak

Tempat Penyimpanan Menyimpan bahan-bahan makanan

Meja Kursi Wastafel

Dine-in dengan sistem reservasi, jadi untuk desainnya harus disesuaikan Bisa ditambahkan elemen desain ala Thailand sebagai pendukung Thailand Restaurant Publik

Kompor Rak alat masak Bak cuci piring

Posisi dapur dekat dengan selokan, sehingga mobilitas air untuk cuci piring mudah Semi-publik

1 Kulkas Besar 2 Kulkas biasa Freezer - Semi-publik Ruang Tunggu

Tempat customer menunggu untuk pesanan take-away Kursi

Tempat parkir

Menyediakan tempat menunggu yang nyaman terutama untuk ojek online karena proses memasak agak lama Publik

Tempat parkir mobil dan motor Garis pembatas antar kendaraan - Publik Kolam Ikan Memelihara Ikan Koi Filter Pompa air Air mancur

Musholla dan Tempat Wudhu Sholat

Klien memiliki hobi memelihara ikan koi Publik

Karpet / Sajada Rak - Service

DOSENKOORDINATOR: JOHANES KRISDIANTO, S.T., M.T.

KELAS

MAHASISWA: FARAH EARLENE ARETA 5013211020 JUDULGAMBAR: PROGRAM RUANG

DA
PERANCANGAN ARSITEKTUR1
184301 PROGRAM SARJANA DEPARTEMENARSITEKTUR FTSPK-ITS
DOSENPEMBIMBING: WAWAN ARDIYAN SURYAWAN, S.T., M.T. E
NAMA RUANG
AKTIVITAS PERABOTAN PERMINTAAN KHUSUS DARI KLIEN KATEGORI Ruang Makan

Ruang Bersantai Keluarga Berkumpul Menonton TV Meja Sofa Televisi - Privat

Kamar Tidur Utama Tidur Bersiap diri Bed Lemari Meja rias

Kamar Tidur Ibu Tidur Bersiap diri Bed Lemari

Kamar Tidur Anak Tidur Bersiap diri Belajar

Bed Lemari Meja belajar Meja rias

Kamar Tidur ART Tidur Bersiap diri Bed Lemari

Diletakkan di lantai 2 dengan kamar mandi dalam Privat

Diletakkan di lantai 1 karena ibu sudah kesusahan berjalan dan naik tangga Privat

Diletakkan di lantai 2 dengan kamar mandi dalam Privat

Karena tugas ART untuk membantu merawat ibu, maka kamar diletakkan di lantai 1 dekat dengan kamar ibu Privat

Publik

Ruang fitness Berolahraga 1 Treadmill 1 Sepeda Statis - Privat

Musholla Sholat Mengaji Karpet / sajadah Rak

Dapur Memasak Menyimpan bahan makanan

Kompor Kulkas Rak Penyimpanan

Diletakkan di lantai 2, untuk sholat berjamaah terutama untuk perempuan Privat

Dapur juga diletakkan di sudut ruangan di lantai 2 jika sewaktu-waktu ingin memasak misal memasak mie Service

DOSENKOORDINATOR: JOHANES KRISDIANTO, S.T., M.T.

DOSENPEMBIMBING: WAWAN ARDIYAN SURYAWAN, S.T., M.T.

KELAS

PERANCANGAN ARSITEKTUR1 DA 184301 PROGRAM SARJANA DEPARTEMENARSITEKTUR FTSPK-ITS
E
RUANG AKTIVITAS PERABOTAN PERMINTAAN
KATEGORI
MAHASISWA: FARAH EARLENE ARETA 5013211020 JUDULGAMBAR: PROGRAM RUANG NAMA
KHUSUS DARI KLIEN
Carport Tempat parkir 2 Mobil 3 Sepeds 1 Sepeda Motor -
UNTUK TEMPAT TINGGAL
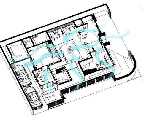
PERANCANGAN ARSITEKTUR1 DA 184301 PROGRAM SARJANA DEPARTEMENARSITEKTUR FTSPK-ITS DOSENKOORDINATOR: JOHANES KRISDIANTO, S.T., M.T. DOSENPEMBIMBING: WAWAN ARDIYAN SURYAWAN, S.T., M.T. KELAS E MAHASISWA: FARAH EARLENE ARETA 5013211020 JUDULGAMBAR: BUBBLE DIAGRAM ENTRANCE DINE-IN RESTO DAPUR WC GARDEN KOLAM IKAN CARPORT/ GARASI TEMPAT PARKIR R.KELUARGA KAMAR IBU KAMAR ART WC R.KELUARGA KAMAR UTAMA WC KAMAR ANAK WC MUSHOLLA FITNESS BALKON RUANG TUNGGU R.TAMU BUBBLE DIAGRAM AREARESTORAN LANTAI2 LANTAI1 E n t r a n c e m e n u j u r e s t o Entrancemenujurumah Tangga DAPUR kolam ikan sebagai pembatas Berhubungan Langsung Berhubungan Tidak Langsung (Ada penyekat)
PERANCANGAN ARSITEKTUR1 DA 184301 PROGRAM
DEPARTEMENARSITEKTUR FTSPK-ITS
E
FARAH
GUBAHAN
1 2 3 4 5
SARJANA
DOSENKOORDINATOR: JOHANES KRISDIANTO, S.T., M.T. DOSENPEMBIMBING: WAWAN ARDIYAN SURYAWAN, S.T., M.T. KELAS
MAHASISWA:
EARLENE ARETA 5013211020 JUDULGAMBAR:
MASSA GUBAHAN MASSA
Massa pada site setelah dikurangi GSB 3m Membagi 2 massa untuk zona privat dan publik Membuat massa di lantai 1 menjorok ke belakang untuk menciptakan fasad dan menjadi struktur kantilever Memberikan akses penghubung massa 1 dan 2 Menjorokkan massa ke dalam untuk menciptakan space balkon

HUNIAN SEHAT V

DOSENKOORDINATOR:

184301
PERANCANGAN ARSITEKTUR1 DA
PROGRAM SARJANA DEPARTEMENARSITEKTUR FTSPK-ITS
JOHANES KRISDIANTO, S T , M T
DOSENPEMBIMBING: WAWAN ARDIYAN SURYAWAN, S.T., M.T.
KELAS E MAHASISWA: FARAH EARLENE ARETA 5013211020
JUDULGAMBAR: HUNIAN SEHAT

HUNIAN SEHAT

PRINSIP RUMAH SEHAT MENURUT MENTERI PEKERJAAN UMUM DAN PERUMAHAN RAKYAT

1) Lantai dan dinding harus kering (tidak lembab) dan mudah dibersihkan Agar tetap kering, maka lantai harus:

Terbuat dari bahan bangunan yang tidak menghantar air tanah ke permukaan lantai (kedap air)

Berada lebih tinggi dari halaman luar dengan ketInggian lantai minimal 10 cm dari pekarangan atau 25 cm dari permukaan jalan

2) Ventilasi/jendela yang cukup agar udara dalam ruangan dapat selalu mengalir Luas bukaan jendela minimal 1/9 luas ruang lantai

4) Letak rumah yang baik adalah sesuai dengan arah matahari (timur-barat) agar penyinaran sinar matahari dapat merata dari jam 08 00 – 16 00

3) Lubang bukaan/jendela harus dapat ditembus sinar matahari

DOSENKOORDINATOR: JOHANES KRISDIANTO, S.T., M.T.

DOSENPEMBIMBING: WAWAN ARDIYAN SURYAWAN, S.T., M.T.

KELAS

PERANCANGAN ARSITEKTUR1 DA 184301
PROGRAM SARJANA DEPARTEMENARSITEKTUR FTSPK-ITS
E
MAHASISWA: FARAH EARLENE ARETA 5013211020 JUDULGAMBAR: HUNIAN SEHAT

FINAL DESIGN VI

DA 184301
PERANCANGAN ARSITEKTUR1
PROGRAM SARJANA DEPARTEMENARSITEKTUR FTSPK-ITS
DOSENKOORDINATOR: JOHANES KRISDIANTO, S T , M T DOSENPEMBIMBING: WAWAN ARDIYAN SURYAWAN, S.T., M.T. KELAS E MAHASISWA: FARAH EARLENE ARETA 5013211020 JUDULGAMBAR: FINAL DESIGN
PERANCANGAN ARSITEKTUR1 DA 184301 PROGRAM SARJANA DEPARTEMENARSITEKTUR FTSPK-ITS DOSENKOORDINATOR: JOHANES KRISDIANTO, S T , M T DOSENPEMBIMBING: WAWAN ARDIYAN SURYAWAN, S.T., M.T. KELAS E MAHASISWA: FARAH EARLENE ARETA 5013211020 JUDULGAMBAR: FINAL DESIGN
HOUSE
Rukkha

KONSEP RANCANGAN

Selain menggunakan metode pattern-based, pada perancangan kali ini juga terdapat beberapa pendekatan desain dengan metode concept-based:

"RUKKHA HOUSE"

Nama "Rukkha" diambil karena memiliki arti "Pohon" Rumah ini dirancang bagaikan pohon, yang memiliki batang sebagai pusat yang menyalurkan zat hara, yang didefinisikan sebagai sebuah bukaan untuk penyalur cahaya dan sirkulasi udara ke seluruh ruangan di bangunan

NATURE BUKAAN SEBAGAI CENTRAL

Menghadirkan tema alam dengan menggunakan material seperti batu alam, kayu-kayu dan vegetasi

Color Pallette

WATERFALL

Pemberian air terjun sebagai "highlight" bangunan Air terjun dapat membantu memberikan kenyamanan thermal bagi pengguna, serta suara tetesan air dapat membantu mengurangi stres

Pada "rukkha" atau pohon, air terjun ini dianalogikan sebagai air hujan yang menyokong kehidupan tumbuhan, tanpa air ini tumbuhan akan mati

Pemberian "inner courtyard" berupa kolam di tengah bangunan sebagai center dari bangunan,yang nantinya akan tersambung dengan air terjun, digabungkan dengan tempat dine-in restoran

PERANCANGAN ARSITEKTUR1 DA 184301 PROGRAM SARJANA DEPARTEMENARSITEKTUR FTSPK-ITS DOSENKOORDINATOR: JOHANES
WAWAN
KELAS E
FARAH EARLENE ARETA 5013211020 JUDULGAMBAR: KONSEP RANCANGAN
KRISDIANTO, S.T., M.T. DOSENPEMBIMBING:
ARDIYAN SURYAWAN, S.T., M.T.
MAHASISWA:
AREA BUKAAN INNER COURTYARD

KONSEPRANCANGAN

PERANCANGAN ARSITEKTUR1 DA 184301 PROGRAM SARJANA DEPARTEMENARSITEKTUR FTSPK-ITS DOSENKOORDINATOR: JOHANES KRISDIANTO, S.T., M.T. DOSENPEMBIMBING: WAWAN ARDIYAN SURYAWAN, S.T., M.T. KELAS E MAHASISWA: FARAH EARLENE ARETA 5013211020 JUDULGAMBAR: KONSEP RANCANGAN
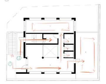
TROPICAL ARCHITECTURE PEMAKSIMALAN SIRKULASI UDARA &KENYAMANAN TERMAL DENGAN BUKAAN DI TENGAH LANTAI 1 POTONGAN Penataan bukaan (termasuk pintu dan jendela) dibuat sejajar sehingga udara bisa leluasa masuk ke seluruh penjuru ruangan BUKAAN JENDELA YANG CUKUP LEBAR UNTUK MEMAKSIMALKAN DAYLIGHTING MENGGUNAKAN MATERIAL-MATERIAL LOKAL BATU ALAM BATA MERAH KAYU ULIN

PROGRAM SARJANA DEPARTEMENARSITEKTUR FTSPK-ITS

GAMTEK

DOSENKOORDINATOR:

JOHANES KRISDIANTO, S.T., M.T.

DOSENPEMBIMBING: WAWAN ARDIYAN SURYAWAN, S.T., M.T.

KELAS

MAHASISWA: FARAH EARLENE ARETA 5013211020

JUDULGAMBAR: LAYOUT PLAN

184301
PERANCANGAN ARSITEKTUR1 DA
E
PERANCANGAN ARSITEKTUR1 DA 184301 PROGRAM SARJANA DEPARTEMENARSITEKTUR FTSPK-ITS DOSENKOORDINATOR: JOHANES KRISDIANTO, S.T., M.T. DOSENPEMBIMBING: WAWAN ARDIYAN SURYAWAN, S.T., M.T. KELAS E MAHASISWA: FARAH EARLENE ARETA 5013211020 JUDULGAMBAR: SITE PLAN A A A A A SITEPLAN SKALA 1 : 150 LEGENDA : U B C A AREA RUMAH TETANGGA B. JL. DHARMAHUSADA PERMAI I C. JL. DHARMAHUSADA PERMAI IV

2.00 1.80 2.75 3.35 4.00 1.00

CARPORT -0.30

MUSHOLLA +0.10

RUANGTAMU ±0.00

TERAS -0.05

R.KELUARGA +0.10 NA

R.TIDURIBU +0.10 KM/WC +0.05 R.TIDURPRT +0.10

PARKIRMOTOR -0.30

15.00 3.00 5.40 2.50 5.20 3.80

2.85 3.00

DAPURRESTO +0.10

KOLAMIKAN -1.15 KOLAMIKAN -1.15 ENTRANCE ±0.00

RUANGDINE-IN -0.20 KM/WC -0.20 RUANGTUNGGU&KASIR -0.15

20.00 1.351.00 2.70 2.80 4.00 3.10 15.00

1.50 5.15 1.65 1.70

PARKIRMOBIL -0.30

1.00 3.10

20.00

DEPARTEMENARSITEKTUR

PROGRAMSARJANA FTSPK-ITS DA184301

PERANCANGANARSITEKTUR1 SEMESTERGASAL2021/2022

JohanesKrisdianto,S.T.,M.T. WawanArdiyanSuryawan,S.T.,M.T.

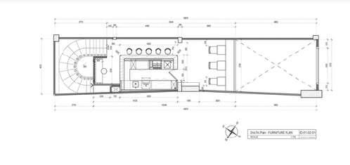
DENAHLANTAI1

T.WUDHU -0.10 SKALA1:100

FARAHEARLENEARETA 5013211020 - 01

DENAHLANTAI1 E

A
U 1 2 3 4 5 6 7 8 910 11 12 13
B C D E F G H J K L 1 2 3 4 5 6 7 8 910 11 12 13 A B C D E F G H I J K L B' B A A' -0.15 -0.15
DEPARTEMENARSITEKTUR PROGRAMSARJANA FTSPK-ITS DA184301 PERANCANGANARSITEKTUR1 SEMESTERGASAL2021/2022 JohanesKrisdianto,S.T.,M.T. WawanArdiyanSuryawan,S.T.,M.T. FARAHEARLENEARETA 5013211020 - 02 DENAHLANTAI2 E MUSHOLLA +3.65 T.FITNESS +3.60 KM/WC +3.55 BALKON +3.58 KAMARTIDUR +3.60 R.KELUARGA +3.60 LAUNDRY +3.55 T.JEMUR +3.55 +3.58 +3.58 KM/WC +3.55 KAMARTIDUR +3.60 DAPUR +3.35 TR TR 2.75 3.35 1.90 3.85 15.00 2.80 1.85 2.11 2.75 1.35 15.00 2.80 2.50 2.50 5.20 20.00 5.15 1.65 1.70 4.50 1.35 1.50 20.00 VOID 1 2 3 4 5 6 7 8 910 11 12 13 A B C D E F G H I J K L A B C D E F G H I J K L 1 2 3 4 5 6 7 8 910 11 12 13 A A' B' B SKALA1:100 DENAHLANTAI2 U
DEPARTEMENARSITEKTUR PROGRAMSARJANA FTSPK-ITS DA184301 PERANCANGANARSITEKTUR1 SEMESTERGASAL2021/2022
FARAHEARLENEARETA
- 03 LAYOUTPLAN E U SKALA1:150 LAYOUTPLAN JL. DHARMAHUSADA PERMAI I JL.DHARMAHUSADAPERMAIIv 3M GSB GSB 3 M RUMAHTETANGGA RUMAHTETANGGA RUMAHTETANGGA 20.00 2.85 1.50 3.00 5.15 1.65 1.70 15.00 4.00 3.35 2.75 1.80 2.00 RUANGTAMU CARPORT R.TIDURIBU KM/WC R.TIDURPRT R.KELUARGA NA RUANGDINE-IN KM/WC R.TUNGGU&KASIR PARKIRMOBIL DAPURRESTO KOLAMIKAN KOLAMIKAN ENTRANCE TERAS PARKIRMOTOR TAMAN MUSHOLLA T.WUDHU
JohanesKrisdianto,S.T.,M.T. JohanesKrisdianto,S.T.,M.T.
5013211020

PENUTUPATAP(GENTENG)

RANGKAATAPBAJARINGAN

PAS.DINDINGBATAMERAH

+7.05

+7.05

KUSENPINTU

BALOKSTRUKTUR

+6.25

+6.30

DEPARTEMENARSITEKTUR

+4.40

+3.60

+2.90

+2.00

BALOKSTRUKTUR KANOPIBETON

PROGRAMSARJANA FTSPK-ITS DA184301

R.KELUARGA +3.58 +3.58

+3.60

KANOPIBETON KUSENPINTU

CARPORT +0.10

BALKON -0.20

-0.30

POTONGANA-A'

SKALA1:100

PERANCANGANARSITEKTUR1 SEMESTERGASAL2021/2022

R.KELUARGA

+8.80 +0.10

+9.00 5.40 5.15 2.85 3.00 3.60 20.00

+2.60 +2.00

KASIR&R.TUNGGU -0.30

PARKIRAN -1.00 KOLAM ±0.00 -0.20

R.DINEIN -0.15

+3.50 B F H K

JohanesKrisdianto,S.T.,M.T. WawanArdiyanSuryawan,S.T.,M.T.

FARAHEARLENEARETA 5013211020 - 04

POTONGANA-A' E

PENUTUPATAP(GENTENG)

RANGKAATAPBAJARINGAN KANOPIBETON

BALOKSTRUKTUR

PAS.DINDINGBATAMERAH KUSENPINTU

BALOKSTRUKTUR

+9.00 +8.80 +6.20 +3.30 +2.00 +0.10

R.KELUARGA +3.60

KAMARTIDUR

R.KELUARGA +0.10

DEPARTEMENARSITEKTUR

PROGRAMSARJANA FTSPK-ITS DA184301

PERANCANGANARSITEKTUR1 SEMESTERGASAL2021/2022

+3.60

KAMARTIDUR +0.10

+8.80 +7.05 +4.40

+3.50

+9.00 +0.10

MUSHOLLA -0.20

T.WUDHU 13 6 4 1

2.00 3.20 1.00

POTONGANB-B'

SKALA1:100

JohanesKrisdianto,S.T.,M.T. WawanArdiyanSuryawan,S.T.,M.T.

+2.00

±0.00

+2.85 -0.20 4.55 2.07 2.18 15.00 11

PAGARBESIHOLLOW

FARAHEARLENEARETA 5013211020

POTONGANB-B' E

05
-

PROGRAMSARJANA

DEPARTEMENARSITEKTUR

FTSPK-ITS DA184301

PERANCANGANARSITEKTUR1 SEMESTERGASAL2021/2022

JohanesKrisdianto,S.T.,M.T.

WawanArdiyanSuryawan,S.T.,M.T.

INSTALASILISTRIKLT.1 E

FARAHEARLENEARETA 5013211020 - 06
SKALA1:100 DENAHINSTALASILISTRIKLT.1 2.85 3.00 1.50 5.15 1.65 1.70 1.00 3.10 20.00 2.00 1.80 2.75 3.35 4.00 1.00 15.00 3.00 5.40 2.50 5.20 3.80 20.00 1.35 1.00 2.70 2.80 4.00 3.10 15.00 NA

PROGRAMSARJANA

DEPARTEMENARSITEKTUR

FTSPK-ITS DA184301

PERANCANGANARSITEKTUR1 SEMESTERGASAL2021/2022

JohanesKrisdianto,S.T.,M.T.

WawanArdiyanSuryawan,S.T.,M.T.

FARAHEARLENEARETA 5013211020 - 07

INSTALASILISTRIKLT.2 E 2.75 3.35 1.90 3.85 15.00 2.80 1.85 2.11 2.75 1.35 15.00 2.80 2.50 2.50 5.20 20.00 5.15 1.65 1.70 4.50 1.35 1.50 20.00 SKALA1:100 DENAHINSTALASILISTRIKLT.2 TR

DEPARTEMENARSITEKTUR

PROGRAMSARJANA FTSPK-ITS DA184301

PERANCANGANARSITEKTUR1 SEMESTERGASAL2021/2022

JohanesKrisdianto,S.T.,M.T.

WawanArdiyanSuryawan,S.T.,M.T.

FARAHEARLENEARETA 5013211020 - 08
INSTALASIAIRBERSIH&KOTORLT.1 E SKALA1:100 DENAHINSTALASIAIRBERSIH&KOTORLT.1 2.85 3.00 1.50 5.15 1.65 1.70 1.00 3.10 20.00 2.00 1.80 2.75 3.35 4.00 1.00 15.00 3.00 5.40 2.50 5.20 3.80 20.00 1.35 1.00 2.70 2.80 4.00 3.10 15.00 NA

PROGRAMSARJANA

DEPARTEMENARSITEKTUR

FTSPK-ITS DA184301

PERANCANGANARSITEKTUR1 SEMESTERGASAL2021/2022

JohanesKrisdianto,S.T.,M.T.

WawanArdiyanSuryawan,S.T.,M.T.

FARAHEARLENEARETA

INSTALASIAIRBERSIH&KOTORLT.2 E

5013211020 - 09
2.75 3.35 1.90 3.85 15.00 2.80 1.85 2.11 2.75 1.35 15.00 2.80 2.50 2.50 5.20 20.00 5.15 1.65 1.70 4.50 1.35 1.50 20.00 TR SKALA1:100 DENAHINSTALASIAIRBERSIH&KOTORLT.2
PERANCANGAN ARSITEKTUR1 DA 184301 PROGRAM SARJANA DEPARTEMENARSITEKTUR FTSPK-ITS DOSENKOORDINATOR: JOHANES KRISDIANTO, S.T., M.T. DOSENPEMBIMBING: WAWAN ARDIYAN SURYAWAN, S.T., M.T. KELAS E MAHASISWA: FARAH EARLENE ARETA 5013211020 JUDULGAMBAR: TAMPAK UTARA SKALA 1:100 TAMPAKUTARA
PERANCANGAN ARSITEKTUR1 DA 184301 PROGRAM SARJANA DEPARTEMENARSITEKTUR FTSPK-ITS DOSENKOORDINATOR: JOHANES KRISDIANTO, S.T., M.T. DOSENPEMBIMBING: WAWAN ARDIYAN SURYAWAN, S.T., M.T. KELAS E MAHASISWA: FARAH EARLENE ARETA 5013211020 JUDULGAMBAR: TAMPAK BARAT TAMPAKBARAT SKALA 1:100
PERANCANGAN ARSITEKTUR1 DA 184301 PROGRAM SARJANA DEPARTEMENARSITEKTUR FTSPK-ITS DOSENKOORDINATOR: JOHANES KRISDIANTO, S.T., M.T. DOSENPEMBIMBING: WAWAN ARDIYAN SURYAWAN, S.T., M.T. KELAS E MAHASISWA: FARAH EARLENE ARETA 5013211020 JUDULGAMBAR: TAMPAK TIMUR TAMPAKTIMUR SKALA 1:100
PERANCANGAN ARSITEKTUR1 DA 184301 PROGRAM SARJANA DEPARTEMENARSITEKTUR FTSPK-ITS DOSENKOORDINATOR: JOHANES KRISDIANTO, S.T., M.T. DOSENPEMBIMBING: WAWAN ARDIYAN SURYAWAN, S.T., M.T. KELAS E MAHASISWA: FARAH EARLENE ARETA 5013211020 JUDULGAMBAR: TAMPAK SELATAN TAMPAKSELATAN SKALA 1:100
PERANCANGAN ARSITEKTUR1 DA 184301 PROGRAM SARJANA DEPARTEMENARSITEKTUR FTSPK-ITS DOSENKOORDINATOR: JOHANES KRISDIANTO, S T , M T DOSENPEMBIMBING: WAWAN ARDIYAN SURYAWAN, S.T., M.T. KELAS E MAHASISWA: FARAH EARLENE ARETA 5013211020 JUDULGAMBAR: AXONOMETRI STRUKTUR AXONOMETRISTRUKTUR PLAFON G Y MUSP ATAP GE N T GNE BAJA RI N G NA BALOK ST R U RUTK ATAP GENTENG RANGKA ATAP BAJA RINGAN BALOK BALOK PLAFON KOLOM PLAT LANTAI PLAFON KOLOM PLAT LANTAI DASAR SITE
PERANCANGAN ARSITEKTUR1 DA 184301 PROGRAM SARJANA DEPARTEMENARSITEKTUR FTSPK-ITS DOSENKOORDINATOR: JOHANES KRISDIANTO, S.T., M.T. DOSENPEMBIMBING: WAWAN ARDIYAN SURYAWAN, S.T., M.T. KELAS E MAHASISWA: FARAH EARLENE ARETA 5013211020 JUDULGAMBAR: PERSPEKTIF EKSTERIOR KAYU U L NI COR B E T NO WATER F A LL SIRIH G A D GNI PAGAR K A AC BATUAND E S I T BESI H O L WOL POHON P A MEL PAVING BL O C K PERSPEKTIF EKSTERIOR
PERANCANGAN ARSITEKTUR1 DA 184301 PROGRAM SARJANA DEPARTEMENARSITEKTUR FTSPK-ITS DOSENKOORDINATOR: JOHANES KRISDIANTO, S.T., M.T. DOSENPEMBIMBING: WAWAN ARDIYAN SURYAWAN, S.T., M.T. KELAS E MAHASISWA: FARAH EARLENE ARETA 5013211020 JUDULGAMBAR: PERSPEKTIF EKSTERIOR PERSPEKTIF EKSTERIOR
PERANCANGAN ARSITEKTUR1 DA 184301 PROGRAM SARJANA DEPARTEMENARSITEKTUR FTSPK-ITS DOSENKOORDINATOR: JOHANES KRISDIANTO, S.T., M.T. DOSENPEMBIMBING: WAWAN ARDIYAN SURYAWAN, S.T., M.T. KELAS E MAHASISWA: FARAH EARLENE ARETA 5013211020 JUDULGAMBAR: PERSPEKTIF EKSTERIOR EKSTERIOR

Air terjun yang merupakan bagian dari kolam ikan menjadi center/highlight dari tampak utara bangunan. Posisi peletakannya berada di tengah agar memberi kesan balance pada fasad.

keramik motif batu alam

PERANCANGAN ARSITEKTUR1 DA 184301 PROGRAM SARJANA DEPARTEMENARSITEKTUR FTSPK-ITS DOSENKOORDINATOR: JOHANES
DOSENPEMBIMBING: WAWAN
KELAS E
FARAH EARLENE ARETA
JUDULGAMBAR: INTERIOR WATERFALL
Air
view
Dinding kaca Air terjun Kolam
KRISDIANTO, S.T., M.T. Dinding
ARDIYAN SURYAWAN, S.T., M.T.
MAHASISWA:
5013211020
Posisi air terjun dari tampak utara bangunan
melewati dinding kaca Kolam ikan Air terjun menjadi sebuah view dari dalam restoran (lantai 1)
pada dinding kaca pada lorong lantai 2
ikan
Perspektif dari fasad utara bangunan
PERANCANGAN ARSITEKTUR1 DA 184301 PROGRAM SARJANA DEPARTEMENARSITEKTUR FTSPK-ITS DOSENKOORDINATOR: JOHANES KRISDIANTO, S.T., M.T. DOSENPEMBIMBING: WAWAN ARDIYAN SURYAWAN, S.T., M.T. KELAS E MAHASISWA: FARAH EARLENE ARETA 5013211020 JUDULGAMBAR: INTERIOR KOLAMIKAN Posisi kolam ikan dari denah lantai 1 Di atas kolam ikan terdapat void untuk sirkulasi udara dan pencahayaan Denah lantai 2 VIEW DARI RUANG DINE-IN RESTORAN Tanaman Lee Kwan Yew Kolam Ikan Pemberian air mancur di tengah kolam, merepresentasikan pagoda Thailand Jembatan Kaca VIEW DARI RUANG KELUARGA D berikan kaca film untuk menjaga privasi St ker kaca film
PERANCANGAN ARSITEKTUR1 DA 184301 PROGRAM SARJANA DEPARTEMENARSITEKTUR FTSPK-ITS DOSENKOORDINATOR: JOHANES KRISDIANTO, S.T., M.T. DOSENPEMBIMBING: WAWAN ARDIYAN SURYAWAN, S.T., M.T. KELAS E MAHASISWA: FARAH EARLENE ARETA 5013211020 JUDULGAMBAR: INTERIOR MUSHOLLARESTORAN RESTORAN Tempat dine-in berada di tepi kolam, untuk menghadirkan suasana alam Ruang tunggu untuk menunggu pesanan take away. Meja kasir DAPURRESTORAN Partisi kayu Wallpaper dinding Finishing cat
PERANCANGAN ARSITEKTUR1 DA 184301 PROGRAM SARJANA DEPARTEMENARSITEKTUR FTSPK-ITS DOSENKOORDINATOR: JOHANES KRISDIANTO, S.T., M.T. DOSENPEMBIMBING: WAWAN ARDIYAN SURYAWAN, S.T., M.T. KELAS E MAHASISWA: FARAH EARLENE ARETA 5013211020 JUDULGAMBAR: INTERIOR RUANGTAMU Posisi ruang tamu dari denah lantai 1 Potongan interior ruang tamu Gorden sebaga pembatas ruang tamu dengan ruang keluarga Dekoras lukisan Artific al plant Lantai finishing vinyl kayu Karpet Colour Pallete Warna put h memberi kesan m nimalis, d tambah mot f kayu RUANGKELUARGALT.1 Posis ruang keluarga dari denah lantai 1 Potongan interior ruang keluarga Jendela ebar untuk view langsung ke kolam ikan Bagian bawah tangga dimanfaatkan sebagai rak untuk meny mpan barang Colour Pallete Tema sama seperti ruang tamu Gorden pembatas dengan ruang tamu
PERANCANGAN ARSITEKTUR1 DA 184301 PROGRAM SARJANA DEPARTEMENARSITEKTUR FTSPK-ITS DOSENKOORDINATOR: JOHANES KRISDIANTO, S.T., M.T. DOSENPEMBIMBING: WAWAN ARDIYAN SURYAWAN, S.T., M.T. KELAS E MAHASISWA: FARAH EARLENE ARETA 5013211020 JUDULGAMBAR: INTERIOR RUANGKELUARGALT.2 Posisi ruang keluarga dari denah lantai 2 Meja makan Sofa Potongan interior ruang keluarga Ruang keluarga di lantai 2 didesain luas tanpa sekat, menyatu dengan ruang makan D nding fin shing keramik Lantai finishing keramik Colour Pallete MUSHOLLA DAPURPRIVATE Posis dapur dari denah lantai 2 Elevasi dapur lebih rendah dari ruangan-ruangan lain di lantai 2 Dind ng finishing keramik Wallpaper dinding Lantai finishing vinyl kayu D nding finish ng keram k D nding kaca (waterfal ) Partisi kayu Posisi mushol a dari denah lantai 2
PERANCANGAN ARSITEKTUR1 DA 184301 PROGRAM SARJANA DEPARTEMENARSITEKTUR FTSPK-ITS DOSENKOORDINATOR: JOHANES KRISDIANTO, S.T., M.T. DOSENPEMBIMBING: WAWAN ARDIYAN SURYAWAN, S.T., M.T. KELAS E MAHASISWA: FARAH EARLENE ARETA 5013211020 JUDULGAMBAR: INTERIOR KAMARTIDURUTAMA Lantai f nishing karpet Wal paper dind ng Dinding f nishing cat Posisi kamar tidur utama dari denah lantai 2 Colour Pallete KAMARTIDURANAK lantai fin shing karpet Colour Pallete View jende a menu u luar bangunan

Turn static files into dynamic content formats.

Create a flipbook
Issuu converts static files into: digital portfolios, online yearbooks, online catalogs, digital photo albums and more. Sign up and create your flipbook.