
Fanthé Passard PORTFOLIO Architecture
![]()

Fanthé Passard PORTFOLIO Architecture
Diplômé de l’école d’architecture de Bordeaux (ENSAPBx), j’ai affiné mon écriture architecturale et développé une vision éclairée des enjeux du métier durant ces cinq années de formation. Fort de cette expérience, je souhaite désormais mettre mes compétences au service d’un parcours professionnel enrichissant.
Stage complémentaire , MORE architecture, Bordeaux
Avril 2024 - juillet 2024 (4 mois)
• Réalisation de documents en phase FAISA, APS et PRO sur plusieurs projets de parking vélo Mobipark
• Réalisation de CCTP et de DPGF pour Mobipark
• Participation à un concours d’idées Terraviva : « brise vent » Le Havre
• Participation à une faisabilité pour un projet de 79 logements sociaux dans la commune du Haillan
Stage de formation pratique, FELAA architecture, Bordeaux
Juin 2023 - août 2023 (2 mois)
• Réalisation en phase FAISA de plusieurs projets de réhabilitation, surélévation et rénovation
• Réalisation de documents en phases ESQ
• Réalisation de déclaration préalable, dépose de permis
Stage de découverte, GUIRAUD - MANENC architecture , Bordeaux
Février 2021 (1 mois)
• Gestion des appels d'offres sur M2BPO
• Rendu informatique en 3D sur Artlantis
• Conception et modélisation de mobilier intérieur
École Nationale Supérieure d’architecture et de paysage de Bordeaux (33000)
Septembre 2019 - février 2025
• Diplôme d’architecte DE, février 2025
Lycée Léon Gontran Damas, Guyane française (97300)
Septembre 2017 - août 2019
• Baccalauréat scientifique option science de l’ingénieur (mention bien)
Scénographies :
• Exposition : La chambre masquée au «308, Maison de l’architecture», bordeaux - Novembre 2020
• Exposition : PAYS[A]RCHI ! au centre «arc en rêve», Bordeaux - Mars 2023
Portable : +3(0)6 11 36 44 33
Email : passardfanthe973@gmail.com
Linkedin : www.linkedin.com/in/fanthé-passard-401201276
Adresse : 72 rue Fonfrède, 33800 Bordeaux, France
Archicad :
Suite Adobe (Id, Ps, Ai) :
Twinmotion, Enscape :
Revit, Blender :
Skecthup :
Autocad : LANGUES
A nglais : B2 (test linguaskill)
Espagnol : A2
Natation, arts graphiques, photographie
page 4-21 Kléber.
page 22-29 Ménilmontnant.
page 30-35 La Manu.
page 36-43 Adour.
page 44-49 La Levée.


Axonométrie : état des lieux


Axonométrie : projet




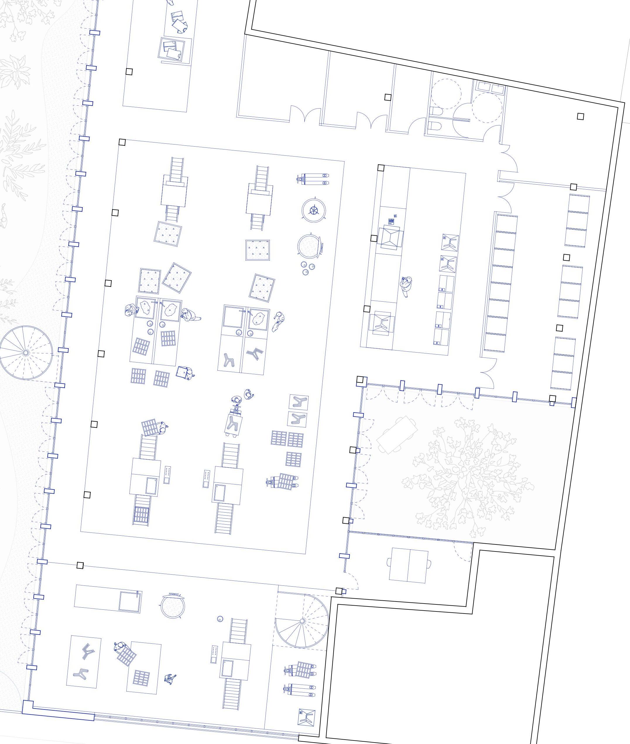
Atelier de fabrication : 5 : zone de tri des vêtements, 6 : zone de fabrication des briques acoustiques et produits dérivés, 7 : zone de séchage, 8 : empaquetage, 9 : zone d’expérimention

Bureaux d’entreprises


Bureau d’entreprise

Drainage
Substrat
Gravillion
Bardage bois brûlé
Etanchéité
Panneau OSB et pare-pluie
Isolant thermique et pare-vapeur
Poutre en bois laméllé-collé, 90x20mm
ciment
Drainage
Fondation béton


Paris
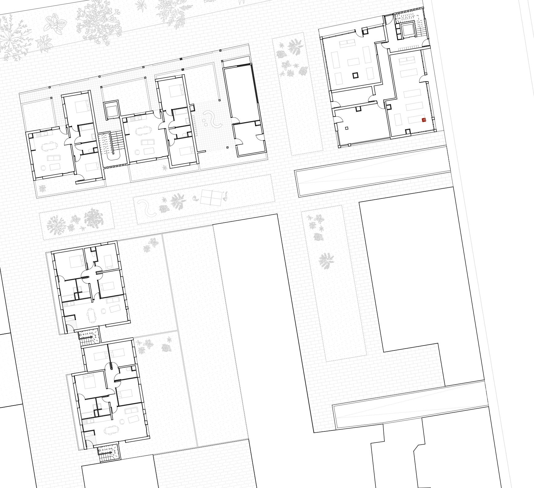
Situé sur le boulevard Ménilmontant et en face du cimetière Père Lachaise, le projet s’inscrit dans une friche en milieu dense. Il se développe suivant trois typologies : la tour, la barre et le logement intermédiaire, regroupant au total 29 logements sociaux. L’icône du projet est la tour. Elle est constituée d’une circulation extérieure au nord. Celle-ci offre des vues sur le parc du cimetière et agit de nuit comme un phare.
Projet semestre 7 - 2023
Enseignant : Loeiz Caradec

Plan : rez-de-chaussée Passage Ménilmontant





Tonneins
Ce projet de groupe est une réhabilitation de l’ancienne manufacture de tabac de Tonneins. L’intention première est d’accueillir le végétal. La verrière en toiture shed, anciennement encerclée par des bâtiments, est ainsi révélée dans un grand parc ouvert au public. Le second objectif est de venir «coloniser» le site sous forme d’éléments préfabriqués. Ce sont des box de travail en bois, pensés et conçus pour le projet. Leur structure permet de les dupliquer et de les assembler entre eux. Ils sont ainsi adaptés aux différentes activités du programme: logement, musée, atelier, espace de coworking et recyclerie. Ces modules sont ainsi employés sur l’ensemble du site, de la verrière aux bâtiments historiques inscrits.
Projet semestre 9 - 2024
Enesignants : Olivier Brochet, Vincent Arné



de jonction


Plans rez-de-chaussée et R+1 aménagés par box

Les box et leur relation avec l’existant



Plan de situation du projet et axonométrie d’un îlot




Plan : logements R+1 et terrasse partagée R+6

Terrasse partagée avec vue sur Bayonne et les Pyrénées

Matoury (Guyane française)
Ce projet, situé dans une maison, a pour objectif de créer un lien entre le séjour, cuisine et les espaces extérieurs (terrasse, pisicine). Ce lien nécessite de s’affranchir d’une chambre et de détruire une partie d’un mur supportant la charpente bois. L’intérêt est aussi d’agrandir l’ouverture du mur du séjour, pour renforcer cette relation avec l’extérieur. Celle-ci assure un apport de lumière supplémentaire et un lien visuel de l’entrée jusqu’à la terrasse.
Projet réalisé - novembre 2021


Réalisation des travaux : destruction du mur entre la chambre et le séjour



