PORTAFOLIO Arq. Francisco Alaniz

Page 1

PORTAFOLIO

2024
Francisco Alaníz, Arquitecto

ALANÍZ, Francisco

Arquitecto

Me gusta enfrentar nuevos desafíos y colaborar con equipos de diseño para llevar las ideas a la realidad, soy responsable y detallista. Me considero creativo y pragmático, capaz de dar soluciones rápidas y prácticas a problemáticas eventuales. Dispuesto a seguir aprendiendo y adquiriendo conocimientos.

CONTACTO

falaniz298@gmail.com

(3385) 447337

Ig. @farquitect

Y DISEÑO
ARQUITECTURA

Formación académica

Arquitectura

Mar 2018 – Dic 2023

Universidad Nacional de Córdoba

Diplomatura en Formación de Capataces

Abr 2024

Universidad Nacional de Córdoba

Curso de SketchUp

May 2019 - Academia Matías Varela

Curso de AutoCAD

May 2019 - Academia Matías Varela

Curso renderizado con V-Ray

Ago 2023 – ELMNTOS Arquitectura

Experiencia

Proyectista (independiente)

• Desarrollo intelectual de proyectos arquitectónicos e interiorismo

• Dirección de obras arquitectónicas e interiorismo

• Interacción activa con clientes

• Cálculo de materiales y presupuestos

Renderista (independiente)

• Manejo de software SketchUp y V-Ray

• Manejo de redes sociales y marketing digital

Dibujante y auxiliar de proyecto: Tareas de diseño manuales y digitales, así como relevamiento de campo y asistencia de proyectos.

Junto a N.G.R estudio de Arquitectura; responsable titular Sra. Arq. Nadia Georgina Rossi, con MP: 1-11660.

2024

BIBLIOTECA VÍCTOR GUZMÁN ACADÉMICO

Concurso realizado en el año 2023, junto a la cátedra de Equipamiento “B”

PROYECTO CASA CP PRIVADO

Proyecto reforma de vivienda unifamiliar, junto a estudio de Arquitectura N.G.R

CENTRO CULTURAL EX-MOLINOS ACADÉMICO

Proyecto realizado en el año 2022, junto a la cátedra de Arquitectura 5A

03
0102

PROYECTO CASA CV PRIVADO

Proyecto vivienda unifamiliar, junto a estudio de Arquitectura N.G.R

PROYECTO WORLDGYM PRIVADO

Proyecto interiorismo. Organización gimnasio

CENTRO INDUSTRIAS CREATIVAS ACADÉMICO

Proyecto tesis de grado. Cátedra de Arquitectura 6C Año 2023

0405 06

01 CONCURSO DE IDEAS: BIBLIOTECA VÍCTOR GUZMÁN

CONCEPTO

El proyecto formo parte del concurso de ideas para la biblioteca Víctor Guzmán y sala complementaria de usos flexibles en la FCS, en el marco del Acta Acuerdo firmada entre la FALD y FCS de la Universidad Nacional de Córdoba. E objetivo de este proyecto es jerarquizar el espacio de la biblioteca, fortaleciendo la integración de este espacio al edificio, promoviendo y facilitando su uso para la comunidad de la FOS.

FICHA TÉCNICA

Tipología: Institucional / biblioteca.

Ubicación: Facultad de Ciencias Sociales

– Ciudad Universitaria, Córdoba.

Fecha: Octubre 2022

Proyecto: Alaniz Francisco, Antunez Julieta, Amilibia Camila.

02 PROYECTO CASA CP:

VIVIENDA UNIFAMILIAR

CONCEPTO

Proyecto de ampliación y remodelación de una vivienda estándar. A la cual se le agregó un amplio dormitorio con vestidor y baño propio. Se ocupó todo el ancho del terreno con la incorporación de un garaje para dos autos y a su vez permite el ingreso directo hacia el interior de la vivienda y el patio. Además, se recuperó el espacio de un viejo garaje ubicado en la parte trasera del lote, dándole al mismo uso de quincho/asador.

FICHA TÉCNICA

Tipología: Residencial / vivienda unifamiliar

Ubicación: Barrio centro Localidad de Jovita, Córdoba.

Fecha: Noviembre 2022

Proyecto: Arq. Nadia Georgina Rosi – Arq. Francisco Alaniz

Axonométrica con expansión Fachada principal Vista quincho

03 CENTRO CULTURAL EX-MOLINOS

CONCEPTO

Se propone intervenir en el sector de los viejos molinos del río de la plata. Este sector tiene un gran potencial debido a su cercanía al centro cívico y terminales de transporte público que busca rehabilitar los edificios y espacios obsoletos, considerados patrimonio de la ciudad, dándole una nueva utilidad y respondiendo a la propuesta de cohesión y densificación social y física.

La propuesta busca refuncionalizar el edificio del ex-molino con programas deportivos, culturales, educativos y recreativos. Se enlaza un nuevo edificio cultural, con la incorporación de un auditorio, biblioteca y sectores de exposición. El mismo se adapta de forma armónica al entorno, con una imagen sugestiva que genera una conexión entre el río y la ciudad.

FICHA TÉCNICA

Tipología: Institucional

Ubicación: Ex Molinos Río de la Plata, Córdoba.

Fecha: Noviembre 2021

Proyecto: Alaniz Francisco, Antunez Julieta, Amilibia Camila.

Volumen inicial de implantación

Sistema de circulaciones internas

Estructura como respuesta al programa, implantación, orientaciones

Programa específico

04 PROYECTO CASA CV:

VIVIENDA UNIFAMILIAR

CONCEPTO

El proyecto se ubica en un lote en esquina, sobre las calles Sarmiento y Remigio García, en la localidad de Jovita. El terreno presenta una superficie de 187,5 m2. Se implanta una edificación en “L”, distribuyendo los locales hacia la línea municipal, dando origen a un patio amplio y en continuidad con la sala principal

FICHA TÉCNICA

Tipología: Residencial / vivienda unifamiliar

Ubicación: Barrio sur

Localidad de Jovita, Córdoba.

Fecha: Febrero 2023

Proyecto: Arq. Nadia Georgina Rosi – Arq.

Francisco Alaniz

Axonométrica edificación total Fachada Sur Fachada Este

CONCEPTO

Proyecto de interiorismo, realizado dentro de una edificación existente, en la cual se desarrollaran actividades deportivas. En este salón, se realizaron arreglos ya que el mismo se encontraba deteriorado.

Lugo continuamos con la distribución espacial, con recepción, circulación, y actividades deportivas que se van a realizar dentro del mismo.

Por ultimo, una propuesta de colores para la terminación del mismo.

FICHA TÉCNICA

Tipología: Deportiva / gimnasio

Ubicación: Barrio centro

Localidad de Jovita, Córdoba.

Fecha: Febrero 2024

Proyecto: Arq. Francisco Alaniz

05
PROYECTO WORLDGYM

Volumen exterior

Organización y distribución interior

Volumen libre a intervenir

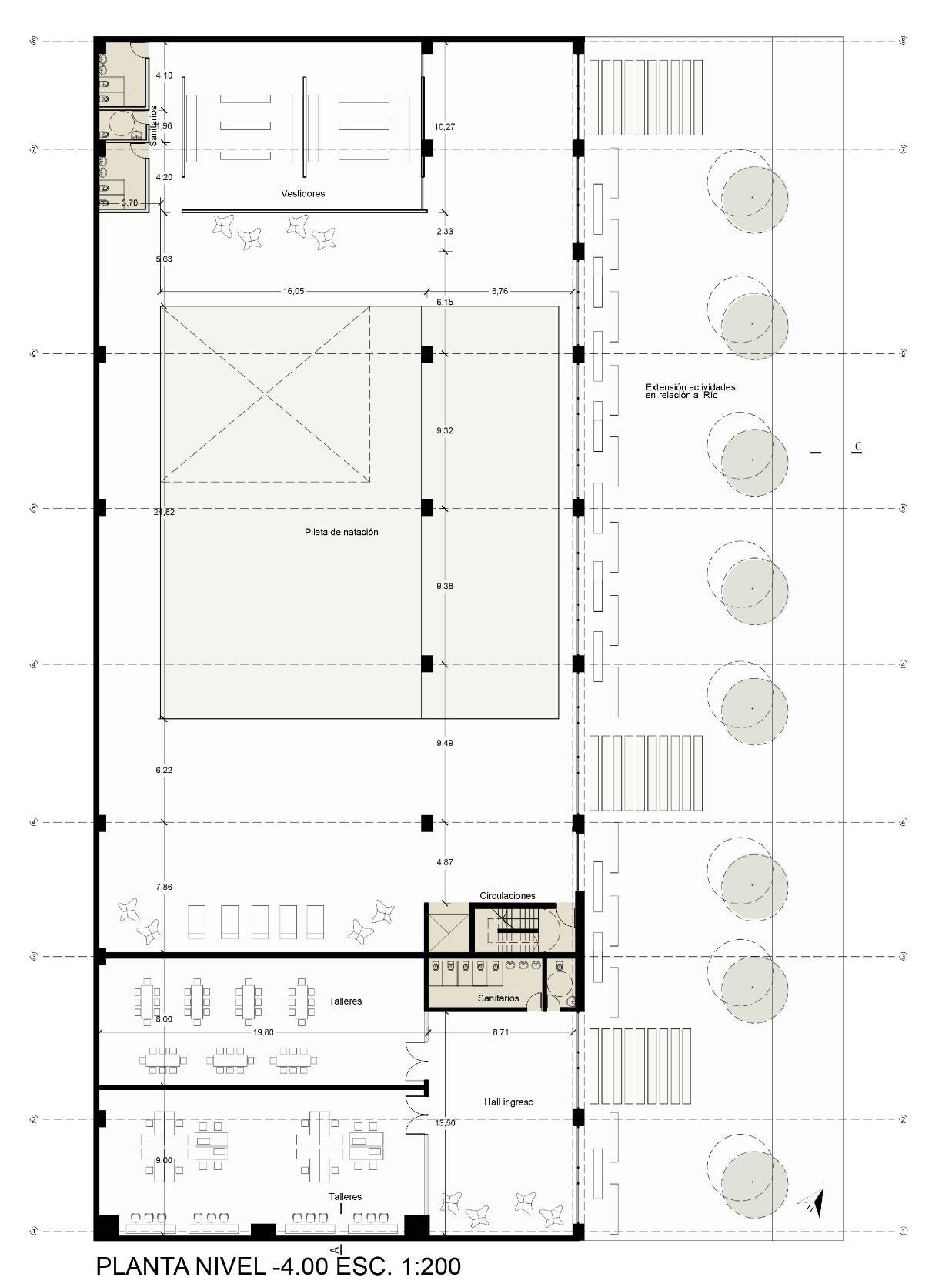
PROYECTO: CENTRO DE INDUSTRIAS CREATIVAS

CONCEPTO

Espacio destinado a crear una estructura de oportunidades y vínculos entre los diferentes sectores creativos, tanto académicos como profesionales, visibilizando los emprendimientos de los diferentes actores que conforman el universo de la cultura, el arte y la economía creativa de la ciudad.

FICHA TÉCNICA

Tipología: Institucional

Ubicación: Av. Colón y Calandria.

Fecha: Diciembre 2023

Proyecto: Alaniz Francisco, Antunez Julieta, Amilibia Camila.

06
CORTE LONGITUDINAL
FACHADA PRINCIPAL – Calle Calandria

CONTACTO

falaniz298@gmail.com

(3385) 447337

Ig. @farquitect

2024
Francisco Alaníz, Arquitecto

Turn static files into dynamic content formats.

Create a flipbook
Issuu converts static files into: digital portfolios, online yearbooks, online catalogs, digital photo albums and more. Sign up and create your flipbook.