Drafter Portofolio

Page 1

Nur Fajar

Usman

My Name is Usman Nur Fajar

I graduated from :

Institud Teknologi Sepuluh Nopember, Surabaya

Bachelor of Marine Engineering

State Shipping Polytechnic of Surabaya

Majoring in Marine Electrical Engineering

Diploma of Marine Electrical Engineering

Profil

Table of Contents

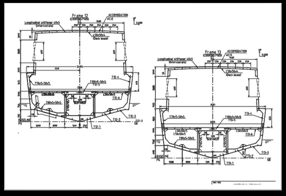
Tanker 3500 LTDW

KPLP

Pilot Boat 14 m

Patrol Boat 10 m

Passenger Boat 12 m

Passenger Boat 11 m

Speed Boat 12 m

Bus Air Ro-Ro

CV
Contents
Photo
by Simone Hutsch

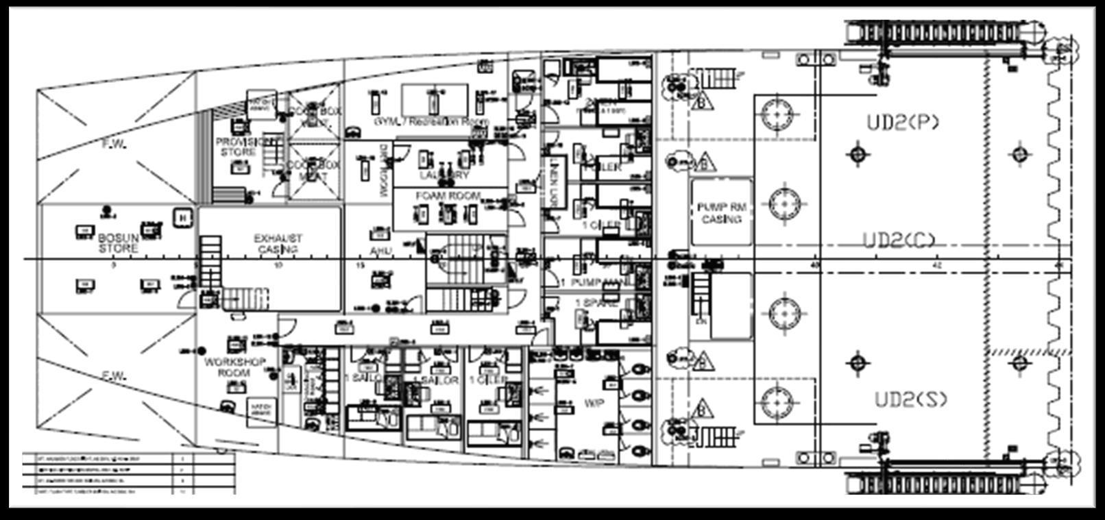
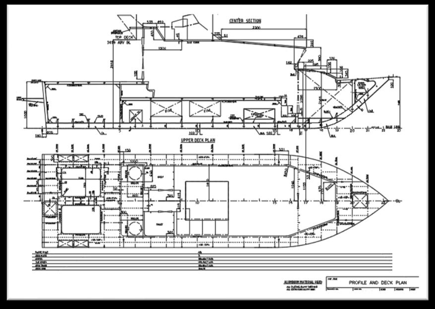
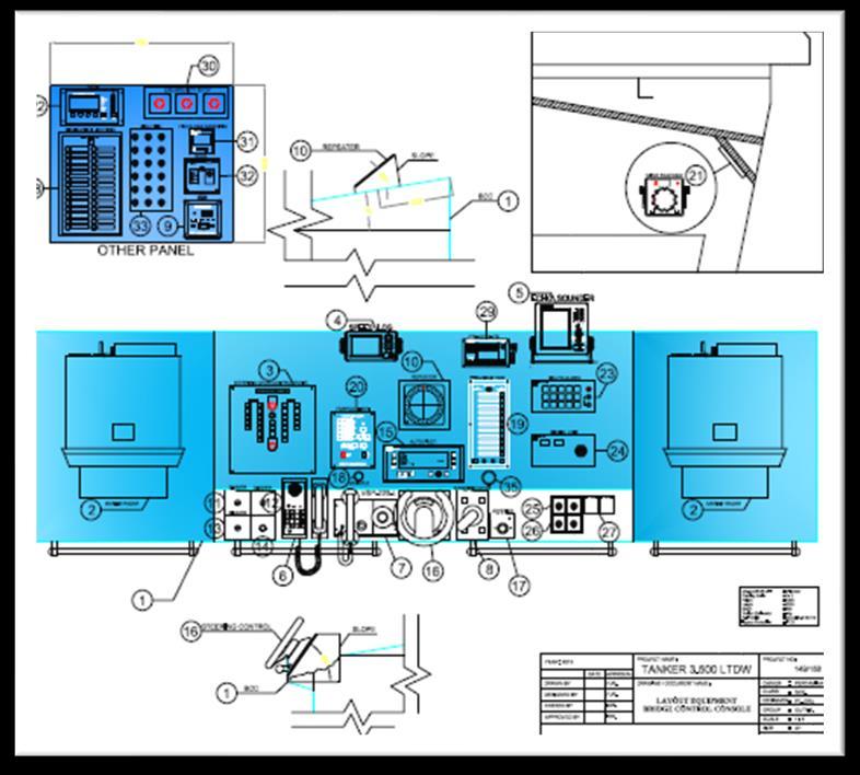
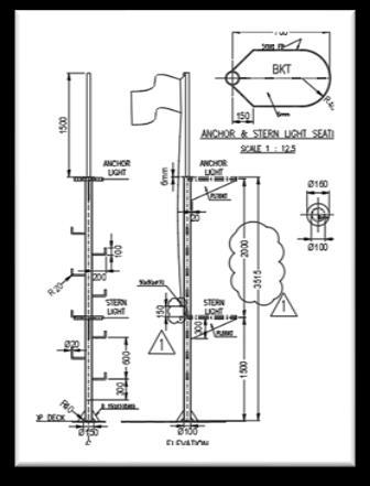
Tanker 3500 LTDW – Pertamina

Pembangunan 3 unit Kapal Tanker 3500 di galangan kapal DRU unit 3 – Lampung

Scope of Work : Electrical System

KPLP 60 m

Pembangunan 2 unit Kapal Patroli KPLP di galangan kapal DRU unit 1 – Jakarta

Scope of Work : Electrical System, GA

Patrol/Pilot Boat 14 m

Pembangunan Kapal Patroli/Pilot di galangan kapal Tri Ratna Diesel – Surabaya

Scope of Work : GA, Construction, Outfitting

Patrol Boat 10 m

Pembangunan Kapal

Patroli 10 m

Scope of Work : GA, Construction, Outfitting

Passenger Boat 12 m

Pembangunan Kapal

Penumpang 12 m

Scope of Work : GA, Construction, Outfitting

Passenger Boat 11 m

Pembangunan Kapal

Penumpang 11 m

Scope of Work : GA, Construction, Outfitting

Speed Boat 12 m

Pembangunan Kapal

Pengawasan 12 m

Scope of Work : GA, Construction, Outfitting

Bus Air Ro-Ro Catamaran Pembangunan Kapall

Penyeberangan Bus Ait RoRo 13,8 m

Scope of Work : Yard Plan,

Detail Drawing

Turn static files into dynamic content formats.

Create a flipbook
Issuu converts static files into: digital portfolios, online yearbooks, online catalogs, digital photo albums and more. Sign up and create your flipbook.