Fadi Kandalaft Architecture Portfolio FALL 2021 - SPRING 2023

Page 1

PORTFOLIO

FADI KANDALAFT

UNIVERSITY OF OKLAHOMA

COLLEGE OF ARCHITECTURE

FALL 2021 - SPRING 2023

INVISIBLE CITIES

FALL 2021

Based on a series of narratives from “Invisible Cities” by Italo Calvino, a conceptual city was to be derived using concepts of spatial organization, emotion, light and texture. Choosing the excerpt describing the vertical city of Isaura, this proposal portrayed how a city can seperate itself from the ground level yet connect itself through other means.

INVISIBLE CITIES

LAND VESSELS

SPRING 2021

From a selection of houses around the world, a detailed draft of floor plans, sections, and elevations were produced followed by analytical drawings and models. The intent of this assignment was to improve skills in both hand drafting and understanding of spaces. Focus was placed on delineating public and private spaces and their relationships, site integration and views, and material usage.

LAND VESSELS

LAND VESSELS

RENEGADE CLASSROOM

SPRING 2021

Atop the Arbuckle Mountains in south-central Oklahoma, the site for this project faced the beautiful Turner Falls waterfall. A small school with a program of two classrooms open to all sides of the environment to allow for constant sunlight and ventilation. Additionally, a 300 sq-ft teacher residence was to be integrated nearby, also with a focus on the view down the mountain range.

RENEGADE CLASSROOM

ENTOMOLOGY PROGRAMMING FALL

2022

From an assortment of insects, one was chosen to conduct research on, hand-render, and design a habitat based on these findings. Through designing a space for an insect rather than a human, concepts such as biomimicry and a deep understanding of the bugs needs and skeletal structure are crucial in order to develop an effective habitat. The bug chosen for this project was the “Necrodes Surinamensis” or Red-Lined Carrion Beetle.

ENTOMOLOGY PROGRAMMING

HAND-RENDERED BOARD

STUDY MODELS

ENTOMOLOGY PROGRAMMING

PHYSICAL MODEL

DIGITAL BOARDS

EQUINE ASSISTED THERAPY CENTER

FALL 2022

Focused on principles of inclusivity and universal accessibility, the Equine Assisted Therapy Center aids children with developmental disabilities through the serenity and rehabiliting qualities of equine therapy. Located behind the J.D. McCarty Center in Norman, Oklahoma, the site overlooks a water reservoir to the east with prevailing winds funneling through the tree line to the northwest. Through the use of a split organization prioritizing view, circulation, and seamless transitions between areas of differing levels of stimulation, the center serves as a safe space for children with varying levels of ability. The central therapeutic riding arena acts as the focal point from which all the architecture stems from. The orientation of the center provides for a properly ventilated horse stable, with the human space enjoying plenty of sunlight and southern wind.

EQUINE ASSISTED THERAPY CENTER

EQUINE ASSISTED THERAPY CENTER

THE LIFT HOUSE TINY HOUSE COMPETITION (with Benamin Jawad)

FALL 2022

Despite Park City Mountain being the United State's largest ski resort, its employees lack access to afford- able housing. Although the employees are essential for maintaining the quality of the resort, they do not have access to affordable housing options within a close radius of their workplace. Located between the Three Kings Terrain Park and Three Kings ski slopes, the tiny home units can be accessed via the First Time or Three Kings lifts. Employees can ski directly from their homes onto the slopes, providing convenient access to the wide network of ski lifts leading to any point on the resort. Due to their close proximity to the base of the mountain, the units have easy access to a wide range of Park City amenities. Within the home, a private cluster housing the entry, bathroom, and loft transitions into an open lounge with views of Park City and the mountainous terrain nearby. Wide views through large window panes immerse the user in the natural landscape while allowing a healthy amount of sunlight into the space. The Lift House intends to aid adventure-seeking ski resort employees by providing an affordable, innovative housing concept that immerses the user within their environment.

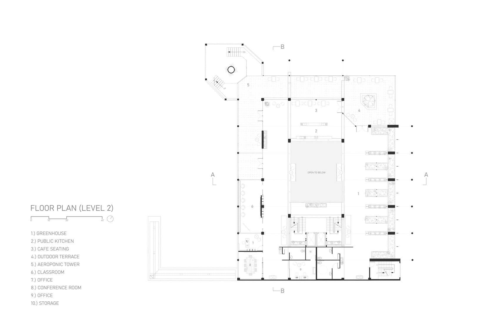
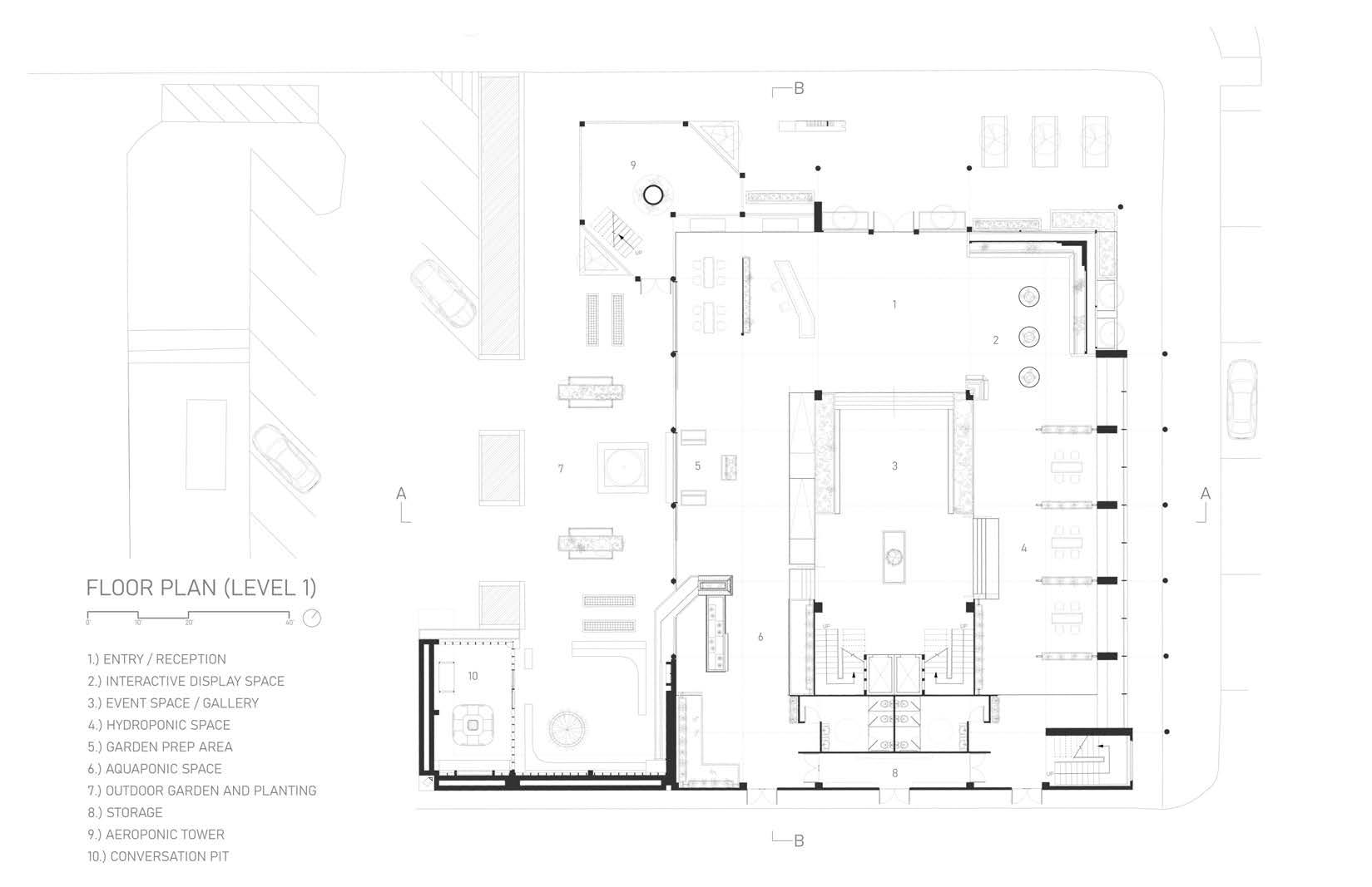
NORMAN URBAN FARMING CENTER

SPRING 2023

Located in the heart of downtown Norman, the Norman Urban Farming Center seeks to provide a resource for community engagement and integration through the means of applying urban farming practices into users’ daily lives. With an emphasis on the benefits of vertical farming through the means of hydroponics and aeroponics, this center introduces a fresh take on biophilic design within Norman's urban fabric.

Turn static files into dynamic content formats.

Create a flipbook
Issuu converts static files into: digital portfolios, online yearbooks, online catalogs, digital photo albums and more. Sign up and create your flipbook.
Fadi Kandalaft Architecture Portfolio FALL 2021 - SPRING 2023 by fadi.kandalaft - Issuu