MEMORIA DESCRIPTIVA PORTICOS INGRESO GANCEDO

Page 1

Memoria Descriptiva

Ingreso Principal

Pórtico

Memoria descriptiva pórtico de ingreso principal localidad de Gancedo

Hacia el sudoeste de la provincia del Chaco ubicada en el departamento 12 de octubre se encuentra la localidad de Gancedo, lugar donde se de sarrolló esta propuesta arquitectónica de pórticos de ingreso. Teniendo como cliente a la municipalidad de dicha localidad, la deman da planteada fue la de realizar unos pórticos de ingreso sobre la avenida principal (Avenida Argentina), que estos se encuentren dentro de la juris dicción de la localidad (no invadan el trazado de la ruta nacional 89) y que al mismo tiempo estos pórticos representen social y culturalmente a los habitantes.

La pauta de diseño principal es utilización de materiales que sean repre sentativos de algo que está muy arraigado a la cultura y al inconsciente colectivo de los habitantes de Gancedo cómo lo son los meteoritos que se encuentran en la reserva Campo el Cielo.

Características de diseño principales

Aspectos formales

Se ha utilizado a la arquitectura clásica como regulador de la composición ar quitectónica en un contexto contemporá neo.

En fachada se destaca el orden clásico del basamento (tímidamente acentuado con unas esferas de acero), un desarro llo y una coronación, donde la sección de la viga superior duplica en altura a las columnas laterales.

El operador morfológico principal es la simetría reflexiva.

Se plantea la realización de ocho arcos dispuestos rítmicamente una distancia de 5 m si tenemos en cuenta una línea paralela al trazado de los cordones de la calzada.

La contextualización de la propuesta se realiza mediante la utilización de materia les metálicos utilizados en los Arcos y en la estructura que los une.

— 2

Gracias a estos materiales se representan a los me teoritos tanto en su parte exterior expuesta a la in temperie donde se deja ver a través de su super ficie el paso del tiempo, así también como en su parte interior ese acero puro brilloso del que están compuestos.

Aspectos espaciales.

La escala como otro de los aspectos destacables de la forma arquitectónica, con la longitud de la ave nida y una altura de aprox 8 mts. Un patrón realizado en el revestimiento de aluminio que unifica los arcos oxidados deja atravesar la luz a través de él, haciendo referencia a estos cuerpos celestes que inundan nuestro cielo.

Representación de la escala de los pórticos en relación a la escala humana

Aspectos Constructivos - Materiales

Estructura resistente.

La estructura principal de la propuesta es ma terializada a través de los arcos que están compuestos por columnas y vigas reticuladas similares a las utilizadas en los galpones o na ves industriales, revestidos con chapa lisa ne gra que podrá ser utilizada como encofrado para colar hormigón dentro. Verificar esta posi bilidad con el técnico calculista. Éstos arcos se encuentran vinculados entre sí por perfiles que arriostran el conjunto y a su vez sirven como estructura al revestimiento de color aluminio.

— 3

Envolvente.

Hay dos materiales existente en la envolvente arquitectónica, por un lado se encuentra un material oxidado del cual están formados los arcos y por otro lado se encuentra esa lámina de aluminio que unificael conjunto.

Dependiendo de la disponibilidad de materiales hay diferentes formas de materializar esas terminaciones.

Efecto oxidación.

El efecto oxidación puede ser logrado de diferentes maneras pero las que consideramos más viables son la implementación de acero corten en crudo, o la utilización de chapa lisa negra impregnada con pinturas especiales qué contienen materiales ferrosos y que estos, utilizando productos activadores de óxido,reproducenelefectodeoxidaciónnaturalque está presente en el hierro expuesto a la intemperie.

se puede optar por la opción de utilizar un sistema constructivo industrializado como los ya disponibles en el mercado, opor realizar este revestimiento in situ ( cortando y soldando) y oxidarla manual mente con los productos ya menciona dos.

Revestimiento de aluminio perforado.

Se puede optar para la realización de este revestimiento la utilización de sis temas constructivos ya presentes en el mercado. ej. Hunter Douglas, con di ferentes patrones de perforado, o sino también existe la posibilidad de realizar un entramado estructural compuesto de una estructura principal y una secundaria a la cual serán fijadas chapas lisas (alumi nio o chapa de hierro) con un patrón de perforación determinado.

Cabe aclarar que en el caso de que se utilice chapa lisa de hierro perforada, se necesitará pintar dicha superficie con pintura sintética antioxido y esmalte color aluminio.

Las dimensiones de dicha estructura así también como la disposición de la misma dependerá de la modulación necesaria según productos disponibles y del aná lisis de cargas ( permanentes y acciden tales).

Chapa Perforada 1220 ×2440 Hierro disponibles en el mercado. Patrón a seleccionar el de la foto superior

Revestimientos para fachadas con sistemas constructivos industrializados

— 4

Modulación.

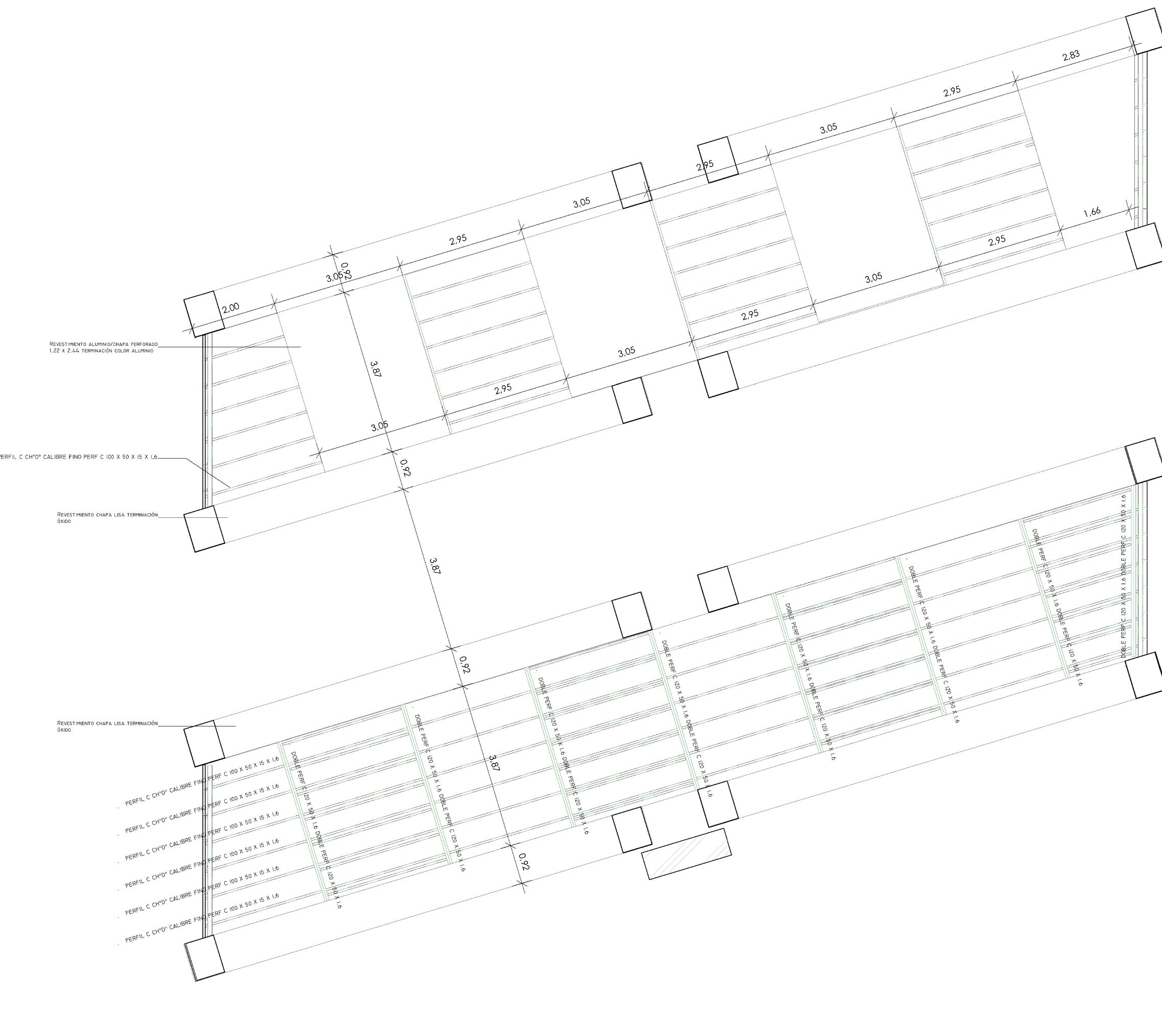
En el caso de no poder contar con sistemas cons tructivos ya industrializados, Se plantea la posibili dad de establecer una modulación que permita la adhesión de chapas perforadas de 1.22x2.44 m Las cuales serán impregnadas con Pinturas sintéticas color aluminio 3 en 1.

La estructura de soporte para las paredes laterales está compuesta por una estructura principal perfil C y 120 × 50 × 15 × 1,6, galvanizado o pintado dispues tos en una modulación de 2.44 m que es igual al alto de la chapa, en su zona intermedia del lado In terior de los pórticos se coloca un refuerzo el cual quedará oculto por una segunda capa revestimien to.

A esta estructura principal se adosa una estructura secundaria de perfiles C de 100 × 50 × 15 × 1,6 dis puestos cada 61 cm.

— 5

La vinculación entre la chapa y los perfiles de la es tructura secundaria se dará mediante tornillos cabe za fresada Pintado del mismo color que la chapa Y los perfiles estructurales.

La vinculación entre estructuras principales y secun darias se realizará mediante soldaduras de la misma forma que la estructura principal del revestimiento se adosará a los arcos estructurales pudiendo refor zarse su base de apoyo con planchuela y bulones. La estructura superior se materializará como dice el plano respectivo, estando sujeta siempre a modi ficaciones según indique el análisis de cargas y el dimensionado estructural realizado por el calculista.

En las imágenes ilustrativas se ven las correas sin pintar pero en realidad van pintadas del mismo co lor que el revestimiento.

Según el recuento de perfiles y paneles realizado con el software Revit Architecture, se necesitarán 168 paneles perforados de chapa 1.22 x 2.44 m; 17

PERF estructural C 120 X 50 X 15 X 1,6mm de 12 m de largo y 57 PERF C 100 X 50 X 15 X 1,6 de 12m sin contar desperdicios y teniendo solo en cuenta el re vestimiento terminación aluminio.

Renders ilustrativos de la propuesta Arquitectónica

Iluminación

Ya que la materialidad dentro de esta propuesta de diseño es sumamente importante, es indispensable la Disposición de la luminaria correspondien te para que, en el horario noc turno se resalte dicho aspecto.

Para eso se propone la incor poración de un tipo de lumina ria orgánica suspendida des de la estructura principal de los pórticos así también como spots para exteriores embuti dos en el suelo y también sus pendidos en el revestimiento justamente para resaltar la ilu minación interior de la propues ta a través de esas perforacio nes que posee la envolvente.

La incorporación de tiras LED o el uso de reflectores en el inte rior , apuntando hacia el reves timiento son una de las formas de lograr este efecto lumínico.

— 7

Turn static files into dynamic content formats.

Create a flipbook
Issuu converts static files into: digital portfolios, online yearbooks, online catalogs, digital photo albums and more. Sign up and create your flipbook.