Ezgi Kaplan Portfolio

Page 1

Selected Works

Ezgi Kaplan | PORTFOLIO |

resume

Phone: +90 538 798 3632

E-mail: ezgirsl11gmail.com

Location: Kadıköy, İstanbul

Personal Statement

As a final-year architecture student at Mimar Sinan Fine Arts University, I want to explore the world of recycling and crisis response within the architecture field. It is my dream to not only design but also work in the construction process myself. I care about fair food practices and try to live a life that challenges consumerism. I want these values drive me to create equitable architectural solutions that respect both people and the planet. I enjoy learning a little bit of everything and trying different paths of life. I hope I can make my life a continuous learning and I am ready to make a meaningful impact on our built environment.

2

EDUCATION:

Fall 2018 - Present.....................

EXPERIENCE:

Present.......................................

June 2022..................................

Mimar Sinan Fine Arts University Faculty of Architecture Department of Architecture

August 2021...............................

October 2020............................

July 2022....................................

August 2022..............................

Ecological School Gardens Program ‘Kokopelli Şehirde’

atölyezea Intern ‘They design settlements that are harmoniously aligned with water, energy, food, and all resource cycles by integrating a holistic system design approach and coordinating interdisciplinary work subjects.’

Net Architects Intern ‘Mostly interior design.’

Manas Architecture Intern

Worked for renovating hut from 1860s in Norway.

Worked for renovating a wagon in Netherlands.

I lived 3 monts in Southeast Asia (Thailand, Vietnam, Laos), 1 month in Norway, experienced France, Netherlands, Poland, Germany, Switzerland, Luxembourg and Belgium. I did several ‘workaway’s around Europe.

May 2019......................................

February 2019..............................

REBUS Exhibition

Edirne Illustrations and Postcards Exhibition

SOFTWARE SKILL:

Adobe Indesign

Adobe Illustrator

Adobe Photoshop AutoCAD Sketchup V-Ray

3
4

Dolapdere Hover Stage (Architectural Design Studio 3)

Haydarpaşa Museum (Architectural Design Studio 4)

Üzümlü Atelier (Interior Spatial Organization Design)

Death (Death, Art and Space)

Dolapdere (Photography)

5
contents 01
02
03
04
05
6-21
22-47
48-59
60-61
62-63
Ezgi Kaplan Portfolio 2021 —2024 6

dolapdere hover stage

01. ARCHITECTURAL DESIGN STUDIO 3

Project: Mixed Use

Date: 2023 Fall

Ezgi Kaplan Portfolio 2021 —2024 7

In this floating building project, users walking along the street facing the southeast façade can enjoy interfere with the seamless panorama.

The opposite side

Ezgi Kaplan Portfolio 2021 —2024 8

enjoy an unobstructed view. The existing valley topography ensures that the building does not

Ezgi Kaplan Portfolio 2021 —2024 9

We are at the border the scale of development cation measures.

Ezgi Kaplan Portfolio 2021 —2024 10 Site plan

Site plan

border of Beyoğlu and Şişli in Istanbul, an area marked by gentrification and high social vulnerability as development increases. Our aim is to prioritize user participation, flexibility, adaptability, and anti-gentrifi-

Ezgi Kaplan Portfolio 2021 —2024 11

A mixed-use structure has been designed in Dolapdere to accommodate the changing and expanding scale, allowing everyone to participate. The main structure appears to float in the air and is influenced by flexible and open-plan designs throughout the project. The supports have been minimized, and circulation functions have been integrated into the supports.

At ground level, there are units where local and smallscale producers can sell their products. These units cater to both urban farmers and small producers of art and design products. In the floating mass, large curtains and acoustic folding doors that can be easily manipulated on a rail system make the space flexible and versatile, allowing for

different capacities and configurations.

The project’s goal is to ensure transparency and a lightweight appearance, which aligns with its functional flexibility. It’s as if the building itself adapts to users’ needs through automation and collaboration, resulting in a structure that can be managed by its users.

Ezgi Kaplan Portfolio 2021 —2024 12
Ezgi Kaplan Portfolio 2021 —2024 13
Ezgi Kaplan Portfolio 2021 —2024 14 1 2 4 3 5 6 7 5

Ground Level 0.00 Level 1 +5.00

1: Flexible square for the building: sports field, ecological and second-hand market area, event area

2: Changable size shops for small creators, producers

3: Conference hall

4: Public WC

5: Load-bearing circulation

Ezgi Kaplan Portfolio 2021 —2024 15
6: Municipal restaurant 7: Flexible studios
Ezgi Kaplan Portfolio 2021 —2024 16 10 8 9 Level 2 +10.00

Level 4 +20.00

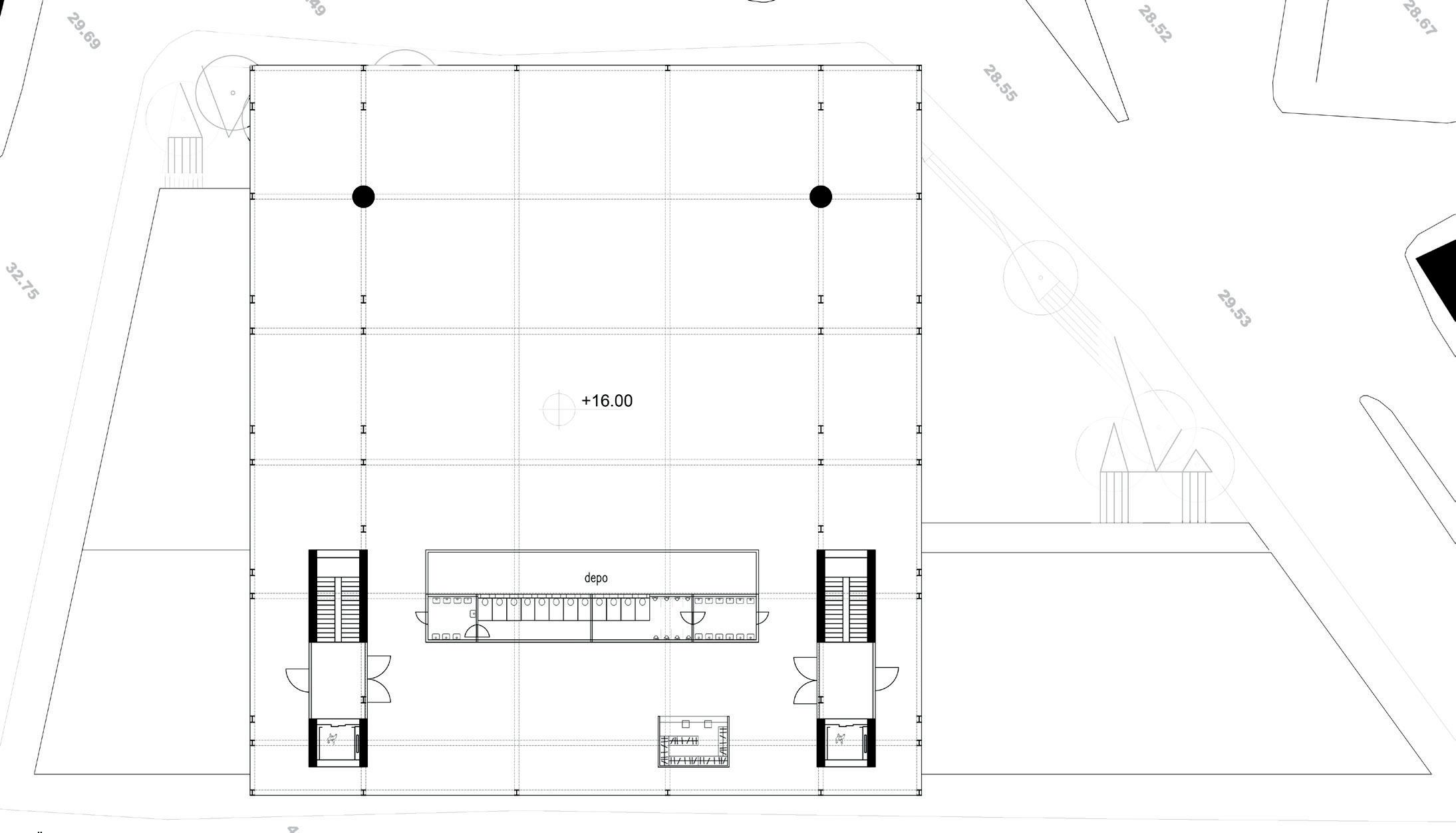
Cafe

Library

Terraces

Multi-purpose hall

Foyer 13: Mezzanine office

Ezgi Kaplan Portfolio 2021 —2024 17 11 12
13
Level 3 +16.00
8:
9:
10:
11:
12:
Ezgi Kaplan Portfolio 2021 —2024 18
Metal Panel Thick Curtains Glass Concrete on metal sheet Metal Panel

Rectangular wet spaces throughout the building that don’t lean against the walls; as a result preserving the building’s purity and flexibility.

Ezgi Kaplan Portfolio 2021 —2024 19
Ezgi Kaplan Portfolio 2021 —2024 20
Ezgi Kaplan Portfolio 2021 —2024 21
Ezgi Kaplan Portfolio 2021 —2024 22
Elevation (Meat and Fish Board) School

haydarpaşa museum

02. ARCHITECTURAL DESIGN STUDIO 4

Project: Museum/ Archaeological Institute

Building

Date: 2023 Spring

Ezgi Kaplan Portfolio 2021 —2024 23
Archaeological site

Within the scope of the project, in a multilayered and historically rich city like Istanbul, although the excavation areas should be preserved as archaeological sites, it has been preferred to cover these areas and add new layers. This preference has caused the issue or controversy of the project to emerge.

Ezgi Kaplan Portfolio 2021 —2024 24
Ezgi Kaplan Portfolio 2021 —2024 25

We are in Kadıköy, by the bay next to Haydarpaşa Train Station. Project arose from the concern for the future of the remnants unearthed behind Haydarpaşa Train Station and the realization that the city unearthed from underground has already been demolished through projects like Nautilus, aiming to preserve the existing value in a functional manner.

Ezgi Kaplan Portfolio 2021 —2024 26
Current satellite image of the site
Proposed
Ezgi Kaplan Portfolio 2021 —2024 27 Proposed site plan
Ezgi Kaplan Portfolio 2021 —2024 28

The design for Haydarpaşa Museum is a project that combines archaeology, education, and community engagement. This design aims to exhibit the remnants unearthed from the Khalkedon settlement excavations behind Haydarpaşa Train Station, provide educational opportunities for archaeologists and students, and simultaneously offer visitors an interactive experience.

The design of Arkeopark, with pedestrian ramps connecting the entire area, is aimed at enabling the exploration of the entire area.

Meat and Fish Board is also a department building designed to address the shortcomings of MSFAU’s archaeology department. Equipped with modern educational facilities, laboratories, classrooms, and workspaces, this department building serves archaeology students.

Ezgi Kaplan Portfolio 2021 —2024 29
Ezgi Kaplan Portfolio 2021 —2024 30

The ground floor of the museum establishes a connection with the department building, only professionals and students can use. On the first floor, which is where visitors and archaeology enthusiasts enter, galleries displaying the remnants begin. Here, anyone interested in archaeology can experience what Arkeopark has to offer.

Ezgi Kaplan Portfolio 2021 —2024 31
Ezgi Kaplan Portfolio 2021 —2024 32
Section
Ezgi Kaplan Portfolio 2021 —2024 33
Ezgi Kaplan Portfolio 2021 —2024 34
Ezgi Kaplan Portfolio 2021 —2024 35
Ezgi Kaplan Portfolio 2021 —2024 36
Section Program diagram South Elevation
Ezgi Kaplan Portfolio 2021 —2024 37
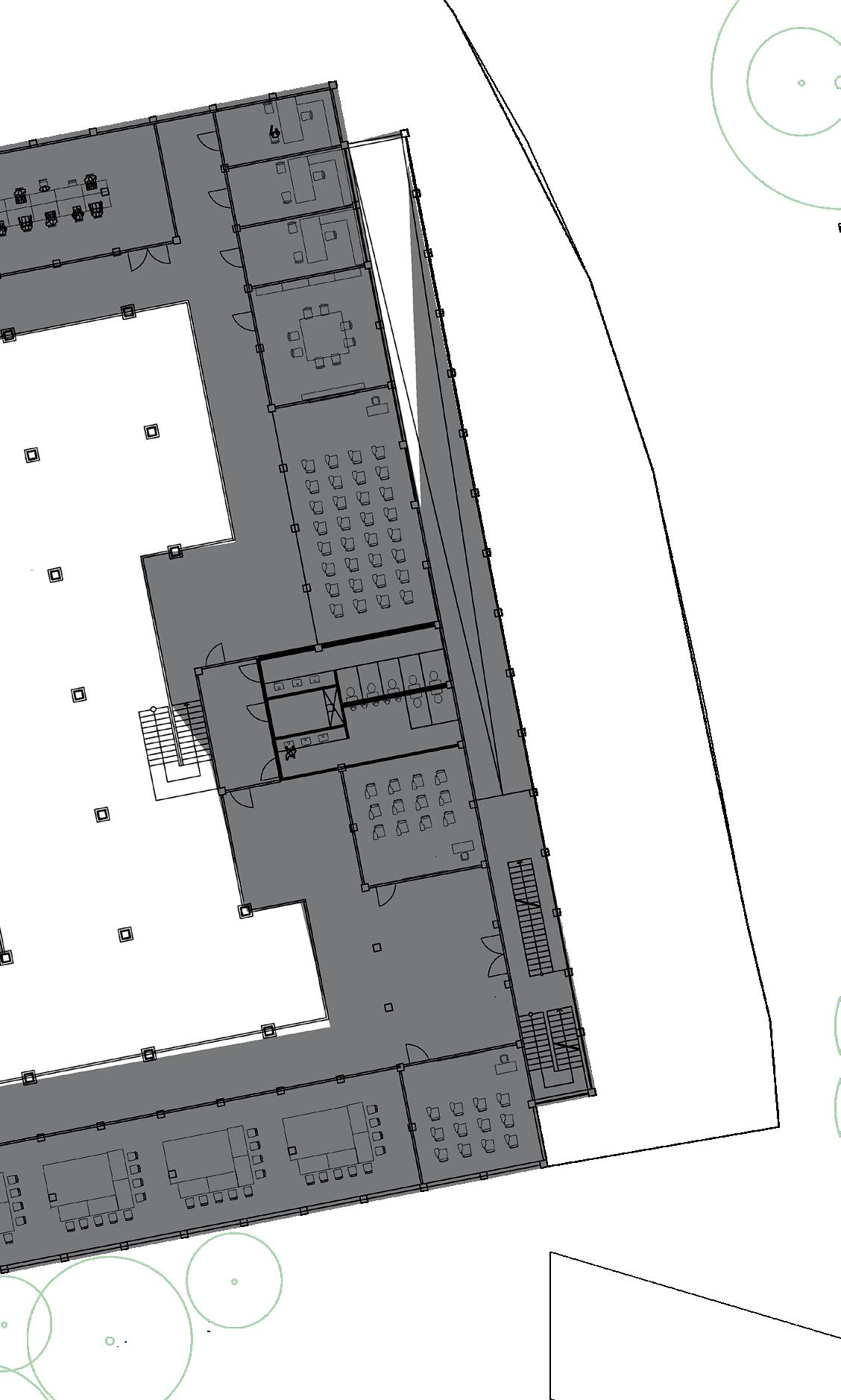
Ezgi Kaplan Portfolio 2021 —2024 38 Ground Level Level 1 1 2 3 3 3 3 3 3 4 5 6 7 8 9 2 10 10 15 10 10 11 12 13 14

1: Entrance for workers and students

2: Elevator for remnants

3: Labs and Lecture halls

4: Management offices

5: Cafeteria

6: Foyer

7: Auditorium

8: MAIN ENTRANCE for visitors

9: Wet space

10: Galleries

11: Shop

12: Cafe

13: Terrace cafe

14: Square/Meeting point

15: Terrace gallery

Ezgi Kaplan Portfolio 2021 —2024 39
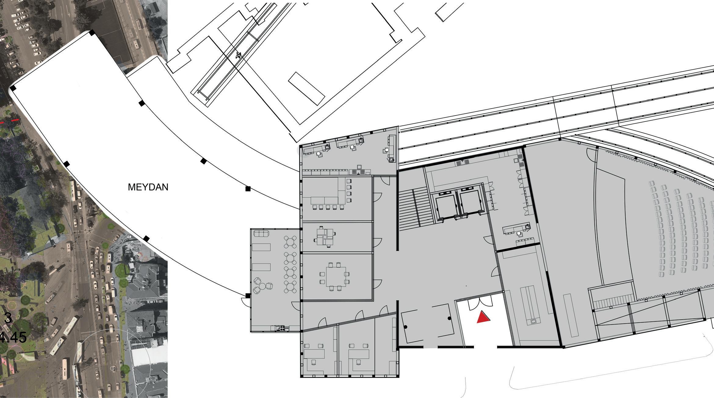
14
Ezgi Kaplan Portfolio 2021 —2024 40 4 5 6 1 1 2 3

1: Copper-clad soffits were used on selected area ceilings, reflecting various activities and archaeological remnants underneath, providing visitors a different perspective.

2: The façade covering the exhibition areas is a perforated aluminum layer that filters light. The north, east, and west facades were designed to avoid direct exposure to light.

3: The south facade is the most protected facade.

Feeling from the inside

Ezgi Kaplan Portfolio 2021 —2024 41
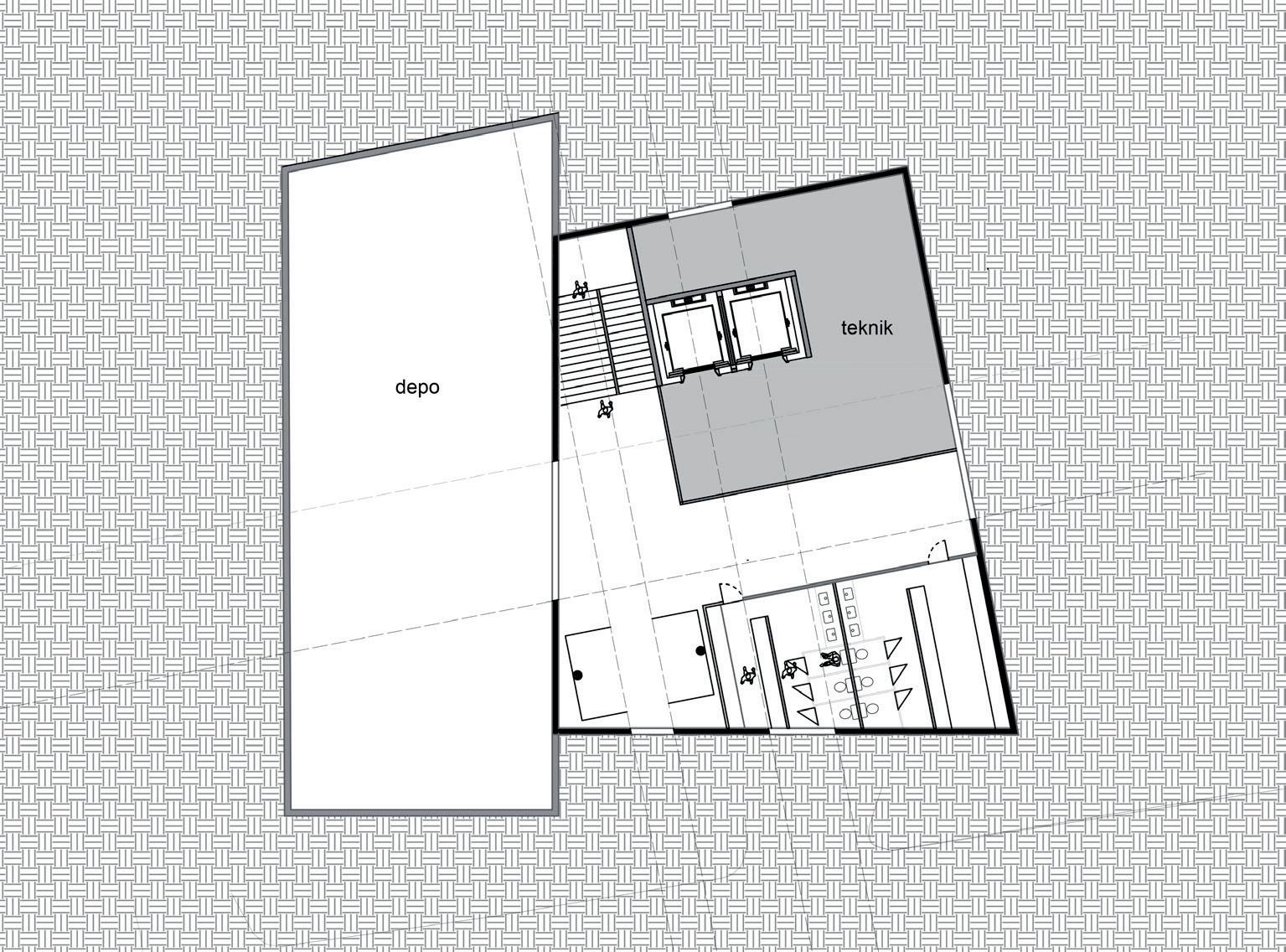
4: Metal structure. 5: Concrete core 6: Scissor metal boxes connected to the core
Ezgi Kaplan Portfolio 2021 —2024 42
18:
Level 2 10 10 10 10 16 16 2
16: Green terrace 17: Dressing room and WC Storage and technical space
Ezgi Kaplan Portfolio 2021 —2024 43 18 18 17 2
Lower ground floor
Ezgi Kaplan Portfolio 2021 —2024 44 7 8

7: When the night lights are turned on, the visibility of the indoor activities from the outside.

8: We see perforated metal material again on the tour ramps, with holes large enough to provide uninterrupted views of historical remains.

Ezgi Kaplan Portfolio 2021 —2024 45
Ezgi Kaplan Portfolio 2021 —2024 46 Elevation Ground Level Level 1 Meat
reuse
and Fish Board
Ezgi Kaplan Portfolio 2021 —2024 47 Level 2

03. INTERIOR SPATIAL ORGANIZATION DESIGN

Project: House/Dark Room Atelier

Date: 2023 Fall

Ezgi Kaplan Portfolio 2021 —2024 48 üzümlü atelier
reuse
Ezgi Kaplan Portfolio 2021 —2024 49 atelier

Z04

KARANLIK ODA/ATÖLYE

havalandırma

DÖŞ.: Plywood

DUVAR.: Taş

TAVAN.: Beton +0.00

DÖŞ.: Plywood

DUVAR.: Plywood

TAVAN.: Taş +0.00

Ezgi Kaplan Portfolio 2021 —2024 50 1 +0.40 +0.66 2 +0.92 3 +1.18 4 +1.44 5 +1.70 6 B Z03 WC
havalandırma
çift perde
lavabo lavabo
agrandizör
kurutma
kimyasal tepsileri

yukarıdaki döşeme izi

Z01

GİRİŞ/SALON

DÖŞ.: Doğal Taş

DUVAR.: Taş

TAVAN.: Ahşap Döşeme

Z02 MUTFAK

DÖŞ.: Plywood

DUVAR.: Taş

TAVAN.: Ahşap Döşeme dış döşemenin içeri giremesi güneşlik

Ezgi Kaplan Portfolio 2021 —2024 51
1 2 3 4 5 6 7 8 9 10 11 12 +1.40 1 +0.30 +0.00 A A B
+
havalandırma
0.15
ateş çukuru YOL
dere taşı 1 2
YOL
tezgah altı buzdolabı
Ezgi Kaplan Portfolio 2021 —2024 52 1 +0.40 +0.66 2 +0.92 3 +1.18 4 +1.44 5 +1.70 6 7 +1.96 +2.22 8 +2.48 B TERAS betonarme kirişin

101

YATAK ODASI

DÖŞ.: Plywood

DUVAR.: Kerpiç

GALERİ BOŞLUĞU

betonarme kirişin üstü

102

WC

DÖŞ.: Seramik Üstüne Teak Izgara

DUVAR.: Plywood/Kerpiç

Ezgi Kaplan Portfolio 2021 —2024 53 1 2 3 4 5 6 7 8 9 10 11 12 +1.40 1 +2.60 A A B
kerpiç duvar

ÖLÇEK: 1/20

GİRİŞ/SALON

DÖŞ.: Doğal

DUVAR.: Taş

TAVAN.: Ahşap

Ezgi Kaplan Portfolio 2021 —2024 54 A-A KESİTİ
24mm low-E double glazing AHŞAP PARKE KADRON BETONARME Z01 CAM ÇATI

101

YATAK ODASI

DÖŞ.: Plywood

DUVAR.: Kerpiç

PARKE 4cm

KADRON 6cm

BETONARME KİRİŞ

GİRİŞ/SALON

Doğal Taş

Taş

Ahşap Döşeme

Z02 MUTFAK

DÖŞ.: Plywood

DUVAR.: Taş

TAVAN.: Ahşap Döşeme +2.60

çelik merdiven 5mm

+0.00 +1.40 +0.24

GRANİT KÜP TAŞ 6x6x6

KUM YATAK 10cm

DOĞAL ZEMİN

KİREMİT

SU YALITIM MEMBRANI

ÇATI TAHTASI

CAM YÜNÜ

DEKORATİF PLYWOOD

MERTEK

GRANİT KÜP TAŞ 6x6x6

KUM YATAK 10cm

DOĞAL ZEMİN

Ezgi Kaplan Portfolio 2021 —2024 55
cam tuğla
Z01

TERAS

+2.48

Z04

KARANLIK ODA/ATÖLYE

DÖŞ.: Plywood

DUVAR.: Taş

TAVAN.: Beton

Z03 WC

DÖŞ.: Plywood

DUVAR.: Plywood

TAVAN.: Taş

+0.00

Ezgi Kaplan Portfolio 2021 —2024 56
cam tuğla GRANİT KÜP TAŞ 6x6x6 KUM YATAK 10cm DOĞAL ZEMİN

101

YATAK ODASI

DÖŞ.: Plywood DUVAR.: Kerpiç

KİREMİT

SU YALITIM MEMBRANI

ÇATI TAHTASI

CAM YÜNÜ

DEKORATİF PLYWOOD

MERTEK

GİRİŞ/SALON

DÖŞ.: Doğal Taş

DUVAR.: Taş

TAVAN.: Ahşap Döşeme

102

WC

DÖŞ.: Seramik Üstüne Teak Izgara

DUVAR.: Plywood/Kerpiç

Ezgi Kaplan Portfolio 2021 —2024 57
4cm KADRON 6cm
PLYWOOD
+2.60
+0.00
Z01
Ezgi Kaplan Portfolio 2021 —2024 58
Ezgi Kaplan Portfolio 2021 —2024 59

04. Death, Art and Space

Acrylic and gouache on canvas

Date: 2024 Fall

Ezgi Kaplan Portfolio 2021 —2024 60 death
Ezgi Kaplan Portfolio 2021 —2024 61
Ezgi Kaplan Portfolio 2021 —2024 62

05. Photography Date: 2022 Spring

Ezgi Kaplan Portfolio 2021 —2024 63
dolapdere

thank you

Turn static files into dynamic content formats.

Create a flipbook
Issuu converts static files into: digital portfolios, online yearbooks, online catalogs, digital photo albums and more. Sign up and create your flipbook.
Ezgi Kaplan Portfolio by Ezgi Kaplan - Issuu