





所謂的社宅是指由政府出資 以便宜租金優先提供給弱勢族群的住宅 設立目的聽起來很棒,民眾普遍對它卻沒有好感 造成負面觀感的原因不外乎是供不應求 興建緩慢等等的問題 而身為設計者,有沒有可能透過設計 來解決社宅缺工缺料,營建緩慢等問題 基於這個前提,我有了設計「快建築」的想法
MODULAR ARCHITECTURE
FAST BUILDING

全國社會住宅興辦進度
內容取自內政部「不動產資訊平台」
設計背景 BACKGROUND STUDY
台北市
(單位:戶)

社會住宅是什麼?
社會住宅主要是指由政府出資興建的集合
住宅,或承接民間現有住宅改造為社會住 宅。目的是提供社會上較弱勢的族群有較 好的居住空間。和國宅不一樣,社會住宅
只租不賣,藉此來服務更多需要的族群。
社會住宅由政府指派專業人士把關,品質
受到保障。同時社會住宅常導入綠建築、
太陽能、無障礙空間等設施,並結合日照 中心、托兒所等公共機能,提供更完整且
便利的居住環境。
內容參考自「不動產資訊平台」。

價格便宜設施完善 新北市
由政府出資興建或承接民間空屋,改 造為符合一般民眾需求的社會住宅。
優先提供弱勢族群 政府出錢只租不賣
40%以上租屋優先提供給社會或經濟 弱勢者,也包括剛就業的年輕族群。
CP值比一般市售房屋更高,品質受到 政府把關,並提供完善的社區管理。

MODULAR ARCHITECTURE
FAST BUILDING

設計背景
BACKGROUND STUDY
根據《遠見》統計2024年總統大選的14項重點施政面向中,「青年與正義」這個議題是唯一 三位候選人都高度倡議的政見。「居住正義」也是候選人侯友宜高度關注與提倡的議題 關鍵字:居住正義、社宅興建、租金補貼、稅制改革







居住正義和社會住宅成為2024年台灣總 統大選的熱門話題與各黨派的重要政見。
「居住正義」 「社會住宅」
是解方還是口號?





照片取自youtube網路新聞。
STUDY
are the problems with social housing in Taiwan? 設計背景
台灣的社會住宅存在哪些問題?
台灣如何脫離購屋「買不起」、租屋「租不好」、社 宅「抽不到」的綜合困境?
營造進度緩慢

缺工缺料

土地不易取得
What
1.供不應求
蔡政府上任時宣布了「居住正義三隻箭」,其中一項是八年20萬戶社會住宅 的目標,如今任期已到尾聲,可以居住加上正在興建的社會住宅僅9萬多戶, 需要申請社會住宅的弱勢族群約50萬人,顯然政見已跳票。
2.缺工缺料
不只是社會住宅,台灣整體的建築產業都面臨缺工缺料的問題。由於物價不 斷上漲,社會住宅的興建成本也水漲船高。加上台灣年輕一代不願意做蓋房 子這類體力活,使得缺工問題越來越嚴重。
3.營建進度緩慢
由於興建社會住宅工期長,也偶而因為政治因素使工期延緩。加上社會住宅的 興建速度追不上房價上漲的速度,例如早期廠商簽一坪14萬,但由於工期過長 蓋好時一坪市價已飆到18萬,導致廠商「蓋越多賠越多」的狀況。
4.建商發包困難
基於上述因素,加上各黨派的政治角力,使社會住宅的興建變得異常困難, 且新建的社會住宅往往要符合綠建築、科技智慧宅、通用設計等高標準,更 壓縮了建商的利潤空間,導致許多建商不願接社會住宅的建案。
5.土地取得不易
內政部營建署國民住宅組科長蘇玉峰直言,處理土地反而是社會住宅耗時最 長的部分,平均一個案子需要跑6年以上才能完成。由於台灣各地地價上漲, 各個公部門也不見得願意釋出手上的國有土地,使社會住宅在找土地階段異 常困難。

內容參考自https://www.thenewslens.com/article/135204




MODULAR ARCHITECTURE
DESIGN CONCEPT FAST BUILDING
設計概念
針對居住正義和改善弱勢族群生活環境,社會住宅已經成為先進國家居住政策 的重要環節。以荷蘭為例,其社會住宅數量已高達全國住宅的34%,英國與丹 麥也分別達到20%和19%。新加坡和日本則分別是8.7%和6.06%。台灣如 果按照政府計畫順利進行,社會住宅的占比也僅達2.3%,相比其他西方國家 還有很大一段進步空間。
然而台灣在興建社會住宅的過程中卻困難重重,除了建築產業本身面臨缺工缺 料的問題,社會住宅的興建速度也趕不上屋價上漲的速度,導致建商不願承接 社會住宅的建案。基於以上問題,我希望能提出一個能快速建築且降低成本的 建築方案,來解決社會住宅目前的困境。
台灣人是個熱情的民族,卻也喜歡占小便宜。我們被譽為亞洲最安全的國家, 但安全帽和雨傘卻常被偷。台灣人也很講究效率與成效。買東西時我們注重產 品的「CP值」,吃東西時我們總是要「修夠大碗」。
這樣的國情或許也顯示於建築上。我們總愛屋頂加蓋和外推陽台,希望讓空間 利用最大化。我們也總是希望建築工期可以縮短品質又要好。但在這個缺工且 原物料不斷上漲的年代,能買到品質好又便宜的房子可以說是越來越困難,就 連由政府控制成本的社會住宅造價也不斷上漲。基於這樣的時空背景,也萌生 了我想研究「快建築」的想法。是否能藉助模組化的方式,找到更快速,同時 又能降低成本的建築方法。本計畫希望透過研究貨櫃建築以及模組化、單元化 建築來找到縮短工時及人力成本的建築工法。日本有隈研吾的「負建築」和藤 本壯介的「弱建築」,「快建築」是否能成為台灣建築的代名詞?
關鍵字:快建築、社會住宅、貨櫃屋、模矩化、單元化









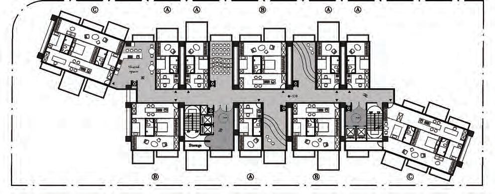
以預鑄工法與單元模矩化 縮短建築工期與人力。


有效率使用空間與公共設施 打造不忙碌的舒適快生活。


MODULAR ARCHITECTURE
設計概念 DESIGN CONCEPT FAST BUILDING

照片來源:https://www.flaticon.com/search?type=icon&word=modular

預鑄工法模矩化單元化


採用預先鑄作工法,降低工程 難度,縮短現場施工工期。
依據人數與使用需求制訂房型 規則,將居住空間模矩化。




制定二到三個居住單元,並透過 排列組合滿足住宅空間多樣性。

MODULAR ARCHITECTURE
設計概念 DESIGN CONCEPT FAST BUILDING


速食店或許給人不健康的印象 ,卻無可否認其已經成為台灣 飲食生活的一部分,且得來速 與外送服務更提升了速食餐的 便利性。


疫情之後外送服務需求大量增 加。Uber Eats 和 Foodpanda 機車在台灣大街小巷穿梭,外 食也成為都會區的一種象徵。
照片來源:https://www.flaticon.com/search?type=icon&word=modular

以Shein、Zara、H&M等連鎖 品牌主導的快時尚,逐漸成為 時尚圈的龍頭,也帶起一波新 的穿衣潮流。其服飾主打快速 換季與價格低廉。
速食主義(Fast foodism)是一種文化現象和生活方式,原意為在越來越忙碌的大環境下,對快速 便利食物的偏好和依賴。但後來成為一種新大眾文化與追求快節奏的生存日常,並衍伸出速食愛情, 速食生活等詞,展現了現代人偏好的一種生活型態。
雖著現代人的專注時間越來越 短,不管是電影、youtube影 片到韓團歌曲,都有時間變短 的跡象。抖音、Instagram reels、Youtube shorts更加速了 短影音的盛行。

蘋果在今年二月開賣最新的 Apple Vision Pro,是虛擬實 境的一個重要里程碑。其裝置 結合虛擬世界與現實世界,讓 使用者在穿戴裝置後仍可在大 街上自由移動。
法國社會學家Jean Baudrillard 在1996年提出「消費社會」一 書,主張在資訊加速,資本主 義當頭的年代人們消費的是符 號而非物品。整體社會是由符 碼組織起來的動態結構。
速食愛情可以算是快時尚的一 種延伸。隨著生活步調加快, 人們對於感情的需求也有所不 同。速食愛情主張短期快樂, 雙方在愛情中各取所需及時行 樂,不被社會期待綁架。
代謝派盛行於1960-70年代, 當時以黑川紀章、丹下健三等 人為首的代謝派建築在日本造 成轟動。其派系主張建築是個 活的有機體,建築必須隨著時 間產生新陳代謝。

Rem Koolhaas的著作之一《 Content》以雜誌與漫畫風格 呈現,是一種對現代社會的批 判,也是對於我們所居的短暫 世界的致敬。該書風格強烈, 呈現了現代的生活與建築。



搖頭丸是毒品的一種,盛行於 90年代。服用後可讓意志達到 「神遊」狀態,並產生幻覺與 狂喜。起初於美國各大城市開 始流行,是人逃離現實生活的 一種慰藉。











200m²

Eats







Demolition

Second-hand materials

Planning and design

On-site installation



Prefabrication
由於設計與建構時採用模矩化預鑄工法,使建築物 年老時可快速拆除,且各單元材料可使用於其他建 物或轉為二手材料,來達到環保再利用的目標。





Drivelines Studios 建築團隊 LOT-EK

照片來源:https://www.flaticon.com/search?type=icon&word=modular


以預鑄工法與單元模矩化等方式達到組構上的快速, 並置入快生活相關設施與生活空間。





國民黨遷台後台北市人口數 開始快速飆升,1964年台北 市已有一百多萬人口,為了 消化原本在台北市西部(淡 水河以東)過於擁擠的人口
,政府決定開闢松山機場南 側的田野作為新的住宅區, 也就有了今天的民生社區。
此計畫的主要推手是當時的 台北市長高玉樹,他在參訪 完歐美12座城市後,決定將 Clarence Perry的「鄰里單元 理論」帶進台灣。並將民生 東路新社區分為七個區域進 行規劃,每個區域配給一定 比例的人口數,讓學生可在 四百公尺內步行到達學校。
#鄰里單元論 #四百公尺 #民生東路新社區


MODULAR ARCHITECTURE
松山機場
ANALYSIS
基隆河
三軍總醫院
松山分院
敦化北路

城市主要道路
次要道路
學 校
公 園

台北民生社區是台灣最早使 用歐美單元住宅規劃的社區 之一,以鄰里單元劃分居住 區域,並以學校為中心,使 用「步行距離」為依據,在 一定距離內設置公園與公共 設施。
雖然民生社區已經有六十多 年的歷史,但由於其有序的 住宅單元規劃以及大量的公 園綠地與遊憩設施,至今仍 是住宅規劃的示範區域。

#歐美住宅單元 #模範社區 #步行距離/公共設施 參考書:計劃城事:戰後臺北都市發展歷程




MODULAR ARCHITECTURE
基地分析 SITE ANALYSIS
松山區人口結構
快生活設施

土地使用分區

調查基地周圍的快生活相關設施,發現高齡 者平均步行活動範圍(200公尺)內並未設 有便利商店,蝦皮店到店更是在500公尺以 外的距離。附近健身房的距離也相對遠。
15歲以下
15-64歲65歲以上扶老比老化指數

滑板車/捷運

基地周圍有三個捷運站,但都在約1公里的 距離,超出可接受的步行範圍,Ubike要借 還又太麻煩。因此提出以滑板車代步連接 大眾運輸,滑板也可隨身帶上捷運。

MODULAR ARCHITECTURE
FAST BUILDING



















































































































































































